Uriel Chávez Artwork Portfolio

Page 1

Uriel Chávez Portfolio

New Museum of Fine Arts Reims, France

01 Plaza and
view
Museum
02
New Museum of Fine Arts Reims, France
Inside view towards roman ruins

New Museum of Fine Arts

Reims, France

03
Sunken Square view
04
Ecoturistic Center Veracruz, Mexico
Aerial view

Site Museum, UNAM

Mexico City

Schematics sketches

05
06 Street market view
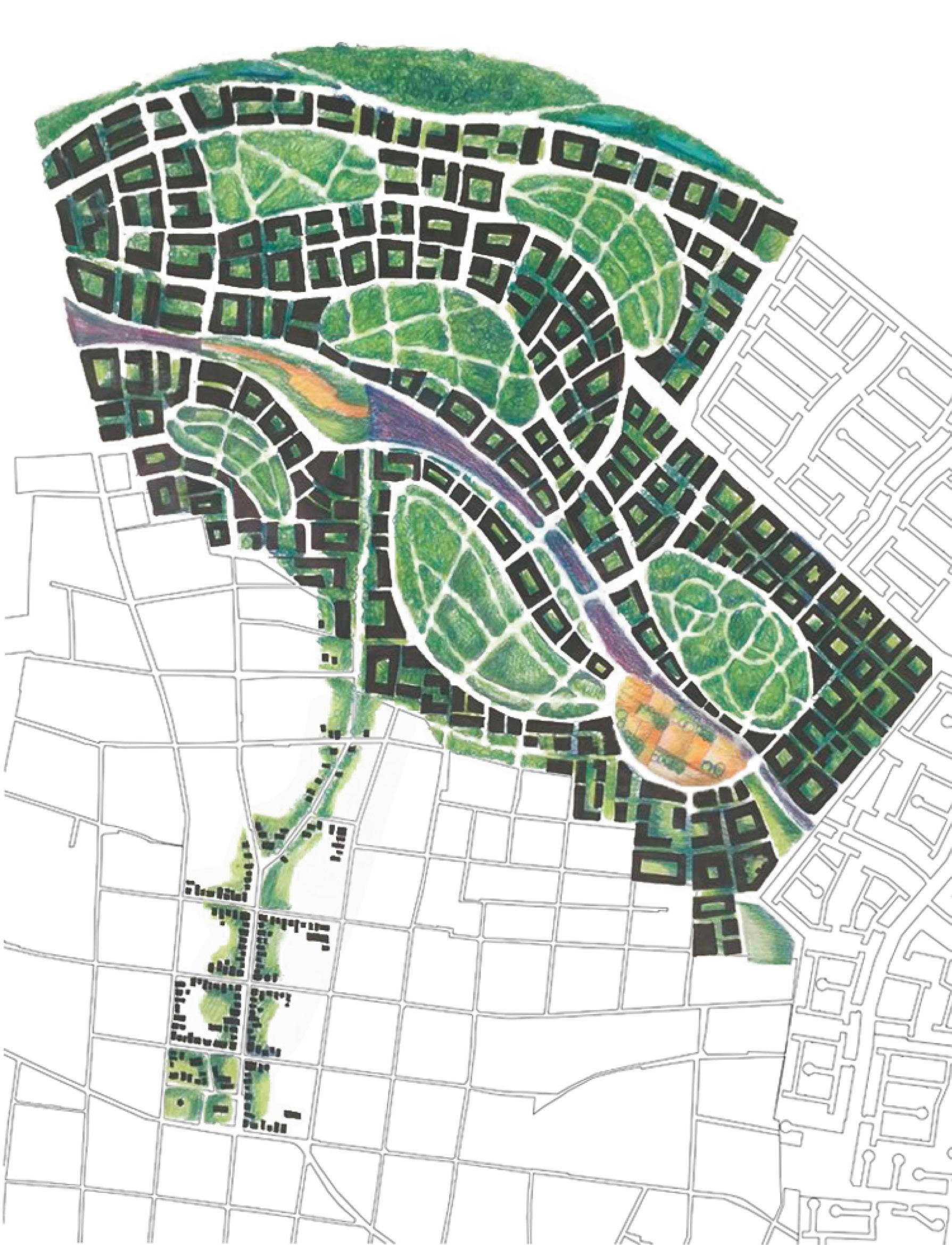
Urban Center, Caucel Mérida Yucatán, Mexico

Urban Center, Caucel Mérida Yucatán, Mexico

07
Urban Master Plan
08
Conceptual artworks
Urban Sketches of Reims. France

Conceptual artworks

09
Santa Cruz Church at Pedregal

Rome, Italy

10
Conceptual artworks

Conceptual artworks

11 Watercolor
work
12 Sardine Contest 2020 Conceptual artworks
Thank you

Turn static files into dynamic content formats.

Create a flipbook
Issuu converts static files into: digital portfolios, online yearbooks, online catalogs, digital photo albums and more. Sign up and create your flipbook.