PORTFOLIO TAYYABASHAHID 1002061033 DIPLOMAINARCHITECTURE MAY2022-AUGUST2022
CONTENTS DiplomaInArchitectureMAY 2022-AUGUST2022 UCSI UNIVERSITY, KUALA LUMPUR PROJECT01//SITEANALYSIS PROJECT 02 // PRECEDENT STUDY PROJECT03//FINALPROJECT
3D 3D SITE PLAN PROJECT01// SITEANALYSIS OURPROJECTTO DESIGNASKILL CENTERONSITE LOCATIONLOT NO.67,LORONG MEDANTUANKU2, CHOWKIT,KUALA LUMPUR, MALAYSIA.THE SITEISSITUATED INTHEHEARTOF KUALALUMPUR. Inordertodesign agood INSTITUTIONAL buildingforOUR CLIENT,wehave conductedasite analysisSTUDYin CHOWKIT,Kuala Lumpur.
NOTTOSCALE NOTTOSCALE PROJECT01// SITEANALYSIS WTERLOW DRNG YTEM CLCOM MANHOECOVR LEGEND EWGE MANHOECOVR TYPEOFSOIL SANDYSOIL AGR TTYTYPEOFSOI CONSIST NG OFPART C ESFROMWEATHERED ROCKS GOATSBEARD ONESEEDBURCUCUMBER SMALLBANANANATREE SHRUBS AND CROPS TERMINALIACATAPPA PTEROCARPUSINDICUS TERMINALIACATAPPA SYZYGIUMCUMINI SOFTSCAPE DRAINAGE
PROJECT01// SITEANALYSIS 9am12pm3pm6pm 15 1 05 0 WNDSPEED(m/ NovDec 15 y 9AM NorthEat NorhEast SouthWet SouthWes SouhWet SouthEas SouhWest AVERAGEWNDSPEEDATCHOWKTDALY MONTHLY WINDDIRECTION DAILY SUNPATH SHADOW NorthEat NorthEat NorthWes, moretoNorh Norh Wes 9AM 12PM 3PM 6PM SEPTEMBERDECEMBER MAYAUGUST ANUARYAPRL 9AM 6PM 3PM 12PM 12PM 3PM 6PM ENCED WIND FROM SOUTHWEST AND THE NORTH SIDE OF THE SITE GETS MOST OF THE SUNL GHT MOST THE T ME ALTHOUGH THERE ARE TRESS AT THE SITE BUT MOST THE S TE STILL GETS DIRECT SUNLIGHT DURING THE DAY S TE PLAN SCALE 1:500 NOISE SOUTH 6063dB heavyconstruction nose lightvehicenoise WEST 5759dB lightvehicenoise ightconversation noise EAST 5960dB light vehclenoise light conversation noise NORTH 5860dB lighttrafficnose lightmonorailnoise HUMANANDVEHICLE FOODSTALL ROADNEARTHESITE MONORIALNEARTHESITE PROADNEARTHESITECARKINGLOTSRONSTRUCTIONAREA OADNEARTHESITE HUMANACTIVITY GOINGTOPUSAT GELANDANGANMEDAN TUANKUTOCOLLECT FOOD (AT12:30PMAND5:30PM) STAYINGATPUSAT GELANDANGANMEDAN TUANKUOVERNIGHT UNTIL9AM HOMELESSPEOPLE STAYINGAROUND ATJALANMEDAN TUANKU2 HAWKERSSELLING STUFFINFRONTOF SHOPLOTSATJALAN MEDANTUANKU1 HAWKERSSELLING FOODATTHEBACK LANEATNIGHT PEOPLEPARKINGAT THESITE PEOPLEWALKING FROMSITETOOTHER PLACES PEOPLEGOINGTO MONORAILSTATION MEDANTUANKU
PROJECT2PRECEDENTSTUDY Schoolgarden “DeBuitenkans” RO&ADArchitecten CulinaryArtSchool GraciaStudio -1 -2
PROJECT02// PRECEDENT PROJECTBACKGROUND &HISTORY Fromanunusedsectionoflandtoa practicalschoolforhorticultureandanimal carenamedasschoolgarden“debuitenkans”. Withthehelpofdonationsfrom professionalswhospendtheirtimeand expertisefortheresoursesrequiredtobuild. Withinthenexttwoyears,thecommunity, teachersandstudentsdedicatedtheirefforts tobuildthestructure. PROJECTDETAIL LOCATION:ROOSENDAAL,THENETHERLANDS DESIGN:2014 2015 CONSTRUCTION:20152017 TOTALLANDAREA:18.000M2 BUILDINGAREA:600M2 ARCHITECT:RO&ADARCHITECTEN MINIMALISM DESIGNCONCEPT IDEATION REFLECTINGONTHECHARACTERISTICSOF MINIMALISMANDDESIGNPRINCIPLES: DECENTDESIGNANDSIMPLEMATERIALS NEATANDSTRAIGHTCOMPONENTS. REPETITIONTOGIVEASENSEOFORDERAND RHYTHEMFORBALANCE LIMITEDCOLOURS UNIFICATION REFLECTINGONTHECHARACTERISTICSOF VERNACULARARCHITECTURETHEBUILDINDIS MADEUPOFLOCALLYAVAILABLECONSTRUCTION MATERIALSWITHACCESSOFNATURALLIGHT. THEBUILDINGISARRANGEDINADIRECTFRAME. REPRESENTINGASENSEOFDIRECTIONANDFLOW REPITITION RHYTHEM NATURAL LIGHT FOODMANUFACTURER SPORTSCLUB NURSNGAGENCY EDUCATONAL INSTITUTES NALSALON SITE
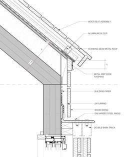
SCALE1:300 FRONTELEVATION SCALE1:300 SECTIONS SECTIONS SCALE1:300 StorageRoom Carport CodGreenHouse WarmGreenHouse nstruc ion Room Anma Shete Bi dCage Anma Seepng area ENTRANCE PUBLIC PRIVATE ZONING 4.2m 4.2m coumn struttingbeamrafterceillingjoistantislipblock STRUCTURALSYSTEM WoodenRoof WoodenLouvers CONSTRUCTIONDETAILS
PROJECT02// PREC PROJECTBACKGR &HISTORY PROJECTDETAIL Architects:GraciaStudio: JorgeGracia Area:894m² Year:2010 Location:Tijuana,Mexico STARTED IN 2003 BECAME TH SPECIALIZEDSCHOOLINCULINARY THE NORWEST OF MEXICO, W EDUCATIONAL SYSTEM FOCUSE PROMOTESHANDONMETHODSTY MODERN ART SCHOOL IN TIJUANA, MEXICO OFFERS A MODERN FACILITY WHERE STUDENTS CAN ENJOY COOKING AND LEARN ABOUT INGREDIENTS AND FOOD COMBINATIONS. MANY RESTAURANTS TRACTTOR REPAIR SHOP EMPTY GROUND LACK OF VEGETATION LEGENDS SITELOCATION DESIGNCONCEPT IDEATION EXPRESSTHEFUNDAMENTALNATUREOFTHE SITEWHICHISTHEUSEOFSIMPLECOLORS THISSPACEHASABALANCEBETWEEN TIMBERANDCONCRETE FACADEAND WALLSTHAT DRAPESOVERANDCONTOURSTHE AESTHETICS DESIGNPRINCIPLEUSEDISHEIRARCHY, ASSEMETRYANDDATUM THEFACETEDSURFACEOFTHEBUILDINGSERVES ASINSPIRATIONFORTHECONSTRUCTIONAND MINIMALISTICDESIGNSYSTEM THEHORIZONTALWALLBELOWTWOBUILDINGS HARMONIZING BETWEENTHETWOELEMENTS CREATINGAAESTHETICALLYPLEASINGFLOATING EFFECT HEIRARCHY ASSEMETRY
PROJECT02// PRECEDENTSTUDY-2 GROUNDFLOORPLAN SCALE1 300 X X Y Y FIRSTFLOORPLAN SCALE1 300 SECTIONX-X SCALE1:300 SCALE1:300 SECTIONY-Y
ZONING FIRST FLOOR PLAN GROUND FLOOR PLAN SPATIAL ORGANIZATION & SPATIAL RELATIONSHIP SteelStair ConcreteTilewall CONSTRUCTION DETAILS
PROJECT 3 // DESIGNING A SKILL CENTRE // INTRODUCTION I N - B E T W E E N
T H E C O N C E P T O F T H I S D E S I G N I S T O R E F L E C T A C O N T I N U O U S P A T T E R N O R A C Y C E T H A T R E P R E S E N T S B O T H T H E D I G N I T I E E S ; E A T X G R O W . T H E C Y C L E R E P R E S E N T S T H E F L O W O F A G R I C U L T U R E A N D F O O D I N B O T H PROJECT03// SKILLCENTRE DESIGN DEVELOPMENT R E - U S E , R E - G R O W PRIVATE PUBLC CONNECTING POINT E A T X G R O W - T O M A X I M I Z E I N T E R A C T I O N B E T W E E N U S E R S A N D T H E S U R R O U N D I N G . S E P A R A T I N G T H E P R I V A T E A N D P U B L I C A R E A W I T H A C E N T R A L C O U R T Y A R D . - T O M A K E B U I L D I N G V I S U A L L Y A P P R O A C H A B L E T O T H E P U B L I C . T H E I N N E R C E N T R A L C O U R T Y A R D S U R R O U N D E D Y P L A N T S A N D L A N D S C A P E L E N D S T H E C E N T R E M O R E O R G A N I C F E E L . P R O V I D I N G C A L M N E S S E F F E C T - T O E N H A N C E E C O L O G Y A N D S U S T A I N A B I L Y I N T H E B U I L D I N G . T H E C E N T R A L I N N E R C O U R T A R D H A S I T S O W N D I S C S H A P E D C A N O P Y B U I L D W I T H S O L A R M O D U L E S O N T O P W H I C H T H E R E F O R E C O N N E C T S T O A N A Q U A P O N I C P O N D P L A C E D R I G H T U N D E R T H E D I S C . D E S I G N I N T E N T I O N S DIGNITY FOR CHILDRENS FOUNDATION
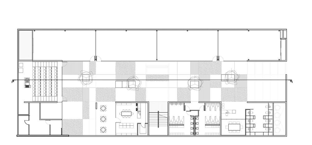
PROJECT03// SKILLCENTRE STORAGE OUTDOORDINE SARAU SPACE CLASSROOM TOILET LOADING BAY INDOOR DINE GROWING AREA RECEPTION STAIRS COORIDOOR NO. ROOMSOF AREAUNT 2 2 2 1 1 1 1 1 COOKING STATION 1 1 1 1 50 12 12 12 25 25 16 40 40 12 8 9 TOTAL AREA : 310SQM INDOOR DINING OUTDOORDNNG CENTRAL COURTYARD STORAGE OPENKITCHEN STORAGE LOADINGBAY COOKING STATION STAIRS OFFICE RECEPTION TOILETS SARAU MEETING ROOM DROPOFF OKU PARKING GARDENSERV CES ENTRANCE WALKWAY CORRIDOR CORRIDOR CLASSROOM GROW PLANTATION AREA SPLANTATIONAREA TORAGE STAIRS CLASSROOM EAT TOILETS PUBLIC AREA PRIVATE AREA LEGEND SOA BUBBLE DIAGRAM
PROJECT03// SKILLCENTRE SITE RESPONSE
G R O U N D F L O O R P L A N R O O F P L A N S C A L E 1 : 1 5 0
S O U T H E A S T S C A L E 1 : 1 5 0 S C A L E 1 : 1 5 0
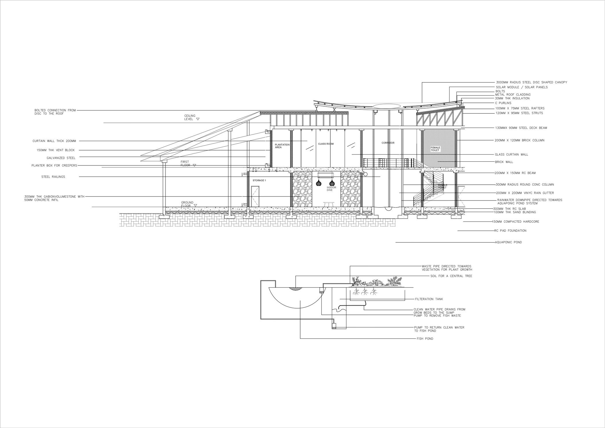
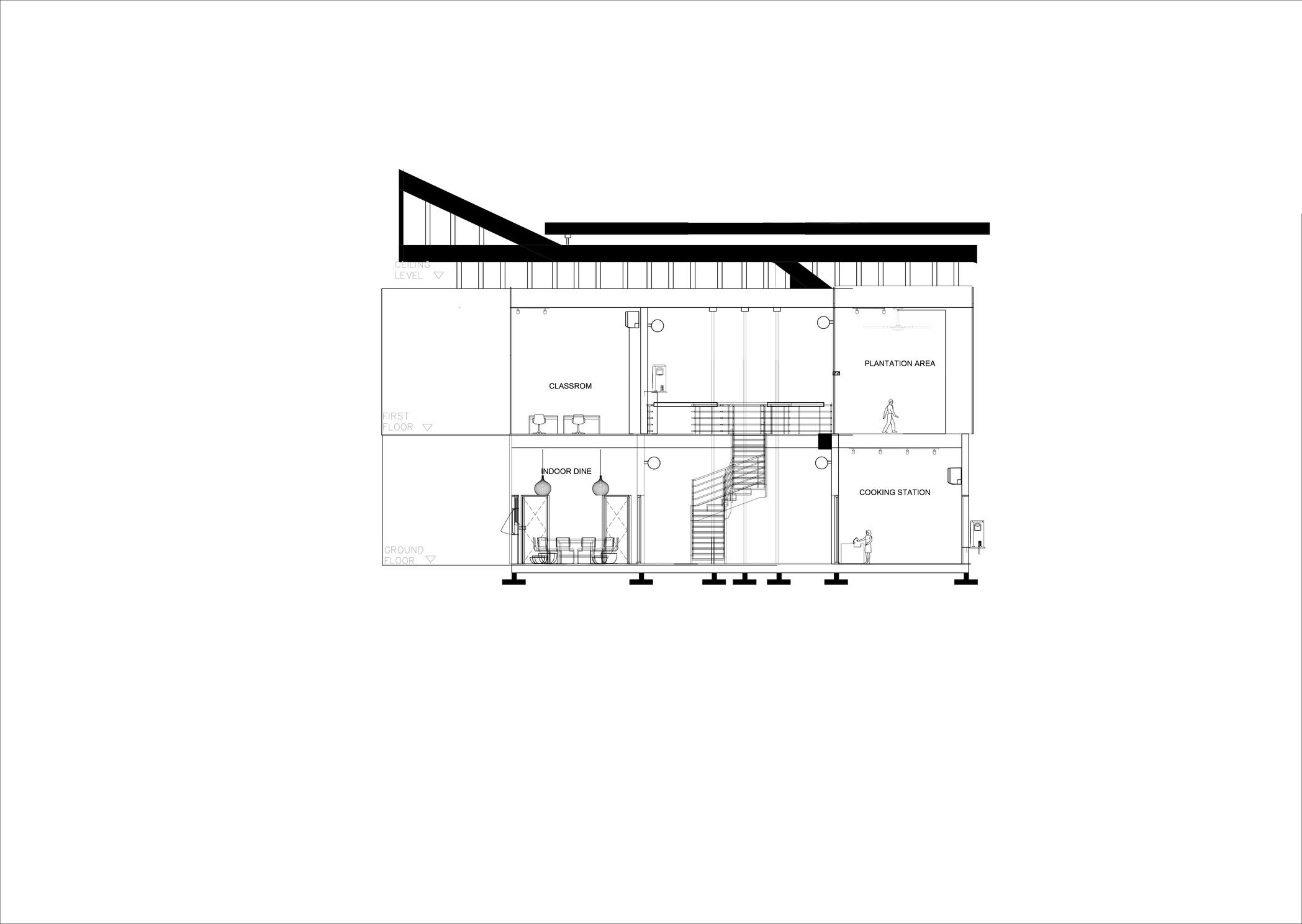
N O R T H E A S ST O U T H W E S T S C A L E 1 : 1 5 S0 C A L E 1 : 1 5 0 PROJECT03// SKILLCENTRE S E C T I O N Y Y S C A L E 1 : 1 5 0
PROJECT03// SKILLCENTRE M A T E R I A L S V I S I B L E C U R T A I N W A L L F I R S T F L O O R C A R B O N S T E E L D I S C S H A P E D C A N O P Y S E C T I O N X X S C A L E 1 : 1 5 0
PROJECT03// SKILLCENTRE E X T E R I O R V I E W F R O M L O A D I N G B A Y A R E A I N N E R C O U R T Y A R D V I E W F R O M C L A S S R O O M F I R S T F L O O R I N N E R C O U R T Y A R D V I E W F R O M C L A S S R O O M F I R S T F L O O R I N D O O R D I N I N G V I E W M E E T I N G R O O M INTERIOR PERSPECTIVES
EXTERIOR PERSPECTIVES PROJECT03// SKILLCENTRE I N N E R C O U R T Y A R D V I E W F R O M C L A S S R O O M F I R S T F L O O R
PROJECT03// SKILLCENTRE MODEL
PROJECT03// SKILLCENTRE
ENDOFPORTFOLIO