2024 Portfolio 2 PartI

Page 1

目錄

[基隆港商業大樓 - P03]

[天籟教會 - P13]

[庭美術館 - P24]

[The Loop House & The Six Bubbles House - P41]

[藝術街教會 - P49]

[宗族墓園-改造Leiria House - P53]

[立方體美術館 - P59]

[Photography - P68]

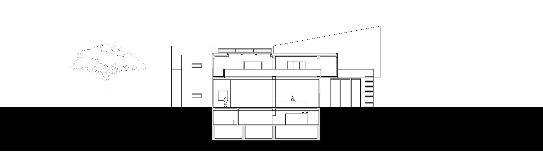
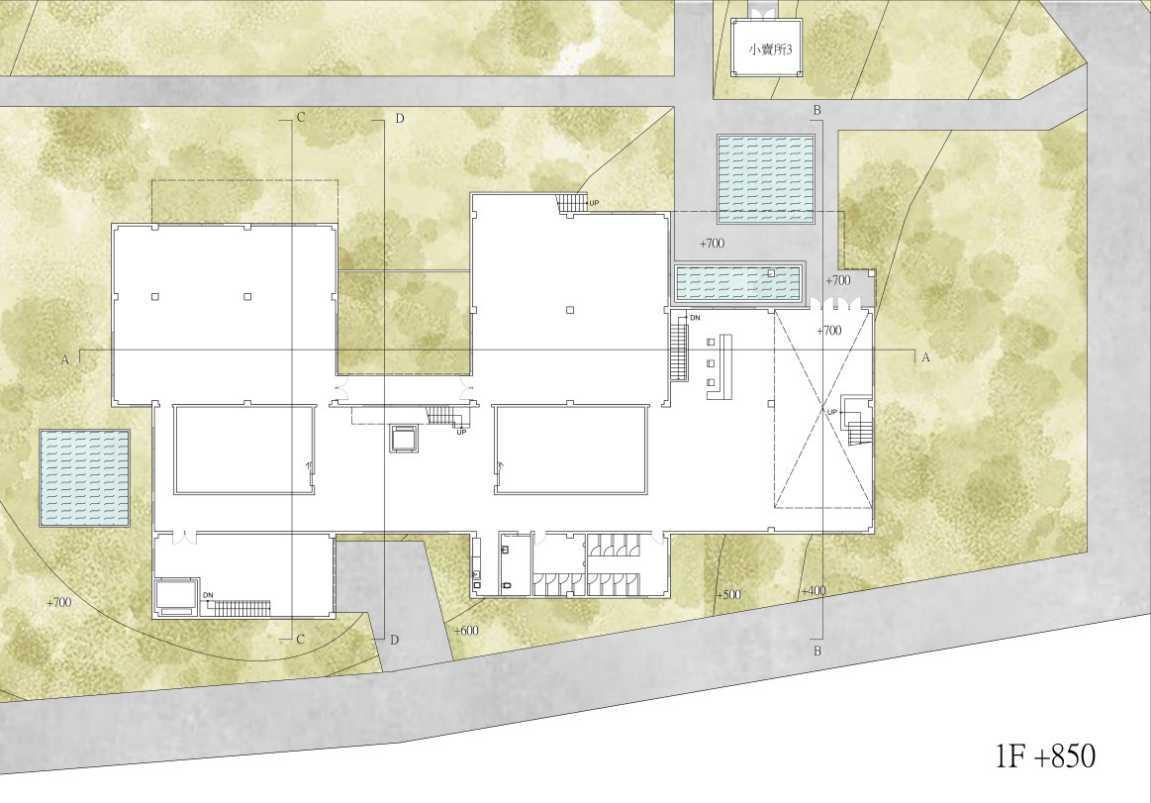
基隆港商業大樓

[Semester 4] 這學期操作 以結構系統出發 前期Study各種可能

的結構 草模操作 及其意涵 然後進入基隆港基地 選擇以中央核心 Core 及懸吊系統的方式 並以不對稱的設計操作此大樓

設計工具 CAD/雷切機/ AI/ InDesign/ PS/ Rhino/SchechUP/ Enscape/手繪

具有兩面性的基地 面山又面海 擁擠的市區人潮 到了基地範圍內 卻

是安靜無一物的現況 及中山路上的車流及靠港的水運形成對比 取此基 地的兩面性特性 希望在建築設計上 既能夠開放卻又封閉 面山 也面海

既虛又實 來對應基地不同的面向及機能

正空間 會議廳 負空間 (玻璃盒) 商業空間 Of ce 空間 11層/ 36m 選擇量體所在位置 縫補了 原本人行動線中 被海軍碼頭閘門 及三角 圍籬所區隔出的親海外置 始之成為新的人行動線的一部份 新闢的人行動線 舊的人行動線 照片位置 基地一側面向基隆海城的都市立面 有著歷史與多樣的立面 另一面 面向美麗 海港 選擇介入量體的位置 用辦公空間面對歷史對話 而商業空間位於面海側 以海景吸引購物人潮 面向性 縫合 辦公空間+服務空間 6452m2 商業空間 1034 m2 會議空間638 m2 S:1/2000
面向海景
垂直於都市的立面
0 2 4 8 16m
0 2 4 8 16m
0 2 4 8 16m

天籟教會

[Semester 2]住宅複合其他機能的操作練習 選擇結合教會及音樂教室

基地位於綠川河畔 操作神聖性空間形式的選擇 教會面對綠空廊道的立面

設計 及在有限的基地中 放入三住宅單元之練習

設計工具 CAD/ AI/ InDesign/ PS/ SchechUP/ Enscape/手繪

Ronchamp Gathhouse and Monastery's Oratory, by Renzo

巴格斯韋教堂屋頂 Luis Barragan / Galvez House
Santa Ana's Chapel at Portugal
教堂/相關空間草圖臨摹 廖偉立 救恩之光教會 這扇窗 啟發我 教堂聖器室立面開窗
Piano

概念一 底層動線&一層配置思考

原 鐘塔

看向基地的綠空大階梯

住-在基地南側垂直 堆疊

停車位置位在教堂下 方 二樓後側祈禱室

教堂兼音樂廳

底層希望具有

開放感

全區配置概念草圖 經過幾次調整 如Cafe位置 取消鐘

塔等 整體方向與最終設計一致可呼應

礁溪教會 From廖偉立 -底層開放感 Schetch

水景位在教堂底下 經過一個盒子 CORE

進入教堂 水景四周為可坐著休憩區

另一張全區配置/動線初期草圖 Alvaro Siza - Santo Ovidio Estate Chaple 思考能做在 停車場上方二樓 此圖為祈禱 室發想來源

概念二 教堂空間與屋頂Study

弧/圓屋頂系列 左側圖為三個弧構成屋頂(有草模) 右上圖在思考從屋 頂透光經反射的屋頂剖面 右下兩圖為錯開兩個弧從縫中可透光(剖面及透 視圖)

四周弧狀的屋頂 屋頂及東向立面能開縫透光 北向立面為 條狀開窗 平屋頂 幾何形狀採光天窗 一塊塊三角形量體並列成屋 頂造型 中間開隙縫天窗 參考Korea
三角形屋頂造型 開條形天窗 立面做造型開窗 (參考Harajyaku
Presbyievian Church of New York
Church)
單片弧形屋頂 一個斜曲面 延伸到一樓內退50cm 東向希望有十字架型意象 屋 頂上方為草皮或者開天窗
草模發展過程及3D模擬圖 天籟教會
圖面 使用Skechup建模
天籟教會建築設計部分是由我建立 基地模部 分為林同學建立
原設有底層挑空戶外咖啡廳 後來變室內而一層立
後來發展出錯開的弧形空間屋頂 及三辨弧形四分之一圓屋頂 再將大 的立面朝向綠空
3D Rendering
Enscape渲染
草模發展過程 從左上到右下
面透明
發展星佈開窗立面
AA
一至二層平面圖
2 6 4&5 三至五層平面圖

西向立面圖

北向立面圖

教會星佈開窗立面及聖器室間開高窗

立面圖
東向立面圖 南向立面圖
S:1/200

模型照片 北向立面開窗 希望底層具透空感 教堂有漂浮起來的感覺 東向立面 - 基地南側緊鄰一棟五層樓集合住

宅 方形長形錯落的開窗 某種程度就是呼

應在地立面紋理

說明底層出入口動線處理

屋頂拉高至五米的祈禱室 內牆

面四米五 透過天窗透光 彰顯 空間神聖性

西北角立面 能看到教堂立面/ 聖器室開的高窗

西南向立面 可看到祈禱室外觀 弧線造 型與眼形天窗 位在停車場上方 位置銜 接教堂與住宅之間 教堂方形星佈開窗與天窗效果

模型/情境照片說明 一層平面模型照
從左上至右下圖依序為 西北向立面 可見祈禱室與通往教堂之戶外梯/ 北向立面 可見教堂之星佈狀開窗及 聖器室高窗/ 東北向立面 可同時看到教堂與住宅立面/ 東北向立面/ 東向立面 從綠川看向教會與教堂
從左上至右下圖依序為 俯視基地 天籟教會為圖中央偏上方該棟/ 教堂以及祈禱室的天窗 及住宅西向立面/ 東北向立面/ 東向立面 從綠川看向住宅與教堂/ 東南向立面/ 北向立面 從綠空望向天籟教會 同時可見教堂 與住宅之立面

東海美術館

[Semester 3] 以Figure Ground 方式起始 先到世界各地城市尋

找Figure Ground 轉意到在東海大學花園餐廳基地上 操作量體

機能配置 美術館 校友會館 餐廳 書店 咖啡廳 後半學期 完

成基地配及美術館單棟設計 軸線及對稱性 是基地配置及量體主要之

操作

設計工具 CAD/ InDesign/ AI/ PS/ SchechUP/手作模型

奧柏林廣場剖面(東西向)

花餐前廣場剖面

奧柏林廣場與國際事務處剖面(南北向)

活動中心(西翼)北側廣場

花園餐廳附屬設施南側廣場

活動中心(東翼)南側廣場

可供停留或

穿越的廣場

指向路思義教堂的路徑

中軸線 中軸線 銘賢堂 餐廳 咖啡廳 進入量體的路徑
奧柏林廣場
Site Pla + 550cm A1 A2 C C C B1 B2 B3 0 1 5 10 20m Site Pla + 850cm A3 A4 D1 D2 E3 E1 E2 F5 F2 F3 F4 F1 0 1 5 10 20m Site Pla +1250cm A4 A5 D2 D3 D4 E1 E4 E5 E6 F11 F2 F10 F6 F7 F8 F9 F9 0 1 5 10 20m Site Pla +1450cm D2 D5 D6 D7 0 1 5 10 20m
+ 2000cm A B C C D E J I F G H C 0 1 5 10 20m
剖面
CC
S=1/600 BB 剖面 S=1/600 AA 剖面 S=1/600

可供停留或穿 越的廣場

中軸線的端點,遇到水池,轉 向進入美術館。以美術館量體 作為中軸線的收尾。

中軸線
進入量體的路徑 指向路思義教堂的路徑入口 文理大道

軸線收尾在進入美術 館後,透過窗所見到 的水景作為結尾。

中軸線的端點,遇到水池,轉 向進入美術館。美術館量體作 為軸線的收尾。

1 2 3 4 2 14 13 11 5 12 3 5 5 5 8 6 7 9 3 7 5 5 8 11 10 16 16 10 10 15 15 15 爆炸圖
基地配置(地面層) B1 D2 D3 D1 G G G F G G G G B2 E1 E2 A5 C1 C2 C3 A5 A5 A1 A7 A7 A7 A8 A2 A3 A3 A6 A2 A4 E3 0 1 5 10 20m
B1層平面圖 (+ 550cm) 1 2 3 4 5 5 5 1 3 10m 0 一層平面圖 (+850cm) 6 15 7 8 9 13 4 4 10 11 8 9 14 13 13 12 1 3 10m 0 16 16 16 17 4 4 11 18 20 9 19 20 20 二層平面圖 (+1350cm) 1 3 10m 0 RF層平面圖 (+2100cm) 20 20 20 13 22 23 13 21 21 1 3 10m 0

S=1/300

S=1/300

BB剖面圖 AA 剖面圖

CC剖面圖

S=1/300

DD剖面圖

S=1/300

The Loop House & The Six Bubbles House

[Semester 2]同時間操作兩個住宅案 一個在面對都市的綠川河畔邊街屋

第二處基地為在新社坡地上 為藝術家-小松誠設計其住宅及工作室複合之

機能

設計工具 CAD/ InDesign/ AI/ PS/ 手繪/手作模型

藝術家-小松誠

陶器是人類製造的化石 與恐龍化石在數億年的時間裡被地熱慢 慢燃燒石化不 同 陶器可以說是人類將岩石碾碎賦予粘性 成 型 在高溫下瞬間燒製而成的石 頭

小松誠 概述

出生於東京都大森市

1943年 畢業於武藏野美術短期大學工藝設計科

1965年 就職於武藏野美術大學工藝設計系

2004年 參加東阿國際陶瓷藝術展 中國北京中國美術館 提交當代茨城陶瓷藝術展 茨城 陶瓷美術館

2005年 “澆注器皿”特別展 紐約現代藝術博物館

2006年 應邀參加高岡工藝大賽第20屆紀念展 參加IAC國際陶瓷學院研討會 拉脫維亞 應邀參加第四屆世界陶瓷雙年展 韓國

2012 年 提交“現代日本工藝” 佛羅倫薩 意大利 國際陶瓷藝術工作室 捷克杜比 講 座和展覽

取小松誠創作中的 洞 泡泡 概念 將兩顆泡泡放在一起 前後兩顆 變成一個無限大的符號

以泡泡形成的空間 前後兩個 從一樓的展間 到二樓的前後機能 父母房 客餐廚 到三樓主臥以及小孩房 及四樓工作室及教學空間 並藉由梯間位置選擇迴旋上樓 完成此迴旋的概念 並落實到屋頂至立面

小松誠 後期許多作 品 多以洞為主題

取兩顆泡泡作為起 始發想

衍伸成為無限大的符 號 在 平面 動線 之中

立面及屋頂 形成

有脊椎的線條 落

入地面

The Loop House

9. 展覽廳

訪客廁所 14. 玄關既展示區 15. 入口半戶外區

16. 茶水間

17. 戶外休憩區

18. 講座區

19. 汽車升降梯

1F Plan S: 1/100

地面層平面圖
11.

B1F Plan

2F Plan

3F Plan

4F Plan

1. 客廳

2. 餐廳/ 廚房

3. 父母房(含衛浴)

4. 主臥室

5. 小孩房

7. 書房

8. 工作室

10.陶藝教室

11. 公用廁所(衛浴)

12.露台/陽台

13. 地下停車場

20. 汽車迴轉盤

平面圖 0 2 4 8 16m
20
停車場與設備空間
孝親房與客餐廚
小孩房/主臥室/及書房
工作室與陶藝教室
正模照片 由左上至右下分別為 西南向 背 立面/ 東南向剖面/ 梯Core/ 東北向立 面局部與展場入口/ 南向立面 / 屋頂及正立面脊椎造型
西南立面(臨綠川側)
東北立面(臨馬路側)

The Six Bubbles House

陶藝是手作概念出發 加上基地的啟發 位在風景及優美的山坡地邊緣 以多顆 泡泡 的概念出發 像是個手掌般 攤開在基地範圍上 為了能夠每個機能都欣 賞到最優美的景色 盡量將建築量體往基地邊緣線推 B1F 是陶藝家的工作室 獨立一棟 及車庫和休息室 一層是配置主要的公共生活層 – 客餐廚及書房 及父 母房 而北側配置的是獨立展覽廳 上到二層 則配置主臥及小孩房與客房 展覽廳樓上是會客室

陶藝家以手作作品為傳達訊息媒介

將手的概念 和基地形狀做結合

形成猶如攤開一隻手掌之量體配置在基地範

圍上 並同樣使用 泡泡 語彙 配合基地

線向景觀之面向配置量體 以爭取最優美景 色

其中一顆泡泡 藝術家工作 室 (草模)如六顆泡泡般 在地面展開 面向景觀優美側 在基 地展開

道路 S: 1/400
2F RF 1F
B1F
北向立面 道路側 東向立面 面景觀

藝術街教會

[Semester 1]手繪設計練習 一上

最後一次操作 在藝術接機地上 於

前階段設計的住宅旁 設計一座教會 複合教友住宅機能 及餐廳等 首次

操作神聖性空間 重視光影的進入及教會及教堂的接鄰關係

設計工具 手繪/ 手作模型

Turn static files into dynamic content formats.

Create a flipbook
Issuu converts static files into: digital portfolios, online yearbooks, online catalogs, digital photo albums and more. Sign up and create your flipbook.
2024 Portfolio 2 PartI by Kent Wu - Issuu