2024 Portfolio II

Page 1

宗族墓園-改造Leiria House

[Semester 2]建築理論課 透過Study經典案例Leiria

House(from Aries Mateus) 並且透過理解空間構成元素 並轉

化及調整機能 平面等 轉化成為宗族墓園 基地位於大肚山上

設計工具 AI/ InDesign/ PS/手繪/手作模型

隱私性 / 入口抬昇

抬昇一層的客用入口 及B1F隱身在基地路面邊緣牆 面

隱私性 / 對內性

維持地面上量體(房屋形象) 量體唯一開口為東向出入口及屋頂開口

面向建築內部開窗

隱私性 / 樓層劃分

以公共機能劃分2F Studio及B1F房間

天井

透過天井通風採光

分成公共 私密天井共五個

三層次圍塑公共天井 從私密到公共空間

Leiria House分析_建築師Aries Mateus

Leiria House 等角透視圖

等角透視圖 2F

新Program -宗族墓園

等角透視圖 1F

等角透視圖B1F

等角透視圖為新繪製 非描圖 為理解空間構成之關係

2F - 鋼琴室(家族為音樂世家 演奏時能為房屋充滿音樂 作為家族 思念及個人練習使用) 喬事房 串聯兩棟空中廊道

1F - 進入墓園公共層 /孩童娛樂區 宗族聚會聚餐等

B1F - 兩棟各四個空間作為兄弟兩支之家族墓園 每間各自規劃靜思區 及骨灰存放區/ 及車道入口

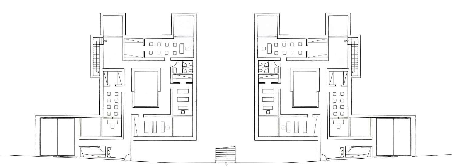
基地及一層平面圖(此為新設計) 宗族聚會區 廚房 兒童娛樂區 往二層樓梯 廁所 往一層入口戶外階梯 儲藏室 1F Plan S:1/200 往B1F 樓梯

(此為新設計)

2F Plan

A家墓園

鋼琴房

天窗 鋼琴房

宗族會議室 喬事房

聯結兩家族的空中廊

道 能眺望室內的聚

餐場景

家靜思區+墓園

C家靜思區+墓園

A家靜思區 D家靜思區+墓園

B1F公用廁所

二層&B1層平面圖
B1F東側西側平 面圖為對稱設 計 東側為第 一代長子 西側 為次子之家族 A/B/C/D墓園 及靜思區 車道 出入口等
B1入口 儲藏及掃具 停車場
B1F Plan
S:1/200

透視 西南角

背立面/顯示新的天井之間的關係

俯視角度

正立面及階梯上到一層之出入口

西側立面

將Leiria House 原本其中一面面向內部聚會場 所 在維持對內性特性下 亦能向內開窗開口 (空中廊道)

位置有挪移
二樓鋼琴室 左 及宗族會議室 右 打開屋頂室內狀態(能顯示家族聚會場所空中廊道

立方體美術館

[2023 Summer]從一段 聊齋誌異故事中出發 從蠟筆畫切入 切割成九等份

3D化後灌注石膏 再將石膏空間照片 經過Narrative & Scenario解讀操作 而後 目標設計一個美術館

設計工具 SchechUP/ AI/ InDesign/ PS/ 手繪(媒材-蠟筆/簽字筆 等)/攝影

第一階段 蠟筆繪畫

第二次版本 - 介入II

由 聊齋誌異 中 鳳陽士人 故事出發 理解故事中的狀態 詮釋故事其中 一部份狀態後 以60 x 60 cm蠟筆畫作呈現 呈現的概念是 介入 不論 是第三者的儷人 或者是弟弟出手幫忙 都是介入女子的婚姻 呈現某種程 度的干擾 第二版的圖像 更專注在第一版的線條跨過某一物件後的質變 第一次版本 - 介入I

草圖 10x10cm 版本

第一階段 蠟筆繪畫
繪製正圖前 往 往先繪製一系列 草圖激發靈感 在此呈現第一版 與第二版創作前 所繪的各版本草 圖

第二階段 Figure & Ground

第一版灰階圖 譜記及六方體

階 打九宮格從中挑選六 面組成立方體 進行2D 轉3D操作 要組構出的 立方體 視為三維空間對 外投影的圖面 左圖是的 第一次石膏模如何操作的 譜記圖 右三圖是六面體 Study的10
10 cm 模型
將第一階段圖面轉成灰
x 10 x
58
第一版壓克力模及譜記 6 1 5 3 2 4 此版在談反重力感與斜線 面2 大片的面被 1號面的斜劃開 呼應原本主題 介入 從 面1也能看到的一個高度不同但彼此交疊的X 符號 反重力感 從面3談最精準 所有物件都不靠 頂 從Zero's copy可更清楚呈現出此概念(見 下下頁右圖)

上左二圖 壓克力模與石膏的負模對照 上中圖 灌石膏前的石膏 負模 上右圖 灌石膏中的情況

第二次壓克力模型(Figure) 與石膏模一起進行那次 調整了前次 面5三個三角形 兩個相連 重複的意義 如熊爸爸 熊媽媽 再一 個熊小孩的情況 及增加面4地面廊道 石膏模會從原本實變虛 及面2方體左側邊上的斜 呼應上面的大三角形

1 5 6 4 3 2 第二版壓克力模

第二次版本譜記

第一版與第二版譜記 第一次版本譜記
61 此版面為第一版及第二版 譜記並置對比 能看出前 後調整差異之處
第二版石膏模照片 左圖 透過前面幾次 Figure & Ground的反覆 操作 第二階段最後 以第 二顆石膏模收尾 此呈現透 過不同角度的打光及攝影 捕捉第二顆石膏模型態及空 間樣貌 此亦作為第三及第 四階段操作的材料使用

第三階段 Narrative & Scenario

第一版圖面 - 救贖

左圖 此版Narrative想要表達的是救贖 從右至左閱讀 在 原本較貼近地面 在地面行走的空間 且量體有種站立感 經過一 個步道空間(圖cut through) 來到較昇華的 往上的 且上面有 道光滲透進入空間 得到昇華救贖的感覺

左圖 四張Scenario則

設想成特定機能 去做行為

及姿態上的發想 左上到右

下分別為Church / Hotel/ Art Gallery / Ski Slop

右圖 為繪製Scenario

正圖前的草圖 第五張機能 為遺跡博物館

63
Art Gallery

第二版圖面 是關於斜面 Slop)

(最上圖)Narrative中的斜坡 不見得都是真正 的斜坡 而是由各種角度斜面連接 甚至圖面錯 視而成 形成連續虛的斜的空間

(下側四張圖)Scenario中 小明是個數理資優 班的學生 他從各種斜面上 將彈珠滾下來 他 想要試怎樣的彈珠/ 斜坡能夠滑得最快 在斜面 上停留時間最短

把視角Zoom out 為什麼小明要做這件事 他們是一群住在山上的族群 山下有一大群野山 豬 一直要攻上他們的村莊 已經有許多他們的 同伴被這群具攻擊性的山豬給吃掉

小明進行試驗其實是要做巨大化的石頭 怎樣能 夠更有效/ 更有殺傷力的 殺死山下攻上來的山 豬 以保護族人

第二版圖面 - 斜面

Photography

攝影 作為興趣 也是接觸建築的方法之一 一下設計課 設計課老師

要我們每週交十張照片 在學期末選出最喜歡的二十張 攝影技巧 也

在過程中 不斷的進步 在此摘要其中的幾張

設計工具 攝影工具 - Canon 70D/ iPhone 11

從左上至右下依序為 斜/ 平行線/ 船艙底下/ 夫婦/ 醃菜店/ 還滿意嗎
從左上至右下依序
崗哨/ 枷鎖/ 天光/ BVLGARI/ 天光2/

[吳岱融 作品集]

Turn static files into dynamic content formats.

Create a flipbook
Issuu converts static files into: digital portfolios, online yearbooks, online catalogs, digital photo albums and more. Sign up and create your flipbook.
2024 Portfolio II by Kent Wu - Issuu