Architectural Portfolio 24' - Tunahan Sahin

Page 1

ARCHITECTURAL PORTFOLIO

SELECTED WORKS 2020-2024
TUNAHAN SAHIN

TUNAHAN SAHIN

PART II ARCHITECTURAL ASSISTANT

TURKISH 07 JUNE 1997, ISTANBUL

PERSONAL SUMMARY

E7 8ED

London, United Kingdom

+44 7391099251

tunahansahin60@gmail.com

www.linkedin.com/in/tunahansahin97 https://issuu.com/tunahansahin

A London-based ARB Part 2 Architectural Assistant took part in many architectural and urban projects in Europe and the Middle East. Keen on designing sustainable, environment-friendly, forward-looking projects. Excel at designing projects in Revit, AutoCAD, SketchUp, Photoshop, Illustrator, Indesign, Lumion and Enscape.

A team player with excellent communication skills and academic qualifications. Completed his master’s degree as first with the sustainability innovation prize with the urban mining and circular economy thesis he developed during his academic education. Beside of that organized workshops and studio critiques for bachelor students as a tutor.

ACADEMIC EXPERIENCE

COVENTRY UNIVERSITY

COVENTRY, UNITED KINGDOM | 2021-2023

Master Degree, Architecture ARB Part II

Grade: First Class Honours

MIMAR SINAN FINE ARTS UNIVERSITY

ISTANBUL, TURKIYE | 2016-2021

Bachelor Degree, Architecture Grade: Upper-second Class Honours

HOCHSCHULE WISMAR WISMAR, GERMANY | 2019-2020

Erasmus+ Student Exchange, Architecture Grade: First Class Honours

AWARDS

Course Tutor’s Prize for the Highest Attainment (Part 2 Master of Architecture - Coventry University)

Sustainability Innovation Prize - Urban Mining (Architectural Thesis Project 2023)

SOFTWARE SKILLS

PROFESSIONAL EXPERIENCE

H+S ARCHITECTURE, PART II

LONDON, UNITED KINGDOM | MAY 23 - PRESENT

As a key member of the architectural and urban design team, took part in many commercial, educational, cultural, residentia and public projects.

Involved in the design of many projects at different scales, covering RIBA Stages 0-4, in a range from new city developments to architectural detail drawings in Revit environment.

While holding the client meetings also worked collaboratively with subconsultants in these projects. Played active role in different different projects of creating design access statements, following regulations and obtaining approval from authorities.

COVENTRY UNIVERSITY, TUTOR

COVENTRY, UNITED KINGDOM | JAN 23 - MAY 23

Assisted the senior lecturer of the 3rd year design studio as a tutor to share the workload of studio critiques and bring different perspectives to senior undergraduate students by workshops.

AE ARCHITECTURE, ARCHITECT

ISTANBUL, TURKIYE | NOV 20- AUG 21

Facade designer using 3D modelling software (SketchUp & Lumion).

Meeting with clients and fulfilling their design requirements. Provided technical drawings for clients using AutoCAD.

O2K, INTERN ARCHITECT (CONSTRUCTION)

ISTANBUL, TURKIYE | AUG 18

Testing the theoretical skill-sets in a real construction environment and understanding the dynamics between blue collar and the white collar and monitoring every stage of the construction.

AE ARCHITECTURE, INTERN ARCHITECT

ISTANBUL, TURKIYE | JUL 17

SKILLS

Collaborative member of the design team, participating in design process, learning sessions focused on delivering a successful project to client.

LOOP POOL

#urbanminning

LIGHT TOUCH

#culturaldistrict

D100 OFFICE

#intersection

R°EX

PLORE KYRENIA

#roundofexhibition

II URBAN PLANNING

#urbanhealing

AE ARCH COLLAGE

#residential

AUTOCAD REVIT SKETCHUP LUMION PHOTOSHOP ILLUSTRATOR INDESIGN RHINO MS OFFICE ENSCAPE LANGUAGE
TURKISH - NATIVE TR EN DE IT ENGLISH - FLUENT GERMAN - INTERMEDIATE ITALIAN - INTERMEDIATE CONTENTS
04-19 20-29 30-29 30-39 40-47 48-59

LOOP POOL

#urbanminning

The resources that we ruthlessly exploit nature and share in the cities inefficiently can be harvested and distributed fairly to the ‘citizens’ with a new cooperation and story.

This process will be continued with a hub design where the necessary local cooperation can be practiced in order to harvest the resources and bring them together with the needy.

Strong local associations and cooperation, promotion of need-based consumption, public resource availability of existing stock, reducing stress on nature through reuse.

This center constitutes the whole of a set of spatial designs in which the necessary operational processes are managed in the process of harvesting, processing and meeting the resources with the user and the local community directly manages the process.

This unjust sharing, which causes many social and environmental problems, is destroying both our society and the nature we live in. It is possible to change this unproductive and deadly lifestyle with our cooperation capacity and imagination. The most important change of focus is to realize that the need for materials that we demand every time by going to nature is already full in our cities

“Equitable distribution and treatment of resources by community itself”

Project: Education-research and production hub where structures planned to be demolished will be deconstructed, saved and stored, reprocessed and offering new job and talent opportunities to the community.

Purpose: Evaluating the existing stock and creating a local circular economy, skills acquisition, education and employment for disadvantaged groups, creating a strong and willed community that can make decisions

Harvested Materials Loop Pool Design Thesis, MArch, 2023 Coventry, United Kingdom Public Luxury - Orchard Wharf Harvested Materials Loop Pool
04 05

Rewrite the story of the materials

In the past, our ancestors used to get the materials they needed by going to the forest and cutting down a few trees. Circular economy and deconstruction are not very different from what they say. If we want to make effective and quick decisions to improve our environment and society, what we need to do is to change our focus and become aware of the features that make us who we are.

It is also a possibility within the imagination of us humans, to see our forests as our cities and to create a story that will use our superior cooperation ability to harvest our cities.

Gentrification

Many strategies have been developed to meet the increasing need for new housing in London. Especially River Lea has many opportunities for the municipality to solve this problem. These strategies blend not only new constructions but also new sociocultural elements in the region. But do these strategies work?

Unfortunately, producing solutions adds to the problems of the people of the region. People waiting with the hope of renovating their homes become alienated from the region after a long process and try to continue their lives with heavy debt.

As a result of the projects started with the promise of building an affordable house, some flee the region, some become homeless, and some can do nothing but wait with hope.

In the Loop pool project, strategies were determined to deconstruct and re-evaluate the structures that are certain to be demolished but pending, instead of demolishing them.

Architecture to heal

With the Loop Pool project, these houses will be saved from demolition and the materials will be preserved in their storages for their new stories. Instead of this unfair gentrification method, the local people will be able to be involved in every step of the process or observe the process transparently.

New job opportunities, cooperation practices and local organisations that emerged during the stages of harvesting materials, reprocessing modular housing units and design2deconstructing cities step by step will both reduce our stress on the environment and provide social rehabilitation.

The practice of building the environment we live in with our own hands with joint efforts and dreams is the most important issue that architects need to find answers to their social and environmental responsibilities. The process design that serves the community creates harmony with the environment and aims to improve each factor it is related to is the most critical goal for fair sharing.

Strategies to solve the housing shortage in London are concentrated in East London. The so-called Opportunity Areas offer many architectural and social innovations along the River Lea and the Thames.

In the middle of these areas, the intersection of two rivers and Orchard Wharf, adjacent to the natural reserve East India Dock Basin, is naturally a centre considering these features and historical importance.

Its strong connection to waterways, proximity to existing housing projects and focus on community centres such as Trinity Buoy meet the requirements for a Loop Pool centre in East London.

It is already secured by the fact that it is Safeguarded Wharf and the industrial heritage planning decisions it carries. Therefore, new projects should have a function parallel to this industrial heritage.

Although in its current state, it is excluded by the housing projects next to it and left to its fate, it does not see any value, but it offers the necessary opportunities for Loop Pool in many different ways due to its potential and being a bridge to public spaces.

The area, which houses two old warehouse structures of about 100 years and a brick building in ruins, will be cleaned for new housing projects, and its historical traces will be erased.

For adaptive reuse, which is the first step and choice of architectural reuse, these two warehouse structures already provide a starting opportunity.

Structures

0
06 07
Existing

DECONSTRUCT “THE BOX”

This cube, consisting of 6 parts and each containing a component, symbolizes urban mining, which is the architectural method of public luxury. A new structure is obtained by deconstructing this cube, taking it apart and reassembling it with different angles and options. Later, this structure is disintegrated again and reaches another form.

Demolition Plans on East London

In these pilot areas determined based on Orchard Wharf, the aim is to suggest that the structures that are certain to be demolished should be deconstructed instead of demolished. In these regions which overlap with the unemployment map, the aim is to create new employment with urban mining and at the same time to offer the community the opportunity to renew their neighbourhoods.

Story behind of the polished facades

The biggest contradiction in the strategies that are currently advancing is that the projects called affordable houses are the exact opposite of their reflections in real life. At the end of these processes, people try to hold on to life again in completely foreign environments, with lost memories and debts they could not pay.

With this process organized in the Loop Pool, materials will be recovered and modular housing units will be created by the community by reusing these materials. These modules will be sent to the re-harvested regions and the neighbourhood will be renewed.

The key difference here is recovery, community-directed process and retransfer of characteristic materials to the site. Since a part of the community will work in this process, a new definition of affordable housing will also be created.

Zone 2 - Jura House Harvest Mine for the hub Aberfeldy Street Murals
08 09
se ORCH New - Old Jura In Loop Pool, materials harvested from Jura House and modular units formed with CLT frame are brought back to Zone 2 and Jura House is rebuilt. The modules, which re-evaluate the character of the street and the story of the materials, become a home for its inhabitants. Design 2 Deconstruct Warehouse, which currently produces wooden building materials in Urban Mining Zone 4, is kept until the end of this process and works as a CLT supplier for the modular units produced. Harvested materials equip these CLT panels to create new building units. Volumetric Calculation Calculations are made to store the harvested materials and to provide temporary accommodation to the occupants. Loop Pool's storage units are designed to accommodate an entire Jura House. For residents who have lost their homes, temporary homes in the Community Tower are prepared until the end of the process. Sample Unit Living room and kitchen on the ground floor 2 bedrooms and bathroom upstairs Brick load-bearing walls on both sides Wide variety of windows Jura House The largest and most populated unit in Zone 2 is a 1950s social housing. Although it cannot provide a good environment for the current inhabitants of Jura as a whole, it is very valuable in terms of the ability to reprocess the materials it contains and the material it carries in terms of memory. CLT Supplier Urban Mining Zone 4 FLOOR ASSEMBLY PREFABRICATED WALLS ROOF/CEILING FRAMING CLT PANEL SKELETON Loop Pool Designing the process Employment for deconstruction works Harvesting and storage of materials Training area for processing materials Production of modular units by reusing harvested materials Temporary accommodation for displaced persons Cohesion workshops and exhibition spaces for the community Loop Pool Light Studies Harvest Plan Flow Diagram 10 11
0 10 30 70 100 5 50 20 EAST - SOUTH ELEVATIONS
View from Orchard Stairs Mass Development
Function Scheme
0 10 30 70 100 5 50 20 m NORTH
Tower Social Area - WEST ELEVATIONS
12 13
View from East India Dock Basin Entrance Community Workshop
100 300 500 Detail Detail 2 Detail 3 Detail 4 Wooden Roof Cover Vapour Barrier Wooden Batten Air Duct Steam Stabilizer Wooden Batten Heat Insulation Roof Truss Double Skin Glass Facade Polyurethane Concrete Topcoat Polyurethane Concrete Mortar Concrete Substrate Filming Layer Raft Foundation Heat Insulation Waterprof Grobeton Blockage Sand Compacted Soil Polyurethane Concrete Topcoat Polyurethane Concrete Mortar Concrete Substrate Filming Layer Raft Foundation Heat Insulation Waterprof Grobeton Blockage Sand Compacted Soil Floor Joint Floor Joint Floor Joint Steel Column Fire Protection 1. Warehouse Entrance 2. Lockers 3. Static Storage 4. TechLAB / TestLAB 5. Warehouse Canteen 6. Tower Social Area 7. Operation Pool 8. City Sightseeing 9. Static Storage 10. Infeed/Outfeed 11. Pontoon Dock 1 2 3 4 5 0 10 30 5 50 20 6 11 10 9 8 7 High Tide Low Tide 0 10 30 70 100 5 50 20 A A B B 2 1 3 4 10 6 7 13 12 14 15 16 17 7 18 10 11 6 8 8 9 9 1. Community Workshop 2. Education Workshop 3. Exhibition Area 4. Warehouse Entrance 5. Community Tower Entrance 6. Fire Escape Corridor 7. Infeed / Outfeed 8. TechLAB TestLAB 9. Temporary Storage 10. Static Storage 11. Operation Pool 12. Peninsula Passage 13. Modular Unit Showroom 14. Loop Pool Exhibition 15. Office Social Area 16. Loop Pool Stand 17. Orchard Stairs 18. Pontoon Dock A A B B 3 2 1. Warehouse Lockers 2. Loop Pool Office 3. Warehouse Canteen 0 10 30 5 50 20 Sections Ground Floor Plan First Floor Plan High Tide Low Tide 14 15 Structure
Loop Pool Production Hub
Material Palette
Education Workshop Exhibition Space by saved Murals View from River Thames
16 17
Loop Pool Production Hub Monitor

1. CONVEYOR

2.BULK STORAGE

3.TEMPORARY STORAGE

4.TECHLAB

5.INFEED/OUTFEED

6.SORTING

7.GANTRY

8.BARGE

9.PANTOON

10.TUG

11.STATIC STORAGE

12.FORKLIFT LINE

12
5 7 8 9 10
2 1 4 11 6 3
Reharvested Modular Units are in use Modular Unit Production Process
18 19
Use of Modular Units on Tower

LIGHT TOUCH

#culturaldistrict

The stained glass museum was our main topic in this project module.

The Stained Glass Museum at Ely Cathedral in Cambridgeshire is the only private stained glass museum in the UK and has over 125 stained glass windows from England and Europe over 800 years.

The museum seeks to expand its facilities to include larger gallery spaces, private storage facilities, modern conservation areas, and an enhanced visitor experience.

In this new museum to be built in Coventry, the existing collection at Ely Cathedral and 5000 pieces of stained glass from St. Michael’s Cathedral before the Blitz in 1940, will be on display.

A project that is easily integrated into the history and social life of the city and that does not ignore the responsibilities towards nature while meeting the museum’s needs has been designed.

Coventry is a historic settlement that has been transformed through the ages through trade, warfare and master planning into the diverse university town it is today.

The project area is located in the city centre surrounded by the Coventry ringroad.

This area, which includes shopping areas in the west and university buildings in the east, is the historical and cultural district of Coventry.

Stained Glass Museum Comprehensive Design, MArch, 2022 Coventry, United Kingdom
20
21
Modern Stained Glass Work for Lady Godiva’s Puppet House that will be displayed in the new museum

Circulation

Zonning

Focus with the Herbert cafe and my own mass

Creating a courtyard while respecting the existing trees Scale

Mass in harmony with its surroundings

Use of Metropolis Roof will be removed, basement used as storage

Function - Form

Adjusting masses by functions and sunlight

Focus Courtyard facing Herbet
22 Master Plan Ground Floor Plan 23
Metropolis Pub, Current Situation of project site
First Floor Plan Basement
Plan
24 South Elevation
Floor
- Reuse of Metropolis’ Basement
East Elevation
25
West Elevation
CLT+GLT Details 26 27
Store - Entrance - Gallery Section
Physical Model Museum and Catheral Ruins
28
Courtyard and Main Gallery Building Frame Exhibition Elements Courtyard and Entrance
29
Curtain Exhibition Elements

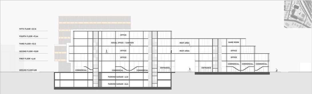
D100 OFFICE

#intersection

Commercial & Offices

Graduation Project, BArch, 2021

Construction,Technology and Environmental Design, MArch, 2022

Istanbul, Turkey

Located on the D-100 Highway (E-5), close to İçerenköy Carrefour, the land is one of the nodes of many transportation lines in Istanbul. There are warehouse structures over 50 years old and two residences on the plot. The region, which has changed over the years, has been shaped in line with the new needs and opportunities that have emerged and has gained a new function. New office buildings have been added to the existing office buildings as a result of the possibilities arising from their location on the two metro lines, one of which

is at the intersection of the first and second bridge roads.

One of the main drivers in the project is the effort to protect the green. To protect the trees in the region, I developed a design for the traces of the old structures.

Since trees are frequently located between the structures in the current situation, I expanded my masses in line with the spaces I could find.

Another important issue was my attempt to increase the contact areas of this green courtyard. Therefore, I connected my masses with bridges on the upper floors and left a transition area on the ground floor.

I imagined this place as a facilitating element for transportation, as well as frames that could easily attract the attention of people walking on that line.

30 31

In the master program, in the module named Environmental, Technology and Design, a section of this project was selected and its design was renewed. In line with the strategies determined by historical, environmental and technological research, new materials, forms and structures were processed in the section.

32 33
34 35
Environmental, Technology and Design, MArch, Alternative Section CLT+GLT Structure, Form Factor, Sustainable Strategies 36 37

Passivhaus Requirements

38
Old Section, BArch
39
Alternative Section, MArch Carbon Analysis

R°EXPLORE KYRENIA

#roundofexhibition

Projects aim to create an urban attraction centre in this valuable area. It was deemed appropriate to turn the Ruined Tower, which is an important point in the memory of the city, into an exhibition space where the city conveys its feelings.

The city of Kyrenia and its surroundings are the tourism capital of Northern Cyprus. This city keeps its past and different layers alive within the urban texture. These layers carry great potential for the local people. One of the areas that can reflect this diversity is the “Ruined Tower”.

The Ruined Tower, which was built by the Lusignans in the 11th century, is one of the 3 surviving towers of the Kyrenia city walls, which were built from the quarries to the east of the Kyrenia Castle.

The design aims to make the Ruined Tower a part of the city rather than treating it as a single mass. In this direction, the route, designed in the area limited by the city’s port area, castle and municipal square, aims to be a guide that can be used by city dwellers and those who want to experience this city.

The design offers a platform at the upper level to experience the manifestation of the observation, which is the construction function of the tower, on the contemporary urban fabric.

Exhibition Space Competition Project, 2020 Kyrenia / Cyprus
40 41

1 - RUINED TOWER

- EXHIBITION UNITS / ACCESS TO PLATFORM

- CORE INSTALLATION

3 - MASS FUNCTIONS

4 - COMPOSITION

- CIRCULATION

- RELATION WITH THE TOWER New square designed with origin of the diameter of the Ruined Tower and the compositions in different proportions

PHASE 5
PLAN
AA
ELEVATION - CULTURAL SHOWCASE 42
PHASE
PHASE 2
PHASE
PHASE
SECTION
DETAIL - EXHIBITION UNIT 1. reception 2. exhibition area 3. stairs 4. lift 5. platform-terrace 6. event area 7. toilet 8. breakout area 1 2 3 4 5 2 1 3 4 5 6 7 8 1. wooden
2.
3.
4.
(h=2.5m
5.
43
AXONOMETRIC DRAWING - R°EXPLORE KYRENIA
pot structure assembly
exhibition fabric
vertical plants
round pine lath
r=50 mm
horizontal bracket

II URBAN PLANNING

#urbanhealing

The school is close to the upper corner of the building islands, but the entrance is opened by the less intensive street.

The current situation has been compared with the units included in the zoning plan and therefore a school, a socıal facility, a mosque, the health clinic, new units like a park are added.

Total residential areas have been protected, commercial areas formed by the street and public spaces serving the region has been designed.

The existing patrol structure is aligned and a park has been created and placed in the middle of the building islands.

There is a healthcare located next to the bus station.

When the houses were designed, the exısting irregular structures have been combined and solved in larger building islands.

Public spaces require less vehicle roads. There is a healthcare located next to the bus station. A public space and springs have been designed on the new bicycle paths. A parking lot for cyclers located on the same path.

Concept design aims to show that it is possible to design housing projects and social facilities in an exemplary manner, which will be well above the average of Istanbul, without increasing the population density.

Urban Regeneration Design Urban Planning Project 2, BArch, 2020 Atasehir, Istanbul, Turkey
44 45

Current Situation - Construction Blocks

-While 43,380 m2 of residential area was demolished, 43,996 m2 of new residential area was built and 2,982 m2 of commercial units were designed.

-A green area is left above the Istanbul average (10%) in the building blocks y1, y2 and y3.

-New social functions have been added to the region and deficiencies have been corrected in line with the zoning plan.

Concept Design - Urban Regeneration

Y1

Total= 17.285m2

Population= 691,4

Floor Area= 2.181m2

City Block= 6.850m2

Gross Density

691,4/0,6850= 1.009 per/hec

Net Density

691,4/0,2181= 3.170 per/hec

Y2

Total= 1.443m2

Population= 57,7

Floor Area= 659m2

City Block= 4.397m2

Gross Density

57,7/0,4397= 131,1 per/hec

Net Density

57,7/0,069= 836,2 per/hec

Y3

Total= 3.939m2

Population= 157,56

Floor Area= 1.472m2

City Block= 2894m2

Gross Density

157,5/0,2894=544,4 per/hec

Net Density

157,5/0,1472=1.070 per/hec

Y4

Total= 2.763m2

Population= 110,5

Floor Area= 1.769m2

City Block= 3.012m2

Gross Density

110,5/0,3012=366,8 per/hec

Net Density

110,5/0,1769=624,6 per/hec

Y5 Total= 2.154m2

Population= 86,1

Floor Area= 1.032m2

City Block= 2.859m2

Gross Density

86,1/0,2859= 301,1 per/hec

Net Density

86,1/0,1032= 834,3 per/hec

Y6 Total= 2.961m2

Population= 118,4

Floor Area= 1.233m2

City Block= 3.073m2

Gross Density

118,4/0,3073= 385,2 per/hec

Net Density

118,4/0,1233= 960,2 per/hec

Y7

Total= 3.334m2

Population= 133,3 Floor Area= 1.220m2 City Block= 2.738m2

Gross Density

133,3/0,2738= 486,8 per/hec

Net Density

113,3/0,122= 1.092 per/hec

Y8

Total= 3.948m2

Population= 157,9

Floor Area= 1.979m2

City Block= 5.802m2

Gross Density

157,9/0,5802= 272,1 per/hec

Net Density

157,9/0,1979= 797,8 per/hec

Y9 Total= 2.878m2 Population= 115,1 Floor Area= 1.763m2 City Block= 5.305m2

Gross Density

115,1/0,5305= 216,9 per/hec Net Density

115,1/0,1763= 652,8 per/hec Y10 Total= 2.675m2

107

Area= 1.281m2 City Block= 4.170m2

Gross Density

107/0,4170= 256,5 per/hec

Net Density 107/0,1281= 835,2 per/hec

K1+K2

Total= 15.480m2

Population= 619.2

Floor Area= 2.425m2

City Block= 6.818m2

Gross Density

619/0,6818=907.8 per/hec

Net Density

619/0,2425=2.552 per/hec

%35,5 green area

(%7 Istanbul average)

K3 Total= 12.900m2

Population= 516

Floor Area= 1.290m2

City Block= 5.404m2

Gross Density

516/0,5404=954,8 per/hec

Net Density

516/0,1290=4.000 per/hec

%23.87 green area

(%7 Istanbul average)

RESULT

-43.380 m2 of residential area was demolished, a new residential area of 43.996 m2 was built in its place, and a commercial unit of 2.982 m2 was designed.

-A green area is designed above the Istanbul average (%7) in building blocks K1, K2 and K3.

-New funcitons were added to the area and deficiencies were corrected in parallel with the development plan.

-A new park and public spaces designed.

Current Situation - Lack of greenery - Irregular settlement - Poor social service

Project - 3 times greener than average - Regular settlement - Diversed social service

Population=
Floor
46
47
Proposed

AE ARCH COLLAGE

#residential

Meeting with clients and fulfilling their design requirements

Provided technical drawings for clients using AutoCAD understand the wishes of the clients and to manage these requests with the design team.

I had the opportunity to take part in many projects in one of the companies that make the most urban transformation projects on the Anatolian Side of Istanbul. The majority of the projects I worked on were residential projects of different scales.

The general responsibility consisted of 3D modelling of the projects, facade design and presentation to the clients.

As the person who makes the visualization, I have worked as a bridge many times to

For project planning and the best presentation of these requests, I undertook many concepts, details and facade designs in different stages within a period of about a year.

While some of these projects were concept designs in which the first ideas were reflected, some of them were the final versions of the projects to be started. This form of relationship provided me the opportunity to be involved in the decisions taken at every stage of the design.

In this part of my portfolio, I have included visualization works related to some prominent projects as an example.

Facade designer using 3D modelling software (SketchUp & Lumion)
48 49
Site project of 30 villas planned to be built in the north of the Anatolian side of Istanbul
50
Sile, Istanbul/Turkey
51
Detached House project Kastamonu, Turkey Office and commercial units concept project
52
Goztepe, Istanbul/Turkey
53
Office building project Ankara/Turkey Residential block project
54
Kadıkoy, Istanbul/Turkey Residential block project
55
Kadıkoy, Istanbul/Turkey Residential block project
56
Kadıkoy, Istanbul/Turkey Residential block project
57
Kadıkoy, Istanbul/Turkey Residential block project
58 59
Kadıkoy, Istanbul/Turkey

THANK YOU

Turn static files into dynamic content formats.

Create a flipbook
Issuu converts static files into: digital portfolios, online yearbooks, online catalogs, digital photo albums and more. Sign up and create your flipbook.