Sichten 25 – Entwerfen und Wohnungsbau

Page 1

ENTWERFENUND WOHNUNGSBAU

DESIGNAND HOUSING

PROF.I.V.DIPL.-ING. JOHANNESERNST

WOHNPRODUKTION LIVINGPRODUCTION KARLSRUHE

DieDigitalisierung,optimierte Herstellungs-methoden, landwirtschaftlicheMikrokonzepte, lokaleKreislaufsystemeund intelligente Manufakturen veränderndie BedingungenderProduktion.Paralleldazuentwickelnsichgenerationsübergreifend offeneundexperimentelle Lebens-undWohnvorstellungen.Die hierausresultierenden,sichwandelnden Anforderungenandie Architektur desWohnens findetaberinder WohnimmobilienproduktionkaumNiederschlag.Aufbauend aufden Potentialen zweierhistorischerWerkshallen aufdemGelände eineralten MaschinenfabriksollennunneueFormen hybriderGebäudetypologienentstehendiedas WohnenunddieurbaneProduktion ineinezukunftsfähigeKoexistenzbringen.

Digitalisation,optimizedproductionmethods,agricultural microconcepts,local circulationsystemsandintelligentmanufacturing arechangingthe conditionsofindustrialproduction.Paralleltothis,cross-generational,openandexperimental residential andliving ideas arebeingdeveloped.Thesedevelopments and thecontinuallychangingdemandson thearchitecture ofhabitationarenot beingcurrently reflected in thereal estate world. Working with thepotential oftwohistoricalfactorybuildingson anold industrialmachine production site, newformsof hybrid building typologiesareto bedeveloped,bringinglivingforms andurbanproductionintoa sustainablecoexistenceforthe future.

WISE2020/2021
LEA-SOPHIERAAB
WOHNPRODUKTION LIVINGPRODUCTION KARLSRUHE
LEA-SOPHIERAAB
WOHNPRODUKTION LIVINGPRODUCTION KARLSRUHE
LEA-SOPHIERAAB
WOHNPRODUKTION LIVINGPRODUCTION KARLSRUHE
PAUL OECHSNER
WOHNPRODUKTION LIVINGPRODUCTION KARLSRUHE
PAUL OECHSNER
WOHNPRODUKTION LIVINGPRODUCTION KARLSRUHE
PAUL OECHSNER
WOHNPRODUKTION LIVINGPRODUCTION KARLSRUHE
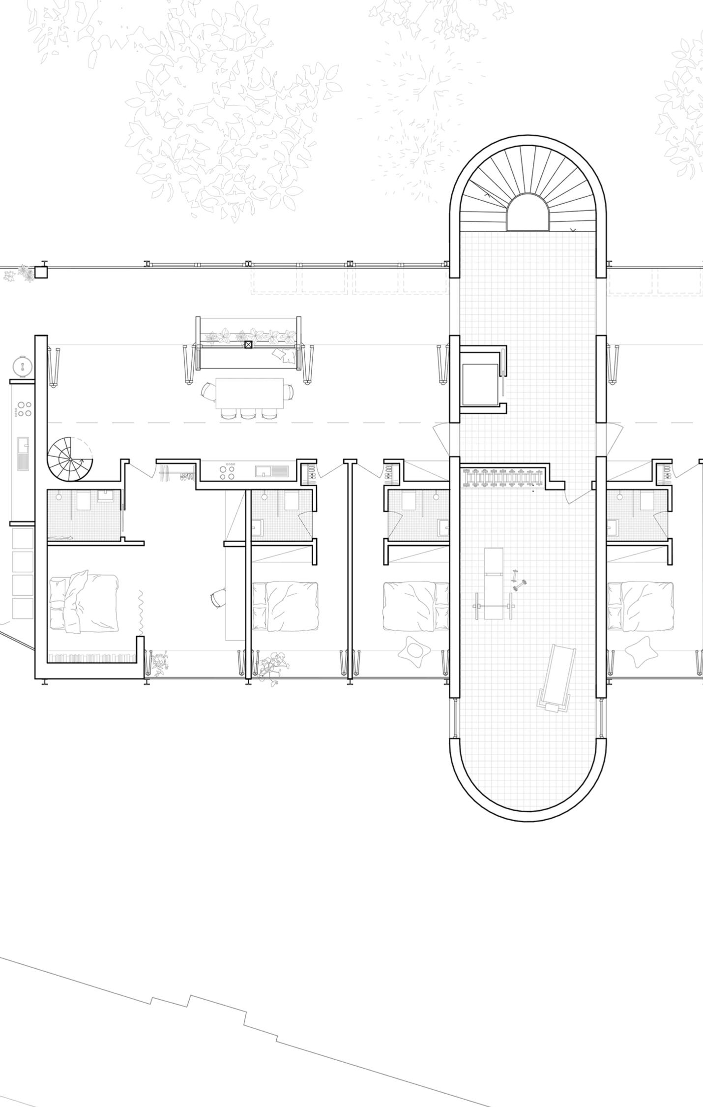
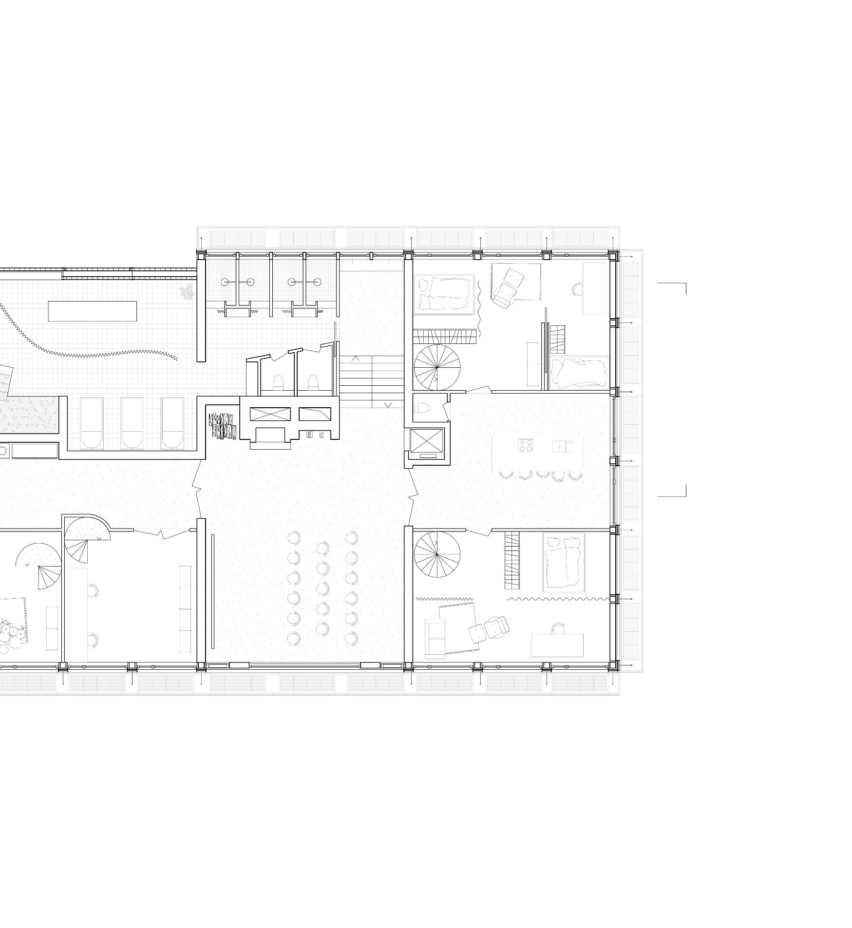
WOHNPRODUKTION KARSLRUHELIVINGPRODUCTIONKARLSRUHE 1LEA-SOPHIERAAB 2PAUL OECHSNER

WOHNLANDSCHAFT LIVINGLANDSCAPE BERLIN

Imimmer dichter werdendenGeflechtderStadtlandschaftwerdendie FlächenfüröffentlichesGrün eng. InhohemMaße werdenFlächen versiegelt, zwischengenutzteBrachflächen werden zur Bebauungmitdringend benötigtemWohnraumfreigegeben. Gleichzeitigsind unsereErwartungen anFreiflächengestiegen. Siebilden kühlendeWohlfühlortemitten in derStadt,fördern dieStadt derkurzenWege, sindSportraumundtragenzurBiodiversität bei.

Füreinesozial-wieökologisch-gesundeStadtentwicklung muss die getrennteBetrachtungvon Wohnraumund Freiraum aufgehoben werden.Daherbeschäftigenwiruns imkommenden Semestermitder Planung eines mehrgeschossigenWohngebäudes,dasseng verwobenist miteinerpolyfunktionalen Freifläche. Dabei werdenwiruntersuchen,welche räumlichen Qualitäten durchdieEntwicklungvongemeinschaftlichenundkooperativen Wohnformenentstehen.

Inthe increasinglydense meshoftheurban landscape,areasfor public greenspacearebecomingscarce.Toalargeextent, areas arebeing sealed,intermediately used vacant lots arebeing cleared fordevelopmentwith desperately neededhousing.At the sametime,our expectationsof openspaceshaveincreased. They form coolingplacesofwell-being inthemiddle ofthecity, promote the city ofshortdistances,aresports spaceandcontributetobiodiversity.

Inthecomingsemester,wewill focusontheplanning ofa multistorey residentialbuildingthat iscloselyinterwoven withapolyfunctional openspace.Inthe process,wewillinvestigatewhich spatial qualities arise through thedevelopmentof communal andcooperativeformsofliving.

SOSE2021
CARLA RIECHARDT+ROBERTHIRSCH
WOHNLANDSCHAFT LIVINGLANDSCAPE BERLIN
CARLA RIECHARDT+ROBERTHIRSCH
WOHNLANDSCHAFT LIVINGLANDSCAPE BERLIN
CARLA RIECHARDT+ROBERTHIRSCH
WOHNLANDSCHAFT LIVINGLANDSCAPE BERLIN
WOHNLANDSCHAFT LIVINGLANDSCAPE BERLIN 1CARLA RIECHARDT+ROBERTHIRSCH

WOHNLABOR LIVING MÜNCHENLAB

ImEntwurffürdas«WohnLabor»geht esnicht mehr darum ein Haus füreinenbestimmtenBenutzertypus respektive füreine bestimmteWohnformzu entwerfen.Vielmehr liegt die Herausforderungdarin, StrukturenundRäume zu entwickeln, dieoffen fürverschiedene Lebensmodelle undWohnformen sind.Das bewußte Fehlen scharfer Benutzerprofilewirdals Chancebegriffen, sichvonkonventionellen VorstellungenzulösenundStrategien fürdieheterogen - komplexeZukunftdesWohnens zu finden. Derarchitektonische Raum undseineMaterialisierungrückenin denFokusunseres vorwärtsgerichteten Wohnungsbauentwurfs. Überexperimentelle Versuchewerdenwiruns derErforschung alternativerundunerwarteter RaumfigurationendesWohnens annähern. DasfreieBaufeld zwischendemneuenVolkstheater, derexperimentellen„BahnwärterThiel - Welt“unddemMünchnerGroßmarktbietetdenurban - programmatischenRahmen fürden Entwurf.

Inthisdesign „LivingLab“wedonotaskforabuildingfor a specifiedgroup ofpeoplenortodesignvariationsofanalready knowntypology. Itisaboutfinding structures andspacesthat areopen undnondefined fordifferentways oflivinganddifferent formsofliving,capabletogiveanswers tocomplexquestions abouttheway wewill live in thefuture.The absenceof a specifiedprofilegivesthechance tomovefurther andbeyond the typicalwaysofthinkingandliving. Thearchitectonicalspace andits materialisation areinfocusofourdesignlab.Experimentalattemptswilllead ustoanexploration ofalternativ- unexpectedfiguresofliving. The open field betwennthe new„Volkstheater“,theexperimentalareaof„BahnwärterThiel“andthehistoricalMunichWholesale Markets givestheurban - conceptual frame forthis design.

WISE2021/2022
NELLYMEYER
WOHNLABOR LIVINGLAB MÜNCHEN
NELLYMEYER
WOHNLABOR LIVINGLAB MÜNCHEN
NELLYMEYER
WOHNLABOR LIVINGLAB MÜNCHEN
FABIANHELBIG
WOHNLABOR LIVINGLAB MÜNCHEN
FABIANHELBIG
WOHNLABOR LIVINGLAB MÜNCHEN
FABIANHELBIG
WOHNLABOR LIVINGLAB MÜNCHEN
ALICIAGOTTWEIN
WOHNLABOR LIVINGLAB MÜNCHEN
ALICIAGOTTWEIN
WOHNLABOR LIVINGLAB MÜNCHEN
ALICIAGOTTWEIN
WOHNLABOR LIVINGLAB MÜNCHEN
WOHNLABOR LIVINGLAB MÜNCHEN
1NELLYMEYER 2FABIANHELBIG 3ALICIAGOTTWEIN

WOHNART WIEN HOUSINGARTVIENNA

Nachdem„Wohnen“und„Arbeiten“imZugdermodernen FunktionstrennungzuisoliertenWissen-schaftenentwickelt wurden,wollenwirindiesem Semester andengegenseitigen Wechselwirkungen beimZusammenfügendieser Bereichearbeiten.Diekreative Arbeiteinerseits,die vielschichtigenAnfor- derungenandaszeitgenössischeWohnenandererseits bildendas spannende BasismaterialdieserUnter- suchung.Esgibtviele unterschiedliche Bereiche fürkreative Arbeit: Das Atelierdes Künstlers,dieSchreibstubedes Dichters,dasLabordesWissenschaftlers,die Werk-stattdes Handwerkers.Imhistorischen Kontext wardie BesonderheitdieserOrteoftdie unmittelbare odermittelbare räumlicheVer- bindung derWohn- undLebenssituationderjeweiligenAkteur:innen.DieseUmgebung von Kreativität undihrEinflussaufdieArchitektur unddas tägliche Leben derBewohner:innenstehtimFokusunsererUnter-suchungen. OrtderForschungist einzentral- inner-städtischer Ortin Wien dessenHeterogenität deroffenenFragestellungzusätzlicheImpulseverleiht.

After „ housing“and„work“ havebeen developedinto isolatedsciencesin thetrain ofmodernfunctionalseparation, this semesterwewanttowork on themutualinteractionsin the joiningofthese areas. Creative workontheonehand,and the multi-layereddemands oncontemporary livingontheother, form theexcitingbasicmaterial forthis investigation. There aremanydifferentareas forcreative work: theartist‘s studio, the poet‘swritingroom,the scientist‘slaboratory, the craftsman‘sworkshop.Inthe historical context,the specificity of these placeswas oftenthedirectorindirect spatial connectionoftheliving andlifesituationoftherespective actors.This environmentofcreativityand its influence on thearchitecture anddaily lifeoftheinhabitants isthefocusofourresearch. The researchsiteisinVienna.

SOSE2022
SIKA-SALOMEAZAMATI
WOHNARTWIEN HOUSINGARTVIENNA
SIKA-SALOMEAZAMATI
WOHNARTWIEN HOUSINGARTVIENNA
SIKA-SALOMEAZAMATI
WOHNARTWIEN HOUSINGARTVIENNA
HANNAHLINDHOLM
WOHNARTWIEN HOUSINGARTVIENNA
HANNAHLINDHOLM
WOHNARTWIEN HOUSINGARTVIENNA
HANNAHLINDHOLM
WOHNARTWIEN HOUSINGARTVIENNA
WOHNARTWIEN HOUSINGARTVIENNA 1SIKA-SALOMEAZAMATI 2HANNAHLINDHOLM

WOHNUNGSBAU DESIGNANDHOUSING

1WOHNPRODUKTION LIVINGPRODUCTION KARLSRUHE

2WOHNLANDSCHAFT LIVINGLANDSCAPE BERLIN

3WOHNLABOR LIVINGLAB MÜNCHEN

4WOHNARTWIEN HOUSINGARTVIENNA

Sichten 25im DIALOG

GalerieKurzweil +Fachbereich15 1.11-5.11.2022

Turn static files into dynamic content formats.

Create a flipbook
Issuu converts static files into: digital portfolios, online yearbooks, online catalogs, digital photo albums and more. Sign up and create your flipbook.