Duns Brochure 2024-25

Page 1

A Place to Call Home

Housing for later years living, with the freedom to live indepedently in your own home and access to care and support staff if needed.

If you would like this information in a different format or language, please get in touch.

Contents Why Choose Trust What is Housing with Care`? What is Amenity Housing? What does it Cost? Meal Service One Happy Community What’s Good About Trust? 1 3-4 6-7 8 10 12 13 Trust Housing Association Limited is a Registered Scottish Charity No. SC009086 Registered by The Scottish Housing Regulator HEP 143 Registered under the Co-operative and Community Benefit Societies Act 2014, No. 1778R(S)

Why Choose Trust?

At Trust Housing, we provide far more than just a home. Living with Trust is living in a community where you can feel safe and secure. Duns offers two different types of housing service designed for later years living, with the freedom to live independently with access to care and support staff if needed, home-made meals and social activities.

Our properties are pet friendly and have free Wi-Fi available. All of our properties have space and charging points for a mobility scooter.

The 19 Amenity bungalows are one or two bedrooms, very spacious and modern, each with patio doors opening to their own private, fenced garden, and ample parking.

The 30 Extra Care Housing flats are bright and spacious with one or two bedrooms, modern open plan kitchen and living room, wet floor bathroom. Tenants can use the level access garden area, and shared living spaces such as the dining room, lounge and laundry.

Duns - A Place to Call Home 1

What is Housing with Care?

Extra Care Housing is a holistic service with a high degree of flexibility in how care and support are delivered, it offers continuity, as care is delivered by onsite Trust staff. Our aim is to support people to live in their own home for as long as possible and remain part of the local community.

Experienced Trust Staff

Meals

Staff are on site 24 hours a day, 7 days a week, for all care and support needs.

Each person’s needs are assessed, and a personalised care plan is developed. This is updated on a regular basis, meaning a flexible and responsive service.

Tenants benefit from two healthy meals a day. Made by Trust’s on-site catering team.

Safety & Security

Staff can respond to emergencies and care for tenants with complex needs.

For added peace of mind, each flat has a call system, which allows access to staff for help. These pull cords are in the bedroom, bathroom and lounge, and there is secure door entry into the main building.

Hassle Free Living

All repairs are taken care of. There is no worrying about garden maintenance or window cleaning.

The Little Extras

• The one and two bedroom flats are bright and spacious, with open plan kitchen and living room.

• A communal area for tenants to socialise and take part in activities.

• Tenants can bring their own pets.

• Family and friends can visit and stay in our delightful guest bedrooms.

• Free Wi-Fi available in all flats.

• All of our properties have space and charging points for a mobility scooter.

Duns - A Place to Call Home 3

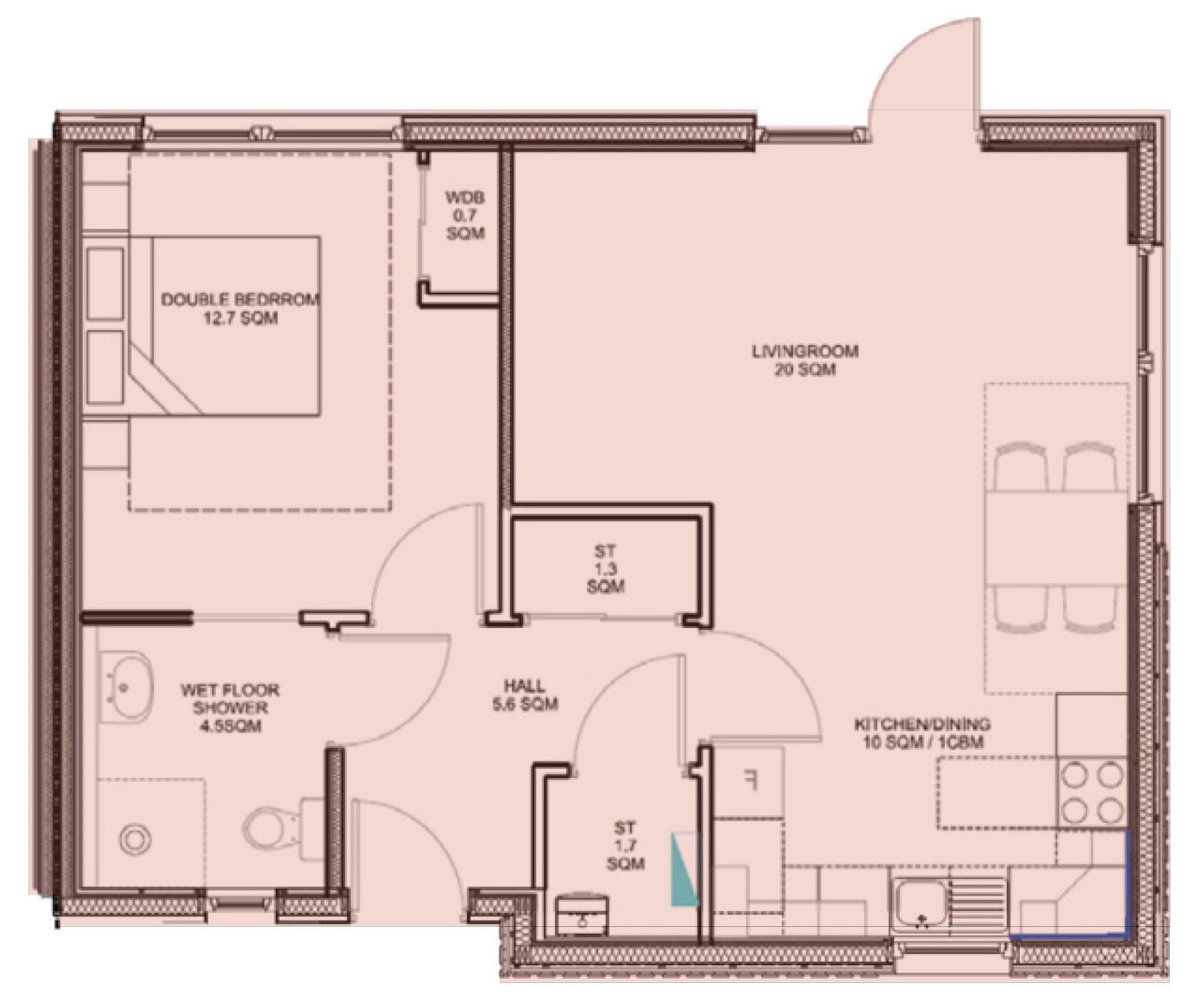
One Bed Flat Example

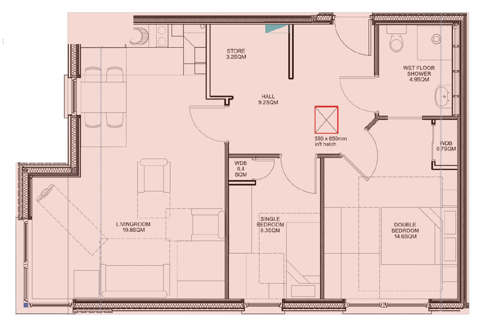
Two Bed Flat Example

4 Duns - A Place to Call Home

What is Amenity Housing?

Amenity housing offers safety and security features and access to social activities. Our aim is for tenants to live independently and know they have access to staff support if they need it.

Experienced Trust Staff

Meals

Trust staff visit your home on a regular basis to make sure you’re doing okay, offering support, if needed.

Tenants will have the option of two healthy meals a day, made by Trust’s onsite catering team.

Safety & Security

All properties have a call system, which allows access to staff for help. These pull cords are in the bathroom, bedroom and living areas. The service connects to a 24 hour a day alarm receiving centre, where any medical or repairs emergencies can be handled.

Hassle Free Living

All repairs are taken care of and there is no worrying about garden maintenance.

The Little Extras

• The one and two bedroom flats are bright and spacious, with open plan kitchen and living room, and a private garden.

• A communal area for tenants to socialise and take part in activities.

• Tenants can bring their own pets.

• Family and friends can visit and stay in our delightful guest bedrooms.

• All of our properties have space and charging points for a mobility scooter.

6 Duns - A Place to Call Home
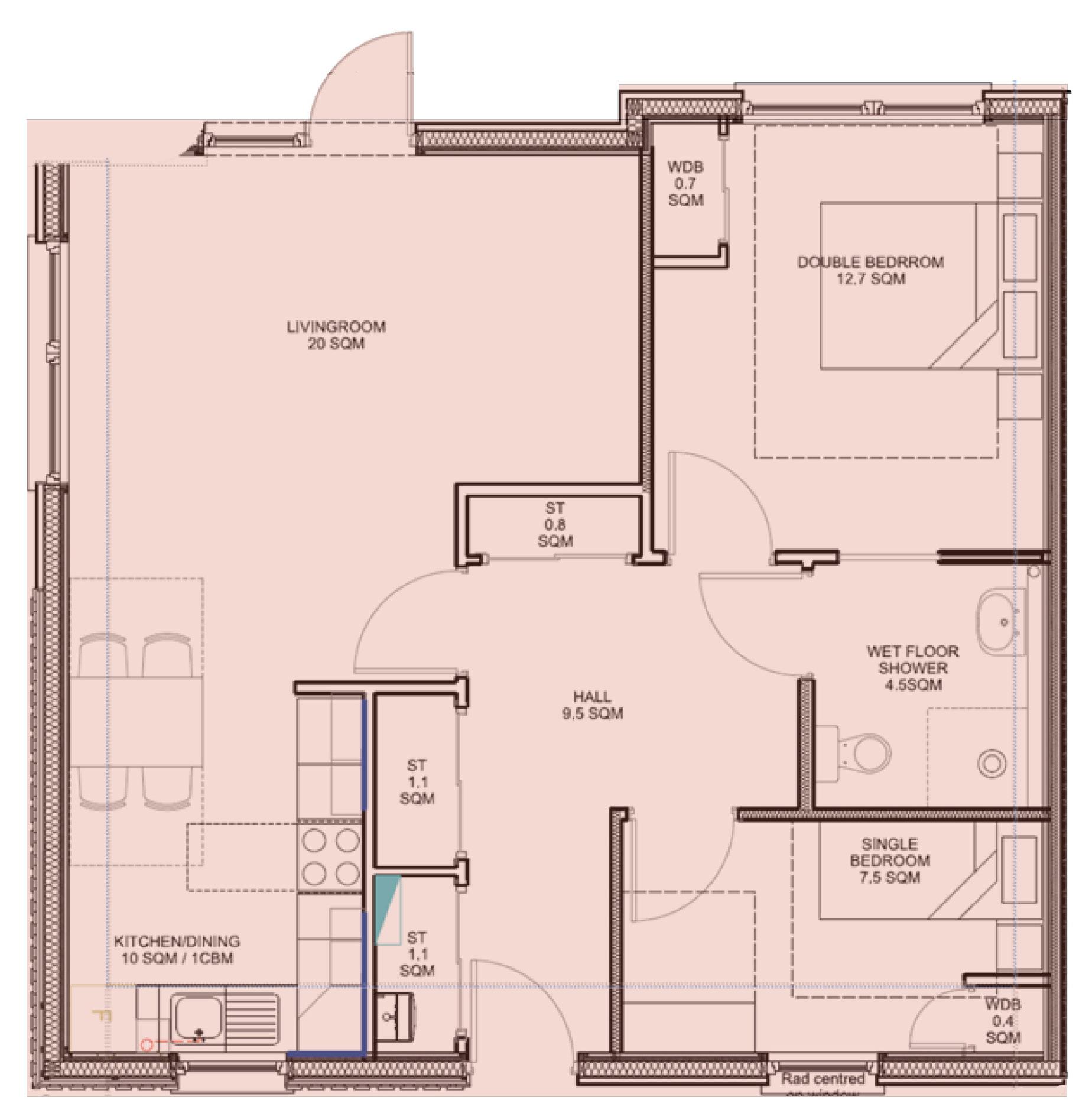
One Bed Bungalow Example
Duns - A Place to Call Home 7
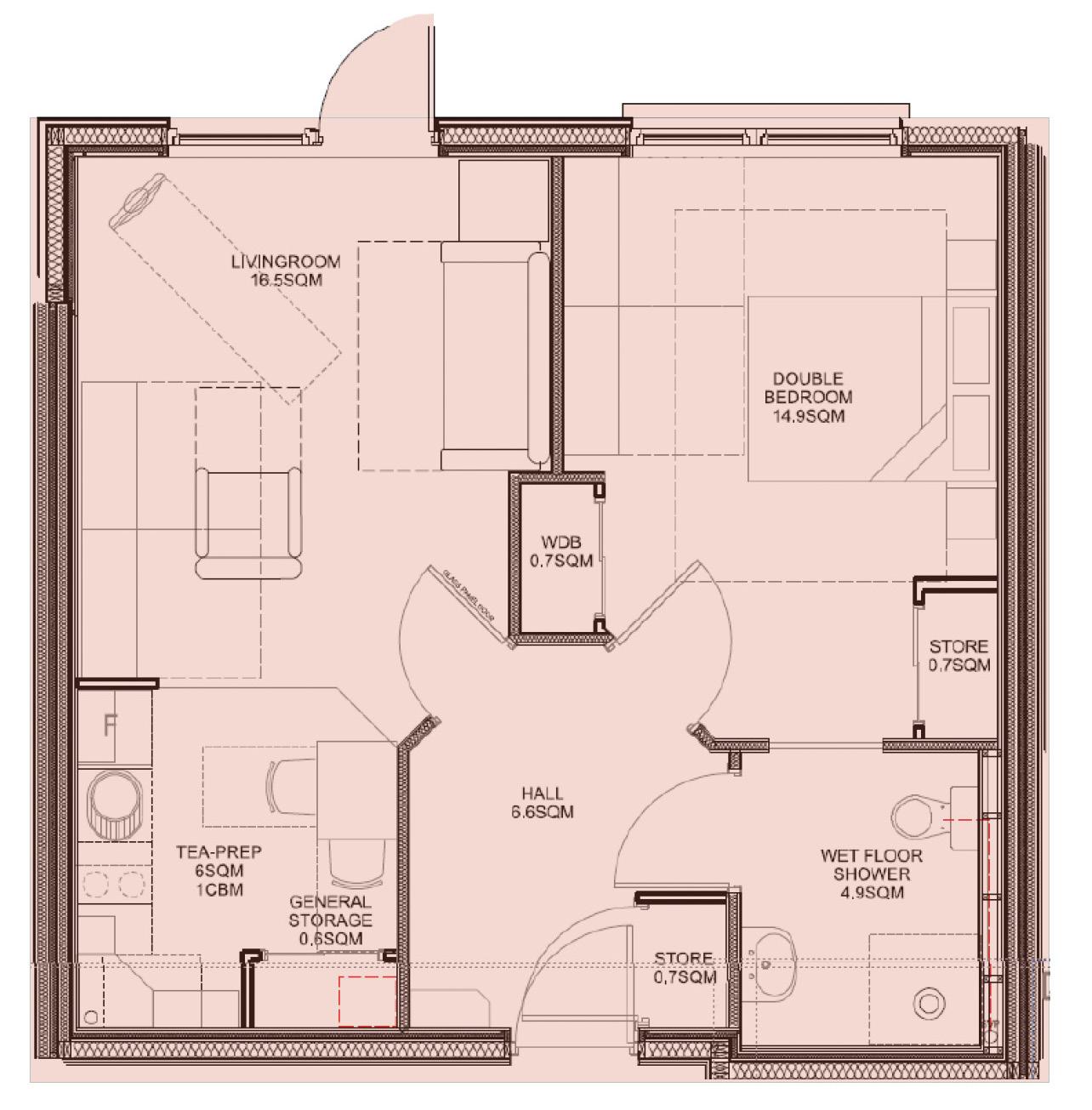
Two Bed Bungalow Example

What Does it Cost?

For Amenity Bungalows:

• One Bed: £460.02 per month

• Two Bed:: £505.19 per month

For Extra Care Housing Flats:

• One Bed: £959.83 per month

• Two Bed: £1,004.99 per month

Meals:

• Self funders (single): £118 per week

• Self funders (couple): £236 per week

• Housing benefit (single): £50 per week

• Housing benefit (couple): £75 per week

This is for one main meal and one light meal, seven days a week.

Please note - an additional charge by Scottish Borders Council may apply to you. This is subject to a financial assessment, and if you want more information, please contact the Social Work Team in Duns on 01361 886103.

These costs include your rent, heating, ground maintenance, staff and alarm call system.

You May Be Entitled to Help with Your Rent

Trust has a dedicated Benefits Advice Service and potential tenants are offered a benefit check and a chat about their financial circumstances and options available to them. You can contact the team at benefits@trustha.org.uk or 0131 444 1200.

You may be entitled to more than you think.

If you are entitled to full Housing Benefit, you could see a significant reduction in what you pay, contact us for more details.

You can check if you are entitled to benefits online at https://www.entitledto.co.uk/ or http://www.rascot.co.uk/pc/

Prices may be subject to change in April, for the new financial year.

8 Duns - A Place to Call Home

Example Menu

Monday

Light meal: cheese omelette, baked beans, tea & coffee, home baking

Main meal: lasagne, garlic bread, strawberries & cream, fruit, tea & biscuits

Tuesday

Light meal: ravioli with toast, tea & coffee, home baking

Main meal: soup, fish pie, fresh veg & potatoes, fruit, tea & biscuits

Wednesday

Light meal: chicken goujon & chips, tea & coffee, traybake

Main meal: lamb casserole, fresh veg & potatoes, apple pie & custard, fruit, tea & biscuits

Thursdsay

Light meal: herb sausages with diced potatoes, tea & coffee, yoghurts

Main meal: soup, Hunter’s chicken, rice with curries or chilli, fruit, tea & biscuits

Friday

Light meal: scrambled eggs on toast, tea & coffee, traybake

Main meal: steak pie, fresh veg & potatoes, sorbet, fruit, tea & biscuits

Saturday

Light meal: sausage roll & chopped tomatoes, tea & coffee, home baking

Main meal: honey roast gammon, rice with curries or chilli, rice pudding & jam, fruit, tea & biscuits

Sunday

Light meal: mini Chicken Kiev with savoury rice, tea & coffee, home baking

Main meal: roast dinner, fresh veg & potatoes, apple strudel, fruit, tea & biscuits

Meal Service

We pride ourselves on delivering balanced, nutritious meals to our tenants. All food is home cooked, using high quality ingredients, by our onsite kitchen team. Meals are provided 365 days a year.

We have a brand-new dining facility which is bright and spacious.

Tenants can be assured of having their dietary requirements met, including special dietary requirements such as diabetic, gluten free and soft diets.

Our meal service is provided to all Extra Care Housing tenants and optional for Amenity tenants.

Benefits of the Meal Service

Trust provides meals which are of the highest quality at an affordable cost. Tenants no longer have to worry about going out to do large weekly shops or pay for taxis to be able to shop, or the associated energy costs of cooking.

What Does it Cost?

• Self funders (single): £118 per week

• Self funders (couple): £236 per week

• Housing benefit (single): £50 per week

• Housing benefit (couple): £75 per week

This is for one main meal and one light meal, seven days a week.

Duns - A Place to Call Home 10

One Happy Community

Tenants have the freedom and privacy of having their own property, with the option to mix and socialise with others. Tenants can get together at various times to share mealtimes and meet friends and neighbours. These shared experiences help to form strong friendships within a fun and caring community.

Within our developments staff arrange regular social activities to benefits tenants and create strong links with the wider community, intergenerational working and a real sense of togetherness. Tenants choose what they want to take part in. Some examples of what may take place at Duns are:

• Events with Borders Older People’s Forum and the Red Cross

• Sporting Memories

• Arts & Crafts

• Coffee mornings

• Visits from local schools

• Fundraising events

• Local entertainers

• Seasonal celebrations

12 Duns - A Place to Call Home

What’s Good About Trust?

We have specialised in housing, care and support services for older people for 50 years, and we’re confident about the service you’ll receive from us.

Proud to be Graded

The Care Inspectorate has graded Trust Housing as excellent for the last three years, for the quality of our care and support.

How to Apply

For Extra Care Housing

Please email us at duns@trustha.org.uk or call Scottish Borders Council Customer Advice and Support Services team on 0300 100 1800.

For Amenity Housing

Please complete a Home For You application at homeforyou.org.uk, or email duns@trustha.org.uk and we can send you a copy of the form, or give you more information.

What Our Tenants Say About Us

We know our tenants are very satisfied with the housing and services they receive from us, with over 90% of people who live with Trust saying it has improved their quality of life.

“ I feel like I’m in heaven, I can socialise with my neighbours but if I want to be on my own, I can do that too and have my own privacy.”

“ It gives me the freedom I want, it’s like being back in my own home but with the added bonus of having people around me all the time.”

“Everything is good here, we never have any complaints! Lunch and dinner are excellent. If we need anything at all the staff get it sorted for us. Our repairs are all arranged for us and always done right away, it’s a really good service.”

Duns - A Place to Call Home 13
trustha.org.uk

Turn static files into dynamic content formats.

Create a flipbook
Issuu converts static files into: digital portfolios, online yearbooks, online catalogs, digital photo albums and more. Sign up and create your flipbook.