Skip to main content

Trinity Dion Portfolio

Page 1


Architectural Portfolio Trinity Dion

Trinity Dion

tdion97@gmail.com

1(208) 469-0136

I bring with me a well-rounded background that includes work in an architecture firm, shop experience, an educational background in architecture and hands-on experience in the construction field. I believe I could make a great addition to your team. I hope to be part of a team that is collaborative and creative. I am really excited at this opportunity, and I hope to hear from you.

I have most recently been working as a designer at an architecture firm. It has been a great experience and I have gained much from working there. Broadening my skills in all aspects from design to permitting and even strengthening my marketing experience. Gaining knowledge of firm practices and a collaborative environment has been an experience that will aide any practice. With acquired knowledge from a firm I feel confident in my ability to complete the technical and design aspects of architecture for any project.

I think I have several strengths that could add to a firm. I have a background in construction and fabrication that leads itself to understanding how details and building works and helps me better understand design. I worked for the College of Art and Architecture Technical Shop as the Evening Supervisor. Having worked directly with students in many different design majors it has helped me understand people and their different approaches to design. It has familiarized me with all sorts of construction methods and design ideas, as well as providing opportunities to discuss a variety of designs with other students and designers.

While pursing my degree in architecture, I have taken various classes that have furthered my knowledge in the field of architecture. Some classes helped me learn design programs and software, whereas others were more practical and showed how connections and joinery worked. One of the most useful classes I took was design build. I worked directly with clients and engineers, surveying the site, discussing ideas and finding solutions. I took the class during the COVID-19 pandemic. Which made us consider the problems that arose with a pandemic, how material and budget are affected and how to solve those issues.

Another insightful class took me to Togo, Africa where I talked to the students and teachers of a program for educating girls. SHE was a program started by a UI Alumni who wanted to work with architecture students to help figure out the logistics of creating a school for girls in Togo. This was an amazing learning opportunity because I learned how materials and designs work in a different environment. It also, pushed us to learn more sustainable techniques that need less energy for heating and cooling.

I have learned to put together sheet sets, talk to clients, and learned various design techniques. I believe that the knowledge I have gained can be very helpful and an asset to any firm. I look forward to working with you.

Built Stool and Lamp

Small Built Projects

A. B. McDonald Elementary School Outdoor Classroom Design Build

Winery Tasting Room Renders Firm project

Newberg Choir House Firm Project

One World Sidewalk Café Design Build

University of Idaho Golf Course Outdoor Dining Design Build Unbuilt

Springmaid Sensory Gardens and Beach Study on Sensory Design

SHE Togo Africa Scool for Girls

Collabrative Design

Deakin Square Apartments and Market

Apartment

Sea Ranch

Built Lamp and Stool

I worked in the University of Idaho Technical shop for many years. While collaborating with students and faculty I was often inspired. Both projects were created with the inspiration of maximizing materials. They were created with offcuts of other projects. The lamp is minimal but is made up of a series of 6” by ½” white oak strips. By utilizing the small off-cuts I was able to create a lovely table lamp.

The stool was also created with off-cuts. It was made at the start of 2021 with baltic birch plywood. Baltic birch was extremely hard to get and so it felt a waste to throw away the scraps. Utilizing 1/8” to 3/4” thick scrap they were all cut into 2” strips. The legs went through a steam bending process and the top was a series of different strips glued to make one board. Then each piece was brought together to create the stool.

This was an amazing project to be apart of because I was able to be there from start to finish. The project began discusing what the client , A. B. McDonald Elementary School, Considering there needs challenges and what there fianl goal was for this project. Then cmae the design process.We started with several design interations, changing and redesing based off of feedback frommt the clients and the engineers. With drawings, modeling, and mock-ups a final design was agreed on. Then came the build. The build came in several phases. First site and foundation prep. Second was prefabrication of the trusses, columns, and arches. Last was assembly. The final product was an overhead structure that allows for shade and cooling while allowing the classes underneath to take whatever form they need. In my first year of grad-school I was in a design build class. I worked on several projects durning the spring semester, and 4 week summer class. One of these projects was the A. B. McDonald Elementary School Outdoor Clasroom. this project won an ACSA Design Build Award.

Winery Tasting Room Renders

https://www.telfordbrownstudio.com/wineries/chehalem-mountain-ava-tasting-room-study

Working at Telford Brown Studio Architecture I had the opportunity to render an unfinished winery tasting room. This was a fun and interesting project because it was a simple design but had plenty of character. Fusing together SketchUp, Enscape and Photoshop I was able to create simple and fun renders that are a mix photorealism and non-photorealism.

https://www.telfordbrownstudio.com/new-homes/steamboat-landing-house-5saz4

Working at Telford Brown Studio Architecture I helped to design and model a home that an open structure that would be energy efficient and allow for larger gatherings of family and friends. It was designed to take advantage of the close-in and distant views that are present, over the vineyards and towards Mt Adams & Mt Rainier.

One World Sidewalk Café

Spring 2021 Design Build

AIA Honrable Mention

The One World Sidewalk Café was a response to Covid 19. The previous outdoor seating consisted of a few tables outside on the sidewalk. The cafethat has often been reffered to as the Heart to Moscow Downtown, needed to utilize the outdoor space and contacted the design build department to help create a more inviting outdoor space that allowed for social distancing as well as still being able to enjoy a public space. We class worked directly with client as well as petioning the city as the sidewalk was considered public pro[perty.

University of Idaho Golf Course

Outdoor Dining

Design Build 2021

In design build we worked with several clients. We briefly worked with the University of Idaho to help them redesign their outdoor dining at the golf course. We worked on several design options. We only got to the initial design start because they decided that they wanted to do even more redesign and it didn’t fit within the classes time constraints. However, it was a great opportunity to work with clients and do quick design charrettes.

video walk through: https://youtu.be/E2Qe55SBqec

This project was created with a combination accessible and sensory design. The idea was to combine the two to create a space that is enjoyable by multiple users. The site includes, a garden, a pier, a museum, a pavilion, and a greenhouse. The garden is the main draw for the site. It is comprised of two pathways one below the tree canopy and one above. The garden was also designed in a way that it is easier for those with disabilities to get around, by communicating with the senses. The garden has hundreds of plants, some with strong scents, some, attract wildlife; overall the garden creates delightful experience. The next largest draw to the site would be the pier, it has three restaurants and has beach access. The greenhouse and pavilion both sit inside the garden. One focuses on the plants within, and one uses water to create a peaceful moment. The last is the museum, it is interactive and acts as a tool for understanding the senses and different disabilities. All these were brought together to create a sensory garden that is both relaxing and enjoyable.

Deakin Square Apartments and Market

Fall 2020 Graduate Studio

The Deakin Square Apartments was a project where groups were tasked with creating M\multi family apartments on a compact site. We as a group also wanted to ci=onsider the potential abilty as affordable housing. This led to ci=onsidering what those with low income, most likely students due ot th proximinty to the University of Idaho campus, might need in a space. we considered what was already in the area and what the users needs may need or use. With theses constraints in mind we began creating apartments within a small site. The site included a small coutyard and three apartments and a small bodega. This was a great project that encouraged team work but still allowing for individual design

SHE Togo Africa Scool for Girls

Fourth Year Undergrad Studio 2019

https://www.uidaho.edu/caa/programs/architecture/featured-stories/togo

In my final year of my undergraduate degree, I worked with a program called SHE. SHE is a program in Togo, Africa that helps educate young girls. We went to Togo and helped them to find which site to purchase. The project had three elements to it, one was a dorm, for the girls, another was the school itself. The last was a textile factory that helped employee women in Togo as well as creating funding for the school. This was an amazing experience because I worked with a community, I may not normally have, had the opportunity to work with.

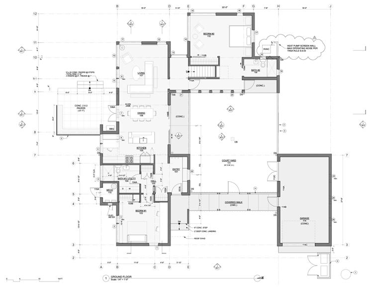
Helping to create a home located in Sea Ranch has been an amazing experience. I joined the project after the client purchased the property that had partial plans attached to it. The clients wanted to use elements from the existing idea but to make changes that more suited them. The lot is a little farther back and surrounded by trees, so it was important to them to incorporate an upper story to be able to see the ocean. With a home being in such an iconic area it’s important to match the aesthetic and become a part of the landscape. The main issues we ran into while we developed the space were working with the community design committee to keep important design elements but also adding modern elements that make the space more environmental and respond safely to threats of fire.

This project was a remodel of a detached garage to a small adu. The major issues faced on this project was the location and size of the existing garage. The garage was located a foot over the existing setback requirements which limited our actions on that side. Within small footprint, we made room for a bathroom that included a shower, a kitchenette and a flexible living space. Despite the tight constraints we were able to work with the city and contractor to create a functional studio space to be used at the owner’s discretion.

Turn static files into dynamic content formats.

Create a flipbook