BATHROOM PROJECT

Page 1

ĐỒ ÁN THIẾT KẾ NỘI THẤT THIẾT KẾ KHÔNG GIAN PHÒNG VỆ SINH TÊN SINH VIÊN: PHÙNG TIỂU QUỲNH MSSV: 1958020234 LỚP: 19NT GVHD: TH.S KTS. LẠI THÀNH TÍN BỘ XÂY DỰNG TRƯỜNG ĐẠI HỌC KIẾN TRÚC HÀ NỘI KHOA NỘI THẤT
MỤC LỤC • PHẦN 1: NGHIÊN CỨU VỀ LÝ THUYẾT NHÀ TẮM – NHÀ VỆ SINH • LÝ THUYẾT NHÀ VỆ SINH • CÁC YẾU TỐ CẦN LƯU Ý KHI THIẾT KẾ NHÀ VỆ SINH • CÁC KÍCH THƯỚC CÔNG THÁI HỌC • PHÂN KHU ĐẶC THÙ TRONG NHÀ VỆ SINH • CÁC THIẾT BỊ TRONG NHÀ VỆ SINH • CÁC HÃNG THIẾT BỊ VỆ SINH • ĐẶC TRƯNG CỦA THIẾT KẾ NHÀ VỆ SINH TRONG NHÀ Ở VÀ NHÀ VỆ SINH CÔNG CỘNG • PHẦN 2: BÀI TẬP 1 – THIẾT KẾ NHÀ VỆ SINH TRONG BIỆT THỰ • BẢN VẼ HIỆN TRẠNG • LAYOUT CONCEPT - MOODBOARD • BẢN VẼ PHƯƠNG ÁN THIẾT KẾ (MẶT BẰNG.., MẶT CẮT.., DIỆN TƯỜNG) • PHỐI CẢNH MINH HỌA • PHẦN 3: BÀI TẬP 2 – THIẾT KẾ NHÀ VỆ SINH TRONG CHUNG CƯ • BẢN VẼ HIỆN TRẠNG • LAYOUT CONCEPT - MOODBOARD • BẢN VẼ PHƯƠNG ÁN THIẾT KẾ (MẶT BẰNG.., MẶT CẮT.., DIỆN TƯỜNG) • PHỐI CẢNH MINH HỌA

LÍ THUYẾT NHÀ VỆ SINH

• MỘT NHÀ VỆ SINH ĐIỂN HÌNH BAO GỒM 3 KHU VỰC: RỬA/XÍ/TẮM.

• KHU VỰC ĐỆM CÓ THỂ BAO GỒM KHU VỰC THAY ĐỒ.

• LOẠI PHÒNG NÀY ĐƯỢC GỌI "BATHROOM" TRONG TIẾNG ANH-MỸ, "LOO" TRONG TIẾNG ANH-ANH, "WASHROOM" TẠI CANADA VÀ NHIỀU TÊN GỌI KHÁC TRÊN KHẮP THẾ GIỚI.

• CÁC ĐỊA ĐIỂM CÔNG CỘNG CÓ PHÂN CHIA NHÀ VỆ SINH PHI GIỚI TÍNH CHO NAM VÀ NỮ/ NHÀ VỆ SINH CÔNG CỘNG TRUNG TÍNH CHO NHỮNG NGƯỜI THUỘC NHÓM LGBT/ CHO NGƯỜI KHUYẾT TẬT/ NHÀ VỆ SINH BỐ MẸ/ NHÀ VỆ SINH CHO CON CÁI/..

TẬN
CHỖ DIỆN
TRONG THỰC TẾ KÍCH THƯỚC NHÀ VỆ SINH ĐÃ ĐƯỢC CÁC NHÀ THIẾT KẾ KIẾN VỊ TRÍ THUẬN TIỆN NHẤT CHO KHU VỰC NHÀ VỆ SINH LÀ LIỀN KỀ VỚI PHÒNG NGỦ NHÀ VỆ SINH LÀ MỘT CĂN PHÒNG NHỎ RIÊNG TƯ VỚI THIẾT BỊ VỆ SINH (BỒN CẦU) ĐỂ ĐI TIỂU VÀ ĐẠI
VỚI XÀ
ĐỂ
VỆ
NGÀY XƯA MỌI NGƯỜI THƯỜNG NGHĨ NHÀ VỆ SINH LÀ CÔNG TRÌNH PHỤ NÊN THƯỜNG XÂY
DỤNG
TÍCH THỪA. NHƯNG
TIỆN THƯỜNG CÓ BỒN RỬA (CHẬU RỬA)
PHÒNG
RỬA TAY, VÌ ĐIỀU NÀY RẤT QUAN TRỌNG ĐỐI VỚI VẤN ĐỀ
SINH CÁ NHÂN.
CÁC YẾU TỐ CẦN LƯU Ý KHI THIẾT KẾ NHÀ VỆ SINH • LỰA CHỌN VỊ TRÍ ĐẶT NHÀ VỆ SINH TRONG KHÔNG GIAN NỘI THẤT CHO PHÙ HỢP • PHÂN KHU CHỨC NĂNG TRONG NHÀ VỆ SINH PHÙ HỢP CÔNG NĂNG SỬ DỤNG THỰC TẾ • TÍNH TOÁN ĐẾN HỘP KỸ THUẬT VÀ CHỐNG THẤM • THÔNG GIÓ • PHONG CÁCH THIẾT KẾ HOẶC CÁ TÍNH GIA CHỦ TẠO HÌNH - MÀU SẮC – ÁNH SÁNG – CHẤT LIỆU

KÍCH THƯỚC TIÊU CHUẨN

Kích thước nhà vệ sinh tiêu chuẩn có giá trị tối thiểu vào khoảng 2,5m2 - 3 m2 .

• Đây là kích

Diện tích từ 4m2 - 6m2 là diện tích phòng vệ sinh tiêu chuẩn rất phù hợp với mọi gia đình.

• Bố trí được bồn tiểu nam và tủ đựng nhỏ hay có thể thiết kế sử dụng chậu rửa đặt bàn thay vì chậu rửa treo tường

Kích thước nhà vệ sinh lớn theo tiêu chuẩn có diện tích từ 10m2 - 11m2 trở lên

• Có thể bố trí thêm tiện ích khác như bồn tiểu nam, tranh ảnh trang trí, bồn tắm to đẹp, thiết bị xông hơi,...

các vật dụng
rửa. KÍCH THƯỚC NHÀ VỆ SINH PHỤ THUỘC VÀO VỊ TRÍ VÀ MỤC ĐÍCH SỬ DỤNG CỦA NÓ NÊN SẼ KHÔNG CÓ MỘT QUY CHUẨN NÀO CẢ. NHƯNG ĐỂ NHÀ VỆ SINH CÓ ĐỂ ĐẢM BẢO CÔNG NĂNG SỬ DỤNG VÀ PHẢI ĐẢM BẢO THOẢI MÁI CHO MỘT NGƯỜI TRƯỞNG THÀNH SỬ DỤNG THOẢI MÁI THÌ PHẢI CÓ KÍCH THƯỚC 2M2 TRỞ LÊN VÀ NẾU MUỐN KẾT HỢP VỚI NHÀ TẮM THÌ PHẢI 6M2 TRỞ LÊN
thước nhà vệ sinh nhỏ nhất giúp bạn có thể đạt được
cơ bản như vòi tắm sen, bồn cầu, chậu
CHẬU RỬA (01) ĐỐI VỚI BỐ CỤC PHÒNG TẮM CHUNG GỒM BỒN CẦU, CHẬU RỬA VÀ BUỒNG TẮM ĐỨNG, KÍCH THƯỚC THIẾT KẾ PHÙ HỢP LÀ KHOẢNG 2,4 MÉT VUÔNG. NGAY CẢ KHI CÓ Ý ĐỊNH THIẾT KẾ MỘT PHÒNG TẮM NHỎ, CÁC KIẾN TRÚC SƯ PHẢI GHI NHỚ MỘT SỐ YẾU TỐ ĐẶC BIỆT LÀ KHÔNG GIAN TRỐNG QUANH THIẾT BỊ. HÌNH DƯỚI ĐÂY CHO THẤY KÍCH THƯỚC TỐI THIỂU CÓ THỂ VÀ LÝ TƯỞNG ĐỂ LẮP ĐẶT BỒN CẦU, CHẬU RỬA VÀ BUỒNG TẮM ĐỨNG TƯƠNG ỨNG. CHẬU RỬA HAY CÒN GỌI LÀ LAVABO LÀ BỒN ĐỰNG NƯỚC ĐỂ RỬA TAY, BỐ TRÍ CÙNG VỚI VÒI NƯỚC XẢ VÀO PHẦN PHỄU LÕM CỦA BỒN, PHÍA TRÊN BỐ TRÍ GƯƠNG GẮN TƯỜNG CÓ HOẶC KHÔNG KẾT HỢP TỦ ĐỒ PHÍA SAU. NGOÀI RỬA TAY CÒN CÓ THỂ RỬA MẶT/ ĐÁNH RĂNG/ RỬA VẬT DỤNG NHỎ VÀ MỘT SỐ MỤC ĐÍCH TRONG VIỆC CHĂM SÓC DA MẶT CỦA PHỤ NỮ. PHÂN LOẠI CHẬU RỬA (LAVABO) • CHẬU ĐẶT BÀN • CHẬU BÁN ÂM BÀN • CHẬU DƯƠNG VÀNH • CHẬU ÂM BÀN • CHẬU TREO TƯỜNG • CHẬU TREO CHÂN NGẮN/CHÂN DÀI CÁC CHỨC NĂNG CHÍNH TRONG NHÀ VỆ SINH
BỒN CẦU (TOILET) LÀ MỘT PHẦN CỦA TRANG THIẾT BỊ TRONG NHÀ VỆ SINH ĐƯỢC SỬ DỤNG ĐỂ THU THẬP HOẶC XỬ LÝ CHẤT THẢI BÀI TIẾT CỦA CON NGƯỜI • CẤU TẠO BỒN CÓ THỂ LÀM TỪ CÁC VẬT LIỆU NHƯ GỐM (SỨ), BÊ TÔNG, NHỰA HOẶC GỖ. • BAO GỒM BỒN CẦU BỆT VÀ BỒN TIỂU ĐỨNG GẮN TƯỜNG CÁC PHÂN LOẠI BỒN CẦU BỆT • BỒN CẦU 1 KHỐI • BỒN CẦU 2 KHỐI • BỒN CẦU TREO TƯỜNG • BỒN CẦU ĐẶT SÀN • BỒN CẦU THÔNG MINH • BỒN CẦU VỚI NẮP RỬA ĐIỆN TỬ BỒN XÍ (02) ĐỐI VỚI LOẠI TIỂU ĐỨNG DÀNH CHO NAM GIỚI CẦN CHÚ Ý KÍCH THƯỚC ĐỘ CAO GẮN TƯỜNG ĐỂ PHÙ HỢP VỚI NHU CẦU SỬ DỤNG CỦA NGƯỜI DÙNG
BỒN TẮM LÀ DỤNG CỤ, ĐỒ VẬT CÓ HÌNH DÁNG GIỐNG NHƯ THÙNG CHỨA LỚN ĐỂ GIỮ NƯỚC VÀ ĐƯỢC THIẾT KẾ ĐỂ PHỤC VỤ CHO VIỆC CHỨA ĐỰNG ĐƯỢC MỘT NGƯỜI TRONG ĐÓ GIÚP HỌ THỰC HIỆN VIỆC TẮM RỬA, THƯ GIÃN VÀ ĐƯỢC ĐƯỢC ĐẶT TRONG PHÒNG TẮM. • HẦU HẾT CÁC BỒN TẮM HIỆN ĐẠI ĐƯỢC LÀM BẰNG CÁC LOẠI VẬT LIỆU NHÂN TẠO NHƯ ACRYLIC HOẶC GỐM, SỨ VÀ NGÀY CÀNG THAY THẾ CHO CÁC VẬT LIỆU ĐƯỢC SỬ DỤNG TRƯỚC ĐÂY NHƯ THÉP, GANG, GỖ. • BỒN TẮM THƯỜNG ĐƯỢC ĐẶT TRONG PHÒNG TẮM, CÓ THỂ ĐƯỢC LẮP RÁP BỐ TRÍ ĐỘC LẬP HOẶC KẾT HỢP VỚI MỘT VÒI HOA SEN. PHÂN LOẠI CÁC LOẠI BỒN TẮM: • BỒN TẮM NỔI • BỒN TẮM KHỐI ĐẶT SÀN • BỒN TẮM XÂY • BỒN TẮM KẾT HỢP SỤC MASSAGE TẮM (03) BỒN TẮM ĐỨNG LÀ LOẠI BỒN TẮM ĐƯỢC THIẾT KẾ THEO HÌNH DÁNG ĐỨNG, THƯỜNG CÓ 1 HOẶC 2 MẶT ÔM SÁT VÀO PHÍA MẶT TƯỜNG. • BỒN TẮM ĐỨNG BAO GỒM BỘ VÒI SEN, PHỄU THU NƯỚC VÀ CÓ HOẶC KHÔNG VÁCH NGĂN • ƯU ĐIỂM NỔI BẬT CỦA BỒN TẮM ĐỨNG LÀ TIẾT KIỆM TỐI ĐA KHÔNG GIAN PHÒNG TẮM. • KHÔNG CHỈ TẠO KHÔNG GIAN LIỀN MẠCH CHO PHÒNG TẮM, VÁCH KÍNH CỦA BỒN TẮM ĐỨNG CÒN TẠO ĐƯỢC SỰ NGĂN CÁCH GIỮA KHU VỰC KHÔ VÀ ƯỚT CỦA PHÒNG TẮM.

PHÒNG XÔNG HƠI

TỦ ĐỨNG GIẶT KHÔ QUẦN ÁO

CÁC THIẾT BỊ TRONG
VỆ SINH
SEN
SEN TẮM 1. TIỂU NAM 2. CHẬU DỊCH VỤ 3. VÒI CẢM ỨNG 4. HỘP XỊT XÀ PHÒNG 5. MÁY SẤY TAY 6. HỘP ĐỰNG GIẤY 7. THANH TAY VỊN PHỤ KIỆN TRONG KHU CÔNG CỘNG •
NHÀ
VÒI SEN TẮM • VÒI CHẬU RỬA • BÁT SEN TẮM • BỘ SEN TẮM • VÒI BỒN TẮM • HỆ THỐNG ĐẦU
PHUN MƯA • SEN TẮM TỰ ĐỘNG ỔN NHIỆT • VÒI CHẬU LẠNH 1 LỖ • VÒI CHẬU NÓNG LẠNH • VÒI SEN LẠNH • VÒI SEN NÓNG LẠNH • VÒI ĐẶT SÀN • ĐẦU SEN TẮM • PHỤ KIỆN : THANH TRƯỢT
KỆ BÀN CHẢI
KỆ THỦY TINH
KỆ ĐỂ KHĂN
KỆ ĐỰNG GIẤY VỆ SINH
MÓC ÁO
THOÁT SÀN
VÒI XỊT
VÒNG TREO KHĂN
ĐĨA ĐỰNG XÀ PHÒNG
TỦ MÁT BẢO QUẢN MỸ PHẨM
BỒN SỤC MASSAGE
TIVI + LOA THƯ GIÃN
Top 10 các thương hiệu thiết bị vệ sinh cao cấp nhất hiện nay. 1. Thiết bị vệ sinh TOTO – Nhật Bản. 2. Thiết bị vệ sinh Inax – Nhật Bản. 3. Thiết bị vệ sinh Caesar – Đài Loan. 4. Thiết bị vệ sinh Viglacera – Việt Nam. 5. Thiết bị vệ sinh Rangos – Việt Nam. 6. Thiết bị vệ sinh Picenza – Ý. 7. Thiết bị vệ sinh American Standard – Mỹ. 8. Thiết bị vệ sinh Cotto – Thái Lan. 9. Thiết bị vệ sinh Kohler – Mỹ. 10. Thiết bị vệ sinh Korest – Hàn Quốc. THAM KHẢO CÁC THIẾT BỊ VỆ SINH THUỘC CÁC HÃNG PHỔ BIẾN HIỆN NAY
NHÀ VỆ SINH TRONG NHÀ Ở TIỆN NGHI ĐẦY ĐỦ NHƯNG CÒN CẦN CHÚ Ý ĐẾN KÍCH THƯỚC ĐỂ ĐẠT TỚI SỰ THOẢI MÁI VÀ TIỆN NGHI TRONG NHU CÂU SỬ DỤNG. ĐỒNG THỜI CŨNG KHÔNG BỊ THỪA DẪN TỚI VIỆC KHÓ KIẾM SOÁT VỆ SINH THƯỜNG XUYÊN CÔNG NĂNG NHÀ VỆ SINH TRONG NHÀ RIÊNG CẦN ĐẠT TIỆN NGHI NHẤT, ĐẨY ĐỦ CÔNG NĂNG NHẤT VỚI GIA CHỦ VỚI NHỮNG NHU CẦU SỬ DỤNG CẦN CÓ CỦA GIA ĐÌNH. TÍNH CÁ NHÂN NHÀ VỆ SINH TRONG NHÀ RIÊNG KHÁC VỚI CÔNG TRÌNH CÔNG CỘNG Ở CHỖ CÓ THỂ ĐEM TÍNH CÁ NHÂN CỦA GIA CHỦ THỂ HIỆN VÀO TRONG KHÔNG GIAN NÀY.
NHÀ VỆ SINH TRONG CÔNG TRÌNH CÔNG CỘNG KÍCH THƯỚC ●KÍCH THƯỚC CHO NHÀ VỆ SINH CÔNG CỘNG CẦN CHÚ TRỌNG BỞI HƯỚNG TỚI NHIỀU ĐỐI TƯỢNG SỬ DỤNG CÔNG NĂNG PHÙ HỢP VỚI SỐ ĐÔNG ĐỐI TƯỢNG SỬ DỤNG ●NHÀ VỆ SINH CÔNG CỘNG CẦN PHÂN CHIA THÀNH CÁC KHU VỰC CHO VÍ DỤ GIỚI TÍNH/ NGƯỜI CÓ NHU CẦU ĐẶC BIỆT NHƯ KHUYẾT TẬT, TRẺ SƠ SINH.. TÍNH THỨC THỜI ●TRONG THỜI ĐẠI COVID YẾU TỐ KHÔNG GIAN MỞ ĐƯỢC ĐẶT LÊN HÀNG ĐẦU, CÙNG VỚI ĐÓ LÀ VIỆC SÁT KHUẨN/ SỬ DỤNG CÁC THIẾT BỊ KHÔNG CHẠM ( CẢM BIẾN ) ĐƯỢC NÊU CAO. VỊ TRÍ PHÙ HỢP VỚI CÔNG TRÌNH ●VÍ DỤ NHÀ VỆ SINH CÔNG CỘNG TRONG TRƯỜNG HỌC, HAY TRUNG TÂM THƯƠNG MẠI CẦN ĐƯỢC ĐẶT Ở NHỮNG VỊ TRÍ LỚN VÀ DỄ THẤY ĐỒNG THỜI BỐ TRÍ ĐỦ NHIỀU BUỒNG CHO SỐ LƯỢNG NGƯỜI SỬ DỤNG TỐI THIỂU ●CÒN VỆ SINH TRONG VILLA, NGHỈ DƯỠNG RESORT LẠI MANG TÍNH THƯ GIÃN VÀ SỐ LƯỢNG CŨNG ÍT HƠN NÊN CÓ THỂ BỐ TRÍ GẦN VƯỜN SAU VÀ VỚI CỔNG TRỜI, BAN CÔNG ĐỆM..

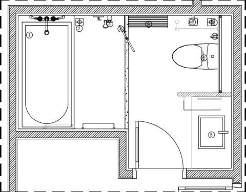
BÀI TẬP 1: NHÀ VỆ SINH BIỆT THỰ

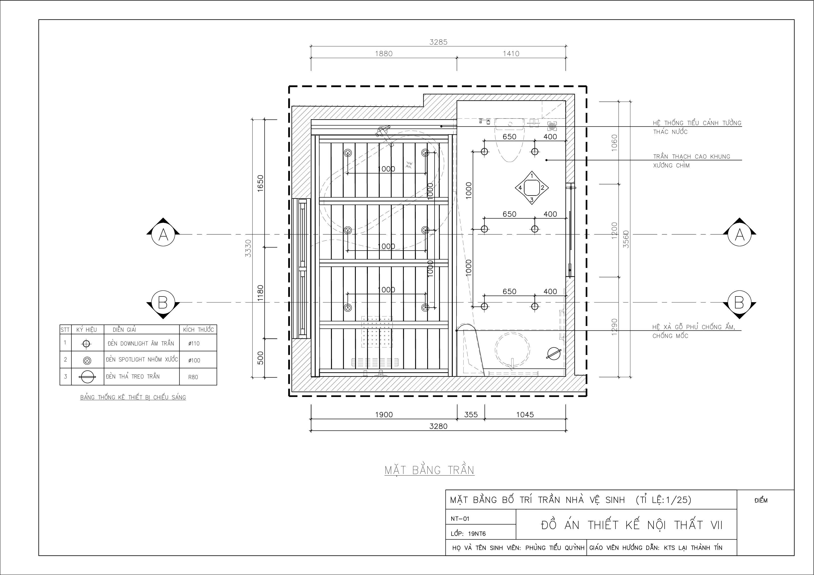
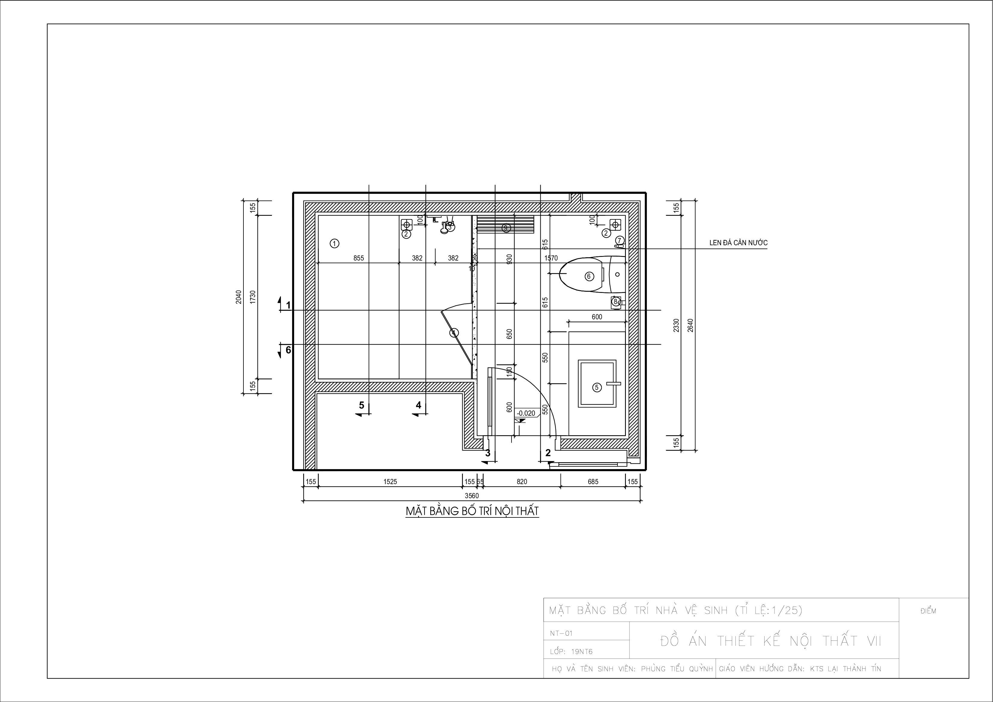
MẶT BẰNG HIỆN TRẠNG ĐÁNH DẤU KHU
VỰC LỰA CHỌN THIẾT KẾ
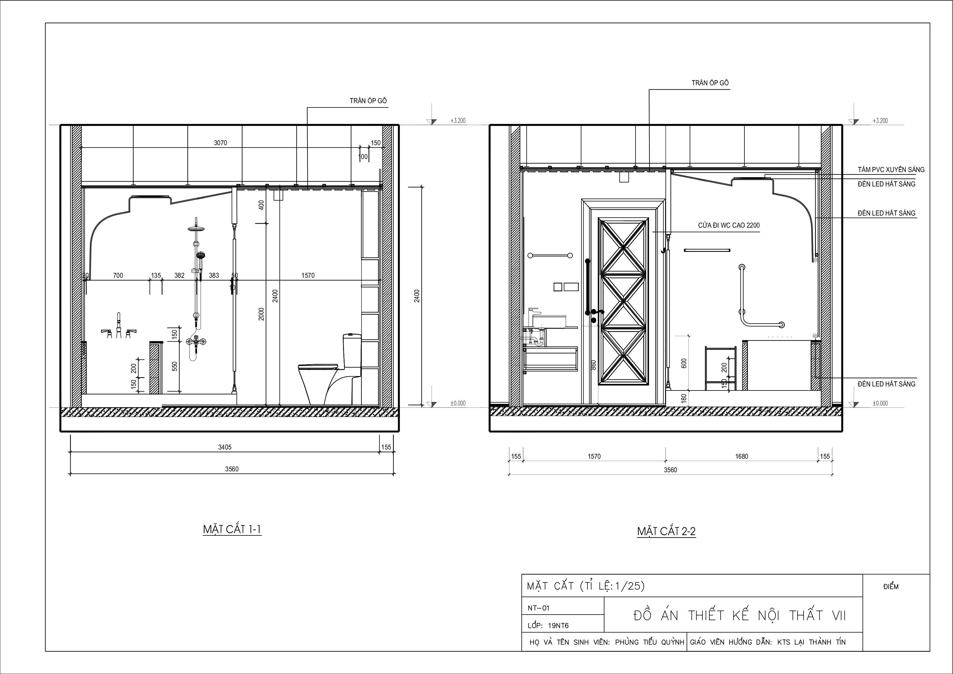
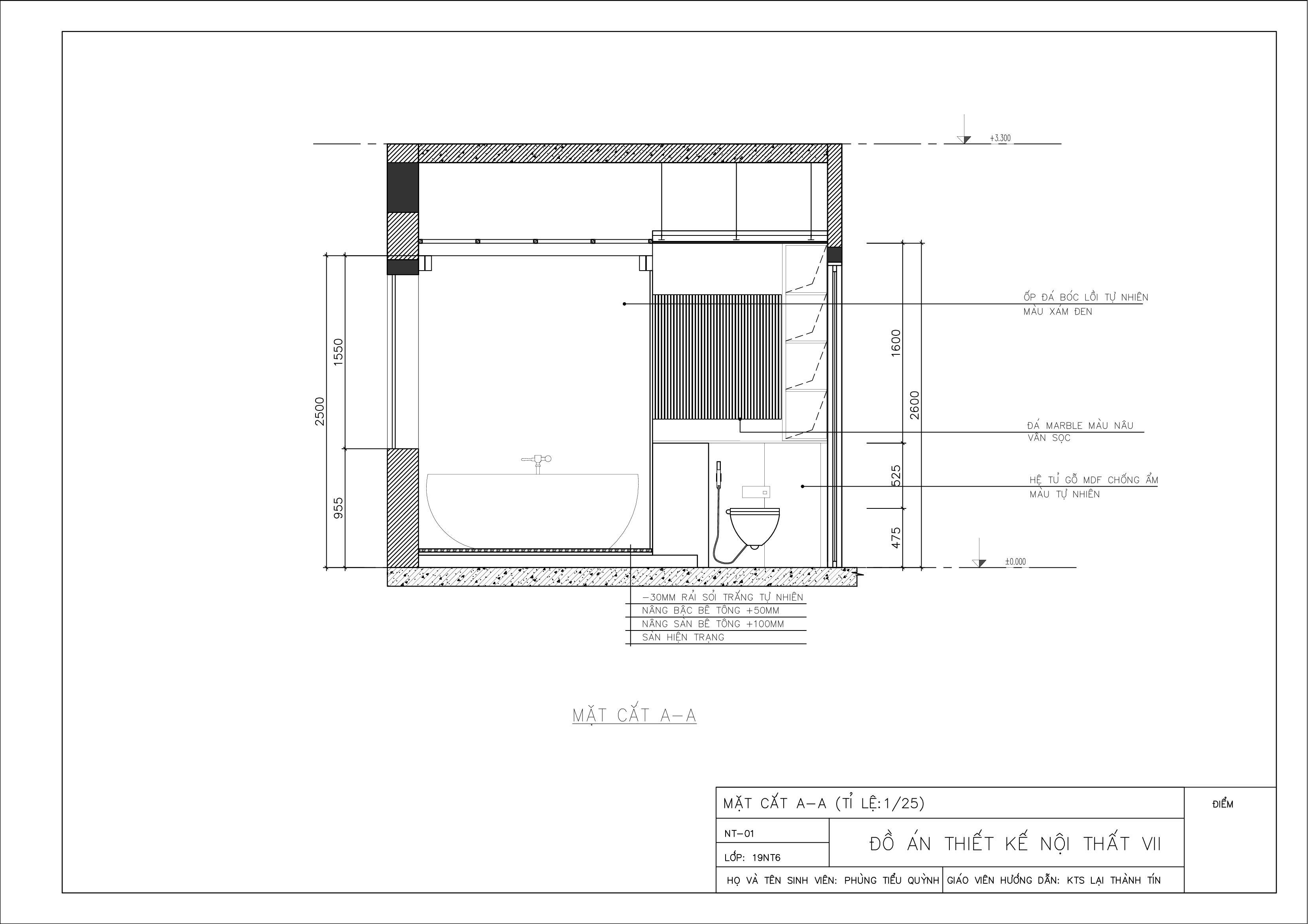
MẶT CẮT HIỆN TRẠNG ĐÁNH DẤU KHU VỰC LỰA CHỌN THIẾT KẾ
MODERN STYLE Ý TƯỞNG THIẾT KẾ: HƯỚNG TỚI KHÔNG GIAN NHIỀU ÁNH SÁNG TỰ NHIÊN, MANG ĐẾN CẢM GIÁC ẤM ÁP VÀ ĐƯỢC ÁNH NẮNG LÀM KHÔ RÁO HƠN KHÔNG GIAN DỄ ẨM ƯỚT CỦA PHÒNG TẮM. PHỐI HỢP VỚI NHỮNG MÀU SẮC TRẦM ẤM CỦA GỖ VÀ ĐÁ TẤM MÀU NÂU CÀ PHÊ NHẰM TẠO SỰ HÒA QUYỆN VỚI TONE MÀU ẤM CỦA ÁNH NẮNG. HƠN THẾ VÀO MÙA ĐÔNG Ở MIỀN BẮC HIỆU ỨNG THỊ GIÁC TỪ TONE MÀU ẤM NÓNG SẼ TRỞ NÊN CÓ TÁC DỤNG HƠN.. PHƯƠNG THỨC THỂ HIỆN: • SỬ DỤNG BỒN TẮM ĐẶT SÀN LỚN TRÊN BẬC NÂNG • VÒI PHUN MƯA • TIỂU CẢNH THÁC NƯỚC • SỬ DỤNG NHIỀU CÁC VẬT LIỆU TONE MÀU NÓNG “WATERFALLS IN THE DESERT” IDEAS MOODBOARD
PHƯƠNG ÁN BỐ TRÍ 1
PHƯƠNG ÁN BỐ TRÍ 2
PHƯƠNG ÁN BỐ TRÍ 3 – PHƯƠNG ÁN LỰA CHỌN

WITHOUT CEILING PERSPECTIVE PHỐI CẢNH BÓC MÁI

PHỐI CẢNH
PHỐI CẢNH
PHỐI CẢNH
PHỐI CẢNH
PHỐI CẢNH

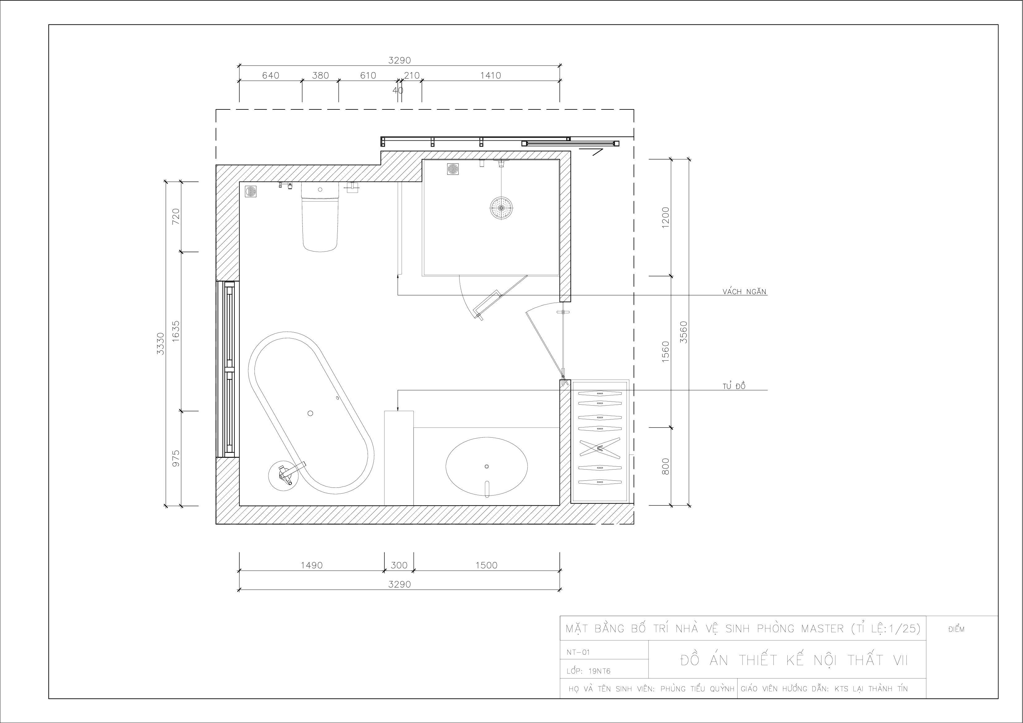
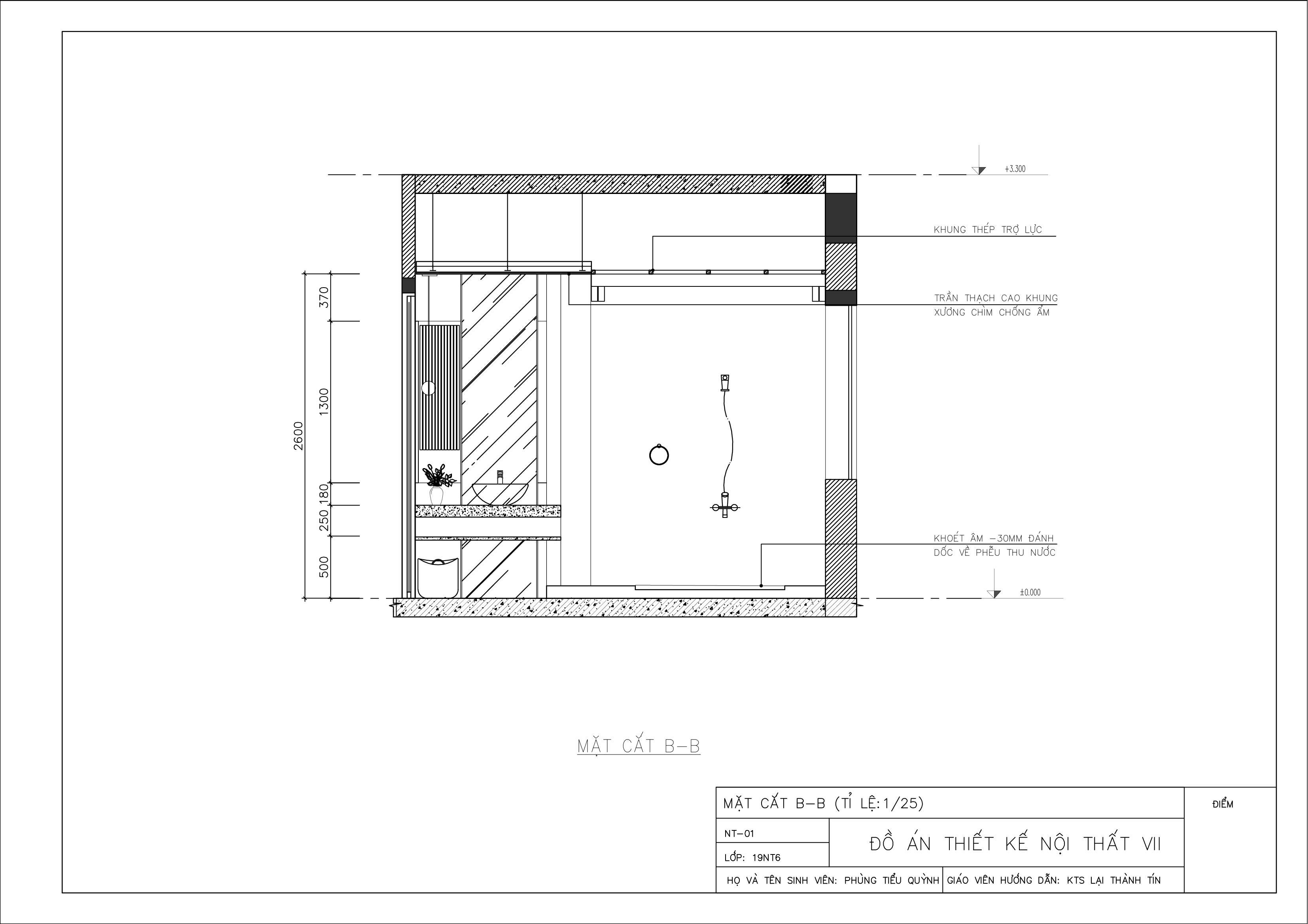
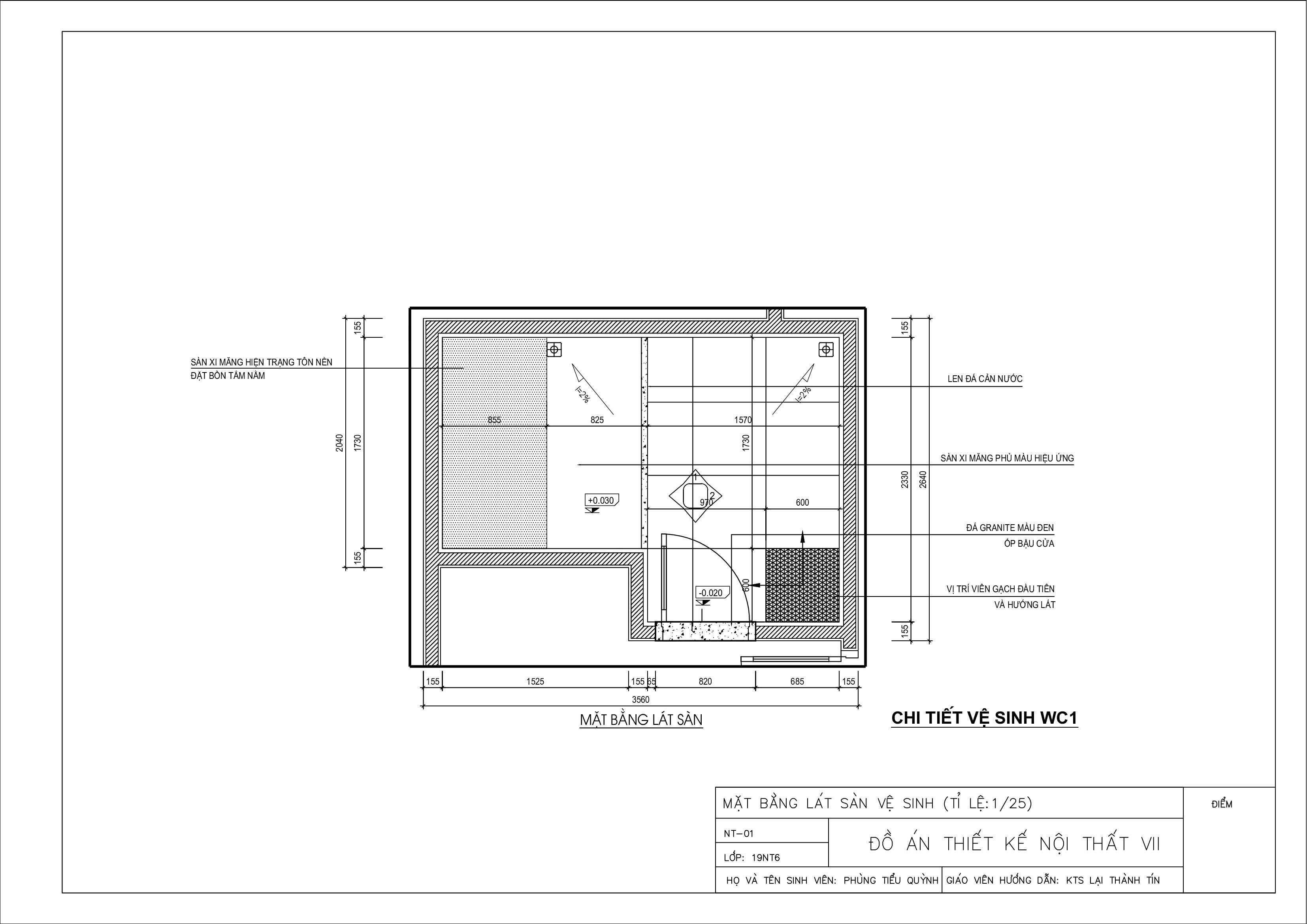
BÀI TẬP 2: NHÀ VỆ SINH CHUNG CƯ

MẶT BẰNG HIỆN TRẠNG
MẶT CẮT HIỆN TRẠNG
CONCEPT MATERIAL BOARD MODERN WABISABI ‘‘ ELITE ’’ KHÔNG GIAN MỘC MẠC TỐI GIẢN VỚI ĐIỂM NHẤN ĐẾN TỪ NHỮNG ĐƯỜNG VÂN CHÌM KHẮC TRÊN CÁC BỀ MẶT VẬT LIỆU. VỚI KHÔNG GIAN NHỎ VÀ HẸP THÌ ĐỂ TỐI ƯU CÔNG NĂNG VÀ THUẬN TIỆN SỬ DỤNG VỚI MỌI ĐỐI TƯỢNG THÌ CẦN CÓ CÁC THANH PHỤ KIỆN TRỢ LỰC ĐỂ BÁM VÀ GIỮ AN TOÀN TRONG KHI SỬ DỤNG
PHỐI CẢNH BÓC MÁI
PHỐI CẢNH
PHỐI CẢNH
PHỐI CẢNH
PHỐI CẢNH
YOUR SUPPORT
THE END THANKS FOR

Turn static files into dynamic content formats.

Create a flipbook
Issuu converts static files into: digital portfolios, online yearbooks, online catalogs, digital photo albums and more. Sign up and create your flipbook.
BATHROOM PROJECT by Phùng Tiểu Quỳnh - Issuu