TRIỂN LÃM LG ELECTRONICS
ĐỀ





TÀI:
“TRIỂN

Ý TƯỞNG| IDEA





LÃM RA
MẮT SẢN PHẨM MỚI THƯỜNG NIÊN LG 2022”
CÔNG TY LG ELECTRONICS RA MẮT CÁC THIẾT BỊ CÔNG NGHỆ MỚI ĐEM LẠI “LÀN GIÓ MỚI” TRONG
DÒNG SẢN PHẨM THIẾT BỊ THÔNG MINH HỖ TRỢ GIA ĐÌNH. LẤY CẢM HỨNG TỪ SỰ MÁT MẺ CỦA
LÀN GIÓ MỚI TRONG DANH MỤC CÔNG NGHỆ ĐÓ – NHỮNG LUỒNG GIÓ CỦA ĐIỀU HÒA INVETER, CHẾ ĐỘ LÀM LẠNH HƠI NƯỚC FRESH CỦA TỦ LẠNH THÔNG MINH, .. TỪ CẢM HỨNG GIÓ VÀ HƠI
NƯỚC, TRIỂN LÃM ĐƯỢC DỰNG LÊN VỚI CÁC ĐƯỜNG NÉT CHUYỂN ĐỘNG CỦA LÀN GIÓ, VÀ CÁC
HÌNH CẦU TRÒN CỦA HƠI NƯỚC CÙNG SỰ LẤP LÁNH, BÓNG BẨY CỦA VẬT LIỆU MANG PHONG CÁCH
ĐƯƠNG ĐẠI SANG TRỌNG MATCH VỚI NGÔN NGỮ CHẤT LIỆU CỦA NHỮNG SẢN PHẨM MỚI.
NGHIÊN CỨU ĐỀ TÀI | RESEARCH BRAND – LG ELECTRONICS











LG (HANGUL: 럭키금성, PHIÊN ÂM: LUCKY GEUMSEONG - TỨC 'LẠC HỶ KIM TINH' HAY 'NGÔI SAO VÀNG MAY MẮN’)
THÀNH LẬP NGÀY 1 THÁNG 5 NĂM 1947 - 75 NĂM TRƯỚC. NGƯỜI SÁNG LẬP: KOO IN-HWOI
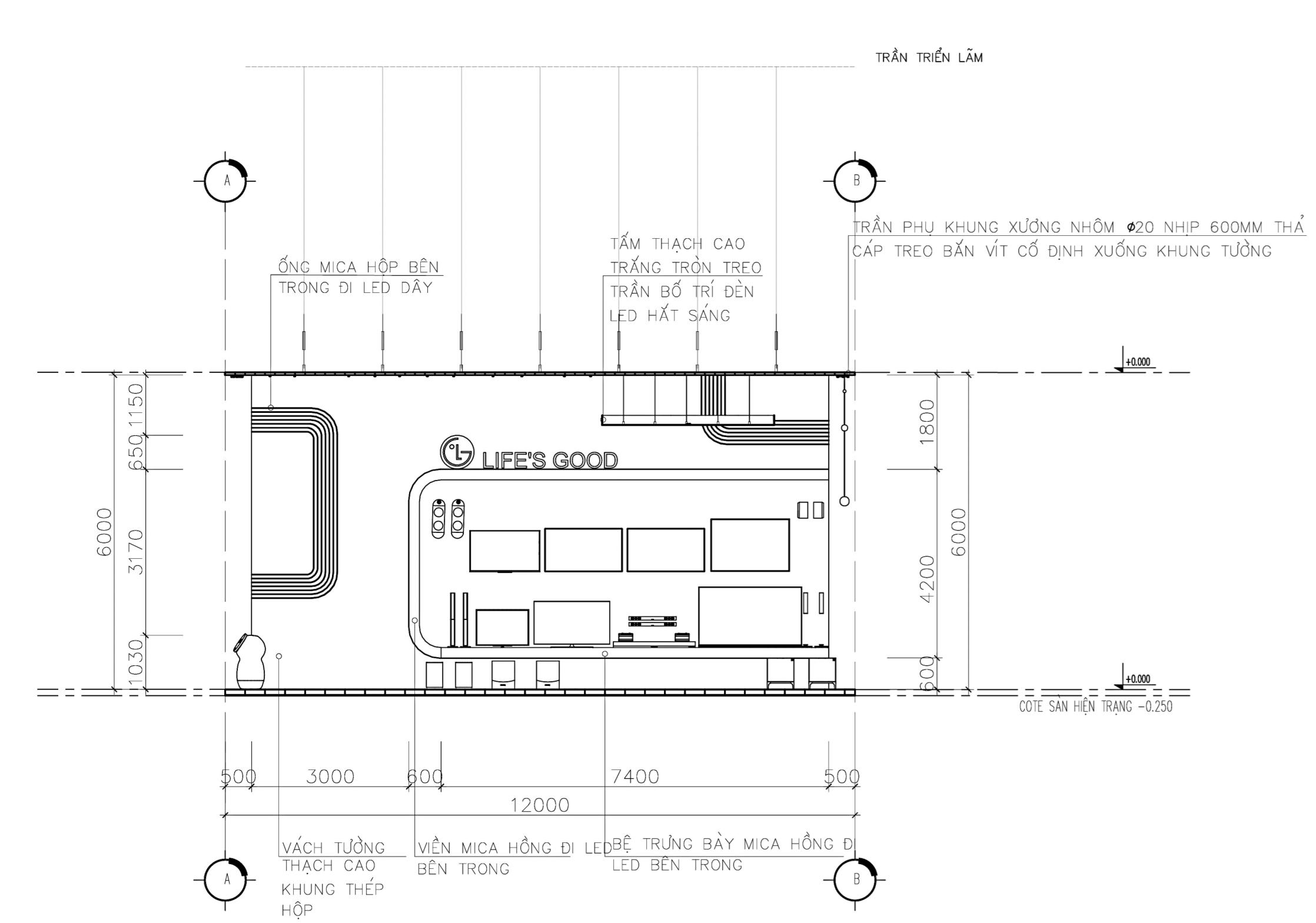
MẶT CẮT HIỆN TRẠNG
o LÀ MỘT TẬP ĐOÀN CÔNG NGHIỆP NẶNG ĐA QUỐC GIA CỦA HÀN QUỐC CÓ TRỤ SỞ CHÍNH ĐƯỢC ĐẶT TẠI THÀNH PHỐ SEOUL.
o CÁC SẢN PHẨM CỦA TẬP ĐOÀN NÀY BAO GỒM: ĐIỆN TỬ TIÊU DÙNG, THIẾT BỊ VIỄN THÔNG, ĐIỆN THOẠI THÔNG MINH (NHƯNG ĐÃ KHAI TỬ TỪ NĂM 2021), CHẤT BÁN DẪN, PIN VÀ CÁC SẢN PHẨM TỪ HÓA CHẤT,...
oTẬP ĐOÀN HIỆN SỞ HỮU RẤT NHIỀU CÔNG TY CON, HẦU HẾT ĐANG HOẠT ĐỘNG DƯỚI TÊN CỦA THƯƠNG HIỆU MẸ, TRONG ĐÓ CÓ NHỮNG ĐƠN
VỊ QUAN TRỌNG HÀNG ĐẦU NHƯ LG ELECTRONICS


SLOGAN THƯƠNG HIỆU
KHẨU HIỆU ĐƯỢC SỬ DỤNG TRÊN TOÀN CẦU CỦA LG LÀ LG - LIFE'S GOOD. MỚI ĐÂY LG LẠI BẤT NGỜ TUNG SLOGAN MỚI. NHƯ VẬY BÊN CẠNH
LOGO LG CÙNG SLOGAN "LIFE’S GOOD", GIỜ ĐÂY, SẼ THÊM VÀO KHẨU HIỆU: "IT’S ALL POSSIBLE”
NHƯ VẬY, SLOGAN MỚI, ĐẦY ĐỦ CỦA LG SẼ LÀ: "WITH LG, IT’S ALL POSSIBLE. WHEN IT’S ALL POSSIBLE, LIFE’S GOOD” - VỚI LG, TẤT CẢ ĐỀU CÓ
THỂ. KHI TẤT CẢ ĐỀU CÓ THỂ, CUỘC SỐNG SẼ TỐT ĐẸP.
SỰ ĐỔI MỚI NÀY ĐÃ ĐƯỢC LG CÔNG BỐ TẠI WEBSITE CHÍNH THỨC CỦA HÃNG ĐIỆN TỬ Ở ĐỊA CHỈ WWW.LG.COM VÀ TRÌNH CHIẾU ĐOẠN VIDEO
QUẢNG BÁ TẠI QUẢNG TRƯỜNG THỜI ĐẠI (NEW YORK).
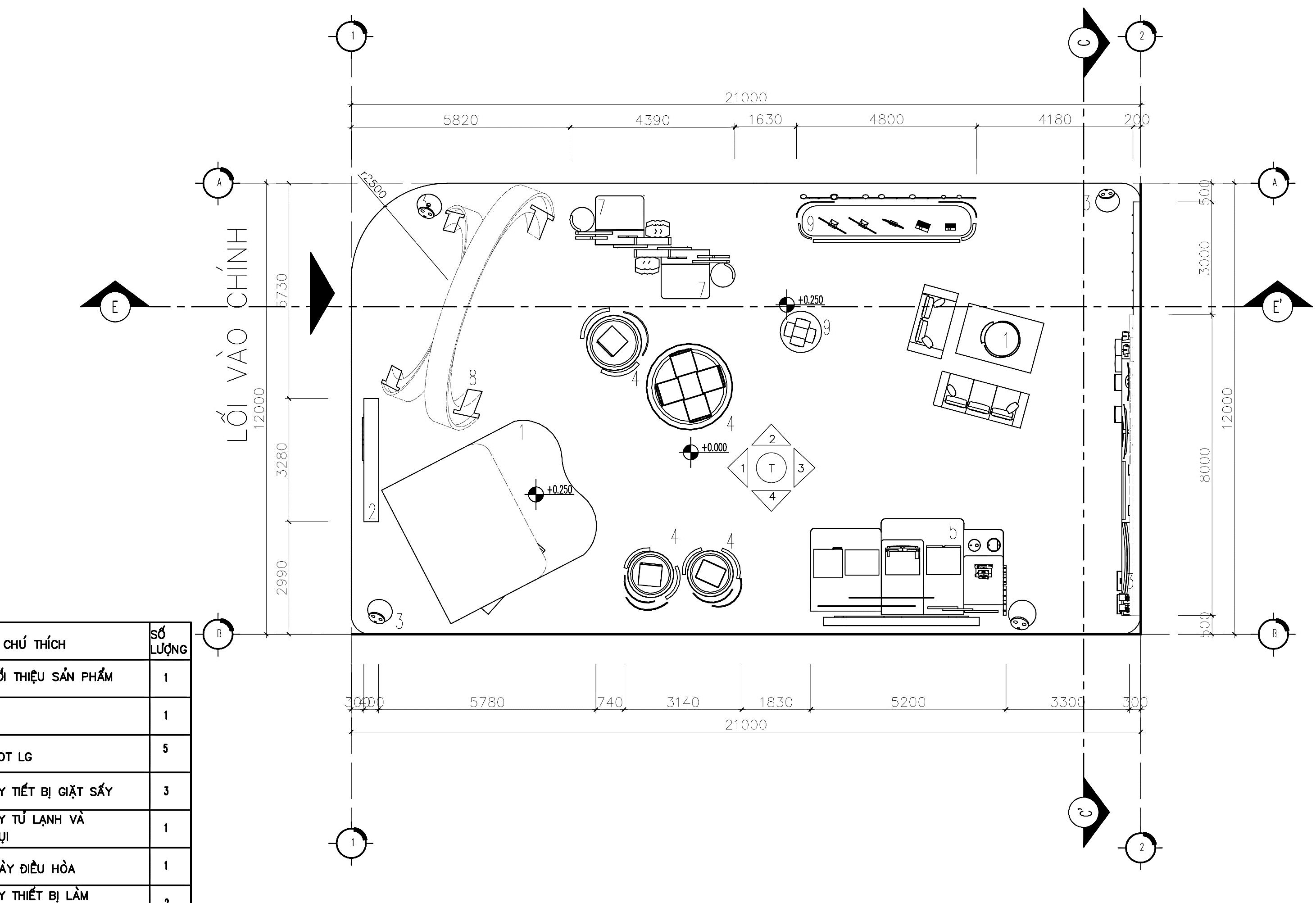
SƠ ĐỒ CÔNG NĂNG | FUCTION MAP
PHƯƠNG ÁN CHỌN