

THE BRIAR CLUB







HOW WE GOT HERE
2019 - STRATEGIC PLAN IS FORMED

01
In 2019, the Board of Directors reconvened the Strategic Planning Committee (SPC) for the purpose of developing a long term plan for the Club The committee recommended that the board hire GGA Partners (GGA) to facilitate the task. Following an in-depth process including Member focus groups, surveys, additional research, and collaboration with the SPC and Board of Directors, The Briar Club 2030 Plan was approved. This strategic plan highlights our strengths, opportunities, and aspirations as a community A major component of the 2030 Plan is capital planning. It recommended that the Board consider acquiring new land or expanding and enhancing the Club’s existing facilities
2022 - LAND STUDY
The Board of Directors tasked the SPC with conducting a Land Acquisition Study to evaluate our neighborhood and assess the feasibility of purchasing nearby property. The study concluded that acquiring land adjacent to the Club is not a viable option at this time
2023 - CASE STUDY: 5TH FLOOR GARAGE
Extensive due diligence was performed to determine the viability of adding amenities and services to the top of the garage. While this option remains possible for future development, it is not currently an efficient use of Club resources. The relevant data was examined by the SPC, multiple architectural firms interviewed for the Campus Plan, GGA Partners, and C Limited Design Associates They all agreed that development of the garage is not the proper course of action at this time. They shared the same recommendation: the Board’s immediate focus should be addressing and investing in our existing facilities. The garage expansion can be reconsidered years down the road.
2024 - C PARTNERSHIP 2
After reviewing recommendations from the SPC, GGA, additional Member focus groups and a survey results, C and the Board of Directors promptly began prioritizing key campus improvements to enhance Member services.
2025 - TBC CAMPUS PLAN PROPOSAL COMES TO LIFE
We are excited to provide an in-depth look at the proposed renovation and rejuvenation of our Club including the basis for the

THE PLAN 02
Member focus groups and surveys revealed many opportunities for The Briar Club to better reflect the needs of our Members Club leadership needed to have a good foundation of Club usage, not only to effectively address compaction issues but to propose new amenities for Members. The proposed Campus Plan addresses the needs of the entire Membership - every area of the Club will see improvement There is something here for everyone!

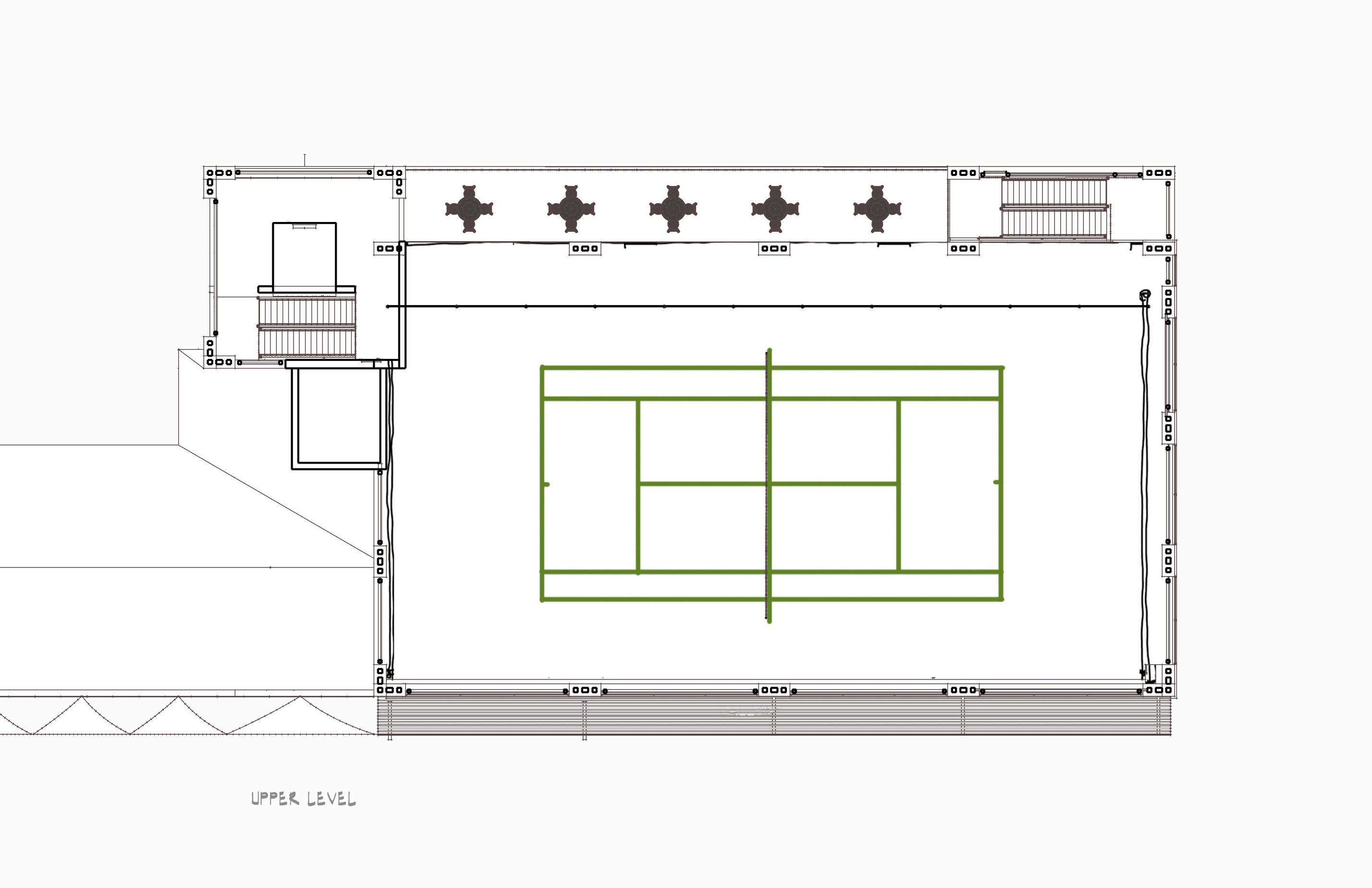
SPORTS COURT
167 events were held on the Sports Court in 2024.
In 2024 private events hosted on the Sports Court generated $91,000 in revenue.
Members using the Sports Court at least once per month
PROPOSAL
Replace the existing Sports Court with a three-level, open-air facility The first level is planned to be recessed several feet to make the structure less imposing on the campus. It will provide space for a basketball court. The second level will provide four dedicated pickleball courts, and the third level is a covered tennis court.
BENEFITS
The proposal maximizes space allowing for multiple activities in the same footprint, making better use of our land.
The facility will be utilized for fitness activities, tennis, aquatics, events, and children's play. There is a growing need for additional space to accommodate free play.
It offers a covered tennis court to help alleviate current court compaction.
It adds four reservable pickleball courts which alleviates the congestion and conflict of different Members needing the space for different activities.
In addition to four dedicated pickleball courts, Members will be able to use the viewing platform to the side of the pickleball courts to watch tennis matches on courts 1, 2, and 3.
Event/food and beverage opportunities are created in the viewing areas.


Tennis
Total tennis lessons in 2023 was 19,016 and in 2024 tennis lessons increased to 21,318.
Members who play tennis at the Club at least once per month
PROPOSAL
Dedicated covered court on the third level of the new Sports Pavilion.
BENEFITS
A covered tennis court allows space to play with a break from the direct summer sun and on rainy days
Adding an additional tennis court supports more Members with free play, lessons, leagues, tournaments, junior, and other programming.
This court helps alleviate court compaction
Pickleball
Members who play pickleball
PROPOSAL
Feel the main campus of the Club should have dedicated pickleball courts
Think pickleball courts should be shaded
Four dedicated pickleball courts on the second level of the new Sports Pavilion.
BENEFITS
Four reservable pickleball courts accommodating this popular sport within our Club. This will allow for more growth of the sport.
Lessons, leagues, tournaments, and additional programming can be supported with this space
Conflict among Members vying for use of the current Sports Court for pickleball, basketball, staging for swim meets, parties, etc. will be resolved.
Wellness Building & hideout
Group Exercise revenue increased from $60,375 in 2023 to $93,370 in 2024. Pilates revenue increased from $75,765 in 2023 to $133,830 in 2024
Breezes Bar generates average sales of approximately $175,000 from April to September, despite its limited size. Hideout usage continues to increase year over year
VS.
Members are satisfied or very satisfied with the Family Locker Rooms
PROPOSAL
Members are satisfied or very satisfied with the Fitness Locker Rooms
Renovate and modernize the Wellness Building & the Hideout including studio spaces, expanding Breezes Bar to accommodate an openconcept bar and added seating. Renovation includes adding dedicated outdoor space to the Hideout and a permanent, covered outdoor multiuse event space for all Members The entry to the Hideout will be moved to the north side of the building
BENEFITS
Modernizes and upgrades the oldest building on campus (Wellness)
Enhances the Member experience with updated wellness amenities
Redesigning the Family Locker Rooms will prioritize showers and changing areas over excess of unused lockers to make space for the Breezes Bar expansion.
The plan includes a dedicated family restroom with shower added to improve accessibility for families with young children.
Increased seating and service capacity at Breezes Bar
A more efficient bar service setup will improve speed and Member experience.
Implements an open-air concept at Breezes Bar with soft seating for additional comfort.
Expansion of the Hideout building to add outdoor space for teens
Entry to the Hideout is moving to the south side of the building to lessen activity around tennis courts 1 – 4 and Wellness studios

BENEFITS
An outdoor walk-up counter window at Barracuda Café facilitates easy ordering without the need for Members to enter the small, cold café lobby
The expanded food preparation capacity helps improve food service speed and quality.
An outdoor cooking area enables buffets and food preparation with minimal need to move furniture and equipment for swim meets, Sunday Night Cookouts, and other pool events
These changes make significant improvements to the efficiency of Barracuda Café.
Shade structures
There were 37 events held on the Party Pavilion in 2024 (located just north of the Wellness Building).
Members utilize the Family Resort Pool at least once a week
PROPOSAL
Members said shade should be improved around the Family Resort Pool
Construct permanent shade structures around the Family Resort Pool
BENEFITS
Shade structures improve comfort for Members, especially in hot weather. Shade structures will enhance the pool area’s visual appeal.
Significant tent rental savings The Club has spent a total of $310,174 21 on tent rentals since 2017
Shade structures reduce poolside congestion by encouraging Members to spread out across shaded areas instead of gathering in fewer spots.
The baby pool will have a dedicated shade structure instead of relying on umbrellas

Dining Rooms
Members who dine at least once a week at the Club
Think there are adequate number of dining locations at the Club
Want covered outdoor dining locations as opposed to open-air
PROPOSAL
Would like a casual family dining location in the Clubhouse with easy access to the Terrace, Veranda, and Lawn
Renovate both family and adult dining areas to accommodate Member preferences including: switching these two dining areas resulting in family dining’s relocation to the east side of the Clubhouse with the addition of a connected, covered outdoor dining area. The Lounge Bar will be transformed into a separate, dedicated room between the family and adult dining rooms
BENEFITS
Enhances the dining rooms, creating a warmer and more inviting atmosphere.
A new covered facility, with heating elements and ceiling fans, reduces weather related closures on the Veranda near the Lawn.
Lounge Bar is transformed into a separate, dedicated room which includes increased bar seating and dining tables similar to the Club’s previous bar area.
Relocation of Family Dining Room provides better ac areas and reduces outside noise for adults-only dinin



Card Rooms
The Club averages 55 Mahjong reservations per week, with the busiest week reaching 100 reservations

Members think the Club should have card/game rooms for adults
PROPOSAL
Move first floor catering staff offices to the second floor and renovate these rooms to accommodate card and game rooms.
BENEFITS
This provides designated card and game rooms that Members can reserve Adds additional private event space when not being utilized for card games.
Private Event Spaces
Food & Beverage revenue has grown from $4,574,142 in 2017 to $7,848,675 in 2024
712 private events were held at the Club in 2024. There is potential to significantly increase the Club’s private event revenue with an attractive space that can compete with nearby venues.
Members who have hosted a private event at the Club
PROPOSAL
Renovate event spaces to make them more elegant and attractive. The ballroom balcony will be expanded to provide actual event space rather than a walkway. Office space will be moved to create private, reservable rooms
BENEFITS
Relocation of catering offices to second floor improves event planning efficiency and enhances communication among staff.
Added private rooms (featuring natural light) can be booked for events and used by Members.

Expanded balcony space provides more outdoor private event space and makes the ballroom space more attractive
Adding elegance and character to the private event space distinguishes The Briar Club from its competitors and attracts more events.
Additional events help cover the Club’s costs and minimize dues

projected TIMELINE 03
This tentative schedule has been developed based on current planning data, permitting requirements, and industry best practices. It outlines key phases and milestones of the Campus Plan.

CONSTRUCTION PHASES
PHASE ONE
SPORTS PAVILION
A brand-new, three-level Sports Pavilion will feature a covered tennis court, four reservable pickleball courts, and a basketball court.
PHASE TWO
RESORT POOL & BREEZES BAR
Permanent shade structures provide relief from the hot Texas sun. Barracuda Café will now feature a built-in outdoor kitchen and walk-up ordering window Breezes Bar will offer significantly more seating and an open-concept bar.
WELLNESS BUILDING HIDEOUT & OUTDOOR PARTY SPACE
The Wellness Building is the oldest facility on campus. We will rejuvenate this space with redesigned Family Locker Rooms, enhanced wellness amenities, and updated fitness studios. The Hideout will have its own added outdoor space and the entrance will move to the north side of the building.
PHASE THREE
CLUBHOUSE
The final phase of construction focuses on elevated dining spaces, reconfigured and refreshed private event spaces, and the addition of card rooms. Outdoor dining will be expanded without impacting the Club’s green space

financial information 04

Total Project Cost: $32 million Member Assessment: $15,000
Total Amount from Member Assessment: $18 million
Bank Loan: $22.5 MM + interest $7.4 MM
The bank loan will be used to pay for the construction initially Funds from Member assessments paid upfront will reduce the initial loan draw and minimize interest. Future payments on the loan will be made from incoming Member initiation fees
PAYMENT OPTIONS:
ONE-TIME VS 3-YEAR INSTALLMENTS
OPTION SCHEDULE PAYMENT
One-time Payment Due January 2026 $15,000
3-Year Option
Recurring Payment Schedule TBD TBD

WHERE THE MONEY GOES

Shade structures around the Family Resort Pool
Barracuda Café
Hideout expansion
Open-air covered party space
Wellness Building with Breezes Bar
Multi-level Sports Pavilion with basketball/multiuse court, 4 pickleball courts, & covered tennis court
Dining rooms, card rooms & private event spaces
Retention/detention
Infrastructure (HVAC, ADA, etc )
Design & planning contingency

05 FUNDING THE PLAN
The total estimated cost of the Campus Plan is $32 million. Pending the approval of a Bylaws change, all memberships* subject to assessment will be assessed $15,000**. The cumulative amount paid by Members totals approximately $18.18 million. The remaining project cost will be financed and ultimately, funded by future initiation fees.
Based on an assumption that 50% of Members pay the $15,000 assessment upfront, the total borrowed amount is $22.5 million plus estimated interest of 6 25% This estimates our total loan cost at $29.8 million. The term of the loan is 10 years.
Should the vote pass, the assessment would appear on the December 31 Member statement. A financing option will allow Members to pay the assessment in 36 monthly installments.***
The Club is currently operating on a nearly three-year membership waitlist. New members coming off the waitlist over the next seven years will be expected to pay the same assessment.
According to Club Benchmarking , it is industry standard to assess all categories of members with the exception of Senior and Non-resident (No Equity) categories. Members are responsible to maintain and improve private club assets in order to remain competitive in offerings and value. Deferring capital improvement affects the ability to attract and maintain members, in addition to substantially increasing capital maintenance needs
*Membership categories excluded from the assessment include Senior, Senior Social, and Non-Resident (No Equity)

**The suggested Bylaws change includes a proposal that Legacy Members under 35 pay assessments at 75% ($11,250) and upon turning 35, will pay the remaining balance The change also proposes that Legacy (35 and older), Junior and Non-Resident Equity Members also pay the assessment
***Installment payments will incur an interest charge TBD.
+
Club Benchmarking is a consulting firm that provides industry comparative data for private clubs. Among other things, they help clubs assess financial and operational performance.

B Y L A W S C H A N G E S
As we look to invest in the future of our Club, these proposed Bylaws updates are designed to create a fair and financially sustainable path forward The proposal expands the categories of memberships subject to an assessment to include Legacy Members, Non-Resident Equity Members, and Junior Members Here’s why this change matters:
Shared Responsibility – The proposed improvements benefit the entire Club and all Members. It is an aspect of fundamental fairness to ask a broader base of Members to contribute to the improvements as it helps distribute the cost more equitably across all the Members who will use them
Preserves Financial Health – Relying on a smaller group to shoulder the full cost would place an undue burden on a few. This change helps protect the Club’s financial stability and keeps it on solid footing.
Supports Club Unity – A shared investment in the Club’s future fosters a stronger sense of community and collective pride in the enhancements.
Reflects Evolving Use of Facilities – Today, Members across all categories enjoy many of the same spaces and services. This update aligns contributions with how the Club is actually used
Ultimately, this change ensures we are all doing our part to maintain and elevate the Club we love now and for generations to come
AFFECTED BYLAWS
Article III, Section 2 (A)(8) (Equity Resident Membership) Conversion to Non-Resident Membership
Article III, Section 2 (C)(3) (Junior Membership) Fees, Assessments and Dues
Article III, Section 2 (F)(3) (Legacy Membership) Fees, Assessments and Dues
Article III, Section 2 (F)(5) (Legacy Membership) Conversion
Article III, Section 4 (C)

CONCEPTUAL RENDERINGS 07
TAKE A LOOK AT OUR FUTURE
Our Campus Plan envisions a larger, more accessible Club constructed directly on our existing footprint. Although expansion is our goal, land studies have shown there is no available property to acquire. These renderings showcase a vibrant campus designed to blend seamlessly with our already beautiful surroundings.
Although the current drawings and renderings are conceptual and not final, they provide an exciting starting point that helps bring the vision to life. They illustrate how every Member whether passionate about tennis, pickleball, fitness, dining, family activities, or social spaces—can see themselves reflected in the Club’s future. These visuals are thoughtfully designed with everyone in mind.










































CLUBHOUSELEVELONE




CLUBHOUSELEVELTWO

CONTINUING THE CONVERSATION 08
WHAT IF IT DOESN’T PASS?
FACILITY DETERIORATION & DEFERRED MAINTENANCE
Aging infrastructure will continue to deteriorate, potentially leading to:
Safety concerns
Increased repair costs
Temporary closures or service disruptions
Higher long-term costs due to inflation and escalating maintenance needs
Missed opportunity to address known issues proactively
Will not mitigate the cost of preventative maintenance
MEMBER SATISFACTION & RENTENTION
Risk of Member frustration over outdated or overcrowded amenities
Loss of Members and families
seeking modern facilities
Overall Member satisfaction and pride in the Club could decline without improvements

COMPETITIVE DISADVANTAGE
Falling behind peer clubs that have already made significant updates

Challenges attracting new Members or retaining current ones without improved offerings
Difficult to justify dues or initiation fees without updated offerings/experiences
FINANCIAL IMPACTS
Fixing problems one at a time tends to be more costly in the long run
Lack of clear investment path may affect long-term financial planning
Higher dues increases to keep up, without the benefit of improvements
PROJECT MOMENTUM LOSS
Loss of engagement and buy-in from Members
Starting over in the future could mean higher costs and a longer timeline
STRATEGIC VISION AT RISK
The Club may struggle to evolve and stay aligned with long-term goals
Opportunity lost to create something lasting and meaningful at the Club for future generations
Decline in Member pride and Club legacy
frequently asked questions 09


FINANCIAL QUESTIONS
Q: How much will the assessment be per member?
A: The general assessment will be $15,000 per Membership.
Q:What are the payment options?
A: A one-time payment will be due in January 2026 The alternative is to pay monthly for 36 months. This option would include interest at a rate to be determined
Q: How was the assessment amount determined?
A: We based this figure on the total amount of debt the Club was comfortable taking on as decided with input from both the Board of Directors and the Finance Committee.
Q: Who pays the assessment?
A: Pending approval of the proposed Bylaws changes, all Membership categories will be assessed with the exception of Senior, Senior Social, and Non-Resident (No Equity).
Q: What is the loan repayment term for the Club?
A: It is a 10-year loan
PROJECT SCOPE & BENEFITS
Q: How will the renovations improve the Club’s value or experience?
A: Every area of the Club will be renovated over time to reduce compaction, upgrade amenities, enhance comfort and aesthetics, and improve overall usability.
Q: How were these priorities chosen?
A: Based on need, along with insights from Member surveys, focus groups, department leaders, and hired architects and consultants.
Q: Is this renovation competitive with what other clubs are doing?
A: It is in-line and competitive with other relevant clubs, yes. It is imperative that clubs re-invest in their properties every 7-10 years

Q: How long will the construction take?
A: Construction is estimated to begin at the end of 2026 and expected to take 4 years.
Q: Will areas of the Club be closed? If so, when and for how long?
A: The Club will make every effort to minimize disruptions. Any area closures will be communicated with advanced notice, when possible
Q: Will member access be restricted during renovations?
A: We don’t anticipate a campus-wide disruption at any point; however, in the unlikely event it is the case, all Members will be promptly notified


VOTING & DECISION PROCESS
Q: Who decides whether the project moves forward?
A: You do! In order for the Campus Plan to proceed, a majority of Equity Member support is needed.
Q: When and how will we vote?
A: Ballots will be sent on October 3 In addition to your annual vote for our Board of Directors, there will be two separate voting items: one to approve the Bylaws changes, and one to approve the assessment.
Q: What percentage of members must approve it for the project to proceed?
A: 51% of Equity Memberships

TRANSPARENCY & PLANNING
Q: Can we see additional renderings or plans before voting?
A: Yes, if we receive additional renderings, they will be available for viewing.
Q: What consultants or firms are being used, and why were they chosen?
A: Our strategic plan was written by GGA who has a stellar reputation in the Private Club Industry.
We selected C Limited Design Associates because they are a boutique firm that, throughout this process, has been able to reveal our ultimate potential on our current footprint 2
Q: Have other options or smaller-scale upgrades been considered?
A: Yes; however, the Board wanted to make sure every member was considered on a longterm scale.
EQUITY & MEMBERSHIP IMPACT
Q: Are all Membership categories being assessed equally?
A: Pending the Bylaws vote, Equity, Legacy, Junior, and Non-Resident Equity Memberships will be assessed equally. Legacy Members under 35 will be assessed at 75% with the remaining 25% due upon turning 35, and the assessment would exclude Senior, Senior Social, and Non-Resident (No Equity) Memberships.
Q: Will the renovations lead to new membership categories or increased capacity?
A: In short, no. While our compaction issues would be minimized, we are comfortable at our current capacity numbers.
Should we see any Membership resignations, any members on the waitlist will be required to pay the same assessment upon joining.




YOUR VOICE MATTERSBALLOTS GO OUT ON OCTOBER 3, 2025
STILL HAVE QUESTIONS?
JOIN US FOR THESE UPCOMING DISCUSSION FORUMS
LUNCH WITH THE GM
Tuesday, June 24
TOWN HALL
Tuesday, September 9
TOWN HALL
Wednesday, October 22
RSVP ON THE CLUB CALENDAR