




![]()





Discover refined urban living at Linwood Quarter — a boutique townhome community ideally situated in one of Fort Worth’s most walkable and vibrant neighborhoods.
These thoughtfully designed residences offer a rare combination of style, functionality, and location—without compromise. Each home showcases curated interiors, efficient floorplans with generous storage, and finishes that blend modern luxury with everyday comfort.
Select units feature expansive rooftop terraces with sweeping views of the Fort Worth skyline—perfect for sunset gatherings, morning coffee, or taking in the city lights.
Whether you're heading out for a run on the nearby Trinity Trails, unwinding at Linwood Park, or exploring the dozens of acclaimed restaurants just steps away, Linwood Quarter places you at the center of it all.

Custom cabinetry throughout
Natural stone countertops including quartzite and leathered granite
Real hardwood floors for durable timeless elegance
Delta plumbing fixtures with a modern edge
Stainless steel GE appliances
Energy Star Efficiency Rating
10' ceilings on main level, 9' ceilings on 3 floor rd
Spray foam insulation for year-round comfort and energy efficiency
Oversized garages for SUVs, bikes, and extra gear






Experience unmatched access to Fort Worth’s most dynamic districts—Linwood Quarter places you effortlessly close to the culture, energy, and convenience of city living.
W 7th Entertainment District – dining, shopping, and vibrant nightlife all in one walkable hub
Cultural District – home to the Fort Worth Botanic Garden, Fort Worth Zoo & world-renowned art museums like the Kimbell & Modern
Trinity Trails – more than 100 miles of scenic trails for biking, jogging & outdoor recreation along the Trinity River
Dickies Arena – premier destination for concerts, championship rodeos, and large-scale events

Will Rogers Coliseum – historic venue hosting equestrian shows, livestock events & major exhibitions year-round
Downtown Fort Worth – a blend of historic charm and modern energy with Sundance Square, acclaimed restaurants, and corporate hubs

5000SFRetal10,000SFofinterioramenity space,600MFunits


900000SFClassAAoffce,238000SF retai,175-roomhote,and1,785MFunts






102,000SFCassAAoffce226MFunits 11000SFretai&restaurantspace
12,000SFretal&restaurantspace,744parkngstals 116000SFClassAAoffcespace,259MFunitsanda175keyhgh-endAutographColectonhotel











- 300 FOCH STREET















Package A: The Lumen – Light and Bright
Clean lines, soft neutral tones, warm woods, and brushed brass accents create a welcoming, airy feel throughout.
Package B: The Terra – Organic Modern
A blend of earth-toned palettes, raw textures, and matte black finishes for a grounded, modern sophistication.
Package C: The Noir – Moody Organic
Rich wood tones, dramatic stone surfaces, and dark, moody accents for a bold, luxurious statement.




































































































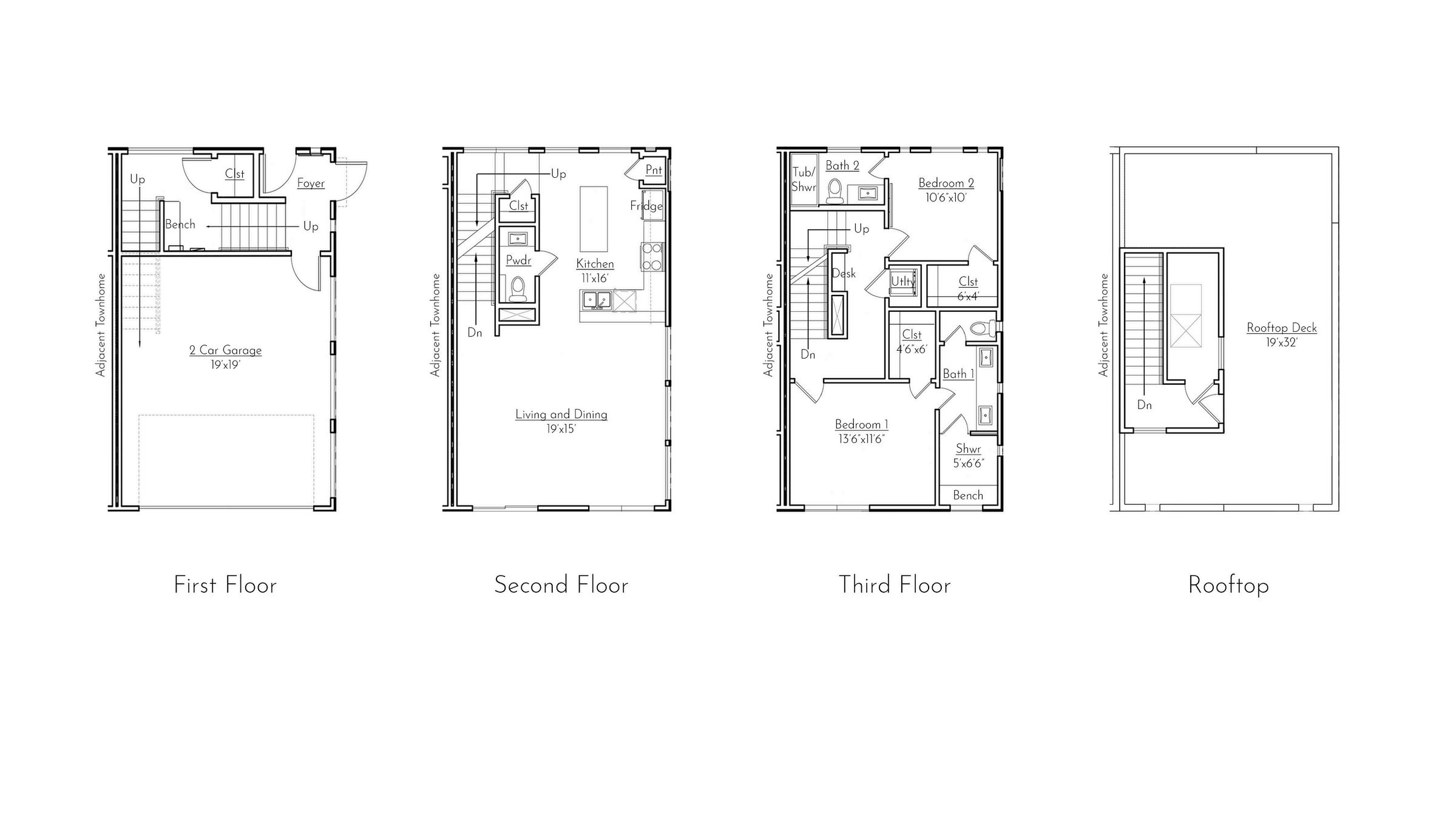
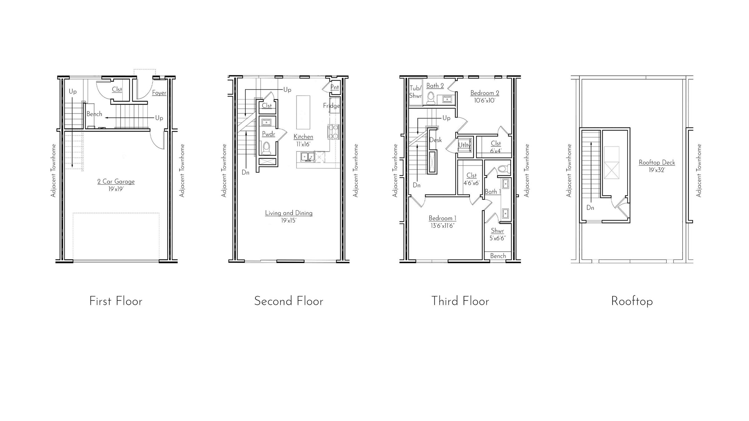
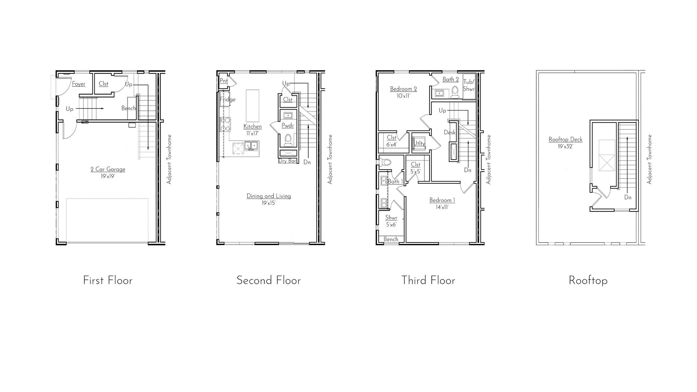
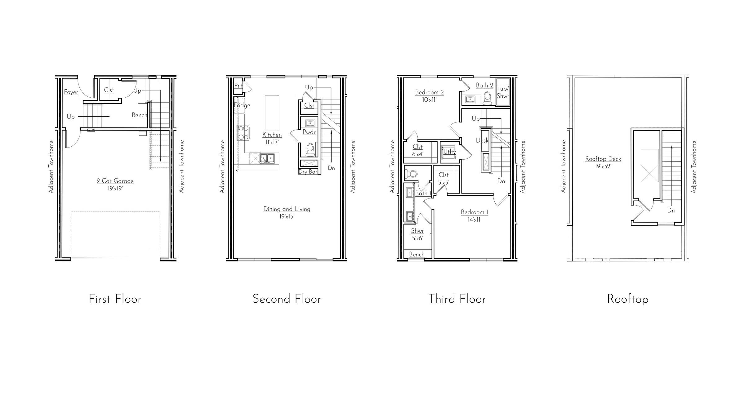
Floor Plans: F300-Interior | 1668 SF














