Architectural Projects

Page 1

ARCHITECTURAL PORTIFOLIO

contents 01 ........ RESIDENCE DESIGN 02 ........ VILLA DEVELOPMENT 03 ........ SCHOOL DEVELOPMENT 04 ......... CLUSTER HOUSING 05 ......... CAFE’ DESIGN 06 .......... LOUNGE DESIGN 07 .......... WORKING DRAWINGS

01
exterior WORKS
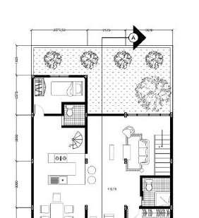
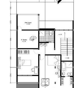
RESIDENTIAL DESIGN
GROUNDFLOORLEVEL ELEV. +0.35MTS. PAVEMENT LEVEL ELEV. +0.20MTS. STREET LEVEL ELEV. +0.00MTS. TOPOFFENCELEVEL ELEV. +2.0MTS. FIRST FLOOR LEVEL ELEV. +4.57MTS. SECOND FLOOR LEVEL ELEV. +8.49MTS. PARAPET LEVEL ELEV. +13.04MTS. ANNEXFLOORLEVEL ELEV. +12.41MTS. WOODEN LOUVERS BEIGE FINISH PAINT BEIGE TRAVERTINE FENCE GATE BEIGE FINISH PAINT UPVC WINDOW FRAME WITH GLASS PANEL WITH TRANSOM FRONT ELEVATION GROUNDFLOORLEVEL ELEV. +0.35MTS. PAVEMENT LEVEL ELEV. +0.20MTS. STREET LEVEL ELEV. +0.00MTS. TOPOFFENCELEVEL ELEV. +2.0MTS. FIRST FLOOR LEVEL ELEV. +4.57MTS. SECOND FLOOR LEVEL ELEV. +8.49MTS. PARAPET LEVEL ELEV. +13.04MTS. ANNEXFLOORLEVEL ELEV. +12.41MTS. BEIGE FINISHPAINT WOODENLOUVERS UPVCWINDOWFRAME WITHGLASSPANEL WITHTRANSOM REAR SIDEELEVATION GROUND FLOOR LEVEL ELEV. +0.35MTS. PAVEMENT LEVEL ELEV. +0.20MTS. STREET LEVEL ELEV. +0.00MTS. TOP OF FENCE LEVEL ELEV. +2.0MTS. FIRSTFLOOR LEVEL SECOND FLOOR LEVEL ELEV. +8.49MTS. PARAPET LEVEL ELEV. +13.04MTS. ANNEX FLOOR LEVEL ELEV. +12.41MTS. WOODEN LOUVERS BEIGE FINISHPAINT BEIGE TRAVERTINE BEIGE FINISHPAINT UPVCWINDOWFRAME WITHGLASSPANEL WITHTRANSOM LEFTSIDEELEVATION exterior WORKS

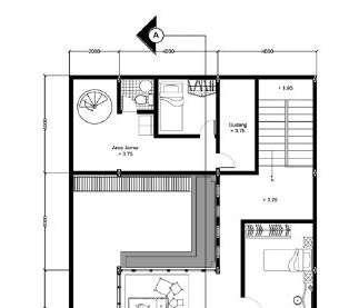
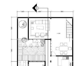
02 RESIDENTIAL DESIGN

exterior WORKS
GREEN SPACES PUBLICSPACE SEMIPUBLICSPACE PRIVATESPACE exterior WORKS

03 SCHOOL PROJECT

exterior WORKS
exterior WORKS
04
cluster housing
05
CAFE’ DESIGN
06 AIRPORT LOUNGE
GROUND FLOORFIRST FLOOR SECTION SIDE ELEVATION FrontELEVATION SEMI - DETACHEDHOUSE ROWHOUSE GROUND FLOORFIRST FLOOR SECTION FrontELEVATION backELEVATION WORKING DRAWINGS
SECTION ASECTION AA’
SECTION B
THANK YOU

Turn static files into dynamic content formats.

Create a flipbook
Issuu converts static files into: digital portfolios, online yearbooks, online catalogs, digital photo albums and more. Sign up and create your flipbook.
Architectural Projects by tendai mabvudza - Issuu