Skip to main content

FASE 3 completa

Page 1

3ª FASE

Redline / Pietri Architectes

PROYECTOS 7

Teresa Davó Cañizares

Lucía López Ruiz

INTRODUCCIÓN

La Seyne-sur-Mer, Francia. 3 bloques. 59 unidades de vivienda.

Requisitos de confort:

Contemplación del paisaje. Vista ininterrumpida desde el edifico hasta la Bahía de Vignettes, en Tolón.

Apartamentos con vistas tanto delanteras como traseras. Eliminación de “fachada trasera”. Patio exterior para ventilar y aprovechar al máximo la vista.

ALZADOS

Estándares de diversidad y desarrollo sostenible:

Patio central ajardinado sobre una losa de hormigón (impermeabilidad, drenaje, impermeabilización). Debajo hay un aparcamiento bien ventilado y locales comerciales en la planta baja.

Uno de los objetivos principales de este proyecto es la obsesión por la observación del paisaje, específicamente de la Bahía.

En el contexto urbano, este edificio crea una conexión visual entre el interior de este que atraviesa el Jardín de Otoño (el parque de enfrente) y que llega al otro lado de la Bahía de Vignettes, en la ciudad de Tolón. La conservación de esa visual es clave para el entendimiento del proyecto.

Morfológicamente, el edificio se divide en 3 bloques. El primero, que sería la planta baja (donde hay un parking y algunos locales comerciales), y los dos restantes son los bloques de viviendas, los cuales arrancan desde la primera planta. Ambos bloques están conectados mediante una serie de pasarelas que ocupan el espacio intermedio entre los dos, evitando la construcción de un “cuarto” bloque masivo y conservando la visual.

PLANO DE SITUACIÓN

Este patio interior se localiza en la primera planta del edificio, el cual es un espacio ajardinado con una serie de lugares de estancias vinculados a los núcleos de comunicación del edificio.

Adicionalmente, el edificio cuenta con un módulo extra que se asoma hacia la bahía a modo de “enmarcar” el paisaje, situado en la fachada norte.

Al dividir el bloque de viviendas en dos, aparte de lo ya mencionado, también se consigue que todas las viviendas tengan vistas hacia la bahía y se crean unas buenas condiciones de ventilación y climatización en el espacio del patio interior.

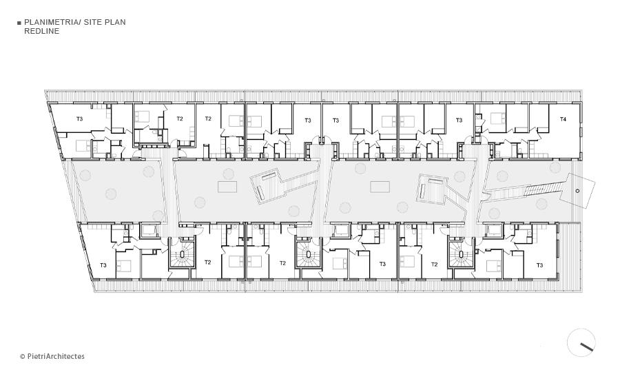
PLANTA PRIMERA

El espacio que vamos a analizar en este caso es el patio interior. Además de aspectos ya mencionados en otras ocasiones, como cuestiones bioclimáticas o el atractivo visual del espacio a estudiar, nos han llamado la atención cuatro aspectos en relación con el patio.

El primer aspecto a estudiar son las pasarelas, que conectan con los dos bloques del edificio y fomentan la conexión visual con el patio.

Además, es notable la estratégica ubicación de la caja de escaleras, la cual se encuentra exclusivamente en el bloque norte de viviendas el cual se ubican las 3 respectivas entradas principales. Esta disposición crea una relación indirecta con el patio para aquellos residentes cuyas viviendas están ubicadas en dicho bloque, eliminando la necesidad de atravesar las pasarelas para llegar a sus hogares. Sin embargo, el bloque de viviendas opuesto establece una conexión directa con el patio, ofreciendo una experiencia más inmediata de interacción con el entorno exterior.

ANALIZANDO LAS PASARELAS

ANALIZANDO LA CAJA DE ESCALERAS (ASCENSOR)

El segundo aspecto a mencionar es la disposición de la caja de escaleras y las vistas que se obtienen al salir del ascensor o al subir las escaleras hacia el patio, junto con las pasarelas previamente mencionadas.

Cabe resaltar el diseño de la puerta de la pasarela, que a través del juego de la extracción, genera un espacio clave en la propia partición que redirige la atención del usuario que sale del ascensor hacia el exterior. Esto promueve una experiencia visual más enriquecedora, aprovechando la geometría de los elementos arquitectónicos para generar un efecto estético y funcional.

El tercer aspecto a comentar es el concepto del vacío en el propio patio y la interacción visual entre este y las pasarelas.

En el patio, las parcelas vegetales se sitúan a una altura de aproximadamente 1 metro, creando pasarelas en esa planta que dirigen la mirada hacia arriba, hacia las pasarelas superiores.

Por otro lado, en las pasarelas, el diseño del techo orienta la vista nuevamente hacia el patio, generando un juego constante de visuales entre ambos espacios.

Además, destaca un mirador hacia el mar cuya función principal es “enmarcar el paisaje”, añadiendo otro elemento de interés y contemplación al diseño del edificio.

ANALIZANDO EL VACÍO

El cuarto y último aspecto a tratar es la localización del patio en la primera planta.

Al estar este patio en una cota más elevada que la de la calle, esto hace que el espacio adquiera privacidad sin tener que hacer uso necesariamente de vallas u otros elementos que puedan ser obstáculos visuales. Esta “no necesidad” de límites visuales es lo que le otorga la cualidad de espacio para admirar el paisaje al patio interior del edificio.

ANALIZANDO EL PATIO ELEVADO

En el dibujo a tratar, se pueden observar detalladamente todos los aspectos mencionados anteriormente, así como las estrategias utilizadas por Pietri Architects. Se aprecia cómo se han implementado las pasarelas para conectar los bloques del edificio y fomentar la conexión visual con el patio. También se visualiza la ubicación estratégica de la caja de escaleras y el diseño de la puerta de la pasarela para dirigir la atención hacia el exterior. Además, se evidencia el concepto del vacío dentro del patio y el juego de visuales entre este y las pasarelas, así como el mirador hacia el mar que enmarca el paisaje. Todo esto muestra la cuidadosa planificación y ejecución del diseño arquitectónico por parte de Pietri Architects.

DIBUJO

En el diagrama del recorrido podemos apreciar más en detalle todos los aspectos estudiados.

DIAGRAMA DEL RECORRIDO
DIBUJO COMPLETO

BIBLIOGRAFÍA

https://www.researchgate.net/figure/Experiencing-territorial-levels-in-the-structure-of-a-residential-building-Redline-La fig3 364659348

https://www.dezeen.com/2015/01/06/pietri-architectes-redline-apartments-housing-france-red-concrete-walls-rooftop-gardens/

https://www.theplan.it/eng/architecture/redline-complex-en

https://www.designboom.com/architecture/pietri-architectes-redline-france-09-22-2014/

https://www.immoneuf.com/actualites/innovation-les-cles-du-futur/a16526/innovation-art-de-vivre

https://arquitecturaviva.com/obras/edificio-mirador-madrid

https://es.slideshare.net/GabrielBuda11/estrategias-para-viviendas-colectivas

DIRECCIÓN GOOGLE MAPS

263 Cr Toussaint Merle Maire, La Seyne-sur-Mer, France.

PROYECTOS 7

Teresa Davó Cañizares

Lucía López Ruiz

3ª FASE

Intervención en Joran

URBANIZACIÓN JORAN PLANOS ORIGINALES
URBANIZACIÓN JORAN PLANOS ORIGINALES

La siguiente intervención en Joran surge del estudio previo de la propuesta de vivienda colectiva. En esta etapa, buscamos mejorar la experiencia visual mediante la creación de un patio ubicado en niveles superiores a la planta baja. Esta propuesta se basa en las condiciones ambientales y espaciales estudiadas anteriormente, con el objetivo de optimizar el entorno y ofrecer una experiencia más enriquecedora para los residentes.

ALZADO SURESTE E 1/100

DETALLE ALZADO SURESTE E 1/50

A efectos de fachada, esta se ha modificado a través de la extracción de las tres viviendas más altas y cercanas al hueco de escaleras: una situada en la planta 8 y otras dos en la planta 9. Posteriormente, estas plantas han sido reubicadas en una nueva planta: la planta 11, con dos viviendas en el extremo derecho y una vivienda en el extremo izquierdo del edificio. Este cambio ha contribuido a alterar la distribución y el aspecto exterior del edificio.

DETALLE ALZADO SUROESTE E 1/50

En lo que respecta la planta del edificio, se han diseño varios elementos en nuestro nuevo patio elevado, con el objetivo de crear interrupciones visuales estratégicas y lograr encuadrar el paisaje a tratar (vistas al faro de Santa Pola).

Para lograr esto, hemos implementado diversas infraestructuras como escaleras y pasarelas que conectan y salvan las alturas entre los diferentes patios. Esta disposición busca generar un recorrido visual y sensorial interesante, ofreciendo una experiencia atractiva para quienes lo transitan.

DETALLE PLANTA 8 E 1/50 DETALLE PLANTA 9 E 1/50
10 E 1/100
PLANTA
PLANTA 11 E 1/100

En cuanto al diseño de las pasarelas, se han ubicado estratégicamente una sobre otra para crear los aspectos estudiados durante la fase de análisis, tales como el confort, la intimidad y la conexión visual con el patio. Esto ha dado lugar a un juego de visuales y de los distintos grados de privacidad entre los diferentes patios y las pasarelas, mejorando la experiencia espacial y promoviendo la interacción entre los espacios.

Con respecto al mobiliario, hemos optado por la versatilidad de usos, seleccionando piezas que sean versátiles y efímeras, lo que permite su fácil transporte a través de las escaleras y el ascensor. Esta elección nos brinda la flexibilidad necesaria para adaptar el espacio a diferentes necesidades y actividades, garantizando una experiencia cómoda y funcional para los usuarios.

PLANT

En conjunto, esta propuesta refleja un enfoque holístico hacia el diseño arquitectónico, donde la estética, la funcionalidad y la experiencia del usuario se integran de manera armoniosa y reflexiva."

SECCIÓN TRANSVERSAL E 1/100

Turn static files into dynamic content formats.

Create a flipbook