DETAILING & WORKING DRAWINGS (DWD) E- PORTFOLIO

Page 1

BACHELOR OF ARTS (HONOURS) IN BACHELOR OF ARTS (HONOURS) IN BACHELOR OF ARTS (HONOURS) IN INTERIOR ARCHITECTURE INTERIOR ARCHITECTURE INTERIOR ARCHITECTURE

DETAILING AND WORKING DRAWINGS DETAILING AND WORKING DRAWINGS DETAILING AND WORKING DRAWINGS

T A S N I A T A B A S S U M Z I H A N S T U D E N T I D : 0 3 4 3 0 8 5

Bachelor of Arts (Honours) in Interior Architecture

Detailing and Working Drawings

IDS60804

Assignment 3 : Working Drawings + System Integreation

Lecturer : Ms. Nur Fatimah Mohd Khairi & Ms. Sin Ai

Name : Tasnia Tabassum Zihan

Student ID : 0343085

LIST OF DRAWINGS

REVISION TRACKING

DRAWING LIST SHEET NAME REV DATE DESCRIPTION ISSUE PHASE 1 REK DWD TTZ SOP 1F 01 SETTING OUT PLAN 01 23 JUNE 2023 - CHANGE SCALE. BLUE MUST BE DASH THIN LINES. ADD INTERNAL DIMENSIONS. REK DWD TTZ FLP 1F 02 FURNITURE LAYOUT PLAN 01 23 JUNE 2023 - BASELINE OF THE FLOOR NOT SHOWING REK DWD TTZ RCP 1F 03 REFLECTED CEILING PLAN 01 23 JUNE 2023 - PLAN MUST NOW SHOW FURNITURE UNDERNEATH THERE WAS NO INTERNAL DIMENSION FOR LIGHTING CEILING HEIGHT NOT INDICATED REK DWD TTZ LLP 1F 04 LIGHTING LOOP PLAN 01 23 JUNE 2023 - MAKE GREEN LINES TIGHT DASH REK DWD TTZ FFP 1F 05 FLOOR FINISHED PLAN 01 23 JUNE 2023 - LACK INTERNAL DIMENSION, NO CODING, NO FFL REK DWD TTZ SOA 1F 06 SCHEDULE OF ACCOMODATION 01 23 JUNE 2023 - CHECK SCALE MAKE IT 1:150 PHASE 2 REK DWD TTZ SEC 1F 07 SECTION 01 26 JUNE 2023 - NO ISSUE REK DWD TTZ BLP 1F 08 BESPOKE DETAIL PLAN 01 26 JUNE 2023 - ARRANGE YOUR DIMENSION NEATLY. FLOOR PLAN IS MISSING. REK DWD TTZ BS 1F 09 BESPOKE SECTION 01 26 JUNE 2023 - ARRANGE YOUR SPECIFICATION TO ALLIGN EACHOTHER REK DWD TTZ BU 1F 10 BLOW UP DETAIL 01 26 JUNE 2023 - FONT OF SPEC AND DIMENSION TOO BIG SPECIFICATIONS NOT INDICATED PROPERLY. REK DWD TTZ BQ 1F 11 BILL OF QUANTITY 01 26 JUNE 2023 - NO ISSUE PHASE 3 REK DWD TTZ SOF 1F 12 SCHEDULE OF FINISHES 01 7 JULY 2023 - NO ISSUE REK DWD TTZ FFE 1F 13 FIXTURE, FITTING AND EQUIPMENT SCHEDULE 01 7 JULY 2023 - NO ISSUE REK DWD TTZ IR 1F 14 INDIVIDUAL REFLECTION - - - -

SCHEDULE OF ACCOMMODATION

AREAS NO. OF OCCUPANTS NO. OF ROOMS AREA OF ONE ROOM (m2) AREA OF ROOM M2) FIRST FLOOR BREAKOUT ROOM 5 3 9.30 SQM 27.9 SQM PRIVATE WORKING SPACE 1 5 3.62 SQM 18.10 SQM BALL PIT 5 1 9 SQM 9 SQM SMEETING ROOM 18 1 58.65 SQM 58.65 SQM OPEN SPACE 7 1 62.10 SQM 62.10 SQM

NOTE: THISDRAWINGISCOPYRIGHT DRAWING.THEAUTHORISEDUSERIS TOCHECKALLDIMMENSIONSONSITE. ONLYFIGUREDDIMENSIONSARETO BEWORKEDON.DISCREPANCIES MUSTBEREPORTEDIMMEDIATELY TOIPARTNERSHIPBEFORE PROCEEDING.

NO.DESCRIPTION DATE

CLIENT:

MS.ELIZABETH

TEL:018-1905739

EMAIL:eliza168@gmail.com

SOP

SETTINGOUTPLAN-FIRSTFLOOR

SCALE1:150 FF

ARCHITECT:

INTERIORDESIGN CONSULTANT:

QUANTITYSURVEVOR:

PROJECTNAME:

REKASCAPE

EXISTINGLEGEND CODE DESCRIPTION

150MMTHKEXISTING CONCRETE DEMOLISH PROPOSEDNEWSTRUCTURE

DRAWINGTITILE:

SETTINGOUTPLANFIRSTFLOOR

SCALE: DATE:

ASSHOWN

CHECKEDBY:

Z-STUDIOSDN.BHD. UROOBDESIGN JSSISQSCOMPANY

LOT5-18,JALANPETALING7, SELAGOR,MALAYSIA TEL:012-8736278

EMAIL:jojodesign2@joarchifirm.com

F21-08,JALANMERAH8, SELAGOR,MALAYSIA. TEL:018-2389473

EMAIL:kimsconsult@kimsdesign.com

LOT1-03,JALANPJU100, SELAGOR,MALAYSIA. TEL:017-4578934

EMAIL:jimmyqs2023@jimmycompany.com

20JUNE2023

DRAWNBY:

TASNIATABASSUMZIHAN

DRAWNINGNO:

MS.FATIMAH REV.NO:

4500 4500 4500 4500 4500 4500 31500 6750 2250 6750 15750
MEETING ROOM
SEC
SEC A
A
1
1694 122274 1956 1722 6550 8835 8850 16325 2213 4500
FFL:25.100 FFL:25.100

WINDOWLEGEND

SYMBOL DESCRIPTION

150THKFIXED TEMPEREDGLASS 55THK POLYCARBONATE TEXTUREDGLASS BALANCED ACOUSTICPANEL WALL WIDEACOUSTIC PANELWALL

DOORLEGEND

CODE DESCRIPTION

130MMTHKGLASS SLIDINGDOOR

NOTE:

FURNITURELEGEND

CODE DESCRIPTION

POLYESTERW/ POWDERCOATING &POLYURETHANE FOAMSEAT

CLIENT:

REDGLOSSY ACRYLIC5SEATER MESH+FABRICW/ PPFIXARMREST

ARCHITECT:

FLP

100MMTHKSLIDING DOOR SCALE1:150

FURNITURELAYOUTPLANFIRSTFLOOR SCALE FF

INDIANEBONY WITHBEECHW/ POWDERCOATED STEELLEGS

THISDRAWINGISCOPYRIGHT DRAWING.THEAUTHORISEDUSERIS TOCHECKALLDIMMENSIONSONSITE. ONLYFIGUREDDIMENSIONSARETO BEWORKEDON.DISCREPANCIES MUSTBEREPORTEDIMMEDIATELY TOIPARTNERSHIPBEFORE PROCEEDING.

NO.DESCRIPTION DATE

MS.ELIZABETH

TEL:018-1905739

EMAIL:eliza168@gmail.com

INTERIORDESIGN CONSULTANT:

QUANTITYSURVEVOR:

PROJECTNAME:

REKASCAPE

DRAWINGTITILE:

FURNITURELAYOUTPLAN-FIRST FLOOR

SCALE:

ASSHOWN

CHECKEDBY:

Z-STUDIOSDN.BHD. UROOBDESIGN JSSISQSCOMPANY

LOT5-18,JALANPETALING7, SELAGOR,MALAYSIA

TEL:012-8736278

EMAIL:jojodesign2@joarchifirm.com

F21-08,JALANMERAH8, SELAGOR,MALAYSIA. TEL:018-2389473

EMAIL:kimsconsult@kimsdesign.com

LOT1-03,JALANPJU100, SELAGOR,MALAYSIA. TEL:017-4578934

EMAIL:jimmyqs2023@jimmycompany.com

MS.FATIMAH

DRAWNINGNO:

DATE:

20JUNE2023

DRAWNBY:

TASNIATABASSUMZIHAN

REV.NO:

4500 4500 4500 4500 4500 4500 31500 6750 2250 6750 15750 BREAKOUT ROOM PRIVATEWORKINGSPACE BALLPIT MEETING ROOM BREAKOUT ROOM R1747 9907 6983 R1236 R1721 9942 2736 588 1118 3382 3169 3169 2860 1032 1009 1694 163 1961
1
SEC A SEC A 4500 FFL:25.100 FFL:25.100 FFL:25.100 FFL:25.100
9SQM BREAKOUT ROOM 9.30SQM 9.30SQM 9.30SQM OPENSPACE 62.10SQM 18.10SQM 58.65SQM

REFLECTEDCEILINGPLAN-FIRSTFLOOR

CEILINGFINISHLEGEND

NOTE:

THISDRAWINGISCOPYRIGHT DRAWING.THEAUTHORISEDUSERIS TOCHECKALLDIMMENSIONSONSITE.

ONLYFIGUREDDIMENSIONSARETO BEWORKEDON.DISCREPANCIES MUSTBEREPORTEDIMMEDIATELY TOIPARTNERSHIPBEFORE PROCEEDING.

NO.DESCRIPTION DATE

CLIENT:

MS.ELIZABETH

TEL:018-1905739

EMAIL:eliza168@gmail.com

ARCHITECT:

INTERIORDESIGN CONSULTANT:

QUANTITYSURVEVOR:

PROJECTNAME:

REKASCAPE

DRAWINGTITILE:

SCALE: DATE:

20JUNE2023

Z-STUDIOSDN.BHD. UROOBDESIGN JSSISQSCOMPANY

LOT5-18,JALANPETALING7, SELAGOR,MALAYSIA

TEL:012-8736278

EMAIL:jojodesign2@joarchifirm.com

F21-08,JALANMERAH8, SELAGOR,MALAYSIA. TEL:018-2389473

EMAIL:kimsconsult@kimsdesign.com

LOT1-03,JALANPJU100, SELAGOR,MALAYSIA. TEL:017-4578934

EMAIL:jimmyqs2023@jimmycompany.com

CHECKEDBY:

DRAWNBY:

TASNIATABASSUMZIHAN

ASSHOWN
REV.NO:
1
MS.FATIMAH
DRAWNINGNO:
FLOOR 4500 4500 4500 4500 4500 4500 31500 6750 2250 6750 15750 BREAKOUT ROOM PRIVATE WORKING SPACE BALL PIT MEETING ROOM BREAKOUT ROOM BREAKOUT ROOM R1747 6983 R1236 R1721 9942 2736 588 1118 2860 1032 1009 1694 163 1961
REFLECTEDCEILINGPLANFIRST
SCALE FF RCP
DESCRIPTION
SEC A SEC A SCALE1:150 4500 LIGHTINGLEGEND SYMBOL DESCRIPTION QUANTITY PENDANTLIGHT 9 WARMFLUSH DOWNLIGHT 20 LEDSTRIP LIGHTING N/A DUCTEDAIR CONDITION 2 SPRINKLE 12 SMOKEDETECTOR 5 Ø230 Ø300 R1534 SD SD SD SD SD SD 9SQM 9.30SQM 9.30SQM 9.30SQM OPENSPACE 62.10SQM 18.10SQM 58.65SQM
SYMBOL
GYPSUMFALSE CEILINGBOARD

NOTE:

THISDRAWINGISCOPYRIGHT DRAWING.THEAUTHORISEDUSERIS TOCHECKALLDIMMENSIONSONSITE. ONLYFIGUREDDIMENSIONSARETO BEWORKEDON.DISCREPANCIES MUSTBEREPORTEDIMMEDIATELY TOIPARTNERSHIPBEFORE PROCEEDING.

NO.DESCRIPTION DATE

CEILINGFINISHLEGEND

CLIENT: MS.ELIZABETH

TEL:018-1905739

EMAIL:eliza168@gmail.com

LIGHTINGLEGEND

ARCHITECT:

INTERIORDESIGN CONSULTANT:

QUANTITYSURVEVOR:

PROJECTNAME:

REKASCAPE

DRAWINGTITILE:

SCALE: DATE:

20JUNE2023

CHECKEDBY:

DRAWNBY:

TASNIATABASSUMZIHAN

Z-STUDIOSDN.BHD. UROOBDESIGN JSSISQSCOMPANY

LOT5-18,JALANPETALING7, SELAGOR,MALAYSIA

TEL:012-8736278

EMAIL:jojodesign2@joarchifirm.com

F21-08,JALANMERAH8, SELAGOR,MALAYSIA. TEL:018-2389473

EMAIL:kimsconsult@kimsdesign.com

LOT1-03,JALANPJU100, SELAGOR,MALAYSIA. TEL:017-4578934

EMAIL:jimmyqs2023@jimmycompany.com

REV.NO:
FLOOR 4500 4500 4500 4500 4500 4500 31500 6750 2250 6750 15750 BREAKOUT ROOM PRIVATE WORKING SPACE BALL PIT MEETING ROOM BREAKOUT ROOM BREAKOUT ROOM R1747 6983 R1236 R1721 9942 2736 588 1118 2860 1032 1009 1694 163 1961
SCALE
ASSHOWN MS.FATIMAH
DRAWNINGNO: 1
LIGHTINGANDLOOPINGPLANFIRST
LIGHTINGLOOPINGPLAN-FIRSTFLOOR
FF LLP
SYMBOL DESCRIPTION GYPSUMFALSE CEILINGBOARD SEC A SEC A SCALE1:150 4500
SYMBOL DESCRIPTION QUANTITY PENDANTLIGHT 4 WARMFLUSH DOWNLIGHT 13 LEDSTRIP LIGHTING N/A DUCTEDAIR CONDITION 2 SPRINKLE 12 SMOKEDETECTOR 5 Ø230 Ø300 R1534 SD SD SD SD SD 1GANG1WAYSWITCH 8 9SQM 9.30SQM 9.30SQM 9.30SQM OPENSPACE 62.10SQM 18.10SQM 58.65SQM

NOTE:

THISDRAWINGISCOPYRIGHT DRAWING.THEAUTHORISEDUSERIS TOCHECKALLDIMMENSIONSONSITE. ONLYFIGUREDDIMENSIONSARETO BEWORKEDON.DISCREPANCIES MUSTBEREPORTEDIMMEDIATELY TOIPARTNERSHIPBEFORE PROCEEDING.

NO.DESCRIPTION DATE

CLIENT:

MS.ELIZABETH

TEL:018-1905739

EMAIL:eliza168@gmail.com

FLOORFINISHESPLAN

ARCHITECT:

INTERIORDESIGN CONSULTANT:

CEILINGFINISHLEGEND SYMBOL DESCRIPTION

VENEERWOOD FLOORING

CERAMIC FLOORINGTILES CARPETING

QUANTITYSURVEVOR:

PROJECTNAME:

REKASCAPE

DRAWINGTITILE:

FLOORFINISHESPLAN-FIRSTFLOOR

SCALE: DATE:

ASSHOWN

20JUNE2023

CHECKEDBY: DRAWNBY:

Z-STUDIOSDN.BHD. UROOBDESIGN JSSISQSCOMPANY

LOT5-18,JALANPETALING7, SELAGOR,MALAYSIA

TEL:012-8736278

EMAIL:jojodesign2@joarchifirm.com

F21-08,JALANMERAH8, SELAGOR,MALAYSIA. TEL:018-2389473

EMAIL:kimsconsult@kimsdesign.com

LOT1-03,JALANPJU100, SELAGOR,MALAYSIA. TEL:017-4578934

EMAIL:jimmyqs2023@jimmycompany.com

MS.FATIMAH

DRAWNINGNO: 1

TASNIATABASSUMZIHAN

REV.NO:

4500 4500 4500 4500 4500 4500 31500 6750 2250 6750 15750 BREAKOUT ROOM PRIVATE WORKING SPACE BALL PIT MEETING ROOM BREAKOUT ROOM BREAKOUT ROOM R1747 9907 6983 R1236 R1721 9942 2736 588 1118 3382 3169 3169 2860 1032 1009 1694 163 1961 SCALE FF FFP SEC A SEC A SCALE1:150
4500 FFL:25.100 FFL:25.100 FFL:25.100 SQM 9.30SQM 9.30SQM 9.30SQM OPENSPACE 62.10SQM 18.10SQM 58.65SQM

NOTE:

THIS DRAWING IS COPYRIGHT DRAWING.THEAUTHORISEDUSERIS TOCHECKALLDIMMENSIONSONSITE. ONLYFIGUREDDIMENSIONSARETO BE WORKED ON. DISCREPANCIES MUSTBEREPORTED IMMEDIATELY TO IPARTNERSHIP BEFORE PROCEEDING.

NO.DESCRIPTION DATE

CLIENT:

MS.ELIZABETH TEL:018-1905739

EMAIL:eliza168@gmail.com

ARCHITECT: INTERIORDESIGN CONSULTANT:

QUANTITYSURVEVOR:

PROJECTNAME:

REKASCAPE

DRAWINGTITILE:

SECTIONA-A

SCALE: DATE:

1:150

CHECKEDBY:

Z-STUDIOSDN.BHD. UROOBDESIGN JSSISQSCOMPANY

LOT5-18,JALANPETALING7, SELAGOR,MALAYSIA TEL:012-8736278

EMAIL:jojodesign2@joarchifirm.com

F21-08,JALANMERAH8, SELAGOR,MALAYSIA. TEL:018-2389473 EMAIL:kimsconsult@kimsdesign.com

LOT1-03,JALANPJU100, SELAGOR,MALAYSIA. TEL:017-4578934 EMAIL:jimmyqs2023@jimmycompany.com

MS.FATIMAH

DRAWNINGNO: U_DWD_GROUP5_FLP_01

4APRIL2023

DRAWNBY:

TASNIATABASSUMZIHAN

REV.NO:

4500 4500 4500 4500 4500 27000 4500 3501 7897 11397 ROOFTOPLEVEL FIRSTFLOORLEVEL GROUNDFLOOR LEVEL BREAKOUTROOMS BALLPITAREA
SECTIONA-A SCALE A SEC SCALE1:150 BREAKOUTROOMS BREAKOUTROOMS

NOTE:

SEC A

ALUMINUMPULLEY 700 843 411 1829 1055 540 559 1199

DATE

2130MM(H)x120MM(L)x80MM(W) DARKOAKFRAME

1140MM(H)x120MM(L)x40MM (W)DARKOAKFRAME

240 1713 1448 1590

1270MM(L)x250MM(W) WOODBACKBEAM

50MMTHKx1715MM(L)

1300

NYLONCORDANDTIES 964 740 240

CLIENT:

TEL:018-1905739

EMAIL:eliza168@gmail.com

BD

PL

BE-SPOKEDETAILPLAN

SCALE SCALE1:25

ARCHITECT:

INTERIORDESIGN CONSULTANT:

KIMsDESIGN&BUILTSDN.BHD. JOJOARCHDESIGNSDN.BHD.

LOT5-18,JALANPETALING7, SELAGOR,MALAYSIA

TEL:012-8736278

EMAIL:jojodesign2@joarchifirm.com

QUANTITYSURVEVOR:

PROJECTNAME:

REKASCAPE

F21-08,JALANMERAH8, SELAGOR,MALAYSIA. TEL:018-2389473

EMAIL:kimsconsult@kimsdesign.com

JIMMYQSCOMPANY LOT1-03,JALANPJU100, SELAGOR,MALAYSIA. TEL:017-4578934

EMAIL:jimmyqs2023@jimmycompany.com

DRAWINGTITILE:

BE-SPOKEDETAILSECTION

SCALE:

DATE:

DRAWNBY: 1:25

CHECKEDBY:

28JUNE2023

TASNIATABASSUM ZIHAN MS.FATIMAH

DRAWNINGNO:

REV.NO:

TENSIONMETALBARS
ALUMINUMPULLEY STAINLESSSTEELMETALWIRE
1600MM(L)X50MM (R)WOODENWARP BEAM 40MMTHKHARDWOOD MAPLESHUTTLES
THIS DRAWING IS COPYRIGHT DRAWING.THEAUTHORISEDUSERIS TOCHECKALLDIMMENSIONSONSITE. ONLYFIGUREDDIMENSIONSARETO BE WORKED ON. DISCREPANCIES MUSTBEREPORTED IMMEDIATELY TO IPARTNERSHIP BEFORE PROCEEDING. NO.DESCRIPTION
MS.ELIZABETH

NOTE:

GROUNDFLOOR LEVEL CEILINGLEVEL

74° 512 620 330 193 467 210 757

THIS DRAWING IS COPYRIGHT DRAWING.THEAUTHORISEDUSERIS TOCHECKALLDIMMENSIONSONSITE. ONLYFIGUREDDIMENSIONSARETO BE WORKED ON. DISCREPANCIES

MUSTBEREPORTED IMMEDIATELY TO IPARTNERSHIP BEFORE PROCEEDING.

NO.DESCRIPTION DATE

DT1 R56

CLIENT:

MS.ELIZABETH

TEL:018-1905739

EMAIL:eliza168@gmail.com

BD SCALE1:25

BE-SPOKEDETAILSECTION

ARCHITECT:

R126 R43

80MM(H)STEELRATCHETWHEELS

NYLONCORDANDTIES

STAINLESSSTEELMETALWIRE

1435MM(H)x120MM(L)x40MM(W) DARKOAKFRAME

ALUMINUMPULLEY

1270MM(H)x65MMTHK TENSIONMETALBARS

40MMTHKHARDWOODMAPLE SHUTTLES

50MMTHKx1715MM(L) TENSIONMETALBARS

1140MM(H)x120MM(L)x40MM(W) DARKOAKFRAME

1270MM(L)x250MM(W) WOODBACKBEAM

950MM(H)x120MM(L)x 40MM(W)DARKOAKFRAME

LOT5-18,JALANPETALING7, SELAGOR,MALAYSIA

TEL:012-8736278

EMAIL:jojodesign2@joarchifirm.com

INTERIORDESIGN CONSULTANT:

QUANTITYSURVEVOR:

PROJECTNAME:

REKASCAPE

F21-08,JALANMERAH8, SELAGOR,MALAYSIA. TEL:018-2389473

EMAIL:kimsconsult@kimsdesign.com

JIMMYQSCOMPANY LOT1-03,JALANPJU100, SELAGOR,MALAYSIA. TEL:017-4578934 EMAIL:jimmyqs2023@jimmycompany.com

DRAWINGTITILE:

BE-SPOKEDETAILSECTION

28JUNE2023

TASNIATABASSUM ZIHAN MS.FATIMAH

SCALE: DATE: CHECKEDBY: DRAWNBY: 1:25 REV.NO: DRAWNINGNO: 120470120 740 130 1210 1956 499 700

SCALE SEC R78
R50
WOODENWARPBEAM
1330MM(H)x120MM(L)x40MM(W) DARKOAKFRAME
KIMsDESIGN&BUILTSDN.BHD. JOJOARCHDESIGNSDN.BHD.

NOTE:

THIS DRAWING IS COPYRIGHT DRAWING.THEAUTHORISEDUSERIS TOCHECKALLDIMMENSIONSONSITE. ONLYFIGUREDDIMENSIONSARETO BE WORKED ON. DISCREPANCIES MUSTBEREPORTED IMMEDIATELY TO IPARTNERSHIP BEFORE PROCEEDING.

NO.DESCRIPTION DATE

CLIENT:

MS.ELIZABETH

TEL:018-1905739

EMAIL:eliza168@gmail.com

ARCHITECT:

ALUMINUMTAILPULLEYCLEAR ANODIZESURFACE

CARBONSTEELSPURGEAR WITHBLACKOXIDESURFACE

CARBONSTEELMAINSHAFT BLACKOXIDESURFACE

DEEPGROVEBALLBEARING STEEL

ALLOYSTEELHEXSOCKETHEADCAP SCREWWITHBLACKOXIDESURFACE

STEELFORSPRINGC-TYPE RETAININGRING

INTERIORDESIGN CONSULTANT:

JOJOARCHDESIGNSDN.BHD. LOT5-18,JALANPETALING7, SELAGOR,MALAYSIA

TEL:012-8736278

EMAIL:jojodesign2@joarchifirm.com

QUANTITYSURVEVOR:

PROJECTNAME:

DRAWINGTITILE:

BLOWUPDETAILS REKASCAPE

SCALE: DATE:

1:5

28JULY2023

KIMsDESIGN&BUILTSDN.BHD.

F21-08,JALANMERAH8, SELAGOR,MALAYSIA.

TEL:018-2389473

EMAIL:kimsconsult@kimsdesign.com

JIMMYQSCOMPANY LOT1-03,JALANPJU100, SELAGOR,MALAYSIA. TEL:017-4578934

EMAIL:jimmyqs2023@jimmycompany.com

CHECKEDBY:

MS.FATIMAH

DRAWNINGNO:

DRAWNBY:

TASNIATABASSUMZIHAN

REV.NO:

116 61 26 R5 R31 R50 R56
BE-SPOKEBLOW-UPDETAIL SCALE BD BE SCALE1:5

FL1

SCHEDULE OF FINISHES

FLOOR FINISHES

Approx 9154

Homogeneous Vinyl Blue(3118) Anti-bacterial nod fungicidal. 800 X 2400MM.

Dynaloc.sdn.bhd

FL2

Approx 1560 Wood veneer SPC flooring

Indiamart

FL5

Approx 32583

Linho Off-White Ceramic Floor Tile 12 x 24 in MATTE Finish

The Tile shop

FL6

2 rolls

Material-Polypropylene, Surface Finish MATTE, TILE DESIGN CHEQUE

CEILING FINISHES

Al Aqsa Carpets

IMAGE QUANTITY DESCRIPTION SUPPLIER
CODE

W1

W3

W2

W4

Approx 890 sqft Quick installation, light weight and flexible, and cost effective Office Pro

WALL FINISHES

Approx 2

Nippon paint beige and snow white. Nippon Spot Less: Quick drying, anti-microbial, antibacterial, & mildew resistant for long-lasting use. Good durability. Fungus resistance. Excellent gloss

Nippon paint

Fixed tempered Clear safety glass: ANSI Z97 1 Class A Grainger Industrial Supply

55 THK polycarbonate textured glass It is a polycarbonate resin that boasts top-class impact resistance among plastics Has excellent heat and cold resistance

Monotaro my

1" - 2" Fiberglass 6 PCF acoustical core + paintable facing. Resin hardened square edges. Paintable finish covers face and exposed edges.

ACOUSTICS FIRST

F2

FINISHES

W5
1" - 2" Fiberglass 6 PCF acoustical core + paintable facing Resin hardened square edges A paintable finish covers the face and exposed edges ACOUSTICS FIRST DOOR D2 Automatic sliding door Model MY-60 It has microprocessor control with an encoder Office Pro

SCHEDULE OF FURNITURE, FIXTURES & Equipment (FF&E)

LF1 Mesh chair 100% polyester, back frame/leg/ gas cylinder Steel, Epoxy/polyester powder coating Seat Polyurethane foam

LF2 Classic Oval conference table

Indian ebony beech with powder coated steel legs Table Size: L 6300 mm x D 1500 mm x H 750 mm

LF3

Office cubicle Rectangular office cubicle with size 900mm x 1100mm. Top melamine laminated chipboard in 25mm thickness. Base aluminum with wire management in white epoxy coated. Modesty panel melamine laminated chipboard in 16mm thickness.

LF4

Green mid-back fabric seat Material: mesh plus fabric. Fibre back frame with PP fix armrest connecting with back and seat. High-density foam padded seat with fabric upholstery.

LF5 Octans pendant lamp Dimensions: 24XH180cm Material glass in grey brown, bulb E27 Max 1X75W Timeless design 4

PICTURE PRODUCT NAME SPECIFICATION SUPPLIER QUANTITY PRICE UNIT
FLOOR
CODE
FIRST
IKEA 5 RM 300
1 RM
Office furniture malaysia
5700
Office pro 5 RM 450
IKEA 18 RM
550
RM 300

LED strip light 220V high voltage silicone LED strip lights rope, flexible lamp belt features heat-resistant, waterproof, corrosion, weather resistant and has prominent anti-UV ability than traditional PVC jacket.

acrylic Laser cut edges smooth and polished. Shatter resistant, stronger and safer than glass.

has super jet mode and it has J tech inverter power consumption to save energy

Made of solid wood, thick sponge and tarpaulin. Included 900 to 1,500 softballs.

Downlight Aluminum SMD
9W
epistar Lighting for homes 12 RM 5
Lighting for home N/A RM 10
Glossy
ZH furniture 3 RM 2000 LF9 Ducted airconditioner It
Sharp 2 RM 2600 LF10 Ball
Yasuit 1 RM 3500 LF11 Ball pit staircase 3 steps solid wooden staircase MG 3 RM 500 LF12 Breakout room staircase 8 steps loft simple steel wood attic
stairs
beam
ladder Attic glass 8 RM 2500 LF13 BREAKOUT ROOM STAIRCASE 3 Steps loft simple steel wood attic glass stairs custom double beam straight ladder Attic glass 3 RM 1300
LF6 Warm flush
LED downlight Power
and led chips
LF7
LF8
Pit
glass
custom double
straight

LF14

Fire Sprinkler Glass bulb fire sprinklers, which is the key part of automatic sprinkler system, can be used to not just detect fire risk but control the fire and extinguish it by automatically spraying water

LF15 Smoke detector Eaton Smoke Alarm, 5-in-1 Function, 25mA Alarm CurrentFXN922. This optical setup also helps to prevent false alarms. As it's made from ABS, the units resistant to stress and chemical damage, making it suitable for heavy-duty settings.

Open source robotics 12 RM 7
RS Malaysia 5 RM 110

ASSIGNMENT 3 REFLECTION ASSIGNMENT 3 REFLECTION

On the process of creating detailed drawings for the Working Drawings + System Integration project, I had the opportunity to integrate building services components and interior design proposals while adhering to Malaysia's Uniform Building By-Laws (UBBL). The objective was to create a safe, functional, and sustainable space that met the needs of the occupants.

Incorporating UBBL measures, I ensured the inclusion of essential features such as fire extinguishers, sprinkler systems, clearly marked exit signs, and ventilation systems. These measures were strategically placed throughout the building to enhance safety, promote air circulation, and maintain a healthy indoor environment.

Material selection played a crucial role in promoting sustainability and creating a welcoming atmosphere. Glass was chosen for its ability to maximize natural light penetration, creating a bright and airy ambiance. Wood added warmth and a touch of nature, while concrete provided durability and structural integrity. Additionally, the use of eco-friendly materials aligned with the goal of minimizing environmental impact.

Considering the specific needs of the refugee workers, a color scheme comprising red and blue was carefully chosen to evoke vibrancy, energy, and unity. This selection aimed to create an inclusive and welcoming environment that resonated with the occupants.

Throughout the assignment, effective communication was facilitated by implying architectural language to accurately describe and convey design concepts. This ensured clarity and precision in the documentation, effectively communicating spatial relationships, proportions, and visual elements within the drawings.

In conclusion, the process of creating detailed drawings for the construction project involved integrating building services components, incorporating UBBL measures, and considering sustainability, functionality, and occupant wellbeing. By adhering to safety regulations, incorporating ventilation systems, selecting eco-friendly materials, and utilizing architectural language, the design aimed to create a safe, comfortable, and sustainable space that met the needs of the occupants. This experience provided valuable insights into the importance of integrating various design elements while complying with regulatory requirements to achieve a successful architectural outcome.

Bachelor of Arts (Honours) in Interior Architecture

Detailing and Working Drawings

IDS60804

Assignment 2 : Sustainable Work Hub

Lecturer : Ms. Nur Fatimah Mohd Khairi & Ms. Sin Ai

Name : Tasnia Tabassum Zihan

Student ID : 0343085

ListofDrawings

1. 2. 3. 4.

FurnitureLayoutPlan

SectionDrawing

InternalElevationDrawing

Be-spokedetail Plan

FrontElevation Section

Blow-updetail

181Chambers Office

The project involved the reuse of a partially demolished 40-yearold house that was then expanded by 50% of its original size The existing and new building components are connected by a wide span of brickwork, which also increases the thermal mass by way of huge wall protrusions that shield glazing windows from direct solar exposure. Although the structure has a monolithic look from the street, it has huge, glass surfaces on both sides that open up to a network of pocket gardens, providing the interiors with plenty of natural light and cross ventilation. In order to preserve the highest level of comfort while maximising the building's performance, passive cooling techniques have been used as a fundamental design component.

Architects: Gibert&Tan

Area : 633 m²

Year : 2022

Lead Architect : Michael Gibert

City : Kuala Lumpur

Country : Malaysia

Thefloorisdesignedincustom-made prefabricatedpolishedconcreteplates

The brick of the external walls reinforceasenseoftradition

TASNIA TABASSUM ZIHAN | 0343085
BLACKALUMINUMFRAME BRICK

EQUATORIALPLAZA

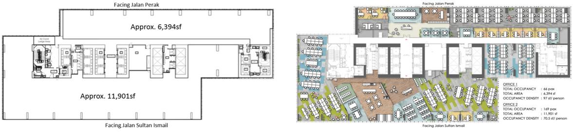
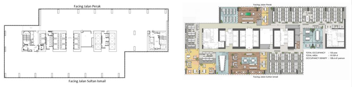
SINGLETENANTEDFLOOR

SINGLE TENANTFLOORPLAN

LOT1217,SEKSYEN,57,JLNSULTAN ISMAIL,50250KUALALUMPUR OFFICESPACE

MATERIALSCHEME

MULTIPLETENANTEDFLOOR

Occupancy=155pax

Totalarea=19,939sft/1802sqm

OccupancyDensity=128.6sf/person

MULTIPLETENANTFLOORPLAN

ThetallestskyscraperalongJalan SultanIsmailKualaLumpurhas emergedwiththecompletionofthe impressiveEquatorialPlaza.

Uniquelyconfiguredtoservebothits identitiesashotelandofficetower, easyaccessisassuredviatwobroad frontagesontoJalanSultanIsmailand JalanPerak.

Thisstrikingnewbuildingisdesigned byMalaysia’saward-winningGDP Architectsandfeaturessomeofthe latestenergy-savingtechnologywhich hasearneditaGreenBuildingIndex (“GBI”)Goldcertification

OFFICE1

Occupancy=66pax

Totalarea=6,394sft/594sqm

OccupancyDensity=97sf/person

OFFICE2

Occupancy=169pax

Totalarea=11,901sft/1106sqm

OccupancyDensity=70.5sf/person

AMENITIES

CleaningServices

Mother'sRoom

WellnessRoom

EventSpace

ShowerArea

BaristaCorner

RecreationalGames

TechServices

Tile P l y w o o d
Painted Concrete wall frosted plastic partition
TEHCIEN0343469

NOTE:

THISDRAWINGISCOPYRIGHT DRAWING.THEAUTHORISEDUSERIS TOCHECKALLDIMMENSIONSONSITE. ONLYFIGUREDDIMENSIONSARETO BEWORKEDON.DISCREPANCIES MUSTBEREPORTEDIMMEDIATELY TOIPARTNERSHIPBEFORE PROCEEDING.

NO.DESCRIPTION DATE

CLIENT: MS.ELIZABETH

TEL:018-1905739

EMAIL:eliza168@gmail.com

ARCHITECT:

INTERIORDESIGN CONSULTANT:

QUANTITYSURVEVOR:

JOJOARCHDESIGNSDN.BHD. KIMsDESIGN&BUILTSDN.BHD. JIMMYQSCOMPANY

LOT5-18,JALANPETALING7, SELAGOR,MALAYSIA

TEL:012-8736278

EMAIL:jojodesign2@joarchifirm.com

F21-08,JALANMERAH8, SELAGOR,MALAYSIA. TEL:018-2389473

EMAIL:kimsconsult@kimsdesign.com

LOT1-03,JALANPJU100, SELAGOR,MALAYSIA. TEL:017-4578934

EMAIL:jimmyqs2023@jimmycompany.com

DRAWINGTITILE:

PROJECTNAME: FURNITURELAYOUTPLAN EQUATORIALPLAZADRAWINGS

LOT1217,SEKSYEN,57, JLNSULTANISMAIL, 50250KUALALUMPUR.

SCALE: DATE:

ASSHOWN

CHECKEDBY:

MS.SINAI

DRAWNINGNO: U_DWD_GROUP5_FLP_01

15MAY2023

DRAWNBY:

TASNIATABASSUMZIHAN

REV.NO:

UP

W1 W2 W3

EXISTINGLEGEND

150MM(THK)EXISTINGCONCRETEWALL

3300MM(H)X150MM(THK)PARTITIONWALLIN ARCTICWHITEFINISH

DOORLEGEND

FIXFURNITURELEGEND

SYMBOL DESCRIPTION QUANTITY

2000MM(L)X450MM(W)X2030MM(H)FIBREWOOD, SOLIDPINEWOODCABINET 1

2030MM(H)X1800MM(L)X450MM(W) FIBREWOOD,SOLIDPINEWOODCABINET 1

2030MM(H)X9000MM(L)X450MM(W) FIBREWOOD,SOLIDPINEWOODCABINET 1

2030MM(H)X2700MM(L)X450MM(W) FIBREWOOD,SOLIDPINEWOODCABINET 1

2030MM(H)X3300MM(L)X45OMM(W) FIBREBOARD,SOLIDPINEWOODCABINET 1

1000MM(H)X4837MM(L)X1000MM(W) WHITEMARBLEQUARTZKITCHENISLANDCOATED INEPOXYVARNISH 1

720MM(H)X5350MM(L)X600MM(W)WHITE QUARTZSTONE,PUREPLYMELAMINE,PUREPLY LAMINATEWOOD 1

1000MM(H)X3300MM(L)X800MM(W)WHITE QUARTZSTONE,PUREPLYMELAMINE,PUREPLY LAMINATEWOOD,WHITECERAMICPANELS 1

70OMM(L)X500MM(W)X720MM(H)MELAMINE TABLETOP,STEEL,EPOXY/POLYESTERWHITE POWDERCOATING 4

2030MM(H)X3600MM(L)X450MM(W) FIBREWOOD,SOLIDPINEWOODCABINET 1

LOOSEFURNITURELEGEND(CHAIR)

1010MM(L)x980MM(W)x830MM(H)1-SEATERCORNERSOFAIN

WINDOWLEGEND

3200MM(H)X1000MM(L)

10MMTHICKTEMPEREDGLASSFIXEDWINDOW WITHALUMINUMWINDOWFRAMEINBLUEWHITE

1500MM(H)X1000MM(L)

TEMPEREDGLASSALUMINUMWINDOW`FRAMEIN

CLUEWHITE

1500MM(H)X700MM(L)

TEMPEREDGLASSALUMINUMWINDOWFRAMEIN BLUEWHITE

570MM(H)X800MM(L)X450MM(W)STEEL, EPOXY/POLYESTERPOWDERCOATINGINWHITE, PLYWOOD,LAMINATEDVENEERLUMBERSEAT FRAME,POLYURETHANEFOAMSEAT,POLYESTER HOLLOWFIBREBACKRESTCUSHION

LOOSEFURNITURELEGEND(CHAIR)

460MM(L)x400MM(W)x810MM(H)BLACKFRAME VINYLOFFICECHAIRC/WUPHOLSTEREDSEATAND BACK 319

500MM(L)x410-470MM(W)x1190MM(H)ERGONOMIC OFFICECHAIRC/WMESHHIGHBACKINBLACK 10 460MM(L)x400MM(W)x810MM(H)ARMCHAIRIN ORANGETREVIRAFABRIC-COVEREDPOLYURETHANE FINISHC/WPAINTEDALUMINIUM 12

450MM(L)x450MM(W)x460MM(HSTACKABLE SEATINGCUBEFOOTSTOOLWITHPULEATHER UPHOLSTERYINGREY 4

500MM(L)x500MM(W)x630MM(H)METALBARSTOOL C/WPOLYAMIDESTEELLEGINBLACK 7

NOTE: THISDRAWINGISCOPYRIGHT DRAWING.THEAUTHORISEDUSERIS TOCHECKALLDIMMENSIONSONSITE. ONLYFIGUREDDIMENSIONSARETO BEWORKEDON.DISCREPANCIES MUSTBEREPORTEDIMMEDIATELY TOIPARTNERSHIPBEFORE PROCEEDING.

NO.DESCRIPTION DATE

CLIENT:

MS.ELIZABETH

TEL:018-1905739

EMAIL:eliza168@gmail.com

ARCHITECT:

INTERIORDESIGN CONSULTANT:

QUANTITYSURVEVOR:

3240MM(L)x950MM(W)x710MM(H)5-SEATERCONTEMPORARY SOFAINTONERUDGREYPOLYESTERFABRIC

3190MM(L)x2490MM(W)x830MM(H)5-SEATERCORNERSOFAIN

PROJECTNAME: LEGEND EQUATORIALPLAZADRAWINGS

LOT1217,SEKSYEN,57, JLNSULTANISMAIL, 50250KUALALUMPUR.

JOJOARCHDESIGNSDN.BHD. KIMsDESIGN&BUILTSDN.BHD. JIMMYQSCOMPANY

LOT5-18,JALANPETALING7, SELAGOR,MALAYSIA

TEL:012-8736278

EMAIL:jojodesign2@joarchifirm.com

F21-08,JALANMERAH8, SELAGOR,MALAYSIA.

TEL:018-2389473

EMAIL:kimsconsult@kimsdesign.com

LOT1-03,JALANPJU100, SELAGOR,MALAYSIA. TEL:017-4578934

EMAIL:jimmyqs2023@jimmycompany.com

DRAWINGTITILE:

SCALE:

ASSHOWN

CHECKEDBY:

MS.SINAI

DRAWNINGNO: U_DWD_GROUP5_FLP_01

DATE:

15MAY2023

DRAWNBY:

TASNIATABASSUMZIHAN

REV.NO:

CODE DESCRIPTION QUANTITY
N/A
N/A
CODE DESCRIPTION QUANTITY 3000MM(H)X6500MM(L) TEMPEREDGLASSSLIDINGALUMINUMDOOR FRAMEINMETALLICBLACK 1 2400MM(H)X1800MM(L) TEMPEREDGLASSDOUBLESWINGALUMINUM DOORFRAMEINMETALLICBLACK 2 2100MM(H)X900MM(L) TEMPEREDGLASSSINGLESWINGALUMINUMDOOR FRAMEINMETALLICBLACK 34 2100MM(H)X750MM(L) FROSTEDFOLDINGCUBICLEDOORWITH ALUMINUMDOORFRAMEINMETALLICBLACK 2 2100MM(H)X900MM(L) FIBREBOARDBATHROOMDOORPANELWITH PLASTICEDGING 2 2100MM(H)X750MM(L) SOLIDGRADELAMINATEBATHROOMCUBICLE PANEL 4 D1 D2 D3 D4 D5 D6
DESCRIPTION QUANTITY
CODE
GUNNAREDMEDIUMGREYPOLYESTERFABRIC 3
GUNNAREDMEDIUMGREYPOLYESTERFABRIC 1
1710MM(L)x980MM(W)x830MM(H)2-SEATERCORNERSOFAIN
2
GUNNAREDMEDIUMGREYPOLYESTERFABRIC 4 LOOSEFURNITURELEGEND(RACK) 1440MM(L)X250MM(W)X700MM(H)3-TIERFREESTANDING BAMBOOSTORAGERACK 3 C6 C7 C8 C9 LOOSEFURNITURELEGEND(TABLE) CODE DESCRIPTION QUANTITY 5800MM(L)x600MM(W)x750MM(H)CO-WORKING TABLE 2 900MM(DIA)x750MM(H)ROUNDTERRAZZOTABLE 8 4000MM(L)x1500MM(W)x750MM(H)CONFERENCE TABLE 1 140MM(L)X900MM(W)X460MM(H) CONTEMPORARYWOODCOFFEETABLE 4 1800MM(L)x800MM(W)x750MM(H)WHITE STAINEDOAKVENEEROFFICETABLE 107 2900MM(L)x1100MM(W)x750MM(H)COFERENCE TABLE 8 600MM(DIA)x400MM(H)LAMINATEDCOFFEE TABLE 15 2100MM(L)X2014MM(W)X750MM(H)EXECUTIVE L-SHAPEOFFICETABLE 6 1500MM(L)x600MM(W)x750MM(H)WHITE STAINEDOAKVENEEROFFICETABLE 17 1000MM(L)x600MM(W)x750MM(H)WHITE STAINEDOAKVENEEROFFICETABLE 24 T1 T2 T3 T4 T5 T6 T7 T8 T9 T10 R1
8 F1 F2 F3 F4 F5 F6 F7 F8 F9 F10 F11
CODE DESCRIPTION QUANTITY
C1 C2 C3 C4 C5
SYMBOL DESCRIPTION QUANTITY

NOTE: THISDRAWINGISCOPYRIGHT DRAWING.THEAUTHORISEDUSERIS TOCHECKALLDIMMENSIONSONSITE. ONLYFIGUREDDIMENSIONSARETO BEWORKEDON.DISCREPANCIES MUSTBEREPORTEDIMMEDIATELY TOIPARTNERSHIPBEFORE PROCEEDING.

NO.DESCRIPTION DATE

CLIENT:

MS.ELIZABETH

TEL:018-1905739

EMAIL:eliza168@gmail.com

ARCHITECT:

INTERIORDESIGN CONSULTANT:

QUANTITYSURVEVOR:

PROJECTNAME:

DRAWINGTITILE:

SECTIONC-C EQUATORIALPLAZADRAWINGS

LOT1217,SEKSYEN,57, JLNSULTANISMAIL, 50250KUALALUMPUR.

JOJOARCHDESIGNSDN.BHD. KIMsDESIGN&BUILTSDN.BHD. JIMMYQSCOMPANY

LOT5-18,JALANPETALING7, SELAGOR,MALAYSIA

TEL:012-8736278

EMAIL:jojodesign2@joarchifirm.com

F21-08,JALANMERAH8, SELAGOR,MALAYSIA. TEL:018-2389473

EMAIL:kimsconsult@kimsdesign.com

LOT1-03,JALANPJU100, SELAGOR,MALAYSIA. TEL:017-4578934

EMAIL:jimmyqs2023@jimmycompany.com

SCALE:

ASSHOWN

CHECKEDBY:

MS.SINAI

DRAWNINGNO: U_DWD_GROUP5_FLP_01

DATE:

15MAY2023

DRAWNBY:

TASNIATABASSUMZIHAN

REV.NO:

F5 F1 T9 C1 C3 T9 C1 C1 C1 D3 D3 F1 F5 C1 C3 T9

NOTE:

THISDRAWINGISCOPYRIGHT DRAWING.THEAUTHORISEDUSERIS TOCHECKALLDIMMENSIONSONSITE. ONLYFIGUREDDIMENSIONSARETO BEWORKEDON.DISCREPANCIES MUSTBEREPORTEDIMMEDIATELY TOIPARTNERSHIPBEFORE PROCEEDING.

NO.DESCRIPTION DATE

CLIENT:

MS.ELIZABETH

TEL:018-1905739

EMAIL:eliza168@gmail.com

ARCHITECT:

INTERIORDESIGN CONSULTANT:

QUANTITYSURVEVOR:

PROJECTNAME:

EQUATORIALPLAZADRAWINGS

LOT1217,SEKSYEN,57, JLNSULTANISMAIL, 50250KUALALUMPUR.

JOJOARCHDESIGNSDN.BHD. KIMsDESIGN&BUILTSDN.BHD. JIMMYQSCOMPANY

LOT5-18,JALANPETALING7, SELAGOR,MALAYSIA

TEL:012-8736278

EMAIL:jojodesign2@joarchifirm.com

F21-08,JALANMERAH8, SELAGOR,MALAYSIA. TEL:018-2389473

EMAIL:kimsconsult@kimsdesign.com

LOT1-03,JALANPJU100, SELAGOR,MALAYSIA. TEL:017-4578934

EMAIL:jimmyqs2023@jimmycompany.com

DRAWINGTITILE:

ELEVATION01

SCALE: DATE:

ASSHOWN

CHECKEDBY:

MS.SINAI

DRAWNINGNO: U_DWD_GROUP5_FLP_01

15MAY2023

DRAWNBY:

TASNIATABASSUMZIHAN

REV.NO:

F5 F1 T9 C1 C3 T9 C1 C1 C1 D3 KELUAR D3 F1 F5 C1 C3 T9

NOTE: THISDRAWINGISCOPYRIGHT DRAWING.THEAUTHORISEDUSERIS TOCHECKALLDIMMENSIONSONSITE. ONLYFIGUREDDIMENSIONSARETO BEWORKEDON.DISCREPANCIES MUSTBEREPORTEDIMMEDIATELY TOIPARTNERSHIPBEFORE PROCEEDING.

NO.DESCRIPTION DATE

CLIENT:

MS.ELIZABETH

TEL:018-1905739

EMAIL:eliza168@gmail.com

ARCHITECT:

INTERIORDESIGN CONSULTANT:

QUANTITYSURVEVOR:

JOJOARCHDESIGNSDN.BHD. KIMsDESIGN&BUILTSDN.BHD. JIMMYQSCOMPANY

LOT5-18,JALANPETALING7, SELAGOR,MALAYSIA

TEL:012-8736278

EMAIL:jojodesign2@joarchifirm.com

F21-08,JALANMERAH8, SELAGOR,MALAYSIA.

TEL:018-2389473

EMAIL:kimsconsult@kimsdesign.com

LOT1-03,JALANPJU100, SELAGOR,MALAYSIA. TEL:017-4578934 EMAIL:jimmyqs2023@jimmycompany.com

DRAWINGTITILE:

PROJECTNAME: BE-SPOKEDETAILS EQUATORIALPLAZADRAWINGS

LOT1217,SEKSYEN,57, JLNSULTANISMAIL, 50250KUALALUMPUR.

SCALE:

ASSHOWN

CHECKEDBY:

MS.SINAI

DRAWNINGNO: U_DWD_GROUP5_FLP_01

DATE:

15MAY2023

DRAWNBY:

TASNIATABASSUMZIHAN

REV.NO:

UBBLPARTIII-SPACE,LIGHTANDVENTILATION

39.Naturallightingandventilation.

Everyroomdesigned,adaptedorusedforresidential,businessorotherpurposes

excepthospitalsandschoolsshallbeprovidedwithnaturallightingandnatural ventilationbymeansofoneormorewindowshavingatotalareaofnotlessthan

10%oftheclearfloorareaofsuchroomandshallhaveopeningscapableofallowing afreeuninterruptedpassageofairofnotlessthan5%ofsuchfloorarea.

Theexpansiveviewfromthisvantagepoint allowsforacomprehensiveassessmentofthe abundantnaturallightandthegenerous openspacethatiseasilyaccessible.

UBBLPARTVICONSTRUCTIONALREQUIREMENTS

123.Pipesandserviceducts.

Where ducts or enclosures are provided in any building to accommodate pipes, cables or conduits the dimensionsofsuchductsorenclosuresshallbeadequate for the accommodation of the pipes, cables or conduits and for crossings of branches and mainstogetherwithsupportsandfixing;and sufficiently large to permit access to cleaning eyes, stop cocks and other controls there to enable repairs,extensionsandmodificationstobemadetoeachoralloftheserviceaccommodated.

Theaccessopeningstoductsorenclosuresshallbelongenoughandsuitablyplacedtoenablelengths ofpipetobeinstalledandremoved.

Ductsorenclosuresinbuildingsareadequatelysizedforaccommodatingpipes,cables,orconduits,aswellas allowingaccessforrepairsandmodificationstotheservicesprovided.

1. 2.

UBBLPARTVIIFIREREQUIREMENTS

133.Interpretations.

"Automatic" is a device or system providing an emergency function without thenecessityofhumanintervention:

"Exit Door" A door from a storey, flat, or room which door gives access from such storey,flatorroomontoanexitroute

"fire alarm installation" an installation capable of warning persons of an outbreak of fire. Such installation must have detectors conforming to the Rules of the Fire Officers' Committee for Automatic Fire Alarm Installation, and installedinaccordancewithBSCP1019;

"fireapplianceaccesslevel"meansthelevel at which fire appliances can approach the building for purposes of fire fighting or evacuationofoccupants

1.ENTRANCE/COMMONSPACE NO.OFROOMS AREAOFONEROOM(m2) AREAOFROOM(m2) 3.MEETINGROOM1 4.MEETINGROOM2 7.CO-WORKINGSPACE1 8.CO-WORKINGSPACE2 9.CO-WORKINGSPACE3 10.OFFICEROOM1 11.OFFICEROOM2 12.OFFICEROOM3 13.OFFICEROOM4 14.OFFICEROOM5 15.OFFICEROOM6 16.DISCUSSIONROOM1 GROUNDFLOOR-MEZZANINE 2 1 219.26 2.RECEPTIONSPACE 17.DISCUSSIONROOM2 18.DISCUSSIONROOM3 19.DISCUSSIONROOM4 20.TRAININGROOM1 21.TRAININGROOM2 22.SOCIALSPACE 23.LOUNGEAREA 24.STORAGEROOM 25.BATHROOM 5.MEETINGROOM3 6.MEETINGROOM4 20 1 144.58 9 1 50.46 8 1 23.30 8 1 21.46 8 1 37.43 80 1 407.12 18 1 93.25 8 1 32.65 3 1 9.18 3 1 1.01 3 1 1.00 5 1 41.40 10 1 50.05 5 1 45.85 6 1 15.65 6 1 18.42 4 1 14.12 4 1 13.94 34 1 74.42 14 1 34.39 40 1 151.48 20 1 73.40 1 1 42.08 4 1 27.27 26.PANTRY 15 1 80.06 155 219.26 144.58 50.46 23.30 21.46 37.43 407.12 93.25 32.65 9.18 1.01 1.00 41.40 50.05 45.85 15.65 18.42 14.12 13.94 74.42 34.39 151.48 73.40 42.08 27.27 80.06 26 1723.41 1723.41
NO.OFOCCUPANTS AREAS SCHEDULEOFACCOMMODATION

DOORSCHEDULE

NOTE:

DESCRIPTION

CLIENT: MS.ELIZABETH

TEL:018-1905739

NO.DESCRIPTION

FRAME 3000MM(H)X6500MM(L) ALUMINUMDOORFRAMEINMETALLICBLACK 2400MM(H)X1800MM(L) ALUMINUMDOORFRAMEINMETALLICBLACK

1020MM(L)X32MM(W)X0.9MMTHKPIANO 6500 30002710

SERVICELIFTAREA,RECEPTION, 876 871 871 871 871 871 2400

900 2100

900 2100

750

TYPE DOUBLELEAFGLASSSLIDINGDOOR SINGLELEAFDOUBLESWINGTEMPERED GLASSDOOR SINGLELEAFSINGLESWINGTEMPERED GLASSDOOR SINGLELEAFSINGLESWINGFIBREBOARD DOOR SINGLELEAFDOUBLESWINGDOOR

2100MM(H)X900MM(L) ALUMINUMDOORFRAMEINMETALLICBLACK NODOORFRAME 2100MM(H)X750MM(L) ALUMINUMDOORFRAMEINMETALLICBLACK

HINGES ROLLERHINGE 1020MM(L)X32MM(W)X0.9MMTHKPIANO BATHROOM BATHROOM

INTERIORDESIGN CONSULTANT:

CO-WORKINGSPACE2,ALLOFFICEROOMS, ALLDISCUSSIONROOMS,TRAININGROOM2, MEETINGROOM2&3,LOADINGLIFT, CONTROLROOM,LOUNGEAREA,STORE 1800 2100

QUANTITYSURVEVOR:

PROJECTNAME: DOORSCHEDULE

DRAWINGTITILE:

EMAIL:eliza168@gmail.com

JOJOARCHDESIGNSDN.BHD. KIMsDESIGN&BUILTSDN.BHD. JIMMYQSCOMPANY

LOT5-18,JALANPETALING7, SELAGOR,MALAYSIA

TEL:012-8736278

EMAIL:jojodesign2@joarchifirm.com

F21-08,JALANMERAH8, SELAGOR,MALAYSIA. TEL:018-2389473 EMAIL:kimsconsult@kimsdesign.com

LOT1-03,JALANPJU100, SELAGOR,MALAYSIA. TEL:017-4578934 EMAIL:jimmyqs2023@jimmycompany.com

EQUATORIALPLAZADRAWINGS

LOT1217,SEKSYEN,57, JLNSULTANISMAIL, 50250KUALALUMPUR.

SCALE:

ASSHOWN

CHECKEDBY:

MS.SINAI

DRAWNINGNO: U_DWD_GROUP5_FLP_01

DATE:

15MAY2023

DRAWNBY:

TASNIATABASSUMZIHAN

REV.NO:

DOORNO. D1 D2 D3 D5 D6
HINGE
HINGE 2X100MM(H)BUTTHINGES 3X100MM(H)BUTTHINGES LOCKS,BOLTS 1LOCKPOINT 1LOCKPOINT 1LOCKPOINT 1LOCKPOINT 1LOCKPOINT STOP,PULLS STAINLESSSTEEL STAINLESSSTEEL STAINLESSSTEEL STAINLESSSTEEL STAINLESSSTEEL LOCATION TRAININGROOM1,MEETINGROOM4
DOORLEAF 40MMTHKTEMPEREDGLASSSLIDINGDOOR 40MMTHKTEMPEREDGLASSDOOR 40MMTHKTEMPEREDGLASSDOOR 35MMTHKFIBREBOARDDOORPANELWITH PLASTICEDGING 20MMTHKSOLIDGRADELAMINATEPANEL IRONMONGERY ROOM,
THISDRAWINGISCOPYRIGHT DRAWING.THEAUTHORISEDUSERIS TOCHECKALLDIMMENSIONSONSITE. ONLYFIGUREDDIMENSIONSARETO BEWORKEDON.DISCREPANCIES MUSTBEREPORTEDIMMEDIATELY TOIPARTNERSHIPBEFORE PROCEEDING.
DATE
ARCHITECT:

WINDOW ELEVATION

WINDOWSCHEDULE

2000MM(H)X1000MM(L) ALUMINUMWINDOWFRAMEINBLACK

ALUMINUMWINDOW`FRAMEINBLACK

ALUMINUMWINDOWFRAMEINBLUEWHITE 1500MM(H)X1000MM(L) ALUMINUMWINDOW`FRAMEINBLUEWHITE

NOTE:

THISDRAWINGISCOPYRIGHT DRAWING.THEAUTHORISEDUSERIS TOCHECKALLDIMMENSIONSONSITE. ONLYFIGUREDDIMENSIONSARETO BEWORKEDON.DISCREPANCIES MUSTBEREPORTEDIMMEDIATELY TOIPARTNERSHIPBEFORE PROCEEDING.

NO.DESCRIPTION DATE

CO-WORKING SPACE2

TRAININGROOM1 CO-WORKINGSPACE1

OFFICEROOM4

OFFICEROOM5

CLIENT: MS.ELIZABETH

TEL:018-1905739

EMAIL:eliza168@gmail.com

ARCHITECT:

INTERIORDESIGN CONSULTANT:

OFFICEROOM1

OFFICEROOM2

DISCUSSIONROOM1

DISCUSSIONROOM2

TRAININGROOM2

DISCUSSIONROOM3

OFFICEROOM3

DISCUSSIONROOM4

QUANTITYSURVEVOR:

JOJOARCHDESIGNSDN.BHD. KIMsDESIGN&BUILTSDN.BHD. JIMMYQSCOMPANY

LOT5-18,JALANPETALING7, SELAGOR,MALAYSIA

TEL:012-8736278

EMAIL:jojodesign2@joarchifirm.com

F21-08,JALANMERAH8, SELAGOR,MALAYSIA. TEL:018-2389473

EMAIL:kimsconsult@kimsdesign.com

LOT1-03,JALANPJU100, SELAGOR,MALAYSIA. TEL:017-4578934

EMAIL:jimmyqs2023@jimmycompany.com

DRAWINGTITILE:

PROJECTNAME: WINDOWSCHEDULE EQUATORIALPLAZADRAWINGS

LOT1217,SEKSYEN,57, JLNSULTANISMAIL, 50250KUALALUMPUR.

SCALE:

ASSHOWN

CHECKEDBY:

MS.SINAI

DRAWNINGNO:

U_DWD_GROUP5_FLP_01

DATE:

15MAY2023

DRAWNBY:

TASNIATABASSUMZIHAN

REV.NO:

WINDOW DESCRIPTION IRONMONGERY LOCATION TYPE FRAME DOORLEAF HINGES LOCKS BOLTS STOP PULLS W1 W2 W3 W4
FIXEDWINDOW
DABBLETEMPEREDGLASS DABBLETEMPEREDGLASS DABBLETEMPEREDGLASS
FIXEDWINDOW FIXEDWINDOW FIXEDWINDOW
CEILINGLEVEL FLOORLEVEL REEFERTOSUPPLIER REEFERTOSUPPLIER REEFERTOSUPPLIER REEFERTOSUPPLIER REEFERTOSUPPLIER REEFERTOSUPPLIER REEFERTOSUPPLIER REEFERTOSUPPLIER REEFERTOSUPPLIER REEFERTOSUPPLIER REEFERTOSUPPLIER REEFERTOSUPPLIER LOUNGEAREA MEETINGROOM4 MEETINGROOM1 OFFICEROOM4 CO-WORKINGSPACE2 LOUNGEAREA SOCIALSPACE OFFICEROOM5 OFFICEROOM6 MEETINGROOM3 2000 3000 50 50 50 50 50 50 50 50 2000 2000 2000 3000 1600 1600
DABBLETEMPEREDGLASS
1500MM(H)X1000MM(L)
2000MM(H)X1000MM(L)

C1

SCHEDULEOFFIXTURES,FITTINGANDEQUIPMENT(FF&E)

BLACKFRAMEVINYLOFFICECHAIRC/WUPHOLSTERED SEATANDBACK 460MM(L)x400MM(W)x810MM(H) IKEA ALLAREA

C2

ERGONOMICOFFICECHAIRC/WMESHHIGHBACKIN BLACK 500MM(L)x410-470MM(W)x1190MM(H) OFFICEPRO ALLOFFICEROOMS

C3

ARMCHAIRINORANGETREVIRAFABRIC-COVERED POLYURETHANEFINISHC/WPAINTEDALUMINIUM 460MM(L)x400MM(W)x810MM(H) SPACE SOCIALSPACE

C4

STACKABLESEATINGCUBEFOOTSTOOLWITHPU LEATHERUPHOLSTERYINGREY 450MM(L)x450MM(W)x460MM(H) IKEA PANTRY,OFFICEROOM4

C5

METALBARSTOOLC/WPOLYAMIDESTEELLEGINBLACK 500MM(L)x500MM(W)x630MM(H) IKEA SOCIALSPACE

C6

1-SEATERCORNERSOFAINGUNNAREDMEDIUMGREY POLYESTERFABRIC 1010MM(L)x980MM(W)x830MM(H) IKEA OFFICEROOM4,OFFICEROOM5

C7

2-SEATERCORNERSOFAINGUNNAREDMEDIUMGREY POLYESTERFABRIC 1710MM(L)x980MM(W)x830MM(H) IKEA OFFICEROOM4

C8

5-SEATERCONTEMPORARYSOFAINTONERUDGREY POLYESTERFABRIC 3240MM(L)x950MM(W)x710MM(H) IKEA SOCIALSPACE,LOUNGEAREA

C9

5-SEATERCORNERSOFAINGUNNAREDMEDIUMGREY POLYESTERFABRIC 3190MM(L)x2490MM(W)x830MM(H) IKEA OFFICEROOM5,OFFICEROOM6

R1

3-TIERFREESTANDINGBAMBOOSTORAGERACK 1440MM(L)x250MM(W)x700MM(H) WALMART SOCIALSPACE,LOUNGEAREA

DIMENSION SUPPLIER LOCATION
CODE VISUAL DESCRIPTION
LOOSEFURNITURE

SCHEDULEOFFIXTURES,FITTINGANDEQUIPMENT(FF&E)

25MMTHKPLYWOODSHAREDCO-WORKINGTABLETOP C/WWOODENBASE

T6

25MMTHKMELAMINELAMINATEDCHIPBOARD CONFERENCETABLETOPC/WALUMINIUMBASE

SOLIDHARDOODCOFFEETABLETOPC/WSTEELLEGS

T7

WHITESTAINEDOAKVENEERTABLETOPC/WSTEELLEG INEPOXYPOWDERCOATING

IKEA

ROOM4,OFFICEROOM5,OFFICE ROOM6

T8

WHITESTAINEDOAKVENEERTABLETOPC/WSTEELLEG INEPOXYPOWDERCOATING 2900MM(L)x1100MM(W)x750MM(H) OFFICEPRO

SOCIALSPACE,LOUNGEAREA

T9

25MMTHKLAMINATEDCOFFEETABLETOPC/WSTEEL LEGS 600MM(DIA)x400MM(H) RIGG

ALLCO-WORKINGSPACE,MEETING ROOM1,DISCUSSIONROOM3, DISCUSSIONROOM4

CO-WORKINGSPACE1,PANTRY, MEETINGROOM2-4,DISCUSSION ROOM1-2,SOCIALSPACE

PANTRY,OFFICEROOM4,OFFICE ROOM5,OFFICEROOM6, CO-WORKINGSPACE1

25MMTHKMELAMINELAMINATEDCHIPBOARDOFFICE TABLETOPC/WALUMINIUMBASEINWHITEEPOXY COATED 2100MM(L)x2014MM(W)x750MM(H) OFFICEPRO ALLOFFICEROOMS

T10

WHITESTAINEDOAKVENEERTABLETOPC/WSTEELLEG INEPOXYPOWDERCOATING 1500MM(L)x600MM(W)x750MM(H) IKEA TRAININGROOM1

WHITESTAINEDOAKVENEERTABLETOPC/WSTEELLEG INWHITEEPOXYPOWDERCOATING

1000MM(L)x600MM(W)x750MM(H) IKEA SOCIALSPACE

CODE VISUAL DESCRIPTION DIMENSION SUPPLIER LOCATION LOOSEFURNITURE T1
5800MM(L)x600MM(W)x750MM(H) RIGG PANTRY,LOUNGEAREA T2
900MM(DIA)x750MM(H)
PANTRY,SOCIALSPACE,OFFICE
T3
WHITETERRAZZOROUNDTABLEC/WSTEELLEGS
1stDibs
4000MM(L)x1500MM(W)x750MM(H) OFFICEPRO TRAININGROOM2 T4
1400MM(L)x900MM(W)x460MM(H) ECOFURNITURE
OFFICEROOM5,OFFICEROOM6,
T5
1800MM(L)x800MM(W)x750MM(H)

SCHEDULEOFFIXTURES,FITTINGANDEQUIPMENT(FF&E)

LAMPVINTAGEFARMHOUSEPENDANTLIGHTFIXTURE WITHORANGECOATINGMETALSHADE

BAMBOOBASKETSHADERATTANHANGINGPENDANT LIGHT

CODE VISUAL DESCRIPTION DIMENSION SUPPLIER LOCATION LIGHTING L1
15MMTHK FARWISE SOCIALSPACE L2 LEDRECESSEDCEILINGLIGHT Ø8CM PHILIPS SOCIALSPACE,PANTRY L3 CEILINGSPOTLIGHT(WHITE) Ø9,6CM,2.5CM(H) LUCIDETUBE WHOLEFLOOR L4 BATTENPENDANTLIGHT(MDL1007) 1200MM(L)x35MM(W)x66MM(H) PAWALITEMARKETING SOCIALSPACEPANTRY L5
73MM(L)x7MM(W)x12MM(H) LUXTRONSYSTEM SOCIALSPACE,COMMON
L6
CUSTOMIZEDSILICON-LEDNEONSTRIPSRGBLIGHTTO DESIGNERFORM
LEDCEILINGTRACKLIGHT(WHITE)
SPACE,LOUNGESPACE
35MM(DIA)X1200MM(L)ADJ. AMAZON SOCIALSPACE L7
35MM(L)x35MM(W)x35MM(H) YIGOLIGHTNING SOCIALSPACE AC1 CENTRALRIGIDDUCTEDAIRCONDITIONING N/A OFFICEPRO WHOLEFLOOR S1
26.6MM(DEPTH)x87MM(W)x87MM(H)SCHNEIDERELECTRIC WHOLEFLOOR
GANGSWITCHEDSOCKETMATTBLACK

WHITE1001)

SCHEDULEOFFINISHES

WALLPANELWITHCOLOURCOATING RECEPTION(GUSTAVGREENBGG1620P,GREENDRAFT BGG1628P,GREENDRAFTBGG1628P,POOLSIDEBGG 1602T,KNOCKOUTREDR1281ACHEETAHSPOTSYO1197 A,ICEDMELONYO1202P,)

CODE VISUAL DESCRIPTION DIMENSION SUPPLIER LOCATION FLOORFINISHES FL1 LAMINATEDWOODFLOORPANEL 1200MMx12MM FLOORDEPOT WHOLEFLOOR FL2 BLACKSQUAREFLOORTILES 600MMx600MM NIROGRANITE SOCIALSPACEPANTRY FL3 WHITESQUAREFLOORTILES 600MMx600MM NIROGRANITE SOCIALSPACEPANTRY FL4 BLACKSQUAREFLOORTILES 300MMx300MM NIROGRANITE SOCIALSPACE(PANTRYSTORAGE) M1 WHITEMARBLEKITCHENISLANDCOATEDWITHEXPOXY
1000MM(W)x4837MM(L) SUNSHINEMARBLE SOCIALSPACE WALLFINISHES WF1 CONCRETEWALLWITHWHITEPAINTFINISHES(BRILLIANT
N/A NIPPONPAINT WHOLEFLOOR WF2 SELECTEDFLUTEDPANELPAINTEDINWHITE N/A MEILINHUI "SOCIALSPACE,SOCIALSPACE COLUMN,ENTRANCE" WF3 `WALLWITHLAMINATEDAGEDASH TEXTUREFINISHES N/A FORMICA SOCIALSPACE(PANTRYSTORAGE) WF4
N/A NIPPONPAINT RECEPTION
VARNISH

CODE VISUAL

SCHEDULEOFFINISHES

WF5

WALLPANELWITHCOLOURCOATING SELFROOM (ORANGEBEDDERYO1198D)

WALLPANELWITHCOLOURCOATING

WF6

(ANGELIQUER1290T)

CEILINGFINISHES CF1 CONCRETESLABWITHWHITEPAINTFINISHES(BRILLIANT WHITE1001)

DESCRIPTION DIMENSION SUPPLIER LOCATION FLOORFINISHES
N/A NIPPONPAINT
SELFROOM
N/A NIPPONPAINT
WF7 CERAMICWHITEWALLTILES 40MMx40MM TILEZZ SOCIALSPACEPANTRY
SELFROOM
SELFROOM
N/A NIPPONPAINT WHOLEFLOOR

INDIVIDUALREFLECTION

TheEquatorialPlazaofficespaceprecedentstudyprovidesavaluableexampleofhowdesign,technicalelements,materialsapplication,and sustainabilitycanbesuccessfullyintegrated.Thisprojecthasgivenmeadeeperunderstandingandinspiration,leadingmetoreflectonits variousaspects.

Intermsofdesign,theEquatorialPlazaofficespaceachievesaharmoniousbalancebetweenaestheticsandfunctionality.Thelayout encouragescollaborationandproductivitythroughfeatureslikeopenfloorplans,amplenaturallight,andtheinclusionofgreenareas.The flexibilityoftheworkspacedesignacknowledgesthechangingneedsofmodernworkplaces,promotingadaptability.

Fromatechnicalstandpoint,theEquatorialPlazaofficespacedemonstratesexcellence.Utilizingadvancedtechnology,suchassmart buildingmanagementsystems,energy-efficientlighting,andcutting-edgecommunicationinfrastructure,enhancesoperationalefficiency andresourcemanagement.Thesetechnicalinnovationsnotonlyimproveday-to-dayofficeoperationsbutalsocontributetominimizing environmentalimpact.

ThematerialschosenfortheEquatorialPlazaofficespacedeserverecognition.Sustainableandlocallysourcedmaterialslikereclaimed wood,recycledglass,andlowVOCpaintsareutilized,showcasingacommitmenttoenvironmentalresponsibility.Additionally,the incorporationofgreenwallsandnaturalfinishescreatesabiophilicdesign,fosteringaconnectionwithnatureandpromotingoccupantwellbeingandproductivity.

ThesustainabilityapproachimplementedintheEquatorialPlazaofficespaceiscommendable.Throughtheintegrationofenergy-efficient systemssuchassolarpanelsandrainwaterharvesting,thebuildingreducesrelianceonnon-renewableresourcesandminimizesitscarbon footprint.Theinclusionofgreenspacesandthepromotionofalternativetransportationoptionsreflectacomprehensivecommitmentto sustainability,consideringboththebuildinganditssurroundingenvironment.

Insummary,theEquatorialPlazaofficespaceprecedentstudyservesasacomprehensiveexampleofseamlesslyintegratingdesign,technical elements,materialsapplication,andsustainability.Thisprojectinspiresmetoadoptasimilarmindsetinfuturedesignendeavors, prioritizingfunctionality,aesthetics,andenvironmentalresponsibility.Byembracingtheseprinciples,wecancreatespacesthatpromote well-being,efficiency,andsustainabilityinanever-changingworld.

Bachelor of Arts (Honours) in Interior Architecture

Detailing and Working Drawings IDS60804

Assignment 1 : Work-From-Home + Doors &/ Windows

Lecturer : Ms. Nur Fatimah Mohd Khairi & Ms. Sin Ai

Name : Tasnia Tabassum Zihan

Student ID : 0343085

FLP BEDROOMFURNITURELAYOUTPLAN A SCALE1:25

NOTE:

THIS DRAWING IS COPYRIGHT DRAWING.THEAUTHORISEDUSERIS TOCHECKALLDIMMENSIONSONSITE. ONLYFIGUREDDIMENSIONSARETO BE WORKED ON. DISCREPANCIES MUSTBEREPORTED IMMEDIATELY TO IPARTNERSHIP BEFORE PROCEEDING.

NO.DESCRIPTION DATE

LEGEND

SYMBOL DESCRIPTION QUANTI TY 1396MM(L)X500MM(W)X 1800MM(H)FIBERBOARD PARTICLEBOARDWITH

CLIENT: ARCHITECT: INTERIORDESIGN CONSULTANT: QUANTITYSURVEVOR:

MD.KHORSHED ALOM Z-STUDIO ZIHANCONSULTANCY

PROJECTNAME:

DRAWINGTITILE:

JOHORACONSTRUCTION INTERIOROFABEDROOM IND'LATOURCONDOMINIUM, SUNWAY. BEDROOMFURNITURELAYOUTPLAN

SCALE:

1:25

CHECKEDBY:

MS.SINAI

DRAWNINGNO:

DATE:17APRIL2023

DRAWNBY: -

TASNIATABASSUM ZIHAN

REV.NO:

DWD_AT_SF_01
3100 2350 476 476 397 240 1150 FF2 FF2 FF1 F1
HONEYCOMBPAPERFILINGIN WHITEACRYLICMATTEFINISH 1 1560MM(L)X2180MM(W)X 980MM(H)UPHOLSTERYBED FRAMEWITHPOLYURETHANE FOAMINBLACKNON-WOVEN POLYESTER 1 476MM(L)X400MM(W)X520MM (H)ASHGREYWOODSIDETABLE 2
1 800MM(L)X35MM(W)X2100MM
SWINGDOOR 1
N/A
N/A F9 FF1 FF2 F1 D1 W1 FL1 F9
500MM(L)X900MM(W)X300MM (H)WHITESTAINEDOAKWOOD BUILT-INSTUDYDESKIN ACRYLICLACQUERFINISH
(H)DARKBROWNPVCWOOD
1000MM(H)X180MM(W) LAMINATED TIMBERPALEOAKWOOD FLOORING
120MM(THK)MASONARYBRICK WALL WITHWHITEPAINTINMATTE FINISH

BEDROOM

CODE:W1

NAME:R/CWALLWITHWHITEBRICKPBR TEXTUREFOAM,DUTCHLADYBLUEAND

WHITE15701PAINT

FINISH:MATTEFINISH

SIZE:120MM(THK) BRAND:NIPPONPAINTMALAYSIASDN.BHD.

SCHEDULEOFFINISHES

CODE:F0

NAME:LAMINATEDTIMBERPALEOAKWOOD FLOORING

SIZE:1000MM(H)X180MM(W) FINISH:MATTEFINISH BRAND:DYNALOC

CODE:C1

NAME:PLASTERCEILINGCOATEDWITH BRILLIANTWHITENIPPONPAINT

SIZE:3MM(THK) BRAND:NIPPONPAINTMALAYSIASDN.BHD.

CODE:D2

NAME:PVCWOODSWINGDOORINDARK BROWN

SIZE:800M(L)X35MM(W)X2100MM(H) BRAND:LINKHARDWARETRADINGSDNBHD

NOTE:

THIS DRAWING IS COPYRIGHT DRAWING.THEAUTHORISEDUSERIS TOCHECKALLDIMMENSIONSONSITE.

ONLYFIGUREDDIMENSIONSARETO BE WORKED ON. DISCREPANCIES MUSTBEREPORTED IMMEDIATELY TO IPARTNERSHIP BEFORE PROCEEDING.

NO.DESCRIPTION DATE

CLIENT: ARCHITECT: INTERIORDESIGN CONSULTANT:

MD.KHORSHED ALOM Z-STUDIO ZIHANCONSULTANCY

QUANTITYSURVEVOR:

JOHORACONSTRUCTION

PROJECTNAME:

INTERIOROFABEDROOM IND'LATOURCONDOMINIUM, SUNWAY.

DRAWINGTITILE:

BEDROOMFURNITURELAYOUTPLAN

SCALE:

1:25

CHECKEDBY:

DATE:17APRIL2023

DRAWNBY:

-

MS.SINAI

DRAWNINGNO:

TASNIATABASSUM ZIHAN DWD_AT_SF_01

REV.NO:

WALL FLOOR CEILING DOOR
AREA

NOTE:

TIMBERDOORFRAME[45Wx150L] OUTSIDE

TIMBERJAM[60Lx100W]

WOODENDOOR45MMTHICKNESS

DARKOAKPLYWOODHDFBOARD6MMTHICKNESS

SILVERALUMINUMDOORKNOBCOVER

PLASTERWALL10MMTHICK INSIDE

ALUMINUMDOORKNOB[70Wx70H]

ALUMINUMDOORLOCKBUTTON15MM

THIS DRAWING IS COPYRIGHT DRAWING.THEAUTHORISEDUSERIS TOCHECKALLDIMMENSIONSONSITE. ONLYFIGUREDDIMENSIONSARETO BE WORKED ON. DISCREPANCIES MUSTBEREPORTED IMMEDIATELY TO IPARTNERSHIP BEFORE PROCEEDING.

NO.DESCRIPTION DATE

CLIENT: ARCHITECT: INTERIORDESIGN CONSULTANT:

MD.KHORSHED ALOM

Z-STUDIO ZIHANCONSULTANCY

QUANTITYSURVEVOR:

JOHORACONSTRUCTION

PROJECTNAME:

DRAWINGTITILE:

INTERIOROFABEDROOM IND'LATOURCONDOMINIUM, SUNWAY. DetailedOpeningPlan

SCALE:

1:25

CHECKEDBY:

MS.SINAI

DRAWNINGNO:

DWD_AT_SF_01

-

DATE:17APRIL2023

DRAWNBY:

TASNIATABASSUM

ZIHAN

REV.NO:

DETAILEDPLANOFWOODENDOOR PL
DETAILNO.1 DETAILNO.2 600 3045 4530 70 90
WDP
SCALE1:25
CONCRETEWALL100MMTHICKNESS

BLOW-UPDETAILNO.1LOCK

SCALE1:100

NOTE:

THIS DRAWING IS COPYRIGHT DRAWING.THEAUTHORISEDUSERIS TOCHECKALLDIMMENSIONSONSITE. ONLYFIGUREDDIMENSIONSARETO BE WORKED ON. DISCREPANCIES MUSTBEREPORTED IMMEDIATELY TO IPARTNERSHIP BEFORE PROCEEDING.

NO.DESCRIPTION DATE

DT1 BLOW-UPDETAILNO.1

PL SCALE1:25

CYLINDRICALMORTISEDOORLOCK

CLIENT: ARCHITECT: INTERIORDESIGN CONSULTANT:

MD.KHORSHED ALOM Z-STUDIO ZIHANCONSULTANCY

PL SCALE1:25

QUANTITYSURVEVOR:

PROJECTNAME:

DRAWINGTITILE:

JOHORACONSTRUCTION INTERIOROFABEDROOM IND'LATOURCONDOMINIUM, SUNWAY. BLOW-UPDETAIL

SCALE:

1:25

DATE:17APRIL2023

CHECKEDBY: DRAWNBY: -

MS.SINAI

DRAWNINGNO:

DWD_AT_SF_01

TASNIATABASSUM

ZIHAN

REV.NO:

CONCEALEDHINGE
SCREW
DT2 BLOW-UPDETAILNO.2

300MMTHICKCONCRETEWALL

900 900

1820

BWS BUILT-INWORKINGSPACEPLAN PL SCALE1:50

F1PLANOFFIXEDFURNITURE

PLSCALE:1:25

3FLOATINGASHWOODVENEER SHELVES[600MMx1820MM]

NOTE: THIS DRAWING IS COPYRIGHT DRAWING.THEAUTHORISEDUSERIS TOCHECKALLDIMMENSIONSONSITE. ONLYFIGUREDDIMENSIONSARETO BE WORKED ON. DISCREPANCIES MUSTBEREPORTED IMMEDIATELY TO IPARTNERSHIP BEFORE PROCEEDING.

NO.DESCRIPTION DATE

BUILT-INASHWOODVENEER DESK[1000MMx1820MM]

BUILT-INDRAWERS [900MMx800MM]

F1

SECTIONOFFIXEDFURNITURE

SECSCALE:1:25

CLIENT: ARCHITECT: INTERIORDESIGN CONSULTANT: QUANTITYSURVEVOR:

MD.KHORSHED ALOM Z-STUDIO ZIHANCONSULTANCY

F1ELEVATIONOFFIXEDFURNITURE

ELESCALE:1:25

PROJECTNAME:

DRAWINGTITILE:

JOHORACONSTRUCTION

INTERIOROFABEDROOM IND'LATOURCONDOMINIUM, SUNWAY. BUILT-INFURNITURE

SCALE:

1:25

CHECKEDBY:

MS.SINAI

DRAWNINGNO:

DATE:17APRIL2023

DRAWNBY:

TASNIATABASSUM

-

REV.NO:
ZIHAN DWD_AT_SF_01
300 600 400
1320 620 600 900 300 1200
1820
900 20 580 20 600 20 1300 20 340

NOTE:

THIS DRAWING IS COPYRIGHT DRAWING.THEAUTHORISEDUSERIS TOCHECKALLDIMMENSIONSONSITE. ONLYFIGUREDDIMENSIONSARETO BE WORKED ON. DISCREPANCIES MUSTBEREPORTED IMMEDIATELY TO IPARTNERSHIP BEFORE PROCEEDING.

NO.DESCRIPTION DATE

CLIENT: ARCHITECT: INTERIORDESIGN CONSULTANT: QUANTITYSURVEVOR:

MD.KHORSHED ALOM Z-STUDIO ZIHANCONSULTANCY

JOHORACONSTRUCTION

PROJECTNAME:

DRAWINGTITILE:

INTERIOROFABEDROOM IND'LATOURCONDOMINIUM, SUNWAY. DOORSCHEDULE

SCALE:

1:25

CHECKEDBY:

MS.SINAI

DRAWNINGNO:

DWD_AT_SF_01

DATE:17APRIL2023

DRAWNBY: -

TASNIATABASSUM ZIHAN

REV.NO:

2050 800 CEILINGLEVEL FLOORLEVEL 1000

NOTE:

THIS DRAWING IS COPYRIGHT DRAWING.THEAUTHORISEDUSERIS TOCHECKALLDIMMENSIONSONSITE. ONLYFIGUREDDIMENSIONSARETO BE WORKED ON. DISCREPANCIES MUSTBEREPORTED IMMEDIATELY TO IPARTNERSHIP BEFORE PROCEEDING.

NO.DESCRIPTION DATE

700

CEILINGLEVEL

CLIENT: ARCHITECT: INTERIORDESIGN CONSULTANT:

MD.KHORSHED ALOM Z-STUDIO ZIHANCONSULTANCY

FLOORLEVEL

QUANTITYSURVEVOR:

JOHORACONSTRUCTION

PROJECTNAME:

INTERIOROFABEDROOM IND'LATOURCONDOMINIUM, SUNWAY.

DRAWINGTITILE:

DOORSCHEDULE

SCALE:

1:25

CHECKEDBY:

MS.SINAI

DRAWNINGNO:

DWD_AT_SF_01

DATE:17APRIL2023

DRAWNBY: -

TASNIATABASSUM ZIHAN

REV.NO:

2050 1000

Turn static files into dynamic content formats.

Create a flipbook
Issuu converts static files into: digital portfolios, online yearbooks, online catalogs, digital photo albums and more. Sign up and create your flipbook.