

ARCHITECTURE DESIGN PORTFOLIO
TASFIA TASNIM
2023-2024
Contents
01
Thesis Project
The Revival Nexus: A Cultural, Social & Economic Convergence 04 - 15
02
Design Resolution Project
Transition: Coastal Restaurant Design 16 - 25
03
Heritage Conservation Project
Reclaiming Roots: Rethinking Osborne House 26 - 35
04
BIM Project
Residential Design project 36 - 43
05
Parametric Design Project Angina: A Community Hub 44 - 49

Introduction
The Revival Nexus is a narrative of transformation — a bold reawakening of the historic Denny Lascelles Building in the heart of Geelong. Once an industrial relic, the structure now emerges as a layered cultural landscape where memory and modernity intersect. Embracing adaptive reuse, the project preserves the enduring brick façade while threading through it a luminous 9-storey glass tower — a vertical gesture of transparency, aspiration, and renewal.
Markets buzz with trade, food courts pulse with international flavours, and rooftop gardens breathe life into an ecosystem rooted in sustainability. Urban farming and Aboriginal planting traditions converge, feeding the food court below and symbolising a closed-loop relationship between land and community. Ramps spiral and stairs cascade through interconnected spaces that shift between interior and exterior — a choreography of interaction and spatial delight.
The Revival Nexus transforms the Denny Lascelles Building into a civic landmark — a vibrant microcosm of sustainable growth, economic resilience, and cultural unity, rooted in heritage and designed for a shared future.
Site Analysis

Accessibility Mapping


Figure Ground Mapping Proximity Mapping
The Denny Lascelles Building benefits from excellent connectivity and a strategic location near key institutions and economic zones. Analysis highlights a shortage of open and cultural spaces, potential for vertical growth, and a rising, diverse population — making it ideal for inclusive, mixed-use urban renewal.



Activity Mapping: 6am-9am Activity Mapping: 12pm-5pm Activity Mapping: 8pm-12pm
Activity mapping reveals peak usage during commutes and lunch hours, highlighting opportunities to introduce functions that enhance site activation and public space vibrancy throughout the day.


Accessibility Mapping Building Fabric Analysis
The site presents strong pedestrian and vehicular connectivity; however, segmentation by internal roadways challenges spatial cohesion, necessitating strategic circulation planning. A diverse material palette—ranging from heritage brickwork to contemporary glazing—offers rich opportunities for contextual integration in future interventions.
Design Development

Unified Ground Plane
The removal of the internal roadway creates a continuous ground plane, rerouting traffic to enhance pedestrian connectivity and spatial integration between the Denny Lascelles Building and bus port site.
Horizontality Meets Verticality
The project integrates horizontal public spaces with vertical interventions, connecting ground-level markets and gardens to the rising glass structure, bridging indoor and outdoor experiences.
Interconnected Levels
An integrated system of ramps, lifts, and stairs ensures seamless connectivity across floors, enhancing accessibility and flow between market spaces, student hubs, and cultural venues.

Design Considerations
1. Daylight Integration
The design maximizes daylight penetration into the new glass structure while creating an interplay between the existing brick and the modern addition, fostering a sustainable lighting solution that enhances spatial clarity and atmosphere.
2. Programmatic Zoning
Depicting the spatial organization, this diagram demonstrates how each floor is allocated distinct functions, seamlessly layered for optimized usage.
3. Vertical Circulation Strategy
It emphasizes accessibility and fluidity in movement, promoting visual and spatial connectivity across all levels

User Group
Aboriginal Garden
Celebrates Indigenous heritage and sustainability through shared cultural and ecological practices.
Market
A vibrant hub supporting local producers and community engagement with regional, sustainable goods.
Food Court
Drives cultural exchange and local economy via international cuisines made from sustainable, local produce.
Student Hub
Encourages collaboration and inclusivity, connecting local and international students through shared learning spaces.


Ground



View from Entry
View from First Floor



View from Foodcourt
View from Roof-top Restaurant
Sectional Exploded Isometric View




Outdoor Area View
Open Air-Amphi View
Restaurant View
Transition
Coastal Restaurant Design
Type: Design resolution & Working Drawing
Studio: Architecture design & Resolution
Location: Chattogram, Bangladesh.
Year: 2023

Introduction
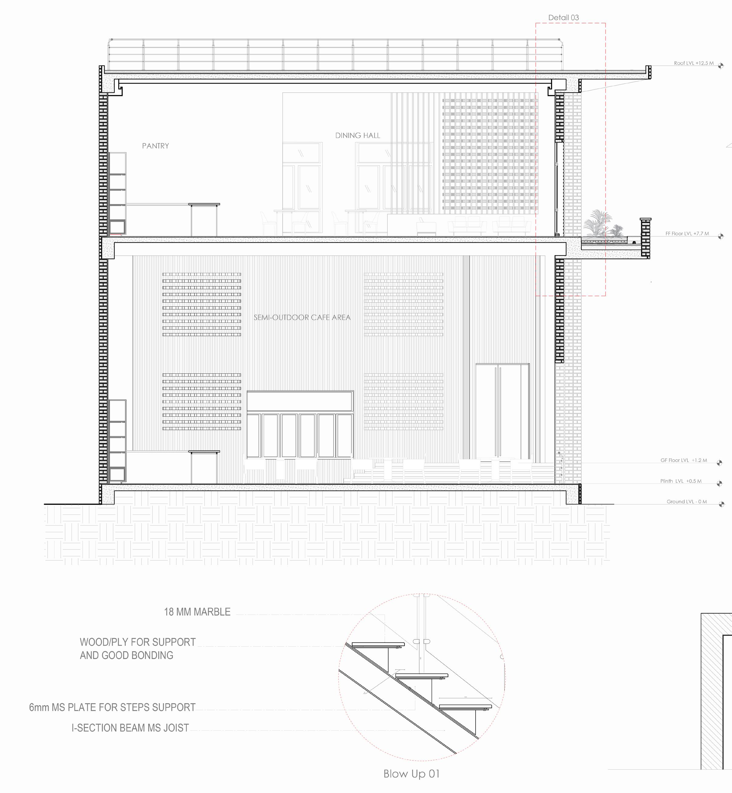
In this project, I designed a restaurant situated near the sea in Bangladesh, celebrating the coastal landscape through architecture. The primary objective was to develop a fully resolved design and produce a complete set of detailed working drawings suitable for local council submission in Australia. This included wall sections, footings, roofing systems, window schedules, detailed layouts, and precise material specifications, all in accordance with Australian Standards and the National Construction Code (NCC).
Throughout the project, I worked through the entire documentation process — from schematic design to technical detailing. I selected appropriate materials for durability in a marine environment, resolved structural systems, and produced detailed drawings that demonstrated compliance with local building codes and site-specific conditions.
This project strengthened my ability to transition from concept to construction-ready documentation. I deepened my understanding of Australian regulatory requirements, material behaviour in coastal environments, and the level of detail required for professional submissions. It also honed my technical drawing skills and improved my ability to resolve architectural and structural integration within a real-world context.

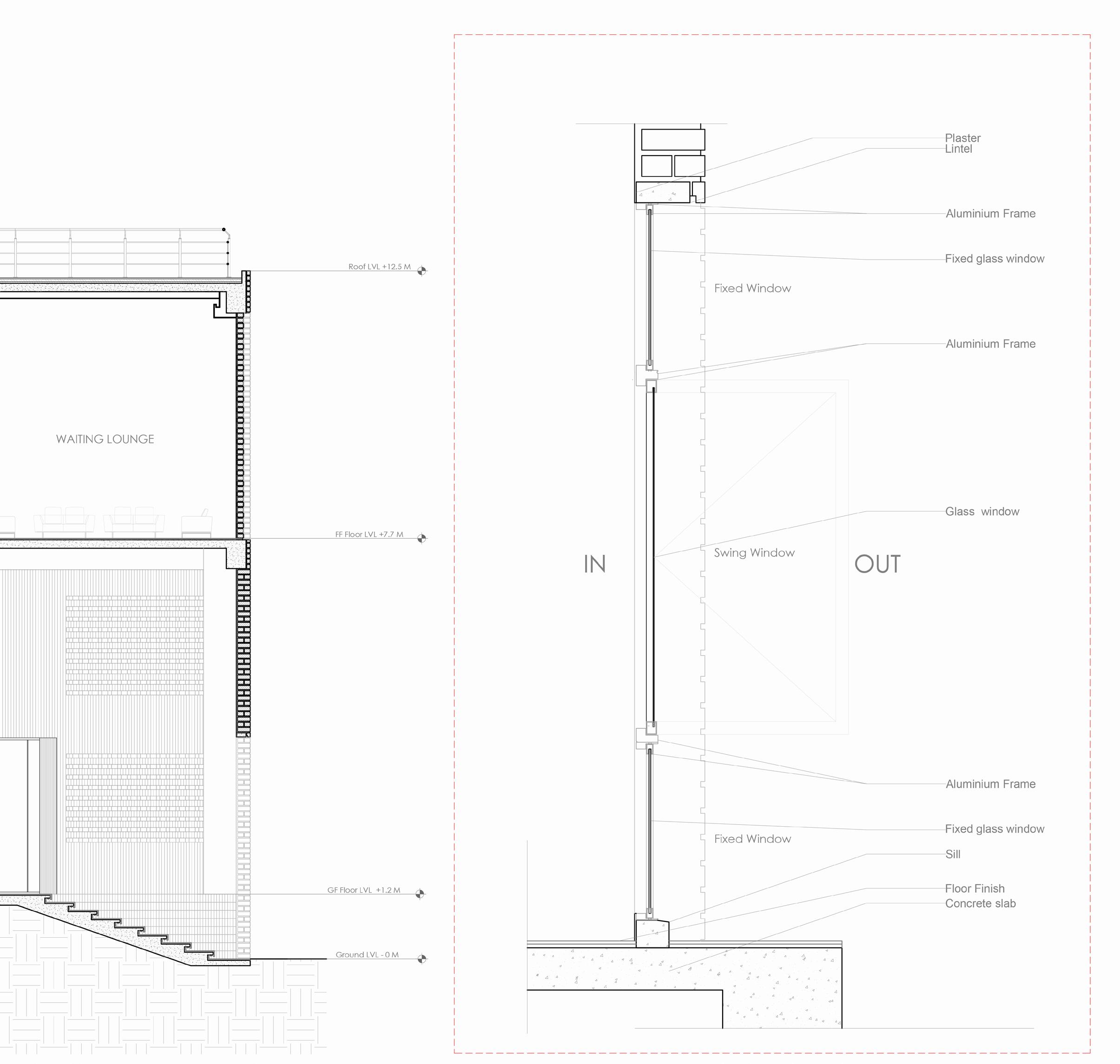
04 (Wall Blowup)

Detail 05 (Footing detail)

Detail 06 (Wall & Roof Detail)

Detail 07 (Wall & Ceiling Detail)
Detail
Section A & Detailed Drawings

01 (Green Roof Detail)
Section B & Detailed Drawings

Section B-B’

Section
C & Stair Detailed Drawings


Reclaiming Roots
Rethinking Osborne House
Type: Heritage Conservation, Urban Intervention
Studio: Comprehensive Studio
Location: North Geelong, VIC, Australia
Year: 2023


Introduction
Reclaiming Roots is a heritage conservation project rooted in the timeless landscape of Osborne House, North Geelong. Framed by mature trees and a historic fabric, the intervention honours the site’s legacy while forging meaningful connections between the past and the evolving urban fabric. Anchored by a strong design axis—a linear gesture extending from Osborne Park to the Waterfront—the masterplan weaves together nature, history, and community.
Through careful zoning, the site unfolds into three layers: a recreational zone merging with the parklands, an economic hub near the community interface and entrance, and a cultural precinct that amplifies heritage expression. Built forms follow a linear rhythm, aligning with the existing grid to ensure harmony between new and old. At the core, a Visitor Centre emerges as the spine—strategically placed along the main axis to orient, connect, and narrate the site’s evolving story.
03
Site Analysis


Parti Diagram
The harmonious urban fabric should be approached with due considerations to the chronological sequence,propritorship, and utilisation of the spaces, which aim to adhere to our forthcoming proposition.

Design Considerations
1.The heritage struction & trees
2. Design Axis- linear development of forms and Osborne park to Waterfront direct connection.
3.Zoning of site- Recreational zone near the Osborne park, Economic zone near community and entrance, & Cultural zone signifying the culture and heritage.
4. The linear development with in the build structures.
5. Following the existing grid for new structures.
6. Visitors centre in the main axis of the site connecting all the spaces with clear directions
Prime Location for intervention due to the central location between Geelong waterfront and Spirit of Tasmania


Design Exploration & Material Study












View from 1st floor Library
Visitor’s Centre view
View from Exhibition Space
04
Residential Design
Type: Design resolution & Working Drawing
Studio: Building Information Modeling
Location: Chattogram, Bangladesh.
Year: 2023
Detailed Drawings


Detailed Section Drawings


Angina
A Community Hub
Type: Parametric Design
Studio: Architecture Communications: Advanced
Location: Koraial Slum, Dhaka, Bangladesh
Year: 2023


Introduction
The Korail Community, particularly the Korail Women, and Children required their own space - an area that could serve multiple purposes - and the intent of this design was to create a dedicated space that would engage the region with the community. This pavilion will be a meeting spot for women where they can unwind and sell their freshly harvested produce from neighboring agricultural fields while socializing. The children will have a play area while their mothers keep an eye on them. This space can also be turned into a festival plaza during the events.
05
Design Development
The pavillion's design was inspired by the traditional courtyard formation of the houses and the Facade is portraying the turbulence of community people's lives by constructing a wave-like skeleton structure. The structure will also ensure trasparency within the pavilion and with the site so that the women will be able to watch over their children while they are playing.




