Sydney Fawks Interior Architecture and Design Portfolio

Page 1

INTERIOR ARCHITECTURE & DESIGN PORTFOLIO

Sydney Fawks

EDUCATION

Resume

EXPERIENCE

Sydney Fawks

sfawks@harding.edu

469.834.2663

MEDIA

Linked-In: Sydney Fawks

Instagram: @sfawks_design

SKILLS

• Revit

• Enscape

• Illustrator

• InDesign

• Photoshop

• SketchUp

• AutoCad

• Construction Documentation

• Hand Drafting

• Teamwork

• Leadership

• Detail Oriented

• Organized

• Approachable

Harding University | Council for Interior Design Accredited

CandidateforBachelorofArtinInteriorArchitectureandDesignSpring2024 | GPA: 3.98

Awards: Dean’s List Fall 2020, Spring & Fall 2021, Spring & Fall 2022, Fall 2023

Harding University A&D Scholarship | 2022-2024 NCAA Division II Athletic Scholarship - Soccer

Cromwell Architects Engineers - Little Rock, AR Intern

• Working with Interiors’ department.

January 2024-Present

• Actively working along with Architects and Engineers on projects.

HKS Architects - Dallas, Texas Summer Intern

• Worked with Commercial Interiors’ department.

May2023-July2023

• Involved with work place projects, construction documents, and design decisions.

Lynda Moore Interiors

ProjectIntern

LEADERSHIP & VOLUNTEER EXPERIENCE

July2022

• Worked with lead Interior Designer to prepare for installation phase of newly renovated church

• Actively involved in installation of furnishings and design elements

Oak Cliff Coffee Roasters

AssistantPastryChef

April2018-June2019

• Assisted with weekly baking planning (quantity) and schedule (timing)

• Prepped ingredients, pre-mixed items, baked, and decorated bakery items

• Provided quality customer service by supporting staff with counter orders during peak times

National Kitchen and Bath Association (NKBA)

HardingUniversityStudentChapter-Co-Chair2022

Aug.2020-Present

• Lead members of the executive council in overseeing chapter operations and executing goals

American Society of Interior Designers (ASID)

HardingUniversityStudentChapter-Secretary2023

Aug.2020-Present

• Responsible for branch communications, meeting minutes, and individual member status

Harding University Student Athlete - Women’s Soccer Team

• 2021 /22 Academic All-Great American Conference

Aug.2020-Present

• 30+ hours/week training, traveling, and participating in games while maintaining a full course load

• Assist with team’s mental health with regular devotionals and activities

Joni and Friends

SummerFamilyRetreatVolunteer

• Serving families navigating the challenges of disability

Northwest Community Center Volunteer

2018 - Present

2018 - Present

• Serving refugee families representing more than 50 languages relocating to Dallas

HEALTHCARE Pediatrics 05. RESIDENTIAL NKBA Kitchen and Bath 03. COMMERCIAL Branding 04. RESIDENTIAL Wellness Home 07. ART WORK 06. CULTURAL PAVILION
WORK PLACE DESIGN Next
Table of Contents 02.
01.

Work Place Design

3nd Year Fall - Revit - Enscape - Photoshop

Strength

Beauty

NEXT, is a leading global consumer robot company based in Providence, Rhode Island. NEXT creates consumer electronics and appliances that are designed with the purpose of helping others. Their PURPOSE is to improve everyday living through robotics. The products offer innovative solutions to make people’s lives easier with intuitive and responsive controls, sleek and stylish designs, and eco-friendly features.

Representing strength, growth, and beauty - the Tulip Tree is the firm foundation and support system for the stunning flower it produces. People try their best to do everything on their own, but when people come together, they create something much more beautiful. This can also apply to robotics. When individuals accept help, they can build true strength and health. The tree's growth has a purpose. Its beautiful flowers may seem small, but they create something significant and stunning.

SITE CONTEXT

AddressLease Space6th floor

101 Seaport Blvd Boston, MA 02210

Approximately 12,000 SF

Seaport Boston is the newer and bolder side of Boston - a city known for its history. Seaport is set between Boston’s beautiful waterfront and the historic Fort Point District. It stands for what is new and what is to come. Seaport has become the home for technology, innovation, and art.

The form of the flower is integrated into the design of this space. The Work Cafe points back to the tree, which supports the fruit - the beautiful product the tree helps produce. This space supports the company's workers who come together to build beautiful products. The Tulip Tree is native to the Massachusetts area - the location for this project.

INSPIRATION

01.
1

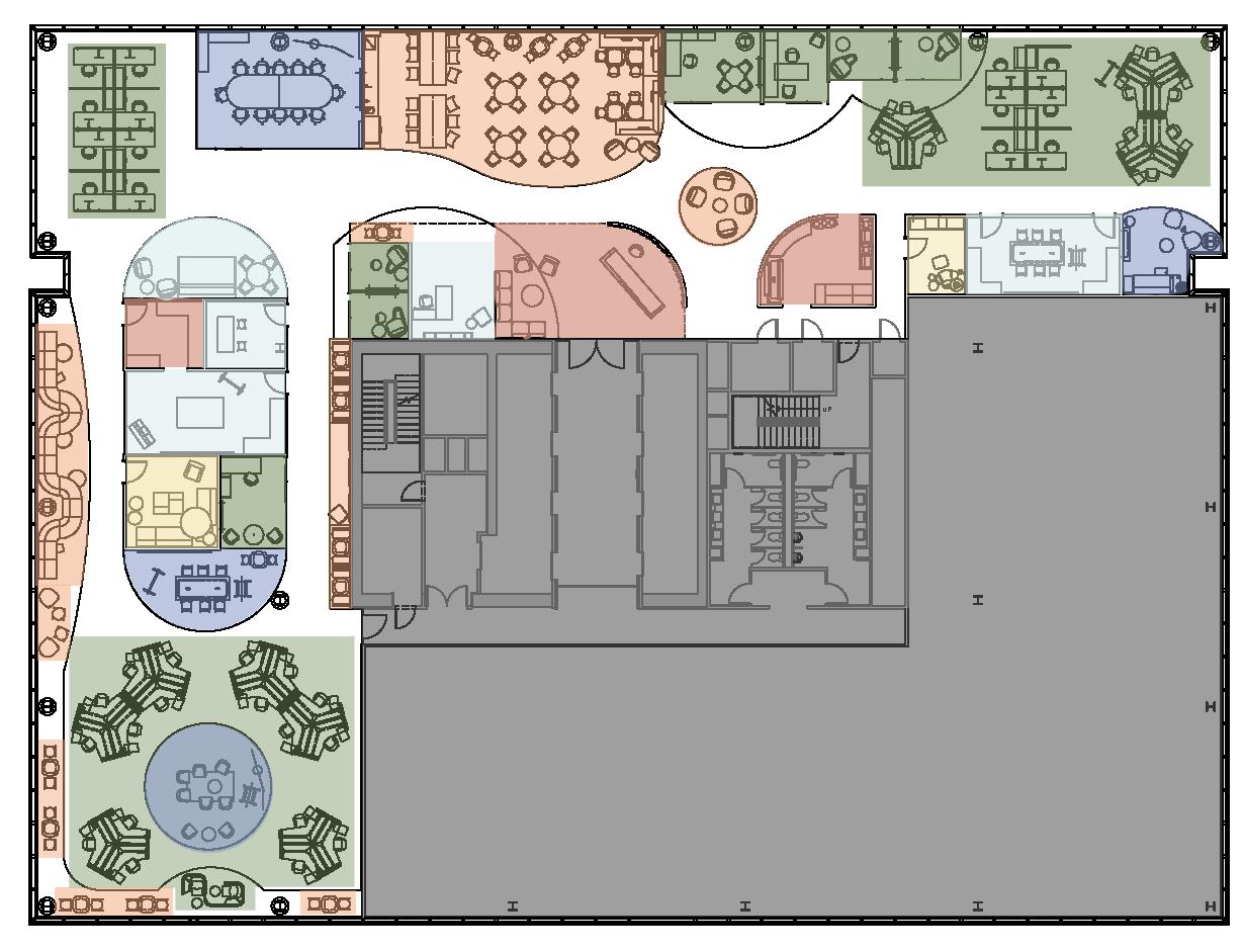
HOW WORK GETS DONE

13 14 15 16 17 18

3 2

6 6 6

4 5 6 7 10 9

11 12

23 1 24

8 9 9

The knowledge that workers cycle between five work modes throughout the workday affected the layout of the space. Work modes and the frequency of shifts between them are specific to an individual to achieve optimal productivity.

10 19 20 21

LEGEND 22

1-Reception

2-Home Office

3-Work Café

4-Development Director

5-Product Inclusion Director

6-Phone Room

7-Product Management and Development Teams

23

LEARNING REJUVENATION

SOCIALIZING RESOURCE

8-Test/Prototype Teams

9-Dedicated Team Space

10-Project Room

11-Mothers Room

12-Resource Center

13-Large Meeting Room

14-Material Innovation/Retail/ Visitor Teams

15-Inclusive Design Lab

16-Retail Mockup

17-Product Storage

18-Wellness Room

19-Design Director

20-Design Team

21-Engineering Team

22-Booth Seating

23-Technology Wall

FOCUS COLLABORATION
24-Window Lounge NOT IN SCOPE

The Inclusive Design Lab was designed for user-centered research. Digital technology in this space is used to lead research with partners and learn from traditionally excluded communities.

Design Director Office

Wellness Room

Digital Technology + Booth Seating

Board Wall

Dedicated Team Space

White
4

The reception is the first place employees and visitors experience. It is designed to reflect the honesty, strength, and creativity of the company.

Home Office

Phone Rooms

Digital Technology Sign In + Communication Reception
5

The café is the place where people refuel and grow. The café is where the strength of the company is rooted. It is the center of the workspace - from here everything grows. This is a place for employees from every role in the company to come and decompress and enjoy a meal together. The space can be used for multiple purposes.

6

Health Care 02.

4th Year Fall - Revit - Enscape - Photoshop

PROJECT OVERVIEW

Avenue is a newly constructed pediatric primary care clinic in Baltimore, Maryland. This clinic will provide comprehensive primary care from birth to age eighteen with accommodations to treat behavioral health issues.

The goal of this design is to create a space that supports healing, intuitive wayfinding, and evoke confidence and trust for children from birth through eighteen years old, their siblings, and their families. The design will support a seamless interaction for patients and family, to optimize the experience and outcomes through interior design.

CONCEPT STATEMENT

We are all on a journey. But not everyone’s path will look the same. The destination should not be the only thing looked forward to but truly enjoying where you are at in the journey. When the path gets bumpy, we must be able to see the color and light to make it to the destination.

Through the use of color, line, and form this space will offer a little piece of joy to those who may be in a tough part of their journey.

INSPIRATION

GOALS / OBJECTIVES

• Implement positive distractions for patients – Interactive elements were added to the waiting area and exam rooms to create positive distractions.

• Supportive staff areas – Provided private areas for staff to take necessary breaks. These areas are located within appropriate distance to work areas.

• Provide safety for all – Exam rooms are accessible and appropriately located to reduce walking distance for both patients and staff.

• Bold and bright colors – Based on the research, these colors were chosen to invoke positive emotions, stimulate energy, and provide visual interest.

SKETCHES

7
EXAM ROOM MATERIALS EXAM HALLWAY RECEPTION / WAITING AREA

Wayfinding was implemented through interactive colored lines leading from the reception to the exam room of the appropriate color.

Wayfinding is crucial in the healthcare environment. It eases confusion and helps patients orient themselves in the new and sometimes scary environment.

This space is designed to be a calm, comfortable space for staff to relax. It is a multi-purpose space that is utilized for lunches, breaks, training, staff meeting, and in-services. Staff lockers are also provided to evoke a sense of retreat.

STAFF LOUNGE EXAM ROOM EXAM ROOM STAFF LOUNGE
6 8 14 15
STAFF LOUNGE
9
SCAN - VIEW CDs

RECEPTION

WAITING AREA

OUTDOOR AREA

PUBLIC BATHROOM

VITALS

EXAM ROOMS

PATIENT EDUCATION

NURSES STATION MANAGER’S OFFICE

STAFF WORKROOM

ADMIN

FLOOR PLAN

STAFF AREAS

PATIENT ROOMS

PUBLIC SPACE

J

+ J Flooring’s Kinetex products were used throughout this project. Kinetex has many of the same benefits of soft surface with performance of hard-surface. Each layer of the material creates a versatile, lightweight, soft-surface flooring with parallel qualities to that of hard surface. When tested it withstood more than 5-million-foot traffic events. It is a green product that reduced environmental footprint. Kinetex minimizes air particulates that trigger allergies and can cause infection. It is slip-resistant and has amazing noise reduction ratings.

1
2 4 6 6 6 6 6 6 6 5 7 8 3 11 12 13 9 10
OUTDOOR AREA
LOUNGE STAFF BATHROOM MEDICAL ROOM SOIL ROOM 10 12 13 14 15 11 2 3 4 5 6 7 8 9 1 10
WORKROOM STAFF

Branding - Searcy, AR 03.

3nd Year Spring - Revit - Enscape - Photoshop

Group Project - Interdisciplinary Collaboration

The SPRING CAFE was designed to foster a connected community. Key elements are the bright colors and natural light to emphasize the lively nature Sage is bringing to the space. When guests enter, they can choose between the menu original to Spring Cafe or the Cafe’s collaborative menu with local food service businesses. They can choose to order or simply enjoy existing in the space with access to free wifi and a view of the beautiful and historical Spring Park.

Sage Architecture was tasked with re-branding the city of Searcy, Arkansas, along with redesigning Searcy’s community center, administration offices, park, and cafe space.

The city of SEARCY is home to families who have been here for generations, inspiring non-profits, determined small businesses, and waves of visitors.

Our unified city brand highlights the efforts of this strong community and encourages endurance, A new WELCOME CENTER and historic SPRING PARK renovations create space for visitors and Searcy citizens to gather together.

Our team focused on FIVE KEY WORDS which guide our concept for a new Searcy brand -

ROOTED
UNITED ASPIRATIONAL LIVELY SERVE
11
BRANDING PROJECT
-

Cafe

ADMINISTRATION BUILDING

2 PARKING

3 SPRING CAFE

4 SPRING CAFE PATIO

5 WELCOME CENTER

6 RESTROOMS FOR PARK

7 SPRING PARK

1 2 3 4 5 6 7
Spring Rendering by Sydney Fawks Spring Cafe PatioRendering by Sydney Fawks
12
1

Wellness Home Project

2nd Year Spring - Revit - Enscape

The Colorado Springs House is designed for a family whose primary goal is to support wellness within its broadest terms, specifically in PTSD, Accessibility/Universal & Inclusive design, and Aging in Place. The clients are a small family of three. One of which was recently diagnosed with PTSD due to a significant injury while serving in the military. Because of this injury, he is wheelchair bound. Therefore, this home is designed to support the family’s physical and mental wellness.

The lot for this home backs up to the beautiful National Natural Landmark of the Garden of the Gods; this scenery influences the home’s design. These rocks have been shaped by time and events, yet they still stand strong. The house is built to be a sheltering, safe place for a family who has been impacted by life. The rocks show that there is still beauty after change. They have weathered the storm and become more beautiful because of its effects. The uniqueness of every rock is resembled in the exclusiveness of this home. The home is built using solely authentic and real materials.

04.
Toe kick space extends 9” from floor for wheelchair access. Cook-top controls on the front of the panel to minimize reaching across burners. Knee space under sink and cook-top. 0’-9’’ Cabinets back hinged Refrigerator doors open 180 degrees.
13
Cabinets have slidehinged doors. 14

INCLUSIVE AND AGING IN PLACE DESIGN ELEMENTS

• Motion detector controlled lighting along the path to the entrance

• Pathway with a minimum width of 3’0’’

• Weather protected entrances

• Clear space: 5’0’’x5’0’’ level clear space inside and outside entrances

• Doorway 3’0’’ wide, an auto- powered door, and a peephole in the door at two levels

• Lever handles for all doors

• Stepless entrance, zero-step entrance threshold

HOME TECHNOLOGY

• All curtains are remote control motorized.

• Smart Home technology throughout the home, controlled on smartphones.

• Complete sound system throughout the home.

• Sole with SensFloor Technology. Detecting movement and falls in the home.

• Controlled water temperature in the bathroom to prevent burns.

• All smart appliances are connected to the home’s WiFi to keep users on top of laundry, meals, and more via the SmartHQ app.

Wellness

PTSD

Aging in Place

Universal/ Inclusive/ Accessibility Design

GARAGE MASTER BATHROOM CLOSET TEEN BEDROOM WORKOUT ROOM Office Laundry Kitchen Dining Room Pantry Master Bedroom LIVING ROOM HALL BATH GUEST BEDROOM Entry Bathroom STORAGE SINK REF. R OVEN DW DW W D SINK FIREPLACE FIREPLACE TV TV RF STORAGE SPACE MW CHINA CABINET BUFFET GARDEN SPACE N
Scan - 3D Views
16

NKBA Kitchen and Bath Project 05.

2nd Year Fall - Hand Rendering

The NKBA Kitchen and Bath Project is designed for a semi-retired couple moving from the Portland suburbs to their dream beach house on Cannon Beach. The top priority for the home is Accessibility/Universal & Inclusive design and Aging in Place. The couple desires this house to be their forever home. Another priority for the couple is designing for their two Golden Retrievers. They desire built-in features specially designed for their puppies.

17
18

Cultural Pavilion 06.

2nd Year Spring - Revit - Enscape - Photoshop

The pavilion is based on Thai architecture. Tall, pointed roofs are a signature of Thai homes. They were originally designed to keep the home cool during the hot summers. Bamboo is one of Thailand’s most natural building materials. It is abundant and grows extremely fast. It is used in many ways, from food to building materials.

Located in Chiang Mai, Thailand. Surrounded by mountains, the pavilion is isolated in a beautiful clearing in the middle of the woods. It is set away from parking and requires hiking to the location. This allows for quiet mental meditation and preparation before arriving at the pavilion.

19

Art Work

07.

Turn static files into dynamic content formats.

Create a flipbook
Issuu converts static files into: digital portfolios, online yearbooks, online catalogs, digital photo albums and more. Sign up and create your flipbook.