Sydney Fawks Portfolio

Page 1

INTERIOR ARCHITECTURE & DESIGN PORTFOLIO

Sydney Fawks

Resume

EDUCATION

Harding University | Council for Interior Design Accredited

CandidateforBachelorofArtinInteriorArchitectureandDesignSpring2024 | GPA: 3.98

Awards: Dean’s List Fall 2020, Spring & Fall 2021, Spring & Fall 2022

Harding University A&D Scholarship | 2022-2024

NCAA Division II Athletic Scholarship - Soccer

EXPERIENCE

Lynda Moore Interior Designs

ProjectIntern

Sydney Fawks

sfawks@harding.edu

469.834.2663

MEDIA

Linked-In: Sydney Fawks

Instagram: @sfawks_design

SKILLS

• Revit

• Enscape

• Illustrator

• InDesign

• Photoshop

• SketchUp

• AutoCad

• Construction Documentation

• Hand Drafting

• Teamwork

• Leadership

• Detail Oriented

• Organized

• Approachable

July2022

• Worked with lead Interior Designer to prepare for installation phase of newly renovated church

• Actively involved in installation of furnishings and design elements

Oak Cliff Coffee Roasters

AssistantPastryChef

April2018-June2019

• Assisted with weekly baking planning (quantity) and schedule (timing)

• Prepped ingredients, pre-mixed items, baked, and decorated bakery items

• Provided quality customer service by supporting staff with counter orders during peak times

FS Lawn Care

Co-Owner

May2015-August2020

• Maintained customers’ lawns and landscaping by providing weekly service

• Prepared and cleaned equipment for next day’s use

• Managed company financials (e.g., invoicing, collection of payments, expenses, payroll)

LEADERSHIP & VOLUNTEER EXPERIENCE

National Kitchen and Bath Association (NKBA)

Co-Chair–HardingUniversityStudentChapter

Aug.2020-Present

• Lead members of the executive council in overseeing chapter operations and executing goals

American Society of Interior Designers (ASID)

Secretary–HardingUniversityStudentChapter

Aug.2020-Present

• Responsible for branch communications, meeting minutes, and individual member status

Harding University Student Athlete - Women’s Soccer Team

• 2021 Academic All-Great American Conference

Aug.2020-Present

• 30+ hours/week training, traveling, and participating in games while maintaining a full course load

• Assist with team’s mental health with regular devotionals and activities

Joni and Friends

SummerFamilyRetreatVolunteer

2018 - Present

• Serving families navigating the challenges of disability

Northwest Community Center Volunteer

2018 - Present

• Serving refugee families representing more than 50 languages relocating to Dallas

Table of Contents

06. CORPORATE Group Project 04. RESIDENTIAL NKBA Kitchen and Bath 03. RESIDENTIAL Boston Loft 02. RESIDENTIAL Wellness Home 07. ART WORK 05. CULTURAL PAVILION 01. WORK PLACE DESIGN NEXT

Work Place Design

3nd Year Fall - Revit - Enscape - Photoshop

NEXT, is a leading global consumer robot company based in Providence, Rhode Island. NEXT creates consumer electronics and appliances that are designed with the purpose of helping others. Their PURPOSE is to improve everyday living through robotics. The products offer innovative solutions to make people’s lives easier with intuitive and responsive controls, sleek and stylish designs, and eco-friendly features.

Strength Beauty

Representing strength, growth, and beauty - the Tulip Tree is the firm foundation and support system for the stunning flower it produces. People try their best to do everything on their own, but when people come together, they create something much more beautiful. This can also apply to robotics. When individuals accept help, they can build true strength and health. The tree's growth has a purpose. Its beautiful flowers may seem small, but they create something significant and stunning.

SITE CONTEXT

AddressLease Space6th floor

101 Seaport Blvd Boston, MA 02210

The form of the flower is integrated into the design of this space. The Work Cafe points back to the tree, which supports the fruit - the beautiful product the tree helps produce. This space supports the company's workers who come together to build beautiful products. The Tulip Tree is native to the Massachusetts area - the location for this project.

INSPIRATION

Approximately 12,000 SF

Seaport Boston is the newer and bolder side of Boston - a city known for its history. Seaport is set between Boston’s beautiful waterfront and the historic Fort Point District. It stands for what is new and what is to come. Seaport has become the home for technology, innovation, and art.

01.
1

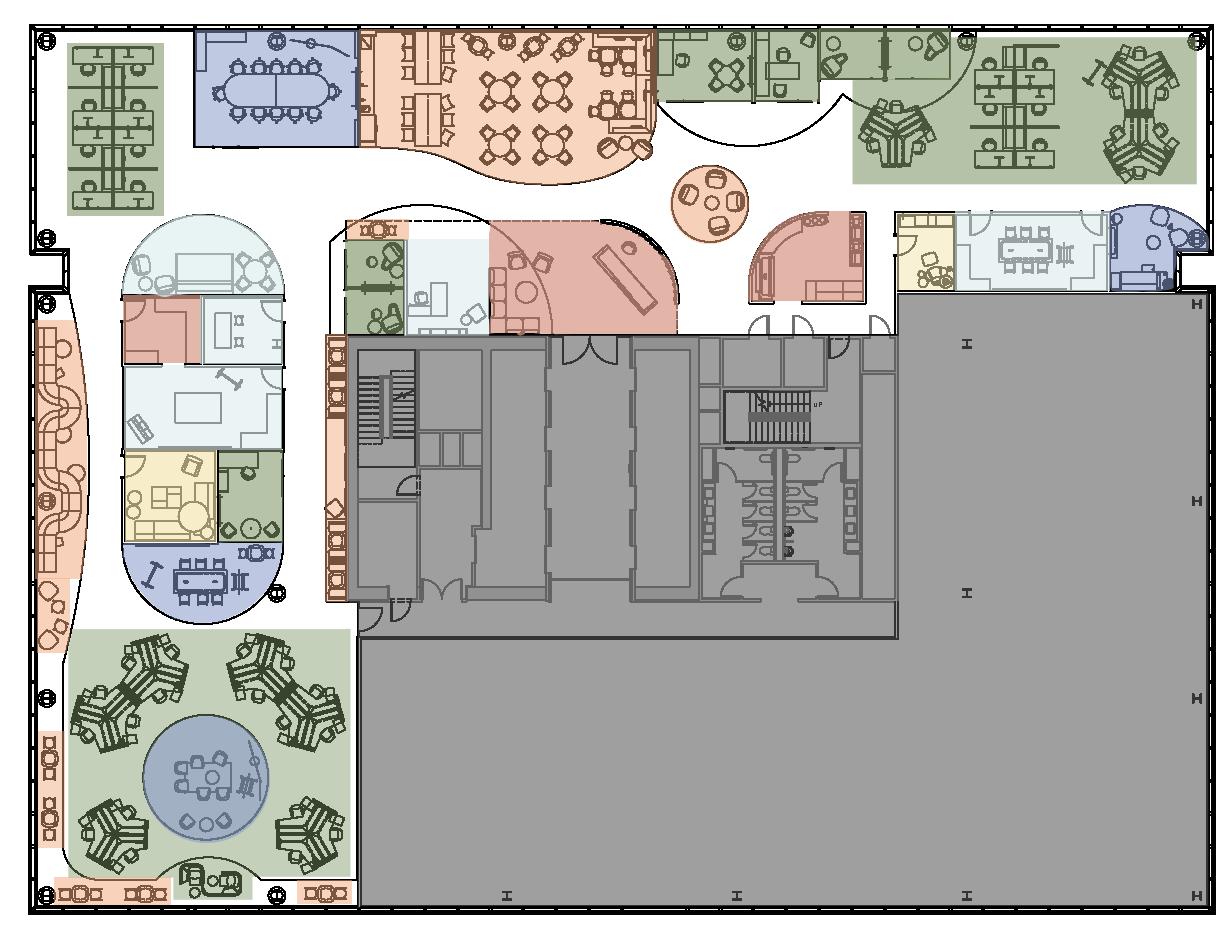
HOW WORK GETS DONE

The knowledge that workers cycle between five work modes throughout the workday affected the layout of the space. Work modes and the frequency of shifts between them are specific to an individual to achieve optimal productivity.

FOCUS COLLABORATION LEARNING REJUVENATION SOCIALIZING RESOURCE
1-Reception 2-Home
3-Work Café 4-Development
5-Product
Director 6-Phone
7-Product
and Development
9-Dedicated
10-Project
11-Mothers
12-Resource
13-Large
14-Material
15-Inclusive
17-Product
18-Wellness
19-Design
20-Design
21-Engineering
22-Booth
23-Technology
24-Window
LEGEND NOT IN SCOPE 22 3 2 4 5 6 7 10 9 6 6 6 8 9 9 11 12 13 14 15 16 17 18 10 19 20 21 23 23 1 24 2
Office
Director
Inclusion
Room
Management
Teams 8-Test/Prototype Teams
Team Space
Room
Room
Center
Meeting Room
Innovation/Retail/ Visitor Teams
Design Lab 16-Retail Mockup
Storage
Room
Director
Team
Team
Seating
Wall
Lounge
3

The Inclusive Design Lab was designed for user-centered research. Digital technology in this space is used to lead research with partners and learn from traditionally excluded communities.

Design Director Office

Wellness Room

Digital Technology + Booth Seating

White Board Wall

Dedicated Team Space

4

Digital Technology Sign In + Communication

Reception

Home Office

Phone Rooms

The reception is the first place employees and visitors experience. It is designed to reflect the honesty, strength, and creativity of the company.

5

The café is the place where people refuel and grow. The café is where the strength of the company is rooted. It is the center of the workspace - from here everything grows. This is a place for employees from every role in the company to come and decompress and enjoy a meal together. The space can be used for multiple purposes.

6

Wellness Home Project

2nd Year Spring - Revit - Enscape

The Colorado Springs House is designed for a family whose primary goal is to support wellness within its broadest terms, specifically in PTSD, Accessibility/Universal & Inclusive design, and Aging in Place. The clients are a small family of three. One of which was recently diagnosed with PTSD due to a significant injury while serving in the military. Because of this injury, he is wheelchair bound. Therefore, this home is designed to support the family’s physical and mental wellness.

The lot for this home backs up to the beautiful National Natural Landmark of the Garden of the Gods; this scenery influences the home’s design. These rocks have been shaped by time and events, yet they still stand strong. The house is built to be a sheltering, safe place for a family who has been impacted by life. The rocks show that there is still beauty after change. They have weathered the storm and become more beautiful because of its effects. The uniqueness of every rock is resembled in the exclusiveness of this home. The home is built using solely authentic and real materials.

02.
Toe kick space extends 9” from floor for wheelchair access. Cook-top controls on the front of the panel to minimize reaching across burners.
0’-9’’
Knee space under sink and cook-top. Cabinets back hinged Refrigerator doors open 180 degrees.
7
Cabinets have slidehinged doors. 8

INCLUSIVE AND AGING IN PLACE DESIGN ELEMENTS

• Motion detector controlled lighting along the path to the entrance

• Pathway with a minimum width of 3’0’’

• Weather protected entrances

• Clear space: 5’0’’x5’0’’ level clear space inside and outside entrances

• Doorway 3’0’’ wide, an auto- powered door, and a peephole in the door at two levels

• Lever handles for all doors

• Stepless entrance, zero-step entrance threshold

HOME TECHNOLOGY

• All curtains are remote control motorized.

• Smart Home technology throughout the home, controlled on smartphones.

• Complete sound system throughout the home.

• Sole with SensFloor Technology. Detecting movement and falls in the home.

• Controlled water temperature in the bathroom to prevent burns.

• All smart appliances are connected to the home’s WiFi to keep users on top of laundry, meals, and more via the SmartHQ app.

Scan - 3D Views GARAGE MASTER BATHROOM CLOSET TEEN BEDROOM WORKOUT ROOM Office Laundry Kitchen Dining Room Pantry Master Bedroom LIVING ROOM HALL BATH GUEST BEDROOM Entry Bathroom STORAGE SINK REF. R OVEN DW DW W D SINK FIREPLACE FIREPLACE TV TV RF STORAGE SPACE MW CHINA CABINET BUFFET GARDEN SPACE N Wellness PTSD Aging in Place Universal/ Inclusive/ Accessibility Design 10

Boston Loft Project 03.

2nd Year Fall - Revit - Enscape

The Boston Loft is designed for a systems consultant for a large corporation in Boston, Massachusetts. Both of his parents are immigrants who have instilled in him the cultural values of their home country of Morocco. He will be moving into the loft of a newly purchased two-story building in the downtown area.

The main goal is to integrate some of his Morocco heritage into a function space while maintaining an exclusive, high-end loft style.

Morocco’s heritage is about mixing and matching bright colors and patterns to make one beautiful and inviting space.

Another goal is to create a home with Accessibility/Universal & Inclusive design, and Aging in Place incorporated into it.

Morocco Inspired
Scan - CDs 12

NKBA Kitchen and Bath Project 04.

2nd Year Fall - Hand Rendering

The NKBA Kitchen and Bath Project is designed for a semi-retired couple moving from the Portland suburbs to their dream beach house on Cannon Beach. The top priority for the home is Accessibility/Universal & Inclusive design and Aging in Place. The couple desires this house to be their forever home. Another priority for the couple is designing for their two Golden Retrievers. They desire built-in features specially designed for their puppies.

13
14

Cultural Pavilion 05.

2nd Year Spring - Revit - Enscape - Photoshop

The pavilion is based on Thai architecture. Tall, pointed roofs are a signature of Thai homes. They were originally designed to keep the home cool during the hot summers. Bamboo is one of Thailand’s most natural building materials. It is abundant and grows extremely fast. It is used in many ways, from food to building materials.

15
Located in Chiang Mai, Thailand. Surrounded by mountains, the pavilion is isolated in a beautiful clearing in the middle of the woods. It is set away from parking and requires hiking to the location. This allows for quiet mental meditation and preparation before arriving at the pavilion.

Corporate 06.

Physical, mental, and financial well-being are all daily concerns for most college students. The on-campus Bank of America prioritizes the individual student by offering readily accessible banking services and financial advising in a dynamic and empowering environment. Modern technology allows for quick and easy banking, while a private conference space and video room provide tools for college students to begin financial success. The design aesthetic combines crisp and sleek modern minimalism with other aspects of Harding’s historic architecture.

Conference Room Video Meeting Room
Restroom
ATM
3nd Year Fall - Revit - Enscape - Photoshop - Completed with Seth Starck
Open Seating Lockable Storage Coffee Station
Teller Station
16
BANK OF AMERICA - COLLEGE CAMPUS LOCATION

Art Work 07.

17
Sydney Fawks sfawks@harding.edu 469.834.2663

Turn static files into dynamic content formats.

Create a flipbook
Issuu converts static files into: digital portfolios, online yearbooks, online catalogs, digital photo albums and more. Sign up and create your flipbook.