Book Investigación Parte 1 E4

Page 1

M E S A 1 EQUIPO FACULTADDEARQUITECTURA TALLERDOMINGOGARCÍARAMOS A R Q F E R N A N D O S Á N C H E Z B E R N A L asesor “ P a r q u e E c o l ó g i c o , M e t r o p o l i t a n o , T u r í s t i c o y d e I n n o v a c i ó n T e c n o l ó g i c a y C i e n t í f i c a ” ( P E M T I T C ) C E N T R O D E C O N V E N C I O N E S Y E X H I B I C I O N E S M E M O R I A D E S C R I P T I V A
1. Integración de Investigación del “Parque Ecológico” 2. Análisis de Sitio 3. Recorrido de Sitio (práctica 9 – 12 marzo) 4. Programa arquitectónico 5. Integración de casos análogo 6. Análisis Crítico 7. Integración y desarrollo de concepto 8. Diagrama general de funcionamiento 9. Diagramas específicos por áreas 10. Integración de zonificación y proceso del desarrollo 11. Integración de emplazamiento 12. Premisas de diseño estructural 12. Mobiliario Urbano 330 030 333 333 337 737 448 848 553 353 Í N D I C E 111 118 818 550 050 559 959 662 262 664 464 774 474 443 343

I N T E G R A C I Ó N D E I N T E G R A C I Ó N D E I N T E G R A C I Ó N D E

I N V E S T I G A C I Ó N I N V E S T I G A C I Ó N I N V E S T I G A C I Ó N D E L ( P E M T I T C ) D E L ( P E M T I T C ) D E L ( P E M T I T C )

MEDIO FÍSICO

(MESA 2)

Dentro de un radio de 5km se puede identificar que dentro del plano Geológico se encuentran dos tipos de rocas, la Metamórfica en su mayoría y la Sedentaria. es considerado con una valle y sierra, es decir una geoforma deprimida en un conjunto de montañas.

Y se puede identificar que cerca del terreno el uso de suelo es habitacional y mixto, y muchos de los predios son baldíos o área verde.

Mientras que el uso de suelo por parte del municipio de Poza Rica es RT1 (Industrial a corto plazo, hasta 2030 para poder ser terreno Ecológico) ya que como es un ex complejo Petroquímico el cambio de uso de suelo es debido a la búsqueda de la reactivación y aprovechamiento del mismo territorio.

SUPERFICIE TOTAL: 133 HECTÁREAS

ÁREA CONSTRUIDA: 516,180.88 M²

ÁREA LIBRE/VERDE: 813,819.12 M²

Las áreas verdes funcionan como barreras naturales que evitan inundaciones provenientes de desbordamientos o escorrentías; también protegen el suelo del desgaste por acciones humanas y reducen la probabilidad de su deslizamiento. Y de acuerdo por la topografía que se tiene y al cauce del rio no tiene alto riesgo de desbordamiento e inundación dentro del terreno.

Respecto a la erosión no se encuentra dentro del terreno ya sea del desgaste del suelo de forma natural o químico, del desplazamiento este no cuenta ya que no se encuentra dentro de laderas.

PLANODEUSOSDESUELO SISTEMADE TOPOFORMA PROVINCIAFISIOGRÁFICA RIESGOPOREROSIÓN R I E SGOPORDESBORDAMIENTODER I O RIESGOPORDESLIZAMIENTO RIESGOPORINUNDACIÓN
PLANOGEOLÓGICO PLANODEÁREASVERDES
222

ANÁLISIS DE LOS COMPONENTES SOBRE EL RADIO

Nuestra zona a trabajar, a pesar de considerarse urbanizada, las características que definen abstractamente a nuestra ciudad, son puntos de carencias integral inyección a la economía del conectividad es la principal causa de fractura aspectos, rural y urbano, y un municipio con otro. Este análisis pretende demostrar que simple que debe ser cumplido para lograr adecuado del proyecto, por lo tanto el enfoque propuso comprender integralmente al uso y utilizarlo como un ejemplo metodológico en otros sitios donde la problemática sea resuelta. Este trabajo pudo demostrar que mediante sencilla se puede incluir a la dimensión comprenderla necesidad creciente de esta población.

SIMBOLOGÍA Y PORCENTAJE

Derechoaserviciosalud ProductorProcampo m2porhabitante Escolaridadbásica Lenguaindígena Personaporvivienda Licenciatura Preparatoria Unidadeseconómicas Viviendasocupadas VehículoParticular TransporteIrregular MOVILIDAD ECONOMÍA ÁREAVERDE COMPLEJIDAD OPORTUNIDAD Licenciatura Preparatoria LenguaIndígena m2porhabitante Vehículoparticular Escolaridadbásica Transporteirregular Viviendasocupadas ProductorProcampo Personaporvivienda Unidadeseconómicas DerechoaServiciosalud C O A T Z I N T L A P O Z A R I C A 335U 74.5% 16,157 2.38 3.4 876U 42.4% 28.6% 23.6% 39.6% 63.2% 6.02% 1.28 39.6% 1.80% 10U. 37.6% 3.3 26.9% 31.7% 63.2% 72.6% 56,959 9,135U.
20% 30% TIERRAS DE CULTIVO ASENTAMIENTOS HUMANOS ÁREA VERD E CPE 40% 10% 333 Tabla de comparación entre el Municipio de Poza Rica de Hidalgo y Coatzintla Diagrama de resultados

EQUIPAMIENTO URBANO

(MESA 3)

Inmuebles que conforman el área urbana, es decir, son aquellos que proporcionan a la población algún servicio, con el objetivo de impulsar su desarrollo físico y psicológico, así como incentivar el sentido de pertenencia a la comunidad

Problemática: Tras una investigación de campo, se pudo analizar que en la ubicación del predio no existe un desarrollo urbano, lo cual se convierte directamente en una problemática, pues impide el progreso de los habitantes y del mismo municipio Es decir, el sitio no cuenta con espacios destinados a la propagación de conocimientos científicos ni estudiantiles, lo cual limita de manera directa el crecimiento en conocimientos de los niños y jóvenes del lugar

Poza Rica de Hidalgo posee la mayor concentración de equipamiento educativo con 195 unidades (43.92%).

SECUNDARÍAS 17

UNIVERSIDADES 14

HOSPITALES 20

RESTAURANTES 19

TRANSPORTE 5

(1-2 NIVELES) (2-3 NIVELES) (2 NIVELES)

(1 NIVEL) (-)

TRANSPORTE PÚBLICO

PARQUES 18

C COMERCIAL 2

PRIMARIAS 19

HOTELES 17

IGLESIAS 16

(-)

(2 NIVELES)

(1 NIVEL)

(4 NIVELES)

(1 NIVEL)

TRANSPORTE URBANO DE PZ RUTA COATZINTLA - POZA RICA

PRINCIPAL MEDIO DE TRANSPORTE RUTAS TAXIS

Vialidades primarias

Deficiente coordinación de los semáforos congestionamiento: 1 red vial sin capacidad física para soportar tránsito diario, 2, solo oferta de vehículos ligeros, 3, traza urbana discontinua.

29 intersecciones conflictivas

444

Mapeo de equipamiento urbano en la ZMPZ

Red vial municipal

MEDIOS EXISTENTES

2, 481KMDE CALLES

3.6% VIALIDADESPRIMARIAS

2.7% VIASSECUNDARIAS

43.1% AUTOMÓVILES O CAMIONETAS

51%MOTOCICLETASYMOTOS

8.9%BICICLETA

Transporte urbano: 9 rutas

Vehículos con capacidad entre 60 y 80 pasajeros.

Tarifa base $10

Tarifa máxima $26

Servicio suburbano (Coatzintla, Papantla, Cazones)

Empresa dominante: Autotransportes Poza Rica Transporte Rural Atienden localidades rurales de Cazones, Papantla y Tihuatlan

10 rutas fijas en Cazones

ISSSTEPozaRica Escuelaprimaria ParadadeAUTOBUSES UniversidadVeracruzana ParroquiadeNuestra SeñoraGuadalupe
Boulevard Adolfo Ruiz Cortines, central oriente, carretera a Coatzntia, carretera nacional Mex - Tuxpan, carretera Veracruz y carretera Cazones Primarias 3.64% Secundaria s 2.73%
43.1% AUTOMOVILESO CAMIONETAS

RIESGOS FÍSICOS

(MESA 3)

RIESGO DE INUNDACIÓN

Principales causas

1.Lluvias intensas

2.Desbordamiento de ríos

3.Roturas de presas

4.Deslizamientos de tierra

5.Obstruccionesdedrenaje

Urbanización

La urbanización es un factor que contribuye a las inundaciones al alterar el suelo y obstaculizar el flujo natural del agua, y también puede agravar el problema al causar la acumulación de agua en áreas urbanas y sobrecargar los sistemas de drenaje y alcantarillado

Mapa de Grado de Vulnerabilidad Social en Poza Rica, INEGI 2010.

PERTURBACIONES ESPECÍFICAS

OLORES

PARADOR URBANO

AGUAS NEGRAS COL, ANÁHUAC

GAS

AGUAS NEGRAS/CONTAMINADAS

RÍO CAZONES

RÍOS Y ARROYOS

LA FALTA DE POLÍTICAS PÚBLICAS ENCAMINADAS A LA PRESERVACIÓN DE LOS RECURSOS NATURALES HA

GENERADO QUE TANTO EL CICLO NATURAL Y EL ACCESO AL AGUA PADEZCAN SOBRE-EXPLOTACIÓN Y REGISTRE

CONTAMINACIÓN EXTREMAMIENTRAS QUELOSESTUDIOS

DEMUESTRAN QUE EL AGUA DE LOS ARROYOS Y DEL RÍO CAZONESESTÁ COMPLETAMENTEINTOXICADA.

SISMICIDAD

SISMOS REGISTRADOS DESDE 1900 EN POZA RICA: 1 DE MAGNITUD MAYOR A 5; 42 DE MAGNITUD ENTRE 4 Y 5; Y 214 DE MAGNITUDENTRE3Y 4

Corte de riesgo de inundación

Consecuencias

Mapeo de perturbaciones en la ZMPZ

RUIDO

VERACRUZ-ALAMO

Mapeo de perturbaciones en la ZMPZ

BLVD.ADOLFORUÍZ CORTINEZ

MARTINEZDELA TORRE-CANOAS

VIAD.LA PROVIDENCIA

ENESTASVIALIDADESESDONDEEXISTE LA

MAYOR CONTAMINACIÓNAUDITIVA YA

QUESONVIALIDADESPRINCIPALES

YSON

CONSTANTEMENTETRANSCURRIDAS

ALTO BAJO MEDIO MUYALTO MUYBAJO 30m 200mm 0m 2Ju 237mm 16Sep|282mm ENE FEB MAR ABR MAY JUN JUL AGO SEP OCT NOV DIC
Pérdidas humanas
cultivos
Contaminación de aguaysuelo Daños a propiedad Desplazamiento depoblación Pérdidade
y animales
555

ESPACIO PÚBLICO

(MESA 4)

La Zona Metropolitana de Poza Rica se constituye por una zona aglomerada está conformada por núcleos de poblacionales (fraccionamientos, colonias), áreas industriales y comerciales.

Esta alberga delegaciones, oficinas gubernamentales y administrativos para la zona norte del municipio, en relación a esto, el espacio público en Poza Rica es escaso o nulo en algunas zonas en relación a la densificación de la ciudad.

Esta falta de espacio publico genera una calidad poco reconfortante para los habitantes de Poza Rica.

Aceras estrechas o inexistentes

Amplio arroyo vehicular Inexistencia de pasos peatonales Inexistencia de franjas peatonales

Descuido de áreas verdes Cableado público aéreo invasivo Áreas verdes inmediatas utilizadas como basurero

En cuanto a la accesibilidad urbana se concluye que es de alta complejidad, dificultando la presencia policial en las zonas. Que a su vez genera una problemática en términos de seguridad, centralizando los índices delictivos en calles de poca accesibilidad y que además estos tienden a ocurrir en espacios públicos

Inexistencia de banquetas Áreas verdes inmediatas utilizadas como basurero Nula accesibilidad a personas con discapacidad

Diferencia entre distintas secciones de calle

Es necesario considerar estos datos, debido a que tanto la centralización de los delitos en los espacios públicos como la inequidad en la distribución de la seguridad en la zona metropolitana de Poza Rica es un tema importante a considerar en la planificación urbana y nfatizando en cómo se vive el espacio público

Sección de Calle Lorenzo Fong Pena

Colonia Ruiz Cortínez Traza Urbana Ortogonal debido a la planiciedelterreno Colonia Herradura Traza Urbana definida por la naturalidad del terreno ColoniaAnáhuac Traza Urbana Irregular que se va ajustando a las pendientes y al crecimiento de la misma Colonia Los Pinos Traza Urbana radial definida por la colina enlaqueseencuentra
5 1 4 2 3
Colonia Ignacio de la Llave Traza Urbana definida por la naturalidad del terrenoyelcaucedel río Sección de Calle Ignacio de la llave
666
Mapeo de la situación del espacio publico en la ZMPZ

Accesibilidad

Correcta infraestructura peatonal + accesibilidad

Accesibilidad y balizado ineficiente

SECCIÓN 1

Arborización de calles Habitabilidad Arbolado urbano medio y poco tratamiento entorno a espacio público

Lo ideal Lo observado 100% 35%

Atractividad

Grande/ alta concentración de personas en tiempo de actividades

95 % Popular | actividades: celebraciones y punto para manifestaciones.

SECCIÓN 2

Se observa balizamiento pero no una correcta jerarquización de la vía lateral (aparcamiento permitido). Peatones tienen que cruzar a banqueta reducida para tomar transporte público. Parque funge como oasis verde sobre la av. principal, vegetación densa y plaza con circulaciones interiores definidas. Mal diseño de cruces y banquetas con infraestructura que obstaculiza al peatón.

Accesibilidad

Ineficiente infraestructura peatonal, obstáculos para el peatón + mal diseño de banquetas que no cumplen con la accesibilidad universal.

Aparente punto de interés (atractividad) sin balizamiento e infraestructura para acceder peatonalmente.

Lo ideal Lo observado 100% 35%

Correcta infraestructura peatonal + accesibilidad

Accesibilidad y balizado ineficiente

Lo ideal Lo observado 100% 45%

Arborización de calles Habitabilidad calles Arbolado urbano denso en parque/nulo en vía principal.

Atractividad

Grande/alta concentración de personas los fines de semana y en actividades

99 % Popular | actividades: celebraciones y concentración de comercio ambulante

EXPERIENCIA URBANA DESDE LO HUMANO Peatón Bicicleta Transporte Público Transporte de Carga Vehículo Particular 10% 0% 25% 20% 45% Uso de vialidades
100%
Lo ideal Lo observado
10%
Peatón Bicicleta Transporte Público Transporte de Carga Vehículo Particular 15% 5% 20% 15% 45% Uso de vialidades 777
Blvd. Adolfo Ruíz Cortínez y Av. Puebla / Av. 20 de Noviembre Blvd. Adolfo Ruíz Cortínez C. 16 Ote (Parque Juárez)

Accesibilidad Accesibilidad y balizado ineficiente

SECCIÓN 3

Lo ideal Lo observado 100% 30%

Atractividad

SECCIÓN 4

Habitabilidad Arbolado urbano medio y poco tratamiento entorno a espacio público

45 % Popular | actividades: Contemplación y recreación de estancia corta.

La cantidad de arbolado es muy poca, casi nula, además las banquetas existentes se encuentran en mal estado.

Se cuenta con equipamiento comercial, no hay tanto flujo peatonal, principalmente transporte motorizado.

Correcta infraestructura peatonal + accesibilidad 888

Arborización de calles

Blvd. Adolfo Ruíz Cortínez y Carretera Costera del Golfo

La avenida se encuentra dotada de servicios y comercios para el peatón pero causa sensación de inseguridad al estar rodeado por puentes.

Las banquetas cuentan con rampas para sillas de ruedas y las pocas áreas verdes parecen tener tratamiento paisajístico pero no brindan confort para permanecer mucho tiempo.

Accesibilidad

Correcta infraestructura peatonal + accesibilidad

Accesibilidad y balizado ineficiente

Arborización de calles Habitabilidad Arbolado urbano medio y poco tratamiento entorno a espacio público

Lo ideal Lo observado 100% 10%

Atractividad

Concentración baja de peatones pese a ser una zona comercial

35% Popular | actividades: Comercio y tránsito

EXPERIENCIA URBANA DESDE LO HUMANO
Lo ideal Lo observado 100% 5%
Transporte Público Transporte de Carga Vehículo Particular 5% 5% 15% 20% 55%
vialidades
Peatón Bicicleta
Uso de
Peatón Bicicleta Transporte Público Transporte de Carga Vehículo Particular 10% 5% 25% 20% 40% Uso de vialidades
de
media
Concentración
personas
Lo ideal Lo observado 100% 25%
Av. Adolfo López Mateos y CanoasMartinez de la Torre

POLÍGONO ESCOLÍN

POZA RICA DE HIDALGO VERACRUZ

Accesibilidad

Conectividad: tipos de calles y longitudes:

Vialidad primaria Vialidad secundaria Vialidad local

Recorridos peatonales Accesibilidad:

Pendientes rampas pavimentos etc

Infraestructura peatonal Barreras físicas

Atractividad

Equipamiento verde

Atractividad: principales actividades

Densidad de peatones

Simbología adicional

Dirección de la vista en planta

Punto de interés:

El reloj

Palacio Municpal de Poza Rica

Monumento a la Madre

Mapa de experiencias humanas editado

Habitabilidad

Uso de vialidades (% destinado)

Uso de vialidades:

Aparcamento permitido y no permitido

Calidad ambiental:

Arbolado urbano denso Arbolado urbano medio Arbolado urbano nulo

Calidad visual:

Tratamiento paisajístico entorno a espacio público: alto/medio/bajo

Sensación de confort:: alta/media/baja

Tabla de simbología y categorización

BLVD. ADOLFO RUÍZ CORTINEZ Y AV PUEBLA / AV. 20 DE NOVIEMBRE BLVD. ADOLFO RUÍZ CORTINEZ Y C.16OTE(PARQUEJUAREZ) AV. ADOLFO LÓPEZ MATEOS Y CANOAS-MARTINEZDELATORRE BLVD. ADOLFO RUÍZ CORTINEZ Y CARRETERACOSTERADELGOLFO
999

ECOTECNOLOGÍAS APLICABLES

(MESA 5)

CAPTACIÓN DE AGUA PLUVIAL

Se trata de un sencillo sistema de recolección que nos permite recolectar el agua de lluvia, almacenarla y aprovecharla para diversos usos en el proyecto. La captación de agua en lo general, es una excelente alternativa para lugares o zonas en las que se sufre por escasez de agua en donde el transportar agua y llevarla a un lugar específico que se requiera, resulta costoso y de pérdida de tiempo Es también una forma de contribuir al ahorro de este líquido vital

TRATAMIENTO DE AGUAS GRISES / JABONOSAS

El agua pasará a través de un sistema de piletas biológicas que contienen tezontles y arena lo que permite su limpieza. En la última etapa llega a una pileta con lirios, papiros y otras plantas que absorben los nutrientes y terminan por dejar agua en condiciones de ser reutilizada para riego.

PANELES FOTOVOLTAICOS

Como estrategia para la generación de electricidad se puede considerar aplicable el sistema de Paneles solares- Iluminación Ecológica Gracias a los niveles de soleamiento constante en el municipio, que en conjunto con la aplicación de la iluminación Led en el predio solventan la necesidad de un espacio iluminado con la menor intervención posible al ecosistema Esta tecnología mitiga de manera significativa la emisión de carbono (gas de efecto invernadero) a la atmósfera, por lo que no contribuye al calentamiento global.

De la investigación realizada se decidió aplicar las tecnologías anteriormente mencionadas en nuestro proyecto La captación pluvial aprovechando los dientes de cierra del proyecto además aprovechando la temporada de lluvias del lugar Mientras que el tratamiento de aguas grises o jabonosas con el compromiso de disminuir la huella del proyectos, sobre todo por su escala Además de aprovechar el asoleamiento con los paneles fotovoltaicos en partes del terreno donde más se pueda aprovechar para dentro de lo que cabe hacer el proyecto lo más sustentable posible.

110 010
Sistema de trtamiento de aguas jabonosas Paneles fotovoltáicos Corte de captació de agua pluval

ANÁLISIS DE ÁREA RESTRINGIDA

(MESA 5)

VÍAS DE ACCESO Y COMUNICACIÓN

La red vial carretera comprende 2,183 KM, el 4.1% de la red estatal de la red de carretera el 92.9% es asfaltada. Vialidades secundarias escasas y con problemas de continuidad deterioro de los pavimentos, ausencia de la señalética vertical y horizontal.

VIALIDADES PRIMARIAS

Boulevard Adolfo Ruiz Cortines, Central Oriente, carretera a Coatzintla, carretera nacional Mex-Tuxpan, carretera Ver - PR y carretera a Cazones.

VIALIDADES SECUNDARIAS

AV. Xalapa, Luis Orlando, Benito Juárez, Reforma, CTO Lamat Norte, Nezahualcóyotl.

111 111 Mapa catastral editado
112 212
Mapa Municipal de Coatzintla con Ubicaciones Peligrosas Mapa Municipal de Poza Rica

Debido a la disminución en la actividad económica principal dentro de los municipios petroleros, llevó a cabo la búsqueda de alternativas para la reactivación y búsqueda de diversidad de la economía de los pobladores, así como de la vida social. Es por esto que se creó El Plan Municipal: Poza Rica vive bella.

Esta iniciativa busca señalar las acciones específicas necesarias para atender las necesidades principales de la metrópoli, para así impulsar un proceso participativo y garantizar un proceso de urbanización más ordenado y progresivo a largo plazo.

Este plan prioriza el desarrollo humano, sin olvidar el crecimiento económico, así mismo, busca otorgar un mayor énfasis en los aspectos intangibles como es las desigualdades, identidad ciudadana, cohesión social, equidad de género, derechos humanos, grupos en vulnerabilidad para una mejor calidad de vida de los Pozarricenses.

El predio se localiza al Sur del municipio de Poza Rica de Hidalgo, compartiendo territorio con el municipio de Coatzintla, al complejo lo rodean zonas habitacionales, debido a que en años posteriores el sitio funcionó como una punto económico del municipio, pero tras varios accidentes ocurridos durante los último años, el sitio se ha visto abandonado.

PLANIFICACIÓN URBANA
113 313
Mapa Urbano de la ZMPZ ubicando el predio del conjunto

Hoy en día, 90% de preexistencias industriales en el lugar no han sido utilizadas, mientras que el 10% ha logrado readaptar las naves y edificaciones para asignarles nuevos usos. El terreno en su mayoría está cubierto de vegetación, sin embargo, hay grandes naves, bodegas y explanadas que servían para producir etileno de alta y baja densidad con el que después se elaboraban plásticos, también, cuenta con una pista de aterrizaje improvisada e interrumpida por la división de municipios.

Según las Normas Generales de Ordenación, el predio es de clasificación RTI donde se puede desarrollar vivienda, equipamiento, comercio, servicios, oficinas, subcentros, corredores, industria y es un Área con potencial de reciclamiento, se promoverá desarrollo de vivienda o industria.

Partiendo de un análisis general urbano se estudiaron las condiciones actuales de la región desde su historia y su contexto, para dar pie a un análisis mas particular donde nos enfocamos a diagnosticar las comunidades próximas y sus necesidades, así como las normativas aplicables dentro de nuestro predio, con base en estos análisis, el Plan Municipal de Desarrollo y el Programa Metropolitano de Poza Rica, pudimos conocer el diagnostico del lugar donde las problemáticas dieron pie a las estrategias de Implementación para nuestro diseño y propuesta.

MAPAMETROPOLITANO10KM

MAPAMUNICIPAL5KM

MAPA LOCAL 1.5KM

Fortalecer conectividad de la zona

Red vial de ciclovías

Planificación del crecimiento urbano

Infraestructura urbana Integración social infraestructura turística

Desarrollo de redes de comunicación Senderos y cruces peatonales/ciclovía Cubriendo áreas residenciales Señalización de la conectividad vial y de accesos Captación de agua pluvial

114 414

Poza Rica de Hidalgo es una ciudad ubicada en el estado de Veracruz, México. Es un importante centro industrial y petrolero en la región, y alberga el Complejo Petroquímico Escolín, uno de los más grandes del país. El Programa Municipal de Desarrollo Urbano de Poza Rica de Hidalgo tiene como objetivo guiar el crecimiento y desarrollo de la ciudad en los próximos años.

ANÁLISIS DEL CONTEXTO:

El Complejo Petroquímico Escolín es una de las principales fuentes de empleo en Poza Rica de Hidalgo y en la región. Sin embargo, también es conocido por su impacto ambiental, lo que ha generado preocupación en la comunidad y ha llevado a la necesidad de desarrollar iniciativas de mejora ambiental. Dentro de este contexto, la creación de un parque metropolitano en el complejo podría ser una oportunidad para fomentar la conciencia ambiental y el ecoturismo en la región.

Este parque tendría un tamaño máximo de 130 hectáreas y estaría diseñado para incluir áreas destinadas a: turismo, una ciudad judicial, área deportiva, un centro de innovación y administración. La ubicación del parque debe estar en armonía con su entorno, que incluye áreas residenciales, administrativas, jurídicas, turísticas y de investigación.

Cuenta con el potencial de fomentar la conciencia ambiental y promover prácticas sostenibles en la región. La inclusión de áreas verdes y espacios naturales en el parque puede ayudar a mejorar la calidad del aire y el ambiente en general en la región, y también puede ser un lugar ideal para programas educativos sobre medio ambiente y sostenibilidad.

115 515
Imágen satelital del terreno

Metropolitano

Fortalecer la conectividad de la zona con otros puntos de la ciudad mediante la mejora de la infraestructura vial y de transporte público:

Se pueden considerar opciones como la construcción de una vía rápida o una carretera que conecte directamente el parque con la zona urbana.

Considerar opciones de transporte público, como la creación de una línea de autobús que conecte el parque con la zona metropolitana

Mejorar la infraestructura existente, como las carreteras principales, caminos rurales, para garantizar una buena accesibilidad al parque metropolitano.

Red vial de ciclovías:

Principales Avenidas que rodean al complejo, como la Carretera Coatzintla-Poza Rica y Carretera Poza Rica-Tihuatlán.

Rutas que conectan el parque con los principales centros de trabajo y estudio cercanos, como la Universidad Veracruzana y el Tecnológico de Poza Rica

Sistema de bicicletas compartida para usuarios que no dispongan de una propia

Fomentación de la conservación ambiental:

El Parque Metropolitano puede ser un importante pulmón verde en la zona metropolitana, para mejorar la calidad de vida de los habitantes de la zona metropolitana.

Planificación del crecimiento urbano:

Definición de políticas de ordenamiento territorial y desarrollo urbano que fomenten un crecimiento sustentable y en armonía con el parque.

LÍNEAS DE ACCIÓN:
1 a. b. c 2 a. 3. a. 116 616

PEMTITC SELECCIONADO

La consolidación del PEMTIC seleccionado se rige por una centralidad en torno a un punto de convergencia, generando focal hacia las áreas correspondientes al proyecto; es así como serie de sistemas circulares y concentrados, permitiendo promover preexistentes a sus alrededores.

Tercer Proceso de Zonificación por el equipo seleccionado
117 717
Zonificación PEMTITC por el equipo seleccionado Segundo Proceso de Zonificación por el equipo seleccionado Primer proceso de Zonificación por el equipo seleccionado
A N Á L I S I S A N Á L I S I S A N Á L I S I S D E L S I T I O D E L S I T I O D E L S I T I O

UBICACIÓN:ComplejoPetroquímicoEscolín

PozaRicadeHidalgoVeracruz

20°30'14.2"N97°28'17.6"W

UBICACIÓN
119 919
Mapeo de la Ubicación del Complejo Petroquímico Escolín, Poza Rica de Hidalgo Veracruz Mapeo de la Ubicación del Complejo Petroquímico Escolín, Poza Rica de Hidalgo Veracruz Mapeo de la Ubicación Veracruz

CARACTERÍSTICAS FÍSICAS

Clima del Sitio

Poza Rica de Hidalgo tiene un clima tropical de sabana. Hace calor todos los meses, tanto en la estación seca como en la húmeda.

La época cálida en Poza Rica tiene una duración de 2.2 meses, desde el 12 de abril hasta el 17 de junio, y durante este tiempo la temperatura máxima promedio diaria es superior a los 33 °C. El mes más caliente en la ciudad es mayo, con una temperatura promedio diaria máxima de 35 °C y una mínima de 24 °C.

Por otro lado, la temporada fresca abarca 2.5 meses, desde el 23 de noviembre hasta el 8 de febrero, y durante este periodo la temperatura máxima promedio diaria es inferior a los 29 °C. El mes más frío del año en Poza Rica es enero, con una temperatura y una

noreste viento y evitar la construcción de edificios altos en zonas expuestas a estos vientos fuertes.

A partir de la Rosa de los vientos en Poza Rica y lo visto en sitio, se observa que estos vienen del Suroeste (SO) para el Noreste (NE).

cualquier
pueden recreación al
Rosa de los vientos y velocidad de estos, Poza Rica
220 020
Gráfica del clima de Poza Rica de weatherspark

Humedad

En Poza Rica, la humedad experimenta cambios significativos.

La época más húmeda abarca 8.3 meses, desde el 15 de marzo hasta el 25 de noviembre. Durante este periodo, el nivel de comodidad se considera bochornoso, opresivo o insoportable por lo menos durante el 34% del tiempo. El mes con más días bochornosos es julio, con 29.8 días de sensación de bochorno o peor.

Por otro lado, el mes con menos días de sensación de bochorno en Poza Rica es enero, con 4.3 días de bochorno o peor.

Además del la temperatura y la humedad la sensación térmica que se percibes es la que verdaderamente hace el trayecto más complicado, peor aun directamente al sol

Asoleamiento

La cantidad de luz solar en Poza Rica varía a lo largo del año. Durante el año 2023, el día más corto será el 21 de diciembre, con solo 10 horas y 53 minutos de luz natural, mientras que el día más largo será el 21 de junio, con 13 horas y 23 minutos de luz natural

El amanecer más temprano se producirá el 1 de abril a las 6:23 de la mañana, mientras que el amanecer más tardío ocurrirá el 28 de octubre a las 7:30, una hora y siete minutos después La puesta de sol más temprana será a las 17:47 el 26 de noviembre, mientras que la puesta de sol más tardía se producirá el 5 de julio a las 20:14, dos horas y veintisiete minutos más tarde.

221 121
Fotos tomadas en sitio, Practica de campo Poza Rica Grafico de niveles de humedad en Poza Rica, weatherspark Grafico de asoleamiento en el terreno Sensacion termica y clima en Poza Rica, weatherpark

Vialidades

VIALIDADPRINCIPAL

VIALIDADESSECUNDARIASL

COMPLEJOPETROQUÍMICO

CARR ACOATZINTLA
POZO2
AV ADOLFO RUÍZCORTINES CARR A PALMASOLA JESÚS GONZALES ORTEGA AV ADOLFOLÓPEZMATEROS
222 222
Mapeo de vialidades al predio desde vista satelital

Los antecedentes arquitectónicos de Poza Rica se remontan a la época prehispánica, cuando la región era habitada por diversos grupos indígenas, entre ellos los totonacas y los huastecos.

A principios del siglo XX, la región experimentó un importante auge económico gracias a la explotación del petróleo, lo que llevó a la construcción de numerosas instalaciones y edificios industriales.

Antecedentes Históricos y Arquitectónicos Análisis de la Estructura Urbana

Poza Rica se caracteriza por estar dividida en distintas zonas por todo su territorio, como la zona centro, la zona norte y la zona sur.

Zona Centro:

Es la zona histórica de la ciudad, donde se encuentran edificios y monumentos emblemáticos, como la Catedral de San Pedro y San Pablo, el Parque Juárez y el Teatro al Aire Libre.

En esta zona se concentra el centro comercial y financiero de la ciudad, con tiendas, bancos y restaurantes, lo que la hace un importante centro de actividades comerciales y turísticas. Las calles de la zona centro están organizadas en forma de cuadrícula, lo que facilita la movilidad de los habitantes y visitantes.

3. Medio Artificial
ViviendaHuasteca Viviendas y Negocios en Poza Rica El petróleo en Poza Rica
MEDIO ARTIFICIAL 223 323
Calle Ignacio Allende Blvd. Adolfo Ruiz Cortines

Zona Norte:

Es la zona más nueva de la ciudad, donde se encuentran las áreas residenciales y comerciales más modernas y recientes.

Esta zona se ha desarrollado rápidamente en las últimas décadas, con la construcción de nuevas colonias y fraccionamientos, así como centros comerciales y empresariales.

También se encuentra en la zona norte el Aeropuerto Nacional Tajín, que conecta la ciudad con otros destinos turísticos de la región y el país.

Zona Sur:

Presenta una variedad de tipos de construcción que reflejan las condiciones socioeconómicas y culturales de la población.

Esta zona cuenta con casas de interés social, teniendo un bajo costo que se construyen para familias de bajos ingresos.

Se constituye en su mayoría de barrios informales donde hay un desarrollo sin regulación por parte de las autoridades.

224 424
Liverpool en Bvld. Lázaro Cárdenas, Poza Rica Aeropuerto Nacional de Poza Rica El Tajín Calle Ferrocarril Calle Adolfo Torres

Infraestructura

Como resultado de la investigación realizada en el sitio, se pudo determinar y así concluir que la infraestructura de la zona metropolitana es escasa, aumentando un poco en su zona central mientras que en la zona donde se ubica el predio se vuelve casi nula.

En cuanto a redes viales se encuentra conectado, siendo ésta utilizada por autobuses y autos privados.

Tras haber visitado el municipio, podemos concluir que existe una precariedad de servicios en éste, contando con calles poco cuidadas y sin iluminación.

ALUMBRADO PÚBLICO

ENALGUNAVALIDAD

ENNINGUNAVIALIDAD

NOESPECFICADO

TERRENO

REDESTELEFÓNICAS

NNGUNAVALIDAD

ENALGUNAVIALDAD

NOESPECFCADO

NOAPLCA

TERRENO

AGUAPOTABLE

CUENCAROCAZONES

ESTACONES HDROMÉTRICAS

CAUDAL

POTABILIZADOR

CALDADACEPTABLE

CALIDADCONTAMINADA

TERRENO

GAS

TERRENO

ESTACONESDE CARBURACIÓN

DRENAJE

DISPONIBLE

NODISPONIBLE

NOAPLICA

NOESPECIFICO

TERRENO

REDESVIALES

VALDADPRINCIPAL

VALDADSECUNDARA

TERRENO

225 525

Tipología de las viviendas

VIVIENDA DURABLE: Se mide en base a los métodos y materiales de construcción, ya sea en techos, paredes y pisos, por lo que se puede garantizar una estructura permanente y adecuada para proteger a sus habitantes de condiciones climáticas extremas. El resultado indica que la proporción de viviendas que no cuentan con condiciones de durabilidad en su construcción por lo que se puede concluir que es baja.

Según estudios de ONU Hábitat en las colonias donde se encuentra el terreno:

Poza Rica: 67.3 % de vivienda durable

Coatzintla: 57.6 % de vivienda durable

Por lo que se puede identificar que dentro de la zona de estudio no se cuenta con una vivienda lo suficiente satisfactoria tanto para la localidad, como para sus habitantes.

Dentro de la zona podemos clasificar las viviendas en: "Unifamiliares"; las que una sola familia habita dentro de la vivienda, en la que la cantidad de las personas que la habitan difiere entre 3-6 personas; también contamos con la vivienda "Multifamiliar"; en la que dos o más familias habitan dentro de la vivienda, también depende de las condiciones y características que estas cuenten pero pueden clasificarse a partir de algunas que cuentan con dos niveles.

226 626
Mapa de zona Gráfico de Documento de la Universidad de Veracruz

VIVIENDA INICIAL VIVIENDA INICIAL MEJORADA

VIVIENDA INICIAL MEJORADA

PISOS TIERRA/CEMENTOPULIDO CEMENTOPULIDO CEMENTOPULIDO

MUROS BEJUCOS/ADOBE

CONAPLANADOMORTERO CALHIDRACEMENTOARENA OTABLEADODEMADERA

TECHO

ESTRUCTURADEMADERAY LÁMINAGALVANIZADA/TEJA ACANALADA

ESTRUCTURADEMADERAY LÁINAGA AC

VIVIENDA PERMANENTE TRADICIONAL

TABICÓNMACIZOOBLOCK HUECODECONCRETO

ESTRUCTURADE MADERA/ACEROYLÁINA

VIVIENDA PERMANENTE MODERNO

CEMENTOPULIDOO MOSAICO MOSAICO

LADRILLODEBARRO RECOCIDOCONCASILLOS DELADRILLO

ESTRUCTURADE MADERA/ACEROYLÁINA

TABICÓNMACIZOOBLOCK HUECODECONCRETOCON CASTILLOSDECONCRETO ARMADO

LOSAPLANA/ADOSAGUAS ECONCRETOARMADO10 SPESOR

Tipologías de viviendas de un piso

M U L T I F A M I L I A R / d o s p i s o s

VIVIENDA PERMANENTE MODERNO 2 pisos

VIVIENDA PERMANENTE MODERNO multifamiliar

PISOS MOSAICO MOSAICO

MUROS

TABICÓNMACIZOOBLOCK HUECODECONCRETOCON CASTILLOSDECONCRETO ARMADO

TABICÓNMACIZOOBLOCK HUECODECONCRETOCON CASTILLOSDECONCRETO ARMADO

TECHO

LOSAPLANA/ADOS AGUASECONCRETO ARMADO10CMSDE ESPESOR

LOSAPLANA/ADOSAGUAS ECONCRETOARMADO10 CMSDEESPESOR

227 727
Tipología de viviendas de dos pisos

FORTALEZAS:

Ubicación geográfica: Poza Rica se encuentra en una posición estratégica en el estado de Veracruz, lo que le da una ventaja en términos de transporte y logística

Recursos naturales: la ciudad está rodeada de abundantes recursos naturales, incluyendo petróleo, gas y bosques, lo que brinda oportunidades para el desarrolloeconómico

Patrimonio cultural: Poza Rica cuenta con una rica historia y patrimonio cultural, con numerosos sitios históricos y arqueológicos, así como festivales culturalesytradicionalesqueatraenavisitantes.

OPORTUNIDADES:

Turismo: la ciudad tiene un gran potencial turístico, gracias a sus recursos naturales y culturales, y se están llevando a cabo esfuerzos para desarrollar y promoverelturismoenlaregión

Energía: la presencia de petróleo y gas en la región ofrece oportunidades para el desarrollo de la industria energética

Agricultura: la región cuenta con un clima favorable para la agricultura y la producción de alimentos, lo que podría ser una oportunidad para el desarrollo económico

DEBILIDADES:

Infraestructura: la ciudad tiene una infraestructura limitada en términos de transporte y servicios básicos, lo que dificulta el crecimiento económico y la calidad de vidadelosresidentes.

Pobreza: Poza Rica tiene un alto índice de pobreza, lo que limita las oportunidades de desarrollo y aumenta la desigualdadsocial

Seguridad: la ciudad ha experimentado problemas de seguridad en el pasado, lo que puede disuadir a los inversoresyturistas

AMENAZAS:

Competencia: Poza Rica compite con otras ciudades de la región para atraer inversión y turismo, lo que puede dificultar su crecimiento económico

Cambio climático: los efectos del cambio climático, como la sequía y las inundaciones, podrían tener un impacto negativo en la agricultura ylaeconomíadelaregión.

ANÁLISIS FODA 228 828

Medios de Transporte

En 2020, 39.6% de la población acostumbró vehículo particular (automóvil, camioneta o motocicleta) como principal medio de transporte al trabajo. En relación a los medios de transporte para ir al lugar de estudios, 63.2% de la población acostumbró camión, taxi, combi o colectivo como principal medio de transporte.

Escolaridad

En 2020, los principales grados académicos de la población de Poza Rica de Hidalgo fueron Preparatoria o Bachillerato General (38.3k personas o 26.6% del total), Licenciatura (37.5k personas o 26.1% del total) y Secundaria (29.9k personas o 20.8% del total).

229 929
de DataMéxico
Gráfica de DataMéxico Gráfica

R E C O R R I D O R E C O R R I D O R E C O R R I D O

D E L S I T I O D E L S I T I O D E L S I T I O

OBSERVACIONES

La visita nos sirvió para darnos cuenta del clima y cómo éste afecta al día a día de la vida en Poza Rica así como la sensación térmica y la humedad Vimos la población y un poco de sus costumbres, el como se transportan pues vimos que hay mucho taxi, también la gente acostumbra a transportarse en moto y un poco menos en bicicleta, concluimos que por la situación climática del lugar

Así mismo es peligroso salir de noche y hay poca iluminación en las calles, la educación vial es deficiente, así como la infraestructura para la movilidad, existen camiones pero la gente suele transportarse más en taxis los cuales no tienen una tarifa definida por lo que pudimos escuchar de compañeros que tomaron taxis.

La comunidad tiene un inicio petrolero y creemos que es algo de lo que podríamos aprovechar para nuestro proyecto, como arraigo, así mismo áreas bastante remotas en las que aún no hay pavimento y que el acceso solo sería en burro o caballo, la tipología de vivienda en su mayoría es muy parecida, no pasan de los dos pisos son casas entre más te acercas al centro aumentan las alturas pero más que nada es el comercio la mayoría de la vivienda, por no decir que toda, es autoconstrucción pues la ciudad ha ido creciendo conforme a las necesidades locales durante las últimas décadas

Tuvimos oportunidad de recorrer el sitio para saber que los vientos vienen del Norte y qué tan fuerte son, el clima extremo, la ciudad está bastante contaminada y partes en la que el suelo no es tan fértil

Levantamientofotográficodevivienda
331 131
Fotografías tomadas en sitio y de Google street view

Levantamientofotográficodeestructuraurbana

CentrodePozaRica

332 232
Fotografías tomadas en sitio y de Google street view Fotografías propias tomadas en sitio
P R O G R A M A P R O G R A M A P R O G R A M A A R Q U I T E C T Ó N I C O A R Q U I T E C T Ó N I C O A R Q U I T E C T Ó N I C O
334 434 ProgramaArquitectónicoBase
MOD
área
llega
dond
sigu
Basá o a
oro
os,
el
C/U C/U C/U (4) (4) (4) 336 636 ProgramaArquitectónicoPropio
FISONÓMICO COMPLEMENTARIO DISTRIBUTIVO SERVICIO
C A S O A N Á L O G O C A S O A N Á L O G O C A S O A N Á L O G O
I N T E G R A C I Ó N D E I N T E G R A C I Ó N D E I N T E G R A C I Ó N D E

CONTEXTOINMEDIATO

USOS INTERIORES

CENTRODEEXPOSICIONESY CONGRESOS UNAM
338 838
Mapa
de Ubicación
fotografías a interiores

ESPACIO:

ARQUITECTO:

UBICACIÓN:

AÑO:

DURACIÓN:

ÁREAS:

COSTO:

FACULTADDEARQUITECTURA, COORDINACIÓNDE VINCULACIÓNNICOLÁS VÁZQUEZHÉRRMANN

11, 450.30 M2

8,316.70M2

4, 000.00 M2

SUP. DE ESPACIOS PERIFÉRICOS

SUP. DE EXPOSICIÓN

1, 500.00 M2

5,302.40M2

TOTAL ÁREAS EXTERIORES

Vistas de fachada del Centro de Exposiciones y Congresos UNAM

D I A G R A M A S

Mapa de Ubicación

Croquis propuesta de zonificación

RECINTO FERIAL C.U. AV. DEL IMAN 10, C.U., COYOACÁN, 04510 CIUDAD DE MÉXICO, CDMX 11,450M² 2014 9 MESES 9.2 MILLONES USD
S U P E R F I C I E T O T A L
T O T A L C O N S T R U I D A
339 939
Croquis de propuesta

M A T E R I A L I D A D

TERRAZA EXTERIOR

5 SALAS SANITARIOS

OFICINA DELEGADO

OFICINA ADMIN.

SALA DE JUNTAS

OFICINA DE MONITOREO

CODNETA

BODEGA GRAL.

4 BODEGAS

MULTIBODEGA

ARCHIVO MUERTO

3 OFICINAS DE EXPOSITORES

2 CUBÍCULOS DE USOS MÚLTIPLES

SALA DE CÓMPUTO

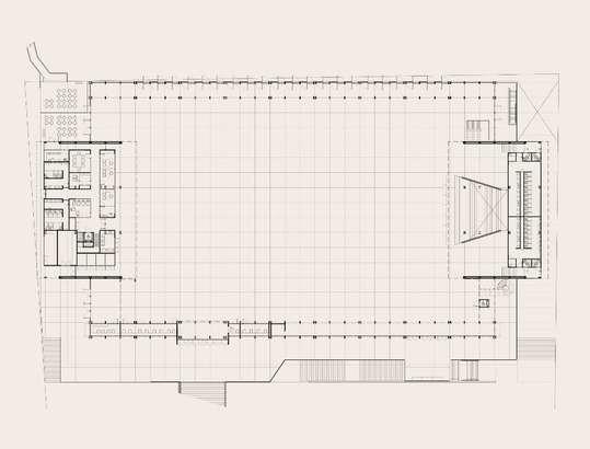
Planta baja por áreas, intervenido por el equipo

mezzanine por áreas, intervenido por el equipo

VIDRIO EN FACHADAS Y VENTANAS, PERMITIENDO UNA GRAN CANTIDAD DE LUZ NATURAL EN EL INTERIOR DEL EDIFICIO.

ALUMINIO SE UTILIZA PARA LOS MARCOS Y LOS ELEMENTOS DECORATIVOS

LA ESTRUCTURA DE CONCRETO USADA EN EL NÚCLEO DEL EDIFICIO, EN MUROS PERIMETRALES Y COLUMNAS PRINCIPALES, PROPORCIONANDO ESTABILIDAD PARA LAS CARGAS VERTICALES DEL EDIFICIO.

LA ESTRUCTURA DE ACERO PARA LOS ENTREPISOS Y LA CUBIERTA, PROPORCIONANDO LA FLEXIBILIDAD NECESARIA PARA CREAR LOS ESPACIOS DIÁFANOS Y FLEXIBLES REQUERIDOS PARA LAS EXPOSICIONES Y CONVENCIONES.

ATENCIÓN DE EXPOSITORES TAQUILLA DE SONIDO TAQUILLA EXPOSITORES TAQUILLA GUARDABULTOS ÁREA EXPOSICIÓN TERRAZA EXTERIOR
162.00 m2 429.16 m2 275.84 m2 18.50 m2 52.63 m2 16.96 m2 9.30 m2 11.27 m2 3.87 m2 19.31 m2 26.27 m2 19.03 m2 25.18 m2 11.69 m2 15.91 m2 19.57 m2 14.50 m2 7.87 m2 30.72 m2 15.00 m2 3, 535.00 m2 99.00 m2
SALA DE JUNTAS TAQUILLA PARA
P R O G R A M A A R Q U I T E C T Ó N I C O
440 040
Planta Explotado del Centro de Convenciones y Congresos
UNAM

TIPO FERIA: TIPO

EXPOSICIÓN: TIPO AUDITORIO:

Tipología de configuración del espacio

E L E M E N T O S C O N S T R U C T I V O S

ESTA CONFIGURACIÓN SE PUEDEN INSTALAR MAMPARAS Y PANELES PARA EXHIBIR OBRAS DE ARTE O FOTOGRAFÍAS, O SE PUEDEN UTILIZAR STANDSPARAEXHIBIRPRODUCTOSOSERVICIOS.

SE PUEDEN UTILIZAR DIFERENTES CONFIGURACIONES SEGÚN LA NATURALEZA DE LA EXPOSICIÓN. POR EJEMPLO, SE PUEDEN INSTALAR MAMPARAS Y PANELES PARA EXHIBIR OBRAS DE ARTE O FOTOGRAFÍAS, O SE PUEDEN UTILIZAR STANDS PARA EXHIBIR PRODUCTOS O SERVICIOS.

ESTA CONFIGURACIÓN SE UTILIZA PRINCIPALMENTE PARA CONFERENCIAS Y PRESENTACIONES, DONDE SE INSTALA UNA TARIMA Y SILLAS EN FILAS, TODAS ORIENTADAS HACIAELESCENARIO

SISTEMAS CONSTRUCTIVOS: ES UNA COMBINACIÓN DE CONCRETO ARMADO Y ESTRUCTURADEACERO

ESTRUCTURA: MODULADO A PARTIR DE UNA CUADRÍCULA DE 10 X 10 PIES RESPONDIENDO A LOS MÓDULOS COMERCIALES DE LOS STANDS DE EVENTOS TEMPORALES(MEDIDAAMERICANAYDELACEROCOMERCIAL)

COLUMNASDEACERO PRINCIPALES DOBLES CADA 915 MTS Y SECUNDARIAS CADA 305 MTS PERFILES ARMADOS ARMADURA ABIERTA CON PERFILES HSS CON PERALTE DE 3 MTS

MUROS: HAY UNA COMBINACIÓN DE DISTINTOS MUROS, TALES COMO DE CARGA (CONCRETO ARMADO), CORTINA (COMPUESTO DE VIDRIO Y ALUMINIO) Y DIVISORIOS (COMOTABLAROCA,BLOCKDECONCRETOYPANELESPREFABRICADOSDECONCRETO)

ENTREPISOS: SE COMPONE DE UNA ESTRUCTURA DE VIGAS DE ACERO Y PANELES PREFABRICADOS DE CONCRETO ESTOS SE COLOCAN SOBRE LAS VIGAS DE ACERO Y SE FIJAN MEDIANTE CONECTORES METÁLICOS ADEMÁS, CUENTAN CON UNA CAPA DE RELLENO DE CONCRETO COLOCADO ENTRE LOS PANELES Y SU FUNCIÓN ES DE REFUERZOESTRUCTURALYDEAISLAMIENTOACÚSTICO

CUBIERTA: COMPUESTA POR UNA ESTRUCTURA METÁLICA RETICULADA CUBIERTA CON LÁMINAS DE POLICARBONATO TRANSLÚCIDO ESTAS SE UNEN A LA ESTRUCTURA PRINCIPAL (VIGAS Y COLUMNAS) Y A ELEMENTOS SECUNDARIOS (DIAGONALES Y MONTANTES)CONPLACASDEANCLAJE SOLDADURASYPERNOSDEALTARESISTENCIA

FACHADA:APARTIRDEPANELESPREFABRICADOS METÁLICOSYPANELESDEVIDRIO, CADA PANEL DE FACHADA ESTÁ COMPUESTO Y PANELES DE CONCRETO, ESTE ÚLTIMO CUENTAUNACAPAINTERIORDEAISLAMIENTOTÉRMICOYACÚSTICO LOSPANELESSE UNENENTRESÍMEDIANTEUNSISTEMADEJUNTASYCLIPSQUEPERMITEUNACONEXIÓN MECÁNICAYESTANCAENTREELLOS

C O N F I G U
C
R A
I O N E S
4 1 4 1 4 1
Fotografías interiores de espacio en uso Fotografías exteriores e interiores

CORTEPORFACHADA

ARMADURA A BASE DE LARGUEROS Y MONTANTES

CANCEL Y CELOSÍA A BASE DE PERFILES DE HERRERÍA, SOLDADO A ESTRUCTURA

ESTRUCTURA VERTICAL A BASE DE PTR 9"

VIGA IPR PARA SOPORTAR ANCLAJES Y RIGIDIZAR ESTRUCTURA

ESTRUCTURA VERTICAL A BASE DE PTR 6"

LAMINA DE ACERO CAL 10 CON CAPA DE COMPRESIÓN DE CONCRETO APOYADO EN VIGA IR

MURO DE TABIQUE DESPLANTADO SOBRE CONTRATRABE DE COMCRETO ARMADO, CON CERRAMIENTO A BASE DE VIGA IR

CORTINA/CUBIERTA A BASE DE MARCOS DE HERRERÍA Y LÁMINA DE ACERO INOX.

PLATAFORMA A BASE DE LOSACERO CAL 10, CON CAPA DE COMPRESIÓN DE CONCRETO ARMADO, CON REMATE DE PERFIL CPS

442 242 Corte por fachada intervenido

Turn static files into dynamic content formats.

Create a flipbook
Issuu converts static files into: digital portfolios, online yearbooks, online catalogs, digital photo albums and more. Sign up and create your flipbook.