FINAL DOCUMENTATION
DIA20003- Interior Architecture Digital Documentation
Tutor- CANHUI CHEN
Student- Minh Thao Pham- 104204958

CONTENTS
TASK 1- REPLICATE DRAWINGS OF PRECEDENT
Site plan
Ground floor plan
Elevation
Section 1
Section 2
TASK 2.1- DESIGN DEVELOPMENT PROGRESS
Abstract form with small scale
Abstract form with medium scale
Abstract form with large scale
Abstract model on site
Community hall design progress
TASK 2.2- RENDERINGS AND TECHNICAL DRAWINGS FROM 3D MODEL
Site plan
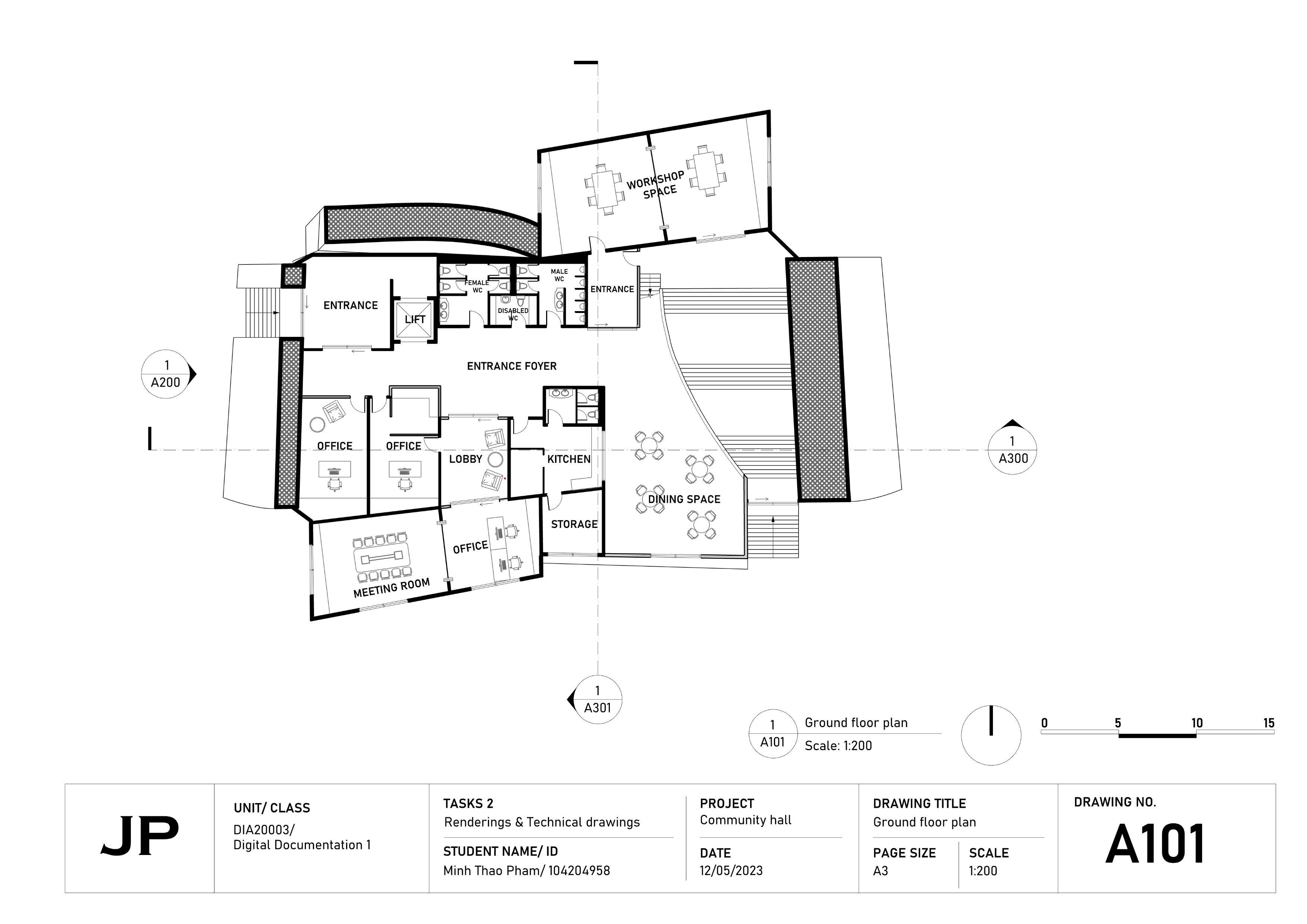
Ground floor plan
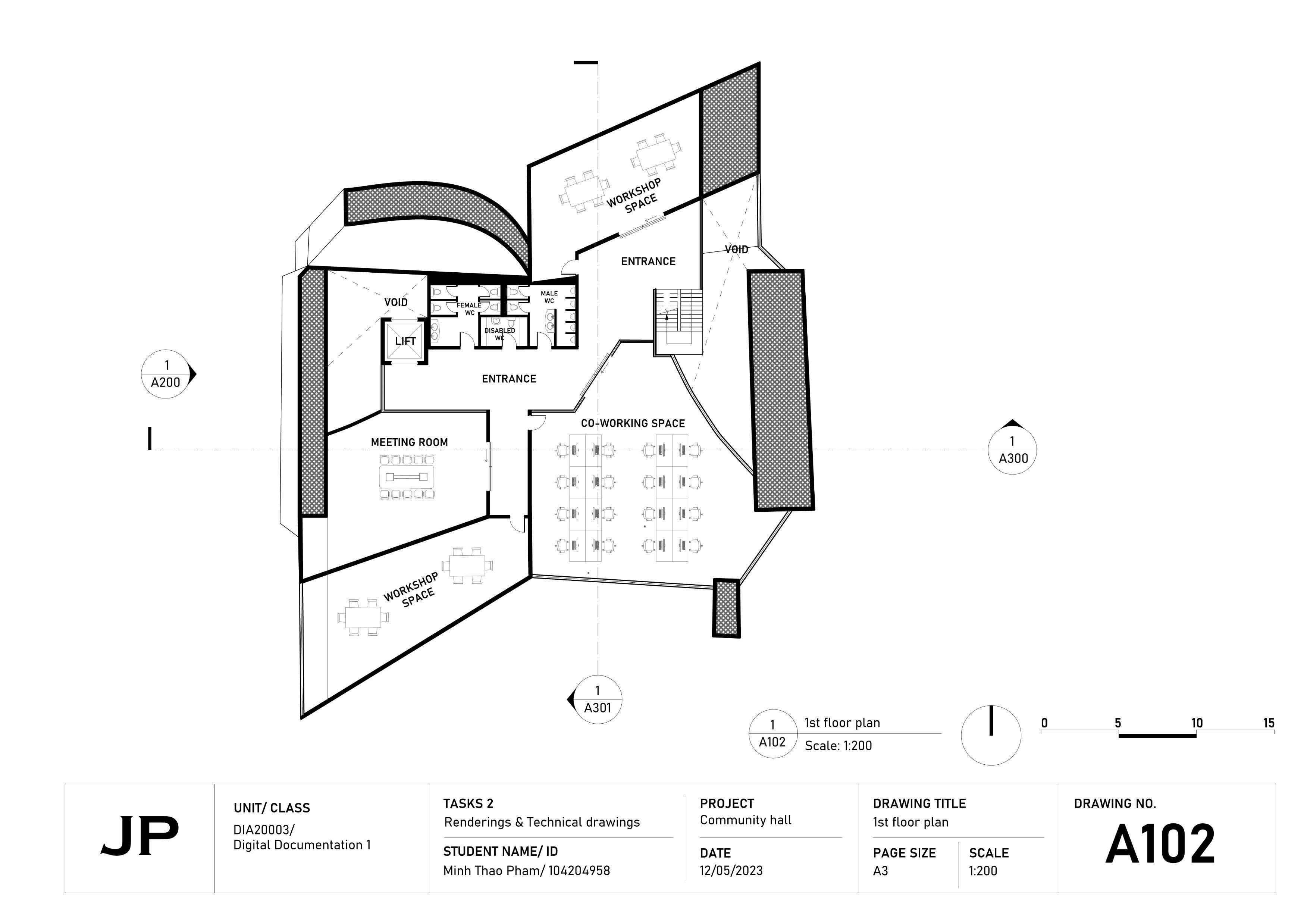
1st floor plan
Elevation
Section 1
Section 2
Exterior rendering 1
Exterior rendering 2
Interior rendering 1
Interior rendering 2
TASK 3- ARCHITECTURAL DRAWINGS WITH TEXTURES
Textured site plan
Textured elevation
Textured section
Exploded axonometric
Forming diagram
Sectional perspective

STUDENT NAME/ ID
























































