Suhela Maini: Portfolio_2024

Page 1


Portfolio

Architecture | Design | Research

Suhela Kaur Maini

As an MA graduate in Architecture and Historic Urban Environments and a trained architect, I bring over four years of diverse experience in the built environment. My expertise spans architectural research, design and delivery, with a strong focus on developing sustainable built environments. Having worked on projects in New Delhi, Mumbai, and London, I have gained invaluable hands-on experience. With a unique perspective and a commitment to climate-responsive design and retrofit, I am eager to work on projects that create meaningful impact on both site and the direction of the profession.

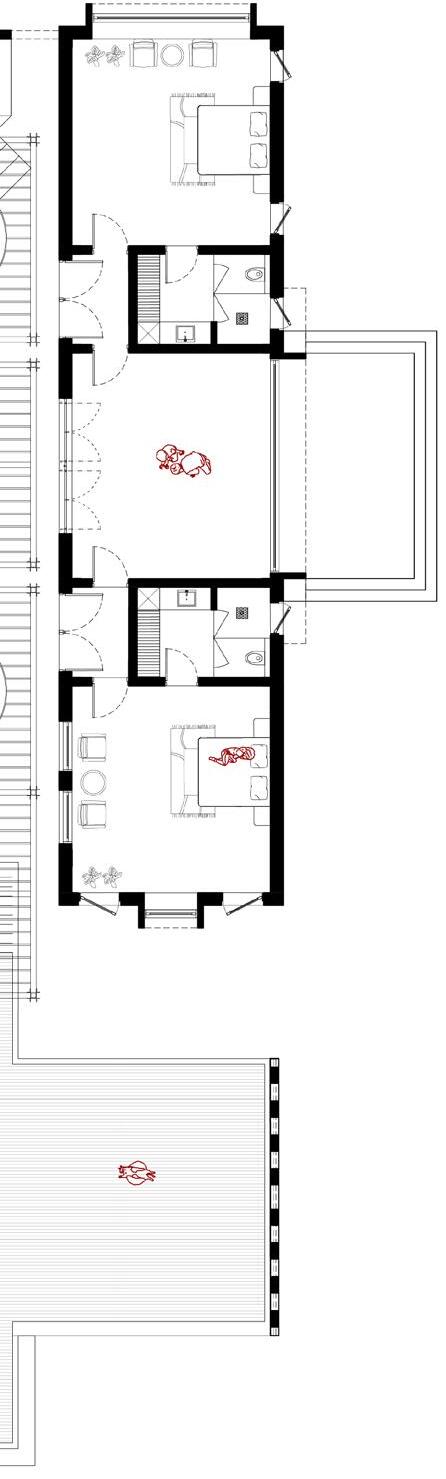
The Brick House

The Brick House is a residential structure in New Delhi. It showcases different spatial experiences that can be created using the humble material-brick.

It is made up of four structures- two residential blocks, a circular guard room and a pump room. All structures use different brick coursing that play with detail as well as projections and perforations. The shadows cast by these serve as a mutual shading device for the two main blocks.

The steel trellis connects the two blocks and casts a shadow on the walls, which defines the relationship between the brick and the sun. A pool, placed strategically between the two blocks, aids the evaporative cooling process, which is one of the passive cooling techniques.

The project engages with the multiple contexts of climate and landscape, materiality and tectonic, sun and shadow, to create a spatial experience that is constantly evolving and engaging.

Team: RLDA Studio, New Delhi, India.

Client: Aggarwal Family, New Delhi.

Location: New Delhi, India

Photography: Suryan//Dang

Year Completed: 2021 Area: 4365 Sq. Ft.

Role: [Project Architect] Brief and Concept Design, Technical Drawings, Coordination, Site Delivery.

North patio

West patio

Trellis courtyard

Interior courtyard

Circular courtyard

Entrance courtyard

Main entry

Foyer

1. Swimming pool

Brick Projections and Perforations

The structure is differentiated by applying five different coursing details with varying perforations and projections, which bring a textured look to the architecture while helping to keep the walls cool by casting shadows. The degree of shade and type of shadow varies

on account of both the brickwork and the angle of the sun, collectively they shade the wall and in doing so contribute to the building’s passive cooling strategies.

2

The Brick House: Site Construction
Images of South Facade
The Brick House: Site Construction
Images of East Facade

PARAPET LVL.

TERRACE LVL. +1'-6" PLINTH LVL.

+0'-0" GROUND LVL.

PARAPET LVL. +13'-10" +3'-0"

TERRACE LVL.

TERRACE LVL.

LINTEL LVL.

PARAPET LVL. +13'-10" +3'-0"

Projection of brick course works as a double skin, by running the brick on the edge and projecting it by 75mm from the wall, a continuous self shading wall is formed, cutting the heat gain.

CILL LVL.

LVL.

+1'-6" PLINTH LVL.

+1'-6" PLINTH LVL.

+0'-0"

+0'-0"

GROUND LVL.

GROUND LVL.

A series of brick projections that are denser at the bottom and sparser as they rise are organized in three equally spaced courses that accentuate the verticality of the buildings and distinguish between the ground plane and the top of the building. Collectively they define the formal language of the project’s elevations.

The Brick House: Looking into different brick coursings

The Doon School Sports Centre

The Doon School’s sports centre stands as a testament to both its rich history and its commitment to modern amenities. Nestled amidst the majestic Himalayan foothills, this 89-year-old boarding school embarked on a series of renovations, culminating in the construction of a state-of-the-art sports facility.

Designed with careful consideration for its surroundings, the sports centre seamlessly integrates with the school’s architectural legacy. Its materiality echoes the timeless elegance of the main school building, which draws inspiration from English Renaissance architecture.

Comprising two distinct blocks, the sports centre caters to a range of athletic pursuits. The squash court block offers dedicated spaces for enthusiasts of this fast-paced sport, while the multi-purpose hall block accommodates various activities and events.

Team: RLDA Studio, New Delhi, India.

Client: The Doon School, Dehradun

Location: Dehradun, India

Photography: Rahoul B. Singh

Year Completed: 2023

Area: 38,135 Sq.ft.

Role: [Project Architect] Brief And Concept Design, Technical Drawings, And Coordination, Site Delivery

The central double height in the multipurpose hall block and the floor to ceiling height glazing in the squash court block allow light to travel through the building. The natural topography and landscape of the site has been incorporated into the design.

The design ingeniously merges the corridor with bleachers, creating dynamic gathering spots for the school’s community. Here, students and faculty can come together to cheer on their peers, fostering a sense of camaraderie and school spirit.

Site model in wood looking at the northern elevation

Site model in wood with a view to the bleachers and pool

1. Tennis Courts
Basketball Court
Court
House (Dormitory) 5.Existing Roads 6. Entrance ramp 7. Semi-open sporting Facility 8. External staircase 9. Entrance foyer
10. Double height mutlipurpose hall 11. Corridor 12. Internal staircase
13. Boys’ changing room/ toilets 14. Girls’ changing room/ toilets 15. Offices/gallery/studio
16. Viewing gallery 17. Squash court 18. Swimming pool deck
Swimming pool 20. Bleachers Floor Plan with Context
Southern side of sports centre overlooking the Olympic-sized swimming pool

Material detailing

The materials exposed brick tiles are used with splashes of stone grit. The material palette was chosen to be sustainable as well as sturdy to serve the sports centre’s interests and block-work is used for the walls.

Local stone (kota) is used generously on all the floors and outdoor spaces, blending in with the green surroundings. The curved corners in the form of staircases soften the edges of the building and use panels of stone grit and brick as detailing.

Viewing Gallery
Squash Courts
Bleachers
Swimming Pool Deck
Detail B: Squash Court Wall Detail

Protruding Brick Course Detail

A corridor gracefully connects these blocks, winding along the southern edge of the building. Serving as both a thoroughfare and a vantage point, this corridor also doubles as a viewing gallery during swim meets, enhancing the spectator experience.

Swimming Pool Deck
Swimming Pool

A Wall as a Room

Walls are used to define space and outline edges, to contain a space within which humans operate. What if this was inverted? Can the wall become a space? Experimenting with anthropometric norms, passive energy systems and salvage material, this installation ties the ideas together with a poetic that plays with the idea of embodiment; both objects and memories. In reference to using space as a resource, Charles Correa in his essay ‘The Blessings Of The Sky’ questions, “How do we increase the supply of urban land?”

Taking a cue from this idea, it may be inferred that everything man needs to survive can be accommodated within three feet; a table, a kitchen platform, and a bed. Every human need can be addressed in simple gestures, with a small footprint.

A single wall can become a room, a house, and as it meanders, a housing cluster. The idea of possession fades to be replaced by sharing, to facilitate the growth of a community.

Team: SRDA, Mumbai, India

Exhibition:’When is Space’, JKK, Jaipur, India

Photography: Suryan//Dang, SRDA

Year Completed: 2018

Area: 3 Sq. Ft.

Role: [Intern Architect] Design Concept, Site Drawings, 3D Visualisation.

Floor plans for ‘A Wall as a Room’

The wall incorporates solely reclaimed materials sourced from Mumbai’s wholesale bazaars. Numerous excursions in the scorching Mumbai sun were undertaken by the team to discover objects for the wall’s design. These found objects were seamlessly integrated into the wall, necessitating an adaptive design approach.

Concept sketched developed for the project
Elevation of the installation// View of the dining room and kitchen

Lay Corrugated Sheet for Roof: 1400mmx1400mm

Insert Rafters for Roofing Framework: 1400mmx75mmx19mm

Insert Rafters for Roofing Framework: 1400mmx75mmx19mm

Insert Composting Toilet

Build Walls: 1200mmx100mm Curtain for Entrance to Toilet

Lay Framework for Flooring: 47mmx50mm Lay Wooden Planks for Flooring: 1200mmx100mmx19mm

Insert Columns in Centre of Foundation Beds: 47mmx100mm

Lay Foundation Beds: 150mmx150mm

Kilburn Grange Park Conversations 4

Looking for an opportunity to design for the community, we chose Kilburn Grange Park and the area around Kilburn Community Garden to focus on. We were searching for a way to collaborate with and learn from the community through a project beyond buildings and physical space, without interfering with the existing common setting of the neighborhood.

In search of a framework to begin our process with, we realized the shortage of such tools for the professional facilitators willing to follow co-design principles. This realization, shifted our focus from designing a physical structure to creating a framework based on which community-based projects can be implemented and sustained.

Moreover, to test and criticize the process, we proposed a small-scale community project in the context of Kilburn Grange Park as an example of how a design intervention can be planned with respect to this framework.

Team:Group Project (Dorna Shafieoun, Matthias Palla, Suhela K. Maini), 2023.

Design Mentor(s): Maxwell Mutanda, Jane Wong, Barbara Campbell-Lange, Lakshmi P. Rajendran.

Course//School: Design Studio, MA Architecture & Historic Urban Environments, Bartlett School Of Architecture, UCL, London.

Plan Of Work Insertion

An Altered Version Of The Riba Plan Of Work

SPATIAL COORDINATION

STAGEOUTCOMEFinalisingdesignforcommunity,identifying volunteersfromwithinthecommunity Finalisingbudgetsandtimelines. CORETASKSFinalisedesignbriefbasedonfeedbackfromusers FinalisescalesfordesigninterventionExploreFundingOptions,Budgetandtimeline Exploreoptionstoinvolvecommunitytoensure sustaineduseandanyrevenuestreamsfromuseof interventions,ifapplicabletoproject Identifyconstraintsforproject

stage 2 stage 3

PREPERATIONAND BRIEFING

AnalysisSiteandResearchProjectStartEngagetheiridentifytohandatcommunitywith needs

STRATEGICDEFINITION OUTCOMESTAGE .communityofneedsandprojectsforaimsIdentifyTASKSCORE projectofaimsIdentifyDefine interventionofarea

RIBA Plan of work provides architects with a tool to organize different stages of a building project throughout its life. Although, it might not be applicable to community projects seeking co-design principals to make the project for and by the community. As a result, we decided to alter this framework to provide a reference for designers and architects as professional facilitators intending to deliver small-scale community projects.

&MANUFACTURING CONSTRUCTION STAGEOUTCOME betweenOverseeworkonsite,coordinatedesignteam,volunteersandusers.CORETASKS MonitorCoordinatebetweendifferentteamsworking workonSite InvolveResolveanyissuesthatcomeuponsitecommunityforanyfeedbackthatcomesupRecordwhileworkingprocessonsiteforfutureprojectsMonitorbudgetthroughprojectcycle

The description of the stages (0-7) represented as a cycle

STAGE I - ANALYSIS

STAGE II - TESTING

STAGE IIIIMPLEMENTATION

Plan of Work’s physical version as a circular manual

An assembled version of the model with context

Different outputs from different stages of the project

Let’s Go For A Walk 5

Exploring Women’s Presence and Histories in the Gullies of Chandni Chowk

The relationship between women and public spaces has been a long complex and multifaceted issue, deeply intertwined with societal and cultural norms, and historical disparities. These factors have had a lasting impact on the way women navigate their way through an urban landscape. The study focuses on challenging these prevailing narratives and reimagining spaces that are inclusive for all genders.

The study incorporates the experiences of six women who visited these gullies from a pre-determined Point A to Point B within Chandni Chowk, and explores their perspectives, analysing their ideas of comfort and safety. The aim is to encourage women to step out of their homes and cultivate a relationship of pleasure with the streets. The collective experiences of the participants find their expression on the website, bearing the title, ‘Let’s Go for a Walk’.

Team:Individual Project, Masters’ Thesis, 2023

Location: Chandni Chowk, New Delhi, India Design Mentor: Dr. Lakshmi P. Rajendran

Course//School:

MA Architecture & Historic Urban Environments, Bartlett School Of Architecture, UCL, London.

LINK TO WEBSITE

Reflections: Feminist Geography

During the analysis of the different walks of women who undertook the activity in Chandni Chowk, there was a noticeable difference in the way men and women populated the streets. In the context of the project, ‘Feminist Geography’, simply translates to the quantity of women compared to men present on the street.

Participant 4 notes, “The men to women ratio was not at par, but being a woman on the main road I did not feel scared.”

The stages of the ‘Feminist Geography’ diagram

The Six walks: The participants’ walks captured through videos allowing a glimpse into their experiences.

South Asian Salon

South Asian Salon is a community-first platform dedicated to connecting, uplifting, & promoting creatives of South Asian descent.

South Asian Salon is founded by a group of immigrant creatives of South Asian descent living in London, seeking to build a community of like-minded, & culturallyrelatable individuals that feels like home.

We hope to cultivate cross-cultural & cross-disciplinary collaborations amongst our South Asian creative community.

Team: South Asian Salon.

Location: London, United Kingdom

Role: Researcher And Illustrator

East London Waterworks Park

East London Waterworks Park is an ambitious community-driven project aiming to transform a former Thames Water depot, situated on the border of Hackney and Waltham Forest, into a vibrant urban nature reserve and community space. This initiative envisions creating a “brownfield rainforest” that combines natural habitats, recreational areas, and educational opportunities. The park will provide essential green space, with features like wetlands, sustainable water systems, and areas for learning and community gatherings.

The project, supported by organizations like CPRE London, also emphasizes biodiversity and aims to restore the site’s historical value while fostering a deeper connection between local communities and nature. It represents a significant step towards increasing London’s accessible green spaces and promoting environmental sustainability.

Team:East London Waterworks Park

Location: London, United Kingdom

Role: Architectural Designer & Community Researcher

Turn static files into dynamic content formats.

Create a flipbook
Issuu converts static files into: digital portfolios, online yearbooks, online catalogs, digital photo albums and more. Sign up and create your flipbook.
Suhela Maini: Portfolio_2024 by Suhela Kaur Maini - Issuu