Rapport de mission AMOE Afrique du Sud

Page 1


MISSION D’EXPERTISE AUPRÈS DE L’ÉQUIPE DE MAÎTRISE D’OEUVRE ENGAGÉE

Ecole Primaire de Matroosbergweg

Belhar, Le Cap

Afrique du Sud

CHAPITRE 1 INTRODUCTION: CONTEXTE ET OBJECTIFS ................ p 05

1.1 Site d’intervention et acteurs

1.2 L’initiative

1.3 Spécificité de la mission d’expertise

CHAPITRE 2 RECOMMANDATIONS STRATÉGIQUES ............................

2.1 Les priorités

2.2 Plan d’action proposé

CHAPITRE 3 MISE

3.1 Approche du site

3.2 Etude et Recherche

3.3 Assurer le financement

3.4 Partenariats

3.5 Planning et construction

CHAPITRE 4 APPROCHE DÉVELOPPEMENT DURABLE ...................... p 23

4.1 Dimension institutionnelle et de gouvernance

4.2 Dimension environnementale

4.3 Dimension Sociale

4.4 Dimension économique

4.5 Dimension pédagogique et de reproductibilité

INTRODUCTION : CONTEXTE ET OBJECTIFS

1.1 Site d’intervention et acteurs

1.2 L’initiative

1.3 Spécificité de la mission d’expertise

1.1 Site d'intervention et acteurs

Cape Town est une ville particulièrement dense, située sur la côte Sud Ouest de l'Afrique du Sud. Elle compte plus de 3,8 millions d'habitants dont une grande fraction habitent dans les zones d'urbanisation informelles dites les Townships. Ces campements comptent des millions de Shacks, ou unités d'habitation informelles, et certains manifestent des taux de précarité extrêmes quant à l'accès aux ressources et aux services de base. De grandes inégalités économiques existent entre les populations habitant le centre ville et les communautés de la banlieue, et cela se manifeste surtout dans le système éducatif et l'accès à l'enseignement.

Le quartier de Belhar est une communauté située dans la banlieue Est de la ville du Cap, dont 90% de la population est métisse (“colored”). L'école primaire de Matroosbergweg, site d'intervention concerné, se trouve dans le compartiment BELHAR 13. C'est une communauté mixte et relativement plus stable par rapport à l'état de précarité des autres banlieues, avec une grande diversité culturelle et religieuse. Malgré le taux de violence et l'instabilité économique de ce quartier, l'école de Matroosbergweg profite d'une bonne gestion et d'un corps administratif actif et motivé pour garder un haut niveau d'enseignement parmi les élèves. Le directeur de l'école, Jeff Arizon, ainsi qu'une bonne équipe de professeurs, veillent à ce que l'enseignement offert aux 1200 élèves de 5 à 12 ans soit un bon expemple parmi les écoles du quartier, et qu'il ne soit pas affecté par l'état de pauvreté et problèmes sociaux confrontés dans les familles des élèves.

L'invitation à ma collaboration dans ce projet est venue initialement de l'architecte Carin Smuts, à travers l'agence locale qu'elle dirige CS Studio Architects. L'architecte concernée, lauréate du Global Award for Sustainable Architecture en 2008, mène des actions dans les Townships et balieues du Cap depuis les années 80, et s'engage dans des projets où la participation citoyenne et l'émancipation des communautés précaires sont au cœur du travail. Smuts s'intéresse particulièrement aux aspects sociaux dans les zones de grande pauvreté, et pose les questions d'une architecture durable qui implique les habitants dans le processus et utlise les ressources locales, en matériaux, en savoir-faire et en énergie. Cette approche s'illustre par le concept de «faire avec ce qu'on trouve sur place».

Cette mission a ainsi été souhaitée pour que j’apporte une assistance / expertise architecturale à l’équipe de CS Studio Architects, comme maitres d’oeuvre locaux, et l’administration de l’école primaire de Matroosbergweg dans la communauté de Belhar 13 pour le développement d’une initiative au long terme comprenant la création d’un hall communautaire au sein de l’école, et la conception et mise en œuvre d’une cuisine pour les élèves

La cour extérieure de l’école primaire, terrain de sable actuellement inéxploité et site d’intervention des projets d’avenir

1.2 L’initiative

Dans la volonté d’améliorer la structure pédagogique de l’école et l’ouvrir également à la communauté de Belhar, l’administration de Matroosbergweg réfléchit depuis des mois à la construction d’un espace public dans un terrain inéxploité faisant partie de l’enceinte de l’école. Ce hall communautaire imaginé servirait à accueillir des activités péri-scolaire et des évènements éducatifs, espace primordial dont l’absence crée un obstacle dans l’épanouissement de l’école. Il jouera également un rôle dans la création d’un échange avec le quartier et facilitera l’organisation d’activités sportives et culturelles en dehors des horaires scolaires, d’autant plus nécessaire que le taux de chômage du quartier est élevé et le manque d’espaces culturels à Belhar est flagrant

Afin de déclencher un processus participatif avec les membres de la communauté, nous avons identifié avec l’école un besoin plus urgent, celui de la création d’une cuisine. C’est un projet à court terme qui a fait l’objet du travail dans ma mission d’appui technique, et qui permet de catalyser par un premier pas démonstratif et très concret, la réflexion des futurs espaces à concevoir. Une action modeste avec des attentes réalistes constitue une approche initiale essentielle d’un travail avec la communauté concernée. Elle permet en effet de détecter les compétences et savoir-faire locaux, d’annoncer le début d’un projet plus global, dans l’espoir de contribuer au changement positif de cette communauté par son implication concrète dans toutes les étapes de l’initiative.

Pendant les deux mois de mission, mon rôle a consisté à réaliser l’étude environnementale et économique du projet, la conception de la future cuisine et la rédaction des lignes directrices pour sa mise en œuvre avec une équipe locale. Elle a conduit également à la conception d’une proposition d’aménagement de la cours extérieure de l’école qui prend en compte le futur hall que l’école souhaite construire, et qui tente de traduire architecturalement la vision de l’avenir de celle-ci. L’espace actuel de la cuisine existante occupe une salle de classe dans un bâtiment de l’école, à laquelle les élèves ont accès deux fois par jour, matin et midi, pour obtenir leurs plats. Cette configuration fait perdre à l’école un espace éducatif car l’école est déjà en manque de salles de classe. Par ailleurs sa disposition est dangereuse parce que les élèves sont servis à proximité des outils de travail du personnel (couteaux, marmites, poêles,..). Il fallait donc construire un lieu adapté, mieux ventilé (comfort thermique), et sécurisé pour cuisiner, avec une ouverture qui permet de servir les plats sans que les élèves aient accès à l’espace technique du personnel.

1.3 Spécificité de la mission d’expertise

Suite à notre rencontre lors de sa visite à Montpellier en 2015, l’architecte Carin Smuts a suivi le travail que j’ai initié dans le cadre de mon projet de fin d’études (PFE) et a ensuite proposé que je participe, au sein de son équipe, avec mon expérience et mon savoir-faire acquis en France et Espagne au projet sus-mentionné. J’ai suivi pendant deux ans à l’Ecole Nationale Supérieure d’Architecture de Montpellier, le Master Architecture et Milieux, domaine d’étude mettant en avant une vision globale de développement durable. Cet enseignement met l’accent sur les enjeux environnementaux d’une architecture située notamment autour d’approche bioclimatique des projets en même temps qu’il est préoccupé par les enjeux socioéconomiques et socio-culturels . J’ai également co-fondé l’association « Laboratoire Urbain », à travers laquelle j’ai réalisé mon PFE de conception et de construction participative d’un espace public dans un quartier populaire de Montpellier, La Paillade. A travers le travail de cette association et une réelle dynamique collective, j’ai pu développer des outils et méthodologies diverses dans l’engagement citoyen, et la vulgarisation du langage technique comme support de concertation avec les habitants.

Mon rôle au sein de l’équipe du projet, au delà de mon expérience dans la conception environnementale et le développement durable, se concrétise aussi dans la facilitation du dialogue entre la structure de maîtrise d’oeuvre Sud-Africaine et le monde académique, pour ainsi créer des partenariats et établir un dialogue entre les étudiants Francais et Sud Africains autour d’un projet socialement et environnementalement responsable, qui souhaiterait constituer un modèle pour les écoles des banlieues du Cap et un exemple à diffuser dans plusieurs écoles.

RECOMMANDATIONS STRATÉGIQUES

2.1 Les priorités

2.2 Plan d’action proposé

2.1 Les priorités

>> L’étude technique du projet de cuisine, et le développement de stratégies et lignes directrices pour la mise en œuvre et la construction, issues de la conception d’un espace adapté au climat et ressources du lieu.

>> Développer un comité de pilotage avec les membres de la communauté concernée, qui fait le lien entre l’équipe des techniciens et les futurs usagers, afin de construire la capacité organisationnelle des acteurs et assurer leurs compétences de gestion après la construction de la structure.

>> Assurer les financements et les dons de matériaux adaptés auprès des fournisseurs avec une attention envers la mise en œuvre et le futur entretien de la structure par des artisans locaux.

>> Etablir des partenariats et collaborations avec des entités locales tel que l’Université de Cape Town et des associations locales.

>> Etablir des partenariats internationaux avec le consulat de France, écoles d’architecture en France, et organisations internationales afin de créér un échange autour du projet et offrir des pistes de soutien à l’école de Matroosbergweg dans son initiative de revalorisation de sa structure à long terme.

2.2 Plan d’action proposé

>> Souligner le potentiel pédagogique de l’initiative, par l’engagement des étudiants dans l’université locale du Cap et leur responsabilisation envers les enjeux sociaux, économiques et environnementaux de leur ville. Cet échange mutuel entre Belhar et le monde académique de la ville est un point fort dans la sensibilisation des futurs professionnels par rapport aux besoins de la population et la confrontation de la précarité des banlieues. C’est également une opportunité d’apprentissage pour les étudiants sur un cas pratique, en travaillant avec une réalité de terrain concrète.

>> La formation qualifiante et le développement de compétences locales dans le processus, et cela en offrant un apprentissage dans divers corps de métier du bâtiment à travers la construction de la structure concernée. l’implication des parents d’élèves en premier lieu est essentiel afin de générer fierté et pensée positive dans la concrétisation du projet par une participation active à sa réalisation. Le personnel de l’école, surtout l’équipe actuelle de la cuisine, est à sensibiliser en second lieu sur les enjeux environnementaux et les bonnes pratiques dans la future cuisine (gestion des déchets, ventilation naturelle, traitement des eaux...).

>> Impliquer une main d’oeuvre locale, ainsi que des artistes des Townships dans la conception et la construction pour générer des bénéfices économiques locaux et faire en sorte que le projet dynamise le quartier et crée des opportunités de travail dans une banlieue au très fort taux de chômage.

>> Renforcer la présence de l’école dans la communauté de Belhar et sa capacité d’influencer la dynamique du quartier comme bon exemple, ce qui explique le souhait de l’administration de

s’ouvrir à l’extérieur et créer un réseau de relations avec toutes les écoles de proximité.

>> Evaluation de la dimension d’auto-suffisance (énergétique, alimentaire et de gestion) dans le projet de cuisine et dans celui du hall communautaire en relation avec la vision de l’avenir de l’école. Comment créer une approche durable globale de l’initiative en lien avec le contexte social, l’environnement et les ressources locales? Des actions sont prévues pour le suivi et l’évaluation du projet afin de faire évoluer ces stratégies et méthodologies. Ainsi le projet donne lieu à la création d’un comité de pilotage local, à une seconde phase de travaux prévue entre Mai et Juin pour l’achèvement de la construction, à l’évaluation des résultats scolaires des élèves dans l’année à venir, à la conduite d’une enquête (avec questionnaires) dans le quartier, à la rédaction, à la fin de l’année scolaire (décembre 2017), d’un rapport sur les activités créées autour de la future cuisine avec son entretien par le personnel de l’école et l’évaluation de sa contribution à la dynamique sociale du quartier

La cuisine actuelle de l’école en heures de service

MISE EN OEUVRE DU PROJET

3.1 Approche du site

3.2 Etude et Recherche

3.3 Assurer le financement

3.4 Partenariats

3.5 Planning et construction

3.1 Approche du site

Des visites du site afin d’effectuer des relevés de terrain et de déterminer l’emplacement le plus adéquat de la cuisine dans la cour extérieure ont précédé l’étude. Une évaluation des besoins des usagers a également eu lieu à travers des rencontres avec l’administration et le personnel de l’école et de l’actuelle cuisine. Cela a permis de comprendre le fonctionnement de leurs activités et le déroulement des repas. Il a fallu faire face aux attentes réalistes des acteurs, tel que l’emploi de matériaux non coûteux pour éviter leur vol, éviter les grandes ouvertures vitrées qui seraient cassées, offrir un accès sécurisé à la cuisine pour le personnel tout en gardant les élèves à distance des outils de travail. Ce sont des conditions de vie violentes et précaires auxquelles le projet doit répondre tout en offrant un cadre de vie dont l’école peut être fière, avec un fonctionnement adapté aux vrais besoins et capacités. Des sessions de réflexion autour de la conception de l’espace, l’approche environnementale, le traitement des déchets et des eaux ont ensuite été accompagnés par des maquettes et dessins. Ces discussions nous ont permis de comprendre mieux l’évolution du climat pendant l’année et son influence sur les activités scolaires. Nous avons par la suite initié un processus de sensibilisation auprès du personnel de cuisine autour du fonctionnement technique du bâtiment ainsi conçu, qui doit dépendre de la protection solaire et de la ventilation naturelle (fenêtres réglables et tourelles de ventilation en toiture), et mettre en avant les bonnes pratiques à mettre en place afin d’atteindre une certaine auto-suffisance (énergie, compostage, recyclage, traitement des eaux,...).

La connaissance des ressources humaines et matérielles a fait partie de cette première approche. Nous avons rencontré des artisans du quartier afin de connaître leur savoir-faire et l’adapter à la conception du bâtiment. Nous avons aussi identifié une déchetterie privée de proximité, dont les propriétaires se chargent de démolir des bâtiments, trier leurs matériaux et les revendre à un prix minime. Nous avons opté pour le réemploi de certains matériaux en bon état (planches de bois, tôles, carrelage, portes et fenêtres) issus de la démolition comme aspect central du projet, économiquement et environnementalement viable.

Présentations réalisées à l’école

Visites régulières de l’école et évaluation des besoins

Matériaux issus de démolition identifiés à la déchetterie de proximité

3.2 Etude et recherche

Une étude du climat et de l’environnement local (c.f. annexes), une compréhension de l’ensoleillement, des vents dominants et des pluies annuelles, ont permis de générer une configuration spatiale adaptée en proposant un aménagement de la cour extérieure de l’école (actuellement un terrain de sable inéxploité). Il s’agit d’un programme basé sur les besoins cités par le personnel de l’école après diverses réunions et réflexions, avec une attention spéciale aux enjeux environnementaux et climat local. Ainsi le programme comprend un hall communautaire créant un nouvel accès au terrain depuis le parking (pour assurer son ouverture indépendante pendant les vacances), et un direct lien avec la cuisine, des potagers à proximité assurant une indépendance au niveau de la nourriture, une proposition pour la construction de nouvelles salles de classe maternelle, et des salles dédiées aux activités musicales et culturelles. L’aménagement s’assure que les espaces extérieurs de la présente configuration génèrent des espaces protégés des vents dominants Nord-Ouest et Sud-Est avec des orientations Nord pour le captage solaire hivernal et des protections solaires adaptées.

L’espace extérieur de la cuisine a constitué un sujet de réflexion important, où les élèves peuvent être servis dans un lieu protégé des intempéries. Ce dernier consiste en une terrasse de 36 m2 couverte par une large toiture en tôle, orientée au Nord, avec des écrans sur la périphérie pour faire face aux vents dominants Nord-Ouest (peu récurrents pendant l’année). Cette conception empêchera la pluie et le sable emportés par les vents forts l’hiver de gêner les élèves au moment du repas. Le volume technique de la cuisine, un espace de 27 m2, protège

Croisement du site d’intervention avec les données climatiques principales

Futur aménagement de la cour Nord extérieure de l’école 1. accès principal 2. nouveau parking 3. nouveelle entrée au Hall 4. librairie 5. Hall communautaire 6. centre culturel 7. salles de classe maternelle 8. cuisine 11. jardin potager

la terrasse par son orientation contre les vents dominants Sud-Est, plus récurrents dans l’année. Il s’agit d’un espace pour cuisiner et d’un espace de stockage sécurisé contre le vol. Cet espace profitera d’un local technique à l’arrière avec une installation dédiée au compostage, un point de collecte des déchets de recyclage et un réservoir pour la récolte des eaux pluviales au point plus bas de la toiture. Ces eaux serviront au nettoyage de la cuisine et à l’arrosage du futur potager sachant que le Cap au climat estival très sec est confronté à des grandes périodes de restriction de la consommation en eau potable.

Les éléments graphiques nécessaires pour la construction ont profité d’aller-retour avec un ingénieur structure et un ingénieur électricien, avec des visites de site et des tests sur place pour certifier que les fondations prévues conviennent à la qualité des sols. Les installations futures prévoient la construction d’un bassin de phyto-épuration pour traiter les eaux de lavage, ce qui évitera l’installation d’un long réseau des eaux grises entre la nouvelle cuisine et les bâtiments existants de l’école. Une initiation au concept de la phyto-épuration et une sensibilisation autour de l’intérêt de cette installation a fait l’objet d’une session de réflexion avec le personnel de l’école.

Le choix des matériaux a été influencé par différents paramètres: les dons que nous avons réussi à obtenir des fournisseurs, le savoir-faire local existant dans le quartier, et l’impact environnemental des choix constructifs. Les semelles de fondation seront ainsi en béton, et les éléments verticaux en brique rouge fabriquée localement et construits en double murs pour assurer une meilleure isolation thermique. La structure consiste en un système potau-poutre en bois issu de la région de Western Cape. Les ouvertures, portes et fenêtres, sont issues de démolitions et profiterons d’une seconde vie dans la future cuisine.

Visualisations réalisées du futur aménagement et de la nouvelle cuisine dans le contexte actuel de l’école

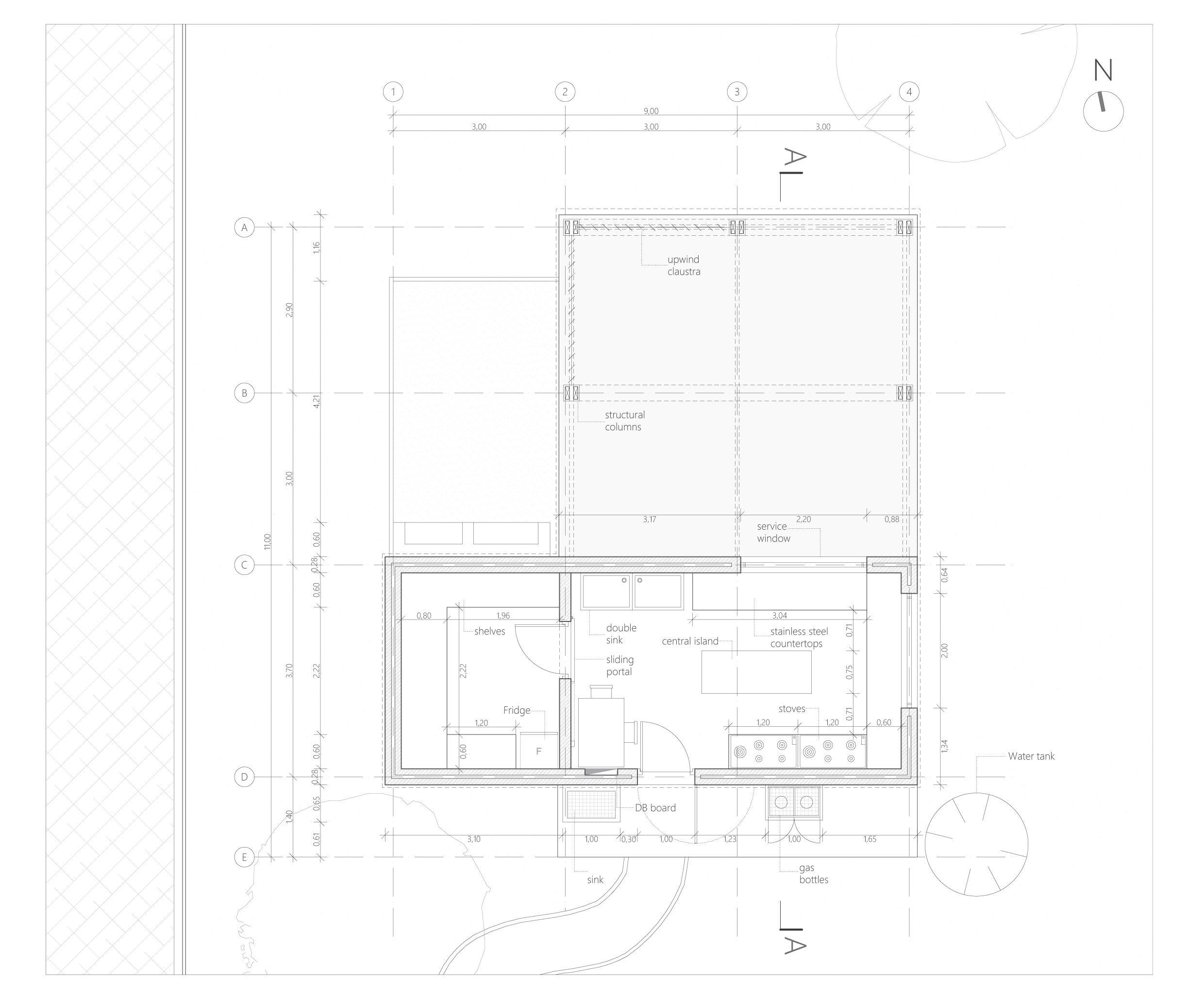
Douments techniques réalisés en plan et coupe pour la construction de la cuisine

Douments techniques réalisés en plan et coupe pour la construction de la cuisine

3.3 Assurer le financement

Nous avons contacté quotidiennement les fournisseurs de matériaux et les entreprises locales après avoir effectué une évaluation financière du coût total et une quantification du projet. Des calculs ont précisé les quantités de matériaux à commander et des propositions ont été communiquées à différents fournisseurs. Certains ont requis des rencontres et présentations avec des déplacements afin de connaître les matériaux et déterminer les choix constructifs qu’ils engendrent. Jusqu’à présent, nous avons obtenu 12000 briques, de la peinture, 15 m3 de béton pour les fondations et la dalle, 100m2 de tôle pour la toiture et les écrans de terrasse, et un évier pour la cuisine.

3.4 Partenariats

J’ai profité de ma présence au Cap pour établir des relation et inviter des acteurs locaux à collaborer dans l’initiative. Un partenariat avec Mbuyiseli Somdaka, un artiste de mosaique du Township de Delft, a été défini afin de faire un atelier avec des élèves en difficulté d’apprentissage (de 11 à 12 ans) pour la décoration des murs et mobilier de la cuisine. Cela leur permettra de se familiariser avec le travail manuel et de s’initier aux disciplines plus adaptées à leurs orientations.

Une collaboration a été créé également avec l’Université de Cape Town, au départmenet d’architecture et à la faculté d’économie de la construction. Après plusieurs réunions et une présentation auprès des étudiants, un accord a été établi avec les professeurs concernés en vue de la participation des étudiants à la fabriquation du mobilier de la cuisine et des éléments de construction (écrans et carreaux de sol), dans le cadre de leur cursus.

Un partenariat a été établit avec une association locale gérée par des étudiants de l’Université du Cap, “Habitat For Humanity”, après quelques réunions et visites de site ensemble. Les membres de la structure participeront volontairement à la construction (murs en brique et structure de toiture) pendant les weekend à partir de fin Avril, dans le cadre d’ateliers de construction dirigés par les artisans locaux.

3.5 Planning et construction

Le planning du chantier a consisté en un calendrier détaillé des tâches à accomplir et les délais à respecter dans la construction afin de guarantir une livraison avant le début d’hiver (fin Juin). Nous nous sommes également chargés de la logistique du projet: livraison des matériaux au site, sécuriser le chantier, récupération des matériaux à recycler, assurer le prêt des outils nécessaires, former une équipe locale pour la construction...

Le prolongement de mon séjour pendant la mission, sous motivation d’appui technique, m’a permis d’assurer le début du chantier dans les bonnes conditions et la gestion des premières étapes de la construction. Nous avons ainsi creusé les fondations à partir du 27 Mars 2017, avec une équipe de 5 personnes dont 4 font partie du personnel d’entretien de l’école et un habitant du quartier. Les semelles ont ainsi été coulées le 30 Mars. Les murs de fondation en briques sont actuellement en construction avec un artisan local (semaine du 10 au 14 Avril).

Equipe de travail sur le site
Livraison des briques au chantier

Démarrage du chantier avec les fondations

Bâtiment achevé et mise en fonction de la cuisine été 2017

APPROCHE DÉVELOPPEMENT DURABLE

4.1 Dimension institutionnelle et de gouvernance

4.2 Dimension environnementale

4.3 Dimension Sociale

4.4 Dimension économique

4.5 Dimension pédagogique et de reproductibilité

4.1 Dimension institutionnelle et de gouvernance

L’émancipation du système éducatif que cette initiative permet et le renforcement de son influence sur le quartier dans le contexte des banlieues en situation spécifique, est de grande importance quand il s’agit de l’ouverture de l’école primaire à la génération d’une dynamique locale. La collaboration entre le monde académique et le quartier contribue à un meilleur exercice pédagogique par l’action positive des étudiants de la ville dans les communautés qui ont de forts besoins. Cette collaboration est appuyée par la motivation que de nombreux étudiants de l’Université du Cap ont exprimé pour participer au projet dans leur temps libre et dans le cadre de leur cursus, suite aux présentations que j’ai faites du projet au campus universitaire.

4.2 Dimension environnementale

Une conception bioclimatique qui prend en compte l’orientation, l’ensoleillement et les vents dominants assure les bases d’une conception environnementale du projet. Ce dernier traduit le souhait des usagers de réduire leur dépendance énergétique par la réduction des besoins en électricité et l’emploi de panneaux solaires thermiques (pour le lavage). L’installation d’un bassin de photo-épuration pour le traitement des eaux grises de la cuisine, la récupération des eaux pluviales et la minimisation de l’impact environnemental global de la cuisine par le recyclage et et le compostage, manifestent une conscience assumée par les acteurs locaux et témoignent de leur volonté de préserver l’environnement face aux enjeux climatiques actuels.

4.3 Dimension sociale

Une émancipation citoyenne à travers le projet constitue un pilier essentiel de cette action: le personnel scolaire, le personnel administratif et futurs usagers, ainsi que les parents d’élèves ont tous leur place dans ce processus participatif et ouvert. l’engagement des acteurs concernés dans toutes les étapes de l’initiative assure non seulement une amélioration de la justice sociale dans un quartier à difficulté, mais il permet aussi la future gestion et l’entretien du projet par ces acteurs grâce à un processus inclusif. Ces derniers deviennent ainsi acteurs de leur environnement et d’un projet dont ils seront fiers d’avoir assumé la mise en œuvre.

4.4 Dimension économique

Le processus du projet a conduit à une réflexion profonde sur l’auto-suffisance que l’école souhaite atteindre et les actions nécessaires à sa réalisation (sessions de sensibilisaton sur la gestion des déchets, l’efficacité énergétique du bâtiment conçu, l’emploi des énergies

renouvelables). Cela n’influence pas seulement le coût de mise en oeuvre du projet mais possède aussi un impact positif sur les dépenses générées par l’entretien et le fonctionnement du bâtiment dans le futur. Un point central dans l’économie circulaire se concrétise aussi par le réemploi des matériaux issus des démolitions, ainsi que la conception soucieuse des ressources et matériaux locaux. Nous avons également insisté sur l’importance d’employer une main d’oeuvre locale dans la construction de la cuisine pour ainsi contribuer à la dynamique économique du quartier concerné et générer de l’emploi à travers le chantier.

4.5 Dimension pédagogique et de reproductibilité

>> L’importance d’engager la communauté locale et la main d’oeuvre issue du quartier dans la conception ainsi que la construction de tels projets est à souligner, afin d’assurer leur continuité et réussite. Ces actions se concrétisent par des sessions de réflexion, des workshops avec les différents acteurs, discussions autour de maquettes, des questionnaires et des évaluations continues des besoins. Il faut penser aux premiers usagers et ceux qui profiterons de manière directe du projet, et considérer en second lieu la relation du projet avec tout le quartier au long terme et ce que les autres écoles de proximité possèdent. Cela nous mènera à mettre en avant ce que le projet actuel peut contribuer aux autres écoles et la possibilité de créér un réseau local des écoles en renforçant les échanges et le retour d’expériences.

>> Appuyer le processus de sensibilisation dans ces initiatives est important, dans l’optique d’introduire les futurs usagers aux enjeux économiques et environnementaux et assurer une future gestion responsable du projet. Il faut assurer une présentation vulgarisée et accessible des processus tel que le bon usage de certains dispositifs, le compostage, le recyclage, le traitement des eaux, la ventilation naturelle et l’intérêt de maintenir une approche éco-responsable. Une possibilité se propose dans la continuité de ces actions, c’est celle de la création de manuels d’usage afin de rendre accessible cet apprentissage et le répandre parmi les autres écoles.

>> Les collaborations avec des acteurs locaux, surtout associations, universités et étudiants, apportent une dimension primordiale au projet. Le bon accueil de la part de la faculté témoigne du grand besoin pour ce type de projet auquel les étudiants n’ont pas toujours accès. Les présentations auprès des étudiants de l’Université de Cape Town montrent qu’ils opossèdent peu de connaissances du contexte des banlieues mais ils sont motivés pour y contribuer à travers leur cursus. La prochaine étape s’annonce par une réflexion sur comment créer des passerelles entre les besoins des communautés pauvres et le monde académique, et établir des relations plus durables tout en renforçant le système pédagogique.

>> Des échanges possible avec la France et différentes structures Eurpéennes seront considérés dans la continuité de cette initiative. Des partenariats avec des écoles d’architecture en France (créer des passerelles avec le cursus universitaire) ainsi que des associations dont les domaines de compétences peuvent apporter une certaine épaisseur au projet sont en cours de discussion. Dans cette perspective, des portes peuvent s’ouvrir aux jeunes Francais souhaitant acquérir une expérience pratique à l’international, tout en contribuant à un projet socialement et environnementalement responsable, dans le cadre d’échanges culturels et de compétences avec les acteurs locaux au Cap.

ANNEXES

L’environnement local

Le cap se caractérise par un climat méditerranéen avec un été chaud et sec et un hiver humide. L’hiver, qui s’étale entre Juin et Août, témoigne de fortes pluies, avec des variations de températures moyennes entre 18.0 °C et 8.0 °C. En second lieu, l’été est sec et témoigne souvent de restrictions sur la consommation en eau en vue de la rareté des pluies, avec des températures moyennes variant entre 16.0 °C et 26.0 °C. Un vent fort Nord-Ouest persiste en période d’hiver, alors qu’un vent frais Sud-Est domine surtout entre la fin du printemps et l’été.

Simulation des données climatiques de la ville du Cap à l’aide du logitiel Climate Consultant, afin de guider les stratégies de conception surtout concernant l’orientation du bâtiment et les ouvertures en facades.

Stratégies de design

Des lignes directrices one été établies avec plus d’attention aux heures de fonctionnement de la cuisine, entre 6:00 et 14:00, afin d’optimiser le comfort thermique maximal pendant cette partie de la journée. En considérant le fonctionnement de la cuisine et son équipement et la présence de deux à trois individus en activité non statique, les besoins en réchauffement sont réduits en hiver, en assurant une bonne isolation en toiture et murs de facade (double murs) et un gain thermique suffisant par les ouvertures. Les réchauffements thermiques sont également réduits en été par la protection des ouvertures et la création d’un espace profitant d’une ventilation naturelle grâce aux vents dominants. Les stratégies de conception d’un bâtiment passif, dont les besoins en chauffage et climatisation sont éliminés, ont ainsi été définies:

>> L’ombre offerte par la toiture en tôle et l’orientation des ouvertures protégées vers les vents dominants Nord-Ouest et Sud-Est, assure une ventilation naturelle et élimine le besoin en climatisation pendant les mois d’été où les températures entre matin et midi dépassent les températures de comfort.

>> Un plan étroit maximise la ventilation naturelle transversale entre les ouvertures, d’où la stratégie de créér un volume qui ne dépasse pas les 3,5 mètre de large, avec une configuration longitudinale de l’espace.

>> pour un réchauffement solaire passif, l’ouverture la plus importante sera orientée vers le Nord. La terrasse couverte est également située sur le côté Nord du bâtiment, avec des écrans réglables en réponse aux vents dominants et aux gains solaires en heures de matinée pendant l’été, quand le soleil est en position basse.

>> Positionner l’ouverture Nord (donnant sur la terrasse) et la porte d’entrée (accès technique Sud) sur les côtés opposés des facades afin de simuler une ventilation transversale.

>> Eliminer les ouvertures et réduire la surface de facade côté Est afin de réduire le gain thermique en fin de journée pendant l’été.

Etude du diagramme de Givoni, à l’aide du logitiel Climate Consultant, définissant la zone de comfort selon les critère pré-sélectionnées par rapport aux températures moyennes (entre 20 °C et 24 °C) et l’humidié relative (80%), et donnant lieu aux stratégies de conception dans cette zone.

Existing schools in Belhar

Maquettes d’étude réalisées comme support de concertation avec les acteurs concernés, ainsi qu’un outil d’étude de l’ensoleillement et de l’impact des bâtiments sur leur entourage.

Planning de la construction et délais des différentes phases de chantier

Turn static files into dynamic content formats.

Create a flipbook
Issuu converts static files into: digital portfolios, online yearbooks, online catalogs, digital photo albums and more. Sign up and create your flipbook.
Rapport de mission AMOE Afrique du Sud by Stephanie El H. - Issuu