

Beautifully Maintained

![]()








Perfectly positioned in the highly sought-after Eastern View Estate. This home offers a rare combination of convenience, comfort, and lifestyle, making it ideal for families, first-home buyers, and downsizers alike. Located close to town yet tucked away in a peaceful and quiet pocket, it’s the perfect place to enjoy relaxed, everyday living.
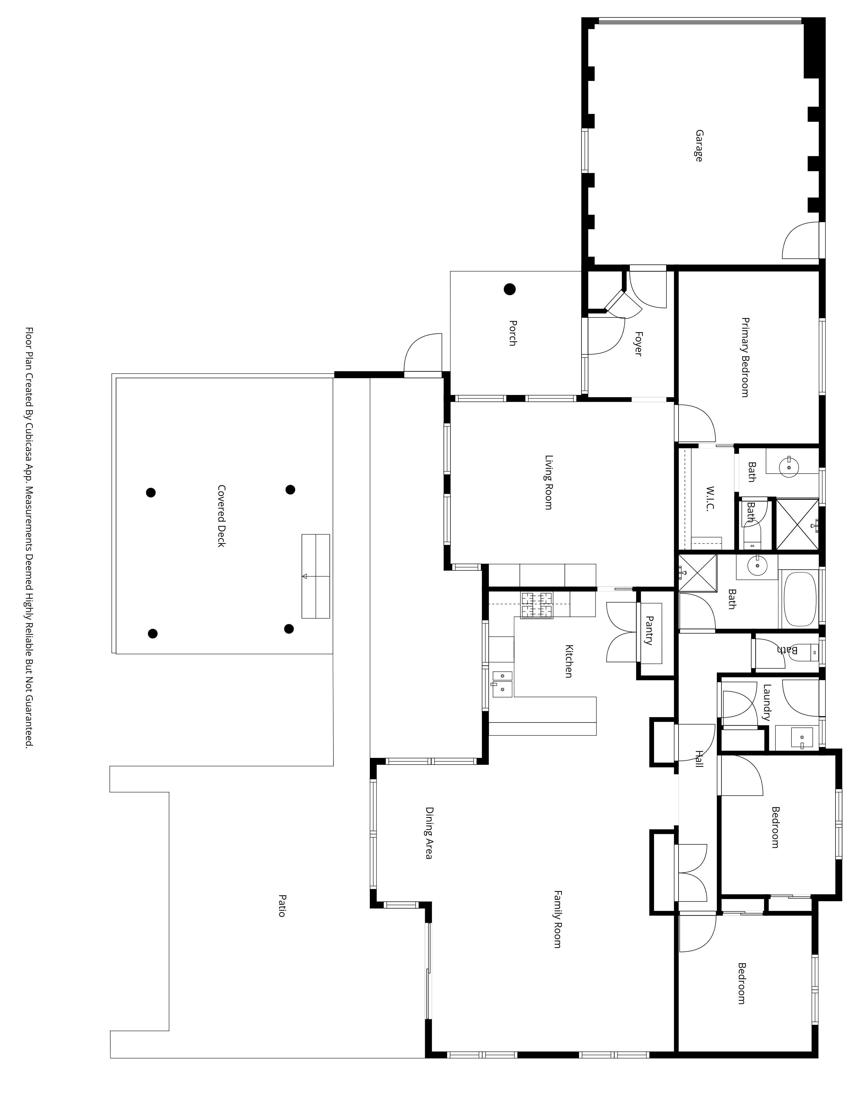
Step inside and discover a thoughtfully designed floor plan that prioritises comfort and practicality. The master, positioned at the front of the home, features a spacious walk-in robe and private ensuite whilst the remaining bedrooms are situated towards the rear, offering privacy and separation. Two living spaces provide versatile areas for family gatherings, movie nights, or quiet relaxation.
The heart of the home flows seamlessly to the outdoors, where a large, flat backyard creates an inviting space for children to play and pets to roam freely. With direct access to the rear walking track, this home encourages an active, outdoor lifestyle and easy connection to the surrounding parks.
Additional features:
- Peaceful and quiet location in a sought-after pocket
- Large, flat backyard with direct access to a rear walking track
- Two separate living areas for flexibility and family-friendly living
- Located within walking distance to the Homemaker Centre and Bunnings
ADDRESS: 63 Rivergum Drive, East Albury
FOR SALE: Contact Agent
Land Size: 718m2 (approx.)
Rates: $1965.23 p.a. (approx.)
3 Bedrooms
2 Bathrooms
2 Car




