

![]()








Welcome to 515 North Street, an elevated home with sweeping views across Albury city and the Albury Golf Course. Set on a manageable 760m² (approx.) of prime land, this exceptional residence blends timeless charm with modern sophistication in one of Albury’s most prestigious and sought-after locales.
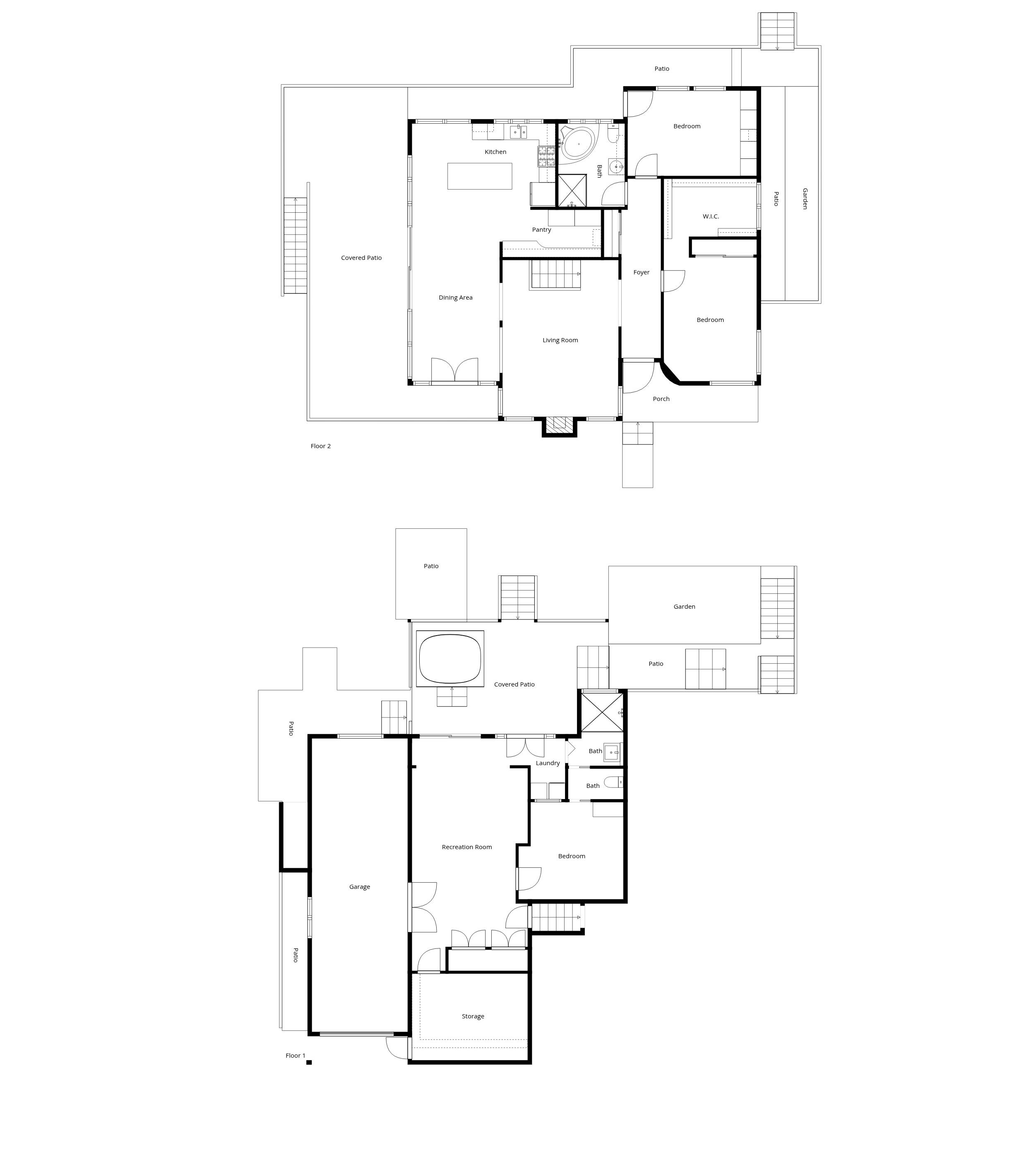
From the moment you arrive, the home’s unique façade where curved brickwork is a feature and inviting street presence set it apart. Inside, the entry is flooded with natural light from feature windows, and the layout is thoughtfully designed to maximise both light and functionality. Admire the Murray Pine floor boards that adorn the main living dining and kitchen areas, whilst the formal living room offers a peaceful retreat with a gas log fire for warmth and ambience, while the separate dining room connects seamlessly to an entertainers delight kitchen, complete with high-quality finishes and modern appliances.
The home features three bedrooms: two located upstairs and a third downstairs, which includes its own ensuite and toilet. The master bedroom is a tranquil sanctuary with a large dressing room and robe. The upstairs family bathroom is generously sized and includes a spa bath. The downstairs bedroom is complemented by an additional living space and access to a second outdoor entertainment area, making it ideal for guests, teenagers, or extended family.
A standout feature of the home is the expansive undercover deck, which captures panoramic views from all vantage points and is perfect for year-round entertaining. The secure backyard is a private haven for children and pets, with ample space and potential for a pool, extension, or additional structures (STCA).
The home’s styling is an eclectic mix of old and new, creating a warm and character-filled atmosphere throughout. Practical features include a European style laundry, extensive storage, and a garage and carport that can accommodate three vehicles.
Located just a short stroll from Albury’s vibrant Dean Street, Albury golf Course, Nail Can Hill, this home offers unmatched access to cafés, restaurants, and bars, blending regional charm with urban convenience. Despite its central location, the generous block size ensures a sense of space and tranquillity rarely found in such a premium setting. This residence is more than a home—it’s a lifestyle opportunity. Whether you’re drawn to its immediate appeal or inspired by its untapped potential, 515 North Street offers a rare chance to secure a truly distinctive property in one of Albury’s finest locations
ADDRESS: 515 North Street, Albury
Expressions Of Interest Closing 11th Nov at 12noon
Additional Features:
- Sweeping views to the North and South
- 3 Bedrooms, two bathrooms
- Multiple living zones
- Undercover entertaining area, for year-round enjoyment
- Reverse cycle cooling with ducted gas heating throughout




