
Set on a generous 805sqm allotment


Set on a generous 805sqm allotment
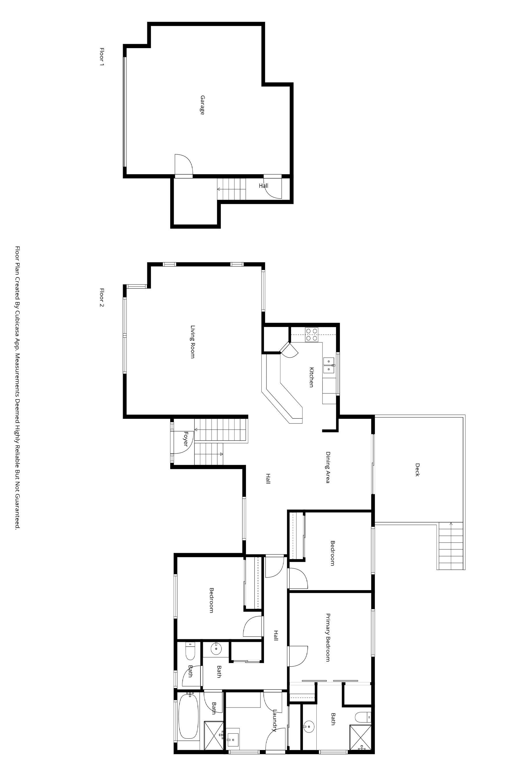
Tucked away in a quiet pocket, this charming red-brick home sits elevated and proud. Combining elegance, space, and style, it is perfectly suited to downsizers, families, or first-home buyers.
The floorplan unfolds across two levels. Upon entry, you are guided upstairs to the main living zone, which hosts three generous bedrooms, two bathrooms, a laundry, and an open-plan kitchen, living, and dining area.
The kitchen takes centre stage, boasting an electric oven, induction cooktop, dishwasher, and ample cupboard space. Adjoining the kitchen, the spacious lounge captures sweeping views over Albury and the rolling hills beyond. A dedicated dining area provides the perfect setting for both intimate gatherings and lively entertaining, while glass sliding doors seamlessly extend the space out to a private alfresco.
Accommodation comprises three well-sized bedrooms, each with built-in storage. The master is generously proportioned and features a discreet ensuite, while a central family bathroom with a separate vanity and toilet caters to the rest of the household. The lower level is designed for practicality, featuring an oversized double garage with internal access — providing secure parking and shelter from the elements.
Set on a generous 805sqm allotment, the property enjoys a spacious and meticulously maintained backyard. Securely fenced and beautifully manicured, it offers plenty of room for children and pets to play, or for creating your own private garden sanctuary. Brimming with warmth and versatility, this elevated residence combines thoughtful design with generous proportions, delivering a lifestyle of comfort and convenience. A wonderful opportunity to secure a home in one of Albury’s most desirable pockets.
Additional Features:
- 805sqm (approx.) allotment
- Secure & private backyard manicured gardens
- Oversized double garage, internal access
- Large undercover alfresco
- Open plan kitchen, living & dining
- Tightly held pocket of West Albury
- Ceiling fans throughout, split system in living
- Solar system
ADDRESS: 27 Hurworth Court, West Albury
FOR SALE: Contact Agent
Land Size: 805m2 (approx.)
Rates: $2,193.61 p.a. (approx.)