

![]()








Crafted with intention by Davis Sanders, this expansive family home offers the ideal balance of generous proportions and stylish modern living. Set behind beautifully landscaped gardens that enhance the home’s street appeal, it delivers space, comfort, and versatility at every turn.
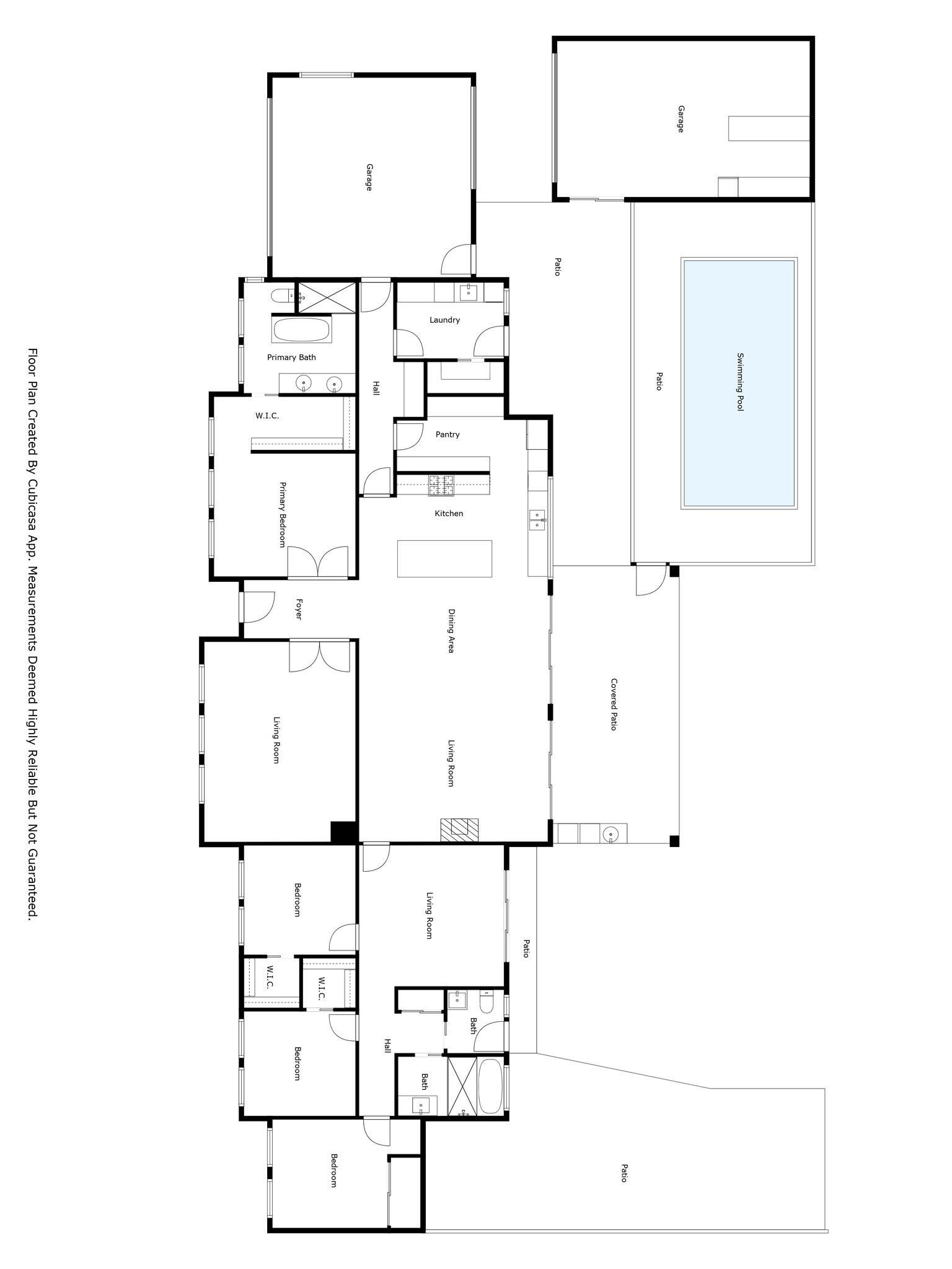
At the front of the home, the oversized master suite is a true retreat, featuring a luxurious ensuite with a standout bath and a spacious walk-in robe. Adjacent, the formal lounge is ideally positioned to provide privacy and separation from the main living areas.
The heart of the home is the sun-filled open-plan kitchen, dining, and living zone. Highlighted by soaring raked ceilings that capture natural light, this inviting space is both functional and welcoming. The well-appointed kitchen boasts ample bench space and storage, while the cosy lounge area is complete with a fireplace—perfect for cooler months.
Cleverly zoned, the rear of the home hosts three generous bedrooms, two with walk-in robes, all serviced by a practical central bathroom with a wet area design. A third living space off this wing offers the perfect setting for a kids’ retreat or rumpus room.
Step outside and enjoy year-round entertaining under the large undercover alfresco area, complete with a built-in outdoor kitchen. The flat, low-maintenance backyard features a sparkling in-ground pool for summer fun that also offers electric heating, and a firepit area for relaxed evenings.
A large, powered shed with drive-through access from the garage provides additional storage and functionality, while double gate side access offers extra convenience for trailers or additional vehicles.
This home truly ticks all the boxes for modern family living—space, style, and superb outdoor features in a home that was designed with family life in mind.
Additional features:
- Built in 2019 by Davis Sanders
- A large allotment approximately 1,071m2
- Large, powered shed for additional storage
- In-ground sparkling pool
- 3 living areas – perfect for the larger families
- Undercover alfresco area with built-in outdoor kitchen
ADDRESS: 19 Baltimore Avenue, Hamilton Valley
Expressions of Interest Closing 17th July at 5pm
Land: 1,071m2 (approx)
Rates: $1,861.71 p.a. (approx.)
4 Bedrooms
2 Bathrooms
Double Garage




