Klaipėdos miesto sav. – Klaipėdos miesto pramonės teritorija

Page 1

M A N U S I S M I E S T A S X

S T R U C T U M .

KLAIPĖDOS

MIESTO PRAMONĖS TERITORIJA

Darbą atliko Vilnius tech Architektūros studentės

Aleksandra Adeikytė ir Karolina maldytė

Dėst. Dalia Dijokienė

S T R U K T U R O S I Š

S T R U C T U M . I Š M A N U S I S M I E S T A S X

TURINYS

ANALIZĖ

Teritorijos padėtis

Teritorijos istorinės-urbanistinės raidos vertinimas

Klaipėdos šiluminės energijos istorija

Paveldas

Esami statiniai

Topografija

gamtinės sąlygos

Susisiekimo sistema

Kvartalų struktūra

Morfotipai

Užstatymo aukštingumas

Urbanistinių erdvių sistemos

Panoramos iš pagrindinių vizualinių taškų

Socialinės infrastruktūros tinklas

Socialiniai rodykliai

ANALOGŲ STUDIJA

PROJEKTINĖ DALIS

Koncepcija

Vizija

Teritorijos sprendiniai

Urbanistinė idėja

Funkciniai sprendiniai

Tūriniai erdviniai sprendiniai

NAUDOJAMI RĖMĖJŲ PRODUKTAI

SUMMARY

ANALIZĖ . PADETIES

166km2:10h

247km3:00h

213km2:20h

308km3:18h

TERITORIJOS PADĖTIS

Klaipėda - miestas įsikūręs vakarų Lietuvoje, pajūrio žemumoje. Svarbiausias vakarų Lietuvos pramonės centras, kelių, geležinkelių ir jūrų trasporto mazgas.

Patogus susisiekimas su kitais didžiaisiais Lietuvos miestais.

TERITORIJOS ISTORINĖS-URBANISTINĖS RAIDOS

VERTINIMAS

1 SCHEMA. XVII A. KLAIPĖDOS MIESTAS 2 SCHEMA. XVIII A. KLAIPĖDOS MIESTAS

4 SCHEMA. XX A. PR. KLAIPĖDOS MIESTAS

DABAR KLAIPĖDOS MIESTAS

3 SCHEMA. XIX A. KLAIPĖDOS MIESTAS

Esami kvartalai

Nauji kvartalai

Klaipeda buvo statoma pagal romėnų miestų planavimo principus, skirta kariniams tikslams. Miesto planas yra labai paprastas, aiškus ir kartu savitas. Plano pamatas dvi statmenai susikertančios svarbiausios gatvės. Ilgainiui apie miesto branduolį kūrėsi ir augo daugiau ar mažiau atitolusios bei nevienodais funkciniais ryšiais susietos gyvenvietės, tapusios istoriniais Klaipėdos priemiesčiais arba miesto dalimis.

KLAIPĖDOS ŠILUMINĖS ENERGIJOS ISTORIJA

1923m Klaipedos prisijungimas prie Lietuvos buvo labai reikšmingas respublikos ūkiui. Klaipėdos uostas apimė 70-80% viso Lietuvos eksporto ir importo. 1938 m. Klaipėdoje 13% sudarė pramonės

įmonės. Todėl Besivystantis Klaipėdos ūkinis ir kultūrinis gyvenimas reikalavo atitinkamai plėsti energetinę bazę.

Naują šiluminę elektrinę numatyta buvo statyti prie Dangės upės, miesto šiaurės rytų dalyje.

Parinkta vieta buvo patogi ir statybai, ir būsimam elektrinės eksploatavimui

„Klaipėdos energija“ –yra viena seniausių Lietuvos energetikos įmonių, išaugusi iš 1929 m. pastatytos anglimis kūrenamos elektrinės ant Danės upės kranto. Tuo metu tai buvo viena moderniausių elektrinių Lietuvoje.

PAVELDAS

Dalis Klaipėdos energijos teritorijos patenka į urbanistikos paveldo paminklų vertybių teritoriją.

Teritorijoje 5 pastatai patenka į kultūros vertybių paveldą.

Urbanistikos paveldo vertybių teritorijos.

Urbanistikos paveldo paminklų vertybių teritorijos

ESAMI STATINIAI

SKLYPO TERITORIJOJE

1. Klaipėdos šiluminės elektrinės pastatų komplekso elektrinės pastatas (25811);

2. Klaipėdos šiluminės elektrinės pastatų komplekso skirstykla (25812);

3 Klaipėdos šiluminės elektrinės pastatų komplekso administracinis pastatas (25809);

4 Klaipėdos šiluminės elektrinės pastatų komplekso mechaninės dirbtuvės (25813);

5 Klaipėdos šiluminės elektrinės pastatų komplekso ūkinis pastatas (25810);

Bendramiestinės dominantės (industrinis charakteris)

pastatų

Išskirtinės detalės Unikalūs inžineriniai statiniai

ESAMI STATINIAI RAJONO

TERITORIJOJE

Sutvarkyti visuomeniniai pastatai ir erdves aplink jų

Renovuoti daugiabučiai Atnaujintos viešos erdvės Klaipėdos senamiesčio pastatai Vokiško stiliaus architektūra Aukštybiniai pastatai

TOPOGRAFIJA

Galime pastebėti, jog Klaipėdos mieste

vyrauja lygus reljefas. Šiaurinėje ir Rytinėje pusėje relfejas aukštėja.

Reljefo aukštumos

Miesto branduolys

Centrinė miesto dalis

Užstatyta teritorija

Gatvių tinklas

Geležinkleis

Administracinė miesto riba

Lokalūs apžvagos

taškai

Apžvalga iš vidaus

Miestas suvokiamas ne miestovaizdžių mozaika, o kaip siluetas, panorama. Centrinę miesto dalį identifikuoja aukštybinis pastatas

GAMTINĖS SĄLYGOS

ESAMA SITUACIJA

Klaipėdos miesto želdynai ir vandens telkiniai sudaro sistemą. Didžiausia gamtos koncentracija yra miesto vakarų pusėje. Centro link vandens telkiniai pabriežia horizontalią ašį, o žalios erdvės - vertikalią.

Esami žali plotaii

GAMTINĖS SĄLYGOS

ESAMA SITUACIJA

Teritorija riboja ir atskiria pagrindinius miesto želdynus (Skulptūrų ir Malūnų parkus, Danės skverą)

PLANUOJAMA SITUACIJA

Danės krantinės vystymas yra būtinas siekiant sukurti žaliąsias jungtis palei upę. Teritorijoje gali būt įrengiami

želdynai ir rekreacinės zonos, taip plečiant viešųjų erdvių sistemą link miesto rytines dalies.

Planuojami rekreacinės paskirties želdyna

Esami atskirieji memorialinės paskirties želdynai

Žaliosios jungtysi Vandenys

Viešoji urbanistinė erdvė Nagrinėjama teritorija

SUSISIEKIMO SISTEMA

Klaipėda turi kelis įvažiavimus. Geras susisiekimas

su uostų. Mieste pagrinde vyrauja C kategorijos gatves.

Pagrindiniai įvažiavimai į miestą

Pagrindiniai keliai į uostą

Geležinkelis

Krašto keliai

A kategorijos gatvė

B kategorijos gatvė

Planuojama B kategorijos gatvė

C kategorijos gatvė

Planuojama C kategorijos gatvė

SUSISIEKIMO SISTEMA

Geležinkelis

B kategorijos gatvė

C kategorijos gatvė

Teritorija yra per 5 minutes pasiekiama nuo visų stočių. Taip pat

numatoma jungtis su senamesčio zona. Projektuojamoje teritorijoje likęs

geležinkelis, kuriuo pritaikymas yra įmanomas, tačiau nėra būtinas.

Planuojama C kategorijos gatvė

Projektuojama teritorija

Geležinkelio stotis

Autobusu stotis

Uostas

Tiltai

SUSISIEKIMO SISTEMA

Klaipėdos viešojo transporto ir dviračių takų sistema yra ganėtinai gerai išvystyta. Taip pat bendrame plane matosi jog numatoma jos plėtra. Dviračių takai vystomi centro link, taip pat upės pakrantėje ir tęsiasi gyvenamųjų rajonų link.

Viešojo transporto maršruto struktūra aiškesnė ir užbaigtesnė.

Viešos erdvės išsidėsčiusios aplink dviračių ir viešojo transporto stotelių.

IŠVADOS

Taigi- Klaipėdą karta visi pagrindiniai strateginiai Baltijos jūros regioną kertantys transporto koridoriai. Miestas yra reikšmingas kaip itin svarbus transporto mazgas, tačiau miesto struktūrai tai daro neigiamą poveikį, nes aukštos kategorijos gatvės reikalingos aptarnavimu skaido mistą dalimis.

išryškinamos pagrindinės dviračių jungtys.

Galima pastebėti, jog dviračių infrastruktūra yra tolygiai pasiskirčiusios Klaipėdos mieste. ir sudaro uždarą jungčių ratą.

Daugiausia viešojo transporto stotelių pagrindinėje miesto aikštėje. Įžvelgiamas stotelių trūkumas gyvenamuosiuose kvartaluose.

KVARTALŲ STRUKTŪRA

Stačiakampis

Besiformuojantys

Linijinis

Galime pastebėti, jog didžioji dalis kvartalų Klaipėdos centre nesuformuoti taisyklingai, yra chaotiškų formų.

Labiausiai nesuformuoti kvartalai vyrauja pramoninėse teritorijose, ir uosto infrastruktūroje. Senamiestyje kvartalai linijiniai maži aiškia logika išdėstyti.

Kvartalų skaidymas svarbus pasiekiamumui ir naujų ryšių vystymui tarp miesto zonų.

Didžiausia Klaipėdos miesto centrinę dalį užima perimetrinio užstatymo teritorijos. Vakarinėje miesto dalyje dominuoja uosto infrastruktūra.

Pietryčių pusėje sodybinio užstatymo teritorijos.

LAISVAI STOVINTYS

SODYBINIS

PEREMETRINIS

PRAMONĖ

MORFOTIPAI

UŽSTATYMO AUKŠTINGUMAS

Šiaurinėje klaipėdos miesto dalyje dominuoja aukštesni pastatai, pietinėje mažesni. Vakarinėje miesto dalyje dominuoja uosto infrastruktūra iki 35 m. Rytinėje žemaūgiai pastatai iki 12m. Taip pat Miesto centrinėje dalyje yra dominantės iki 112 m.

URBANISTINIŲ ERDVIŲ SISTEMOS

Miesto dominantės

Ryšys tarp šiaurinės ir pietinės miesto dalies

Pagrindinės gatvės

Viešosios suformuotos

Nesuformuotos erdvės

Analizuojama teritorija

PANORAMOS IŠ PAGRINDINIŲ

VIZUALINIŲ

TAŠKŲ

SOCIALINĖS INFRASTRUKTŪROS TINKLAS

Teritorijos gretimybės beveik neturi funkcijų pasiūlos, be pavienių komerecinių objektų nėra jokios paslaugų pasiūlos;

Viešbučiai 36.2% Kavinės/ restoranai 20.7% Švetimo įstaigos 15.5% Parkai/ viešos erdvės 13.8% Muzejai 10.3% Parduotuvės 3.4%

SOCIALINĖS INFRASTRUKTŪROS TINKLAS

Kavinės/restoranai 20.7% Parkai/viešoserdvės 13.8% Muzejai 10.3% Parduotuvės 3.4%

SOCIALINIAI RODYKLIAI

IŠVADINIS BRĖŽINYS

Miesto dominantės

Ryšys tarp šiaurinės ir

pietinės miesto dalies

Pagrindinės gatvės

Viešosios suformuotos

erdvės

Nesuformuotos erdvės

Analizuojama teritorija

Suformuota

Dalinai suformuota

Žaliosios jungtys

Nesuformuota

Kvartalai

Pramonė

Perimetrinis užstatymas

ANALOGAI

MŪKUSALO GATVĖS

PAKRANTĖS PROMENADA

Projekto teritorija - tai Mūkusalo gatvės pakrantės promenada nuo Akmeninio tilto iki

Salų tilto, apie 2 km ilgio (apie 18 ha). Teritorija patenka į Rygos istorinio centro, valstybinės reikšmės urbanistinio paminklo, apsaugos zoną ir yra UNESCO pasaulio paveldo objekto - Rygos istorinio centro - apsaugos zonoje.

Projekto tikslas:

Sutvarkyti ir kairįjį upės krantą, pradedant rekonstruoti Mūkusalo gatvės promenadą (nuo Salų tilto iki Akmenos tilto), taip sukuriant malonesnę kaimynystę prie Nacionalinės bibliotekos pastato ir sutvarkant abu Dauguvos krantus rekreacinėms reikmėms.

Projekto eiga:

Gatvė daugiausia užstatyta pramoniniais pastatais (gatvės ilgis - 3,4 km).

Pertvarkant Mūkusalo gatvės promenadą rekonstruota krantinė, tiltas per Kyleveinos griovį ir laiptai, įrengtos apžvalgos aikštelės, atlikti povandeniniai krantinės sutvirtinimo darbai, nutiesti pėsčiųjų ir dviračių takai, įrengtos poilsio zonos.

PRIEPLAUKA NIDOJE

Šis projektas yra skirtas naujos Juodkrantės keleivinių laivų uosto prieplaukos marinos kūrimui, kuris žada suteikti naujų perspektyvų kurorto plėtrai ir gyvenvietės gyvybingumui. Pagrindiniai projekto bruožai ir tikslai yra šie:

Plėtra ir Modernizacija:

Naujoji marina bus skirta apie 80 įvairaus dydžio laivų priėmimui, prisidedant prie Klaipėdos regiono transporto infrastruktūros plėtros ir tobulėjimo. Siekiama sukurti efektyvų viešojo vandens transporto maršrutą, jungiantį pamario uostelius ir prieplaukas. Aplinkosauga ir Planavimas:

Projekto dalyvai atliko išsamų poveikio aplinkai vertinimą, kad būtų pasirinkta tinkamiausia jachtų uosto įrengimo vieta. Marina projektuojama Kuršių marių pakrantėje, siekiant išsaugoti natūralią ir vaizdingą kranto liniją bei integruoti infrastruktūrą aplinkos kontekste.

Funkcionalumas ir Paskirtis:

Marina projektuojama kaip atvira visuomeninė erdvė su želdynais ir rekreaciniais elementais, skirta ne tik laivų stovėjimui, bet ir miestiečių poilsiui ir pramogoms.

Pagrindinis pastatas, kuris įeina į uosto kompleksą, turi būti universalus ir paslaugus, tarnaujantis tiek vietinių gyventojų, tiek turistų poreikiams.

Architektūra ir Dizainas:

Pastatas projektuojamas iš dviejų dalių: tradicinio didelio žvejų namo ir konceptualiojo marių pusės silueto „kopų“ terasos.

Medinės dailylentės ir kitos natūralios medžiagos parinktos pastato fasadams ir apdailai, siekiant derėti su aplinkosaugos principais ir išlaikyti estetiškai patrauklų vaizdą.

HUNDIPEA SADAMAALA

Šiaurinio Talino uosto atgaivinimo projektas

yra skirtas naujos katerių prieplaukos kūrimui, gyvenamųjų rajonų plėtrai.

Ryšys su aplinka:

Siekiant geresnio susisiekimo, iš rytinės teritorijos dalies taip pat bus nutiestas naujas jungiamasis kelias su Tööstuse gatve. Siūlomas priemiestinių traukinių projektas taip pat sukurs papildomų galimybių greitam susisiekimui su likusia miesto dalimi. Planuojamas sprendimas paremtas geru susisiekimu visų eismo dalyvių požiūriu tiek teritorijoje, tiek su likusia miesto dalimi.

Daugiafunkciškumas:

Norint pasiekti kompaktišką miesto erdvę, būtina išpildyti tris aspektus: miestas turi būti mišrios paskirties, tankus ir intensyvus. Tokie kompaktiški miesto kvartalai skatina naudotis viešuoju transportu, įgalina paslaugų artumą, didina infrastruktūros ir žemės naudojimo efektyvumą, taupo vertingus žemės išteklius, mažina miestiečių išmetamą anglies dvideginio kiekį ir užtikrina miesto tvarumą platesne prasme.

Tvarumas:

Teritorijai parengta saulės, vėjo ir lauko erdvės komforto analizė, kuri yra pagrindas rengiant eskizinį išplanavimo planą.

Gyvenamųjų namų projektuose naudojamos saulės baterijos ir apželdinti stogai, bei žalieji fasadai.

Šio projekto esmė yra urbanistinė regeneracija ir atgaivinimas, kurio pagrindinis tikslas yra perdirbti seną, neaptarnautą Minhang rajono upės krantą į modernią, gyvybingą ir tvarią miesto erdvę. Pagrindiniai projekto bruožai yra šie:

Rekreacinės Erdvės Kūrimas:

Projektas apima tęstinės žaliosios zonos, kurios skirtos vaikščiojimui, bėgimui ir dviračių važiavimui, bei tris pėsčiųjų tiltus, jungiančius gyvenamąsias, švietimo ir verslo bendruomenes.

Upės Kranto Transformacija:

Senas, apleistas upės krantas buvo atgaivintas į 750 metrų ilgio rekreacinę erdvę, kurioje susijungia komerciniai, technologiniai ir instituciniai plotai, kuriuos supa SPARK urbanistinis parkas.

MINHANGRIVERFRONTREGENERATION

KVARTALAS ROTERMANN

"Rotermann" kvartalas yra istoriškai svarbioje Talino širdyje, tarp senamiesčio, uosto ir Viru aikštės. Dar XIX a. Viru aikštėje susikirto keliai į Tartu, Narvą ir Pärnu, todėl ši aikštė tapo oficialiu Talino centriniu tašku. 2001 m. Nacionalinė paveldo taryba Rotermano kvartalą paskelbė istoriškai vertingu, todėl naują paskirtį atradę seni pramoniniai pastatai turėtų taikiai sugyventi su kokybiška šiuolaikine architektūra.

Sena/Nauja:

Modernizuojant Rotermann kvartalo pastatus, kaip pagrindas buvo imamos esamos konstrukcijos, tačiau kiekvienam pastatui projektuojami ir modernus priestatai. Daug dėmesio skirta apšvietimui ir medžiagų deriniams.

OGMIOS MIESTAS

Ši didžiulė 12 hektarų teritorija, esanti vos už kelių kilometrų nuo Vilniaus centro, dar visai neseniai buvo gerokai primiršta tiek vietinių gyventojų, tiek lankytojų - tai buvo tik nuolaidų medžiotojų ir namų šeimininkų vieta - tikrai ne patraukli vieta laisvalaikiui praleisti. Laikai keičiasi ir Ogmios miestas rodo pavyzdį.

Įtraukianti konversija:

Bėgant metams šios teritorijos paskirtis smarkiai pasikeitė - staigus perėjimas iš sovietų kariuomenės bazės į sunkiai suplanuotą ir nesuplanuotą miesto kvartalą užimančių išparduotuvių sankaupą buvo tiesioginis atsakas į pastarųjų dešimtmečių politinį ir ekonominį klimatą. Pastaraisiais metais dėl subtilių pokyčių pastebimai keičiasi vietovės suvokimas ir naudojimas. Skatinamas įvairiapusis funkcionalumas, kad žmonės ne tik apsipirktų, bet ir valgytų, žaistų, gyventų. Fiziniai pokyčiai keičia miesto kraštovaizdį.

Susisiekimas:

Gatvės, pėsčiųjų takai, skverai, parkai - miesto atributai dar neseniai nesiderino su Ogmios miestu. Todėl sąmoningai pasirinktos priemonės, siekiant įgyvendinti teritorijos siekį sukurti tikrą miesto kokybę. Suprojektuoti elementai, kuriais siekiama užtikrinti, kad pirmenybė būtų teikiama pėstiesiems patogiai aplinkai, kad vairavimas teritorijoje taptų mažiau pageidaujamas, kad teritorija būtų prieinama ir atvira likusiai aplinkinio miesto daliai, o viešosios erdvės būtų ir malonios, ir funkcionalios. Atliekant kiekvieną pakeitimą buvo išsaugomi senieji elementai, užtikrinant ryšį su vieta ir pažįstamumą. Kiekvienu vėlesniu pakeitimu siekta pakartotinai panaudoti ir integruoti žemiau esančią originalią struktūrą, o ne ją ištrinti, gerbiant vietovės istoriją ir atskleidžiant jos evoliucijos procesą.

DOBBELMANN GAMYKLOS TERITORIJA

Konversija:

Buvusi Dobbelman ploviklių gamykla Neimegene pertvarkoma. Sudarėme apie 50 000 m2 bendrojo ploto ir urbanistinio sklypo generalinį planą arba vizualinės kokybės planą pagal „kratinio modelį“, pagrįstą įvairaus masto tūrių kompozicija, susijusia su originaliu ekologiškai užaugintu išdėstymu. gamyklos aikštelės. Pramoninės išvaizdos gyvenamieji pastatai ir transformuotos konstrukcijos kaitaliojasi su esamais pastatais ir naujais miesto būstais, siūlydami skirtingus būstus įvairiems žmonėms. Be to, buvo išsaugotas kaminas ir šviečiantys reklaminiai iškabos, pabrėžiantys pramoninį charakterį. Kiemas, „prausyklos gatvė“, yra pusiau vieša erdvė, padengta Stelcon betoninėmis plokštėmis iš buvusios gamyklos vietos. Patys gyventojai gali laisvai naudotis šia neprogramuota erdve, kaip nori.

Šis projektas yra ambicingas ir daugialypis, siekiantis ne tik atstatyti mokslo centrą, bet ir revitalizuoti Bagnolio vakarinę pakrantės ketvirtį, išsaugant pramonės paveldą ir siekdami sukurti naują urbanistinį centrą Neapolio mieste.

Architektūrinis Konceptas ir Integracija su Aplinka:

Naujo mokslo centro architektūra sujungia pramoninio paveldo elementus su moderniais dizaino sprendimais.

Įkvėpimas paimtas iš senų pastatų formų ir vietos istorijos

Pastatas sujungia praeitį ir ateitį, pritaikydamas senus pramoninius elementus naujam, moderniam naudojimui.

MUZIEJUS NEAPOLYJE

Programa ir Funkciniai Reikalavimai:

Pastato programa yra kruopščiai suplanuota siekiant atsižvelgti į muziejaus komplekso poreikius, įtraukiant visuomenę.

Įvairių erdvių panaudojimas leidžia kurti skirtingus muziejaus ekspozicijų variantus, kartu palaikant funkcionalumą ir lankstumą.

Išorės ir Vidinės Aplinkos:

Pastato fasadas yra modernus, įkvėptas senovės architektūros elementų, kurie atspindi vietinį pramoninį paveldą.

Fasado išdėstymas ir dydžiai leidžia kontroliuoti šviesos srautą ir sukuria įdomią atmosferą tiek dieną, tiek naktį. Viduje, sukurta erdvių sistema skatiną visuomenės itrauktį ir bendravimą.

Šio projekto esmė yra sukurti inovatyvią ir tvarią urbanistinę aplinką, kuri derėtų su esamais pramoniniais

paveldo pastatais, bet kartu būtų pritaikyta

šiuolaikiniams poreikiams ir vertingų viešųjų erdvių kūrimui. Pagrindinės idėjos ir veiksmai, kuriuos siūloma

įgyvendinti, yra šie:

Ne konservuoti paveldo, bet jį aktyviai panaudoti:

Siūloma ne tik išsaugoti pramoninius paveldo objektus, bet ir integruoti juos

į miesto gyvenimą ir paskirtį.

Skatinti kūrybišką ir tvarų paveldo naudojimą, taip išlaikant jo vertę ir istorinę atmintį.

Programos ir veiklos pritaikymas neutraliose erdvėse:

Naudojant neutralias erdves, kurios nebūtų pritaikytos konkretiems tikslams, galima kurti įvairius programų ir veiklų scenarijus, leidžiančius maksimaliai panaudoti paveldo objektus.

Šių erdvių kūrimo strategijos apima "espacios de intersección" ir "fases de intervención" principus, kurie padeda išnaudoti esamą infrastruktūrą ir resursus.

Estetika ir istorijos puoselėjimas:

Pastato išvaizda ir architektūriniai sprendimai yra paremti istorinės atminties puoselėjimu, bet tuo pat metu integruojami modernūs elementai, suteikiantys pastatui unikalumo ir identiteto.

Skatinamas visuomenės supratimas ir įvertinimas dėl paveldo vertės, skatindamas aktyvų paveldo panaudojimą ir gyvybingumą.

KAREN BLIXENS PLADS PUBLIC SQUARE

Tarp Kopenhagos universiteto ir Danijos karališkosios bibliotekos pastatų, esančių universiteto pietiniame miestelyje, įsikūrusi atvira ir jauki miesto erdvė yra novatoriškas, įspūdingas ir daugiafunkcinis architektūrinis projektas, kuriame pritaikytas ir skatinamas ekologiškas transportas, prisitaikymas prie klimato kaitos ir biologinė įvairovė.

Architektūrinė išraiška:

Jungtinė viešoji aikštė ir universiteto aikštė suprojektuota kaip kilimas, dengiantis banguojantį nedidelių kalvų reljefą ir suskaidantis didelę erdvę į mažesnes zonas, kuriose galima užsiimti veikla tiek ant kalvų, tiek jų viduje (kupoluose). Trys dviračių kalvos buvo sukurtos kaip lieto betono kiautai, padengti rankomis klotomis plytelėmis, kurių spalvos atkartoja aplinkinių universiteto pastatų eksterjerą. Be to, kad aikštė yra aktyvi studentų, darbuotojų ir vietos gyventojų susitikimų vieta, joje taip pat įrengta didelės talpos dviračių stovėjimo aikštelė.

"City Thread" yra tarptautinio dizaino konkursų

"Passageways 2.0" nugalėtojas, skirtas paversti anksčiau ne naudotą ir apleistą 6,200 kvadratinių pėdų alėją į gyvą viešąją erdvę. Projektas buvo sukurtas River City Company, ne pelno siekianti ekonominės plėtros organizacija, kaip dalis nuolatinio investavimo į Čatatūgos centro atgaivinimą, ir buvo suprojektuotas ir pastatytas SPORTS, architektūros ir dizaino bendradarbiavimo tarp Grego Corso ir Molly Hunker.

Projektas yra socialinės infrastruktūros elementas, jungiantis įvairius miesto veikėjus unikalioms viešojo programavimo ir neformaliems susitikimams. Fizinis jungties elementas yra 500 pėdų ilgio nuolatinis linijinis plieno vamzdis ir tapytos grafikos paviršiai, kurie sukuria įvairias smulkesnių erdvių, arba "miesto kambarių", įspūdį. Projektas yra sukurtas būti funkciškai atviro interpretacijai

PAKRANTĖ RIGOJE PIEPLAUKA NIDOJE UOSTAS TALINE

PAKRANTĖ ŠANCHAJUJE

Projekto metai 2023 2023 2024 2021

KVARTALAS TALINE

KVARTALAS VILNIUJE

KVARTALAS NIJMIGENE

KVARTALAS NEAPOLYJE

Paskirtis Pakrantė Prieplauka

Uostas su multifunkciniais pastatais Pakrantė Komercija + gyvenamieji pastatai Komercija Komercija + gyvenamieji pastatai Visuomeniniai Visuomeniniai

Vystimo tipas Nauja statyba Nauja statyba Modernizavimas +nauja statyba Nauja statyba Konversija+mod ernizavimas Konversija Konversija+mo dernizavimas Konversija Konversija

Ar keičiama paskirtis? Ne Ne Ne Ne Taip Taip Taip Taip Taip

Esami fasadai ar yra pokytis? - - Taip -

Taip, kuriami papildomi tūriai Taip Tik remontuojami Taip Taip

Ar matoma jog įvyko kaita? Taip Taip Taip Taip Taip Taip Taip Taip Taip

Naudojamas metodas Neutralumas Harmonizacija Kontrastas Kontrastas Kontrastas Harmonizacija Neutralumas Harmonizacija Neutralumas Naudinga

Terasos upės pakrantėje, formuojamos viešos erdvės Natūralių medžiagų pasirinkimas dera su aplinkosaugos principais

Uostu apjungiamos dvi kraštinės, formuojami nauji ryšiai

Tiltas kaip pagrindinė kompozicijos dalis, išsiskiria savo spalva, tampa orientirų Ištraukiami elementai fasade suteikia išraiškingesnė tūrio forma Paliekamos esamos laikančios konstrukcijos

Išlaikoma dalis

senųjų fasadų renovuojamose pastatuose

Keičiant vidaus planavimą, bet paliekant tas pačias konstrukcijas, didinamos erdvės Formuojami kiemai po stogu

2009 2013 2008 2015 2011

KONCEPCIJA

PAGRINDINIAI KONCEPCIJOS DĖMENYS

ISTORINIS PAVELDAS + ĮTRAUKTIS + GAMTA

DAUGIABUČIAI

MUZEIJAI

UPĖS PAKRANTĖ SU PRIEPLAUKA

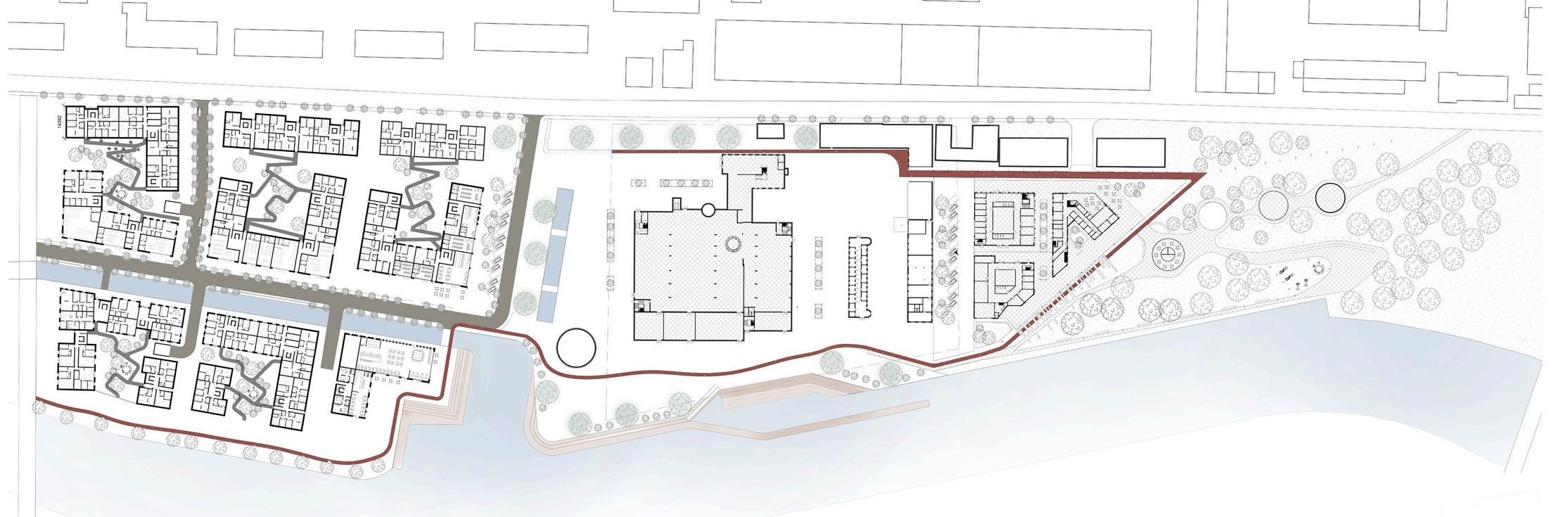
Dinamiška Danės upės pakrantė ir prieinamos teritorijos skirstomos į atskiras zonas. Rytuose pasyvaus naudojimo zona, jai priskiriamas miškas su sporto aikštelė. Centrinėje teritorijos dalyje išdėstomi multifunkcinės paskirties pastatai. Vakarinė dalis pilnai atiduodama gyvenamajam rajonui su komercinėmis patalpomis.

VIEŠOS ERDVĖS PARKAI BIURAI

ERDVINIŲ RYŠIŲ SCHEMA

Pagrindinė sjungtys

Per Mokyklos gatvę virš Danės upės vyksta intensyvus eismas, kad ji iškraut, projektuojami dar keli papildomi ryšiai tarp šiaurinės ir pietinės Klaipėdos dalių.

ŽALIŲ ERDVIŲ

Žaliosios jungtys

Šiuo metu visos žalios erdvės išmėtytos ir nesudaro bendros vieningos sistemos. Norint pasiekt vientisumo miesto aplinkoje projektuojami žali koridoriai palei upės kraštus ir vidury kvartalo.

FUNKCIJŲ SCHEMA

Gyvenamosios paskirties

Multifunkcinės paskirties

Administracinės paskirties

Kultūros/prekybos/maitinimo paskirties

Kvartale kombinuojami įvairių funkcijų pastatai, tai siekiant užtikrinti jo gyvibingumą.

Danės upės aplinkinės teritorijos pasižymi dinamišku kraštovaizdžiu bei lankytinais objektais. Projekte siūloma suformuoti terminius maršrutus apjungiant saugomus objektus ir, kartu su elektrinės teritorija, sukurti skirtingų atstumų takų tinklą. Strateginėse maršrutų vietose numatomi pagrindinės bei šalutines viešos erdvės.

VIEŠŲJŲ RYŠIŲ IR ERDVIŲ SCHEMA

Gyvenamoji

KONCEPCIJOS SUVIESTINĖ SCHEMA

Teritorijoje planuojamas platus funkcijų spektras. Jos rytuose projektuojamas parkas, kurio deka mažinamas ir Mokyklos gatvės triukšmas, ir pildoma Klaipėdos miesto žaliųjų erdvių sistema. Vakaruose vystomas gyvenamasis kvartalas su uždarais vidiniais kiemeliais, bei išvystytą infrastrukturą. Paveldo saugojamas pastatas tampa multifunkcinės paskirties ir jungia savyje administracines patalpas bei kultūros paskirties.

Miesto dominantės

Žaliosios jungtys

Teritorija skaidoma į tris kvartalus

Pagrindinės gatvių jungtys

Viešoji
Multifunkcinė
erdvė

URBANISTINĖ IDĖJA

Šitoje miesto pusėje sukoncentruoti svarbus istoriniai pastatai, bei taškai. Tokiai teritorijai ypač svarbūs yra ryšiai. Pagrindinė funkcinė ašis yra kuriamas pesčiųjų- dvirtačių takas,kuris tampa svarbia miesto sistemos dalimi. Jungia monofinkcinius gyvenamuosius rajonus, dvi upes kraštines, bei miesto centrus.

TŪRINIAI ERDVINIAI SPRENDINIAI

Pastato architektūrinę idėją diktuoja klaipėdos

senamiestyje vyraujantys dvišlaičiai tūriai.

sklypuose vyraujančios užstatymo ašys, tūriai ir galimybės. Siekiama sukurti kuo mažiau

kontrastuojantį, griežtų formų tūrį, kuris savo medžiagiškumu, forma neišsiskirtų iš aplinkos.

Architektūrine išraiška siekiama pabrėžti

Klaipėdos senamiesčio charakterį: šlaitiniai stogai, klinkeris ir medis.

Erdviniais sprendiniais siekiama sukurti viešųjų

erdvių sistema, kuri turėtų užbaigtumą(geras susisiekimas tarp pramonės, gyvenamosios ir senamiesčio teritorijomis). Išskiriami pagrindiniai erdviniai kanalai: Danės upės pakrantė ir pėsčiųjųdviračių takas kvartalo viduryje.

Visos viešos erdvės ir pėsčiųjų erdviniai kanalai pabrėžiami užstatymo ribomis bei medžių masyvais.

Vystant urbanistinė struktūra miesto urbanistinis modelis papildomas naujais erdvių formantais.

Teritorijos dydis leido sukurti plačią funkcinę programą, kuri sutalpina visas reikalingas funkcijas pilnavertiškam gyvenimui.

FUNKCINIAI SPRENDINIAI

Užtikrinti miesto gyvybingumui ir gerbūviui svarbu , kad miesto struktūra nebūtų padalinta didelėmis funkcinėmis zonomis, kurios pėsčiomis ir dviračiais prieinamos tik lokaliai. Siekiama, kad kaimynijos ir naujos teritorijos būtų multifunkcionalios, taip pagyvinant gyvenimą jose bei užtikrinant, kad svarbiausi objektai gali būti pasiekiama pėsčiomis.

Verslo centrai projektuojami atsižvelgiant į likusius traukinio bėgius, kurių įamžinimą pabrėžia ir einantis tą pačią kryptimi dviračių takas. Verslo centruose projektuojamos didesnės reprezentatyvios erdvės ir kabinetai nu 10 iki 50 kv.m.. Taip pat dideles ir transformuojamos konferencijų sales. Numatamos vietos techniniam patalpom, neuždumijamom laiptinėm ir san.mazgam.

FUNKCINIAI SPRENDINIAI

Vakarinėje teritorijos dalyje projektuojamas gyvenamasis rajonas. Pirmuose aukštuose palei kanalą vyrauja komercinės paskirties patalpos , o kituose aukštuose gyvenamosios.

TŪRINIAI ERDVINIAI SPRENDINIAI

Pastato architektūrinę idėją diktuoja gretimuose

sklypuose vyraujančios užstatymo ašys, tūriai ir galimybės. Siekiama sukurti kuo mažiau

kontrastuojantį, griežtų formų tūrį, kuris savo

medžiagiškumu, forma neišsiskirtų iš aplinkos.

Architektūrine išraiška siekiama pabrėžti

Klaipėdos senamiesčio charakterį: šlaitiniai stogai, ruda spalva fasaduose.

Erdviniais sprendiniais siekiama sukurti viešųjų

erdvių sistema, kuri turėtų užbaigtumą(geras

susisiekimas tarp pramonės, gyvenamosios ir senamesčio teritorijomis). Išskiriami pagrindiniai

erdviniai kanalai: Danės upės pakrantė ir pesčiųjųdviračių takas kvartalo viduryje.

Visos viešos erdvės ir pesciųjų erdviniai kanalai pabriežiami užstatymo ribomis bei medžių masyvais.

Vystant urbanistinė struktūra miesto urbanistinis modelis papildomas naujais erdvių formantais. Teritorijos dydis leido sukurti plačią funkcinę programą, kuri sutalpina visas reikalingas funkcijas pilnavertiškam gyvenimui.

SCENOS TECHNINIS SERVISAS

Elektrinės pastatui apšviesti naudojami taškiniai šviesos šaltiniai. Parko ir gyvenamojo kvartalo teritorijoje naudojamas subtilus takų apšvietimas

ARTECHNIKA

Teritorijos ir pastatų saugumui naudojama Aritech techninė įrangą.

BAREMA RYTAI

Verslo komplekso fasaduose naudojami aliuminiai fasado uždengimai.

BETONO MOZAIKA

Projektuojamoje teritorijoje naudojami keli trinkelių produktai. Antžeminiam parkingui naudojamos Eco line serijos trinkelės, kurios užtikrina sklandų įsiliejimą į gamtinį kontekstą. Šaligatviams naudojami Hansa serijos trinkelės, o pagrindinėm aikštėm naudojamos Grande plokštės

BIPA

Mažosios architektūros sprendiniams naudojamaa Bipa produkcija. Įrengiamos vaikų žaidimo aikštelės gyvenamųjų namų kompleksose Taip pat visoje teritorijoje įrengiamos dvyračių saugyklos, parko zokonoje betoniniai suoliukai.

OREX GROUP

Parko teritorijoje įrengiama sporto aikštelė su omnigym įrenginiais taip pat ir pritaikitais neįgalėsiems.

ENEFIT

Norint užtikrint aukštesne kokybe, pastatų stoguose įrengiamos saulės baterijos O elektrinės teritorijoje projektuojamos Enefit įkrovimo stotelės.

ETERNIT

Parko teritorijoje projektuojamom parodų erdvių fasadam naudojama 3D formuota fasado medžiaga skirta šviesos ir šešėlių žaismui puikiai tinkančia perduot parko nuotaiką

HYDRO BUILDING SYSTEMS

Verslo centro fasadų realizacijai naudojamos Wicona vitrinos

VELVE M.S.T.

Kad sporto užsiėmimai lauke vyktų sklandžiai ir patogiai, dvyračių takams bei sporto aikštelėm naudojamos mapecoat sintetinės dirvos ir daugiasluoksnė akrilo pagrindų dangos .

PERCUSSION PLAY BALTICS

Kad vaikų laisvalaikis vyktų sklandžiau ir idomiau Klaipėdos elektrinės teritorijoje sudedami percussion play įrenginiai. Lavina vaikų ir suagusiųjų vaizduotė

We chose the Klaipėda Energy site, located in the central part of the city along the Danube River. In the development of Klaipėda, industry has been one of the main driving forces, influencing the development of the economic, social and spatial environment. The site has an interesting success story, but the area itself is inaccessible and inaccessible to the current residents of Klaipėda city. The site is difficult to integrate into the city centre and limits the development of the spatial environment between the northern and southern parts of the city. It is a historically important compositional link for the inhabitants of the city, and the main objective is to preserve the architectural, technological and historical value of the area and to integrate it into the everyday life of the residents.

The concept of the site is based on the conversion of historical heritage. Klaipėda as a city is unique for its water and the main canal running through the city centre. However, public access to the water is underused, so the revitalisation of water access is an important focus of the area. The project restores and preserves buildings of industrial heritage in order to emphasise the industrial character, while creating a network of public spaces to open up the area to the citizens.

We believe that creating a sustainable and liveable environment requires an integrated approach that includes many factors, but most importantly the involvement and participation of communities. Involvement enables a deeper understanding of the needs and preferences of local communities, fosters greater support and commitment to projects, and ensures that decisions are made on the basis of a broader knowledge and a more diverse perspective.

Turn static files into dynamic content formats.

Create a flipbook
Issuu converts static files into: digital portfolios, online yearbooks, online catalogs, digital photo albums and more. Sign up and create your flipbook.