

SALOS
ŠILUVOS PILIGRIMŲ IR BENDRUOMENĖS CENTRO KOMPLEKSAS
Agna Petkevičiūtė4.
5.
Šiluva, a historically significant town in central Lithuania, has embarked on an ambitious project aimed at addressing the multifaceted needs of its community and pilgrims. The project involves a comprehensive analysis of the town’s current situation, an understanding of the social, cultural, and religious needs of its residents, and the formulation of recommendations for urban development. The ultimate goal is to create a community center that meets these needs while integrating appropriate urban, architectural, and landscape management solutions.
Historical and Geographical Context
Located in the Raseiniai district municipality, near the 148th road, Šiluva began to take shape in the early 15th century as a linear planned settlement. It is primarily known as a Catholic pilgrimage site, believed to be where the Virgin Mary appeared. The town is home to significant religious landmarks such as the Basilica of the Nativity of the Blessed Virgin Mary and the Chapel designed by Antanas Vivulskis. These landmarks, along with the Pilgrimage Museum, underscore Šiluva’s rich religious heritage.
Environmental and Urban Planning
Šiluva is part of the Tytuvėnai Regional Park and features the Šiluva Pine Forest genetic reserve and the Šiluva Urban Reserve. These areas preserve the genetic diversity of Scots pine populations and the historical urban structure of the town, respectively. The town’s current land use is primarily residential, with significant religious and historical sites contributing to its unique character.
Urbanistic Concept
The urbanistic concept for Šiluva aims to address the town’s current shortcomings and prepare it for future development. New blocks and recreational zones will be created, reorganizing roads, pedestrian paths, and cycling routes to enhance connectivity both within the town and with neighboring settlements. The introduction of green and slow streets will create multi-use spaces that prioritize safety and accessibility for pedestrians, cyclists, and cars.
The concept also involves the development of the community complex based on the island principle, which includes separate centers for pilgrims and the local community. This approach ensures that the distinct needs of both groups are met. Additionally, an outdoor event square and observation area will serve as focal points for community gatherings and activities. The sports ground, park, and landscaped areas will connect all spaces, with a water management system featuring artificial streams to enhance sustainability.
Architectural and Landscape Design
The architectural expression of the new development seeks to preserve the authentic features of traditional wooden architecture. Most of the planned buildings will have wooden facades, maintaining the town’s historical aesthetic. Existing buildings will be renovated and adapted for community center activities, with smaller structures being replaced by larger ones to enclose the community center courtyard. This design choice creates cohesive and functional spaces that blend seamlessly with the town’s terrain.
YS U M M A R
The community center layout is carefully planned to provide privacy and communal spaces for residents. Located in the southern part of the plot, the community houses will feature a common internal courtyard, fostering a sense of community. The renovation will include raising the height of the walls to create more space in the attic floors. The design also incorporates the terrain relief, using it to create elevated terraces and gardens, enhancing the overall aesthetic and functionality of the area.
Infrastructure Development
The project proposes significant infrastructure improvements, including the reorganization of Tulpių Street and the enhancement of Raseinių and Žaiginio streets. These changes will facilitate two-way car traffic, pedestrian paths, and cycle paths, improving overall connectivity and accessibility. The integration of parks and cultural spaces with picturesque street landscaping will create a cohesive urban environment that respects the town’s historical and cultural significance.
The comprehensive analysis of Šiluva town has culminated in a set of detailed recommendations for urban development. These include addressing current shortcomings, improving connectivity, and preparing for future growth. The development of the community complex based on the island principle will ensure that the distinct needs of residents and pilgrims are met. The integration of green spaces and slow streets will enhance the quality of life for all inhabitants.
The project also emphasizes sustainability and environmental stewardship. The proposed water management system, featuring artificial streams, will enhance the town’s ecological footprint. The preservation and enhancement of greenery and cultural significance in urban planning will create a harmonious and sustainable living environment.

Tiriama Šiluvos miestelio teritorija (istoriniuose rašytiniuose šaltiniuose vadinama Būda), yra beveik vidurinėje Lietuvos dalyje, Raseinių rajono savivaldybėje, Prie 148—ojo kelio (Raseiniai—Tytuvėnai—Radviliškis).
Analizuojama teritorija pradėjo formuotis dar XV a. pradžioje, kaip linijinio plano gyvenvietė, kur šiuo metu daugiausia sodybiniu tipu užstatytų teritorijų. Šiluva—daugiausia katalikų traukos objektas, mat yra tikima, kad čia yra apsireiškusi Jėzaus motina Marija. Čia stovi ir svarbių kraštui religinių objektų—Antano Vivulskio projektuota koplyčia (skirta Marijos apsireiškimo 300 metų sukakčiai), kuri pastatyta aplinkui Marijos apsireiškimo akmenį, Švč. Mergelės Marijos Gimimo bazilika (kur yra garsus didžiojo altoriaus Marijos paveikslas), taip pat Piligrimystės muziejus.
Šiluva yra Tytuvėnų regioninio parko teritorijoje, Šiluvoje taip pat yra Šiluvos miško pušies genetinis draustinis (144 ha teritorijoje saugoma paprastosios pušies populiacijos genetinė įvairovė), Šiluvos urbanistinis draustinis (kur saugoma istoriškai susiklosčiusi miestelio planinė ir erdvinė struktūra bei Švč. Mergelės Marijos gimimo bazilikos kompleksas.
Projektuojamas Sklypas yra pietinėje Šiluvos dalyje, vakarinė sklypo dalis ribojasi su 148—uoju keliu. Iš sklypo teritorijos matomi svarbiausi Šiluvos bendruomenei objektai—Bazilika, Koplyčia, popiežiaus Jono Pauliaus II nusileidimo aikštė. Dabartinėje sklypo teritorijoje yra įrengtas socialinis būstas.
1 pav. Padėties ypatumų schema

AP R O B L E M
Šiluvos teritorija pasižymi charakteringu, išraiškingu kraštovaizdžiu, miestelyje yra nemažai religijai bei kultūrai svarbių objektų, tačiau yra ir problemų:
Neišvystyta Transporto infrastruktūra
Miestelyje trūksta šaligatvių, pėsčiųjų takų, kai kurie įrengti šaligatviai yra per siauri, dviračių takų infrastruktūros nėra, dalis kelių vis gausiau naudojami, tačiau nėra pa-
kankamai gerai pritaikyti pravažumo srautui.
Rekreacinių viešųjų erdvių trūkumas;
Aktyvi Šiluvos miestelio bendruomenė neturi pakankamai erdvių, kurios galėtų suburti visą miestelį turėti bendrus renginius, kurie nebūtų skirti religijai.
Religinių erdvių skirtų piligrimų veiklai bei jų apgyvendinimui trūkumas;
Kadangi Šiluva yra svarbus religinis objektas ir čia vyksta tokios didžiosios šventės kaip Šiluvos atlaidai bei šis miestelis yra vienas iš penkių įvardijamų svarbiausių katalikybei vietų, kur turėtų apsilankyti ir pabuvoti krikščionys ar piligrimai, atsiranda ypač didelis poreikis laikinojo apgyvendinimo, maitinimo, darbo bei poilsio erdvių ir piligrimams.
Lauko erdvių skirtų susibūrimams bei renginiams trūkumas;
Bendruomenėje organizuojami ir sakralinės muzikos vakarai, kuriuos bendruomenė norėtų įgyvendinti lauke pritaikytoje erdvėje.
Prasta žaliųjų erdvių infrastruktūra;
Nors aplinkui miestelį yra saugomų teritorijų o pačiame miestelyje yra ir potencialių žaliųjų erdvių, tačiau jų sutvarkymas ir pritaikymas bendruomenei yra nepakankamas arba kai kuriose vietose erdvės absoliučiai nėra pritaikytos viešajam naudojimui.
Nepakankamas infrastruktūros kiekis atsikeliančiam gyventi jaunimui;
Trūksta infrastruktūros ir naujakuriams—dažniausiai tai jaunimas, arba jaunos šeimos, kurių atsikraustymas dažniausiai susijęs su vienos iš gretimųjų mokyklų uždarymu arba religiniais sumetimais.
Sklypo teritorija yra kvartale, kuris yra per didelis, skaidosi šiuo metu netaisyklingai, prasideda chaotiškas naujų gatvių bei pastatų išsidėstymas;
Trūksta erdvių komercijai vykdyti
Miestelyje daug gyventojų yra išlaikę savo senelių bei prosenelių tradicijomis atliekamus skirtingus tautinius amatus (kepama duona, audžiama audimo staklėmis ir pan.)
tačiau visoms pamokoms, pristatymams ir amatams išbandyti bendros erdvės nėra.
Rengiant šį projektą numatyti tikslai:
Išanalizuoti Šiluvos miestelio situaciją, ypatumus ir įvertinti bendruomenės socialinius, kultūrinius bei religinius poreikius. Išgryninti esamus teritorijos privalumus bei trūkumus.
Išsiaiškinti vietos gyventojų norus, atsižvelgti tiek į gyventojų, tiek į piligrimų lūkesčius bei poreikius.
Atsižvelgiant į analizės išvadas, pateikti urbanistinės plėtros tvarkymo siūlymus.
Pagal gyventojų poreikis bei Šiluvos miestelio analizės išvadas parengti tinkamus bendruomenės centro projektą, bei sukurti tinkamus urbanistinius, architektūrinius bei kraštovaizdžio tvarkymo sprendinius. Tikslams įgyvendinti numatomi uždaviniai:
Ištirti vietovės ypatumus—istoriją, gamtinį bei kultūrinį kontekstą, esamą infrastruktūrą;
Išsiaiškinti vietinių gyventojų norus bei poreikius;
Išskirti Šiluvos miestelio stiprybes, silpnybes, projektuojant siekti užkirsti kelią grėsmėms bei išnaudoti galimybes;
Suformuoti gaires urbanistinei plėtrai Šiluvoje ir pagal tai formuoti urbanistinę koncepsiją;
Gerinti susisiekimo infrastruktūrą tarp kvartalų, kurti pėsčiųjų bei dviračių takų tinklus, apjungiančius Šiluvos lankomiausius objektus;
Kurti „žaliuosius koridorius“ - želdintus kelius, kurie apjungtų „žaliąsias“ erdves;
Parengti urbanistinę koncepciją analizuojamai teritorijai;
Išnaudoti vizualiai patrauklias vietas bei kompozicinius mazgus;
Kurti bendruomenės centrą , kuriame būtų bibliotekos ir skaityklos, maitinimo, darbo bei auditorinės, renginių erdvės, skirtos vietos bendruomenei;
Kurti lauko erdves skirtas jaunimui bei jaunoms šeimoms;
Kurti piligrimų centrą—laikinojo apgyvendinimo, darbo, poilsio, maitinimo erdves piligrimams;
Sukurti lauko viešąsias erdves skirtas lauko susirinkimams, renginiams bei poilsiui;

ANALIZUOTI VIETOVĘ BEI KONTEKSTĄ



IŠSIAIŠKINTI GYVENTOJŲ POREIKIUS

KURTI URBANISTINĘ INFRASTRUKTŪRĄ



PROJEKTUOTI BENDRUOMENĖS CENTRĄ

PROJEKTUOTI TINKAMAS LAUKO ERDVES
L I Z
R B A N I S T I N Ė A N A
U








R B A N I S T I N Ė A N A
U





Tiriamoje Šiluvos miestelio teritorijoje aiškiai pastebima, kad formuojasi du atskiri „tinklai“. Pirmasis—kultūrinės, religinės vietos, Antrasis — gamtinių erdvių vietos. Deja, tačiau gamtinės erdvės nėra pritaikytos gyventojų poreikiams, jų infrastruktūra yra per daug skurdi, vietos netvarkomos. Trūksta bendrų erdvių vietos bendruomenei, o piligrimams—laikinojo apgyvendinimo, darbo erdvių. Kvartalai dalinasi netaisyklingai, pėsčiųjų bei dviračių takų infrastruktūros beveik nėra. Sklypo teritorijoje yra aiškūs, ryškūs kompoziciniai mazgai, kurie yra neišnaudoti, tačiau teikia gerą potencialą apjungti bei vystyti esamą kultūrinių, religinių bei gamtinių erdvių tinklą.
Urbanistinio planavimo bei bendruomenės centro projektavimo sprendiniai turėtų išspręsti ryškiausias miestelio infrastruktūros spragas.
I N Ė I D Ė J A
R B A N I S T
U
Analizuojant gyvenvietės istorinę raidą, dabartinę transporto infrastruktūrą, esamą urbanistinį užstatymą, kultūrines bei gamtines erdves, įsiklausius į Gyventojų išsakytus poreikius miesteliui bei susipažinus su teritorija gyvai, urbanistinės teritorijos plėtros idėjos vystėsi natūraliai.
Siekiant apjungti ir išnaudoti žaliąsias miestelio erdves, išnaudoti jų potencialą, sukurti daugiau viešųjų erdvių, kurie būtų skirti vietos gyventojams bei piligrimams taip suskirstant kvartalus, numatant papildomus sklypus naujų jaunų gyventojų atsikėlimui į Šiluvą bei formuojant naujus gyventojų judėjimo srautus, planuojamos naujos gatvės, pėsčiųjų bei dviračių takai. Tai pat siūloma sutvarkyti potencialias žaliąsias gamtines erdves (pvz. pelkė) projektuoti parką bei bendruomenės ir piligrimų centrą.



nauja kvartalų ir kelių sistema


Formuojama žaiųjų erdvių tąsa


Formuojama kultūrinių erdvių tąsa
Urbanistinio komplekso teritorija dalinama pagal esamus ir būsimus judėjimo srautus. Dalis gatvių—lėtosios, kai pirmenybė skiriama pėsčiųjų bei dviračių eismui.
Atsižvelgiant į kompozicines ašis bei atsiveriančius aplinkos vaizdus nuo Šiluvos kalvų.
Projektuojamas kompleksas—bendruomenės bei piligrimų centrai, lauko renginių erdvės, bendrosios bei parkų teritorijos tarnauja ir kaip miesto vartai, mat sklypas yra šalia ypač svarbius Jono Pauliaus II-ojo nusileidimo aikštės bei patekimo į miestą važiuojant keliu iš Raseinių į Tytuvėnus.



Planuojant teritoriją suskirstomi nauji kvartalai buvusio kvartalo viduje, kur planuojamos lėtosios gatvės—gatvės universalios ir galimos naudoti tiek pėstiesiams, tiek dviratininkams tiek ir automobilių transportui. Tulpių gatvė, kuri prieš tai ribojo kvartalą pietuose— perkelta piečiau už sklypo ribos, praplatinta ir siūloma asfaltuoti, paverčiant ją tokios pat svarbos kaip ir Raseinių g. rytuose. Raseinių, Tulpių ir Žaiginio (kvartalo vakaruose) gatvėse planuojamas dvipusis automobilių eismas po vieną juostą, pėsčiųjų bei dviračių takai. Taip pat projektuojamas ir gatvių želdinimas apjungiant žaliąsias bei kultūrines miesto erdves vaizdingomis jungtimis. Projektuojami nauji parkai, kultūriniai, edukaciniai, bei religinės svarbos objektai, kurie įsilies į bendrą svarbių kultūrinių, religinių, gamtinių objektų tinklą.
Taip pat suprojektuotuose naujuose kvartaluose planuojama įkeldinti naujakurius.


KOMPLEKSO RYŠIAI

Automobilių transporto judėjimas
Pėsčiųjų takai

Lėtosios gatvės ir dviračių takai


Piligriminio kelio maršruto keitimas pro regyklą - vartus

Išraiškingiausios sklypo vietos


Kuriant komplekso architektūrinę išraišką siekiama išsaugoti autentiškos
tradicinės medinės architektūros ypatumus, taigi visų planuojamų komplekso pastatų fasadai daugiausia mediniai.
Norint atliepti tradiciškumą vietos bendruomenei skirta centro komplekso dalis pasižymi tradicinės kaimų architektūros pastatų išraišką, pastatai
yra išlaikomi ir renovuojami, o čia buvęs socialinis būstas perkeliamas į
šiaurinę naujai sudaryto kvartalo dalį.
Piligrimams skirta komplekso dalis pasižymi plokščiais stogais ir trapecijos tipo užstatymo principais. Šie pastatai įsikerta į statų reljefą, taigi vizualiai
jų tūriai neišsiskiria nuo aplinkinių pastatų.
Kuriant regyklą - vartus - lauko koncertų erdvę siekama sukurti kaip skulptūrišką elementą, kuris galėtų tapti ir viso komplekso ašimi.

Statant bendruomenės centrą, siūloma išnaudoti jau esančius sklypo pastatus, juos atrenovuojant ir pritaikant bendruomenės centro veikloms. Kad būtų galima maksimaliai
išnaudoti erdvę, renovuojant medinius statinius reikėtų pakelti sienojų aukštį per vieną metrą. tokiu būdu atresolinis aukštas turėtų daugiau erdvės. Mažesniuosius pastatus
siūlytina griauti, vietoj jų pastatant viena didenįjį ir taip uždarant bendruomenės centro kiemą. Tokiu būdu ši komplekso dalis patampa viena iš salų, esančių bendruomenės komplekse.



Bendruomenės namai projektuojami pietinėje sklypo dalyje, labiau į rytus nuo piligrimų centro (kuris tarsi sveikina atvažiuojančius ir atlieka miesto vartų funkciją). Pasirinkta vieta yra kiek nuošaliau nuo aktyviausių miesto taškų, tad čia gali būt jaučiama daugiau privatumo vietos gyventojams. Kuriamas vienas bendras vidinis kiemas. Projektuojant kompleksą kurio kiekvienas statinys turi atskirą funkciją, taip pat priskiriami ir kiemeliai prie kiekvieno iš tų pastatų. Siekiant išnaudoti reljefą, pastatai dalinai įsikerta. išlyginto reljefo dalį iš sporto komplekso dalies naudojama įrengiant pakeltas lysves bei bendruomenės centro daržus.

Naujai statomas tūris - amfiteatrinė auditorija

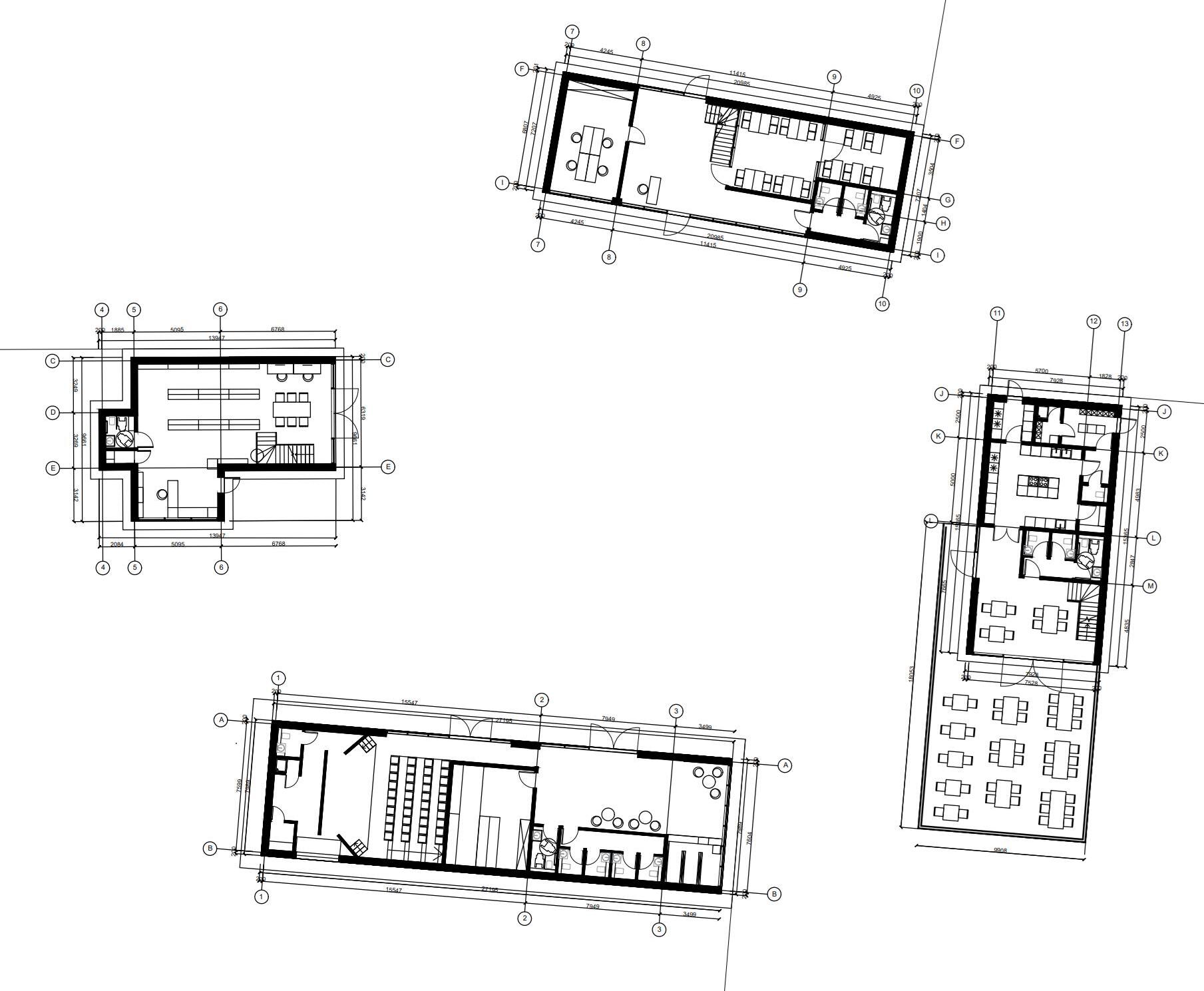
Detalizuojant kompleksą, skirtą bendruomenės poreikiams, kurį sudaro keturi statiniai, jie skirstomi pagal savo funkcijas ir žmonių srautus tarp jų. Kiekvienas iš šių pastatų turi savo san. Mazgus bei tech. Patalpas.
Pastatuose planuojamos mansardos, kur pastatų sienos pakeltos per 1 metrą. Visiems pastatams funkciškai mansardos daug įtakos nedaro, tai yra papildomos erdvės naudotinos esant poreikiui turėti daugiau eksploatuojamos erdvės.
BIBLIOTEKA SKAITYKLA
ADMINISTRACIJA AUDITORIJOS
AMFITEATRINĖ AUDITORIJA
PASTATŲ I A. PLANAI








FASADŲ MEDŽIAGIŠKUMAS



Norint išlaikyti jaukų bei artimo bendruomenės centro įvaizdį, fasadai dengiami iš dažnai sutinkamų ir autentiškoje architektūroje elementų - medinių lentų, kurios kalamos horizontaliai, taip žaisdamos su dideliais skaidriais moderniais stiklo fasadais , ir grįžtančių prie skiedrų penktajame stogo fasade.


PASTATŲ FASADAI


SKLYPO PLANAS
























MAKETO FOTOFIKSACIJOS






Projekte kur numatomas automobilių privažiavimas prie pat pastatų, numatyta naudoti ROMB rombo formos betonines rudos spalvos trinkeles. Siūlių užpildams numatoma naudoti Romex GmbH užpildus. Taip pat numatyta užsakimėti betoninius vazonus šalia terasos erdvės prie kavinės pastato.




Erdvėse, kur numatomos edukacijos, būtų naudojamas Baumit Klima White baltos spalvos tinkas, dėl to, kad būtent
šis tinkas padeda stabilizuoti vidaus patalpų tinkamą klimatą: dėl natūralios mikroporų struktūros greitai sugeria vandens garus ir taip pat greitai juos išskiria atgal į aplinką, taip išaikydamas malonią patalpos aplinką. Taip pat jis yra baltos spalvos ir jo sudėtyje nėra kenksmingų medžiagų.

Sanitarinių mazgų plytelėms plijuoti ir siūlėms užpildyti, numatytas silikono sandariklis ESCOSIL-2000, nes jis yra atsparus oro sąlygoms, UV spinduliams ir senėjimui, vandeniui, chemikalams ir chlorui.

Renovacijų ir naujų statinių statyboms proežiūrai ir įgyvendinimui vykdyti, būtų pasitelkiama specialistų pagalbą.
taip pat būtų su jų pagalba sutikrinti techninių projektų inžinerines ir architektūrines dalis iki įgyvendinimo pradžios.

Vaikų ir jaunimo ugdymas svarbi projekto dalis. Tam siūloma pasitelkti prieigą per muziką, įrengiant veikų žaidimo aikštelės zonoje muzikos instrumentų komplektą, kuriame yra didieji ir mažieji Babelio būgnai, varpo lyra ir rankiniai vamzdeliai.

Kadangi komplekso naudojimo dalyje yra svarbu užtikrinti efektingą ir taupų energijos sunaudojimą, siūlytina nau-
doti Energijos valdymo, galios stebėjimo ir kontroliavimo programinę įrangą, kaip pvz. EcoStructure Energy Hub. Taip pat energijos matavimui komplekse siūlytini PowerLogic Power Meters PM500.



Pastato ašių nužymėjimui ir Požeminių tinklų ir komunikacijų geodezinių planų sudarymui prieš projekto pradžia sklype bei kadastriniams matavimams rekomenduojama pasitelkti specialistus, turinčius didelę patirtį, kaip vienos didžiausių įmonių vakarų Lietuvoje, darbuotojus.

Vitrininei sistemai išnaudoti maksimaliai naudingai, ir sukurti lauko - vidaus efektą, kai erdvės apsijungia, naudoti siūloma WICSLICE 65 stumdomų vitrinų sistemą, kurios technologija veikia ir su didelių matmenų langų vitrinų elementais.



Šilumos siurblių, ventiliatorių ir kolektorių parinkimui ir motavimui siūlytina kreiptis į Panasonic specialistus
po inžinerinės projekto dalies techninio projekto parengimo, kad būtų žinomi tikslūs normatyvai geriausiam gaminių pasirinkimui.

Pilnavertiškam aplinkos pritaikymui neįgaliesiems, siūlytina pasitelkti BIPA produktus: Neregiams vesti skirtą kinetinį taką, taip pat vaikų žaidimų aikštelėje inkorporuoti ir neįgaliems vaikams skirtus žaidimų įrenginius.




Siekiant, kad Šiluvos komplekas pasižymėtų žalia energija, numatoma naudoti saulės elektrines, kurios būtų montuojamos ant piligrimams skirtos komplekso dalies, kur stogas yra beveik plokščias.

Siekiant apšvietimo, kuris pabrėžtų svarbiausias kurtos architektūros detales, siūloma naudoti įmontuojamus linijinius švietuvus, bet led šviesos technologiją (pakeltų lysvių apšvietimui).


Amfiteatrinės auditorijos erdvėse bus naudojama scenai reikalinga technika: apšvietimas, garso, šviesų aparatūra.
Taip pat techniniam aptarnavimui siūloma konsultuotis su SCENOS TECHNINIO SERVISO specialistais.

Lauko treniruokliams tinkamiausias pasirinkimas yra OMNIGYM, dėl jų išskirtinumo – patentuoto svorio padidinimo mechanizmo, būdingo tik jų lauko treniruokliams. Taip pat vientisas dizainas tik papildo kuriamą aplinką.



Ugdymo erdvėse numatyta sienas dažyti „Argentum Plus 7“ ir „Argentum Plus 20“, nes tai specialūs vandeniniai vidaus sienų ir lubų viršutinio sluoksnio dažai, saugantys padengtą paviršių ir suteikiantys jam dailią išvaizdą. Taip pat jie lengvai valomi, o būtent sidabro dalelės dažuose ir užtikrina bakterijų nesigaunimą dažo paviršiuje.

San. mazgams ir virtuvėlių patalpose siūlytina naudoti vientisas estetiškas plytelių variacijas kurių visa estetika gražiai sudera ir su kriauklių dizainu.


Neatviroms visų fasadų dalims naudojamos deginto medžio lentelės. Bendruomenės “salos” pastatams fasadų lentelės būtų horizontalios, o piligrimų “salos” - vertikalios.

KITI PARTNERIAI

