Vilniaus raj. sav. – bendruomenės namų interjero projektas kaimiškių kaime

Page 1

STTRUCTUM KONKURSAS „IŠMANUSIS MIESTAS X“

BENDRUOMENĖS NAMŲ INTERJERO PROJEKTAS KASMIŠKIŲ KAIME

Aiškinamasis raštas

VILNIAUS TECHNOLOGIJŲ IR DIZAINO KOLEGIJOS

DIZAINO FAKULTETO

DIZAINO KATEDRA

III kursas

Elžbieta Orlovska

Vadovė: Rasa Mazūrienė

Vilnius, 2024

1

Kasmiškių kaimas turi turtingą istoriją ir gilias tradicijas. Ilgą laiką bendruomenės nariai rinkdavosi senajame kaimo kultūros centre, kuris buvo pastatytas dar XX amžiaus pradžioje. Deja, pastaraisiais metais šis pastatas pradėjo prarasti savo funkcionalumą dėl senėjimo ir nepakankamo modernizavimo. Be to, senasis kultūros centras buvo per mažas, kad patenkintų visus augančios bendruomenės poreikius. Šie iššūkiai paskatino bendruomenę ieškoti naujų sprendimų, kaip sukurti modernesnę ir funkcionalesnę erdvę, , kur žmonės galėtų organizuoti įvairias bendruomenės veiklas, tokias kaip susitikimai, kino vakarai, renginiai, kultūrinės programos ar socialinės paslaugos.

Atsižvelgdama į šiuos poreikius, Kamiškių bendruomenė nusprendė inicijuoti naujo bendruomenės namų interjero projekto kūrimą. Šis projektas buvo sukurtas tam, kad suteiktų modernią, funkcionalią ir jaukią erdvę, kurioje bendruomenės raktiniai žodžiai yra: susitikti, bendrauti ir organizuoti. Projekto tema – „Kregždė“ – buvo pasirinkta neatsitiktinai. Kregždė simbolizuoja laisvę, grakštumą ir namų jaukumą. Ji taip pat yra dažnas kaimo motyvas, susijęs su pavasariu ir atgimimu, kas puikiai atspindi bendruomenės atsinaujinimo dvasią. Interjeras derina modernius sprendimus su tradiciniais kaimo akcentais: medinėmis konstrukcijomis ir rankų darbo dekoracijomis. Toks dizaino sprendimas sukuria unikalią ir šiltą atmosferą, kuri yra ne tik funkcionali, bet ir estetiškai patraukli. Projektas apima įvairias veiklas ir renginius, kurie prisidės prie bendruomenės narių socialinės sąveikos ir kultūrinio gyvenimo praturtinimo. Interjero sprendimai buvo parengti atsižvelgiant į šiuolaikines tendencijas ir lankytojų poreikius. Buvo atlikta situacijos analizė, naudojant tyrimų metodus, kurie padėjo suprasti šiuolaikinių interjerų tendencijas ir lankytojų pritraukimo būdus. Remiantis tyrimo rezultatais, buvo parengta projektavimo programa, funkcinis planinis sprendimas, stilistikos pasirinkimas bei projekto koloritas.

Naujas bendruomenės namas taps ne tik vieta renginiams ir susitikimams, bet ir socialinių paslaugų teikimo centru. Čia bus organizuojamos įvairios mokymo programos, sveikatingumo užsiėmimai, vaikų ir jaunimo veiklos, taip pat vyresnio amžiaus žmonių užimtumo programos. Tai erdvė, kurioje kiekvienas bendruomenės narys ras sau tinkamą veiklą ir galės prisidėti prie bendruomenės gyvenimo. Šis projektas ne tik pagerins bendruomenės infrastruktūrą, bet ir padės stiprinti bendruomenės ryšius, skatins bendradarbiavimą ir aktyvumą, prisidės prie kaimo kultūrinio ir socialinio gyvenimo atgaivinimo.

2
Santrauka

Summary

The Kasmiškių village has a rich history and deep, ever lasting traditions. For a long time the community members would gather in the old village cultural center that was built in the early XX century. But at last, in recent years, this building started to lose its functionality due to aging and insufficient modernization. Additionally the cultural center was too small to meet the needs of the growing community. These challenges prompted the community to find new solutions, build a more functional and modern space, where people could organise various community activities such as meetings, movie nights, events, cultural programs or social work.

Looking into the communities needs, Kamiškių people decided to initiate a new community house interior project. This project was designed to provide a modern, functional, and cozy space where the community's key activities are to meet, communicate, and organise. The project theme – “Swallow” – was chosen intentionally. The swallow symbolises freedom, grace, and the coziness of home. It's also a common village motif associated with spring and rebirth, perfectly reflecting the community's spirit of renewal. The interior matched modern solutions with traditional village accents : wooden constructions and hand made decorations. This design solution makes the atmosphere functional but also aesthetically pleasing to the eyes. The project takes on different activities and events, that will go to community members' social work and cultural live richness. These interior solutions were prepared considered with contemporary trends and visitor needs. A situation analysis was conducted using research methods that helped understand modern interior trends and ways to attract visitors. Based on the research results, a design program, functional layout solution, stylistic choice, and project color scheme were prepared into action.

The new community cultural house will become a place not only for events and meetings, but also a center that provides social work. Here ,various educational programmes, wellness activities, the children and youth activities, elderly people programs, will take place. This space will offer every community member an appropriate activity and an opportunity to contribute to the community's life. This project will not only improve the community's infrastructure ,but also help strengthen communities ties, promote cooperation and activity, and contribute to the revival of the village cultural and social life.

3
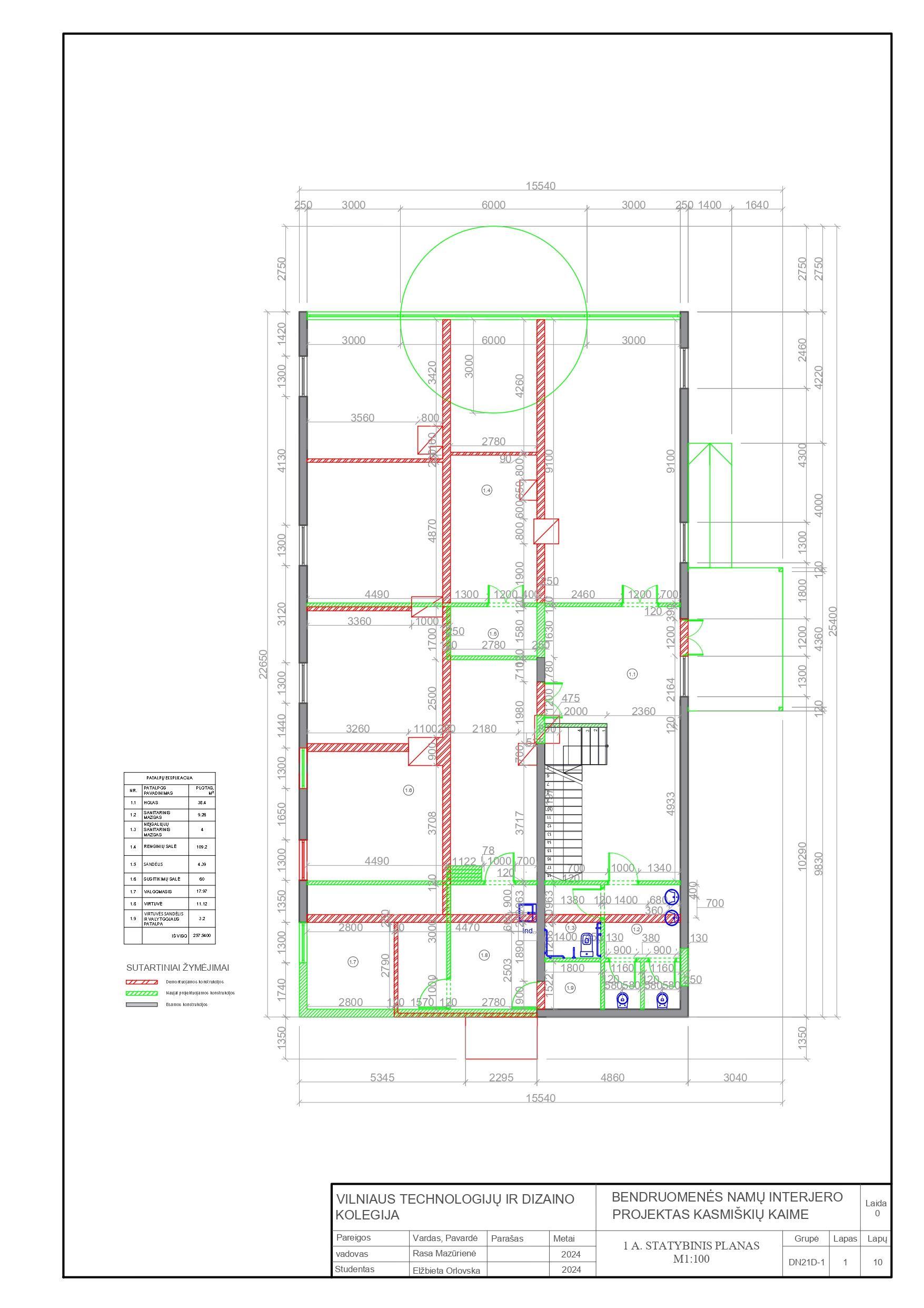
4 TURINYS 1.PAVEIKSLŲ SARAŠAS 5 2. TAIKOMASIS TYRIMAS.................................................................................................... 6 2.1 TYRIMO REZULTATUS LYGINAMOJI ANALOGŲ ANALIZĖ………………....…...8 3. SITUACIJOS ANALIZĖ..................................................................................................... 19 4. PROJEKTO KONCEPCIJA…………………....................................... 21 4.1. IDĖJA, JOS PAGRINDIMAS................................................................... 21 4.2. STILISTINIS, SPLAVINIS, MEDŽIAGŲ KOLIAŽAS.................... 22 4.3. PAVADINIMAS IR LOGOTIPAS………………………………...……………………23 5. FUNKCINIS PLANINIS SPRENDIMAS............................................................................24 6. BALDŲ IR DEKORO DETALIZACIJA.............................................................................25 7. LAUKO PLANAS IR DETALIZACIJA..............................................................................28 8. PASIRINNKTI RĖMĖJAI...................................................................... 29 9. IŠVADA…………… 34 10. STATYBOS TECHNINIAI REGLAMENTAI.......................... 35 11. PRIEDAI................………………………………...………...………………….………..36 11.1. STATYBINIS PLANAS...…...........................................................................................36 11.2. BALDŲ IR GRINDŲ PLANAS......................................................................................38 11.3. STOGO PLANAS.............................................................................. 40 11.4. APŠVIETIMO IR LUBŲ PLANAS....... 41 11.5. IŠKLOTINĖS- PJŪVIAI................................................................... 43 11.6. PLANŠAS.......................................................................................................................46

1.PAVEIKSLŲ SARAŠAS

1. ,, Koluhub'' bendruomenės centro baldų planas

2. ,,The New Music World‘‘ kultūros centro baldų planas. 2013

3. ,,Larick Centre‘‘ bendruomenės centro interjeras. 2020

4. ,,Lapphella‘‘ kultūros centro interjeras. 2021

5. ,,Xikou Future‘‘ bendruomenės centro fasado pavyzdis. 2023

6. ,,Community Center‘‘ bendruomenės centro interjeras. 2019

7. ,,The New Music World‘‘ kultūros centro interjeras. 2013

8. ,,Lapphella‘‘ kultūros centro interjeras 2021

9. ,,Dr. George W. Davis Senior Residence and Senior Center‘‘ rezidencijos ir senjorų centro interjeras. 20016

10. ,,YiXi Courtyard‘‘ mišraus naudojimo architektūra, ofiso, parodų centro interjeras. 2019

11. Pastato fotofiksacija

12. Pastato teritorija iš viršaus

13. Esamos situacijos planas

14. Kregždė su savo vaikais

15. Insperacinė nuotrauka

16. Apdailos medžiagų paiškinimas

17. Stilistinis koliažas

18. Logotipo spalvų sprendimai

19. Funkciniai planai

20. Batų lentynos detalizacija ir vizualizacija

21. TV stalo shematas

22. TV stalo detalizacija

23. TV stalo vizualizavcija

24. Knygų lentynos detalizacija ir vizualizacija

25. Sienų dekoro detalizacija

26. Pastatomos sienos detalizacija

27. Lauko detalizacija

5

2.

TAIKOMASIS TYRIMAS

KASMIŠKIŲ KAIMO BENDRUOMENĖS NAMŲ INTERJERO PROJEKTO TENDENCIJOS IR ĮŽVALGOS

Tyrimo problema. Bendruomenės namai yra esminės vietos, kuriose žmonėms suteikiama įvairių galimybių. Ten galima dalyvauti įvairiose veiklose, tokiomis kaip mokymasis, kultūriniai renginiai, laisvalaikio praleidimas, meno užsiėmimai bei socialiniai susitikimai. Šios vietos svarbios, nes jose sukuriamas bendruomenės jausmas, gerinama gyventojų savijauta, skatinama socialinė integracija ir bendradarbiavimas. Atsižvelgiant į tai, bendruomenės namai tampa neatsiejama gyventojų bendruomenės plėtros dalimi ir svarbia vieta, kurioje žmonės gali dalintis idėjomis, išreikšti savo poreikius ir siekti bendrų tikslų bei gerovės. Todėl šios vietos tampa ne tik bendruomenės vientisumo, bet ir darnaus gyvenimo užtikrinimo raktiniu elementu. Dėl šios priežasties, tampa svarbu išnagrinėti, kaip Kasmiškių kaimo bendruomenės namų interjeras gali atitikti vietinę bendruomenės kultūrinę ir socialinę tapatybę, o taip pat patenkinti gyventojų poreikius ir lūkesčius. Tai atveria naujus klausimus apie interjero dizaino tendencijas ir jų pritaikymą šiame kontekste. Į šiuos klausimus bus nukreiptas šis tyrimas.

Tikslas. Išnagrinėti Kasmiškių kaimo bendruomenės namų interjero projektavimo tendencijas ir įžvalgas, siekiant suformuluoti veiksmingus interjero sprendimus, atitinkančius vietinę kultūrinę ir socialinę tapatybę bei gyventojų poreikius.

Uždaviniai:

1. Ištirti Kasmiškių kaimo gyventojų kultūrines ir socialines vertybes, siekiant nustatyti pagrindinius interjero dizaino reikalavimus.

2. Atskleisti Kasmiškių kaimo kultūros ir tradicijų įtaką interjero sprendimams.

3. Išanalizuoti naujausias interjero dizaino tendencijas.

4. Ištirtisėkmingiausiusįgyvendintusbendruomeniųnamų,kultūroscentųinterjerųprojektus.

5. Numatyti projektui tinkamą zonavimą.

6. Apibendrinti tyrimo rezultatus.

6

Tyrimo objektai:

 Bendruomenių namų tinkamas zonavimas.

 Projekto medžiagos apdailai ir spalvų paletė.

 Bendruomenių namų interjero projekto apšvietimas.

Hipotezė. Tinkamai pritaikytas Kasmiškių kaimo bendruomenės namų interjeras gali turėti teigiamą įtaką bendruomenės jausmui, gyventojų savijautai ir socialinei integracijai.

Tyrimo metodas. Lyginamoji analogų analizė.

7

2.1.TYRIMO REZULTATAI

LYGINAMOJI ANALAGŲ ANALIZĖ

Lyginamieji objektai (žr. 1 priedą)

1. ,,Kolohub‘‘ bendruomenės centro interjeras / Viktorija Berbets, Anton Železnov, Ivan Seleshok/ 2023 / Ukraina // https://www.behance.net/gallery/190494349/KOLOHUB?tracking_source=search_pro jects|Community+center+interior+design&l=37

2. ,,Larick Centre‘‘ bendruomenės centro interjeras / Architect Collective / 2020 / USA //

https://www.architectsjournal.co.uk/buildings/community-centre-completed-bycollective-architecture-in-fife

3. ,,Dr. George W. Davis Senior Residence and Senior Center‘‘ rezidencijos ir senjorų centro interjeras / David Baker Architects / 2016 / JAV // https://www.archdaily.com/903815/dr-george-w-davis-senior-residence-and-seniorcenter-david-baker-architects?ad_source=search&ad_medium=projects_tab

4. ,,Lapphella‘‘ kultūros centro interjeras / Tanken Arkitektur AS / 2021 / Norvegija // https://www.archdaily.com/1014596/lapphella-cultural-center-tanken-arkitekturas?ad_source=search&ad_medium=projects_tab

5. ,,Xikou Future‘‘ bendruomenės centro interjeras / y.ad studio / 2023 / Kinija // https://www.archdaily.com/1010301/xikou-future-community-center-yadstudio?ad_source=search&ad_medium=projects_tab

6. ,,Community Center‘‘ bendruomenės centro interjeras / NORD Architects / 2019 / Danija//

https://www.archdaily.com/933332/community-center-nordarchitects?ad_source=search&ad_medium=projects_tab

7. ,,Hoehyen‘‘ bendruomenės centro interjeras / Yong Ju Lee / 2019 / Pietų Korėja // https://www.archdaily.com/924935/hoehyeon-community-center-yong-ju-leearchitecture?ad_source=search&ad_medium=projects_tab

8. ,,St Matis‘‘ bendruomenės centro interjeras / Plus architecture / 2016 / Naujoji Zelandija //

https://www.archdaily.com/884465/st-martins-community-centre-plusarchitecture?ad_source=search&ad_medium=projects_tab

8

9. ,,YiXi Courtyard‘‘ mišraus naudojimo architektūra, ofiso, parodų centro interjeras / Wonder Architects / 2019 / Kinija //

https://www.archdaily.com/1011772/yixi-courtyard-wonderarchitects?ad_source=search&ad_medium=projects_tab

10. ,,The New Music World‘‘ kultūros centro interjer / Lmyarch-studio / 2013 / Kinija //

https://www.archdaily.com/392054/the-new-music-world-lmyarchstudio?ad_source=search&ad_medium=projects_tab

Lyginamų analogų pasirinkimo pagrindimas

Atrinkti analogai – tai skirtingų šalių bendruomenės, kultūros, parodų centrų interjerai bei rezidencijos ir senjorų centro interjeras. Minėti interjerai atrinkti archdaily.com, behance.net, architectsjournal.co.uk interneto svetainėse. Šios interneto svetainės skirtos architektams, interjero dizaineriams irkitiems suinteresuotiems asmenims, kurie šioseinterneto prieigose gali rasti informacijos apie šioje srityje naudojamus produktus, rengiamus projektus, renginius. Dėmesys buvo atkreiptas į pavyzdžius, turinčius trikampio formos stogą ir medžio elementus fasade. Analizuojant objektus, siekiant identifikuoti svarbius dizaino sprendimus ir stiliaus niuansus, buvo nagrinėjami ne tik interjero detalių aspektai, bet ir architektūriniai sklypo išplanavimai.

Lygintinų kriterijų išskyrimas

1. Funkcinis zonavimas.

2. Lubų konstrukcija ir apdaila.

3. Fasado apdaila.

4. Apdailos medžiagos, dangos (sienų ir grindų).

5. Koloritas.

6. Apšvietimas.

7. Baldų formos, stilistika, naudojamos medžiagos.

9

Lyginamosios analizės rezultatai

1. Funkcinis zonavimas.

2,pav. ,,The New Music World‘‘ kultūros centro baldų planas. 2013

1, pav.,, Koluhub'' bendruomenės centro baldų planas

Įvertinus atrinktus analogus nustatyta, jog pirmoji zona (patekimas į centrą), tai įėjimo ir susitikimo zona. Šioje erdvėje yra registratūra ir informacijos punktas (2-3, 7-10 pavyzdžiai), kuriame apsilankius lankytojai gali gauti reikiamą informaciją apie vykstančius renginius, siūlomas paslaugas ir kt. Pastebėta, kad tam tikruose atrinktuose pavyzdžiuose vietoje registratūros pirmoje zonoje įrengtos patogios sėdimos vietos ir drabužinė (1, 4-6 pavyzdžiai), kas yra funkcionalu ir patogu lankytojams. Analizuojant atrinktus pavyzdžius galima pastebėti, kad visi analogai turi praktinės veiklos arba edukacijos ir mokymo zoną, t. y. patalpas, skirtas įvairioms praktinėms veikloms, pavyzdžiui, meno dirbtuvėms, tautinės kultūros užsiėmimams, mokymams, seminarams, konferencijoms ar kt. Taip pat pastebėta, kad atrinkti analogai turi renginiams skirtą zoną (1, 4-7, 9-10 pavyzdžiai). Tai viena pagrindinių centro zonų, kuri skirta įvairiems bendruomenės renginiams, šventėms, koncertams, parodomoms ir kitiems renginiams. Šioje zonoje įprastai randasi koncertų salė, meno galerija, muzikos erdvė arba salė su multimediją. Taip pat, tam tikruose pavyzdžiuose galima pastebėti ir virtuvės zoną (2-3, 5-6 ir 10 pavyzdžiai), kurioje galima paruošti ir pasidalinti maistu. Ši zona dažnai atlieka svarbų vaidmenį, skatinant socialinį bendravimąirbendruomenės ryšiųpuoselėjimą.

Virtuvės zona taip pat gali būti vieta, kurioje organizuojami mokymai apie sveiką mitybą ar maisto gamybą, taip skatinant sveikos gyvensenos vertybes. 9 pavyzdyje yra įsikūrusi kavinė, kurioje lankytojai turi galimybę mėgautis paruoštu maistu ir gėrimais.

Apibendrinant išanalizuotus analogus galima teigti, kad:

10

 Siekiant užtikrinti lankytojams patogų informacijos gavimą apie vykstančius renginius, paslaugas ir kt., didžioji dalis (60 proc.) atrinktų pavyzdžių turi registratūrą arba informacijos punktą.

 40 proc. pasirinktų analogų pasirūpino sėdimomis vietomis susitikimo zonoje.

Tai leidžia lankytojams patogiai susėsti ir bendrauti, o tai skatina socialinį bendravimą ir tarpusavio sąveiką bendruomenės centre.

 Renginių ir kultūros zona buvo įtraukta į 70 proc. pasirinktų analogų.

 50 proc. pasirinktų analogų turi įrengtą virtuvės zoną ir 10 proc. - kavinę.

2. Lubų konstrukcija ir apdaila.

Lubų konstrukcija ir apdaila yra svarbi interjero detalė, kuri gali suteikti erdvei unikalumo irstiliaus. Analizuojantatrinktus pavyzdžius, įvairiosebendruomenės centrovietose pastebimi skirtingi lubų sprendimai, kurie atspindi skirtingus dizaino ir funkcionalumo poreikius. 1, 8 ir 10 pavyzdžiuose lubų apdailai naudotos gipso kartono plokštės nudažytos balta spalvą, tačiau jų įgyvendinimas skiriasi. Pavyzdžiui, 1 ir 8 pavyzdžiuose lubos yra nuleistos, tai gali sukurti modernų ir stilingą interjero efektą. Tuo tarpu 10 pavyzdyje palikta trikampio formą, kuri suteikia erdvei unikalumo ir įdomumo. 2 ir 7 pavyzdžiuose išlaikyta trikampio forma, luboms naudotos medinės lentos kaip apdaila, tačiau 7 pavyzdyje medinės lentos naudojamos kaip stogo konstrukciją. Medinės lentos suteikia šilumos ir natūralumo jausmą interjerui bei gali būti naudojamos kaip stilingas ir funkcionalus apdailos elementas. 3 pavyzdyje lubos yra skirtingo aukščio, o apdailai naudotos baltos spalvos medžio plokštės ir natūralaus medžio spalvą. Šis dizaino sprendimas suteikia erdvei dinamiškumo ir vizualinio įspūdžio, o skirtingos nišos yra naudojamos kaip dekoro elementas arba tam, kad akcentuotų tam tikras zonas. 4 ir 5 pavyzdžiuose išlaikyta trikampio forma, o lubų apdailai panaudotos medžio vientisos plokštės. Tai suteikia šilumos ir natūralumo jausmą, kuris prisideda prie jaukios ir draugiškos aplinkos kūrimo. 6 pavyzdyje skirtingose zonose lubos yra pagamintos skirtingaividurio patalpų lubos yra nuleistos, pagamintos iš šviesių medžio plokščių, o prie lango

3 pav. ,,Larick Centre‘‘ bendruomenės centro interjeras. 2020

11

4 pav. ,,Lapphella‘‘ kultūros centro interjeras. 2021

išlaikyta trikampio forma nudažyta balta spalva. Tai suteikia kontrastą ir įdomumą interjerui. 9 pavyzdyje taip pat lubos padarytos skirtingai, atsižvelgiant į patalpos dydį ir poreikius. Mažesnėse patalpose lubos yra nuleistos gipso kartono plokštėmis, o didesnėje patalpoje palikta trikampio forma dažyta juodais dažais, taip pat sukurta metalinė konstrukcija, kuri išlaiko scenos struktūrą, ir apšvietimo sijos. Šis sprendimas padeda sukurti suderintą ir funkcionalų interjerą, kuris atitinka patalpos poreikius.

Apibendrinant galima teigti, kad:

 40 proc. pasirinktų analogų turėjo gipso kartono plokštes lubų konstrukcijai, o 20 proc. naudojo medinius elementus arba kitas apdailos medžiagas.

 60 proc. nusprendė išlaikyti trikampio formą luboms, taip suteikiant unikalumo ir įspūdžio interjerui.

 20 proc. pasirinktų analogų nusprendė nuleisti lubas, o kita 20 proc. analogų naudojo mišrią lubų konstrukciją.

3. Fasado apdaila.

Visi pasirinkti analogai (išskyrus 1, 3 ir 6 pavyzdžius) turi trikampio formos stogą. Fasado apdaila dažniausiai yra įvairių tekstūrų ir medžio spalvų(2, 4-6pavyzdžiai), kuriųdizainassuteikia natūralumo ir šilumos jausmą. Tačiau taip pat pastebima, kad kai kuriuose pavyzdžiuose fasado apdailai buvo naudotos raudonos plytos (8-9 pavyzdžiai), suteikiančios charakteringą tradicinį ir "rustik" stiliaus išorės įvaizdį pastatui. Be to, svarbu paminėti, kad 7 ir 10 pavyzdžiuose fasado apdailai naudojamas betonas, kuris suteikia modernumo, tvirtumo ir patvarumo jausmą pastatoišorėje.Ši medžiaga yra tinkamanetik išvaizdai,betirilgaamžiškumui,prisidedantprie pastato funkcinio ir estetinio svarbos.

Apibendrinant galima teigti, kad:

5 pav. ,,Xikou Future‘‘ bendruomenės centro fasado pavyzdis. 2023

12

70 proc. pasirinktų analogų turi trikampio formos stogą.

70 proc. fasado apdailai naudoja medžio plokštes arbo medžio lentas.

20 proc. analizuotų analogų pasirinko betoną fasado apdailai, siekiant suteikti modernumo ir tvirtumo jausmą.

20 proc. pasirinktų analogų naudoja raudonas plytas fasado apdailai, siekiant suteikti tradicinį ir "rustik" stiliaus išorės įvaizdį.

4. Apdailos medžiagos, dangos (sienų ir grindų).

Analizuojant buvo pastebėta, jog pasirinktuose analoguose dažniausia grindų apdailos medžiaga yra medieną. Medines grindis galima matyti 2-8 ir 10 pavyzdžiuose. Toks grindų pasirinkimas galėjo būti nulemtas norint išreikšti ekologiškumą. 3 ir 6 pavyzdžiuose interjere vyrauja kelių rūšių grindys: medinės grindys lankytojų zonoje ir plytelės virtuvės zonoje ir koridoriuose. 5 pavyzdyje pastebėta, kad patalpose naudojamos medinės grindys, o koridoriuose, laiptų zonoje ir lauke - betono danga. Toks medžiagų panaudojimas padeda atskirti arba suvienodinti patalpas.

6 pav. ,,Community Center‘‘ bendruomenės centro interjeras. 2019

1 ir 9 pavyzdžiuose naudojama vinilinė danga dėl jos daugelio privalumų. Vinilinė danga yra labai patvari, atspari įbrėžimams, lengvai valoma ir lengvai prižiūrima.

Visų 10 pasirinktų analogų sienos - dažytos, kai kuriuose pavyzdžiuose panaudotos mišrios sienų apdailos technikos. 4-6 ir 8 pavyzdžiuose sienų apdailai panaudotos medinės plokštės, kas yra itin aktualu dėl keleto priežasčių. Pirma, medžio plokštės suteikia natūralumo jausmą ir šilumą, o tai yra labai svarbu kuriant jaukią ir sveiką erdvę. Antra, medžio apdaila gali sukurti įspūdį, kad bendruomenės centras yra artimas gamtai ir aplinkai draugiškas. 9 pavyzdyje sienų apdailai panaudotos vientisi mediniai baldai ir tokios struktūros sienos. Tai suteikia vientisą ir harmoningą vizualinį įspūdį, nes sienos ir baldai atrodo kaip vientisa struktūra. Šiuose interjeruose likusios sienų dalys - dažytos, kad būtų išlaikytas kontrastas ir pažymėtos tam tikros svarbios zonos.

Peržvelgus pasirinktus analogus pastebima, kad 1, 4 ir 9 pavyzdžiuose užuolaidos naudojamos kaip pertvara, taip siekiant sukurti vizualinį ryšį tarp kaimyninių erdvių arba suteikti atvirumo jausmą. 8 pavyzdyje naudojamos modulinės, nešiojamos pertvaros. Šios

13

7 pav. ,,The New Music World‘‘ kultūros centro interjeras. 2013

pertvaros yra lanksčios, lengvai perkeliamos, tam, kad pagal poreikius būtų suformuotos skirtingos zonos. Tokių pertvarų naudojimas suteikia galimybę kurti laikinas struktūras arba greitai keisti erdvės konfigūraciją, priklausomai nuo vykdomų veiklų ar poreikių. Be to, jos gali būti naudojamos kaip stilingas dekoratyvinis elementas, pridedantis tekstūrą ir gilumą interjerui. 10 pavyzdyje pertvara padaryta iš stiklo, kuris suteikia skaidrumo ir atvirą erdvę. Šis sprendimas leidžia natūraliai praleisti šviesą, sukuriant jausmą, kad patalpa yra didesnė ir atviresnė. Be to, stiklo pertvara gali būti judinama, todėl galima lengvai pritaikyti erdvę pagal skirtingus poreikius ar renginius, taip pat suteikiama galimybė subtiliai atskirti erdves jų neuždarant. Tai suteikia lankstumą ir funkcionalumą, o tuo pačiu prideda elegancijos ir modernumo jausmą interjerui. 4 pavyzdyje pasirinkta pertvarą scenos zonai, ši pertvara veikia kaip vartai. Šis sprendimas leidžia kurti

uždarą repeticijų erdvę, tačiau koncertų metu „vartai“ gali būti atidaryti, o patalpa veiks kaip scena. Pertvara, veikianti kaip vartai, suteikia

galimybępagalporeikįtransformuotipatalpąiš vienos paskirties į kitą. Tai ne tik ekonomiškai naudingas sprendimas, bet ir padeda optimaliai panaudoti turimą erdvę, leidžiant viename segmente atlikti skirtingas funkcijas.

Apibendrinant galima teigti, kad:

8 pav. ,,Lapphella‘‘ kultūros centro interjeras 2021

 80 proc. nusprendė naudoti medinę grindų dangą ir 20 proc. iš jų pasirinko panaudoti plytelės virtuvės zonoje. Toks pasirinkimas yra patvarus ir ilgaamžis, kas yra svarbu siekiant sukurti ilgalaikę ir kokybišką bendruomenės centro aplinką.

 20 proc. perengtų analogų panaudojo vinilinė grindų dangą. Vinilinė grindų danga yra populiarus pasirinkimas dėl jos patvarumo, lengvos priežiūros ir įvairių dizaino galimybių.

 Kiekvienas iš pasirinktų analogų turi dažytas sienas. Tai yra bendras dizaino sprendimas, kuris suteikia galimybę pritaikyti spalvą pagal bendruomenės centro poreikius ir estetiką.

14

 50 proc. analogų pasirinko medines sienas. Šis pasirinkimas suteikia natūralumo ir šilumos jausmą, kuris yra svarbus kuriant jaukią erdvę.

 10 proc. pasirinktų analogų pasirinko suvienodinti medžio plokštes su baldais, kas suteikia vientisą ir harmoningą dizainą. Šis sprendimas taip pat padeda išnaudoti erdvę efektyviai ir sukurti patogią bei funkcionalią aplinką bendruomenės centre.

 30 proc. analizuotų analogų pasirinko užuolaidas kaip pertvaras.

 10 proc. pasirinktų analogų naudojo modulines, nešiojamas pertvaras, siekiant lanksčiai kurti skirtingas zonas arba pritaikyti erdvę pagal skirtingus poreikius.

 10 proc. analizuotų analogų naudojo stiklo pertvarą, kurią galima stumdyti ir sukurti didesnę erdvę, suteikiant skaidrumo ir atviro jausmo į interjerą.

 10 proc. analogų pasirinko vartus kaip pertvarų konstrukciją.

5. Koloritas.

9 pav. ,,Dr. George W. Davis Senior Residence and Senior Center‘‘ rezidencijos ir senjorų centro interjeras. 20016

Vertinant atrinktus analogus, akivaizdu, kad daugiausiai interjeruose dominuoja balta, įvairių medžio atspalvių bei juoda spalva. Baltos spalvos naudojimas yra dažnas sprendimas renkantis sienų dažus (1, 3, 5-10 pavyzdžiai), lubų dažus (1, 3, 6, 8, 10 pavyzdžiai), o taip pat ir baldus (1-4, 6-8, 10 pavyzdžiai). Ši spalva suteikia erdvei šviesumo, švarumo ir patrauklumo jausmą bei puikiai derinama su įvairiais interjero stiliais. Nors juodos spalvos naudojimas yra retesnis, ši spalva puikiai atrodo kaip kontrastingas akcentas. Dažniausiai ji sutinkama baldų detalėse (3, 6, 8, 10 pavyzdžiai), pertvaruose (3, 7-8 pavyzdžiai), laiptuose (5, 7 pavyzdžiai) ar apšvietimo elementų formoje (3, 7, 10 pavyzdžiai). Taip pat pastebima, kad 9 pavyzdyje juoda spalva naudojama luboms, o 4 pavyzdyje juoda spalva naudojama sienoms dažyti, suteikiant joms kontrastą ir dramatiškumo jausmą. Be to, kitos spalvos, tokios kaip raudona (1-3, 6, 10 pavyzdžiai) ir šviesiai žalia (2 pavyzdys), taip pat yra naudojamos tam, kad sukurtų įvairių elementų kontrastą ir pabrėžtų tam tikras zonas ar detalės. Šios spalvos suteikia interjerui gyvybingumo, energijos ir originalumo.

Apibendrinant galima teigti, kad:

15

 80 proc. pasirinktų analogų dominuoja baltos spalvos. Rečiau kaip pagrindinės interjero spalvos naudojama medžio atspalvių spalva ir juoda.

 Kitos spalvos, tokios kaip raudona ir šviesiai žalia, pasirodo kaip akcentai balduose, apšvietime ir sienose.

6. Apšvietimas.

Peržiūrėjus turimus analogus, pastebėta, kad visuose pavyzdžiuose naudojami lubiniai šviestuvai. Pastebima tendencija naudoti įvairių stilių šviestuvus, kas suteikia galimybę pritaikyti interjerą pagal skirtingus dizaino poreikius ir atmosferą. Daugelyje pavyzdžių įrengti pakabinami šviestuvai ant lubų (2-3, 7-10 pavyzdžiai), kurie suteikia papildomos šviesos šaltinį ir erdvės jaukumą bei funkcionalumą. Kita vertus, kita pusė pasirinko įrengti lubinius LED juostinius šviestuvus (2-6, 9 pavyzdžiai), kurie suteikia modernų ir energiją taupantį šviesos

šaltinį bei gali būti pritaikyti skirtingoms aplinkoms irreikmėms.Beto,pastebimaslubinių taškinių šviestuvų naudojimas (1, 3, 6, 8 pavyzdžiai), kurie suteikia galimybę taikyti

šviesą tiesiogiai į tam tikras erdvės sritis, akcentuojant tam tikras detales ar zonas. Šie

10 pav. ,,YiXi Courtyard‘‘ mišraus naudojimo architektūra, ofiso, parodų centro interjeras. 2019

šviestuvai ne tik yra funkcionalūs, bet ir gali būti naudingi kūrybiškai interpretuojant interjero dizainą bei sukuriant paslaptingą ir atmosferinį apšvietimą.

Apibendrinant galima teigti, kad:

 100 proc. analizuotų analogų naudoja lubinius šviestuvus.

 Apie 60 proc. įrengė pakabinamus šviestuvus ant lubų.

 Apie 50 proc. pasirinko lubinius LED juostinius šviestuvus.

 40 proc. įrengė lubinius taškinius šviestuvus.

7. Baldų formos, stilistika, naudojamos medžiagos.

Pagrindinė medžiaga, iš kurios pagaminti baldai, yra mediena. Tai rodo, kad medžio naudojimas yra dominuojantis ir svarbus aspektas kuriant interjerą bendruomenės centre. Iš medžio pagamintos kėdės (2-7, 9 pavyzdžiai), stalai (1-10 pavyzdžiai), lentynos (1-10 pavyzdžiai), spintelės (1-10 pavyzdžiai) ir dekoro elementai (3-5, 7 pavyzdžiai). Taip pat

16

pastebimos plastikinės kėdės (1, 5, 7-9 pavyzdžiai), kas gali būti naudinga dėl jų lengvumo, paprastos priežiūros ir dažnai šiuolaikiško dizaino, pritaikyto bendruomenės centro poreikiams. Analizuojant fotelius ir minkštus suolus, dažniausiai naudojamas medinis pagrindas aptrauktas oda arba gobelenu. Metalas yra naudojamas dažniausiai kaip karkasas arba kaip pertvara. Dažniausiai naudojama stačiakampio, kvadrato arba apvalus stalo forma, vieninteliame 5 pavyzdyje matomi nestandartinės formos stalai.

Apibendrinant galima teigti, kad:

 Dažniausiai renkamasi medinius baldus.

 Dėl greito surinkimo naudojamos plastikinės kėdės (50 proc.).

 Dažnai naudojami gobelenu dengti baldai.

 Baldams dažniausiai pasirenkamos paprastos formos (stačiakampis, kvadratas arba apvalūs baldai).

IŠVADOS

Analizuojant atrinktus skirtingų šalių projektus pastebėtas įvairių funkcinių zonų buvimas, taip pat skirtingi interjero sprendimai ir skirtingų medžiagų naudojimas. Išanalizavus visus pavyzdžius galima daryti keletą išvadų ir pateikti pasiūlymus, kaip tobulinti ir kokias tendencijas panaudoti savo projekte:

1. Rengiant projektą reikėtų stengtis įdiegti patalpų paskirtis ir funkcines zonas, kurios atitiktų bendruomenės poreikius ir interesus. Tai galėtų apimti patogias sėdimas vietas susitikimo zonoje, multifunkcines patalpas praktinėms veikloms ir renginiams, taip pat įvairias švietimo, kultūros ir muzikos erdves. Taip pat svarbu atsižvelgti į kitus poreikius, pavyzdžiui, sukurti virtuvės zoną, skatinant socialinį bendravimą ir sveikos gyvensenos vertybes.

2. Įdiegus įvairius lubų konstrukcijos ir apdailos sprendimus, galima sukurti įdomesnį ir įvairiapusiškesnį interjero dizainą. Rekomenduojama išlaikyti trikampio formos lubas, kad būtų išlaikytas bendras dizaino stilistikos vientisumas, bet kartu eksperimentuoti su skirtingomis medžiagomisirtekstūromis, siekiantsuteiktierdveiindividualumoiroriginalumo.

3. Atsižvelgiant į dominuojančią medžio dėžių naudojimą, galima išplėsti medžio naudojimo galimybes fasado apdailai. Taip pat reikėtų svarstyti betono ar raudonų plytų panaudojimą, siekiant sukurti kontrastą ir įvairias išorinio dizaino tekstūras.

4. Rinktis apdailos medžiagų įvairovę, siekiant sukurti unikalų ir prabangų bendruomenės centro dizainą. Vienas iš pasirinkimų galėtų būti natūralus arba dirbtinis medis. Medis yra ne tik estetiškai patraukli, bet ir jauki, šiltos atmosferos suteikianti medžiaga, kuri

17

gali pridėti natūralumo ir šilumos jausmą interjerui. Taip pat svarbu atsižvelgti į spalvų harmoniją ir kontrastą, derinant šviesesnius ir tamsesnius atspalvius, kad būtų sukurtas subalansuotas ir įdomus interjero dizainas.

5. Rinktis įvairias pertvaras, kurių pagalba galima suteikti erdvei lankstumo, funkcionalumo ir vizualinio patrauklumo. Tokių pertvarų kaip užuolaidos, modulinės nešiojamos struktūros ar stiklo sienos įdiegimas leidžia lengvai keisti erdvės konfigūraciją, kurti skirtingas zonas pagal poreikius ir suteikti atvirumo jausmą.

6. Lubiniai šviestuvai yra labai efektyvus ir praktiškas apšvietimo sprendimas, tačiau galima įtraukti ir kitus šviesos šaltinius, pavyzdžiui, grindų šviestuvus arba sienų šviestuvus, siekiant sukurti įdomesnį ir įvairiapusiškesnį apšvietimą. Projekto tikslas- suprojektuoti sriubos restorano interjerą dėstytojų pateiktos realios projektinės medžiagos pagrindu, įgyvendinant atitinkamą numatomų teikti paslaugų medijos scenarijų, profesionaliai atliekant projekto brėžinius, pateikiant pagal STR ir braižybos reikalavimus. Įsisavinti ergonominius, estetinius projekto reikalavimus.

18

3. SITUACIJOS ANALIZĖ

11 pav. Pastato fotofiksacija

Teritorijos Lūkesčiai

Projekto teritorija – 0,3689 ha kitos –visuomeninės paskirties žemės sklypas ir jame esantis pastatas – šokių salė, esantis Sudervės seniūnijoje, Kasmiškių kaime. Teritorija yra unikali, nes ji yra ant ribos tarp tankiai užstatytos sodininkų bendrijų teritorijos ir urbanizacijos nepaveiktų laukų, netoli Neries regioninio parko teritorijos. Šis geografinis išsidėstymas suteikia ypatingą galimybę sukurti bendruomenės centrą, kuris derėtų su aplinka ir tenkintų tiek vietos gyventojų, tiek gamtos mylėtojų poreikius.

Esama Situacija

Esamas pastatas užima 212,70 m² plotą ir buvo naudojamas kaip šokių salė. Tačiau

laikui bėgant pastatas pradėjo prarasti savo funkcionalumą ir estetinį patrauklumą dėl

senėjimo ir nepritaikytų modernių poreikių. Todėl buvo nuspręsta pastatą praplėsti ir

12 pav. Pastato teritorija iš viršaus

19

renovuoti, kad jis taptų patogesne ir modernesne erdve bendruomenės veikloms.

Pastato Plėtra ir Renovacija

Pastato plotas bus praplėstas, o kvadratiniai metrai padidės, siekiant sukurti daugiau erdvės įvairioms bendruomenės veikloms. Dėl šios plėtros bus būtina atnaujinti stogą, nes esamas stogas yra senas ir nebūtų tinkamas naujai struktūrai. Naujas stogas ne tik pagerins pastato išvaizdą, bet ir užtikrins geresnę šilumos izoliaciją bei atsparumą oro sąlygoms.

Fasado, Sienų, Langų ir Durų Atnaujinimas

Renovacijos metu bus atnaujintas fasadas, kad pastatas įgautų modernų ir estetiškai patrauklų išvaizdą. Taip pat bus atnaujintos visos vidinės sienos, siekiant užtikrinti geresnę patalpų izoliaciją ir funkcionalumą. Langai ir durys taip pat bus pakeisti į modernesnius ir energetiškai efektyvesnius, kad pastatas būtų ne tik patrauklesnis, bet ir ekologiškesnis bei ekonomiškesnis eksploatuoti.

13 pav. Esamos situacijos planas

Atnaujinimo Priežastys

Stogo keitimas buvo būtinas ne tik dėl pastato plėtros, bet ir dėl senų konstrukcijų nusidėvėjimo, kuris galėjo kelti grėsmę pastato saugumui ir patikimumui. Fasado atnaujinimas suteiks pastatui šiuolaikišką išvaizdą, atspindinčią bendruomenės modernizacijos ir augimo siekius. Vidinių sienų, langų ir durų atnaujinimas užtikrins geresnę patalpų izoliaciją, energijos taupymą ir komfortą.

Atlikus šiuos renovacijos darbus, Kasmiškių kaimo bendruomenės namai taps modernia ir funkcionalia erdve, kuri tenkins visus bendruomenės poreikius ir prisidės prie jos gerovės bei aktyvumo skatinimo.

20

4. PROJEKTO KONCEPCIJA

4.1.IDĖJA, JOS PAGRINDIMAS

Koncepcija:

 Kurti jaukų ir šiltą interjerą, primenantį kaimo gyvenimo atmosferą, su moderniais elementais.

 Interjere bus naudojami dekoro elementai, kurie

įtrauks kregždės stilistiką, raštus, kregždės gyvenimo būdą ir spalvų paletę.

Projekto tema „Kregždė“ simbolizuoja laisvę, grakštumą ir namų jaukumą. Tačiau kregždė yra

daugiau nei tik laisvės simbolis – tai ir šeimos paukštis, kuris ypatingai rūpinasi savo šeima. Kregždės lizdus

14 pav. Kregždė su savo vaikais

dažnai galima rasti kaimo sodybose, kur jie simbolizuoja namų šilumą, rūpestį ir bendrystę.

Šis simbolis puikiai tinka bendruomenės namams, nes jie yra vieta, kur žmonės susiburia, palaiko vienas kitą ir puoselėja bendruomenės ryšius.

Interjero dizaino koncepcija siekia sukurti erdvę, kuri būtų jauki ir šilta, primenant kaimo gyvenimo atmosferą, bet kartu įtrauktų ir modernius elementus. Interjere bus naudojami dekoro elementai, kuriuose atsispindės kregždės stilistika, raštai, kregždės

gyvenimo būdas ir spalvų paletė. Tokiu būdu bendruomenės namai taps ne tik funkcionalia, bet ir estetiškai patrauklia erdve, kurioje kiekvienas narys jausis kaip namuose.

Kregždės, kaip šeimos ir bendruomenės simbolio, pasirinkimas yra itin tinkamas šiam projektui, nes jis atspindi vertybes, kurios yra esminės bet kuriai bendruomenei: rūpestį, vienybę ir bendrystę.

Insperacinė nuotrauka:

15 pav. Insperacinė nuotrauka

Inspiracinėje nuotraukoje vaizduojama kragždė, simbolizuojanti bendradarbiavimą, solidarumą ir bendruomenių ryšius. Ši nuotrauka atspindi kragždės stiprumą ir grakštumą, jos sparnų išplėtimą, lyg skatindama bendrą veiklą ir sąveiką. Kragždės energija primena, kad kartu galime siekti aukštumų ir įveikti bet kokius iššūkius. Ši oficiali nuotrauka skatina bendruomenes siekti bendrų tikslų, remti vieni kitus ir kurti stiprius ryšius, kurie padės veiksmingai įgyvendinti projektus ir siekti bendrų tikslų.

21

4.2. STILISTINIS, SPLAVINIS, MEDŽIAGŲ KOLIAŽAS

16 pav. Apdailos medžiagų paiškinimas

Šis stilistinis koliažas atspindi harmoniją tarp gamtos elementų ir šiuolaikinio dizaino, įkvėptą kregždės simbolikos. Pagrindinė idėja yra perteikti bendradarbiavimą, stabilumą ir komfortą.

Interjero apdailai pasirinkta mediena, kuri suteikia jaukumo ir šilumos jausmą, o taip pat harmoningai dera su gamtos tematiką. Medžio apdaila simbolizuoja gamtos harmoniją, ant kuriuos kregždės irgi puoselėja savo lizduose. Baltos sienos ant kurios yra tapyta, kartu su medžio panelėmis suteikia šviesos ir švaros jausmą, kuris yra būdingas kregždžių lizdams.

Medžio panelės ne tik estetiškai praturtina erdvę, bet ir prisideda prie natūralaus akustinio komforto. Dekoratyvinis gruntas su akmenimis, kuris taip pat primena kregždės lizdo tekstūrą, suteikia sienoms unikalumo ir natūralumo.

Interjere dominuoja natūralios medžiagos ir rankų darbo elementai. Viena iš įdomiausių interjero detalių – paslėpta lentyna, kuri buvo sukurta specialiai šiam projektui, o ne pirkta, siekiant išlaikyti unikalumą ir pritaikymą prie konkretaus dizaino. Ši lentyna išryškina asmeninio prisilietimo svarbą bendruomenės namų erdvėje. Taip pat yra daug sukurtu dekoro elementu iš MDF plokštės ir primenantis lizdo formą, integruotas kaip simbolis, atspindintis kregždžių lizdų struktūrinį grožį.

Baldams, kaip mežigas buvo nauodojami linas ir ratanas, nes kregždės dažnai naudoja rataną savo lizdų konstravimui dėl jo lankstumo, tvirtumo ir lengvumo, o linas labai primena gamtą natūralumą ir tvarumą. Sėdmašiai parinkti dėl jų patogumo ir prisitaikymo prie

22

jaunimo, kuris derina minimalizmą su kaimo stiliaus funkcionalumu. Šiuolaikinis stalas ir japandi stiliaus kėdės pabrėžia minimalistinį ir elegantišką interjero dizainą, tuo pačiu užtikrinant komfortą ir estetiką. Šviestuvas, primenantis kregždės lizdą, sukuria šiltą ir jaukią atmosferą, papildydamas interjero koncepciją.

Visos šios detalės ir elementai sujungti į vieną harmoningą visumą, sukuria erdvę, kurioje bendruomenės nariai gali jaustis kaip namuose – saugiai, jaukiai ir harmoningai, kaip kregždės savo lizduose.

17 pav. Stilistinis koliažas

4.3. PAVADINIMAS IR LOGOTIPAS

18 pav. Logotipo spalvų sprendimai

Pavadinimas: "Paukščio Sodas„

Logotipas:

 Logotipas perteikia elegantišką kregždę, kuri skrenda į priekį su plačiai išskleistais sparnais, atspindinčiais gyvybingumą ir judėjimą į priekį.

 Logotipas atspindi bendruomenės vertybes, tokias kaip vienybė, saugumas, augimas ir aplinkos tvarumas

23

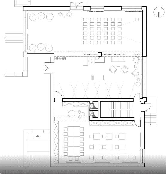
5. FUNKCINIS PLANINIS SPRENDIMAS

Įėjus į bendruomenės namų pastatą, lankytojus pasitinka į holą, kuris sukuria svetingą ir atvirą atmosferą. Tiesiai priešais holą matomi laiptai, vedantys į antrą aukštą, kur įrengta didelė jaunimo erdvė skirta jaunimo veikloms ir laisvalaikiui, užtikrinanti patogias sąlygas jaunimo susibūrimams ir kūrybiniam darbui. Greta jaunimo erdvės yra didelis sandėlys, kuriame galima laikyti įvairius įrenginius, priemones ir kitus reikmenis, reikalingus jaunimo veikloms. Pirmame aukšte, keirėje pusėje nuo holo, yra sanitariniai mazgai, skirti lankytojų patogumui. Dešnėje pusėje nuo holo yra renginių zona, kurioje galima organizuoti įvairius susitikimus, renginius ir bendruomenės veiklas. Per holo vidurį galima patekti į susitikimų erdvę, kuri skirta mažesniems susirinkimams ir diskusijoms. Iš susitikimų erdvės galima patekti į virtuvę, leidžianti lengvai pasiruošti maistą įvairioms progoms, o valgomoji erdvė yra šalia virtuvės, užtikrinant patogų prieinamumą prie maisto ir jaukias sąlygas bendravimui. Tiek virtuvė, tiek renginių salė turi atskirus sandėliukus, kurie padeda palaikyti tvarką ir saugoti reikalingus daiktus bei įrangą.Šis funkcinis planinis sprendimas yra sukurtas taip, kad būtų užtikrintas patogumas, funkcionalumas ir sklandus judėjimas tarp erdvių, skatintų bendravimą ir bendradarbiavimą tarp bendruomenės narių.

24
1 aukštas 2 aukštas 19 pav. Funkciniai planai

BATŲ LENTYNA

6. BALDŲ IR DEKORO DETALIZACIJA

20 pav. Batų lentynos detalizacija ir vizualizacija

Batų lentyna sukurta iš mažesnių kubo formos segmentų, pagamintų iš faneruotos medžio plokštės. Šie segmentai yra sudėti vienas ant kito, sudarant stabilų ir funkcionalų struktūrinį vienetą. Lentynos išorė yra padengta spalvota MDF plokšte, kuri yra išpjaustyta formomis, primenančiomis kregždės lizdą. Šis dizainas ne tik prideda estetinę vertę, bet ir suteikia baldai unikalų charakterį, įkvepiant natūralius elementus į kasdienį objektą. Funkcionalumas pasiekiamas dėl segmentų konstrukcijos, kuri leidžia efektyviai ir tvarkingai laikyti batus, užtikrinant, kad kiekvienas batų pora turėtų savo atskirą vietą ir būtų lengvai pasiekiama.

21 pav. TV stalo shematas

22 pav. TV stalo detalizacija

25
TV STALAS

23 pav. TV stalo vizualizavcija

TV stalas išsiskiria savo elegantišku ir moderniu dizainu. Stalo kojelės, pagamintos iš atskirų segmentų, primena kregždės sparnų linijas. Šie segmentai yra išdėstyti vienas šalia kito lygiagrečiai, su tarpais tarp jų, kas suteikia lengvumo ir erdvumo pojūtį. Iš priekio segmentai atrodo kaip apvalūs stačiakampiai, sudarantys dvi atramines kojeles iš abiejų stalo pusių. Ant šių grakščių segmentų kojelių yra uždėtas stalviršis, pagamintas iš tamsaus stiklo, kuris prideda stalui rafinuotumo ir modernumo. Šis dizainas ne tik estetiškas, bet ir funkcionalus, užtikrinantis stabilumą ir patvarumą.

KNYGŲ LENTYNA

24 pav. Knygų lentynos detalizacija ir vizualizacija

Knygų lentyna su paslėptu dizainu yra išskirtinio dizaino baldas, kurio pagrindą sudaro medžio plokštės ir spalvoto MDF horizontalios lentynos. Ši lentyna yra pasukta 45 laipsnių kampu, suteikianti įspūdį, kad daiktai viduje yra paslėptos. Tai leidžia jai suteikti jaukumo ir gražumo, tuo pačiu paliekant lengvą prieigą prie knygų ar stalo žaidimų, nes lentynos nėra uždarytos arba apsaugotos. Tai puikus būdas praturtinti erdvę originaliu ir funkcionaliu būdu.

26

SIENŲ DEKORO ELEMENTAS

25 pav. Sienų dekoro detalizacija

Medžio panelė sienoms ,,Terra Brown Oak 7031‘‘.

1000 grindų. 2900×50 ×20 mm

Spalvota MDF plokštė ,,Terra ruda‘‘. Ulmas. 2900x2070x19mm

Sienų dekoro detalizacija sukuriama naudojant MDF plokštes, kurios yra pjaustomos formomis, primenančiomis kregždės lizdą, ir aplink priklijetas medžio paneles. Šis dizainas yra įmanomas dėl šiuolaikinių gamybos technologijų ir detalaus rankų darbo.

Šis dekoratyvinis elementas suteikia sienoms tekstūrinį kontrastą, praturtindamas jų išvaizdą ir suteikdamas jiems unikalumo. Medžio panelės ir MDF plokštės suteikia natūralumo įspūdį, o kregždės lizdo formos prideda smulkios detalės, kuri pritraukia dėmesį.

DEKORATYVINI PASTATOMA SIENA

Medžio panelė sienoms ,,Terra Brown Oak 7031‘‘.

1000 grindų. 2900×50 ×20 mm

Spalvota MDF plokštė ,,Terra ruda‘‘. Ulmas. 2900x2070x19mm

Tamsus stiklas baldams ,,juodas‘‘. Demodas stiklas

26 pav. Pastatomos sienos detalizacija

Siena yra pastatyta remiantis sienų dekoro elemento principu, tačiau viduje įdiegtas tamsus stiklas. Dekoras yra priklijuotas iš dviejų pusės stiklo paviršiaus.

Ši struktūra sukuria įspūdį, kad dekoratyvinis elementas plūsta ant stiklo paviršiaus, suteikdamas sienai elegantišką ir modernų išvaizdą. Tamsus stiklas gali sukurti kontrastą ir dramatiškumą, tuo pačiu leisdamas dekoratyviam elementui išsiskirti dar ryškiau.

27

7. LAUKO PLANAS IR DETALIZACIJA

Turėklų neįgaliesiems sistema Kee Access. Bipa

Markizės. Baremarytai

Lauko planas yra kruopščiai suprojektuotas, atsižvelgiant į funkcionalumą, estetiką ir temą. Pagrindinė projekto tema yra kregždė, o tai atsispindi visame dizaine. Prie pastato yra įrengtos specialios neįgaliųjų parkavimo vietos, užtikrinančios patogų priėjimą prie pagrindinio įėjimo. Kitoje teritorijos pusėje, pasinaudojant esama vieta, įrengtas bendras parkavimo plotas. Neįgaliųjų patogumui taip pat suprojektuoti patogūs pandusai.

Teritorijoje yra vaikų žaidimų aikštelės ir sporto aikštelės, įskaitant tinklinio aikštelę, kuri suteikia galimybę aktyviai leisti laiką lauke. Taip pat yra scenos konstrukcija, kuri yra funkcionali tiek viduje, tiek lauke. Ši scena sukurta taip, kad galėtų būti naudojama įvairioms veikloms – nuo koncertų ir spektaklių iki bendruomenės susirinkimų. Jos universalumas ir galimybė veikti tiek viduje, tiek lauke leidžia renginius organizuoti įvairiomis sąlygomis, nepriklausomai nuo oro.

Tako sistema suprojektuota taip, kad būtų patogiai prieinama visiems lankytojams.

Takai yra apšviesti lauko pastatomais šviestuvais, kurie užtikrina saugumą ir patogumą vaikščioti net ir tamsiu paros metu. Visame plote įrengti lauko suoliukai, sukurti vieningu stiliumi su šiukšliadėžėmis, kurie ne tik suteikia patogias vietas poilsiui, bet ir prisideda prie tvarkos ir švaros palaikymo.

Pagal pagrindinę projekto temą – kregždę – teritorijoje yra įrengti muzikiniai instrumentai, kurie primena paukščių dainavimą. Šie muzikiniai elementai suteikia galimybę lankytojams mėgautis muzika ir kurti garsus, skatindami kūrybiškumą ir bendruomeniškumą.

Visas lauko planas yra kruopščiai apgalvotas, siekiant sukurti harmoningą ir funkcionalią aplinką, kurioje kiekvienas lankytojas galėtų rasti sau tinkamą veiklą ir poilsio vietą.

28
27 pav. Lauko detalizacija

8. PASIRINNKTI

RĖMĖJAI

VELVE M.S.T.

 ULTRACOAT HT 2K. Dviejų komponentų poliuretaninis medinių grindų lakas vandens pagrindu, išskiriantis mažai LOJ, EC1 PLIUS. Išbandytas pagal ISO 22196 reikalavimus

 MAPETOP N AR6. Paruoštas naudoti sausas mišinys-kietiklis betono grindims. Pagamintas iš specialios rūšies kvarco, Portlandcemenčio ir specialių priedų.

 OLED TV TX-77MZ2000E, 4K. HDR išmanusis televizorius.

 SC-TMAX5 minisistema. Galingas ir aiškus garsas per 16 cm žemųjų dažnių garsiakalbį su „Dual Drive“ ir „Bass Relfex“ prievadu, 475x250x265mm.

 Naujasis kasetinis U2 90x90, skirtas „PACi“ ir VRF sistemoms. Šios kasetės sukurtos tam, kad patenkintų šių dienų klientų poreikius užtikrinant didžiausią energijos taupymą, maksimalų komfortą ir geresnę oro kokybę.

 Gyvenamųjų patalpų vėdinimo įrenginys su šilumos atgavimu (rotaciniu rekuperatoriumi).

ENEFIT

 Žalioji Elektra.

 Elektromobilių įkrovimo stotelės.

29

BAUMIT

Baumit Ceramic S. Hidrofobinis, elastingas mišinys siūlėms užpildyti klinkerio ir kitų rūšių plytelėms, kurių paviršius yra itin lygus (glazūruotas). Šiltinimo sistemos Keramik sudedamoji dalis. Galima rinktis iš 9-nių atspalvių. Rekomenduojamas siūlių plotis iki 5 mm.

Baumit NanoporTop. Mažos taršos Premium dekoratyvinis tinkas. Savaime nusivalantis, ypatingai atsparus nešvarumams, nanokristalinės struktūros, aukščiausios klasės silikatinis dekoratyvinis tinkas. Dekoratyvinis tinkas pasižymi fotokatalizės funkcija, labai geru garų pralaidumu ir atsparumu aplinkos poveikiams.

 Baumit Grund. Gruntas įgeriančių paviršių gruntavimui. Naudoti paruoštas, greitai džiūstantis, sudėtyje skiediklių neturintis, dispresijos pagrindu pagamintas gruntas. Naudojamas įgeriamumo gebai suvienodinti prieš dengiant savaime išsilyginančius mišinius, hidroizoliacijas, plytelių klijus ir kt. rūšių sausuosius mišinius. Naudojamas vidaus ir lauko darbams.

 Baumit Nivello Centro. Gipsinis savaime išsilyginantis grindų mišinys. Savaime išsilyginantis grindų mišinys gipso rišiklio “Alpha” pagrindu. Greitai kietėjantis. Rekomenduojama naudoti gyvenamosios ir visuomeninės paskirties pastatų koridorių, vestibiulių, salonų, biurų grindims. Tinkamas prieš įvairaus tipo grindų dangas: apdailines plyteles, parketą, laminatą, kiliminę, kaučiukinę ir vinilinę dangą.

 Baumit Baumacol Basic. Plytelių klijai cemento pagrindu. Stabilūs, atsparūs šalčiui. Tinka keraminėms, klinkerio plytelėms, mineralinio pagrindo paviršiaus. Gali būti naudojamas statybinėms medžiagoms ir šilumos izoliacijos plokštėms klijuoti. Tinka gyvenamiesiems kambariams, dušo, vonios kambariams. Netinka šildomoms sienoms ir grindims. Skirti tik vidaus darbams. Atitinka EN 12004 C1 reikalavimus.

TIKKURILA

 Presto LF+. Paruoštas naudoti aukštos kokybės lengvasis vandeninis glaistas. Užpildomoji geba – 6 mm be trūkių. Lengva dengti, minimaliai susitraukia ir puikiai sukimba su dengiamu paviršiumi.

 Joker, NCS S 0500-N. Betirpikliai matiniai akriliniai vidaus dažai, atsparūs valymui.

 Vivacolor Green Line CEILING 2 (2,7l). Lubų dažai. Visiškai matiniai (2) vandeniniai balti lubų dažai. Serijos „Green Line“ dažai turi Šiaurės šalių ekologinį ženklą („Šiaurės gulbė“) ir yra aprobuoti Suomijos alergijos ir astmos asociacijos. Turi itin mažą lakiųjų organinių junginių (LOJ) kiekį.

30

CORIAN

• Sandalwood. Sudėtyje yra atsitiktinių venų. Venos gali būti skirtingo intensyvumo ir paryškinti siūles. Pavyzdys gali neatspindėti visos estetikos. Daugiau informacijos teiraukitės savo Corian® pardavimo kontaktinio asmens.

BAREMARYTAI

• Terasinės markizės. Terasinės markizės dažniausiai bus panašios į lygaus plokščio stogo imitaciją. Puikiai tiks tiek maitinimo įstaigoms, tiek bet kokia lauko prekyba užsiimantiems privatiems asmenims. Platus spalvų ir raštų pasirinkimas leis suformuoti tokį eksterjerą, koks yra patraukliausias.

UAB BOLLE MODULAR

• Moduliniai pastatai.

 TX diapazonas – belaidis vaizdo perdavimas –

3G/4G/LTE TX belaidės CCTV kameros. Nuolatinio įdiegimo belaidžių CCTV kamerų, 360 Vision Technology TX belaidžio vaizdo kameros perdavimo technologija užtikrina kameros vaizdo ir PTZ valdymą vos nuo 6 Kb/s, Full 1080p HD krašto įrašymą / nuotolinį nuskaitymą pagal poreikį ir taupo laiką bei pinigų kameros vaizdo perdavimo įrengimo išlaidoms ir nuolatinėms nuosavybės išlaidoms padengti.

31

 ATS1700-MM. „Axon 1700“ apsaugos skydelis, integruotas IP, 3 EN klasė, „WebApp“, 8 integruotos zonos, daugiausia 32 zonos, 4 zonos, vidutinio metalo korpusas, daugiakalbis.

 Pastatų apsaugos nuo gaisro įranga.

 Wiser elektros energijos mažinimo priemonė namams.

• WICTEC MODUL AIR. Fasado langai derinami

 Turėklų neįgaliesiems sistema Kee Access. Turėklai iš

Kee Access serijos pilnai atitinka Statybos techninio reglamento STR 2.03.01:2001 „Statiniai ir teritorijos.

Reikalavimai žmonių su negalia reikmėms”.

 Neregių vedimo sistema iš trinkelių. Guminės plytelės neregių įspėjamiesiems ir vedimo takams formuoti. Iškilus sistemos elementų reljefas pasižymi antislydiminėm savybėm bei aukštu kontrastu su aplinkos paviršiumi. Plytelės matmenys: 60x30 cm.

 Kelio ženklai iš termoplastiko – Premark. PREMARK® yra iš anksto suformuoti ir paruošti dengimui kelio ženklai iš termoplastiko, kurie gali būti įrengiami keliuose bet kuriuo metų laiku.

 Multifunkcinė vaikų žaidimų aikštelė RB1217. Pagrindinė žaidimų komplekso konstrukcija pagaminta iš Robinijos - patvarios akacijos medienos (skersmuo ~ 18 cm), atsparios įvairioms oro sąlygoms. Nėra aštrių briaunų ar plyšių, kurie galėtų sužeisti. Apvalus įleidžiamas batutas 130cm

 Betoninis suoliukas INV107SA. Lauko suoliukas, sudarytas iš apvalintų betoninių atramų ir integruotos medinės sėdimosios dalies su atlošu.

32

 Lauko šiukšliadėžė INV117. Betoninė šiukšlių dėžė su natūralaus granito skaldelės apdaila.

 Vandens kolonėlė šunims FONTIS DOG. Dvipusė geriamojo vandens kolonėlė, kurią sudaro stačiakampio formos plieninis stovas, nerūdijančio plieno grotelės su dubenėliu ir du chromuoti žalvariniai čiaupai su mygtuku. Vandens paleidimo mygtukas su automatinio grįžimo funkcija apsaugo nuo bereikalingo vandens švaistymo.

 Nerūdijančio plieno dviračių stovas. Dviračių stovas pagamintas iš 60mm skersmens nerūdijančio plieno.

 Piramidinė gėlinė H700.

 Lauko vazonai ORIONE/PEGASO.

 Garso sistema.

 Įtraukiantis garsas.

PERCUSSION PLAY

 Gatvės kvarteto ansamblis. Street Quartet komplektas yra sukurtas didelio intensyvumo aplinkoms ir yra didžiausias miesto lauko muzikos instrumentų ansamblis.

 Kavatina. Cavatina yra naujausias instrumentas iš siūlomo lauko metalofonų asortimento. Žodis Cavatina yra itališkas terminas, reiškiantis solisto melodiją ir išsiskiria savo paprastumu skambinant mėgstamų dainų melodijas.

 Quintet Ensemble. Kvinteto muzikinių instrumentų ansamblis siūlo plačią tonų ir skambesių įvairovę, susiliejančią į vieną gražią muziką. Pentatonikoje, nuo A2 iki C6, suderintas rinkinys leis kiekvienam atrasti daug įvairių garsinių atspalvių, groti norimu ritmu, improvizuoti.

 Eco line.

 Ryšiamasis skystis D7000

33

9. IŠVADA

Projekto metubuvopastebėta,kadbendruomenės namaiKasmiškiųkaime,buvusišokių

salė, ilgainiui prarado savo funkcionalumą ir estetinį patrauklumą dėl senėjimo ir nepritaikytumo moderniems poreikiams. Šios problemos lėmė sprendimą atlikti kapitalinę renovaciją ir pastato plėtrą.

Renovacijos darbų metu buvo išspręstos kelios esminės problemos. Pirma, pastatas buvo praplėstas, padidinant jo plotą ir sukuriant daugiau erdvės bendruomenės veikloms. Tai suteikė galimybę organizuoti daugiau ir įvairesnių renginių bei susitikimų. Antra, buvo pakeistas senas ir nusidėvėjęs stogas, užtikrinant geresnę šilumos izoliaciją ir atsparumą oro sąlygoms. Trečia, atnaujintas fasadas, vidinės sienos, langai ir durys ne tik pagerino pastato estetinį vaizdą, bet ir padidino energijos efektyvumą bei komfortą viduje.

Projekto metu ypatingas dėmesys buvo skiriamas interjero dizainui. Pasirinkta „Kregždės“ tema, kuri simbolizuoja laisvę, šeimos ryšius ir namų jaukumą, padėjo sukurti jaukią ir šiltą atmosferą su moderniais elementais. Naudotos natūralios medžiagos, tokios kaip medis ir linas, taip pat įvairūs rankų darbo dekoro elementai sustiprino ryšį su gamta ir bendruomeniškumo jausmą.

Dėl šios renovacijos ir plėtros Kasmiškių kaimo bendruomenės namai tapo modernia ir funkcionalia erdve, atitinkančia visus bendruomenės poreikius. Sukurta erdvė ne tik estetiškai patraukli, bet ir labai praktiška, pritaikyta įvairioms veikloms ir renginiams. Šis projektas

ženkliai prisidėjo prie bendruomenės gerovės ir aktyvumo skatinimo, suteikdamas vietos gyventojams patogią ir jaukią vietą susiburti, bendrauti ir puoselėti bendruomeniškumo vertybes.

34

10. STATYBOS TECHNINIAI REGLAMENTAI

 4.35. higienos normą HN 98:2000 „Natūralus ir dirbtinis darbo vietų apšvietimas. Apšvietos ribinės vertės ir bendrieji matavimo reikalavimai“ (Žin., 2000, Nr. 441278);

 4.36. higienos normą HN 33-1:2003 „Akustinis triukšmas. Leidžiami lygiai gyvenamojoje ir darbo aplinkoje. Matavimo metodikos bendrieji reikalavimai“ (Žin., 2003, Nr. 87-3957);

 4.37. higienos normą HN 55-2001 „Viešieji tualetai“ (Žin., 2001, Nr. 103-3688);

 4.46. higienos normą HN 36:2002 „Draudžiamos ir ribojamos medžiagos“ (Žin., 2002, Nr. 59-2404);

 4.48. higienos normą HN 65:2001 „Haloterapijos kameros. Įrengimas ir priežiūra“ (Žin., 2001, Nr. 104-3720);

 4.61. Elektros įrenginių įrengimo taisykles (Žin., 2001, Nr. 3-59); 4.62. techninį reglamentą „Liftai“ (Žin., 2000, Nr. 28-785);

 4.7. statybos techninį reglamentą STR 2.01.01(2):1999 „Esminiai statinio reikalavimai. Gaisrinė sauga“ (Žin., 2000, Nr. 17-424);

 4.8. statybos techninį reglamentą STR 2.01.01(3):1999 „Esminiai statinio reikalavimai. Higiena, sveikata, aplinkos apsauga“ (Žin., 2000, Nr. 8-215);

 4.13. statybos techninį reglamentą STR 2.01.04:2004 „Gaisrinė sauga. Pagrindiniai reikalavimai“ (Žin., 2004, Nr. 23-720);

 4.17. statybos techninį reglamentą STR 2.08.01:2004 „Dujų sistemos pastatuose“ (Žin., 2004, Nr. 21-653);

 4.18. statybos techninį reglamentą STR 2.09.02:1998 „Šildymas, vėdinimas ir oro kondicionavimas“ (Žin., 1999, Nr. 13-333);

 4.22. statybos techninį reglamentą STR 2.01.07:2003 „Pastatų vidaus ir išorės aplinkos apsauga nuo triukšmo“ (Žin., 2003, Nr. 79-3614);

35

Turn static files into dynamic content formats.

Create a flipbook
Issuu converts static files into: digital portfolios, online yearbooks, online catalogs, digital photo albums and more. Sign up and create your flipbook.