

KREDO SILUETAS
KRETINGOS SAVIVALDYBĖS PROJEKTAS
SANTRAUKA/SUMMARY
PROJEKTO TIKSLAS, PAVADINIMAS
TYRIMO OBJEKTAS
URBANISTINĖ ANALIZĖ
Teritorijos padėties mieste vertinimas
Teritorijos istorijos raidos vertinimas
Miesto istorijos laiko juosta
Miesto panoramos raidos vertinimas
Nekilnojamo kultūros paveldo vertinimas
Gamtinių sąlygų vertinimas
Susisiekimo sistemos vertinimas
Socialinės infrastruktūros vertinimas
Sklypų struktūros vertinimas
Dominuojančio morfotipo nustatymas
Esamų statinių vertinimas
Urbanistinių erdvių sistemos vertinimas
Kompozicinių ypatumų vertinimas
Suvestinis brėžinys
ARCHITEKTŪRINĖ ANALIZĖ
Analogų analizė
Analogų analizės išvados
Esamos situacijos analizė
Rotušės analizė
Idėjų paieškos
Urbanistinės koncepcijos schemos
Koncepcija
Architektūrinės koncepcijos schemos
Konteksto vizualizacija
Esama/siūloma
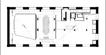
Vidaus struktūra ir erdvės
Situacijos schema
Sklypo planas
Fasadai
Architektūriniai pjūviai
Eksterjeras
Interjeras
Išklotinės
Išvada ir maketai
Partnerių produkcija
MONIKA SKIRUTYTĖ IR GABRIELĖ GRIGAITĖ


Projekto architektūrinė idėja - subtiliai jungti praeitį ir dabartį, pabrėžiant istorinės gatvės reikšmę ir suteikiant jai naują gyvenimą. Pagrindiniai jos bruožai yra šie:
Istorinės gatvės atstatymas pagal istorinius dokumentus ir fotografijas, kuriant autentišką architektūrą su vietinio regiono stiliaus elementais. Ši gatvė taptų svarbiu miesto paveldo objektu, kuris būtų atkurtas iš naujo gyvuojantis ir klestintis.
Tarp savivaldybės pastatų būtų įrengti subtilūs stikliniai tiltai, kurie suteiktų vaizdui skaidrumo, bet nesugadintų istorinės aplinkos. Šie tiltai suteiktų ne tik estetišką vaizdą, bet taip pat ir būtų funkcionalūs - veiktų kaip pastatų jungtis ir poilsio zonos.
Rotušė būtų atkurta arba renovuota pagal istorinius pamatus ir dizainą, atkuriant jos buvusią reprezentacinę funkciją. Ji taptų svarbiausia taške, pabrėžiančiu miesto istoriją ir identitetą.
Architektūra ir dizaino detalės integruotų "laiko" elementus, pabrėžiančius istorinę gatvės praeitį ir prisimenantį svarbius istorinius įvykius ar periodus. Tai galėtų būti įvairios meninės kompozicijos, simbolizuojančios praeitį ir dabartį.
Projektas taip pat būtų draugiškas aplinkai, naudojant tvarius medžiagų ir konstrukcijų pasirinkimus bei integruojant įvairius aplinkosaugos sprendimus, pvz., energijos taupymo sistemas ar žaliosios teritorijos integraciją.
Šios idėjos tikslas būtų sukurti subtilų, bet galingą ryšį tarp praeities ir dabarties, atkuriant istorinę gatvę kaip svarbią miesto dalį, kuri gyvuoja ir klesti kartu su dabartimi.
IN ENGLISH:
The architectural concept of the project is to subtly connect the past and the present, emphasizing the significance of the historic street and giving it a new life. Its main features include:
- Restoration of the historic street based on historical documents and photographs, creating authentic architecture with elements of the local regional style. This street would become a significant urban heritage site, revitalized and thriving anew.
- Subtle glass bridges would be installed between municipal buildings, providing transparency to the view without disrupting the historic environment. These bridges would have minimal visual impact while being functional and practical.
- The town hall would be restored or renovated according to historical foundations and design, restoring its former representative function. It would become the focal point, emphasizing the city's history and identity.
- Architecture and design details would integrate "time" elements, emphasizing the historical past of the street and commemorating important historical events or periods. These could be various artistic compositions symbolizing the past and present.
- The project would also be environmentally friendly, using sustainable material and construction choices and integrating various environmental solutions, such as energy-saving systems or the incorporation of green spaces.
The goal of these ideas would be to create a subtle yet powerful connection between the past and present, restoring the historic street as an important part of the city that thrives alongside the present.
PROJEKTO TIKSLAS:
Sukurti Kretingos gyventojams ir savivaldybei patrauklų ir funkcionalų savivaldybės pastato projekto pasiūlymą.
PROJEKTO PAVADINIMAS:
"Kredo siluetas" – tai pavadinimas, kuris simbolizuoja Kretingos miesto pokyčius ir jo centrinės dalies istorijos atspindį. "Kre" atspindi Kretingos miestą, jo unikalią kultūrą ir tradicijas. "Do" reiškia pokytį, progresą ir transformaciją, kurią miestas patyrė per įvairius istorinius laikotarpius. "Siluetas" – tai istoriją ir paveldą atspindintis žodis, kuris išryškina svarbiausius miesto centro architektūrinius ir kultūrinius elementus. Šis pavadinimas sujungia praeitį ir dabartį, kurdamas ryškų ir prasmingą Kretingos miesto įvaizdį.
KRETINGOS SAVIVALDYBĖS ADMINISTRACIJOS PASTATAS IR JO VIETA
KRETINGOS MIESTE

Esamas Kretingos savivaldybės administracijos pastatas Savanorių g. 29A, esantis toliau nuo miesto centro, kuris nėra pakankamo dydžio sutalpinti visas savivaldybės funkcijas.



Kretingos miestas iš paukščio skrydžio.



Pasirinkta projekto vieta - “Maxima” prekybos centro vieta


Savivaldybės vieta mieste yra neįkainojama, nes ji ne tik simbolizuoja valdžios centrą, bet ir atlieka daugelį esminių vaidmenų, kurie formuoja miesto gyvenimą ir kokybę. Pirmiausia, savivaldybės vieta miesto centre užtikrina prieinamumą ir pasiekiamumą visiems miesto gyventojams. Būdama centriniame miesto rajone, savivaldybė tampa lengvai pasiekiama, sumažindama gyventojų transporto išlaidas ir skatinant aktyvų dalyvavimą viešose diskusijose, renginiuose ar administraciniuose procesuose. Antra, savivaldybės vieta turi didelę simbolinę reikšmę. Ji tampa miesto simboliu ir atspindi valdžios autoritetą bei svarbą miesto gyvenime. Savivaldybės pastatas miesto centre sukuria įspūdį apie miesto tvarką, augimą ir stabilumą. Trečia, savivaldybės vieta gali būti susijusi su miesto istorija ir kultūra. Daugelis senų miestų savivaldybių pastatų yra istorinės vertės objektai, kurie prisideda prie miesto charakterio ir paveldo išsaugojimo. Jie tampa ne tik administraciniais centrais, bet ir turistiniais lankomaisiais objektais, pritraukiančiais kultūrinius ir istorinius entuziastus. Ketvirta, savivaldybės vieta skatina verslą ir ekonominį augimą miesto centre. Įsikūrusi šioje vietoje, savivaldybė sukuria palankias sąlygas verslui, kuris tampa patrauklesnis dėl geresnio pasiekiamumo ir infrastruktūros. Tai skatina naujų verslų įsikūrimą, darbo vietų kūrimą ir ekonominį aktyvumą miesto centre. Galiausiai, savivaldybės vieta leidžia efektyviau valdyti miesto plėtrą ir planavimą. Centrinė vieta užtikrina, kad svarbios miesto funkcijos būtų efektyviai organizuojamos ir valdomos. Tai apima urbanistinę plėtrą, infrastruktūros projektus, socialinės gerovės programas ir kitus miesto vystymosi aspektus. Visi šie veiksniai daro didelę įtaką miesto gyvenimo kokybei ir prisideda prie miesto identiteto, klestėjimo bei gyvybingumo. Savivaldybės vieta miesto centre yra kaip širdis, kuri suteikia energiją ir judrumą visam miestui.

M 1:20 000

Miesto riba

Nagrinėjama teritorija
Gatvės
Vanduo
Pastatai

Pastatai, kuriuose vykdoma savivaldybės administracinė veikla
Pagrindinis savivaldybės administracijos pastatas
Projektuojama Kretingos centro teritorija
Kretinga Lietuvos atžvilgiu

Kretingos miesto savivaldybės teritorija


Klaipėda
Akmena
Kretinga – miestas Lietuvos vakaruose, Klaipėdos apskrityje. Kretingos miestas yra geografiškai palankioje padėtyje – netoli nuo apskrities centro Klaipėdos (26 km), taip pat Palangos oro uosto (18 km). Atstumas nuo Kretingos iki Vilniaus – 313 km, iki Kauno – 218 km, iki Šiaulių – 138 km. Miestas išsidėstęs rajono pietvakarių dalyje prie Vilnius-Klaipėda geležinkelio. Į Kretingą sueina keliai iš Palangos, Klaipėdos, Gargždų, Plungės bei Skuodo.
Kretinga įsikūrusi Pajūrio žemumoje, per miestą iš šiaurės į pietus vingiuoja Akmenos upė, dalijanti miestą į dvi dalis, kurias jungia 4 tiltai. Kretingos miestas užima 1500 ha ploto teritoriją. Didesnioji miesto dalis išsidėsčiusi rytiniame Akmenos krante. Čia yra savivaldybė, miesto aikštė, Kretingos rajono kultūros centras. Šiauriniame pakraštyje yra Tiškevičių dvaro rūmai, rajono ligoninė, pirminės sveikatos priežiūros centras. Vakariniame Akmenos krante yra pramonės įmonės, eina geležinkelis Šiauliai–Klaipėda. Kretingos–Skuodo geležinkelis nuo 2009 m. nenaudojamas. Kretinga yra žalias miestas dėl savo turimų parkų, žaliųjų miesto erdvių kiekio, kurie užima išties ne mažą miesto dalį.





objektai:





SUTARTINIAI
M 1:8000




Miesto riba
Nagrinėjama teritorija
Nekilnojamo kultūros paveldo vietovių teritorijos
Kultūros paveldo objektai
NEKILNOJAMO KULTŪROS PAVELDO SĄRAŠAS:
1.Kretingos senojo miesto vieta;
2.Kretingos vandens malūnas;
3.Kretingos miesto pirtis;
4.Kretingos evangelikų liuteronų bažnyčios pastatų kompleksas;
5.Namas Kęstučio g. 12;
6.Pastatas Rotušės a. 3;
7.Lietuvos banko Kretingos skyriaus statinių kompleksas;
8.Kretingos bernardinų vienuolyno ir Viešpaties Apreiškimo Švč. Mergelei Marijai bažnyčios statinių kompleksas;
9.Kretingos miškų urėdijos pastatų kompleksas;
10.Kretingos miesto istorinė dalis;
11.Kretingos kapinynas;
12.Kretingos kaimo senosios kapinės, vad. Maro kapeliais;
13.Tiškevičių šeimos koplyčios-mauzoliejaus, kapinių tvoros, vartų kompleksas; 14.Borumų kalvė.
IŠVADOS:
Kretingos savivaldybės teritorija turtinga ne tik vaizdingais kraštovaizdžiais, lankytinais objektais, bet ir kultūros paveldu. Kretingos rajone priskaičiuojama apie 600 kultūros paveldo objektų, iš kurių kiekvienas turi įdomią savo atsiradimo istoriją. Kretingos miesto istorinė dalis apima visą centrinę miesto teritoriją bei išsidėsčiusius statinių kompleksus menančius istoriją ir buvusį pastatų užstatymą.

M 1:20 000

Gatvės
Vanduo
Pastatai
Intensyviai naudojamų želdynų zona
Rekreacinė koncervacinė zona


Ekstensyviai naudojamų želdynų zona
Miškų ir miškingų teritorijų zona
Reljefo aukštingumas
32m

11m
IŠVADOS:
Kretinga įsikūrusi Pajūrio žemumoje, per miestą iš šiaurės į pietus vingiuoja Akmenos upė. Reljefas Kretingos mieste nėra labai išraiškingas, žemiausia reljefo altitudė - 11 metrų ties Akmenos upe, o aukščiausia vieta siekia 32 m.
Kretinga yra žalias miestas dėl savo turimų parkų, žaliųjų miesto erdvių kiekio, kurie užima ne mažą miesto dalį. Vien Kretingos rajono miškingumas yra didesnis už respublikos vidurkį. Miesto centre įteka Dulpučio upelis, ties Kretingos dvaru su Akmenos upe susijungia Krentingos parko tvenkinys. Akmenos upė sujungia pagrindinius miesto parkus - Kretingos dvaro parką, Pastauninko parką ir Jauryklos parką bei suformuoja aiškų miesto žaliąjį karkasą.
Tad miesto centrinė dalis yra apsupta miesto parkais, aiškiais miesto želdynais, kurie suskuria žaliųjų erdvių sistemą mieste.
Kretingos miesto žymiausi želdynai






SUTARTINIAI ŽYMĖJIMAI
M 1:8000


Miesto riba
Nagrinėjama teritorija
Gatvės
Vanduo
Pastatai
Intensyviai naudojamų želdynų zona
Rekreacinė koncervacinė zona

Ekstensyviai naudojamų želdynų zona
Miškų ir miškingų teritorijų zona

Reljefo aukštingumas
32m
11m
IŠVADOS:
Pagrindiniai miesto želdynų sistemos elementai sudaryti iš parkų, aikščių, žaliųjų jungčių, apsauginių želdinių, rekreacinių-visuomeninių teritorijų bei rekreacinių vietovių su teminiais parkais. Šios želdynų teritorijos, bendro naudojimo erdvės bei rekreacinės vietovės į vieną sistemą apjungiamos žaliosiomis jungtimis, gatvėmis, dviračių ir pėsčiųjų takais.
Be to, Kretingos mieste yra daugybė skverų ir mažesnių želdynų, kurie papuošia miesto gatves ir kviečia gyventojus leisti laiką lauke.
M 1:20 000



Miesto ribos
Nagrinėjama teritorija
Geležinkelio bėgiai
D1 kategorijos gatvė
D2 kategorijos gatvė
C kategorijos gatvė
B kategorijos gatvė
Krašto kelias
Rajoninis kelias
Magistralinis kelias

Kelio apsauga
Vanduo
Pastatai

Autobusų stotelės

Autobusų maršrutai
Autobusų ir traukinių stotys

Pėsčiųjų ir dviračių takų schema
M 1:15 000
Nacionalinės reikšmės dviračių takai
Pėsčiųjų takai
Dviračių-pėsčiųjų takai


IŠVADOS:
Kretingos rajono savivaldybės teritorija yra svarbioje centrinėje Klaipėdos jūrinės metropolijos dalyje. Pro Kretingos rajoną praeina Vilniaus–Klaipėdos geležinkelio trasa, magistralinis kelias A11. Netoli yra Baltijos jūra, Palangos kurortas.

Bendras Kretingos miesto nuolatinių gyventojų skaičius pagal 2023 m. pr. duomenis - 17207 gyv.

Vyrų skaičius pagal amžiaus grupes:
Viso - 7911; Mažiausiai - nuo 0 iki 4 m amžiaus, kas sudaro 374 gyv.
Daugiausiai - nuo 60 iki 64 m amžiaus, kas yra 631 gyv.
Švietimo ir mokslo įstaigos

Moterų skaičius pagal amžiaus grupes:
Viso - 9296; Mažiausiai - nuo 0 iki 4 m amžiaus, kas sudaro 376 gyv.
Daugiausiai - ≥75m amžiaus, kas yra 1105 gyv.

IŠVADOS:
Po Nepriklausomybės atkūrimo Kretingos miesto gyventojų skaičius mažėjo, tačiau dabartiniu metu jis stabilizavosi. Bendras 1989-2022 m. laikotarpio gyventojų skaičiaus pokytis -2 470, arba -12,66 proc. Kretinga patenka į Klaipėdos aglomeraciją, tad čia kuriasi nemažai naujakurių, dirbančių Klaipėdoje. Galima teigti, kad geografinė padėtis yra vienas iš veiksnių, kuris lemia, jog Kretingos rajone yra mažiausias nedarbo lygis tarp visų šalies savivaldybių. Jei kretingiškiai neranda darbo savo krašte, įsidarbina Klaipėdoje ar Palangoje. Taip pat čia atsidaro nemažai įvairių verslų, kuriems naudą teikia tranzitiniai keliai į Palangą ir Klaipėdą, kuriais atvyskta daugiau turistų.
SUTARTINIAI

Miesto riba
Gatvės
Vanduo
Pastatai

Mokymo įstaigos (mokyklos, darželiai)




Visuomeninės įstaigos
Kitos mokymo įstaigos
Visuomeninės įstaigos
Pasiekiamumas 500 m





SUTARTINIAI
M 1:8000

Miesto ribos


Nagrinėjama teritorija
Geležinkelio bėgiai
Inžinerinės infrastruktūros koridorių zonos
Vanduo
Pastatai
Bendro naudojimo zonos/želdynai
Kapinės


Laisvo planavimo teritorijos
Laisvo planavimo (visuomeninės) teritorijos
Sodybinis
Komponentinis/kompleksas
Perimetrinis
Pramonės ir sandėliavimo teritorijos
Neužstatyos teritorijos

IŠVADOS:
Kretingos mieste dominuoja sodybinis užstatymas, o aplink centrinę miesto aikštę išlikęs perimetrinis morfotipas. Centrinėje miesto dalyje pastebimas paplitęs laisvas užstatymas, kuris pagal istorinį miesto sklypų planą neatitinka taisyklingos keturkampės sklypų struktūros. Taip pat laisvo užstatymo morfotipas dažnas šiaurės rytinėje pusėje, kurioje dominuoja daugiabučių pastatų ir visuomeninės paskirties įstaigos. Nagrinėjamoje teritorijoje mažiausiai pastebimas pramoninis, sandėliavimo morfotipas bei atskirai stovintys pastatai. Miesto centre esantis bažnyčios ir vienuolyno kompleksas priskiriamas prie komponentinio užstatymo tipo.



IŠKLOTINĖS A-A PASTATAI



Išklotinę A-A sudaro 8 pastatai, pagal rotušės aikštę išsidėstę perimetriniu užstaymu. Pastatų aukštingumas nuo 1 iki 3 aukštų. Šioje išklotinėje yra du nekilnojamajam kultūros paveldui priklausantys architektūriniai objektai, tai Rotušės a. 3 esantis pastatas, kuris laikomas vienu iš seniausių Kretingos centrinės dalies išlikusių pastatų bei Evangelikų liuteronų bažnyčios pastatas, kuris taip pat yra ir viena iš miesto dominančių. Abu pastatus sieja tai, jog jie statyti iš raudonų plytų mūro. Kiti išklotinės pastatai atstatyti sovietmečiu, tad jų struktūra ir architektūrinė išraiška pakitusi.
IŠKLOTINĖS B-B PASTATAI

Išklotinę B-B sudaro 2 aukštų pastatai, kurie savo tūriu yra panašūs, tačiau architektūrinė būklė skiriasi. Iš šios išklotinės pastatų tik trys yra renovuoti. Kitų būklė patenkinama, tačiau jie nekuria miesto aikštės išklotinei darnios architektūros vaizdo. Tarpai tarp pastatų tarsi nutraukia perimetrinį užstatymą, sukuria gatvės “plyšius”.
IŠKLOTINĖS C-C PASTATAI

Išklotinę C-C sudaro 7 pastatai. Atsižvelgiant į istorinį užstatymą, pastatų tūrinė išraiška pakitusi, jų dydžiai beveik dvigubai didesni nei istoriniu laikotarpiu buvusio užstatymo. Šioje išklotinėje pastebimi didesnio tūrio prekybos centrai, kurie nepritampa prie aplinkinių pastatų konteksto. Dabartinių “Senukų” vietoje istoriškai stovėjęs mažesnio tūrio ir išraiškingėsnės architektūros pastatas kūrė išklotinės užbaigtumą. Dabar prekybos centras yra atitolęs nuo gatvės raudonosios linijos. Kitas prekybos centras “Maxima” stovi buvusios Paupio gatvės vietoje, tad nutrauktas Akmenės ir Vytauto gatvių sąryšis. Kiti išklotinės pastatai yra panašios išvaizdos ir tūrio.
SUTARTINIAI
M 1:8000


Miesto riba
Nagrinėjama teritorija
Gatvės
Vanduo
Pastatai
Pagrindinis erdvių koridorius
Antraeilis erdvių koridorius
Žaliųjų erdvių koridorius

IŠVADOS:
Pagrindinis erdvių koridorius yra centrinėje miesto dalyje išsidėstęs prie pagrindinių į miestą vedančių gatvių vietose.
Antraeiliai erdvių koridoriai yra išsidėstę tarp aplinkinių kvartalų bei laisvo užstatymo tipo pastatų.
Nagrinėjamoje teritorijoje daugiausia pastebima žaliųjų erdvių koridorių, kurių pagrindinis yra pastauninko parkas.
Aplink upes išsidėstę tokie koridoriai sukuria vientisą žaliųjų erdvių sistemą mieste.




SUTARTINIAI ŽYMĖJIMAI
M 1:3000
Vanduo
Pastatai
Aplinkiniai pastatai
Suformuota
Iš dalies suformuota
Nesuformuota
IŠVADOS:
Miesto centrinėje dalyje aplink aikštę esančių kvartalų kraštinės yra suformuotos. Likusioje miesto dalyje dominuoja iš dalies suformuoti kvartalai o ties žaliosiomis erdvėmisnesuformuoti.
M 1:8000
Pagrindinių erdvių kontūras

Vizualinės ašys
Aplinkiniai pastatai
Svarbūs miesto objektai-dominantės
Apžvalgos taškai
Kretingos miesto domainantės

1.Viešpaties Apreiškimo Švč. Mergelei Marijai bažnyčia

2. Kretingos evangelikų liuteronų bažnyčia
IŠVADOS:
Centrinė miesto aikštė yra vizualinių ašių sankirtų vietoje. Dabartinės pastatų dominantės - tai centrinės miesto dalies apšvalgos taškai iš kurių atsiveria visa miesto panorama.


SUTARTINIAI
M 1:3000
Vanduo
Pastatai

Žaliosios erdvės
D1 kategorijos gatvė
D2 kategorijos gatvė
C kategorijos gatvė
Rajoninis kelias
Suformuota
Iš dalies suformuota
Nesuformuota

Vizualinės ašys
Aplinkiniai pastatai
Svarbūs miesto objektai-dominantės
Apžvalgos taškai
IŠVADOS:
Atlikus urbanistinę Kretingos miesto analizę pastebėtos tokios išvados, kaip:
1.Laisvo užstatymo pastatai pakeičia istorinę miesto sklypų struktūrą, kurioje buvęs smulkus užsatymas dabar tampa netvarkingai išsidėsčiusiais didesnio tūrio pastatais.
2.Centrinė miesto aikštė yra vizualinių ašių sankirtų vietoje, tad tokiu būdu turėtų būti atkreipiamas dėmesys į svarbiausias miesto erdves ir pastatus.
3.Atsižvelgiant į miesto struktūrą ir proporcijas, centrinė aikštė yra gerokai per didelė norint sukurti funkcionalią miesto viešąją erdvę.
4.Prie pat aikštės esantys didesnio tūrio prekybos centrai nepritampa prie aplinkinių pastatų konteksto bei kuria neišraiškingą siluetą.


PAVADINIMAS: Town Hall and Community Center
ARCHITEKTAI: Bez+Kock Architekten
VIETA: Holzwickede, Vokietija
PLOTAS: 5503 m²
METAI: 2023

Holzwickede mieste esantis rotušės pastatas yra istorinės svarbos, pastatytas 1915 m. Prie pastato pristatytas priestatas skirtas bendruomenės centrui, kuris yra nauja kampinė konstrukcija, sukurianti naują urbanistinį kompleksą, kuris su esamu pastatu ir šalia esančia turgaus aikšte sudaro harmoningą visumą.
Naujasis pastatas vystosi aplink centrinę erdvę su kvadratiniais stoglangiais, skulptūriškomis sienomis, atviromis laiptinių erdvėmis, šviesia apdaila sukuria dienos šviesos situaciją. Ši erdvė yra salės fojė, žmonių aptarnavimo taškas, centrinė susisiekimo vieta rotušėje ir, galiausiai, muziejaus salė, kurioje eksponuojamas istorinis pastatas. Kartu su nauja pastato dalimi ji sudaro funkcinę ir tipologinę visumą.
Spalvą keičiantis naujojo pastato klinkerio fasadas buvo kruopščiai suderintas su senojo pastato spalvine gama, taip išlaikant seno ir naujo pastatų sąveiką. Toks atviras plytų mūro dizainas naudojamas ir interjere - centrinėje salėje, taip siekiant sukurti natūralų perėjimą iš išorės į visų. Prie mūro naudojamas ir medis (ąžuolo apdaila). Šalia pagrindinio įėjimo įkurtas nedidelis bistro pagyvina pastato funkciją, susieja jį su greta esančią turgaviete, taip pat aprūpina renginius vykstančius pastate.
Senojo pastato vidus atnaujintas pagal kultūrinio paveldo išsaugojimo principus. Tokiu būdu siekiama sukurti darną tarp istorinės modernios rotušės apdailos.
Naudingi aspektai: -projektuojamas rotušės priestatas; -vieta prie turgaus aikštės; -interjere naudojami kvadratiniai stoglangiai; -naudojamos medžiagos - stiklas, skinkeris, medis; -klinkerio fasadas derinamas su senojo pastato fasadu.



Pirmo aukšto planas

Interjere panaudoti kvadratiniai stoglangiai s i

Centrinės erdvės interjeras

PAVADINIMAS: The Rural Municipal Building in Saue
ARCHITEKTAI: molumba
VIETA: Saue, Estija
PLOTAS: 1300 m²
METAI: 2021

Sklypo planas
Savivaldybės pastatas yra pietinėje Saue centrinio parko dalyje Žiūrint iš išorės administracinis pastatas atrodo kaip paviljonas viešajame parke. Ryšys tarp pastato tūrio ir jo aplinkos išprendžiamas per dvisluoksnį fasadą. Lakoniškame trikampės formos tūrio fasade tarsi išraižytos tūrio formos arkos ne tik suteikia administraciniam pastatui išriaškingumo, bet ir kartu veikia kaip viešoji parko pasteogė. Taip pat tokių būdu užtikrinama vidaus erdvių apsauga nuo tiesioginės saulės spindulių.
Pastatas atsiveria į aikštę, besitęsiančią išilgai jo šono. Kiemas ir automobilių stovėjimo aikštelė yra pietinėje pastato pusėje.
Kompaktiško pastato vidinio išplanavimo logika pagrįsta taip pat sluoksnių principu. Išorinė trikampio išplanavimo pastato perimetro erdvė skirta priėmimo zonai, darbo zonoms. O centrinėje pastato dalyje esantis tūris, per du aukštus, tai tarybos posėdžių salė su mažesnėmis salėmis aplinkui bei kitos kasdieniam darbui skirtos funkcijos.
Medinio pastato išorinis fasadas, tai CLT plokščių sluoksnis, kuris matomas ir interjere. Visos aptarnavimo ir inžinerinės sistemos yra paslėptos po paaukštintomis grindimis ir už sienų antrame aukšte, dėl to lubos yra atviros. Saue savivaldybės pastato privalumas, tai jog jis atitinka A klasės energetinio ženklo reikalavimus bei medienos, kaip tvarios medžiagos pasirinkimas.
Naudingi aspektai: -dvisluoksnio fasado sprendimai; -vieta prie centrinio parko; -patalpų išdėstymo sprendinys; -naudojamos medžiagos - medis.



planas




PAVADINIMAS: Oy-Mittelberg Town Hall
ARCHITEKTAI: Muffler Architekten PartG mbB
VIETA: Oy-Mittelberg, Vokietija
PLOTAS: 2640 m²
METAI: 2022

Sklypo planas
Naujojo rotušės pastato idėja - sukurti pastatą, kuris uždarytų atvirą erdvę bei derėtų prie esamos miesto struktūros. Tad pastatas tęsia struktūrinę sklypų formą ir orientuojasi į šios vietos tradicinius statybos metodus. Tad parinktos medžiagos, funkcijų išdėstymas kuria šiuolaikiško administracinio pastato tvarumo bruožus. Derinantis prie esamo aplinkos konteksto projektuotas pastatas - dvišlaitis, automobilių aikštelė patogiam privažiavimui suprojektuota galinėje pastato pusėje. Pagrindinė priešais palikta erdvė skirta lauko renginiams. Į reljefą įeina požeminis garažas.
Forma ir išraiška taip pat svarbi. Todėl pastatas nuo pat stogo viršaus iki pat apačios padengtas tolygia danga, jog sukurtų tarsi vienalytę struktūrą. Pagrindinis įėjimas nukreiptas į Šv. Onos aikštę, kurio erdvė atvira ir tarsi kviečianti užsukti.
Pirmame aukšte yra fojė, išdėstytos administracinės funkcijos. Pagrindiniai laiptai leidžia patekti į viršutinius aukštus ir sukuria tiesioginį ryšį su kitomis administracinėmis erdvėmis. Iš posėdžių salės viršutiniame aukšte atsiveria platus vaizdas į plačią panoramą. Naujojo pastato dizainu siekiama, jog jis nesudarytų išraiškingo modernaus kontrasto miesto centre, taip pat neapsimestų tarsi jis ten jau stovi ištisas kartas.
Pastato pirmo aukšto ir pirmo viršutinio aukšto laikančioji konstrukcija pagaminta kaip vientisa gelžbetonio konstrukcija. Taip suteikiamas stabilumas medinei palėpės konstrukcijai. Klijuotos sijos naudojamos dideliems stogo konstrukcijos tarpatramiams. Stogo santvara, taip pat vidaus ir išorės sienos yra pastatytos kaip medinė konstrukcija. Baltų biuro pertvarų ir akustinių lubų sąveika su natūralia, šviesia mediena sukuria jautrias ir šviesias interjero erdves su malonia atmosfera.
Naudingi aspektai: -įsiliejimas į esamą aplinką; -vieta miesto centre; -naudojamos medžiagos - medis.




Pirmo aukšto planas

Aplinkinis kontekstas

Vidaus interjeras, naudojama mežio apdaila

PAVADINIMAS: City Hall Remchingen
ARCHITEKTAI: Steimle Architekten
VIETA: Remchingen, Vokietija
PLOTAS: 6360 m²
METAI: 2020

Sklypo planas
Naujoji Remchingen miesto rotušė randasi tarp greitkelio ir žaliosios erdvės palei Pfinz upę, prie naujai suprojektuotos turgaus aikštės. Netoliese stovi atskiri pastatai - Remchingeno kultūros centras bei slaugos namai.
Pastato forma kurta siekiant sukurti aiškias viešųjų erdvių briaunas, tad penkiakampis urbanistinis elementas neturi galinių pusių. Savo forma pastatas reaguoja į svarbius erdvinius ryšius ir pabrėžia naują Remchingeno centrą. Nors pastatas išraiškingas aplinkiniame kontekste, tačiau jo forma kyla iš urbanistinio konteksto.
Pastato fasadai pagaminti iš izoliuojančio betono, sustiprina tvirtumo jausmą. Šiame vienodame išoriniame fasade, kurio mineralų pagrindu pagaminta sienų konstrukcija yra visiškai perdirbama, aiškiai išsiskiria dideli, reguliariai išdėstyti langai.
Įvairios rotušės paskirtys matomos jau iš išorės: vestibiulis, plati restorano zona pirmame aukšte, vestuvių salė su miesto lodžija. Tarybos rūmai antrame aukšte su vaizdu į panoramą.
Naudingi aspektai:
-pastatas savo forma reaguoja į urbanistinį kontekstą; -vientiso fasado pagyvinimas reguliarus įgilintų langų išdėstymas; -naudotos medžiagos, kurias galima perdirbti; -vieta prie turgaus aikštės; -naudojamos medžiagos - medis ir betonas.


Pirmo aukšto planas






PAVADINIMAS: Extension of the St Jean de Vedas Technical Center
ARCHITEKTAI: Chrystelle Sanaa
VIETA: Saint-Jean-de Vedas, Prancūzija
PLOTAS: 250 m²
METAI: 2013

Sklypo planas
Tai yra miesto savivaldybės techninis centras Saint-Jean-de-Vedas. Pastatas yra kampinio sklypo akcentas.
Šis objektas pastatytas naudojant surenkamą medinę konstrukciją, kuri padėjo įgyvendinti projektą per labai trumpą laiką (7 mėn.). Prie šio pasirinkimo prisidėjo ir kiti veiksniai: aikštelės sutvarkymas judrioje vietoje, esamo pastato betoninė architektūra, aiškesnių naujojo ansamblio funkcijų įtvirtinimas.
Pirmas aukštas, kurio apdaila - dažytos medinės dailylentės (eglė) ir akmeninė siena, yra atviri visuomenei, o dviejuose kituose aukštuose yra darbo ir biuro patalpos techniniams agentams.
Naudingi aspektai: -naudojamos medžiagos - medis ir akmuo; -naudota medinė surenkama konstrukcija.


fasadai

Pirmo aukšto planas

Aplinkos kontekstas ir naudota medžiaga - medis

Pastato pjūvis

PAVADINIMAS: Charles Malis
ARCHITEKTAI: LD2, MAMOUT, Willocx
VIETA: Sint-Jans-Molenbeek, Belgija
PLOTAS: 990 m²
METAI: 2016

Pastatas yra Molenbeek-Saint-Jean, daugiakultūrėje ir tankioje savivaldybėje, esančioje šiaurinėje Briuselio dalyje, Belgijoje.
Esamas pastatas anksčiau priklausė cigarečių gamybos kompleksui, kuris per pastaruosius dešimtmečius buvo nugriautas. Tad projektu siekta paversti pramoninę teritoriją į miesto rotušės padalinį.
Siekiant pagerinti šios viešosios įstaigos prieinamumą, laukiamasis suprojektuotas kaip gatvės tęsinys; tarpinė erdvė.
Viršutiniame aukšte esančius biurus jungia didelė bendra zona, skirta neformaliems susitikimams.
Nors esama struktūra liko nepaliesta, pastato fasadai ir funkcinis išdėstymas yra ištobulint, kad būtų pasiektas aukštas energetinis našumas ir puikus lankytojų bei darbuotojų sąlygų pagerinimas.
Naudingi aspektai: -pastatas iš gamybos paskirties paverstas administracinės paskirties objektu; -pastatas savo forma reaguoja į urbanistinį kontekstą; -pastato pagrindinė erdvė kurta tarsi praeinama erdvė; -naudojamos medžiagos - betonas ir raudonų plytų mūras.

Pirmo aukšto planas

Antro aukšto planas

Pastato pjūvis


Pastato interjeras

PAVADINIMAS: Geldrop-Mierlo Town Hall Renovation
ARCHITEKTAI: Reset Architecture
VIETA: Geldrop-Mierlo, Nyderlandai
PLOTAS: 4500 m²
METAI: 2019


Geldrop-Mierlo rotušė buvo visiškai atnaujinta ir išplėsta su daugiafunkciu posėdžių centru, kuriame įsikūrė tarybos rūmai ir posėdžių kambariai. Taip pat pastatą reikėjo renovuoti, kas jis būtų tvarus ir tinkamas darbo vietoms sukurti bei būtų pagerinta jo architektūrinė išraiška, kadangi pradžioje pagal jo išvaizdą negalima buvo identifikuoti jo kaip viešo, atliekančio rotušės funkcijas. Rotušė susidaro iš dviejų sujungtų dalių - saugomos XIX amžiaus vilos ir prie jos prijungto 8 dešimtmečio biurų pastato. Projektu architektūriškai išskirta vila, kad būtų pabrėžtos jos istorinės savybės bei būtų galima lengvai rasti pagrindinį įėjimą. Dėl to atsirado naujas erdvinis aiškumas, jog vila ir naujai pridėtas tūris kartu sudaro vientisą kompleksą.
Naujojo šviesaus susitikimų centro interjeras yra atviras aplinkai ir susijungia su žaliu kraštovaizdžiu. Visas centras yra atviras ir erdvus su posėdžių salėmis dviejuose aukštuose. Elegantiškos erdvės darną sustiprina nenutrūkstamas kolonų ritmas ir patenkanti šviesa pro stiklinius fasadus. Pastato architektūroje panaudototos ąžuolinės lentos, kas kuria ryšį su pastato aplinka, netoliese esančiais miškais ir neabejotinai prisideda prie šiltos erdvės atmosferos potyrio, kuris, be to, susideda iš ramių pilkų tonų.
Šis projektas yra geriausios tvarios renovacijos praktikos pavyzdys. Pastatas yra visiškai elektrinis, su ES energetine klase A+++. Naujas tūris apšiltintas naudojant trigubus stiklus ir apšiltintant stogą. Rotušė šildoma šilumos siurbliu oras-vanduo, naudojamas prisitaikantis LED apšvietimas. Statybos metu (griovimo) dalys panaudotos pakartotinai. Šiauriniame atnaujintų frontonų galų fasade įmontuotos šikšnosparnių ir kregždžių dėžės.
Naudingi aspektai:
-atsižvelgiama į istorinį kontekstą; -pastatas savo forma reaguoja aplinką; -pastatas suskirstytas į atskiras zonas; -naudojamos medžiagos - medis, tinkas.



1 ir 2 pastato aukštų planai prieš renovaciją


1 ir 2 pastato aukštų planai po renovacijos

3 pastato aukšto planas po renovacijos



PAVADINIMAS: Schorndorf Town Hall
ARCHITEKTAI: Ippolito Fleitz Group
VIETA: Schorndorf, Vokietija
PLOTAS: 654 m²
METAI: 2012

Pastato fasadas
Schorndorf rotušė yra Schorndorf miesto brangakmenis ir orientyras, pastatyta 1726–1730 m. Šio projekto metu atlikta rotušės renovacija.
Pirmajame statybų etape restauruoti viršutiniai pastato aukštai pagal energetinius ir istorinius reikalavimus. Antrasis statybų etapas sekė pirmojo aukšto viešosios erdvės pertvarkymą ir naujo fasado dizaino sprendinius.
Pagrindinė dizaino idėja buvo padaryti istorinę erdvę kuo matomesnę. Atsiradęs skaidrumas visose srityse rodo į piliečius orientuotą demokratijos supratimą ir primena buvusią pirmojo aukšto turgavietės funkciją.
Iš fojė su istoriniais mediniais stulpais į stiklinę salę veda laiptai. Patalpų vientisumui, visumos apšvelgimui, tačiau kartu ir atskyrimui naudotas stiklas. Plenarinei salei būdinga banguota lubų “burė” ir sėdimų vietų išdėstymas, optimizuotas maksimaliam akių kontaktui, taip siekiant sukurti kuo funkcionaliau veikiančią patalpą.
Naudingi aspektai: -pastate akcentuojama jo istorija; -rotušės aukštai priskirti skirtingoms funkcijoms; -pirmo aukšto dizainu siekiama atverti rotušę aplinkai.

Pastato pirmas aukštas



Pastato antras aukštas

Pastato trečias aukštas

PAVADINIMAS: Westland Town Hall
ARCHITEKTAI: architectenbureau cepezed
VIETA: Naaldwijk, Nyderlandai
METAI: 2017

Situacijos planas
Westland miesto rotušės ir savivaldybės biurų kompleksas atidarytas Naaldwijkoje, Olandijoje. Šio pastato architektūra ir interjeras yra sukurti su šiltnamio tema, nes tai atspindi regiono urbanistines, kultūrines ir ekonomines savybes.
Rotušė, kaip svarbiausia šio komplekso dalis, yra išskirtinai skaidri ir atvira. Tai ne tik simbolizuoja demokratiją, bet ir skatina ryšį tarp vyriausybės ir gyventojų. Pastatas taip pat yra tvarus ir efektyviai naudoja energiją, dėl to turi minimalų ekologinį pėdsaką. Be to, šiame komplekse yra vietos bendruomenės centrui, kuris suteikia plačias paslaugas ir reprezentuoja vietinę valdžią. Jo erdvės yra lanksčios, leidžiančios kurti įvairias renginių programas ir suteikiančios erdvės iniciatyvoms bei viešoms diskusijoms. Savivaldybės biuras taip pat yra modernus ir efektyvus, suteikiantis darbuotojams skirtingas darbo erdves ir skatinantis sąveiką bei bendravimą. Pastatas yra suprojektuotas taip, kad ne tik būtų maksimaliai efektyvus energijos naudojimas, bet ir integruotųsi į miesto aplinką bei kultūrinį kontekstą.
Naudingi aspektai:
- atsižvelgiama į aplinkinį kontekstą;
- kuriamas ryšys su gamta per įstiklintus fasadus; - pastato architektūra atspindi regiono kultūrines savybes; - skiriamas didelis dėmesys tvarumui; - pastatas suskirstytas į kelias dalis – savivaldybė ir rotušė;
- naudojamos medžiagos – stiklas, mediena, šiluminės plokštės.






PAVADINIMAS: Aksa Acrylic Headquarters
ARCHITEKTAI: Escape from Sofa
VIETA: Yalova, Turkija
PLOTAS: 4000 m²
METAI: 2017

Pastato eksterjeras
Šis pastatas yra įspūdingas pavyzdys modernaus dizaino ir funkcionalumo harmonijos, įsikūręs Yalova, Turkijoje. Tai yra žalias sertifikuotas pastatas, atitinkantis aukštus aplinkosaugos standartus. Pastato išvaizda yra įdomi ir subalansuota. Solidžios ir kubinės konstrukcijos šonuose suteikia stabilaus kontrasto su stiklo įėjimo kiemu.
Pastato viduje dėmesys skiriamas ne tik išvaizdai, bet ir funkcionalumui. Kairiame pastate įsikūrusios darbo patalpos, kurios subalansuotos tarp administracinių ir vadovų kabinetų bei atvirų darbo erdvių, kurios surenkamos aplink kiemą su stiklo fasadu, pritraukiant natūralią šviesą. Dešinėje pastato dalyje įsikūrusi parodų salė, didelė konferencijų salė ir kompaktiškas amfiteatras.
Interjeras pasižymi moderniu dizainu, kuris puikiai atspindi šiuolaikinį požiūrį į dizainą. Skirtingi paviršių raštai ir tekstūros suteikia erdvėms unikalumo ir charakterio, o apdailos sluoksniai nuo natūralių medžiagų iki lakuotų dangų priduria įvairovės ir elegancijos.
Svarbu paminėti, kad pastatas yra ne tik estetiškai patrauklus, bet ir tvarus. Žalias sertifikatas liudija pastato įsipareigojimą aplinkai, o stiklinės konstrukcijos puikiai naudoja dienos šviesą, mažindamos energijos suvartojimą.
Šis pastatas ne tik atlieka savo funkcines paskirtis, bet ir yra išskirtinis pavyzdys darnaus ir efektyvaus dizaino, kuris suteikia patogią ir įkvepiančią darbo bei gyvenimo aplinką.
Naudingi aspektai:
-skiriamas didelis dėmesys tvarumui; -modernu, funkcionalu ir tvaru; -naudojamos medžiagos – stiklas, betonas.


Pastato pirmo aukšto planas



Pastato interjero sprendiniai

PAVADINIMAS: Rathaus Korbach
ARCHITEKTAI: ARGE agn-heimspielarchitekten
VIETA: Korbach, Vokietija
PLOTAS: 7000 m²
METAI: 2022

ir esamos situacijos sklypo planai


Rotušė - tai vienas iš didesnio tūrio pastatų mieste. Nugriovus ankstesnį aštuntojo dešimtmečio pastatą, toje pačioje vietoje buvo panaudotos tos pačios statybinės medžiagos naujajam pastatui.
Dėl energetinių ir funkcinių trūkumų senojo betoninio pastato atnaujinti nepavyko, tad nustačius regeneruotų statybinių medžiagų masę, buvo patikrintas jų tinkamumas perdirbimui ir panaudojimas naujai statybai.
Nors pastatas tiek iš išorės, tiek viduje yra betoninės apdailos, ant fasadinių sienų spalva primena dėmetumą, tad pilkos sienos neatrodo monotoniškos. Reprezentacinės zonos, tokios kaip fojė, dekoruotos medinėmis plokštėmis.
Šis dizainas taip pat buvo naudojamas papildomam miesto pastatui rotušės gale. Kartu su senais ir naujais pastatais jis sudaro ansamblį. Rotušėje prie pagrindinio įėjimo įrengta nauja susirinkimų ir renginių zona, kuri dar labiau pabrėžia pastato svarbą.
Naudingi aspektai: -senųjų medžiagų panaudojimas; -pastatas istorinėje miesto dalyje įsilieja savo moderniais ir tvariais sprendiniais; -naudojamos medžiagos – medis, betonas.

planai





Objektas
Savybė
Statybos metai
Vystymo metai
Užimamas plotas
Statybos rūšis
Konversijos būdas
Pastato paskirtis (prieš/po)
Naudotos medžiagos











Nauja statyba, rekonstrukcija
Priestatas
Administracinė paskirtis
Administracinė paskirtis
Administracinė paskirtis
Administracinė paskirtis
Administracinė paskirtis
Nauja statyba, rekonstrukcija
Priestatas, vidaus perplanavimas
Nauja statyba, rekonstrukcija Rekonstrukcija
Priestatas, vidaus perplanavimas
Vidaus perplanavimas
Administracinė paskirtis
Administracinė paskirtis
Administracinė paskirtis
Administracinė paskirtis
Administracinė paskirtis
Nauja statyba, rekonstrukcija
Naujas pastatas ant buvusio pastato pamatų
Paslaugų paskirties (prieš) - administracinė paskirtis (po)
Stiklas, klinkeris, medis
Naudingi aspektai, į kuriuos atsižvelgti rengiant savivaldybės projektą Kretingoje
Medis, betonas
Medis, betonas
Medis, betonas
Medis, akmuo ir betonas
Betonas, raudonų plytų mūras
Medis, betonas, tinkas
Medis, betonasStiklas, medis Stiklas, betonas
Medis, betonas
Išvados:
-dvisluoksnio fasado sprendimai; -vieta prie centrinio parko; -patalpų išdėstymo sprendinys. -projektuojamas rotušės priestatas; -vieta prie turgaus aikštės; -interjere naudojami kvadratiniai stoglangiai; -klinkerio fasadas derinamas su senojo pastato fasadu.
-įsiliejimas į esamą aplinką; -vieta miesto centre.
-pastatas savo forma reaguoja į urbanistinį kontekstą; -vientiso fasado pagyvinimas reguliarus įgilintų langų išdėstymas; -naudotos medžiagos, kurias galima perdirbti; -vieta prie turgaus aikštės.
-naudota medinė surenkama konstrukcija.
-pastatas iš gamybos paskirties paverstas administracinės paskirties objektu; -pastatas savo forma reaguoja į urbanistinį kontekstą; -pastato pagrindinė erdvė kurta tarsi praeinama erdvė.
-atsižvelgiama į istorinį kontekstą; -pastatas savo forma reaguoja į aplinką; -pastatas suskirstytas į atskiras zonas.
-pastate akcentuojama jo istorija; -rotušės aukštai priskirti skirtingoms funkcijoms; -pirmo aukšto dizainu siekiama atverti rotušę aplinkai.
-atsižvelgiama į aplinkinį kontekstą; -kuriamas ryšys su gamta per įstiklintus fasadus; -pastato architektūra atspindi regiono kultūrines savybes; -skiriamas didelis dėmesys tvarumui; -pastatas suskirstytas į kelias dalis –savivaldybė ir rotušė.
-skiriamas didelis dėmesys tvarumui; -modernu, funkcionalu ir tvaru.
-senųjų medžiagų panaudojimas; -pastatas istorinėje miesto dalyje įsilieja savo moderniais ir tvariais sprendiniais.
Kūrybingas ir funkcionalus požiūris į savivaldybės pastato projektavimą Kretingoje reikalauja derinti modernius sprendimus su miesto istorija bei aplinkos tvarumo principais. Šie nagrinėti analogai pabrėžia, kad naudojamos medžiagos, kurias galima perdirbti, bei medinė surenkama konstrukcija ne tik praturtintų pastato estetiką, bet ir atspindėtų įsipareigojimą tvariam vystymuisi.
Didelis dėmesys turėtų būti skiriamas pastato funkcionalumui ir praktiškumui, kad jis patenkintų tiek administracinius, tiek viešuosius poreikius. Be to, projektavimo sprendimai, tokie kaip ryšys su gamta per įstiklintus fasadus, suteiktų pastatui modernaus akcento ir pridėtų estetikos.
Svarbiausia, kad pastato architektūra ne tik atspindėtų regiono kultūrines savybes, bet ir būtų susijusi su miesto istorija bei prisitaikytų prie aplinkos tvarumo reikalavimų. Toks integralus požiūris į projektą sukurtų ne tik funkcionalų ir modernų pastatą, bet ir įgalintų jį harmoningai įsilieti į istorinę miesto dalį, prisidedant prie miesto gyventojų gerovės ir patirties.


Esama Kretingos miesto centrinės dalies situacija. Remiantis istorija, centre neišlikęs šiaurinio kvartalo užstatymas, jo vietoje auga medžiai. Miesto aikštė nebeturi dominantės - rotušės pastato. Neišlikusi Paupio gatvė, kuri jungė Vytautos ir Akmenės gatves. Jos vietoje pastatytas prekybos centras “Maxima”.


BUVUSIOS ISTORINĖS ROTUŠĖS BRUOŽAI
• Administracinis ir reprezentacinis savivaldybės pastatas;
• Architektūrinė miesto dominantė;
• Rotušės bokšte kabėjo vario lydinio varpas, buvo įrengtas ir
• laikrodis;
• Centrinėje rotušės dalyje po bokštu buvo įrengtas kalėjimas;
• Buvo stačiakampio 32x26m plano, pailga rytų-vakarų kryptimi;
• Pamatai 1-2 m pločio, iki 1,1 m aukščio lauko akmenų mūro, surišti rusvos spalvos kalkių skiediniu į kurį tarp akmenų įterpti pavieniai raudoni plytgaliai ar plytų duženos;
• Pastatas 2 aukštų, degtų plytų mūro su raudonų čerpių dvišlaičiu apskardintu stogu;
• Bokšto viršūnė - renesansinio ar barokinio profilio, kurio negalima buvo dengti čerpėmis, dėl to naudota skarda.
• Pirmojo aukšto sienos aklinos, be langų;
• Į pastatą vedė ties pagrindinio fasado viduriu įrengtas portalas, kurį iš viršaus pridengė trišlaitis stogelis.
• Virš stogo ties pastato viduriu kilo keturkampis bokštas su piramidės pavidalo keturšlaičiu stogeliu, primenančiu bernardinų bažnyčios bokšto viršūnę.
• Manyta, kad rotušė galėjusi būti panaši į XVI a. pabaigoje statytą Merkinės rotušę, kurios bokštas kilo ties pagrindinio fasado viduriu.
• Tačiau labiausiai 1704 m. graviūroje pavaizduotą rotušę primena Bauskės rotušė.
• Kretingos rotušė buvusi didesnė, o Bauskės rotušės bokštas buvo fachverkinis, su Livonijos renesansui būdinga aukšta smaile.
“SVAJONĖ APIE KRETINGOS ROTUŠĘ”
Kretingoje, netekus Magdeburgo teisės, XVIIIa. pab. rotušė stovėjo apleista. 1845 m. rotušė parduota. 1854 m. planas liudija, kad vietoje rotušės buvo likęs tvora apjuostas skverelis, vėliau jos vietą užėmė pastatyta cerkvė, o galiausiai neliko nieko.
Bauskės ir Kretingos rotušės pagal istoriją, manoma, buvo pastatytos pagal to paties autoriaus projektą. Skyrėsi tik pastato architektūrinės detalės bei bokšto smailė.

“Tačiau, Bauskės sav. savo rotušę atstatė 2013 m. “Tad tikimasi, kad ir Kretingiškiai žengs kaimynų latvių pavyzdžiu ir naujam gyvenimui iš užmaršties prikels istorinę rotušę, kuri taps reprezentaciniu Kretingos pastatu.”





Rotušės (Turgaus, Viešosios, Tarybų) aikštės pietvakarinė dalis 1936 m., 1964 m. ir 2023 m.



Namo vaizdas XX a. 4 deš. Antrajame
aukšte apie 1930–1938 m. buvo įsikūrusi miesto savivaldybės ir burmistro būstinė. Ir 2023 m. fotografija



Namo vaizdas XX a. 4 deš. Antrajame aukšte apie 1930–1938 m. buvo įsikūrusi miesto savivaldybės ir burmistro būstinė. Ir 2023 m. fotografija



1965m. pastatytas kino teatras „Žilvinas“ (sunaikinęs iki tol buvusią Paupio gatvę). 2002m. pastatas nugriautas, vietoj jo pastatytas prekybos centras “Maxima”.

Kultūros centras

“Senukai”
Proj. savivaldybė
“Senukai”
Kultūros centras


Atkuriamas istorinis perimetrinis užstatymas
Kultūros centras

“Senukai”
Proj. savivaldybė

Reaguojama į pagrindines miesto dominantes, kuriami vizualiniai ryšiai

Proj. savivaldybė
Pabrėžiama buvusios Paupio gatvės istorija

Koncepcijoje jautriai reaguojama į istorinę aikštę ir buvusį istorinį užstatymą, miesto dominantes bei vizualines ašis.
Projektuojama miesto rotušė, atkuriamas istorinis perimetrinis užstatymas bei pabrėžiama buvusios Paupio gatvės istorija. Kadangi ji buvo sunaikinta jos vietoje XX a. pastatyto Kretingos teatro, o vėliau vietoje jo atsiradusio prekybos centro “Maxima”, kurio vietoje ir projektuojama Kretingos savivaldybė, kuri savo architektūriniais sprendiniais pabrėžia ne tik vizualinius ryšius, bet ir centrinės miesto dalies istoriją.



Atkuriamas istorinis perimetrinis užstatymas bei pabrėžiama
buvusios Paupio gatvės istorija

Koncepcijoje jautriai reaguojama į istorinę aikštę ir buvusį istorinį
užstatymą, miesto dominantes bei vizualines ašis
Siūloma regeneruoti istorijos paveldą miesto centrinėje dalyje, ypatingą dėmesį skiriant rotušės aikštės svarbai ir savivaldybės pastato inegravimui į istorinį kontekstą.




Pastatas projektuojamas dabartinio “Maxima” prekybos centro sklype, kuriame numatoma ir požeminė automobilių saugykla, į kurią projektuojamas įvažiavimas nuo Akmenės gatvės. Numatytos ir antžeminės stovėjimo vietos su ažūrinių trinkelių danga bei apželdinimu. Viso projektuojama 31+2 ŽN požeminių vietų ir 9+ 1 ŽN + 1 (vieta skirta elektromobiliams) antžeminių. Prie įvažiavimo į saugyklą - numatyta dviračių saugykla. Sklypo vakarinėje dalyje, remiantis urbanistine koncepcija, naikinami esami pastatai ir performuojami sklypai. Savivaldybės sklype statomi dar du mažesnio tūrio pastatai, kuriuose galėtų atsirasti paslaugų ar komercinės veiklos patalpos, kurios dar labiau prisidėtų prie miesto centrinės dalies socialinių ir ekonominių rodiklių gerinimo. Projektuojamoje teritorijoje skiriamas dėmesys žaliųjų zonų sutvarkymui, projektuojami suoliukai, šiukšliadėžės, sodinami medžiai, krūmai ir žoliniai augalai. Naujai projektuojamoje savivaldybėje atsirastų 122 darbo vietos.

Projektuojami pastatai
Naikinami pastatai
Įėjimai į pastatus
Žaliosios zonos
Trinkelių danga
Raudonų trinkelių danga
Aikštės ir šaligatvių danga










Pastato eksterjere dominuoja raudonų plytų mūras ir medžio dailylentės. Tokios medžiagos pasirinktos atsižvelgiant į istorinį miesto kontekstą. O pastatų vidinių fasadų medžio apdailos pasirinkimo motyvas - pabrėžti buvusią Paupio gatvelę, taip praturtinant architektūrinį erdvės ir pastato vaizdą. Arkų motyvas, esantis ant pagrindinio pastato fasado sukuria sąryšį su senove, tačiau atskleidžia modernumo ir estetikos principus.
Raudonos plytos suteikia pastatui išskirtinumo ir elegancijos, sukuria kontrastą su medinių elementų šiluma ir natūralumu. Tai leidžia kurti įspūdingas detales ir akcentus, kurie pritraukia dėmesį ir suteikia pastatui ypatingą charakterį. Projekte pasitelkiamai ir tvarumo principai, siekiama, kad medžiagos būtų ilgaamžės, atsparios aplinkos poveikiams bei natūralios. Plytos turi gerą šilumos izoliaciją, kuri padeda išlaikyti pastato vidaus temperatūrą stabilią ir dar taupo energiją.



Mediena naudojama ir interjero detalių kūrimui. Reprezentacinei pagrindinio pastato sienai su arkomis ir interjere naudojamos medinės dailylentės, kurios ne tik sukuria estetiškai malonią erdvę, bet ir prisideda prie geresnės garso izoliacijos ir bendros patalpų atmosferos. Tačiau šio projekto medžiagos pasirinkimas neapsiriboja tik mediena. Jame taip pat rūpinamasi tvarumo aspektais pasirenkant kitas gamtines medžiagas, tokias kaip akmuo, arba perdirbtas medžiagas, kurios papildo naudojamas medienos dailylentes, tačiau sukuria ir spalvinę bei tekstūrinę atsvarą šiltiems spalvų tonams.


Projektuojamas Kretingos savivaldybės pastatas ne tik architektūriškai papildytų miesto centrinę dalį, tačiau prisidėtų prie bendruomenės poreikių pagerinimo, socialinių ir ekonominių ryšių, pagerintų pėsčiųjų ir dviračių susisiekimą bei erdvių vystymas prie pastato suteiktų jaukias poilsio erdves ramiam pasisedėjimui lauke. Šalia projektuojamų pastatų numatomi komercijai ir paslaugoms skirti pastatai, kurie suteiktų daugiau darbo vietų, atsirastų naujos paslaugos miesto centrinėje dalyje. Projektuojamas pastatų kompleksas taptų ne tik dar viena svarbia miesto dominante, bet užtikrintų patogias darbo vietas įvairių savivaldybės padalinių darbuotojams, sistema taptų labiau centralizuota bei nauja savivaldybės vieta suteiktų miesto reprezentacinį vaizdą.
URBANISTINIS TERITORIJOS MAKETAS



ARCHITEKTŪRINIS MAKETAS









Savivaldybės pastato projektuose įdiegiant modernius saugumo sprendimus, svarbu pasirinkti patikimas ir efektyvias kameras. Bosch 1080p infraraudonasis kulkos kamera pasižymi aukštos kokybės HD vaizdais, kurie suteikia aiškų ir aštrų vaizdą tiek dieną, tiek naktį. Šios kameros įmontuoti infraraudonieji LED leidžia kokybiškai stebėti net ir tamsoje iki 60 metrų atstumu. Tai ypač svarbu savivaldybėse, kuriose reikalingas nuolatinis stebėjimas ir saugumas.
Savivaldybės pastato interjere naudojamas partnerių By&N apšvietimas, tarp kurių yra ir LED juostos. Šios plonos, lanksčios ir energiją taupančios juostos gali būti pritaikytos įvairiais būdais, kad sukurtų įspūdingą vizualinį efektą ir pagerintų erdvės atmosferą.


Medinėms fasado dailylentėms – naudojama partnerių Tikkurila produkcija. Pagrindinė jų - Villa Protekt Medienos impregnantas, kuris lėtina drėgmės įsiskverbimą į medieną ir neleidžia augti pelėsiui.
Panasonic Adaptive ducted unit - PF3 vėsinimo sistema yra modernus ir efektyvus būdas reguliuoti temperatūrą ir oro kokybę savivaldybės pastatuose. Ši sistema gali būti pritaikyta skirtingoms patalpoms, tokioms kaip biuro patalpos, konferencijų salės ar koridoriai. Naudojant Panasonic vėsinimo sistemą, galima pasiekti efektyvų oro cirkuliavimą ir temperatūros kontrolę, kuri padeda palaikyti patalpų komfortą visais metų laikotarpiais. Be to, ši sistema gali būti sumontuota taip, kad negadintų patalpos dizaino ir neužimtų daug vietos, todėl ji puikiai tinka savivaldybės pastatui, kur svarbu išlaikyti estetinę aplinką.






Kuriant interjerą buvo pasirinkta partnerių CORIAN
DESIGN produkciją – įvairių paviršių medžiagą neutral aggregate, kuri yra puikus pasirinkimas dėl estetinio grožio, stipraus dizaino pagrindo ir universalumo. Švelnus atspalvis su dalelėmis suteikia elegantišką dizainą, tuo pačiu pridedant dinamiškumo ir gyvybingumo interjerui. Medžiaga tinka įvairioms stiliaus kryptims.
Savivaldybės pastate bus įtraukta partnerių Enefit produkcija - elektromobilių įkrovimo stotelės, kurios yra neatsiejama darnaus miesto plėtros dalis, o jų įtraukimas į savivaldybės pastatus tampa svarbiu žingsniu į priekį link aplinkos tvarumo ir technologinio progreso. Šios stotelės suteiks gyventojams ir lankytojams galimybę patogiai ir efektyviai pakrauti savo elektromobilius, skatinant tvarių transporto priemonių naudojimą ir mažinant aplinkos taršą.


Sklypo sutvarkymui ir landšaftui yra naudojama partnerių Betono mozaika produkcija. Projekte naudojamos sendintos raudonos trinkelės (prizma 6), pabrėžiančios istorinę gatvę, taip pat akmens masės trinkelės (silver, nostal 6) kitiems takams bei trinkelės su žolės tarpu (eco 8) automobilių stovėjimo vietose, kurios ne tik sugeria perteklinį lietaus vandenį, bet ir prisideda prie tvarumo.