Pasan Tharunidu - BSc(Hons) Architecture - Year 02 - 2022

Page 1

PASAN THARUNIDU – AR21654480 PORTFOLIO 2022 BSc Architecture 1

I’m a proud student at the SLIIT - SCHOOL OF ARCHITECTURE and currently studding Liverpool John Moores University’s BSc.(Hons) Architecture 3rd year at SLIIT.

I am a designer who is always try to do something unique in my designs to maximize the user experience and feelings. I’m a good group member with best ability to hard work and guide others in group projects and always take responsibility of my work above all I’m am also a movie and performance art lover and I always use these architectural techniques in drama making and script writing to maximize the experience of the audience. I always see the SILVER LINING in every Dark cloud so, I enjoy everything I do This portfolio containing the main 4 design projects I have done in my 2nd year at SLIIT school architecture

Pasan Tharunidu 2022 Portfolio
2
ABOUT ME

Resume 01

BSc Year 02 Semester 01 06

Adaptive Re-use - Dutch Burger Union Expansion_ Colombo

BSc Year 02 Semester 02 22

Multi-Storey Built Spaces and Community Living - Students Hostel for SLIIT

BSc Year 02 Semester 02 36

Pottery Center – Kaduwela

BSc Year 02 Semester 01 44

Pre-school and Daycare Center_ SLIIT – Malabe

CONTENT 3 Pasan Tharunidu 2022 Portfolio

EDUCATION

Sri Lanka Institute Of Information Technology – School Of Architecture (2021present)

Undergraduate - BSc Architecture – LJMU, UK. G. C. E Advanced level examination (2019) – Prince Of Wales College, Moratuwa.

Obtained Biology – C, Physics – C, Chemistry – S, General English - A G. C. E Ordinary level examination (2019)

Obtained English Language – A , Tamil Language – S

G. C. E Ordinary level examination (2015) – Prince Of Wales College, Moratuwa.

Obtained 7A’s B and C

ACHIEVEMENTS

Former Secretory of the Cambrian Aeronautical Association of Prince of Wales collage. (2017 – 2019)

2nd runner- up at the NGAP program (Category – ATC) conducted by civil aviation authority of Srilanka. (2018 )

Junior Prefect at Prince of Wales collage – (2014)

4 Pasan Tharunidu 2022 Portfolio
RESUME SOFTWARE SKILLS LANGUAGES PERSONAL SKILLS GENERAL pasantharun8649491@gmail.com + 94 715704671 I / 2 , Railway quarters, Railway cross street, Ratmalana, Sri Lanka. https://www.instagram.com/_pasantharun99_/ Autodesk AutoCAD Autodesk Revit SketchUp Adobe Photoshop Adobe Illustrator Sinhala English Teamwork Acting Graphic designing. Sketching and free hand drawing. 5 Pasan Tharunidu 2022 Portfolio

Dutch Burger Union Expansion - Colombo

Re - use Project type Adaptive Re-use Site Location Colombo 4 - Sri Lanka Duration April 2022 – June 2022 Software Used Sketchup AutoCAD Revit Enscape rendering Adobe Illustrator 6 Pasan Tharunidu 2022 Portfolio
Adaptive

PROJECT SUMMARY

This project site is located in Thunmulla junction Colombo 04. Dutch burger Union started in 1908 by Richard Anthonisz. The intention was to promote the moral of Dutch intellectuals, Dutch descendants, and social wellbeing of the Dutch burger community. DBU is still function as an iconic Dutch Burger Heritage in Colombo as well as sri lanka In this project as designer, i had to come up with a design solution to re catch the peoples attraction this building had in all days by re-design a Functional brief to the old building while designing a extension new building attached to old building. To re gain the attraction of the people to this building and to the DBU, I focus deferent age categories and their favorite activities in this Thunmulla area. From that approach I have designed a 3 story new building containing with a DBU GYM FLOOR , CHILDREN INDOOR PLAY AREA Exclusively for DBU members to promote the new memberships from Young and Adults In the 1st floor I design a DUCTH CAFÉ and DUCTH FASHION CORNER which is open to general public to promote the Dutch culture and for the the building form in a CONTRAST and I use

7 Pasan Tharunidu 2022 Portfolio
8
Pasan Tharunidu 2022 Portfolio
9 Pasan Tharunidu 2022 Portfolio
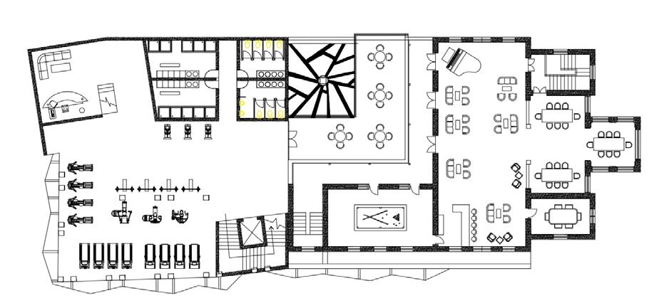
Ground floor Plan 10
Tharunidu 2022 Portfolio
Pasan
11
2022
Dutch Cafe
Pasan Tharunidu
Portfolio
12 Pasan Tharunidu 2022 Portfolio
Road Side Elevation Rear Side Elevation Main entrance Elevation
13
Pasan Tharunidu 2022 Portfolio
14
Pasan Tharunidu 2022 Portfolio
15
Transition Space
Pasan Tharunidu 2022 Portfolio

Basement plan Car lifter

16
Pasan Tharunidu 2022 Portfolio
17
Pasan Tharunidu 2022 Portfolio

GYM at Morning

GYM at Night

1St floor plan
18 Pasan Tharunidu 2022 Portfolio

Gathering Lobby

Indoor Children’s play Space

2nd Floor plan
19
2022 Portfolio
Pasan Tharunidu
20 Pasan Tharunidu 2022 Portfolio
Roof plan

Use of Steel and Concrete

21
Pasan Tharunidu 2022 Portfolio
Project type Community Living Site Location SLIIT Malabe ,
– Sri
Duration July
– September 2022 Software Used Sketchup AutoCAD Revit Enscape rendering Adobe Illustrator
LIVING –
FOR SLIIT 22 Pasan Tharunidu 2022 Portfolio
Colombo
Lanka
2022
COMMUNITY
STUDENTS HOSTEL

PROJECT SUMMARY

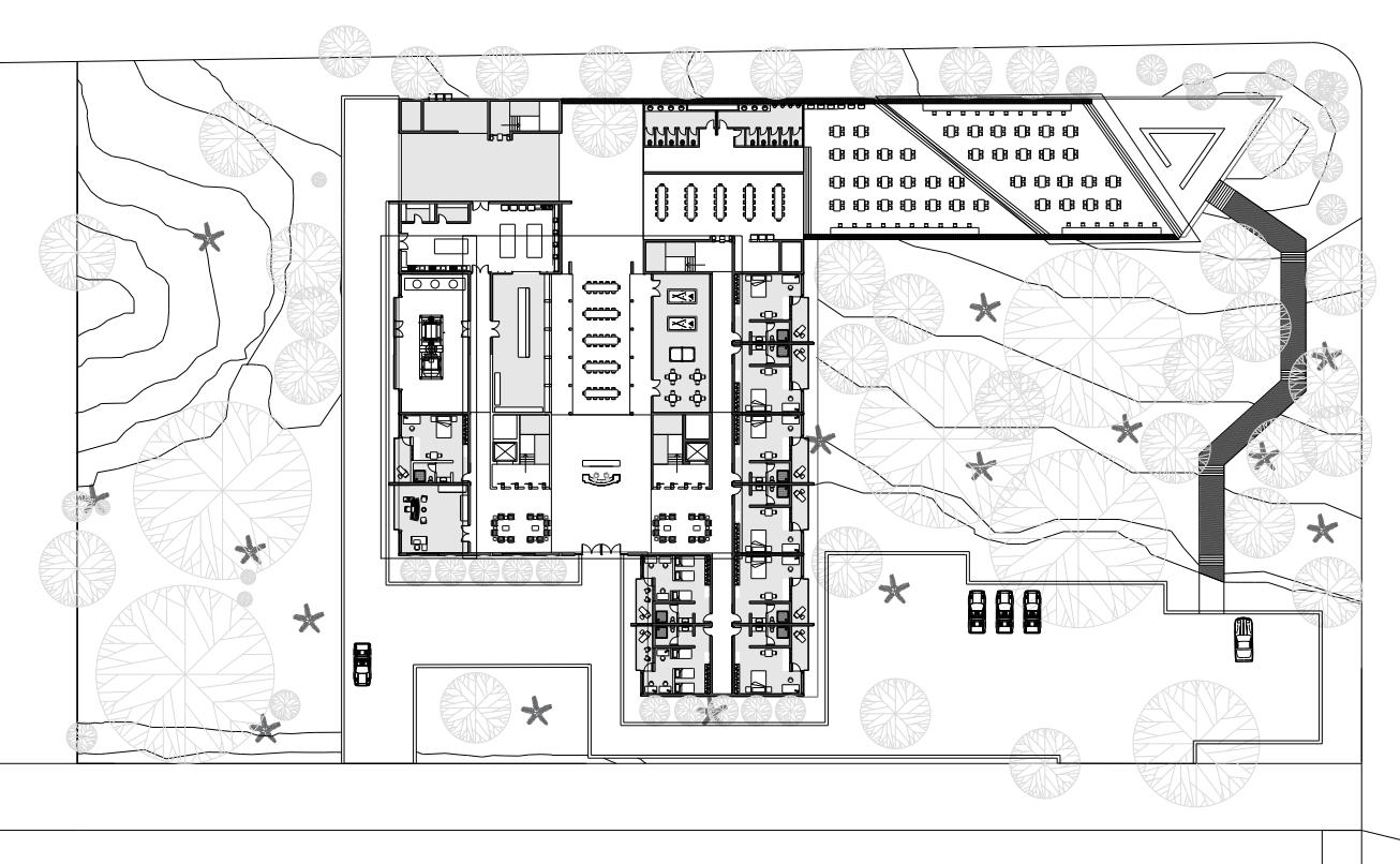
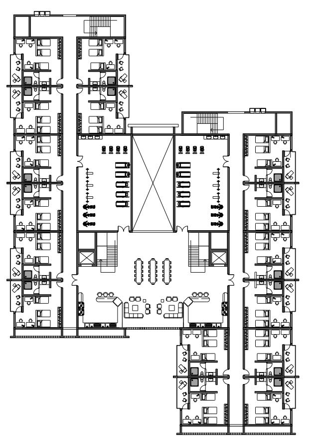
This project site is located inside the SLIIT Campus , covered With lot of vegetation marsh part. I had to design a hostel That will accommodate around 150 to 200 SLIIT students.

The problem I identified was , Uni students highly stressed with their uni work and boring life style. So I wanted to create a space that will heal this students. For that I use psychological methods like gathering with others , socialization , freedom , wisdom and I use the beautiful environment of the site to achieve these objectives

Even thought the Boys and Girls hostels are separated, the have a common connecting space for each floor of the building to promote the socialization. Hostel is fill with outdoor-indoor games , activates for the students. The core space in the design is common hall , which is designed to studying. This hall is open to outside to bring the student more close to nature This hall is also made in a step way to respond to the site contours

23 Pasan Tharunidu 2022 Portfolio
24 Pasan Tharunidu 2022 Portfolio
25
Pasan Tharunidu 2022 Portfolio
26 Pasan Tharunidu 2022 Portfolio
Ground Floor Plan
27
Pasan Tharunidu 2022 Portfolio
28
Front Elevation Side Elevation Section A
Pasan
Tharunidu 2022 Portfolio
29
Pasan Tharunidu 2022 Portfolio
1st , 2nd and 3rd Layout 30 Pasan Tharunidu 2022 Portfolio
31
Pasan
Tharunidu 2022 Portfolio
Room Details 32 Pasan Tharunidu 2022 Portfolio
33
34
Pasan Tharunidu 2022 Portfolio
35 Pasan Tharunidu 2022 Portfolio

POTTERY FACTORY Biyagama

Project type Mixed use Site Location Biyagama – Sri Lanka Duration September 2022 – October 2022 Software Used Sketchup AutoCAD Revit Enscape rendering Adobe Illustrator
36 Pasan Tharunidu 2022 Portfolio

PROJECT SUMMARY

The site is located in Kaduwela- Biyagama , on New Kandy Road, next to the Kaduwela bridge.

The Pottery industry is falling under Rural Industry promotion Ministry of the Sri Lankan government, is keen on establishing a new pottery promotion and production center , to uplift the traditional pottery industry and make it viable for the traditional potters by coupling the production with design and marketing teams This Design project was to study the activity of a Pottery center, by understanding its functional requirements, current issues and to create a new Pottery center with Design, production, promotion, and sales.

I have identified that the pottery industry sir lanka has a great history around it has a unique character and ability to make money for the country. But the problem is that this industry is fading because lack of attention and knowledge

To solve this what I propose was a pottery factory that have the trim access , training center , restaurants (using the river view opportunity) and The biggest pottery market in the area which can attract more people and it helps promoting the industry.

37 Pasan Tharunidu 2022 Portfolio
38 Pasan Tharunidu 2022 Portfolio
39 Pasan Tharunidu 2022 Portfolio
40 Pasan Tharunidu 2022 Portfolio
41 Pasan Tharunidu 2022 Portfolio
42 Pasan Tharunidu 2022 Portfolio
43
2022 Portfolio
Pasan Tharunidu

PRE-SCHOOL AND DAYCARE CENTER FOR SLIIT

Project type Educational Institution; Child Care Building Site Location SLIIT Malabe , Colombo – Sri Lanka Duration Feb 2022 – April 2022 Software Used Adobe Illustrator
44 Pasan Tharunidu 2022 Portfolio

PROJECT SUMMARY

This Design project objective was to study the activity of a Pre-school and a Day care center , by understanding the user(s), its functional requirements, and to creating a new Day care center with a Pre- school for 60 Children of different age groups starting from age 1+ years The problem I identify from this age group was that lot of these little children were refusing to go outside from their houses Main problem for this is , that children are not interact with the environment and natural surrounding enough It will make them always seek safe and warm place through their entire life. So, for make these children blend in to the nature, I propose varies spaces and activities to interact more and more at the site, so they can learn to take risks and be stronger one day through facing the nature and its true Nature

45
Pasan Tharunidu 2022 Portfolio
46 Pasan Tharunidu 2022 Portfolio
47 Pasan Tharunidu 2022 Portfolio
48 Pasan Tharunidu 2022 Portfolio
49
2022 Portfolio
Pasan Tharunidu
THANKYOU 50

Turn static files into dynamic content formats.

Create a flipbook
Issuu converts static files into: digital portfolios, online yearbooks, online catalogs, digital photo albums and more. Sign up and create your flipbook.
Pasan Tharunidu - BSc(Hons) Architecture - Year 02 - 2022 by SLIIT School of Architecture - Issuu