


Saint John Paul II Academy, located in Boca Raton, Florida, is a Catholic coeducational college preparatory school in the Diocese of Palm Beach following the tradition of Saint John Baptist De La Salle and the Brothers of the Christian Schools.
![]()



Saint John Paul II Academy, located in Boca Raton, Florida, is a Catholic coeducational college preparatory school in the Diocese of Palm Beach following the tradition of Saint John Baptist De La Salle and the Brothers of the Christian Schools.
Saint John Paul II Academy provides a rigorous academic curriculum designed to prepare students for success in college and in life. Our faith-based learning community fosters excellence in all programs and enables the spiritual, academic, artistic, and physical development of each student. Dedicated faculty and staff instill the Gospel values of respect, concern for the poor, justice, peace, and responsibility while welcoming students of all beliefs and backgrounds.
Mary Blum (Honorary Chair)
Vera Ferola (Honorary Chair)
Michael Pontillo ‘95 (Chair)
Kim Notoris ‘85
Jennifer Bolger
Gary Bosco ‘97
Cristina Versace Busch ‘07
Ray De Varona
Harry Newstreet ‘85
Rosa Reyes
Michael Chiste ‘16
Adam Lim ‘05
Brian Evans

Saint John Paul II Academy is embarking on a historic capital campaign of $4M to create a new Athletic Complex and renovate its field, track, and concession facilities.
At Saint John Paul II Academy, more than 80% of our student body is involved in one or more sport activities. SJPII is honored to provide 20 team sports, competing on the junior varsity and varsity levels. The Eagles have earned honors in sports such as baseball, football, lacrosse, soccer, volleyball, and basketball to name a few.

Regardless of an individual’s involvement, all of our students will benefit from long-overdue improvements to athletic facilities. Most of our incoming students wish to participate on some type of athletic team, and this desire continues to increase as our enrollment rises. These capital projects will transform the backside of the 30-acre campus and forever impact the athletic experience for our entire Eagle Community.








Field Turf installation
Concession building with men ’ s and women ’ s restrooms
Improved men ’ s and women ’ s locker rooms
State-of-the-art weight room
Additional storage and multipurpose areas


Special naming opportunities for the new Athletic Complex are listed here. Naming opportunities offer donors a permanent, meaningful way to be recognized and to recognize others for leadership gifts to the Saint John Paul II Academy Capital Campaign.
Naming opportunities are available to individuals, families, businesses, foundations and organizations. The campaign team will collaborate with the architects to develop attractive and appealing ways to recognize donors.


Expected start date: May 2025

Objective: Remove current field and install new Field Turf.



Objective: Install new restrooms and concession stand centrally located for convenient access during athletic events.


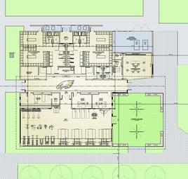
Objective: Athletic Field House containing a men ’ s and women ’ s locker room, weight room, training room, outdoor exercise area, and multipurpose office space.

WEIGHT TRAINING/GYM (2,228 SF)
COVERED TURF AREA (1,724 SF)
BOYS LOCKER ROOM (939 SF)
GIRLS LOCKER ROOM (939 SF)
OUTDOOR SECURE STORAGE (541 SF)
MEETING OR GAMING LOUNGE (481 SF)
TRAINER (281 SF)
OFFICE 2 (187 SF)
OFFICE 1 (184 SF)
ELECTRIC/FIRE (143 SF)
MENS BATHROOM (65 SF)
WOMENS BATHROOM (65 SF)
JANITOR/STORAGE (65 SF)



The urgency of this project is clear to all who are proud to be part of the Eagle Family.


Our aging athletic facilities have served our students for four decades and have been an integral part of the student experience on campus. Our goal to remain highly competitive as an excellent private Catholic high school in Palm Beach County.
Saint John Paul II Academy is determined to address these needs as soon as possible, with intentions of commencing construction within the year. This will be the largest fundraising campaign ever organized by SJPII. We are confident our parents, alumni, and community supporters will ensure that we soar to completion.



