DUNDEE ACTIVE ZONE
Sports Center
Project Details:
University: Robert Gordon University
Location: Dundee, Scotland
The Dundee Active Zone project responds to the increasing need for accessible and inclusive fitness and recreational facilities in today’s fast-paced urban environment. Situated in the heart of Dundee, this sports center is conceived as a dynamic architectural intervention that seamlessly integrates state-of-the-art amenities with thoughtful spatial design. The facility is designed to cater to a wide range of activities, from high-intensity sports to casual recreation, ensuring that it meets the diverse needs of the community. By prioritizing accessibility and user experience, the design encourages participation from people of all ages and abilities, promoting a healthier and more active lifestyle.
Beyond its functional role, Dundee Active Zone is envisioned as a vital social hub within the city. The architecture fosters a sense of community and engagement through open, interconnected spaces that encourage interaction and socializing. Key design elements, such as natural lighting, sustainable materials, and flexible spaces, contribute to an environment that is both welcoming and adaptable. This project not only enhances Dundee’s urban fabric but also exemplifies how thoughtful design can enrich the lives of its users by creating a space that is as much about connection and community as it is about fitness and wellness.



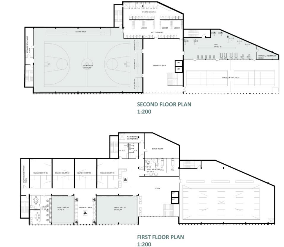
The planning and structural design of the Dundee Active Zone were meticulously developed with a focus on accommodating the significant live loads inherent to a sports facility. The design considers the dynamic forces generated by athletes engaging in high-impact activities such as running and jumping, ensuring that these loads are efficiently supported and transferred through the building’s structure. The squash courts, strategically located on the ground floor, are equipped with robust shear walls. These walls play a critical role in stabilizing the building, as they effectively channel the loads from the upper sports hall down to the foundation, thereby maintaining the integrity and safety of the entire complex.
Drawing inspiration from the King’s Cross Sports Hall, the Dundee Active Zone features a centralized layout for the changing rooms and circulation core. This strategic positioning at the heart of the facility ensures optimal accessibility and connectivity between all functional spaces. By placing these essential elements at the center, the design facilitates smooth and intuitive movement throughout the building, enhancing user experience and operational efficiency. This arrangement not only maximizes convenience but also contributes to a cohesive spatial organization, reinforcing the building’s role as a unified, usercentered environment
These layered maps offer a detailed overview of the site’s context, highlighting key environmental, social, and infrastructural factors that will guide the design process.
Conceptual Zoning and Site Analysis
Eyeline
view of the sports complex
Yoga/ Dance Studio
Sports Hall
Swimming Pool
Outside Activity Area
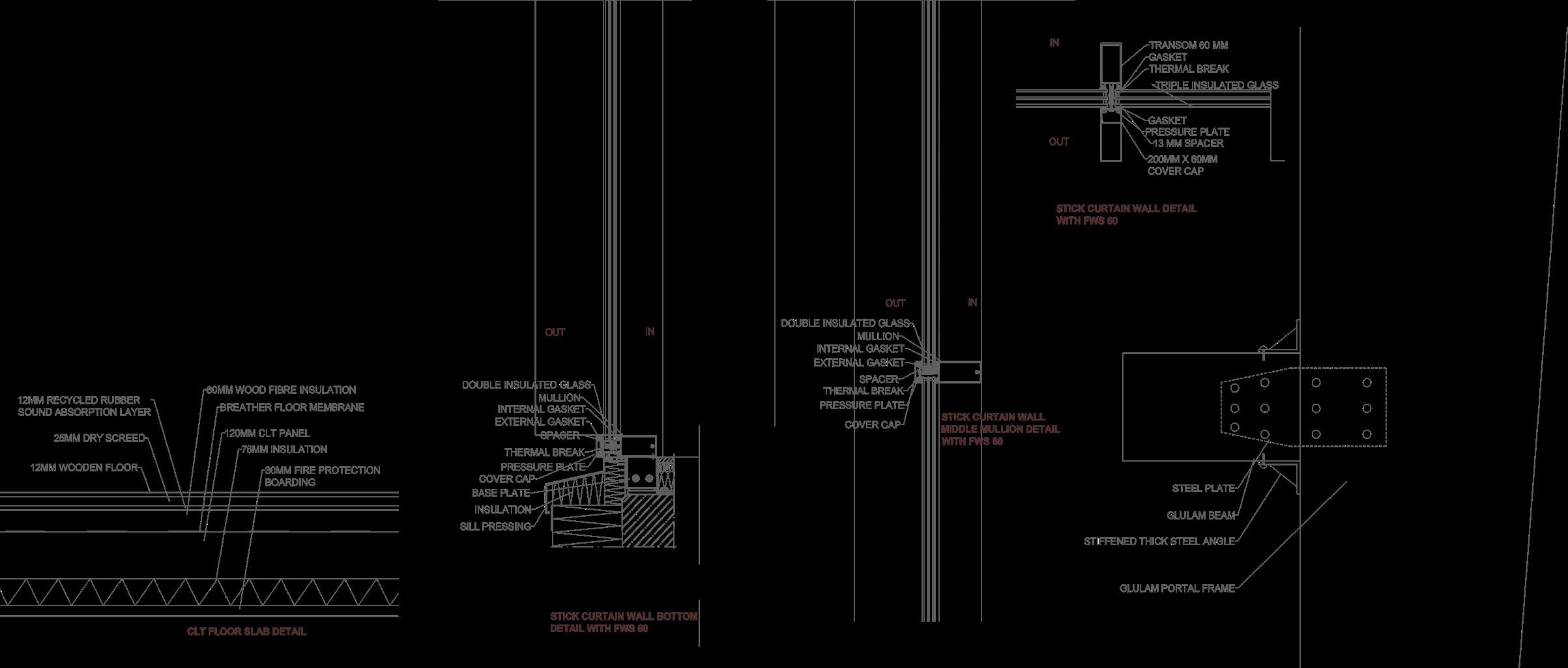
Glulam construction has low dead weight and high load bearing capacity due to which it is ideal to transfer the live weight of the sports being played. Also, glulam construction allows for construction of large column free spaces, like sports halls.
Providing north light roof ensures even light distribution, minimizing shadows, creating comfortable and visually appealing spaces for atheletes. By intake of more natural light the load on the artificial lighting is reduced decreasing the energy consumption and carbon footprint.
Along with being a distinct facade treatment, the expanded aluminum mesh also helps in daylight control strategy. It mitigates solar gain by filtering the sunlight. Additionally it also acts as a privacy barrier providing visual connection while maintaining privacy.
Timber fins are used as a facade element to maintain verticality and a sense of rythm in the building. Here the fins also acts as windposts that support the double heighted structure against the wind loads. Since sports complexes are places having higher humidity using material like timber is suitable as it absorbs moisture and creates healty indoor environment for sports activities. Timber is one of the most ecological building material, it absorbs and stores CO2 throughout its growth process helping to reduce carbon footprint of the construction project. Additionally timber products utilize less energy in production further reducing the overall embodied carbon footpriint.
Transperency of curtain walls provide visual connection between the inside and outside. It also makes spaces well lit and feel spacious.
2. NORTH LIGHT ROOF
3. ALUMINUM MESH
4. TIMBER FINS
5. CURTAIN WALL GLAZING
SUSTAINABLE CIRCUIT
The Eco system of Sustainable living
Project Details:
University: Robert Gordon University
Location: Loch Morlich, Scotland
Nestled within the serene embrace of the Loch Morlich area, the housing for staff and families is a harmonious blend of architectural ingenuity and ecological sensitivity, seamlessly integrated into the lush forest surroundings. Designed to coexist with nature rather than impose upon it, the dwellings embrace a comtemporary yet rustic aesthetic, utilizing locally sourced materials to maintain a low environmental impact. The architectural prioritizes large windows and open spaces allowing inhabitants to bask in the natural beauty that envelops them, fostering a sense of connection with the forest. The heart of this sustainable community lies in the innovative energy center, a hub of eco conscious technology that harnesses renewable energy sources such as solar panels, wind turbines and biomass. This centralized facility not only provides power to the homes but also employs cutting edge energy efficient systems to ensure minimal environmental footprint. The commitment to sustainabilty extends beyond energy to water conservation and waste management, making this community a model for responsible and conscientious living in the heart of the forest.





The concept for housing revolves around creating living pockets where residents share communal backyard fostering a sense of community integration. This design encourages social interaction, shared responsibilities and a collaborative environment that enhances overall well being of the community.
View of a single living pocket
KIRLOSKER NATYAMANDIR
Performing Arts Center
Project Details:
University: Thakur School of Architecture and planning
Location: Pune, India
This project envisions the creation of a dynamic Performing Arts Center in Pune, dedicated to preserving and promoting the rich tradition of Natya Sangeet—a classical Indian art form that fuses music, drama, and theatrical expression. The center is conceived as both a sanctuary for artists and a beacon for cultural education, offering purposebuilt spaces that cater to rehearsals, workshops, and live performances.
At its core, the project seeks to bridge the gap between tradition and modernity by reintroducing Natya Sangeet to newer generations and audiences unfamiliar with its depth. Through thoughtful spatial programming and contextual design, the facility will provide immersive experiences that nurture artistic growth while fostering community engagement.
By integrating acoustically tuned performance halls, interactive learning zones, and informal gathering areas, the center aims to offer a holistic environment where drama, music, and theatre can flourish in harmony. This endeavor aspires not just to support practice, but to spark curiosity, inspire participation, and celebrate the timeless spirit of Indian performing arts.
Form
Architecture and theatre both examine spatial relationships and meaning behind them and strice to create new relationships based on the concepts behind a design. In both architecture and theater, space is a representation of ideas. A building’s dramatic form narrates a story and I look to reveal this narrative in the buildings.
Considering two buildings placed according to the zoning and planning
Decreasing the height of one of the building to show the change in scale and proportion with respect to human scale
Champhering the sides so as to create wider pathways and adding a character to the structure
Adding butterfly roof to give the structure a unique character. It also helps provides shade to the pathways
Bird’s eye view of the site
The auditorium is the central element of the Performing Arts Center, designed to reflect the importance of live performance. It features a straight, tiered seating layout that ensures clear sightlines to the stage from every seat. The gradual slope of the floor allows unobstructed views, while acoustically treated surfaces enhance sound clarity and resonance. The stage is slightly elevated and proportioned to support a variety of performances, offering both visual focus and an intimate connection between performers and audience.
Section through internal courtyard
Shreya Dusane