
CONTENTS
This portfolio is a journey through my development as an architect, highlighting the key projects that have shaped my design thinking. Each piece reflects my passion for creating spaces that are both beautiful and practical. Throughout these works, I’ve aimed to balance creativity with a strong respect for the environment and the needs of the people who use these spaces. This collection showcases not only my skills but also my dedication to making a positive impact through architecture.
Sustainable Vircuit
Academic/ Stage 05/ Sem 01
Dundee Active Zone
Academic/ Stage 05/ Sem 02
DUNDEE ACTIVE ZONE
Project Details:
University: Robert Gordon University
Location: Dundee, Scotland
The Dundee Active Zone project responds to the increasing need for accessible and inclusive fitness and recreational facilities in today’s fast-paced urban environment. Situated in the heart of Dundee, this sports center is conceived as a dynamic architectural intervention that seamlessly integrates state-of-the-art amenities with thoughtful spatial design. The facility is designed to cater to a wide range of activities, from high-intensity sports to casual recreation, ensuring that it meets the diverse needs of the community. By prioritizing accessibility and user experience, the design encourages participation from people of all ages and abilities, promoting a healthier and more active lifestyle.
Beyond its functional role, Dundee Active Zone is envisioned as a vital social hub within the city. The architecture fosters a sense of community and engagement through open, interconnected spaces that encourage interaction and socializing. Key design elements, such as natural lighting, sustainable materials, and flexible spaces, contribute to an environment that is both welcoming and adaptable. This project not only enhances Dundee’s urban fabric but also exemplifies how thoughtful design can enrich the lives of its



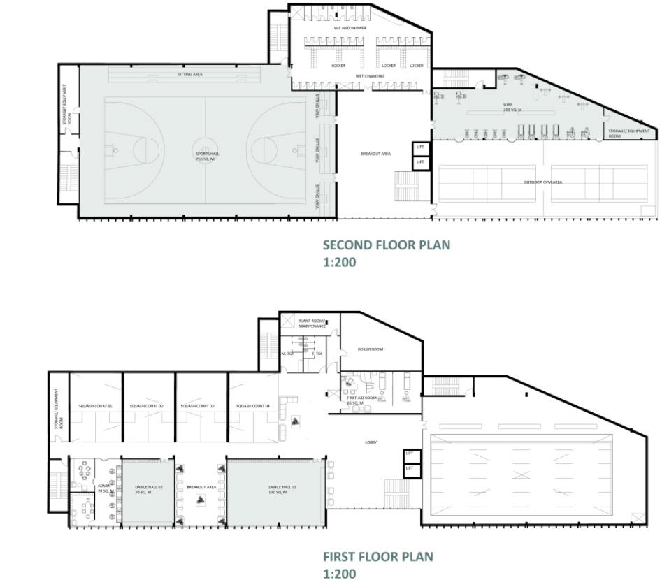
The planning and structural design of the Dundee Active Zone were meticulously developed with a focus on accommodating the significant live loads inherent to a sports facility. The design considers the dynamic forces generated by athletes engaging in high-impact activities such as running and jumping, ensuring that these loads are efficiently supported and transferred through the building’s structure. The squash courts, strategically located on the ground floor, are equipped with robust shear walls. These walls play a critical role in stabilizing the building, as they effectively channel the loads from the upper sports hall down to the foundation, thereby maintaining the integrity and safety of the entire complex.
Drawing inspiration from the King’s Cross Sports Hall, the Dundee Active Zone features a centralized layout for the changing rooms and circulation core. This strategic positioning at the heart of the facility ensures optimal accessibility and connectivity between all functional spaces. By placing these essential elements at the center, the design facilitates smooth and intuitive movement throughout the building, enhancing user experience and operational efficiency. This arrangement not only maximizes convenience but also contributes to a cohesive spatial organization, reinforcing the building’s role as a unified, usercentered environment
These layered maps offer a detailed overview of the site’s context, highlighting key environmental, social, and infrastructural factors that will guide the design process.
















Glulam construction has low dead weight and high load bearing capacity due to which it is ideal to transfer the live weight of the sports being played. Also, glulam construction allows for construction of large column free spaces, like sports halls.
Providing north light roof ensures even light distribution, minimizing shadows, creating comfortable and visually appealing spaces for atheletes. By intake of more natural light the load on the artificial lighting is reduced decreasing the energy consumption and carbon footprint.
Along with being a distinct facade treatment, the expanded aluminum mesh also helps in daylight control strategy. It mitigates solar gain by filtering the sunlight. Additionally it also acts as a privacy barrier providing visual connection while maintaining privacy.
Timber fins are used as a facade element to maintain verticality and a sense of rythm in the building. Here the fins also acts as windposts that support the double heighted structure against the wind loads. Since sports complexes are places having higher humidity using material like timber is suitable as it absorbs moisture and creates healty indoor environment for sports activities. Timber is one of the most ecological building material, it absorbs and stores CO2 throughout its growth process helping to reduce carbon footprint of the construction project. Additionally timber products utilize less energy in production further reducing the overall embodied carbon footpriint.
Transperency of curtain walls provide visual connection between the inside and outside. It also makes spaces well lit and feel spacious.

SUSTAINABLE CIRCUIT
The Eco system of Sustainable living
Project Details:
University: Robert Gordon University
Location: Loch Morlich, Scotland
Nestled within the serene embrace of the Loch Morlich area, the housing for staff and families is a harmonious blend of architectural ingenuity and ecological sensitivity, seamlessly integrated into the lush forest surroundings. Designed to coexist with nature rather than impose upon it, the dwellings embrace a comtemporary yet rustic aesthetic, utilizing locally sourced materials to maintain a low environmental impact. The architectural prioritizes large windows and open spaces allowing inhabitants to bask in the natural beauty that envelops them, fostering a sense of connection with the forest. The heart of this sustainable community lies in the innovative energy center, a hub of eco conscious technology that harnesses renewable energy sources such as solar panels, wind turbines and biomass. This centralized facility not only provides power to the homes but also employs cutting edge energy efficient systems to ensure minimal environmental footprint. The commitment to sustainabilty extends beyond energy to water conservation and waste management, making this community a model for responsible and conscientious living in the heart of the forest.





The concept for housing revolves around creating living pockets where residents share communal backyard fostering a sense of community integration. This design encourages social interaction, shared responsibilities and a collaborative environment that enhances overall well being of the community.



The design is a thoughtful variety of living spaces, catering to diverse needs and preferences. The architectural vision unfolds across three distinct typologies; studio apartments, 2- bedroom houses and co- housing blocks. the architectural approach remains rooted in sustainability, utilizing green building practices and energy efficient technologies. The housing development not only offers a range of living options but also serves as a testament to the adaptability and versatility of eco conscious design within a forested setting.




