DAFTARISI
F I N A L P R O J E C T
S A Y E M B A R A
P R O J E C T
I N T E R I O R
C U S T O M F U R N I T U R E
F
ISU UTAMA
Bangunan museum
yang terkesan tua , rusak di beberapa
bagian dan kurang menarik
Kurangnya minat masyarakat terhadap museum
Museum mempunyai citra yang monoton
F I N A L P R O J E C T
R E V I T A L I S A S I M U S E U M T E K S T I L J A K A R T A
KONSEP
ARSITEKTUR ORGANIK
K o n s e p a r s i t e k t u r o r g a n i k
m e n g e d e p a n k a n k e s a t u a n b a n g u n a n
d e n g a n a l a m s e k i t a r s e h i n g g a
p e n g g u n a n y a m a n d a n m e m i l i k i
k e t e r k a i t k a n d e n g a n a l a m
ADAPTASI
A d a p t a s i b a n g u n a n y a n g
m e n y e s u a i k a n k e b u t u h a n m a s y a r a k a t
s a a t i n i d a n b e r h a r a p d a p a t m e n j a d i
d a y a t a r i k b a g i m u s e u m
REVITALISASI
R e v i t a l i s a s i g u n a m e m b a n g u n c i t r a
b a n g u n a n d a r i s e g i f a s a d d a n s u a s a n a
l i n g k u n g a n y a n g l e b i h b a i k d a n
m e n a r i k p e n g u n j u n g
F I N A L P R O J E C T
EKSISTING

Kantor Pengelola

Lokasi : Tanah Abang,Jakarta Pusat
Luas : 16 410 M2
Ruang Serbaguna & Perpustakaan


Gedung Utama

SITEPLAN

A : Area Kantor Pengelola
B: Gedung Wastra & Perpustakaan
C: Galeri Tekstil
D:Kantin& Workshop
E: Gedung Utama
F:Parkir Mobil Pengunjung
G:Parkir Motor Pengunjung
H:Area Duduk
F I N A L P R O J E C T
SETELAH DI REVITALISASI
Lokasi : Tanah Abang,Jakarta Pusat Luas : 16. 410 M2
Kantor Pengelola

Gedung Wastra & Perpustakaan

Galeri Batik
Kantin & Workshop

Gedung Utama
Setelah di revitalisasi, keaslian dari suasana dan bangunan museum tidak berubah sepenuhnya. Kembali lagi kepada konsep awal bangunan yaitu revitalisasi yang di adaptasi dengan menggunakan arsitektur organik. Serta aplikasi konsep adaptasi pada lingkungan sekitar yang menyesuaikan kebutuhan masyaarakat kini.





S A Y E M B A R A
L E G O M I C R O H O U S E


L e g o h o u s e b e r a s a l d
l u a s , l a p a n g . L u a s d i
t e r c u k u p i s e p e r t i t i d u
1 8 m 2 d i h a r a p k a n d a p a
a g a r n y a m a n d a n a m a n





S A Y E M B A R A


ISU UTAMA
Bangunan kantor
yang sudah lama
terbengkalai dan tidak berfungsi
Kawasan yang
sudah mengalami banyak kerusakan fasilitas
citra kawasan yang
memiliki kesan
terbengkalai dan kotor
P R O J E C T
Lokasi : Pulau Untung Jawa, Kec. Kepulauan Seribu Sel., Kab. Administrasi
Kepulauan Seribu, Daerah Khusus Ibukota Jakarta 14510
Luas : 480 55 m2



KONSEP
MODERN TROPIS


banyaknya bukaan dengan letak yang sesuai akan membuat ruangan memiliki penghawaan yang baik Bukaan pada bangunan ini memiliki fungsi yang membuat udara panas dapat segera keluar kembali

pemilihan fasad pada bangunan menggunakan roster dapat membangun kesan modern dan tidak monoton pada
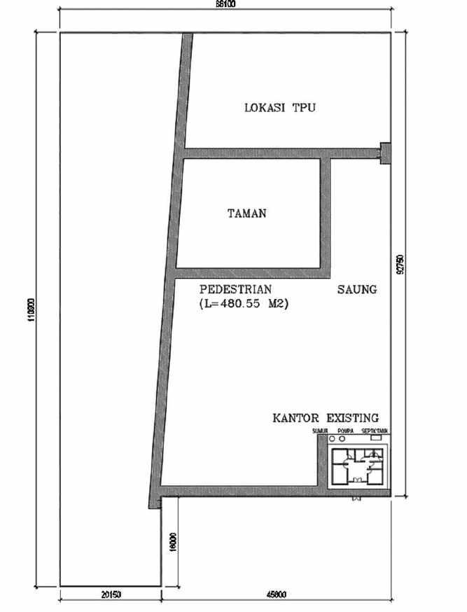
SITEPLAN
Lokasi : TPU UNTUNG JAWA KEP. SERIBU
Luas : 72m2









A :Teras/veranda
B: Ruang Kantor
C:Gudang
D:Pantry & Toilet
E: Area Wudhu
F:Musholla
G:Ruang Tidur
H:Ruang santai




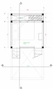
I N T E R I O
CONCEPT: JAPANDI STYLE

TEMA WARNA :
SOFTWARE : Sketchup+Enscape

I N T E R I O
CONCEPT: JAPANDI STYLE

TEMA WARNA :
SOFTWARE : Sketchup+Enscape

MATERIAL: Plywood,Steel
I N T E R I O R
M E S S M A J A L E N G K A
CONCEPT: JAPANDI STYLE

TEMA WARNA :
SOFTWARE : Sketchup+Enscape

MATERIAL: Plywood
I N T E R I O R
CONCEPT: INDUSTRIAL

TEMA WARNA :
SOFTWARE : Sketchup+Enscape

MATERIAL: Steel,Vinyl
I
N T E R I O R
CONCEPT: AUTHENTIC STYLE

TEMA WARNA :
SOFTWARE : Sketchup+Enscape

MATERIAL: Stainless Steel,Vinyl,Leather,Metal
I
E R I O R
CONCEPT: AUTHENTIC STYLE

TEMA WARNA :
SOFTWARE : Sketchup+Enscape

MATERIAL: Stainless Steel,Vinyl,Leather,Metal
C U S T O M F U R N I T U R E
K I T C H E N S E T
CONCEPT: CLEAN & MINIMALIST

TEMA WARNA :
SOFTWARE : Sketchup+Enscape

MATERIAL: Stainless Steel,Plywood
CONCEPT: MINIMALIST

TEMA WARNA :
SOFTWARE : Sketchup+Enscape

MATERIAL: Stainless Steel,Plywood