Portfolio
Fall 2024 Semester Portfolio
ARC 540b Design Communication II
![]()
Fall 2024 Semester Portfolio
ARC 540b Design Communication II









Page 8
Geometries Page 12
Design

















Page 14
Stair Fabrication
Page 18
Parametric Grids


This journal entry is a reflection of personal identity. Here I am sharing moments and images that capture the essence of who I am and who I am becoming. The desert is a main character in this journal as I come from the desert of Sonora. Small remnants of my dreams and hopes come together in this collage with people that are most important in my life. For the people in my life make up a majority of how my path has led me here and now. Crafting this piece was a self-reflection for what is yet to come. Breathing the desert, being in the desert, and admiring its vast landscape is a continuous inspiration and reminder of the beauty that lays on our horizons.



This Grasshopper generated map explores the dynamic intersection of spheres and cubes through processes of addition and subtraction. Utilizing Grasshopper’s parametric capabilities, the volumes are manipulated to produce voids where spheres are subtracted from cubes, resulting in negative spaces. The final forms resemble the perforated, whimsical shapes often associated with cartoon depictions of cheese. To enhance the visualization, an animated GIF was created through Grasshopper, capturing the transformation and evolution of these shapes in motion, highlighting solid and void spaces.
Grasshopper map

Geometry captures













various sphere + cube perspective views






This wall design explores the relationship between walls and light through a parametric design approach in Grasshopper. The form consists of rows and columns, with each column rotated at varying angles, creating an unpredictable pattern. The wall, almost appearing as if it might collapse, is composed of these rotated blocks, each with small apertures. These apertures allow light to filter through allowing shadow patterns to emerge.


















































This digital model was created through iterative design in Grasshopper/Rhino, it was further refined and prepared for 3D printing using an app software. The final form features a series of small, curved steps that flow seamlessly, resembling a sculptural staircase. Its dynamic shape and proportions suggest it could serve as an entrance feature for a museum or an architectural art space, where the experience of arrival begins for the visitors.

























plan view right side

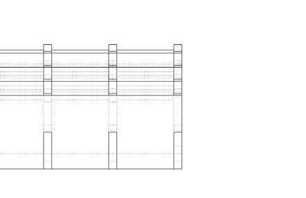
This grid is an intersection of form and structure crafted in Grasshopper. It is a house volume that got dissected by a grid generated, transforming it to an open structure. The grid pattern, creates a parametric composition that reveals the underlying structure. The intersections and apertures within the grid evoke a sense of openness and reorganization, where the form is less about function and more about the spatial possibilities and manipulation of the volume.









































LASER CUT PARAMETRIC FORM



end of portfolio