Interior Design Portfolio 2023 | Savannah Miller

Page 1

SAVANNAH MILLER

INTERIOR DESIGN PORTFOLIO

SAVANNAH COLLEGE OF ART & DESIGN 2023
CAFE DESign MADCAP RENAISSANCE SCAD SPRING 2022 01 workplace 02 CONVERGENCE SCAD WINTER 2022
workplace
02 ANIMAL THERAPY CENTER SCAD IN PROGRESS 03 HEALTHCARE DESIGN
design

MADCAP RENAISSANCE

2022

SCAD CAFE DESIGN SPRING

PROJECT DESCRIPTION

The goal of this design was to transition an existing vintage motorcycle service site into a dual purpose space that combines bike expertise with a fully functioning coffee shop. By blending industrial elements with eccentric finishes and detailing, the revivalist nature of the shop is embodied throughout the space.

Coastal Empire Moto is a vintage motorcycle shop, offering restoration services to the eccentric motorcycle community of Savannah, GA. The shop is seen as a symbol of inclusivity, targeting all types of demographics and age groups. The space is often used for large community gatherings, as well as small meetings to discuss different solutions for bike renovations.

CONCEPT

client COLOR STORY
SW 7080 SW 6884 SW 6761 SW 6357 SW 6683 REMINISCENCE RESURGENCE RESTORED MADCAP RENAISSANCE

BUBBLE DIAGRAMS

BLOCK DIAGRAMS

Schematic

REFINED KEY EXPERIENCES

“TO-GO” COUNTER
OUTDOOR COURTYARD
RETAIL PEG BOARD RETAIL AREA COFFEE BAR
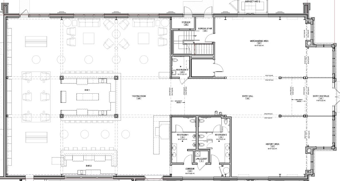
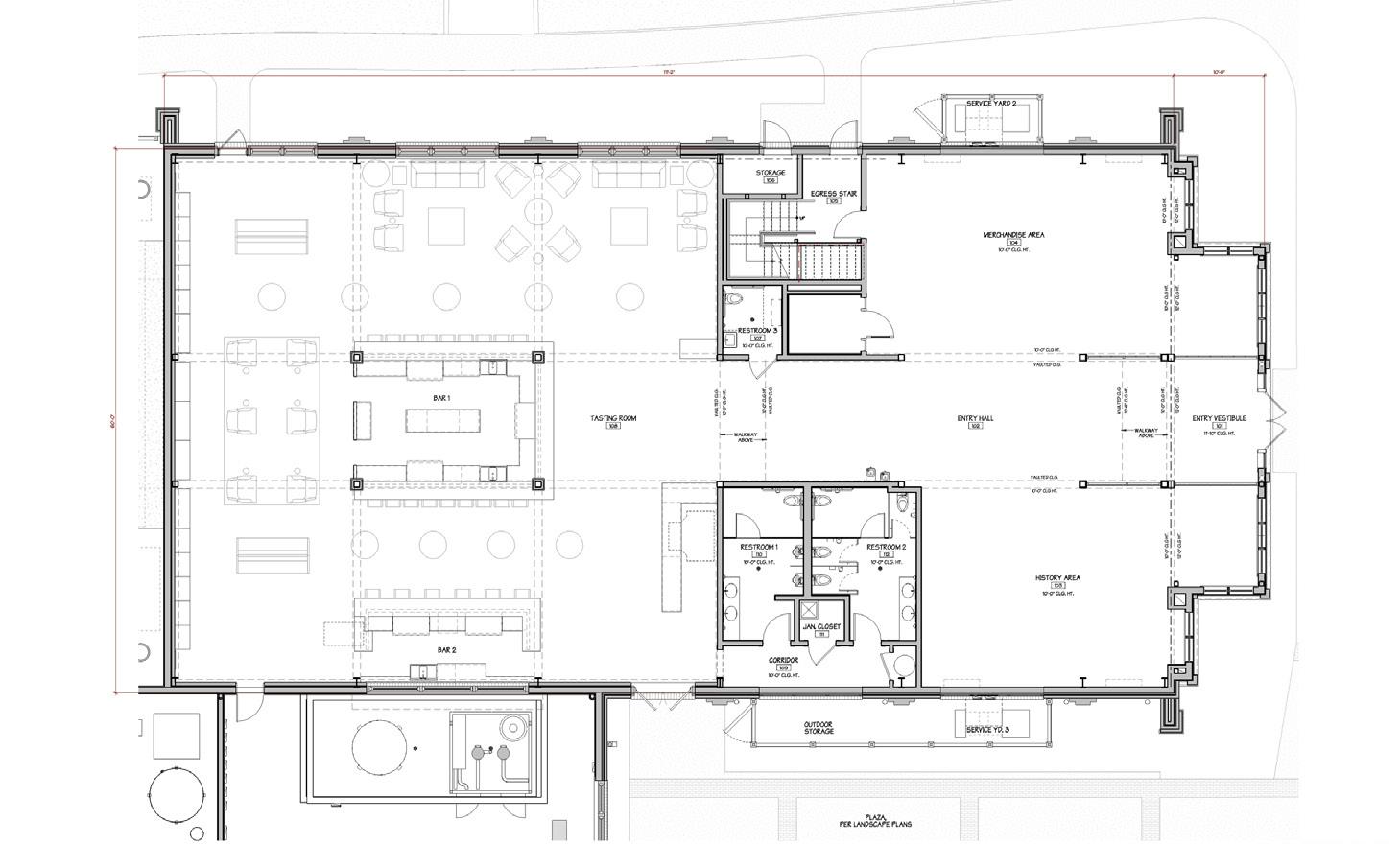
Floor Plan Retail Wall 7 ADA Ramp 1 Primary Entry 2 Front Bar/ POS 3 Back Coffee Bar 4 Coffee Bar Seating 5 Secondary Entry 6 Banquette Seating 8 Condiment Bar 9 Lounge Seating 10 Back of House 12 Restroom 11 “To-Go” Window 13 Outdoor Courtyard 14 KEY 3 2 5 1 9 7 8 10 14 4 6 13 12 12 12 11 11 11 12 12

elevations & SECTIONS

STORE FACADE

WEST ELEVATION

EAST ELEVATION

SOUTH ELEVATION

COFFEE BAR SECTION

CUSTOM BANQUETTE SECTION
FRONT COFFEE BAR BACK BAR detail sheets

COFFEE BAR

The coffee bar is located at the entrance of the site, and wraps around into the first bay area to create cohesion between the two rooms. Bar seating is located at the end of the counter, and provides an opportunity for community and connection..

perspective views 1 2 3

1 2 3 4 5 4 5

Built in bakery display case, conveniently located for both the indoor POS and the To-Go window.

Access to the back of house storage area. To-Go window (*not pictured) located at the left end of the Coffee Bar.

Butcher block countertop with a corrogated metal facade.

Custom wrap around coffee bar, connecting the POS area to the secondary seating area.

Path of circulation, ample space for customer queue and path of travel

FF&E kdln Nami Lamp Sancal
Table Sancal
Seating MATERIALITY
Pion Tilo
Magnum
KEY

2 1 3 4

CAFE SEATING

The main cafe area offers bistro tables, as well as a lounge area for more community style seating accommodations. Custom ceiling elements combined with a change in flooring offer wayfinding for customers.

perspective views

1 2 3 4 5 5 6

Shop window, allows customers to have visual access into the motorcycle shop bay.

Custom banquette seating, meant to embody the vintage nature of the leather motorcycle seat.

Custom ceiling element, allows for additional loft storage, and calls out the customer seating space.

Condiment station the utilizes the exisitng column support, creates a means of circulation for customers.

Lounge seating is located at the back of the public seating space, and offers a more private area for customers 6

Corrogated glass wall, creates a partition between the lounge space and the hallway to the bathroom located on the other side

kdln Atomium Lamp FF&E
Kettal Vieques Cafe Table MATERIALITY
Traba Bistro Chair
KEY

2 1 3

RETAIL WALL

A custom pegboard wall extends from the ceiling element, offering hanging space and shelving for merchandise. The two structural columns act as support for the condiment station, which doubles as a channel for customer circulation.

perspective views

KEY 1 2 3

Wrap around Coffee Bar seating, allowing for community interaction by creating a communal seating space.

Hallway to the back of house and restroom area. Partioned off by the corrogated glass wall.

Ceiling beam elements painted to match the bay garage doors, creates a taller space and emphasizes the original structural integrity of the building.

4

Custom pegboard retail wall, allows for versatility in the layout of merchandise. Connects to the custom lofted element.

5 4 5

Original bay garage doors, allows for ease of access to outdoor seating, and brings in abundant natural light to the space.

Bomma Blimp Pendant Light Custom Banquette Seating MATERIALITY

2 1 3

OUTDOOR COURTYARD

The outdoor courtyard offers additional seating for the cafe, while also providing a larger space for community gatherings and events. The To-Go window is directly adjacent to the courtyard, allowing customers the option of a quick take-away beverage.

perspective
views

KEY 1 2 3 4

To-Go window, directly adjacent to the indoor POS. Provides access to customers utilizing the outdoor seating space.

Outdoor circulation path, wraps around to the front of building and guides customers to the point of entry to the cafe area.

Central grass courtyard, equipped with outdoor seating and firepit. Creates another area for events or communal gathering.

Refurbished shipping containers, customized to create sheltered outdoor seating spaces. Painted to match interior ceiling/garage color scheme.

FF&E Kettal ZigZag Pouf Nola Gry Seat Nola Korg Outdoor Seating MATERIALITY
4

WORKPLACE DESIGN CONVERGENCE WINTER 2022

SCAD

PROJECT DESCRIPTION

This workplace design is meant to provide a functional working environment for a virtual tele-health practice. The objective of this project was to create a space where elements come together, converging or meeting at one point to make a fused composition. By anchoring the design at a central point in the building, different elements will branch off to create spaces that cater to all individuals.

Array is a virtual behavioral practice, offering telepsychiatry care for hospitals, community clinics, independent payers, and employers. Because of the virtual nature of the company, Array can reach patients on a global capacity. The corporate office for the company serves as a meeting area for management, workspace for remote employees, and includes private spaces for telehealth appointments.

concept & user development CONVERGENCE

HEALING TO MAKE WHOLE BONDING

PARTI
client analysis
DIAGRAMS
USER
JOURNEY
SCHEMATIC
BUBBLE DIAGRAMS LOOSE FLOOR PLANS
Diagram #1
Diagram #2 Loose Plan #1
Loose Plan #2
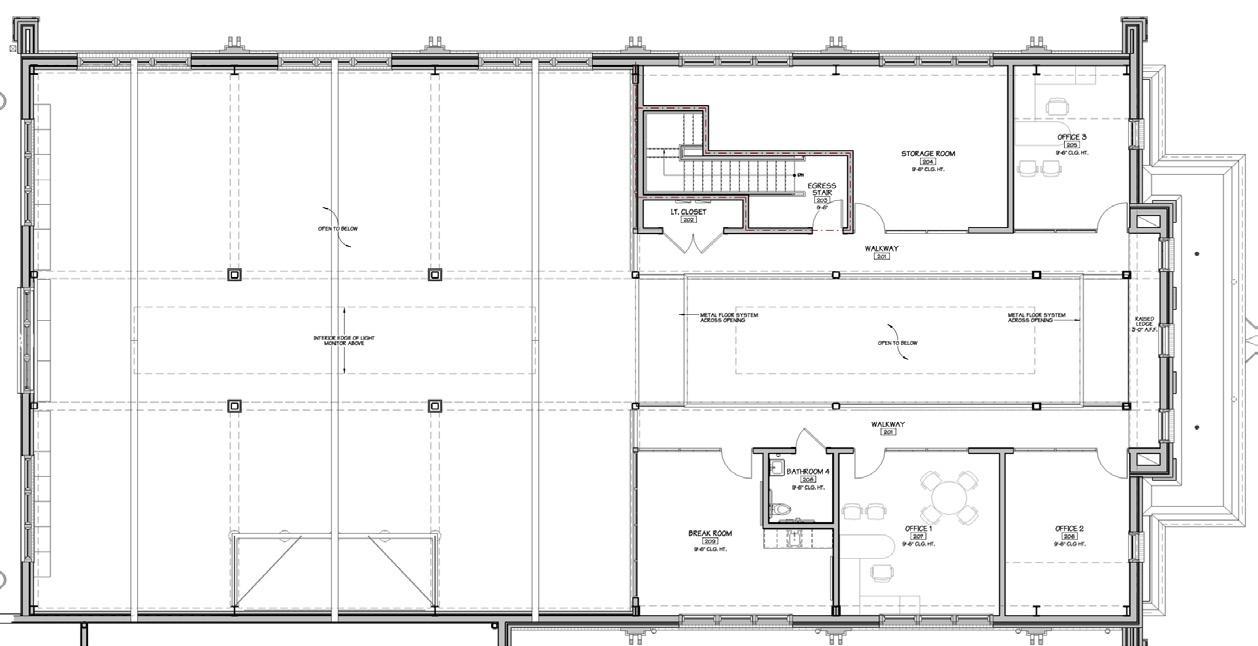
2ND FLOOR MATERIALITY FLOOR PLAN Conference Room 7 Mailroom 1 Reception 2 Telehealth Room 3 Private Room 4 Restroom 5 Lounge 6 Small Conference Room 8 Breakout Area 9 Management Office 10 CTO Office 12 CEO Office 11 Server Room 13 Mechanical Room 14 KEY 1 2 3 3 3 5 5 5 4 6 7 10 12 8 9 11 14 13 10 10 10
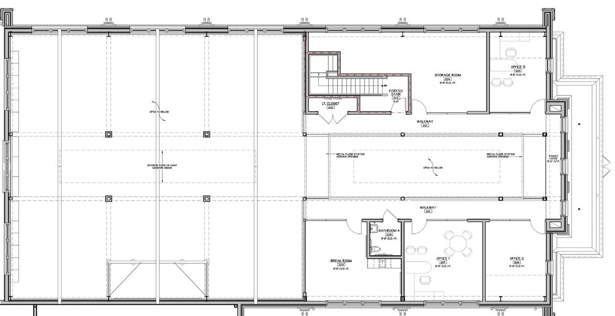
FF&E 3RD FLOOR KEY KEY FLOOR PLAN Lounge 7 Informal Work Space 1 Formal Work Space 2 Conference Room 01 3 Conference Room 02 4 Conference Room 03 5 Conference Room 04 6 Restroom 8 Private Room 9 Pantry 10 Medical Director Office 12 Breakout Area 11 HR Director Office 13 Mechanical Room 14 13 7 1 4 2 12 5 8 8 8 9 10 2 11 3 6 14

PERSPECTIVE VIEWS

RECEPTION

This custom seating area offers a private breakout area for employees, and is located directly adjacent to the conference room. The location of the space offers immediate access to the circulation hallway, as well as the circulation stairs located to the left.

Wood Slat

Flooring

Behr - Aloe Green

Steelcase Hana Armchair
FELTWORKS Blade Ebbs
FF&E
MATERIALITY

MAIN CIRCULATION STAIRS

Custom stairs are featured at the center of the 2nd and 3rd floor, and act as an alternate means of circulation for the building. The floor to ceiling balusters serve as a form of privacy for the teletherapy rooms by enclosing off the heavily trafficked area, while creating a point of convergence for the building.

Ash Wood Stair Balusters

Coppor Stair Risers
TURF Reed Wallpaneling
FF&E
MATERIALITY

BREAKOUT SPACE

MATERIALITY FF&E

This custom seating area offers a private breakout space, and is located directly adjacent to the conference room. The space offers immediate access to the circulation hallway, as well as the circulation stairs located to the left. Custom Wood

PERSPECTIVE VIEWS
Vibia
Lamp
Panelling Shaw Zone Tile 58300
- Ameba

FORMAL WORKSPACE

The formal work area provides a heads down working environment for employees, with an option for a collaborative gathering area at the far left of the space. Suspended ceiling panels line the area above the space to act as wayfinding, while the different flooring types offer separation from the public circulation and pantry.

Armstrong WOODWORKS Open Cell
Graham & Brown Prism Wallpaper Armstrong LVT Mint Julep ST525 Vibia - Plus
Ceiling Lamp
MATERIALITY
FF&E

Animal Therapy Center

HEALTHCARE DESIGN IN PROGRESS
SCAD

PROJECT DESCRIPTION

The overall scope of this project will cover the renovation of an existing site, working from initial research to final floor plans, perspectives, working drawings, and ff&e selections. This 12,000 ft2 space will cater to an Animal Therapy Center, equipped with therapy offices, animal housing, and in house animal training area.

The goal of this project is to extend the reach and clientele of the South Carolina Department of Mental Health by introducing an Animal Therapy service, catering to the low income service industry workers of rural South Carolina.

user demographic

concept $23.3K-$33.3K $33.4K-$39.7K $39.7-$47.4K $47.5K-$56.9K $57K+ HAMPTON COUNTY
COUNTY ALLENDALE COUNTY
COLLETON
COUNTY
HOUSEHOLD INCOME RACE & ETHNICITY STATS BY COUNTY *IN PROGRESS
BEAUFORT
MEDIAN

TOP LOW WAGE OCCUPATIONS

USER STATISTICS

LOW WAGE INDUSTRY SECTORS

EMPLOYMENT GROWTH BY INDUSTRY SECTOR

*IN PROGRESS

PEARCE SCOTT ARCHITECTS

12,000 ft2

2020 HISTORY

Burnt Church Distillery is an existing site located in Bluffton, South Carolina. The building takes inspiration for church structures, with vaulted ceilings, a classic brick facade, and a custom stained glass feature window. With 2 floors and an auxilary space located to the left of the front, the site boasts 12,000 ft2 in total. The structure will cater to the Animal Therapy Center by allowing for an Equine Therapy space separate from the main building, where more traditional and smaller scale animal therapy work will be done.

Site LOCATION ARCHITECT AREA YEAR 120 BLUFFTON RD, BLUFFTON, SC
*IN
PROGRESS

EXISTING MATERIALITY

ARCHED WINDOWS BLACK STEEL ROOF
TRANSOM WINDOWS BRICK EXTERIOR

BLOCk DIAGRAMS

PUBLIC SEMI-PUBLIC PRIVATE VISITOR SEATING AAT EDUCATION ROOM MGMT MGMT MGMT STORAGE THERAPY OFFICE EQUINE STABLES TACK ROOM EXAM ROOM EQUINE EXAM ROOM STORAGE EQUINE FEED ROOM PUBLIC AAT SPACE ANIMAL DAYCARE CAT CAFE LOCKER ROOM CAT HOUSING DOG HOUSING ANIMAL KITCHEN RECEPTION
1ST FLOOR PRIVATE AAT 2ND FLOOR #1 CIRCULATION
STABLES TACK ROOM EQUINE FEED ROOM CAT HOUSING DOG HOUSING EXAM ROOM EQUINE EXAM ROOM LAUNDRY KITCHEN PUBLIC AAT SPACE ANIMAL DAYCARE CAT CAFE LOCKER ROOM PRIVATE AAT STORAGE RECEPTION STORAGE LOUNGE #2 1ST FLOOR 2ND FLOOR VISITOR SEATING AAT EDUCATION ROOM MGMT MGMT MGMT THERAPY OFFICE STORAGE *IN PROGRESS
EQUINE
SPACE OCCUPANTS AREA/OCCUPANT S.F. / UNIT # OF UNITS TOTAL S.F. % OF SPACE
PROGRAM *IN PROGRESS
space allowances
public aat space 2250 reception 150 ft utility animal equine tack room 300ft 12 x 12 stall 12 x 12 stall 4x6 kennels laundry private aat space 450ft locker room 500ft animal daycare 300ft cat cafe stairs locker room 500ft elevator storage stairs elevator AAT Education Room 750ft therapist office 200ft mgmt 150ft mgmt 150ft mgmt 150ft LOOSE PLAN #1 public aat space 2250 reception 150 ft equine housing 1000ft equine exam room 300ft utility cat housing equine tack room 300ft 12 x 12 stall feed room 300ft 12 x 12 stall 12 x 12 stall 12 x 12 stall 4x6 kennels dog kitchen dog laundry private aat space 450ft cat cafe stairs elevator storage Animal Daycare cat laundry cat kitchen 12 x 12 stall back of house storage 1ST FLOOR 2ND FLOOR DN mgmt 150ft mgmt 150ft mgmt 150ft education space 750ft animal exam room 300ft therapy room 200ft Storage 1ST FLOOR 2ND FLOOR #2 #1 *IN PROGRESS
Loose Floor Plans

renderings in progress

SAVANNAH MILLER CONTACT savgmille@gmail.com 574-304-2553

Turn static files into dynamic content formats.

Create a flipbook
Issuu converts static files into: digital portfolios, online yearbooks, online catalogs, digital photo albums and more. Sign up and create your flipbook.