




![]()









MONT VERT PRECINCT (COMPETITION WINNER)
Saint-Gobain International Student Competition, Paris. Third Year, 2020

INTERNSHIP: NOERO ARCHITECTS
1-year contract with Noero Architects, based in Cape Town CBD. ‘Fourth Year’, 2021
Crafting a Place of Transition: From Refuge to Reconnection.
M.Arch (Prof) Year, 2023





WINTER SCHOOL SIMULATED OFFICE ILLUSTRATIONS


























The restorative power of water shapes this urban scheme. The introduction of biodiverse wild nature and a wetland park flowing through this dried-out brownfield site plays a role in revitalising the greater area.
The undulating mountain-like rooves of the buildings and their neighbours collect rainwater and deposit it into the wetland for further filtration, essentially acting as tributaries to the wetland system.

Railway Line
Bus stops



Train station Motorway Bike lanes and sidewalks Local road





west-east connection
north-south connection
train station



routes for bicycles and people
major pedestrian route
private circulation







RETROFITTED HISTORICAL BUILDING


WEST-EAST SECTION







“The opposite of addiction is connection” - Johan Hari
How can space become a catalyst for connection?
My thesis proposes an environment that takes people through the process from the early stages of addiction treatment through to the stage where they are acclimatized to the realities they will weather when they go out into the world as resilient individuals.
Spatially, this involves re-thinking the ‘rehab’ typology to break away from the clinical neon hospital environment, away from the institutional prison-like dorms and mess halls of existing public rehabs, and away from the exclusive luxury ‘rehab hotels’ that have come into fashion in the private sector.

Through my research of the addiction treatment process, speaking to social workers and doctors who have been involved with running rehabs, it is clear that requires a spectrum of experiential places that span between the two extremes: intimate, comfortable spaces, and places that accomodate dynamic, social and challenging activities.







Rather than creating a central mess hall and massive dorm room like conventional rehabilitation facilities, this design employs principles of mat-building and creates a number of smaller pod-courtyard systems that are repeated. Each one contains its own a tiny neighbourhood of bedrooms, kitchens, bathrooms and communal outdoor space.
After leaving high care in the hospital, the inpatients spend a period of time in each ‘neighbourhood’, starting from the most quiet and carefully monitored, and moving to the next pod as they progress through the different phases of the program. The final stage is the self-catered pod, which attempts to maximize independence and acclimatization to the outside world.

A TYPICAL POD (POD 3)
3x 3-person bedrooms
1x 10-person group therapy room
1x 10-person rec room
1x space shared by entire facility, eg. the workshop or the library.




Pockets of stillness and refuge are scattered throughout, punctuating the large courtyards, communal kitchens and recreation spaces that make up the place.
An oversized wall is dissolved into a grid of brick columns that set up a rhythm in which large and small spaces can coexist, creating wide, permeable threshold between all indoor and outdoor spaces.
Between these piers are varying levels of solidity, ranging from transparent glass, to honeycomb brick screens, to sold brick walls, allowing for spaces to emerge with varying degrees of privacy or exposure.
This system allows for informal spaces and places of all shapes and sizes for people to linger and chat between formal meetings, meals and therapy sessions.








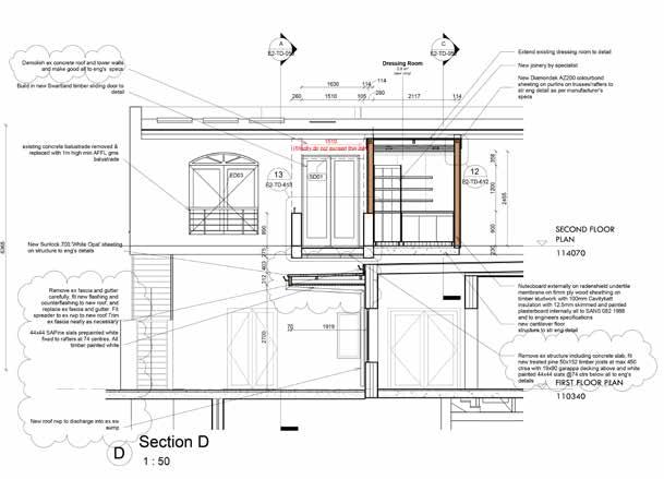
My role: producing council plans and tender drawing set under supervision of an architect. Assisting with the tender preliminaries & specifications document.





























I designed steel joints that could securely hold together up to five timber pieces each, and liaised with a steelworker to manufacture them. Below are photographs of the steel joints functioning as planned.
























The brief involved designing a rowhouse in Woodstock with a residential function and an income generating space. My approach was to contribute to the vibrant creative character and community of Woodstock by bringing people together through art, while creating a suitable living space with efficient circulation and north light in every room.



The income generating space occupies the bottom floor and is split into two: a studio for the community to enjoy and take visual art classes (painting, drawing, sculpting) and at the back a private studio for the artist who teaches these classes. The top two floors are residential.
This project involved the design of an early childhood development centre in Salt river. The neighbourhood is vibrant and has a strong sense of community, but it has little to no green space, with no gardens or soft playgrounds for children to play in.
My approach was to introduce biodiverse and wild greenspace to the area. My childhood was spent almost completely outdoors and I believe that nature is the best environment for children to grow up in and learn things such as motor skills, creativity, their physical limits and building immunity from playing in the dirt.


My simulated office group of four, was tasked with re-imagining the UCT campus in a post-covid world. Socialization, peer learning and integration of sunlight, fresh air and nature were hot topics in everyone’s minds.
Our project involved reconfiguring UCT’s Duncan MacMillan Laboratories and Menzies Building from under-utilised and overscaled spaces of siloed learning and vocation to spaces of trans-disciplinary practice through the reclamation of natural ecological heritage.
Nature is used as a disruptor of the existing rigid and archaic architectural language. Removing layers of unnecessary pastiche to reintroduce the natural conditions of the site and creating spaces that foster a new form of pedagogy and social experience which centre the building as a system through which resources and waste are reprocessed, regenerated and reused.







PHOTOSHOP

Analysing the technology of daylighting in existing precedents

INK AND WATERCOLOUR
Illustration of the Artscape theatre for a KMH competition, in which I placed first.



REVIT
Existing buildings measured and modelled for Weylandts Furniture.



Undergraduate project

