




![]()








Cell: +27 72 681 0425
Email: sashaczech7@gmail.com
SACAP Registration: Candidate Architect
Citizenship: South Africa, Germany
Languages: English, Afrikaans
Date of Birth: 21/09/98
Drivers License: Yes

I am a passionate and capable Candidate Architect with a M. Arch (Prof) degree from the University of Cape Town and a year and a half experience working in architectural practices. I love learning and I make full use of every opportunity I get to expand my capabilities and skill set.
My professional journey began after graduating cum laude with my BAS degree, during which I was awarded first place in an international student competition. I went on to work at Noero Architects, where I developed a strong foundation in architectural practice. Following my postgraduate studies, I broadened my perspective through travel and freelance work, before joining SDKS Architects.
I am constantly inspired by the difference that sensitively designed environments can make in the lives of people, whether it is at the scale of a city or a staircase. I draw endless inspiration from the natural landscape, and the majority of my free time is spent in the mountains doing multi-day hikes and making art.
Oct 2024 -March 2025
Jan-May 2024
Short-term contract with SDKS Architects
First job as a candidate architect. Duties included taking responsibility for portions of Local Authority submissions, Tender Documentation, Construction Packages and Detail Design.
Freelance work
Designing and producing technical drawings for a private client, while also measuring and 3D modelling stores and furniture for Weylandts
Furniture.
Jan-Dec 2021
2020 (2 Weeks)
2019 (2 Weeks)
Internship with Noero Architects
Work experience at Archilab
Work experience at SDKS Architects


Saint-Gobain International Student Competition, Paris. Third Year, 2020
INTERNSHIP: NOERO ARCHITECTS
1-year contract with Noero Architects, based in Cape Town CBD. ‘Fourth Year’, 2021
Crafting a Place of Transition: From Refuge to Reconnection. M.Arch (Prof) Year, 2023


DESIGN-BUILD ART INSTALLATION




























The restorative power of water shapes this urban scheme. The introduction of biodiverse wild nature and a wetland park flowing through this dried-out brownfield site plays a role in revitalising the greater area.
The undulating mountain-like rooves of the buildings and their neighbours collect rainwater and deposit it into the wetland for further filtration, essentially acting as tributaries to the wetland system.

Railway Line
Bus stops



Train station Motorway Bike lanes and sidewalks Local road





west-east connection
north-south connection
train station



routes for bicycles and people
major pedestrian route
private circulation







RETROFITTED HISTORICAL BUILDING


WEST-EAST SECTION

This project spanned four months. Below is an exploded axonometric view that I produced using a 3D model in Revit. I was also responsible for:
• Measuring up and modelling the existing house accurately in Revit, including existing and new window, door and furniture families.
• Modelling up my boss Evandro’s design for the proposed additions using Revit.
• Producing presentation drawings, perspectives, axonometric views (shown on this page) and renders to show the client using Revit, Lumion and Photoshop.
• Assisting in the production of a full set of council drawings using Revit, which were approved.
• Assisting in the production a full set of construction drawings that were issued to the builders.











AA FROM THE COUNCIL DRAWING SET.
“The opposite of addiction is connection” - Johan Hari
How can space become a catalyst for connection?
My thesis proposes an environment that takes people through the process from the early stages of addiction treatment through to the stage where they are acclimatized to the realities they will weather when they go out into the world as resilient individuals.
Spatially, this involves re-thinking the ‘rehab’ typology to break away from the clinical neon hospital environment, away from the institutional prison-like dorms and mess halls of existing public rehabs, and away from the exclusive luxury ‘rehab hotels’ that have come into fashion in the private sector.

Through my research of the addiction treatment process, speaking to social workers and doctors who have been involved with running rehabs, it is clear that requires a spectrum of experiential places that span between the two extremes: intimate, comfortable spaces, and places that accomodate dynamic, social and challenging activities.







Locating an addictions treatment facility in the South would benefit people from under-resourced communities such as Ocean View, Masiphumelele, Grassy Park, Red Hill, Phillippi and Mitchell’s Plein, to name a few.
The architecture of addiction treatment needs to address notions of isolation and stigma, namely by finding ways to integrate people back into their families, communities and society as part of their treatment.
Although an inpatient facility needs to be closed off and have a degree of access control, it can be surrounded by places where there is overlap between public and private. This would include places for vocational training, outpatient treatment and places that support the family, as well as a community space for outreach, education and events.





RESIDENTIAL FISH HOEK EXISTING PEDESTRIAN ROUTE
HOSPITAL GROUNDS EXISTING FARM & PRODUCE NGO EXISTING ENTRANCE TO HOSPITAL GROUNDS
HOSPITAL BUILDINGS








Rather than creating a central mess hall and massive dorm room like conventional rehabilitation facilities, this design employs principles of mat-building and creates a number of smaller pod-courtyard systems that are repeated. Each one contains its own a tiny neighbourhood of bedrooms, kitchens, bathrooms and communal outdoor space.
After leaving high care in the hospital, the inpatients spend a period of time in each ‘neighbourhood’, starting from the most quiet and carefully monitored, and moving to the next pod as they progress through the different phases of the program. The final stage is the self-catered pod, which attempts to maximize independence and acclimatization to the outside world.

A TYPICAL POD (POD 3)
3x 3-person bedrooms
1x 10-person group therapy room
1x 10-person rec room
1x space shared by entire facility, eg. the workshop or the library.




Pockets of stillness and refuge are scattered throughout, punctuating the large courtyards, communal kitchens and recreation spaces that make up the place.
An oversized wall is dissolved into a grid of brick columns that set up a rhythm in which large and small spaces can coexist, creating wide, permeable threshold between all indoor and outdoor spaces.
Between these piers are varying levels of solidity, ranging from transparent glass, to honeycomb brick screens, to sold brick walls, allowing for spaces to emerge with varying degrees of privacy or exposure.
This system allows for informal spaces and places of all shapes and sizes for people to linger and chat between formal meetings, meals and therapy sessions.





Primarily found in the peripheral courtyards, but scattered throughout the facility. Bushy gardens, quiet winding paths, recessed nooks.
Feelings of safety and calm are cultivated using filtered natural light, visual privacy,

Central courtyards, communal halls, open lawns, shaded seats, group therapy rooms, rec rooms.
Visibility, bright and dynamic lighting, varying scale, adaptable layouts and ample seating are provided to make the spaces amenable to formal and informal social encounters.
I undertook a short-term contract at SDKS Architects that ran from mid-October 2024 until the end of March 2025. Over this period, I contributed to +- 8 projects, primarily residential and schools. My tasks were as follows:
• Putting together drawing sets and accompanying forms for local authority BDM submissions.
• Monitoring the DAMS portal and taking care of amendments.
• Assisting with LUM and HWC applications.
• Under guidance, using Revit to convert council drawing sets into packages for tender and costing.
• Assisting with specifications and preliminaries documents.
• Contributing to making a set of construction drawings for issuing to contractors.
• Assisting with joinery design as well as specifications. Liased with clients, subcontractors and suppliers, and assisted in client design meetings.
• Assisting with the design of technical details.
• Measuring up and documenting existing buildings and modelled them in Revit.
• Making site-demarcation drawings
• Taking site meeting minutes.
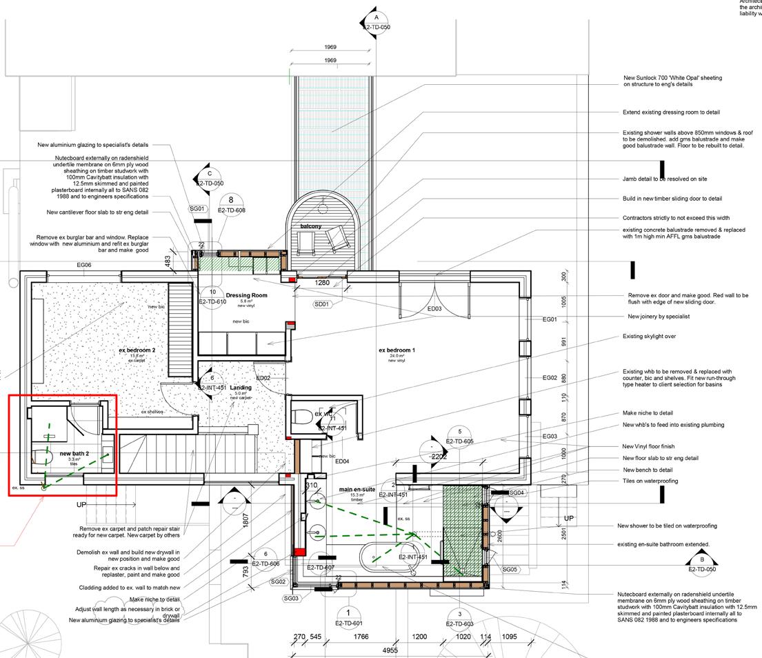
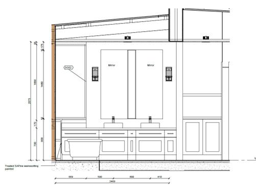
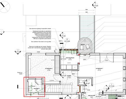
My role: producing tender drawing set from approved council plans, under supervision of an architect. Sending the tender drawings to contractors, assisting with the tender & specifications document. Assisting with site meetings.







My role: producing council plans and tender drawing set under supervision of an architect. Assisting with the tender preliminaries & specifications document.





























DESIGN-BUILD ART GRANT 2025
My design was awarded a grant to build a large installation with my team for an art festival being held in the Karoo. It has now been built (shown on the next page).
I designed the structure from the large scale down to the steel connections, and directed its construction. As a team, we liaised with structural engineers, steelworkers and woodworkers to create a foolproof structure.


My group came up with the whimsical concept of an “underwater volcano cave” and I worked it up into a design concept and structure that we could build with our specific skill set and budget.
We were all incredibly proud of the final structure, and after the festival we donated to the crew who spends three months in the karoo setting up the infrastructure of the festival.
















THANK YOU FOR VIEWING