Sanika Kulkarni - portfolio

Page 1

sanikakulkarni@yahoo.com +91 8888314439
Sanika Kulkarni Architect

THE THESIS PROPOSES A COLLECTIVE WORKSPACE CLOSE TO THE PUNE AIRPORT AND SYMBIOSIS INTERNATIONAL UNIVERSITY IN THE EVER – GROWING AREA OF VIMAN NAGAR, THAT CATERS TOWARDS BRIDGING THE GAP BETWEEN INFORMAL/ CO-WORKING AND FORMAL/ OFFICE SPACES.

TYPOLOGY

COMMERCIAL, MIXED USE URBAN OFFICE SPACES

LOCATION

PUNE, MH, INDIA.

SITE AREA

13,863 SQ.M

BUILDING AREA

11, 978 SQ.M

DEFINITION

A collective workspace refers to a truly flexible, adaptable and inclusive “pandemic-proof” workspace –conceptualised and designed based on user preferences and well-being, along with suitable typologies for a specific clientele. It aims at breaking the traditional barriers of office systems, creating an ideal and versatile space, allowing the users to better balance the levels of connectivity and/or distance.

IDENTIFYING POINTS OF ACCIDENTAL CONTACT, INCREASING NUMBER OF VERTICAL SERVICE CORES AND ADDITIONAL ENTRY/ EXIT POINTS. INCREASED NUMBER OF TOILET BLOCKS, INSTALLING PERSONAL SANITARY FIXTURES INSIDE INDIVIDUAL TOILET STALLS, BIGGER, CURATED LOBBY SPACES AND WIDER CORRIDORS WITH INDOOR BIODIVERSITY.

LOCATION OF RETAIL SHOPS TOWARDS THE EAST OF THE SITE RESULTS IN CREATION OF PUBLIC PLAZAS, VISITOR’S PARKING LOTS AND EASY CIRCULATION. IT ALSO HELPS IN REVENUE GENERATION FOR THE SITE.

INFORMAL SEATING AREAS AND SOCIAL SPACES IN THE CORRIDORS CREATED BY THE BUILDING OVERHANGS OPEN UP INTO THE LANDSCAPING. SOCIAL AND PUBLIC AREAS IN OUTDOOR, OPEN SPACES TO AVOID CROWDING.

ACCESS TO AMENITY SPACE AND SERVICE YARD THROUGH 8M SECONDARY ROAD.

PRIVACY | ADAPTIBILITY | FLEXIBILITY | AMBIENCE

DEFINING FLEXIBLITY IN TERMS OF PRIVACY, NUMBER OF USERS, NATURE OF WORK AND TYPOLOGY.

DEFINING FLEXIBILITY BY ADAPTABILITY OF ONE WORKSPACE TYPOLOGY TO BE REUSED AS ANOTHER TYPOLOGY OF A DIFFERENT NATURE, ACCORDING TO USER REQUIREMENTS.

DEFINING FLEXIBILITY BY MULTIPLYING, DIVIDING, ADDING AND SUBTRACTING MODULES USING SOLID/ TRANSPERANT UNITISED WALL SYSTEMS.

DEFINING FLEXIBILITY IN AMBIENCE AND STYLE OF WORKING FOR INDIVIDUAL STATIONS BY PROVIDING VARIOUS SEATING OPTIONS.

DEFINING FLEXIBILITY IN CREATING INTER-ACTIVE, INTER’ CHANGEABLE AND INTER- RELATED WORKSPACES. BY VARYING PARTITION WALL HEIGHTS, CREATING FORMAL/ INFORMAL WORK ENVIRONMENTS,

NATURAL LIGHTING AND VENTILATION IN SOCIAL ZONES LIKE THE CAFETARIA.

FUELING AMBIENCE-BASED CREATIVITY AND PRODUCTIVITY BY INTRODUCTING POPS OF COLOUR AND AVOIDING MONOTONY WHILE PLANNING - THROUGH FLEXIBLE UNITS.

SLEEP PODS @ MEZZANINE LVL - SPECIAL TYPES OF CHAIRS THAT ALLOW THE USERS TO NAP. USERS USE THE PODS TO TAKE PRIVATE SLEEP BREAKS, OFTEN AIDED BY TECHNOLOGY AND AMBIENT FEATURES.

ELEVATIONAL FEATURE OF LOUVERS TO HIDE THE SERVICE SLAB FOR ODU PLACEMENT, ETC.

2/3 STACK AUTOMATED PUZZLE PARKING SYSTEMS ON BASEMENT LEVEL.

FLEXIBILITY IN AMBIENCE AND PRIVACY FOR INDIVIDUAL WORK STATIONS GIVES THE USER FREEDOM OF CHOICE

FLEXIBILITY IN FURNITURE LAYOUTS ACORDING TO THE NUMBER OF USERS, FUNCTION OF SPACE AND NATURE OF WORK.

FLEXIBLE UNITS FOR MEET-UP AND CONFERENCE ROOMS RESULTS IN A MODULAR, NON-RIGID FAÇADE, WITH AN EXPANDABLE AREA THAT DOUBLES AS A TERRACE- MAKING THE SPACE EASILTY ADAPTABLE, AND RE-USEABLE.

INTRODUCTION OF GREEN POCKETS IN SOCIAL AREAS PROMOTES POSITIVITY, USER WELL- BEING, ACT AS NATURAL AIR PURIFIERS AND INCREASE THE AIR QUALITY, MAKING THE WORKSPACES CLEAN AND GERMFREE.

COLLABORATIVE SPACES WITH PARITION WALL HEIGHTS OF 1.5M FOR OPENNESS AND AN OPEN CIRCULATION PLAN.

PROMOTING COMMUNITY AND CONNECTIVITY IN AN URBAN CONTEXT, WHILE ALSO GIVING THE USER PRIVACY AS NEEDED WHILE FOLLOWING SAFETY PROTOCOLS WITH THE USE OF SOLID OR TRANSPERANT FLEXIBLE WALLS.

RETAIL SHOPS DRIVE-WAY

TYPOLOGY HOSPITALITY, ENTERTAINMENT

LOCATION

LONAVALA, NEXT TO LOHGAD FORT.

DEFINITION

VARASA- a modern representation of the beautiful backdrop of the vintage Lohagad fort.

BUSINESS CENTRE | BANQUETS | ENTERTAINMENT ZONE | RESTAURANT, BAR | SPA |

deluxe rooms 50 sq.m | deluxe premium room 70 sq.m | suite 100 sq.m | luxury suite 130 sq.m |

TOILET PLINTH +450 +2550 +3450 +4950 +6300 +450 +2550 +3450 +4950 +6300 ENTRY/ EXIT OUTDOOR SITTING AREA

TYPOLOGY

RESIDENTIAL, TOWNSHIP

MIXED GRAIN; LOW + HIGH RISE

LOCATION

MAHLUNGE, PUNE, MH, INDIA.

SITE AREA

13,863 SQ.M

BUILDING AREA

11, 978 SQ.M

DEFINITION

Riviera- a township situated in Mahlunge, Pune. Is at the centre of all things epic – with a river on one side, and a concrete jungle of Hinjewadi on the other, this well-knit housing complex promises to offer comfort, luxury and fun all in one, offering a beautiful view of the river, along with a sustainable and affordable future by using upcycled materials & passive techniques

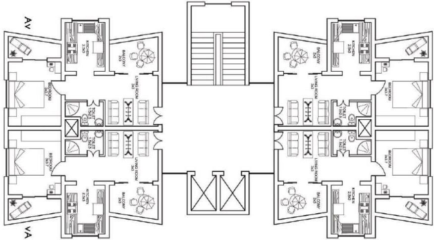
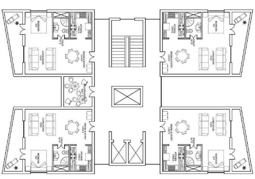
STUDIO

| 1/2/3 BHK | 4 BHK DUPLEX APARTMENTS . ROOF PLAN

STUDIO APARTMENTS

1BHK APARTMENTS

MASTER BEDROOM

3BHK APARTMENT

GUEST BEDROOM

3BHK APARTMENT

2BHK APARTMENTS

3BHK APARTMENTS

KIDS’ BEDROOM

3BHK APARTMENT

4BHK APARTMENTS (DUPLEX)

TYPOLOGY

RESIDENTIAL, SUSTAINABLE HOUSING, MODERN LIVING SPACES

LOCATION

KARVE ROAD, PUNE, MH, INDIA.

UNIT AREA

25 SQ.M

BUILDING AREA

15 UNITS; 375 SQ.M

DEFINITION

Developments in the fields of technology and smart living leads to innovative design ideas to create residential spaces that offer sub-urban serenity and urban energy while optimising the functionality of the habitable areas. Micro housing is an innovative, unconventional design concept for creative resourceful design spaces- complete with the touch of homeliness to the otherwise conservative world of residential architecture.

ROOF
ENTRY EXIT BUILDING ENTRY CAR PARKING
PLAN
SECTION AA’ SECTION BB’

UNDERSTANDING AND DESIGNING VARIOUS TENSILE SYSTEMS

MULTIPLE FABRIC CUBE – 2FT x 2FT / 1x1 INCH GRID

SINGLE FABRIC CUBE- 2FTx2FT/ 2x2 INCH GRID physical/3drhinomodel

WAFFLE SYSTEM – DESIGNING, GENERATING AND BUILDING A TYPICAL, 3D WAFFLE STRUCTURAL SYSTEM MODEL.

TYPOLOGY

COMMERCIAL, CASUAL DINING, COUNTER

LOCATION

BANGALORE & HYDERABAD, INDIA

NUMBER OF CAFES DESIGNED 6

DESCRIPTION

CHARLIE CHAPLIN IS AN EXPRESSION OF BEING BOLD , ODD AND SURREAL. CHARLIE CHAPLIN LA VEGANO IS A VEGAN CHAIN OF RESTAURANT WITH A FRESH AND CREATIVE LOOK. ALL THE MATERIALS CHOSEN ARE VEGAN, THAT CONVEY A STRONG MESSAGE THAT THE RESTAURANT BELIEVES. ELEMENTS OF CHARLIE ARE SPRINKLED ALL OVER THE RESTAURANT , HAT LIGHTS , CANE HANDLES , GEAR CEILING AND A SCREEN PLAYING HIS MOVIES.

TYPOLOGY

LUXURY RESIDENTIAL

LOCATION

TRIBECA - THE ARK VOYAGE, PUNE, INDIA

AREA

3BHK, 2,266 SQ.FT

DESCRIPTION

ELEGANZA CAN BE DESCRIBED AS A HOUSE OF NOSTALGIA. DESIGNED WITH THE THOUGHT OF PRESERVING LIFE-LONG MEMORIES MADE THROUGH TRAVELLING, ELEGANZA REFLECTS FAMILY, WARMTH, COMFORT AND SOPHISTICATION. WITH A VIVID COLOUR PALETTE AND A MODERN ETHNIC STYLE, THIS 3BHK ENCAPSULATES THE 11FT TALL CEILINGS AND STUNNING VIEWS, WITH A MODERN TWIST

TYPOLOGY

LUXURY RESIDENTIAL

LOCATION

TRIBECA - THE ARK VOYAGE, PUNE, INDIA

AREA

4BHK, 2,641 SQ.FT

DESCRIPTION

“SOLITUDE” – A HIGH-END RESIDENTIAL INTERIOR PROPOSAL BUILT ON THE IDEAS OF WABI-SABI, MIXED WITH ETHNIC JAPANDI TONES. THIS HOUSE AIMS AT DEVELOPING A RETIREMENT HOME FOR A COUPLE USING THEIR MEMORIES AND NOSTRALGIA AS STEPPING STONES.

Turn static files into dynamic content formats.

Create a flipbook
Issuu converts static files into: digital portfolios, online yearbooks, online catalogs, digital photo albums and more. Sign up and create your flipbook.