The Hill Sales Brochure

Page 1


Enjoy the finest retirement living in New Zealand

Welcome to The Hill

On behalf of Sanderson Group it is with great pleasure that I introduce our latest flagship retirement village - The Hill.

Since its inception in 1987, The Sanderson Group has been a family owned and operated company that has built a reputation for creating some of the country’s most desirable retirement villages.

We are committed to delivering premium retirement village projects along with first class facilities and care that meet the highest standards and requirements.

I believe we enhance our residents’ wellbeing and quality of life by creating a luxurious environment that offers significant amenities, security, continuum of care and a friendly community atmosphere.

We invite you to experience this exceptional lifestyle that all our village residents love and enjoy.

Life is for living at The Hill

The Hill is Pukekohe’s newest and most luxurious retirement village, proudly developed and brought to you by Sanderson Group.

Thoughtfully designed for comfort and ease, this premium 11-hectare development is located on the lower reaches of Pukekohe Hill, just four minutes from the town centre.

Every detail has been designed for the ultimate comfort, convenience and wellbeing of The Hill’s residents. The architectural design and orientation of the villas and village facilities maximises the site’s elevation and north-east facing aspect, complemented by lush green landscaping.

A relaxed and inviting lifestyle beckons. The Hill offers an exceptional quality of living, along with new friendships and experiences, and, most importantly, an opportunity to take the time to do what matters most to you.

The Hill will delight those wishing to make the most of their retirement, because life is for living.

We invite you to discover The Hill.

PAUANUI COROMANDEL
Omokoroa Country Club
Matamata Country Club
Tamahere Country Club

Perfectly positioned to enjoy the best of Auckland & beyond

Pukekohe is located at the southern edge of the Auckland region, between the Manukau Harbour and the mouth of the Waikato River, just 50km south of Auckland’s CBD off State Highway 1 motorway.

Auckland International & Domestic Airport

40 min drive

Auckland CBD

45 min drive

Pauanui, Coromandel

1 hr 15 min drive

Hamilton

1 hr drive

Tauranga

2 hr 15 min drive

Welcome to Pukekohe

Set against the scenic rise of Pukekohe Hill, The Hill offers residents a coveted elevated outlook and desirable location close to a thriving and vibrant rural community.

Pukekohe town centre is an easy four-minute drive by car and offers a selection of local cafes, bars and restaurants, fine food grocers and supermarkets, hair and beauty salons, art galleries, a library, medical centre and pharmacy, and much more.

Local points of interest include a weekend farmers market, an 18-hole golf course, water gardens and waterfalls, horse trekking and west coast beaches.

Rail enthusiasts operate historic steam trains at nearby Glenbrook on regular Sundays.

Auckland City’s amenities and international airport are within easy reach via the motorway or direct train service to the city centre.

Close proximity to little luxuries and key conveniences

Retail & Supermarkets

Pukekohe Village Centre

4 minute drive

Zone Shopping Centre

4 minute drive

Mitre 10 Mega

5 minute drive

Woolworths

3 minute drive

Pukekohe Farmers Markets

6 minute drive

Transport

Pukekohe Train Station

5 minute drive

Auckland International & Domestic Airport

40 minute drive

Cafes & Restaurants

Your Local Coffee Roasters

5 minute drive

Franklins Bar & Eatery

5 minute drive

The Monarch

5 minute drive

Medical

Pukekohe Hospital

3 minute walk

1 minute drive

Pukekohe Family Doctors

3 minute drive

Franklin Hospital

25 minute walk

3 minute drive

Recreation Parks & Sports

Pukekohe Golf Club

15 minute drive

Maxwells Golf Retreat

20 minute drive

Pukekohe Hill Reserve

30 minute walk

5 minute drive

Pukekohe Racecourse

5 minute drive

Pukekohe Tennis Club

5 minute drive

Pukekohe Bowls Club

3 minute drive

PUKEKOHE TENNIS CLUB

PAK’N SAVE PUKEKOHE

PUKEKOHE TOWN CENTRE

NAVIGATION HOMES RUGBY STADIUM

PUKEKOHE FARMERS MARKET TO WAIUKU & KARIOITAHI BEACH

PUKEKOHE BOWLS CLUB

PUKEKOHE TRAIN STATION

FRANKLIN HOSPITAL

PUKEKOHE FAMILY DOCTORS

PUKEKOHE HOSPITAL

ZONE SHOPPING CENTRE

WOOLWORTHS MITRE 10 MEGA HARVEY NORMAN BRISCOES

PUKEKOHE PARK RACECOURSE

/ HAMILTON

Outstanding architecture set within park-like grounds

The Hill strikes the perfect balance between quality architecture and superb landscape design.

Our experienced in-house architectural team has considered every detail. The result is a harmonious blend of modern, yet timeless buildings nestled amongst an inviting landscape of tree-lined avenues and gardens.

At the heart of the village, close to the entrance and surrounded by beautiful landscaped gardens is a stateof-the-art clubhouse, a meeting place to enjoy leisure and recreation activities, social events and to catch up with friends.

Our café, architecturally designed and inspired by The Hill’s unique location in the greater Franklin region, invites you to gather with family and friends for great coffee and conversation.

A seamless continuum of care is offered through our boutique care residence, which will ensure a comforting environment with your well-being and peace of mind our priority.

As a company always striving to improve and lead in our field, we are proud to present our newest premium development. We are confident The Hill will exceed expectations, setting a new standard for luxury, comfort, and quality as one of New Zealand’s finest retirement villages.

Deol Dr
Sales Office
ACCESS FROM DEOL DRIVE
Tamahere Country Club

Retirement living beyond the ordinary in Pukekohe

A home to be proud of

Enjoy coming home to a thoughtfully crafted villa designed for modern living.

Choose from a selection of stand-alone villas featuring either two or three bedrooms. These range in size from 150m2 to 275m2 and include either a single or double garage.

Homes and facilities at The Hill are spacious and positioned to take advantage of the northerly aspect and sunshine hours. High gable roofs, cedar cladding and hand moulded Belgian bricks are some of the architectural features that complement the surrounding landscape.

Each villa is designed for absolute comfort and luxury with a modern layout and high-spec fittings. Designer kitchens and bathrooms feature elegant stone benchtops and vanities with premium tile finishes. Living areas and bedrooms invite calm relaxation with deluxe furnishings such a ultrasoft carpets and elegant sheer curtains. A scullery, heated bathroom floors, master ensuite and a walk-in wardrobe are included in most villa designs.

Step inside your new home

Crafted for lasting beauty

Timeless design and materials

Our vision for The Hill is to build residences of exceptional style that are timeless in their design and blend harmoniously with the semi-rural setting.

Clad in quality materials such as Canadian cedar and Belgian bricks, the building’s façade offers durability and classic appeal.

Thoughtful attention is given to the details of interior construction and design to create well-appointed spaces of the highest quality and standard.

Carefully selected materials and finishes enhance the aesthetic appeal of each villa to create an atmosphere of understated elegance and lasting comfort.

Classic

A crisp and refined aesthetic that feels timeless yet fresh. The Classic scheme is light and bright, evoking a sense of clarity and openness. Soft neutrals pair with bright, clean finishes, while honey-toned woods add warmth and depth. With a focus on simplicity and balance, this scheme offers a canvas for personal expression while maintaining a sophisticated, enduring charm.

Country

Inspired by the character and charm of farmhouses, the Country scheme brings warmth and familiarity to modern living. Subtle rustic details, such as tongue-and-groove profiles and softly textured flooring, create a space that feels welcoming and lived-in. A palette of warm neutrals fosters a sense of comfort, offering a relaxed yet refined take on country living.

Contemporary

A bold interplay of contrast and sophistication, the Contemporary scheme offers a refined, modern edge. Darker wood tones and plush carpets set a rich foundation, offset by light stone and sleek surfaces for a striking yet harmonious balance. Thoughtfully curated materials bring a sense of depth and texture, creating a space that is effortlessly stylish, confident, and tailored for modern living.

Motuihe

– Two bedroom villa

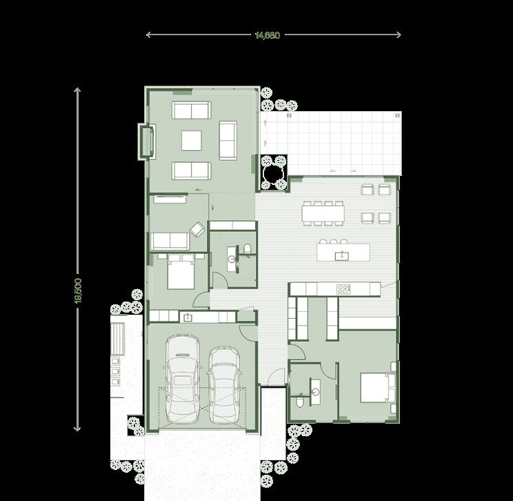
At 182m², our Motuihe villa is a popular two-bedroom design with all the modern finishes of a Sanderson Group home. Kitchen, dining and living spaces are connected through the L-shape layout for a seamless flow, with a double opening onto a covered outdoor dining area. Motuihe features a designer kitchen with scullery, two bedrooms, two bathrooms, a double car garage and a covered outdoor dining space.

bedroom villa

• All north facing to maximise sun and natural light

• High gable roofs and architectural raking ceilings

• Floor to ceiling glazing with a 2.7m stud height

• Luxury designer kitchen with state-of-the-art appliances

• Emergency call options available (upon request)

2 Bedrooms

2 Bathrooms

2 Car Garage 182m2

• Heated floors in bathrooms

• Covered alfresco outdoor dining

• E-bike storage and charging station (upon request)

• Extra wide doorways and ground level access

• Building materials include cedar, brick and long-run iron to deliver a high quality exterior

• High levels of insulation within floors, walls and ceilings for warmth in winter and cooling in summer

Motuihe
Two

Ponui

– Two bedroom villa

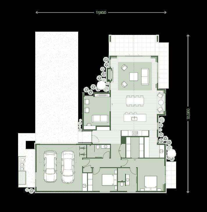
At 225m², the Ponui villa is set apart from other designs by its long driveway and spacious front door entrance. This design is ideal for residents who own a campervan or motorhome, allowing plenty of space to park and pack in the driveway. Inside, an open kitchen, breakfast bar, dining and lounge area are connected to a covered alfresco dining space and a separate media room. A large scullery, master suite with ensuite and walk-in wardrobe, and an extra wide front entrance, are just some of the standout features of Ponui.

• All north facing to maximise sun and natural light

• High gable roofs and architectural raking ceilings

• Floor to ceiling glazing with a 2.7m stud height

• Luxury designer kitchen with state-of-the-art appliances

• Emergency call options available (upon request)

2 Bedrooms

2 Bathrooms

2 Car Garage 225m2

• Heated floors in bathrooms

• Covered alfresco outdoor dining

• E-bike storage and charging station (upon request)

• Extra wide doorways and ground level access

• Building materials include cedar, brick and long-run iron to deliver a high quality exterior

• High levels of insulation within floors, walls and ceilings for warmth in winter and cooling in summer

Ponui
Two bedroom villa

Waiheke

– Two or three bedroom villa

At 237m², the Waiheke villa is one of our larger floorplans, with spacious design appeal. An open kitchen, breakfast bar, dining and conversation area lead onto a large covered alfresco dining space, with a roomy lounge and fireplace connected in the adjacent living space. Waiheke is available in a two- or three-bedroom configuration and features a designer kitchen, scullery, media room, two bathrooms, walk-in wardrobes, a double car garage, and a covered outdoor area.

2 or 3 Bedroom Villa

or 3 Bedrooms 2 Bathrooms 2 Car Garage 237m2

• All north facing to maximise sun and natural light

• High gable roofs and architectural raking ceilings

• Floor to ceiling glazing with a 2.7m stud height

• Luxury designer kitchen with state-of-the-art appliances

• Emergency call options available (upon request)

• Heated floors in bathrooms

• Covered alfresco outdoor dining

• E-bike storage and charging station (upon request)

• Extra wide doorways and ground level access

• Building materials include cedar, brick and long-run iron to deliver a high quality exterior

• High levels of insulation within floors, walls and ceilings for warmth in winter and cooling in summer

This is just a small selection of the many homes we have on offer. If you can’t find a plan that meets your needs, we are happy to adapt one to suit your requirements.

Waiheke

A clubhouse at the heart of the community

Our clubhouse is the centrepoint and social heart of The Hill.

Architecturally designed, it is an inviting, luxurious facility where residents come together to enjoy a fulfilling social life with friends, an essential aspect of creating a comfortable and rewarding retirement.

Here you can take time to enjoy a morning coffee or relax with some quiet reading in the library, play a game of billiards or join in a game of cards, and participate in a range of other activities.

Recreation on offer at the clubhouse extends to a bowling green, croquet court and pétanque terrain, the perfect setting for a bit of healthy competition with your friends. Or you may prefer to relax and watch it all unfold from the comfort of a deck chair while enjoying the surroundings.

Our clubhouse spa offers a welcome retreat for wellbeing with state-of-the-art indoor pool and gym facilities, and our boutique cinema is the ideal place to finish off the day with a film. The clubhouse also caters for larger village functions and special events.

Tamahere Country Club Clubhouse

Clubhouse facilities

Residents’ Lounge

Billiards Lounge

Boutique Cinema

Coffee Bar

Wine Bar

Dining Area

Library & Reading Room

Consultation Rooms

Hobby Rooms

Health Spa & Pool

Dance Floor

Onsite Café

Artist’s Impression of Café, Deli & Restaurant

Our onsite café will be a great place to catch up with family and friends for a morning coffee, lunch, or to pick up a few essentials from the deli. The café’s architecture and design reflect a connection between The Hill and the greater Franklin region. Part of the Pukekohe community, the café will be an important place for our residents and members of the public to gather and enjoy good food and good company.

Sports facilities

Heated Swimming Pool

Outdoor Lawn Bowls

Indoor Bowls

Yoga / Exercise Room

Gymnasium

Croquet & Pétanque

Artist’s Impression of Health Spa
Tamahere Country Club

Health spa & Pool

Relax, rejuvenate or rehabilitate within a modern and fully equipped health spa and pool facility.

Enjoy laps in the state-of-the-art indoor heated pool, or challenge yourself to a workout in the gymnasium with a range of cardio and resistance-based training equipment and advice available.

Residents can make use of our full and complimentary tailored wellness treatments and programmes.

Care Residence

Artist’s Impression of Care Residence

Comprehensive

health & wellness support

Following the construction of the homes we will build our own boutique care residence to cater for residents who require medical assistance of the highest level of care and comfort.

In keeping with the high standard of the village, our care suites will provide spacious accommodation within a boutique hotel-like environment. The Sanderson Group level of quality and refinement is carried through every aspect of the village, and our boutique care residence will be no different.

Deluxe Care Suites

• A variety of large premium suite sizes and configurations

• Private ensuite

• Access to entertainment and activity lounge

• Exceptional levels of care and attention

• Healthy and delicious foods prepared by our expert kitchen team

The care residence will be permanently staffed with registered nurses and health care assistants. Visiting doctors and specialists will add to the medical services on offer.

If extra level of care is required, our on-site care staff will ensure you receive a support plan tailored to your individual needs.

Selected services from the care residence can be provided to individual homes.

As a member of The Hill you will receive priority access to any of our Sanderson Group care facilities.

Have time to enjoy what matters most

Your journey begins now

Congratulations on taking the initial step to secure your new home at The Hill Pukekohe.

We have created this guide to outline the process and as a tool to help you manage and follow your journey with excitement and ease.

A village representative dedicated to providing you with the right advice will assist you throughout your journey to create the ultimate lifestyle for you.

This booklet outlines the steps we take to ensure a smooth and easy process from signing up to moving in.

1. Secure your new home

2. Design discussion

Select your home from one of our home designs and your preferred location within the village.

Paying deposit

A fully refundable deposit is payable to Anchorage Trustee Services within 5 days of approving the Application. It will be held in Trust until the commencement of your ORA.

Once your deposit is paid, the ORA application form and other important documentation will be sent to your nominated solicitor for signing.

Approve the Occupational Right Agreement ( ORA)

We are delighted to offer you an ORA for a house in the Village. This will give you exclusive rights to live in your new home.

It’s important you meet your solicitor within 20 days to get independent advice and approve your acceptance of the agreement.

Approving the agreements

Please sign the agreement in the presence of your solicitor who will explain your rights and the cooling off period.

Your agreement can be conditional upon the sale of an existing house. We will agree on a date by which this condition needs to be satisfied.

Planning session

After your ORA is unconditional and you have paid the deposit, we will dedicate a Representative to work with you throughout the journey to help you feel at ease with your new home.

At the initial meeting they will explain the building time frame, and give you all the information you need to take the next steps. This will be your opportunity to ask questions and get a good understanding of what to expect.

3. Style and selections

We know you’ll be excited by this step.

Interior:

At The Hill we are committed to being world class and ensuring you only get the best options.

We have our own exclusive inhouse design team. We have handpicked and designed three stunning colourways for your home. Our colour pallets, are sure to impress and you can view these as well as other materials, fittings and fixtures in our samples room.

For those homes that are more bespoke you have the opportunity to work alongside our design team to help tailor your space to your requirements.

Any changes or extras that incur cost will be invoiced to you by the consultant. In most cases where you have made changes to specified products you will incur the additional cost of the replacement.

Sign it off:

When your design selection is complete, you will be required to approve it before we send it to the construction team. You will be unable to make changes after construction has begun.

4. We build your dream home

Your work is done for now. It’s time to sit back and watch our skilled construction team build your dream home.

You can rest assured that we are all passionate about your dream...

As The Hill is a construction site it is a fundamental requirement that we take all reasonable and practical steps to eliminate or minimise hazards and risks within the Village site.

Unfortunately we are unable to provide visits to your home while it is under construction. As your settlement date gets closer we will be in touch to give you your moving in checklist with helpful tips for moving day as well as instructions on setting up your utilities such as power, gas, telephone and internet. You will receive this checklist approximately 2 months prior to your move in date.

Near the end of your building journey, we will organise a pre-settlement walkthrough of your beautiful new home.

5.

Pre-settlement walk through

By this point you’ll be getting very excited as move-in day gets closer.

Approximately one month prior to your expected move-in date you will meet with the Village Manager who will be there to help you with your transition into The Hill, making it a fun, smooth and exciting experience. This will be your first opportunity to walk through your new homea very exciting day! This last month is used to take care of the final touches and to make sure everything from your style and selections check list is ticked off.

During the walk through you will be able to ask the Village Manager any outstanding questions you may have about, ‘moving into’ your new home, move-in day and village life.

You will also get instruction for settling your final payment, as well as a moving in checklist to make sure that moving in is made as easy as possible.

Settlement:

A member of our Legal Team will produce your settlement statement close to when you move into your new home. All funds must be paid via your solicitor and settlement must occur no later than 2pm on move in day.

6. Moving in

Our team aim to make your move to The Hill your best yet! Your Village Manager will meet you at your new home to give you the key to the door and our trademark ‘warm welcome’. The entire team is ready to help in any way you need.

Once you are all set up you will have access to a range of facilities and activities that you will be sure to enjoy. Our onsite team will assist you with any queries you may have and introduce you to your maintenance and landscaping team.

You will also have an opportunity to meet your neighbours at the regular social events organised by the The Hill social club.

We are always available to help. If you need additional support in your move and settling into the village, please let us know.

What you need to know

Ownership of Your New Home

The Sanderson Group Village operator (The Hill Pukekohe LP) holds legal title to the land and all homes within The Hill village.

You will be invited to purchase an Occupation Right Agreement (ORA) for your home (as prescribed in the Retirement Villages Act 2003 and Code of Practice).

We negotiate an agreed ‘Entry payment’ with you to acquire an Occupation Right Agreement (ORA) before you move in. The cost of this varies depending on the size and location of your home.

This ORA grants you the right to occupy your home for as long as you are able to safely live independently and grants you full access to all our communal facilities.

Your ORA will terminate when you leave the village or move into care.

Village Outgoings

A weekly Village Fee, (paid monthly) is charged to cover our operating costs such as rates, water rates, landscaping, facility maintenance, building insurance and so on. This fee is adjusted by CPI (Consumer Price Index) each year to give you certainty about your living costs.

You’ll be responsible for the private utility charges inside your home such as electricity, phone, internet, and personal contents insurance will be your responsibility.

Maintenance

Any repairs or maintenance inside your home is at your own cost.

Village Contribution

A Village Contribution Fee is charged to you or your estate for maintenance of your home and communal amenities. This amount is equal to 30% of your Entry Payment.

This fee is charged on your ‘Exit’ date.

If your Exit date is less than five years from your ‘Entry’ date, the Village Contribution will be discounted by 6% per year, calculated on a pro rata daily basis. For example, if your Exit date is one year after your Entry date, then your Village Contribution will be 30% less a discount of 24%.

Exit Payment Upon Resale

Following resale and settlement of your ORA, you or your estate will be refunded your entry payment (the amount paid to purchase the ORA), less your accrued Village Contribution Fee (and other miscellaneous costs, if any).

The village contribution is capped at a maximum of 30% of the amount paid to purchase the ORA.

However, if your ORA hasn’t been resold within 9 months of vacating the home, you will receive a Village Contribution rebate.

On-sell of your ORA including administration, marketing and refurbishment is free of charge (except where there is more than fair wear and tear to the home).

Your Safety and Support

If you would like an additional level of safety, you can arrange to have an emergency call button installed in your home, or you may also choose to wear a pendant around your neck, which connects you directly to a trusted third-party monitoring service. Their team will be available to assist and coordinate the right response should you ever need urgent help.

Continuity of care is very important to us. You will have priority access to any of our care facilities and advanced care services should these be required.

Communication Within the Village

We will keep you right up to date with all activities, news and developments within your new community with a regular newsletter which can be accessed electronically or delivered to your mailbox.

Family and Friends Staying

We predominantly build two bedroom homes so you can welcome your children, grandchildren and friends who wish to visit anytime of the year.

Your Pet

You’re welcome to bring your existing family pet with you. If you have more than one pet (or something large or unusual) please talk to us for approval. Replacement pets will only be allowed with our permission.

Our commitment to you

Changing Your Mind

If you change your mind within 15 working days of approving an ORA, we will cancel the agreement and refund your deposit in full.

This gives you the opportunity to change your mind if your circumstances change and you decide it is better if you do not proceed.

Village Contribution Payment Capped

The village contribution ‘payment’ is capped at 30% of the entry payment.

This fee among other things is your contribution to the ongoing maintenance and management of your home and the village community.

This will allow you to move to another independent living home (not including care suites) without incurring an additional contribution fee, unless that home has a higher value, in which case you only pay the difference between the two village contribution values.

No capital loss

We guarantee the amount repaid to you will not be affected by any decline in the value of your occupation right for the home.

This gives you certainty that you will not be exposed to any capital loss on resale of your occupation right for the home, regardless of the state of the housing market at the time.

Outgoings Payment Guarantee

We will not adjust the weekly fees by more than CPI (consumer price index) each year, regardless of any changes to the operating costs of the village. This gives you certainty about your living costs.

Continuity of Care

Continuity of care is also very important to us. We guarantee you will be granted priority access to our in house care facility once it has opened.

In the meantime we will give you priority access to any Sanderson Group care facility if you so choose.

You and your family have the peace of mind knowing that you have access to higher level of care through a Sanderson Group care facility should you require it.

Money Back Guarantee

We have full confidence that you will love being a part of The Hill community. However should your circumstances change and you wish to move out of your new home then we will provide a 6-month money back guarantee. We will resell your home and repay your entry payment in full.

You will have peace of mind knowing how confident we are that you will be more than happy with your decision to move into The Hill.

No hidden costs

We guarantee there are no hidden costs when we on-sell your occupation right for your home.

We will provide FREE of charge the services required to onsell your occupation right for the home, ie sales, administration, marketing, and refurbishment (except where there is more than fair wear and tear to the home).

Fees Stop Immediately

When you permanently move out and your home is available, your weekly fees and village contribution accruals stop.

We consider it our responsibility to cover these costs for you while we are in the process of onselling your ORA for your home.

Natural Disaster Guarantee

In the unlikely event that we could not rebuild the home you occupy following destruction of the home, we will pay back your entry payment with no deduction of village contribution.

This gives you certainty that you can move on following a natural disaster.

Family Values

We are a family owned company and are committed to upholding values like trust, honesty and compassion which we were raised to believe in.

This means you will be treated with courtesy and have your rights respected by us.

About Sanderson Group

Sanderson Group is a family-owned business established in 1987, and has over 30 years experience building and running luxury retirement villages.

Fraser Sanderson was a founding member of the New Zealand Retirement Village Association (RVA) and helped to set up the RVA’s original Code of Practice and Building Code. As a leader in the retirement village field, Sanderson Group continues to uphold the industry’s latest code of practice and all relevant legislation.

Today Sanderson Group are recognised as leaders in the luxury retirement market having developed and operated some of New Zealand’s most iconic retirement villages.

Our expertise and passion for building outstanding retirement villages with first-class communal facilities and quality aged care has completely changed the standard of retirement living in New Zealand.

Our villages are impeccably designed, enviably located and fastidiously executed, an ethos that has led us to set the standard in modern-day luxury retirement living. Our desire to deliver complete luxury to discerning buyers has seen

“If it’s not good enough for our family, it’s not good enough for yours”

us change the way retirement villages are developed in New Zealand.

A meticulous eye for detail and a knack for picking the very best locations mean Sanderson Group villages are widely regarded as market-leaders and innovators. We are proud of our track record so far, yet continually seek out ways to set new benchmarks.

In an industry often associated with corporations and multinationals, Sanderson Group stands alone as a family-owned, family-operated business. “If it’s not good enough for our family, it’s not good enough for yours” has always been a guiding principle for Sanderson Group.

That is why each Sanderson Group village has a high standard of quality and embraces a community connection that is simply unmatched.

Sanderson Villages Past & Present

The Pitau
Queenstown Country Club
Bayswater
Bethlehem Country Club
Matamata Country Club
Bethlehem Shores
Cascades
The Avenues
The Hill
Tamahere Country Club
Omokoroa Country Club
Omokoroa Country Estate

Turn static files into dynamic content formats.

Create a flipbook
Issuu converts static files into: digital portfolios, online yearbooks, online catalogs, digital photo albums and more. Sign up and create your flipbook.