2023/2024 Selected Works
Olanisimi Abimbola “ ”
A self-motivated and inquisitive BIM Architect with advanced experience in BIM modeling and design. Proficient in using Autodesk Revit, Navisworks, and BIM 360, I specialize in creating detailed, functional, and aesthetically compelling spaces. I am committed to driving project efficiency and sustainability through innovative design solutions and effective collaboration with high-performance teams
EDUCATION
Master of Science; Architecture
Caleb University | Lagos 10/2021 - 09/2023
Bachelor of Science; Architecture
Caleb University| Lagos. 09/2018 - 09/2021
WORK EXPERIENCE
Freelance Architect
Chronos Studeos (Collaboration with Benoy) 12/2023 - 06/2024, Revit: Remote
Design Architect
On site/ Line Art Design 03/2022 - 08/2023, Magodo Lagos
Furniture and Interior space fittings Achievements/Tasks
• Research and decide on materials and products sourcing
• Work closely with other designers, decorators, architects and Artisans
• Interpret and translate customer needs into rough plans
Junior Architect
On site/ Baron Architecture Yaba, Lagos. (07/2020 - 12/2020) Achievements/Tasks
• Helped plan and design buildings along with a team of Architects using Revit and BIM 360
• Studied the environmental impact of the construction process and work to mitigate any environmental risks.
• Created detailed plans for the construction project. Present drawings and plans for approval. using Revit




Gbagada, Lagos.
+234 9054 184 191
olanisimiabimbola@gmail.com
Abimbola-Samuel
SKILLS
• Advanced 3D modelling
• 2D and 3D BIM abilities
• Interior Design
• Realistic 3D rendering
• Organisation and administrative skills
• Site supervision and construction
• Teamwork abilities
• Research and critical analytical capabilities
• Intellectual creativity and detail-oriented
CERTIFICATE
• Revit: Remote Collaboration with BIM Collaborate Pro
• Autodesk Certified Professional: AutoCAD for Design and Drafting Exam Prep
• Learning Revit 2025
• Navisworks Essential training 2023
SOFTWARE
-Autodesk Revit -Navisworks
-Twinmotion - AutoCAD
-BIM 360 -Adobe Photoshop -Microsoft Powerpoint -Microsoft word & Excel

PORTFOLIO LINK
TABLE OF CONTENT
PROFESSIONAL
• Loft conversion
• Office renovation.
• The Proposed Restobar For Cocktail

ACADEMIC WORK
• Secondary School
• Caleb Guest house
• Museum
COMPETITON
• Ẹwà Ilẹ Èkó
INTERESTS
• Conceptual Models
• Wood works & Furniture Designs



Residential Development, Interior Renovation
Location: Danebury avenue Roehampton London
Project type: Residential Development
Firm: TIMTECHVILLE
Designed by : Olanisimi Abimbola
Date: August, 2022
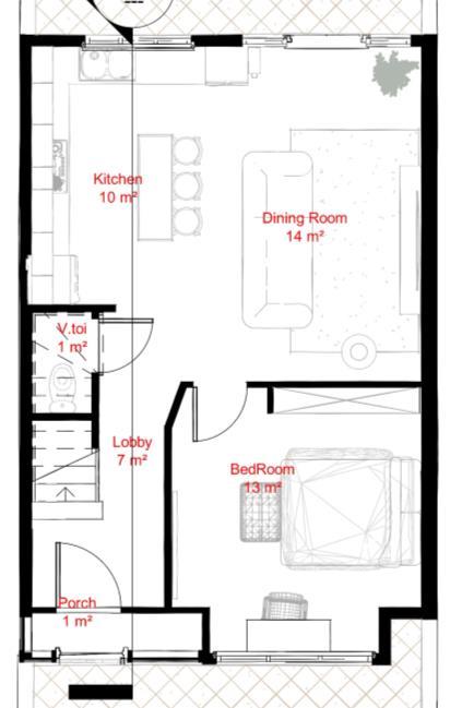
INTRODUCTION
The proposed interior renovation design philosophy embraces both aesthetics and functionality, ensuring that the newly renovated home not only dazzles the eyes but also enhances a daily living experience. Every detail, from the choice of color palettes to the selection of materials, are meticulously curated to harmonize with client lifestyle

DESIGN
Working along with the clients’ brief to maximise the Available space while making it functional and aesthetically pleasing
To achieve this, the existing partition wall will be demolished in other to link the Living space and the kitchenette together.


PROPOSED DESIGN






COMMERCIAL INTERIOR RENOVATION
Location: 8,Jubilee CMD, Lagos
Project type: Commercial
Firm: LineArt Design
Designed by : Olanisimi Abimbola
Date: June, 2023
INTRODUCTION
The office renovation for Data Analytics Privacy Technology Ltd (DAPT), it’ s not just designing the interiors; it’ s creating an environment that fosters growth and success This includes making a striking first impression with the reception area and designing collaborative spaces that inspire innovation Every inch of your office will reflect both functionality

DESIGN
The design concept is to emphasis on flexibility and balance where by a Tech office should easily interact And welcome every personnel in the office either staffs or client
A careful selection of wood materials, pattern and colour code were dewily considered during the design stage..








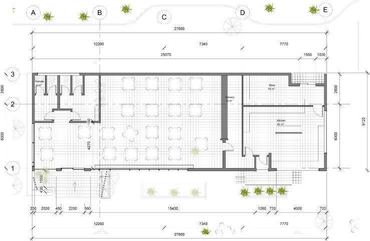
COMMERCIAL A RESTOBAR FOR COCKTAIL
Location: Iyaganku GRA, Ibadan.
Project type: Commercial
Firm: ARCHIFACT ASSOCIATES
Designed by : Olanisimi Abimbola
Date: March, 2023
INTRODUCTION
The Restobar design project, aim is beyond just creating a space for enjoying cocktails but crafting an immersive retreat where, from the instant customers enter, they'll encounter an atmosphere filled with fascination, a setting that fosters social interaction, and a cocktail experience that stands out from the rest




FLOOR PLAN

ROOF PLAN

SITE LAYOUT

EDUCATIONAL DEVELOPMENT DAY SECONDARY DESIGN
Location: Aga/Ijimu, Ikorodu 104101, Ikorodu, Lagos
Project type: EDUCATIONAL
Designed by : OLANISIMI ABIMBOLA
Date: July, 2023.
INTRODUCTION
The design of The Day Secondary School is simple and robust. The environmental design approach for the Building aims at maximizing naturally ventilated space This is mainly achieved by narrow floor plates allowing cross flow and an atrium with roof vents to enhance air movement

DESIGN
After a robust research and study, the issue of natural lighting and ventilation in schools and every other learning environment cannot be over emphasize The conceptual development of the design is to mimic the flow of air while considering the wind direction and sun light
The idea of the design is to show flexibility while and ensuring adequate fenestration in classrooms and help students learn in a healthy way





SITE PLAN

AXONOMETRIC VIEW
3d section










RESIDENTIAL DEVELOPMENT CALEB POST-GRADUATE HOSTEL
Location: Caleb University Imota Lagos.
Project type: Hostel
Designed by : Olanisimi Abimbola
Date: September, 2022.
INTRODUCTION
The design philosophy revolves around functionality and the well-being of the residents The living spaces was thoughtfully planned to promote productivity and relaxation The Common areas serves as hubs for intellectual discourse and camaraderie, fostering a sense of community among the students from diverse backgrounds


A from derived from the Fidget spinner

DESIGN
The Hostel-Inspired Fidget Spinner design concept aims to redefine the traditional hostel experience by providing an engaging and dynamic environment for the students while Combining comfort, connectivity, and community


A courtyard system is incorporated and 3 helical ramps. Site plan
The form transcends and designed to interact with the environment.




3D views


EDUCATIONAL /CULTURAL DEVELOPMENT MUSEUM
Project type: Building Structures (Bulk Active)
Designed by : Olanisimi Abimbola & Date: September, 2022.
INTRODUCTION
The bulk active structures is an example of Rigid building structure others are Form active structure, Vector active structure and Surface active structure. The project brief requires a Bulk active Structure which should incorporate dynamism ,flexibility and sustainably.

DESIGN
Bulk Active structure is classified as followed: Post and lintel Arch system
Dome and vault construction (either in the form of bulk, employing plastic materials i e concrete, hardening into a homogeneous mass or the thrust type, in which the loads are received and counterbalanced at definite points; steelglass skeleton system
There are various forms of Bulk active structures but the Geodesic form concept was adopted.









Èkó
(Beauty of Lagos’ Waste)
Location: Igando, Lagos
Project type: Industrial
Organizer: Nigerian Institute of Architects (NIA)
Position: First place
Designed by :Olanisimi Abimbola
Date: October 2021
DESIGN
What is and what should be for the next 25years to attain a metropolitan city of our dreams? Over the past decades, Lagos has advanced in aspects of education, hospitality, housing, and transportation. However, improvements in terms of sustainability and efficiency in waste management is yet to be fully attained. Lagos State has a population of 14,862,000, projected by the UN to increase annually by 3.44%. One of the hazards of its large population, is a poorly managed waste situation, resulting in environmental pollution
and degradation, blocked sewers (flooding), traffic, choked water bodies and economic devaluation. In tackling this, our design proposal, "ÉWÁ ÌLÈ ÈKÓ (Beauty of Lagos' Waste)“, is a waste management methodology, proposing a sustainable, efficient and self-reliant Waste Facility and a Waste Awareness Tourist Centre, for the improvement of collection, refining(sorting, reusing, recycling) and disposal of waste in Lagos State







THE PARADOX OF CLEANING DIRT.
The Paradox of cleaning dirt is a paradox generations have worked towards but still eludes many. ÉWÁ ÌLÈ
ÈKÓ (EIE) waste management facility doesn't only collect, refine and recycle waste but it provides public enlightenment to people coming in by watching the live process of which the facility works and learn other sustainable recyclable methods . The public then leaves with thoughts like "Now, I know how that my can of Coca-Cola was reused and I know how to reduce and repurpose little waste around my surroundings"
EIE serves as a point of attitudinal connection with how we, Lagosian, treat waste and nature. Therefore, leaving nature to retaliate with climate change among which is a flood, which leads to bad roads, traffic, and contaminated water causing illnesses.
EIE being a facility that produces close to zero greenhouse gases, 25 years from now, will be an Iconic, symbolic stand for a beautiful, clean, sustainable waste management system in Lagos state.

FURNITURE DESIGN & DETAILS
Location: Magodo
Project type: Furniture Design
Firm: LineArt Design
Designed by Olanisimi Abimbola :








CABINET DESIGN & DETAILS









Conceptual Model
Concept was gotten from the Zaozhuang Stadium Shandong, China.
Wave-Like Exterior
The façade has a dynamic, undulating shape, often described as wave-like, which gives the building a sense of movement and fluidity. This form reflects the idea of motion, fitting for a sports venue, while also harmonizing with the surrounding landscape, echoing natural elements like rivers.











SammyIngles THANK
YOU!