

Samantha LeDuc
PROFESSIONAL WORK PORTFOLIO
Work Samples
DraftingbySamanthaLeDuc
Alldrawingsareprovidedsolelyfordrafting, modeling,andtechnicalreferencepurposes.All projectsarethepropertyofPowersBrown Architecture.




Bayou City Dermatology
Type: Location: Size: Healthcare Webster,TX 11,452SF

















Quanex TI

Type: Location: Size: Workplace Houston,TX 13,489SF

















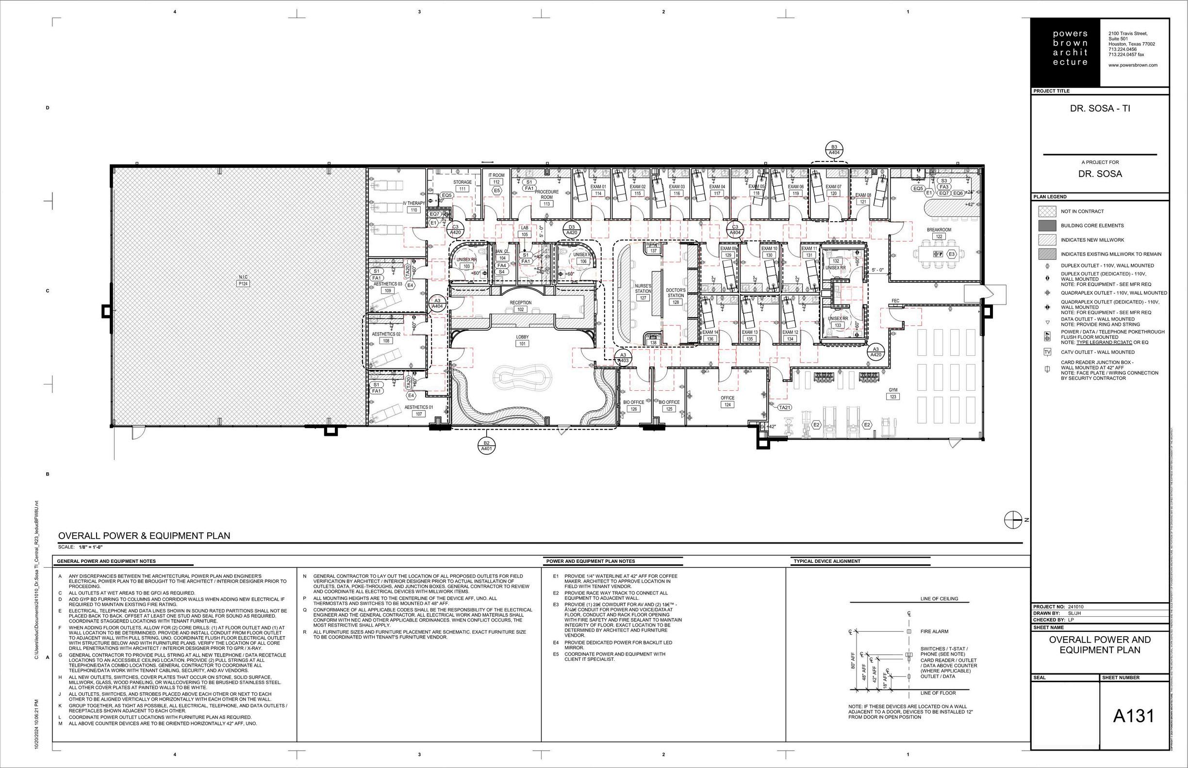
Dr. Sosa TI

Type: Location: Size: Healthcare Katy,TX 8,443SF




















