



![]()




Ouvert en 1909 et magnifiquement restauré, le Royal Savoy conjugue avec panache style Art nouveau et modernité.
196 chambres dont 175 chambres idéales pour des groupes de tailles diverses (en moyenne 30m² avec vue ville ou lac) et 28 suites (40 à 350m²); la plupart avec cuisine et chambre séparée.
Le bâtiment Savoy
Art Nouveau datant de 1909
Design interieur Contemporain Chic
Vue ville ou lac
Le bâtiment du Parc
Architecture Contemporaine
95 chambres disposant d’un balcon privé
3 Restaurants
Brasserie du Royal
Lobby Lounge & Lounge Bar
SkyLounge
Le Spa du Royal; 1500m² de bien être
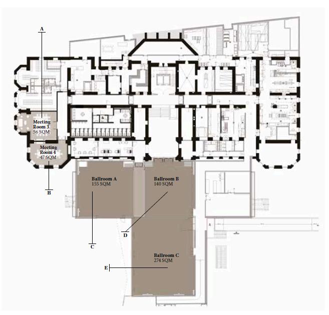
10 espaces dont 5 salles sous-commission et 2 grands espaces modulables (1200m²)
Situation centrale; à 2min du métro Délices

Située entre lac et montagnes, Lausanne séduit par son élégance naturelle, son esprit cosmopolite et son art de vivre à la suisse.
Ville d’histoire et de culture, de vin et de lumière, elle invite à la découverte et à la douceur de vivre au bord du Léman

Culture & Patrimoine
Perdez-vous dans le charme de la Vieille Ville et admirez la majestueuse Cathédrale de Lausanne, joyau du patrimoine gothique.
Ne manquez pas le célèbre Musée Olympique, à quelques pas seulement de notre hôtel.
Laissez-vous guider par un expert local à travers les superbes vignobles en terrasses du Lavaux, classés au patrimoine mondial de l UNESCO, et découvrez l histoire et la culture viticole de la région.
Nature & Évasion
Embarquez sur le Lac Léman à bord d’un bateau privé ou d un majestueux vapeur Belle Époque
Visitez le féerique Château de Chillon à Montreux particulièrement enchanteur au coucher du soleil.
Prenez le train panoramique GoldenPass ou un funiculaire pour rejoindre les montagnes et profiter de vues alpines spectaculaires.
Éveillez vos sens avec une dégustation de chocolat artisanal, où l’art et le savoir-faire suisse se rencontrent.



Hôtel pet-friendly – Vos compagnons à quatre pattes sont les bienvenus
Wi-Fi haut débit inclus dans tout l’établissement
Suites avec kitchenette – Pour un séjour flexible et autonome
Trois restaurants sur place – Cuisine variée et à toute heure
Transferts privés – Vers/depuis l’aéroport et autres destinations
Service de conciergerie 7j/7 – Rendez-vous médicaux, organisation d’activités, réservations… nous nous occupons de tout
Accès au spa et à la salle de fitness – Piscine, sauna, hammam et soins pour un bien-être complet

Notre chambre Deluxe Park View avec balcon est une oasis de tranquillité au Royal Savoy Lausanne. Conçue avec une élégance simple, profitez de la lumière naturelle et de la fraîcheur du jardin depuis le confort de votre balcon privé, l'endroit idéal pour se détendre et se relaxer.
De 29 à 47m²
Lits king-size, queen-size ou lits jumeaux
Douche à l'italienne et baignoire
Articles de toilette Aromatherapy
Machine Nespresso avec sélection de café et de thé
Service de turndown
Accès au fitness et au Spa
Carte de transports Lausannois


Acceptez une invitation à la quiétude et à la contemplation. Ecoutez le chant de la nature et laissez le temps suspendre son vol… L'aile Savoy occupe un élégant bâtiment de style Art Nouveau datant de 1909, qui présente un design intérieur chic et contemporain. Toutes les chambres et suites ont vue sur le lac ou sur la ville.
De 25 à 44m²
Lits king-size, queen-size ou lits jumeaux
Douche à l'italienne et baignoire
Articles de toilette Aromatherapy
Machine Nespresso avec sélection de café et de thé
Service de turndown
Accès au fitness et au Spa
Carte de transports Lausannois


Avez-vous déjà imaginé admirer le lac et les Alpes depuis le confort de votre lit ? Nos chambres avec vue sur le lac, tel un cocon, offrent une sensation de sérénité et de raffinement. Vous pouvez profiter d'une vue à couper le souffle à travers les fenêtres
orientées plein sud de votre chambre donnant sur le lac Léman à tout moment de la journée ou de la nuit.
De 25 à 44m²
Lits king-size, queen-size ou lits jumeaux
Douche à l'italienne et baignoire
Articles de toilette Aromatherapy
Machine Nespresso avec sélection de café et de thé
Service de turndown
Accès au fitness et au Spa
Carte de transports Lausannois


Ecrin pour vos amis et famille par excellence, la Savoy Suite avec vue lac prend des allures d'un espace de vie luxueux. Salle à manger et salon spacieux, lit king size, grand dressing, technologie de pointe: placez votre confort au sommet et suivez le fil de vos envies.
De 62 à 70m²
Lits king-size, queen-size ou lits jumeaux
Douche à l'italienne et baignoire
Articles de toilette Aqua Di Parma
Machine Nespresso avec sélection de café et de thé
Service de turndown
Accès au fitness et au Spa
Carte de transports Lausannois


Ecrin pour vos amis et famille par excellence, la Savoy Suite avec vue lac prend des allures d'un espace de vie luxueux. Salle à manger et salon spacieux, lit king size, grand dressing, technologie de pointe: placez votre confort au sommet et suivez le fil de vos envies.
De 56 à 70m²
Lis king-size ou lits jumeaux
Balcon ou terrasse
Douche à l'italienne et baignoire
Articles de toilette Aqua Di Parma
Machine Nespresso avec sélection de café et de thé
Service de turndown
Accès au fitness et au Spa
Carte de transports Lausannois


Alchimie parfaite entre modernité et splendeur d’antan, cette suite déploie un décor à la fois serein et fastueux. Vivez une expérience unique, aux carrefours des époques.
La légende du Royal Savoy est à vous.
122 m²
Lits king-size, queen-size ou lits jumeaux
Salle de bains en marbre avec baignoire hors sol et douche à l'italienne séparée, double vasque
Kitchenette entièrement équipée avec entrée séparée
Espace salon avec canapé
Salle à manger et table à manger
Bibliothèque
Articles de toilette Aqua Di Parma
Machine Nespresso avec sélection de café et de thé
Service de turndown
Accès au fitness et au Spa
Carte de transports Lausannois

350 m² de salons et chambres, 360° de terrasse: la Penthouse est la suite de tous les superlatifs. Exclusivité oblige, les hôtes bénéficient aussi d’un salon avec cheminée, d une salle de sport et d un spa privés, ainsi que d'une cuisine avec accès séparé pour le service.
Lits king-size, queen-size ou lits jumeaux
Salle de bains en marbre avec baignoire hors sol et douche à l'italienne séparée, double vasque
Kitchenette entièrement équipée avec entrée séparée
Espace salon avec canapé
Salle à manger et table à manger
Bibliothèque
Articles de toilette Aqua Di Parma
Machine Nespresso avec sélection de café et de thé
Service de turndown
Accès au fitness et au Spa
Carte de transports Lausannois


Notre SkyLounge est une luxueuse terrasse sur le toit offrant une vue panoramique sur la ville et le lac Léman. Ici, les invités peuvent déguster une sélection soigneusement choisie de cocktails, de vins fins et de délicieux plats tout en profitant des vues à couper le souffle.
Une expérience inoubliable, à n'importe quel moment de l'année. Cet espace peut accuellir jusqu’à 50 personnes.




La Brasserie du Royal est une adresse culinaire incontournable, mélangeant élégance simple et saveurs traditionnelles. Laissez-vous tenter par nos plats délicieux et découvrez notre menu saisonnier, préparé avec passion par notre Chef. Plongez dans une atmosphère luxueuse et partager ces moments de plaisir et de convivialité.
La Brasserie offre de nombreux espaces privatisables selon vos besoins.




Le Lobby Bar & Cigar Lounge du Royal Savoy Hôtel & Spa Lausanne possède une riche histoire datant du début du 20ème siècle, où il était un lieu de rencontre populaire pour les habitants locaux et les clients de l'hôtel. Aujourd'hui, le salon dispose d'une décoration élégante et moderne, ainsi que d'une vaste sélection de cigares et de spiritueux de qualité et d'un délicieux menu, ce qui en fait l'endroit idéal pour se détendre. Le Goûter du Royal : profitez d’une sélection de douceurs salées et sucrées, agrémentées d’une double crème et confiture maison, spécialement conçues par notre chef pâtissier.




Bienvenue au Spa du Royal Savoy, 1500m² de bien-être.
Laissez-vous transporter dans un monde de relaxation grâce à nos installations luxueuses, incluant sauna, hammam, piscine intérieure et extérieure chauffée, spa privé pour les femmes, ainsi que des espaces de détente, le tout complété par une salle de sport entièrement équipée. Nos thérapeutes expérimentés vous guideront dans un voyage de soins et de relaxation personnalisé, pour une expérience sur mesure qui vous laissera rafraîchi et revigoré.
5 cabines de traitement (1 suite, 2 simples et 2 doubles)




10 espaces dont 5 salles sous-commission et 2 grands espaces modulables (1200m²)
Gastronomie raffinée et du terroir
Large capacité d’accueil (jusqu’à 400 personnes)
Technologie de pointe
Offres événementielles personnalisables
Equipe dédiée à votre événement
Offres combinées avec séjours et loisirs
Tarifs de groupe préférentiels
Espaces bénéficiant de la lumière naturelle
Parking souterrain avec 153 places
Vous recherchez un lieu d’exception pour garantir le succès de vos réunions? Faites confiance à nos équipes d’experts pour vous accompagner dans la planification et la coordination de tous vos événements.
Des repas d’affaires à la Brasserie du Royal Menu du Marché (3 plats) à partir de CHF 65.-
Nos forfaits Séminaires (à partir de 20 personnes):
Forfait Conférence Journalier au tarif de CHF 140.- par personne
Forfait Conférence demi-journée au tarif de CHF 125.- par personne
Salle avec matériel de visio-conference tel qu’écran et beamer, sonorisation, micromain et flipchart
Large choix d’option: table d’accueil, piste de danse, vestiaire, décoration florale
Des cocktails et soirées de Gala dans des endroits uniques comme Les Jardins du Royal, le Sky Lounge ou encore le Salon Royal



















Les Jardins du Royal peuvent accueillir jusqu’à 400 personn un cocktail ou 120 personnes en théâtre
Le SkyLounge se privatise pour une soirée de 50 personnes possibilité de choisir entre la carte du SkyLounge, la carte c ou un menu sur demande.

reservations@royalsavoylausanne.com
marie-alice.scheibling@royalsavoylausanne.com events@royalsavoylausanne.com

Reservation: +41 (0) 21 614 88 88 Events: +41 (0) 21 614 88 66 Sales: +41 (0) 21 614 88 81 Direct: +41 (0) 76 840 81 82
Marie-Alice Scheibling Senior Sales Manager
ROYAL SAVOY HOTEL & SPA Avenue d'Ouchy 40 1006 Lausanne Switzerland






