



![]()




Opened in 1909 and beautifully restored, the Royal Savoy combines Art Nouveau style with modernity.
It features 196 guestrooms, including 175 guestrooms ideal for groups of various sizes (averaging 320 sqf with city or lake views) and 28 suites (600 to 3800 sqf), most with a separate kitchen and bedroom.
The Savoy Building
Art Nouveau dating from 1909
Chic Contemporary Interior Design
City or Lake view
The Park Building
Contemporary Architecture
92 guestrooms with private balconies
3 Restaurants
SkyLounge
Brasserie du Royal
Lobby Lounge & Lounge Bar
The Spa du Royal; 16 145 sqf of wellness
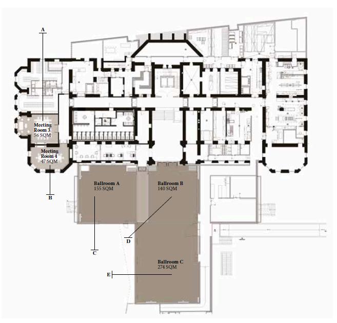
10 event spaces including 5 sub-commission rooms and 2 large modular spaces (13 000 sqf)
Central location; 2 minutes walking from the Délices metro station

Nestled between lake and mountains, Lausanne enchants with its natural elegance, cosmopolitan spirit, and distinctive Swiss art of living. A city of history and culture, of wine and light, it invites you to explore, unwind, and embrace the gentle rhythm of life along the shores of Lake Léman.

Lose yourself in the charm of the Old Town and admire the majestic Lausanne Cathedral, a true jewel of Gothic architecture.
Don’t miss the world-renowned Olympic Museum, located just a short stroll from our hotel.
Let a local expert guide you through the stunning Lavaux terraced vineyards, a UNESCO World Heritage Site, and uncover the region’s fascinating history and deep-rooted winemaking traditions.
Set sail on Lake Léman aboard a private boat or a magnificent Belle Époque paddle steamer.
Visit the fairytale Chillon Castle in Montreux especially magical at sunset.
Take the GoldenPass panoramic train or a scenic funicular ride into the mountains and enjoy breathtaking alpine views.
Awaken your senses with an artisanal chocolate tasting, where Swiss craftsmanship meets art.



riendly hotel – Your four-legged companions are more than welcome
-speed Wi-Fi included throughout the entire property
s with kitchenette – Enjoy a flexible and independent stay
e on-site restaurants – A variety of cuisine available at any time
te transfers – To/from the airport and other destinations
ierge service available 7 days a week – Medical appointments, activity ning, reservations… we take care of everything
ss to the spa and fitness center – Pool, sauna, hammam, treatments, and for complete relaxation and well-being

Our Deluxe Park View room with balcony is a tranquil oasis at the Royal Savoy Lausanne. Designed with elegant simplicity, enjoy natural light and garden freshness from the comfort of your private balcony, the perfect place to relax and unwind. Experience the ultimate in comfort and luxury during your stay with us.
From 310 to 505 sqf
King-size or twin beds
Rain shower or bathtub
Aromatherapy toiletries
Nespresso Machine with coffee and tea selection
Turn down service
Access to the fitness center and Spa Lausanne public transports pass


Your Savoy Executive room is an invitation to immerse yourself in tranquillity and contemplation. Listen to the song of nature and let time stand still. Savoy wing occupies an elegant Art Nouveau-style building dating from 1909, boasting elegant contemporary chic interior design, all rooms and suites are with lake views or city views.
From 270 to 475 sqf
King-size or twin beds
Rain shower or bathtub
Aromatherapy toiletries
Nespresso Machine with coffee and tea selection
Turn down service
Access to the fitness center and Spa
Lausanne public transports pass


Have you ever imagined admiring the lake and the Alps from the comfort of your bed?
Our cocoon-like lake view rooms provide a sense of serenity and refinement. You can enjoy a breathtaking view through the south-facing windows of your room overlooking Lake Geneva at any time of the day or night.
From 270 to 475 sqf
King-size or twin beds
Rain shower or bathtub
Aromatherapy toiletries
Nespresso Machine with coffee and tea selection
Turn down service
Access to the fitness center and Spa
Lausanne public transports pass


A perfect haven for your friends and family, the Savoy Suite with lake view takes on the feel of a luxurious living space. Spacious dining and living areas, king-size bed, large walk-in closet, cutting-edge technology: put your comfort first and follow the flow of your desires.
From 600 to 750 sqf
King-size bed or twin beds
Balcony or terrace
Walk-in shower and bathtub
Aqua Di Parma toiletries
Nespresso machine with a selection of coffees and teas
Turndown service
Access to fitness center and spa
Lausanne transport card


The ultimate setting for groups of friends and families. The Savoy lake view Suite feels very much like a luxurious home. Spacious dining and living room, king-size bed, large dressing room and state-of-the-art technology: enjoy peak comfort while indulging your every whim and fancy.
From 670 to 750 sqf
King-size or twin beds
Rain shower and bathtub
Acqua Di Parma toiletries
Nespresso Machine with coffee and tea selection
Turn down service
Access to the fitness center and Spa
Lausanne public transports pass


A perfect blend of modern amenities and the splendour of the past, the Royal Savoy Suite offers a serene and wonderful setting. Enjoy a unique experience, at the crossroads of time. The legend of the Royal Savoy Suite is yours to enjoy.
1315 sqf
King-size bed
Marble bathroom with freestanding bath and separate rain shower, double sink
Fully equipped kitchenette with separate entrance
Living area with sofa
Dining room and dining table
Library
Acqua Di Parma Amenities
Nespresso Machine with coffee and tea selection
Turn down service
Access to the fitness center and Spa
Lausanne public transports pass


The views are outstanding, and the spaciousness remarkable, the three-bedroom Penthouse spans 3800 sqf with a 360° terrace. It is ideal for those who prioritise privacy and stylish living, with a spa that includes Hammam, Sauna and a wellequipped gym. There’s a staff kitchen and private dining seating for 10.
King-size bed
Marble bathroom with freestanding bath and separate rain shower, double sink
Fully equipped kitchenette with separate entrance
Living area with sofa
Dining room and dining table
Library
Acqua Di Parma Amenities
Nespresso Machine with coffee and tea selection
Turn down service
Access to the fitness center and Spa
Lausanne public transports pass

Our SkyLounge is a luxurious rooftop terrace that boasts panoramic views of the city and Lake Geneva. Here, guests can enjoy a curated selection of cocktails, fine wines, and delectable bites, all while taking in the breathtaking surroundings.
The lounge offers an unforgettable experience, perfect year round. It has a capacity of 50 pax for private events.




The Brasserie du Royal is an essential culinary destination, blending simple elegance and traditional flavors. Indulge in our delicious dishes and discover our seasonal menu, passionately prepared by our Chef. Immerse yourself in a luxurious atmosphere and share these moments of pleasure and conviviality.




The Lobby Bar & Cigar Lounge at Royal Savoy Hotel & Spa Lausanne boasts a rich history dating back to the early 20th century, when it was a popular meeting place for locals and hotel guests. Today, the lounge features modern furnishings, elegant décor, and an extensive selection of cigars and fine spirits, including a delicious menu, making it the perfect place to unwind and indulge in luxury. The 'Goûter du Royal': let’s relax and enjoy a delicious selection of delicacies from the in-house sweet patisseries or savoury snacks.




Welcome to the Spa du Royal, where 16 145 sqf are dedicated to wellness. Indulge in our luxurious spa treatments and unwind in our serene facilities, including a sauna, steam room, heated indoor and outdoor pools, private zone for women, and relaxation areas and fully equipped gym. Our expert therapists will guide you on a journey of rejuvenation and relaxation, leaving you feeling refreshed and revitalized.
5 treatment rooms (1 suite, 2 singles and 2 doubles)



10 Event Spaces
5 breakout rooms and 2 large flexible spaces (13 000 sqf)
Refined and Local Cuisine

Large Capacity: Up to 400 people
State-of-the-Art Technology
Customizable Event Packages
Dedicated Event Team
Combined Offers with Stays and Leisure Activities
Preferred Group Rates
Spaces with Natural Light
Underground Parking with 153 Spaces
Are you looking for an exceptional venue to elevate your meeting to a true success?
Leave it to our team of experts who will plan, anticipate and deliver every component of your meeting, no matter the size or the complexity.
Business Lunch at la Brasserie du Royal
“Menu du Marché” (3-courses) from CHF 65.-
Our Delegate Rate (from 20 pax):
Daily Delegate Rate at CHF 140.- per pax
Delegate Rate at CHF 125.- per pax
Meeting room equipped with videoconferencing technology, including a screen and beamer, sound system, handheld microphone, and flipchart.
Wide selection of options: welcome table, dance floor, cloakroom, floral decoration
Cocktails and Gala events in our unique locations such as The Royal Gardens, the Sky Lounge, the Salon Royal



















The Royal Gardens can accommodate up to 400 peopl cocktail reception or 120 people in a theater setup.
The Sky Lounge can be reserved for an evening with 50 peop the option to choose from the Sky Lounge menu, a canapé m a customized menu upon request.

danica.sterjov@royalsavoylausanne.com events@royalsavoylausanne.com


Danica Sterjov Business Development Executive
1006 Lausanne Switzerland





