Anneks og garasjer fra Røroshytta

Page 1


ANNEKS OG GARASJER

KJENT FOR SINE VAKRE TØMMERHYTTER

NÅR KUNDETILPASNING ER STANDARD

Vi legger vekt på at kunden skal få mulighet til sette sitt preg på prosjektet. Dette kan være vindusplassering, planløsning, overbygget areal, takvinkel eller mønehøyde.

Vi har lang erfaring med å finne gode løsninger sammen med våre kunder. Løsninger som blir kvalitetssikret mtp. reguleringsbestemmelser og andre offentlige og tekniske krav til eks. brannsikkerhet, lysinnslipp og tilgjengelighet. OM OSS

Røroshyttas stramme og tidløse arkitektoniske stil har tydelige referanser til den gamle byggeskikken du finner i Rørosområdet.

Vi ligger rett ved Røros Bergstad og vår historie er sammenvevd med gruvehistorien. Vi er stolte av å forvalte en del av Rørostradisjonen.

Røroshytta har 60 års erfaring med laft. Bildet til venstre viser utstillinga av den første Røroshytta på Rørosutstillingen i 1963.

I dag leverer vi både hytter og hus i moderne bo- og byggestandard i tradisjonsrikt laft og bærekraftig tømmer.

TILPASNING

TEKNISK

VIDEREUTVIKLING AV TRADISJONEN FRA TØMMERBYEN RØROS

I vakre, værharde omgivelser har generasjoner bodd i de laftede tømmerhusene som utgjør Røros Bergstad.

Vi har kombinert vår erfaring med laft med nåtidas kunnskap. I samarbeid med SINTEF har vi utviklet en laftemetode med dokumentert bedre lufttetthet og motstand mot inntrenging av vann.

Høy byggeteknisk kvalitet

Sintef-utviklet laftemetode

Et bygg som puster

Tømmer stabiliserer luftfuktighet og magasinerer varme

Naturlig materiale

Vegger av heltre - tvers gjennom

Lang levetid

Lite vedlikehold og gjenvinnbart

Bærekraftig

Tømmerveggene lagrer karbon

Anneks

Praktiske løsninger for ekstra plass på tunet

ANNEKS 16

ENKELT

Et enkelt, lite anneks med ett oppholdsrom. Inngang på gavlvegg som skjermes av takutstikk.

Det er plass til en dobbeltseng og sittemøblement, eller dobbeltseng og familiekøye.

TEKNISK

BRA: 14 M 2

BYA: 16 M 2

LENGDE: 4,7 M

BREDDE: 3,5 M

ANNEKS 28

INNHOLDSRIKT OG AREALEFFEKTIVT

TEKNISK

BRA: 25 M 2

BYA: 28 M 2

LENGDE: 7,4 M

BREDDE: 3,8 M

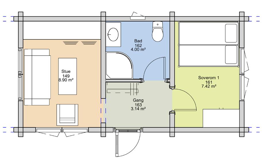
Et innholdsrikt anneks med to rom og bad.

Praktisk vindfang.

Stuen kan også innredes som soverom.

ANNEKS 29

ANVENDELIG OG NETT

TEKNISK

BRA: 25 M 2

BYA: 29 M 2

LENGDE: 7,4 M

BREDDE: 3,8 M

Et harmonisk eksteriør med takoverbygg over inngangen. Dette annekset har to oppholdsrom.

Takoverbygget ved inngangen gir en hyggelig, skjermet plass for morgenkaffen.

ANNEKS 30 SMART

TEKNISK

BRA: 27 M 2

BYA: 30 M 2

LENGDE: 6 M

BREDDE: 5 M

Dette praktiske annekset/gjestehuset inneholder oppholdsrom, soverom og bad. Annekset har et pent, overbygget inngangsparti.

Bygget i Smartlaft som kombinerer laft og bindingsverk med en takstol-konstruksjon.

ANNEKS 49

ROMSLIG GJESTEHUS

TEKNISK

BRA: 44 M 2

BYA: 49 M 2

LENGDE: 9,6 M

BREDDE: 5,1 M

Med sine to soverom, oppholdsrom og bad kan dette annekset komfortabelt huse en liten familie.

Annekset har et praktisk og sjarmerende lite overbygg ved inngangen. Du får dessuten et kjekt, lite vindfang.

Som tilvalg kan annekset settes opp som en selvstendig enhet med kjøkkenfasiliteter.

Garasje Ly til bilen - og litt til

GARASJE 36

ENKELGARASJE MED BOD

Enkel garasje med bod i bakkant. Klassisk uttrykk med tradisjonslaft og takåser.

Egen inngangsdør til boden og videre inn i garasjen.

Bygget har naturlig isolerende tømmervegger og isolerende torvtak-konstruksjon.

Enkel garasje med ‘isolert’ bod.

TEKNISK

BRA: 32 M 2

BYA: 36 M 2

LENGDE: 8,3 M

BREDDE: 4,3 M

GARASJE 36 SMART

ENKELGARASJE MED BOD

TEKNISK

BRA: 32 M 2

BYA: 36 M 2

LENGDE: 8,3 M

BREDDE: 4,3 M

Enkel garasje med bod i bakkant. Smartlaft er en rimeligere variant med bindingsverk oppe i gavlen og takstol-konstruksjon.

Egen inngangsdør til boden og videre inn i garasjen.

Som tilvalg kan garasjen leveres med isolasjon i tak og gavl.

GARASJE 48 SMART

DOBBELGARASJE

TEKNISK

BRA: 44 M 2

BYA: 48 M 2

LENGDE: 7,7 M

BREDDE: 6,3 M

Dobbelgarasje med god plass. Inngangsdør på siden for enkel atkomst til fots.

Av byggetekniske årsaker er denne garasjen bygget med takstol-konstruksjon med bindingsverk oppe i gavlen i Smartlaft.

Som tilvalg kan garasjen leveres med isolasjon i tak og gavl.

Hvor skal hytta bygges? Reguleringsbestemmelsene har stor påvirkning.

Hva slags hyttemodell vil dere ha? Vi justerer ofte på standardmodell etter kundens behov.

Du kan velge mellom ulike leveransegrader.

Se mer info på neste side.

Du kan velge til andre interiørog eksteriørløsninger enn det som ligger i standard.

Avhenger i stor grad av ferdigstillelsgrad. Byggesøknad må være godkjent før igangsettelse.

Tomta gjøres klar med grunnarbeid før byggestart. Etter en byggeperiode er hytta klar!

FERDIGSTILLELSESGRAD

BYGGESETT

Dette er en løsning hvor du får hytta levert som byggesett på byggeplass.

Som selvbygger gjør du en egeninnsats praktisk og/eller som prosjektleder.

Kjøpet følger Forbrukerkjøpsloven.

FERDIG OPPSATT UTVENDIG

Du får overlevert hytta ferdig oppsatt, tett utvendig og klar for innvendig arbeid. Kjøpet følger Bustadoppføringslova.

Iom. at vi leverer laft, så blir innvendige vegger montert samtidig med de utvendige veggene.

NØKKELFERDIG

Vi eller vår samarbeidspartner gjør bygget klar til innflytting. Alt er inkludert over støpt plate. Dere har kun én kontraktspart og kjøpet følger Bustadoppføringslova.

Våre priseksempler tar utgangspunkt i en ferdig støpt betongplate og et standard materialvalg.

Vi kan også levere kun tømmer og takåser - se mer informasjon om denne leveransen i prislisten.

Prislist e a nn eks og ga ra sjer 202 5

inkl. mva.

Rev. juli 2025

Modell

Anneks 16

Anneks 28

Anneks 29

Anneks 49

SMART Anneks 30

Garasje med bod 36

SMART Garasje med bod 36

SMART Dobbelgarasje 48

Tømmeer r og takåserr/takstoler

Byggessett uten n innvendige materialer Byggessett meed d i innnvvenddige materialer

Alle priser er eksklusive montering og frakt fra vårt produksjonslokale på Røros.

Vi anbefaler at alle våre bygg monteres av eller under ledelse av person(er) med byggefaglig bakgrunn og kjennskap til laft/bygg i tømmer for å sikre at bygget blir rett, tett og trygt oppført.

Leveransen 'tømmer og takåser/-takstoler' inneholder kun dette, samt følgende nødvendig monteringsmateriell for tetting og stabilisering av tømmerkassa:

Tettelister for yttervegg og knuter, dømlinger (treplugger), spesialskruer for sikring og S-list under svillestokk.

Takåser eller takstoler er avhengig av modell.

Inkluderer ikke montering/oppføring. Monteringsanvisning følger.

Et byggesett er materialer, bla. tømmer, takåser, monteringsmateriell, fôringer, vinduer, dører og omramminger.

Inkluderer ikke montering/oppføring av byggesettet. Monteringsanvisning følger.

A An dre leverin gsgr ader

Ta kontakt hvis du ønsker prisestimat på andre leveransegrader som tett bygg ferdig montert utvendig eller nøkkelferdig bygg.

KONTAKT OSS FOR EN HYTTEPRAT

Vi har også et rikholdig arkiv av kundevarianter som kanskje møter dine behov. Ta kontakt!

Turn static files into dynamic content formats.

Create a flipbook
Issuu converts static files into: digital portfolios, online yearbooks, online catalogs, digital photo albums and more. Sign up and create your flipbook.
Anneks og garasjer fra Røroshytta by Røroshytta - Issuu