

![]()




Bij Reynaers Aluminium geloven we dat de beste resultaten ontstaan uit sterke samenwerkingen. Daarom staan we niet alleen bekend om onze innovatieve oplossingen in aluminium, maar vooral om onze nauwe betrokkenheid bij elke partner.
Met ons uitgebreide ecosysteem van producten, technische ondersteuning, marketingtools en persoonlijke begeleiding helpen we jou om projecten naar een hoger niveau te tillen. Van eerste idee tot realisatie: we luisteren, denken mee en bouwen samen aan duurzame, kwalitatieve oplossingen die het verschil maken.
Bezoek de website van Reynaers Aluminium vandaag nog
Op zoek naar de nieuwste informatie over onze producten en services? Op onze website vind je het antwoord op al je vragen.
Scan de QR-code, neem een kijkje op www.reynaers.be en ga aan de slag.
Als Reynaers Group ontwikkelen, distribueren en commercialiseren we innovatieve en duurzame schrijnwerkoplossingen in aluminium en staal. Onze groep bestaat uit Reynaers Aluminium en Forster, en is wereldwijd actief in meer dan 70 landen met meer dan 2650 medewerkers.
Ons motto 'Together for better' weerspiegelt de kern van ons Belgische familiebedrijf: samen streven we naar betere, duurzamere oplossingen. Binnen Reynaers Group bepalen we het strategische kader voor al onze entiteiten, waarbij klantgerichtheid en duurzaamheid centraal staan.
• Aluminium & stalen profielen
• Isolatiestrips
• Accessoires
Research & Development
• Productontwerp
• Testen
• Certificering
• Industrie 4.0
OPERATIONS
• Profielisolatie
• Oppervlaktebehandeling (aluminium)
• Logistiek
We onderscheiden ons als systeemhuis door sterke R&D, operationele uitmuntendheid en langdurige relaties met betrouwbare leveranciers. Zo creëren we geteste en goedgekeurde bouwonderdelen die een leven lang meegaan.
Ons bedrijfsmodel is tweeledig: enerzijds werken we nauw samen met een netwerk van partnerfabrikanten die op hun beurt architecten, aannemers en ontwikkelaars bedienen. Anderzijds verdiepen we actief onze relaties met stakeholders in de bouwsector, om hen beter te begrijpen, professioneel te begeleiden en te inspireren. Met ons ecosysteem van hoogwaardige producten, services, tools en marketingondersteuning helpen we onze partners om te groeien.
ARCHITECT
AANNEMER
FABRIKANT
• Verkoop
• Montage
• Plaatsing
INGENIEURSBUREAU
INVESTEERDER
EINDGEBRUIKER
• Ramen & deuren
• Schuifsystemen
• Glasgevels
• Randsystemen
Sinds 1965 zijn we bij Reynaers Aluminium koploper in het ontwerpen en ontwikkelen van innovatieve schrijnwerksystemen van hoge kwaliteit. Onze aluminium ramen, deuren, schuifsystemen en glasgevels behoren wereldwijd tot de meest vertrouwde oplossingen onder bouwprofessionals.
Samen met onze partners zetten we ons elke dag in voor betere leef- en werkomgevingen, nu en voor toekomstige generaties. In onze eigen testfaciliteiten worden onze systemen continu getest en geoptimaliseerd. Dankzij onze voeling met markttrends en technologische evoluties bieden we oplossingen die écht het verschil maken: eenvoudig te monteren, vlot te installeren en afgestemd op de uitdagingen van vandaag – zoals het tekort aan ervaren vakmensen in de bouw.
Duurzaamheid staat centraal in alles wat we doen. We maken gebruik van koolstofarme, recycleerbare materialen en nemen onze verantwoordelijkheid om een positieve impact te creëren, samen met onze gemeenschap.
Together for better is meer dan een motto –het is onze belofte. We willen een betrokken en betrouwbare partner zijn voor fabrikanten, architecten en andere bouwprofessionals. Vanuit onze familiewaarden kiezen we voor transparantie en samenwerking, met als doel het best mogelijke resultaat bij elk project, groot of klein.
Naast performante producten bieden we onze partners ook praktische digitale tools, opleiding op maat en ondersteuning op mensenmaat. We helpen hen hun processen te stroomlijnen en efficiënter te werken, en brengen hen via ons professionele netwerk in contact met nieuwe opportuniteiten.
15 3 5 9 4
distributiecentra
isolatiesites testcentra trainingscentra sites voor oppervlaktebehandeling partnerfabrikanten wereldwijd
De Reynaers Campus in het Belgische Duffel is ons hoofdkantoor, een warme werkomgeving waar meer dan 600 collega’s van Reynaers Group aan de slag zijn. Dit is ook de plek waar onze partners onze nieuwste producten en innovaties op een interactieve manier kunnen ontdekken.
De Campus bestaat uit meerdere ‘expertisecentra’. In het Experience Centre ontdek je ons unieke gamma Reynaers Aluminium- en Forster-systemen in één inspirerende showroom.
En in de Avalon Virtual Reality Room word je pas echt ondergedompeld in jouw visie: hier visualiseer je je toekomstige projecten al voordat de eerste steen gelegd is.
In het Technology Centre stellen we onze systemen op de proef om te verzekeren dat ze aan de strengste internationale comfort-, veiligheids- en duurzaamheidsnormen voldoen. Bovendien deelt ons professionele trainingsteam hun vaardigheden en kennis met ons netwerk van vakmensen en andere medewerkers, zodat iedereen onze aluminium systemen tot in de kleinste details kent.
De Reynaers Campus is onze thuisbasis, en we heten je er welkom als lid van onze Reynaers Aluminium-familie.

Onze
Wil je meer weten over onze testfaciliteiten, Avalon of ons trainingsaanbod? Lees het hoofdstuk over ons ecosysteem van professionele diensten vanaf pagina 120.
Onze aluminium systemen voldoen aan de strengste normen op het vlak van comfort, veiligheid, design en energie-efficiëntie.
Geen toeval dus dat ze wereldwijd worden toegepast – van stijlvolle privéwoningen tot indrukwekkende, iconische bouwprojecten.
Innovatie zit in ons DNA. Al decennialang breiden we ons assortiment systematisch uit om zowel bouwprofessionals als particuliere klanten te ondersteunen in het realiseren van hun architecturale ambities. Door actief te luisteren naar hun behoeften, hebben we een uitgebreid portfolio opgebouwd van gebruiksvriendelijke, esthetische en betrouwbare systemen die ontworpen zijn om generaties mee te gaan.
In dit hoofdstuk bundelen we de productinformatie van onze populairste systemen en hun belangrijkste varianten. Ontdek de uiteenlopende designmogelijkheden, vergelijk prestaties en vind de oplossing die perfect aansluit bij de vereisten van je volgende project.
Zoek en vergelijk onze producten online Wil je de actuele productgegevens van meerdere systemen met elkaar vergelijken? Onze online zoektool helpt je op weg. Scan de QR-code om naar de zoekfunctie op www.reynaers.be/producten te gaan.
Op zoek naar een specifieke veiligheidsoplossing?
Ontdek onze brandwerende en kogelvrije raam- en deursystemen, waaronder de nieuwe brandwerende FlameLine-deur, in het hoofdstuk Veiligheid vanaf pagina 60.

Misionieriu Namai, Vilnius, Litouwen
Architect: DO ARCHITECTS
MasterLine 8-HI, MasterLine 8-HV, ConceptWall 50-HI

MasterLine 8

MasterLine 10






CUBIC

FERRO

CLASSIC




OPBOUWSCHARNIEREN

VEILIGHEIDSVARIANTEN



Inbraakwerend RC2
Inbraakwerend RC3
Brandwerend
DUURZAAMHEID
Passive House Institute gecertificeerd onderdeel
Minergie-label


Gecertificeerd onderdeel Niveau*
Gecertificeerd Gecertificeerd
Cradle to Cradle Brons Brons Brons Brons Brons Brons
Gerecycleerde thermische onderbreking
EPD beschikbaar
MINIMALE AANZICHTBREEDTE KADER/VLEUGEL
PRESTATIES

Isolatie kleinste kader-/ vleugelgedeelte (Uf-waarde ≥ …)

Luchtdichtheidsklasse (waarde in Pa)

Klasse weerstand tegen windbelastingC5

De prestaties en eigenschappen variëren naargelang de afmetingen, profielsamenstellingen, materialen en invulling.
* Dit systeem kan Passive House energieniveaus bereiken, maar is niet gecertificeerd.
Controleer CE-pas voor de recentste gegevens
Een milieuproductverklaring (Environmental Product Declaration - EPD) is een door een externe partij gecertificeerde, internationaal erkende bekendmaking van de impact die een product op het milieu heeft gedurende de hele levenscyclus. EPD’s worden vrijwillig opgesteld en zijn een transparante bron waarmee je makkelijk de milieuprestaties van verschillende producten vergelijkt.
Consulteer de EPD's van onze systemen op de website: www.reynaers.be/epd
VEILIGHEIDSVARIANTEN



Inbraakwerend RC2
Inbraakwerend RC3
Brandwerend
DUURZAAMHEID
Passive House Institute gecertificeerd onderdeel Niveau*
Minergie-label


Gecertificeerd onderdeel
Gecertificeerd onderdeel
Gecertificeerd Gecertificeerd
Cradle to Cradle Brons Brons Brons Brons Brons Brons Gerecycleerde thermische onderbreking
EPD beschikbaar
MINIMALE AANZICHTBREEDTE KADER/VLEUGEL
PRESTATIES ***

Isolatie kleinste kader-/ vleugelgedeelte (Uf-waarde



Klasse weerstand tegen
belasting
* Dit systeem kan Passive House energieniveaus bereiken, maar is niet gecertificeerd.
** Alleen paneeldeur
*** Alle naar binnen opendraaiende deuren
Controleer CE-pas voor de recentste gegevens

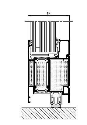
Superieure isolatie, design voor elke stijl
Duurzaam (ver)bouwen begint bij een goede isolatie. Het MasterLine 8-raamsysteem biedt uitmuntende prestaties op vlak van thermische isolatie, lucht- en waterdichtheid — en dat met een slanke inbouwdiepte van slechts 8 cm.
Dankzij drie isolatieniveaus (standaard, hoge isolatie en hoge isolatie+) is MasterLine 8 geschikt voor renovaties tot passiefbouw.
Met vier designvarianten (Functional, Renaissance, Deco en Hidden Vent) past het systeem bovendien moeiteloos bij elke architectuurstijl.


EIGENSCHAPPEN
Min. aanzichtbreedte naar binnen opendraaiend raam
Min. aanzichtbreedte naar binnen opendraaiende raam-deur
Totale systeemdiepte raam

Thermische isolatie (Uf)


Akoestische prestaties (Rw (C; Ctr))
Luchtdichtheid








Standaard: Uf-waarde tot min. 1,7 W/m²K
HI: Uf-waarde tot min. 1.3 W/m²K
HI+: Uf-waarde tot min. 1.0 W/m²K
TuTi: 46 (-1; -3) dB DC: 44 (-2; -4) dB
Pa (klasse 4)
Weerstand tegen windbelasting 2000 Pa (klasse C5)
Waterdichtheid 900 Pa (klasse E900)
Inbraakwerendheid
(-1; -5)
Pa (klasse 4)
Pa (klasse C4)
1200 Pa (klasse E1200)
2 + RC 3 RC 2 (EN 1627)
Varso 1 & 2, Warschau, Polen
Architect: Hermanowicz Rewski Architekci (HRA)





Min. aanzichtbreedte raam
Totale systeemdiepte raam






Thermische isolatie (Uf)
Akoestische prestaties (Rw
Luchtdichtheid
Weerstand tegen windbelasting
Tot
Pa (klasse 4) Tot
Pa (klasse 4)
Tot
Pa (klasse 4)
Tot 2000 Pa (klasse 5) Tot 2000 Pa (klasse C5) Tot
Tot
Pa (klasse 4)
Pa (klasse C4) Tot 1200 Pa (klasse C3) Waterdichtheid Tot
Het masterLine 8-deursysteem staat garant voor uitstekende thermische prestaties, lucht- en waterdichtheid, in combinatie met een beperkte inbouwdiepte van 8 cm.
Met drie isolatieniveaus (standaard, hoge isolatie, hoge isolatie+) en drie designvarianten (Functional, Renaissance, Deco) sluit dit deursysteem moeiteloos aan bij elke architectuurstijl — van modern tot klassiek.


EIGENSCHAPPEN
Min. aanzichtbreedte deur (naar binnen opendraaiend)
Totale systeemdiepte raam



Akoestische prestaties (Rw (C; Ctr))



Weerstand tegen windbelasting
Waterdichtheid
Inbraakwerendheid
for



Pa (klasse 9A)
Pa (klasse 8A)
De prestaties en eigenschappen variëren naargelang de afmetingen, profielsamenstellingen, materialen en invulling.
Pa (klasse C3)
Pa (klasse 4A)



EIGENSCHAPPEN
Min. aanzichtbreedte deur (naar binnen opendraaiend)
Totale systeemdiepte raam
Max. vleugelhoogte
Max. vleugelgewicht
Sponninghoogte
Glasdikte Vleugel






Thermische isolatie Uf tot min. 1.5 W/m²K
Akoestische prestaties (Rw (C; Ctr))
Luchtdichtheid 600 Pa (klasse 4)
Weerstand tegen windbelasting 1200 Pa (klasse C3)
Waterdichtheid
Inbraakwerendheid
Pa (klasse 4A)
Standaard: Uf tot 1.4 W/m²K
Passief: Uf tot 0.8 W/m²K
Pa (klasse 4)
Pa (klasse C2)
Pa (klasse 7A)
Voldoet aan de strengste passiefbouwnormen
MasterLine 10-ramen zijn speciaal ontwikkeld voor passiefbouw en dragen het Passive Housecertificaat. Dankzij een inbouwdiepte van 10 cm en uitzonderlijke prestaties op vlak van thermische isolatie, lucht- en waterdichtheid voldoet dit systeem moeiteloos aan de strengste energienormen.
Met vier designvarianten (Functional, Renaissance, Deco en Hidden Vent) biedt
MasterLine 10 een passende oplossing voor elk type architectuur, van landelijk tot modern.





Min. aanzichtbreedte raam (naar binnen opendraaiend)
Min. aanzichtbreedte raam-deur (naar binnen opendraaiend)
Totale systeemdiepte raam






Thermische isolatie (Uf)
Akoestische prestaties (Rw (C; Ctr))
Luchtdichtheid
Weerstand tegen windbelasting
Waterdichtheid
Tot 600 Pa (klasse 4)
Tot 1600 Pa (klasse C4)
Tot 900 Pa (klasse E900)
Inbraakwerendheid RC 2 +
De prestaties en eigenschappen variëren naargelang de afmetingen, profielsamenstellingen, materialen en invulling.
Tot 600 Pa (klasse 4)
Tot 2000Pa (klasse C5)
Tot 900 Pa (klasse E900)
2
Voldoet aan de strengste passiefbouwnormen
Wie passief of extreem energiezuinig wil bouwen, kiest voor MasterLine 10. Dit deursysteem combineert uitstekende thermische en luchtdichte prestaties met een inbouwdiepte van 10 cm, ideaal voor de strengste isolatienormen.
Dankzij het moderne, vlak afgewerkte
Functional design past MasterLine 10 moeiteloos in elke eigentijdse bouwstijl.
EIGENSCHAPPEN
Min. aanzichtbreedte deur (naar binnen opendraaiend)
Totale systeemdiepte raam
Sponninghoogte
Glasdikte



Kader tot 78 mm tot
Vleugel tot 88 mm tot






Thermische isolatie (Uf) Tot min. 0.85 W/m²K
min. 0.99 W/m²K
Akoestische prestaties (Rw (C; Ctr)) - 40 (-1; -3) dB
Luchtdichtheid
Weerstand tegen windbelasting
Waterdichtheid
Inbraakwerendheid
Tot 600 Pa (klasse 4)
Tot 1200 Pa (klasse C3)
Tot 600 Pa (klasse 9A)
RC 2
Tot 600 Pa (klasse 4)
Tot 1200 Pa (klasse C3)
Tot 600 Pa (klasse 9A)
RC 2
‘Less is more’ vat de architecturale trends van vandaag treffend samen. SlimLine 38 speelt hierop in met ultraslanke profielen met een aanzichtsbreedte van slechts 38 mm: ideaal voor fijn geprofileerde ramen.
SlimLine 38 bootst het uitzicht van stalen ramen na, het geeft als het ware een ‘steel look’. SlimLine 38 ramen zijn verkrijgbaar in drie isolatieniveaus (standaard, hoge isolatie en hoge isolatie +) en vier designvarianten: Functional, Classic, Cubic en Ferro – geschikt voor elke architecturale stijl, van industrieel tot pastorij.

EIGENSCHAPPEN
Min. aanzichtbreedte (naar binnen opendraaiend raam)
Min. aanzichtbreedte (naar binnen opendraaiend) glazen deur
Totale systeemdiepte raam
Sponninghoogte Glasdikte

Thermische isolatie (Uf)










Kader Vleugel
Kader Vleugel
Kader Vleugel
Akoestische prestaties (Rw (C; Ctr))
Luchtdichtheid
Weerstand tegen windbelasting
Waterdichtheid
Inbraakwerendheid
Standaard: Uf-waarde tot min. 1,9 W/m²K
HI: Uf-waarde tot min. 1.5 W/m²K
45 (-1; -5) dB
Tot 600 Pa (klasse 4)
Tot 1600 Pa (klasse C4)
Tot 600 Pa (klasse 9A)
RC 2 + RC 3
De prestaties en eigenschappen variëren naargelang de afmetingen, profielsamenstellingen, materialen en invulling.
Ultraslank design met passieve prestaties
SlimLine 38 hoge isolatie + combineert tijdloze elegantie met toonaangevende energieprestaties. Deze uitbreiding binnen de SlimLine 38-reeks behoudt het verfijnde, slanke profiel en de karakteristieke steel-look, maar werd technisch geoptimaliseerd voor gebruik in passieve gebouwen.
De vergrote systeemdiepte maakt het mogelijk om uitzonderlijke isolatiewaarden te behalen, zonder in te boeten aan esthetiek. Zo ontstaat een raamoplossing die niet alleen architecturaal verfijnd oogt, maar ook toekomstgericht presteert.

Min. aanzichtbreedte (naar binnen opendraaiend raam) Kader Vleugel
Totale systeemdiepte raam Kader Vleugel
Sponninghoogte
Glasdikte






Thermische isolatie
HI+ : Uf-waarde tot min. 1.4 W/m²K
Akoestische prestaties (Rw (C; Ctr)) -
Luchtdichtheid
Weerstand tegen windbelasting
Waterdichtheid
Inbraakwerendheid
Tot 600 Pa (klasse 4)
Tot 1600 Pa (klasse C4)
Tot 900 Pa (E900)
RC 2
De prestaties en eigenschappen variëren naargelang de afmetingen, profielsamenstellingen, materialen en invulling.choices.
* Testprocedures lopende (2025).
SlimLine 38-deuren combineren verfijnde elegantie met hedendaagse prestaties. De ultraslanke profielen van 38 mm zorgen voor een minimalistische look die doet denken aan stalen deuren — perfect voor een moderne of industriële uitstraling.
SlimLine 38 deuren zijn beschikbaar in twee isolatieniveaus (standaard en hoge isolatie) en drie designvarianten (Functional, Classic en Ferro).


EIGENSCHAPPEN
Min. aanzichtbreedte (naar binnen opendraaiende deur)
Totale systeemdiepte raam
Sponninghoogte


Glasdikte tot
Beschikbare stijlen Classic - Ferro Functional - Classic - Ferro
PRESTATIES






Thermische isolatie (Uf)
Standaard: Uf-waarde tot min. 2.2 W/m²K
HI: Uf-waarde tot min. 1,8 W/m²K
Tot min. 1.6 W/m²K
Akoestische prestaties (Rw (C; Ctr)) - 38 (-1;-4) dB
Luchtdichtheid
Weerstand tegen windbelasting
Waterdichtheid
Inbraakwerendheid
Tot 600 Pa (klasse 9A)
1200 Pa (klasse C3)
Tot 600 Pa (klasse 9A)
RC 2
Tot 600 Pa (klasse 4)
1200 Pa (klasse C3)
Tot 600 Pa (klasse 9A)
RC 2
De prestaties en eigenschappen variëren naargelang de afmetingen, profielsamenstellingen, materialen en invulling.


De SlimLine-serie staat bekend om haar iconische stalen look, elegante stijl en hoogwaardige afwerking. Elk lid van deze familie heeft zijn eigen reeks unieke voordelen, waardoor je in dit assortiment gegarandeerd de ideale match voor jouw project vindt.
SlimLine 38 ramen en deuren: de originele, elegante esthetiek met standaardprestaties.
SlimLine 38-HI+ ramen: het toekomstbestendige ontwerp dat voldoet aan de vereisten voor passiefbouw.
Wat je ook nodig hebt voor je bouwproject, met de SlimLine ramen en deuren komt het voor elkaar.







DESIGNVARIANTEN
Functional
Slimline
Monorail
Multirail
Gemotoriseerd
Nuldrempel
Lage drempel
Open hoek
Glashoek
VEILIGHEIDSVARIANTEN
Inbraakwerend RC2 TOTALE
DUURZAAMHEID
Passive House Institute gecertificeerd onderdeel


Cradle to Cradlegecertificeerd
Gerecycleerde thermische onderbreking
EPD beschikbaar
ENERGIEPRESTATIES**




De prestaties en eigenschappen variëren naargelang de afmetingen, profielsamenstellingen, materialen en invulling.
* Dit systeem kan Passive House energieniveaus bereiken, maar is niet gecertificeerd.
** Afhankelijk van combinatie kader/vleugel - HI-variant - Ug-waarde dubbele beglazing = 1,0 W/m²K en spacer = 0,036 W/m²K Ug-waarde driedubbele beglazing = 0,6 W/m²K en spacer = 0,031 W/m²K
*** waarden in: 1,4, 1,3, 1,3, 1,2, 1,2, 1,0 en uiteindelijk 1,5
HEFSCHUIF

Standaard oplossing in schuifraamsystemen
ConceptPatio 130 is een standaardoplossing in het gamma van schuifraamsystemen van Reynaers Aluminium.
Het systeem is ontwikkeld om te voldoen aan standaard energienormen, van renovatie tot lage-energie bouwprojecten. Het schuifsysteem is verkrijgbaar in twee isolatieniveaus (standaard en hoge isolatie) en kan geconfigureerd worden in verschillende openingsmogelijkheden.
EIGENSCHAPPEN
Aanzichtbreedte / hoogte
Totale systeemdiepte
Sponninghoogte
Glasdikte
Max. vleugelgewicht
Max. vleugelhoogte






Thermische isolatie (Uw)
Kader 20 / 28 / 35 / 40 mm
Aansluiting 50 / 69 / 98 mm
- 115 mm

Akoestische prestaties (Rw (C; Ctr))
Luchtdichtheid
Weerstand tegen windbelasting
Waterdichtheid
Inbraakwerendheid
De prestaties en eigenschappen variëren
Tot min. 1.40 W/m2K
39 (-1; -3) dB
Tot 600 Pa (klasse 4)
Tot 2000 Pa (klasse 5)
Tot 750 Pa (klasse E750)
RC 2
/ 69 / 98 mm
Bekroond voor slank en strak design met superieure prestaties
Het schuifraamsysteem MasterPatio tilt jouw project meteen naar een hoger niveau. Bekroond met het RedDot- & Archiproducts Design-label vanwege zijn slanke en strakke ontwerp, voegt het pure schoonheid toe en bevordert het een overvloed aan natuurlijk licht.
Dankzij zijn uitstekende energieprestaties bereikt MasterPatio superieure isolatieniveaus, waardoor het geschikt is voor renovatieprojecten tot passiefbouw.


EIGENSCHAPPEN
Aanzichtbreedte / hoogte
Totale systeemdiepte
Max. vleugelgewicht




500 kg manueel 400 kg gemotoriseerd 1200 kg vast 600 kg manueel 600 kg gemotoriseerd






Akoestische prestaties (Rw (C; Ctr))
Luchtdichtheid Tot
Pa (klasse 4)
Weerstand tegen windbelasting Tot 2000 Pa (klasse 5)
Pa (klasse 4)
2000 Pa (klasse 5)
600 Pa (klasse 4)
2000 Pa (klasse 5) Waterdichtheid
1200 Pa (klasse E1200)
Pa (klasse 9A)
Pa (klasse E750)
Inbraakwerendheid



EIGENSCHAPPEN
Aanzichtbreedte / hoogte
Totale systeemdiepte
Max. vleugelgewicht
Vleugel 87 mm
Meeting
50 / 87 mm T-profiel
50 / 87 mm
Kader 180 mm 180 mm Vleugel 77 mm
500 kg manueel / 400 kg gemotoriseerd / 1200 kg vast
Max. vleugelhoogte 3600 mm
Sponninghoogte 27 mm
Max. glasdikte Tot 62 mm






Thermische isolatie (Uw)
Akoestische prestaties (Rw (C; Ctr))
Luchtdichtheid
Weerstand tegen windbelasting
Tot min. 0.8 W/m²K
43 (-1; -4) dB
44 (-1; -4) dB
Tot 600 Pa (klasse 4)
Tot 2000 Pa (klasse 5)
Waterdichtheid Tot 450 Pa (8A) Tot
Inbraakwerendheid
* Alleen beschikbaar voor MasterPatio hefschuifsystemen
** Beperkte waterdichtheid
Controleer CE-pas voor de recentste gegevens


Meer dan een schuifsysteem
Met de toevoeging van de schuif- en gemotoriseerde verticale schuifvariant is MasterPatio uitgegroeid tot het meest toekomstbestendige systeem in ons productassortiment. Met de standaard hefschuifvariant kun je zware vleugels tot 500 kg verplaatsen, terwijl de schuifvariant ideaal is voor elk renovatieproject. Het gemotoriseerde verticale schuifsysteem biedt een uniek openingsmechanisme dat opent met een druk op de knop. Kies voor bekroonde prestaties en design met MasterPatio.
Exclusief en minimalistisch schuifraam met een ultraslank en elegant design
Het exclusieve en minimalistische schuifraamsysteem HiFinity inspireert talloze architecturale hoogstandjes. Bekroond met het Archiproducts Design Award-label voor zijn ultraslanke design en het Henry van de Veldelabel voor de unieke deurtrekker, voldoet HiFinity aan de hoogste Europese kwaliteitsnormen.
Het schuifraam creëert een gevoel van oneindigheid dankzij zijn ultraslanke design zonder zichtbare profielen, want deze worden subtiel weggewerkt in vloer en muren. Daarnaast biedt het systeem een superieure isolatie voor renovatie tot passiefbouw, dankzij de integratie van dubbele of driedubbele beglazing.





EIGENSCHAPPEN DUBBELE BEGLAZING DRIEDUBBELE BEGLAZING
Hoogte
Aanzichtbreedte / hoogte
Totale systeemdiepte
Ingebouwd kader 68 / 100 mm (0 mm zichtbaar)
Vleugel 8 mm 10 mm
Wisselprofiel
35 mm (regelbaar) 35 mm (regelbaar)
Wisselprofiel 4 deuren 67 mm (regelbaar) 69 mm (regelbaar)
Kader
2-rail: 148 mm
3-rail: 234 mm
2-rail: 180 mm
3-rail: 282 mm
Vleugel 44 mm 60 mm
Maximale hoogte element 4000 mm
Maximaal vleugelgewicht 600 kg manueel* / 750 kg gemotoriseerd / 1200 kg vast
Glasdikte 36 - 38 mm 52 - 54 mm
Beglazingsmethode Structureel verlijmd met composiet vleugelprofielen (schuifvleugels) Droge beglazing met EPDM (vaste beglazing)
PRESTATIES






Thermische isolatie (Uw)
Tot min. Uw 0.8 W/m²K
Akoestische prestaties (Rw (C; Ctr)) 46 (-1; -3) dB
Luchtdichtheid
Weerstand tegen windbelasting
Waterdichtheid
Inbraakwerendheid
Tot 600 Pa (klasse 4)
Tot 2000 Pa (klasse 5)
Tot 750 Pa (klasse E750)
RC 2
De prestaties en eigenschappen variëren naargelang de afmetingen, profielsamenstellingen, materialen en invulling.
* Magnetic Slider


Maak kennis met de HiFinity Magnetic Slider, een revolutionair schuifdeursysteem dat ‘zweeft’ dankzij magnetische geleiding. Met de krachtige magneten die over een stalen precisierail glijden, verplaats je moeiteloos vleugels tot 600 kg. Dat is twee keer de capaciteit van de traditionele wieltjes in een manueel systeem.
HiFinity Magnetic Slider is ontworpen voor configuraties met driedubbele beglazing en een standaarddrempel van 180 mm.
Deze oplossing heeft 30 tot 50 % minder bedieningskracht nodig en is bovendien onderhoudsvrij, duurzaam en toekomstbestendig
Het systeem is makkelijk achteraf te plaatsen, want alleen de rail en wieltjes moeten worden vervangen. De Magnetic Slider is dus ook ideaal voor bestaande HiFinity-configuraties met driedubbel glas.
Ervaar zelf de perfecte mix van toonaangevende technologie, stijl en comfort.
Vouwraamsysteem voor maximale opening
Met de vouwramen ConceptFolding 77 kan de tuin of het terras worden geïntegreerd. ConceptFolding 77 is ideaal voor energiezuinige bouwprojecten, variërend van renovaties tot lage-energiegebouwen.
Het systeem is verkrijgbaar in twee isolatieniveaus (standaard en hoge isolatie), die worden bereikt dankzij de integratie van geavanceerde thermische onderbrekingen.

EIGENSCHAPPEN
Zichtbaar kader / drempel
Zichtbare vleugelbreedte
Zichtbare vleugel - vleugelbreedte
Systeemdiepte
Max. grootte vleugel
Max. vleugelgewicht
Sponninghoogte






Thermische isolatie (Uw)
Akoestische prestaties (Rw (C; Ctr))
Luchtdichtheid
Weerstand tegen windbelasting
Waterdichtheid
Inbraakwerendheid
/ 18 / 42 / 57 / 82 mm
Tot min. 1.3 W/m²K
45 (-1; -5) dB
Tot 600 Pa (klasse 4)
Tot 1200 Pa (klasse 3)
Tot 600 Pa (klasse 9A)
RC 2
/ 25 mm
De prestaties en eigenschappen variëren naargelang de afmetingen, profielsamenstellingen, materialen en invulling.

Op zoek naar een specifieke veiligheidsoplossing?
De meeste van onze glasgeveloplossingen zijn uitbreidbaar met veiligheidsvarianten, zoals inbraakwerende en brandwerende uitvoeringen.
ConceptWall 50-Fireproof is ons meest vertrouwde brandwerende systeem. Ontdek dit systeem in het hoofdstuk Veiligheid op pagina 71.

Architect: Jaspers-Eyers
Foto: Philippe Piraux





VEILIGHEIDSVARIANTEN




Inbraakwerend RC2
Inbraakwerend RC3
Brandwerend
Explosiewerend
DUURZAAMHEID
Passive House Institute gecertificeerd onderdeel Gecertificeerd onderdeel Gecertificeerd onderdeel Gecertificeerd onderdeel

Cradle to Cradle Brons Brons Brons Brons
EPD beschikbaar
PRESTATIES





isolatie (Uf waarde ≥ ...)
Akoestische prestaties (Rw (C; Ctr))
Luchtdichtheidsklasse (waarde in Pa)
Klasse weerstand tegen windbelasting (waarde in Pa)
Waterdichtheidsklasse (waarde in Pa)
(1950 Pa)
(2400 Pa)
(1950 Pa)
Pa)
(2400 Pa)
(1950 Pa)
(2000 Pa)
(1200 Pa)
De prestaties en eigenschappen variëren naargelang de afmetingen, profielsamenstellingen, materialen en invulling.
(2400 Pa)
(1200 Pa)
* Waarden en eigenschappen van ElementFaçade 7-Glaslijst (GB).
OPENINGSTYPES
UITZETZAKRAAM
PARALLEL OPENGAAND RAAM
DAKRAAM
HIDDEN VENT
OPENGAANDE SYSTEMEN
Jouw perfecte glasgevel op maat
Bij onze standaard glasgevelsystemen kun je uit tal van varianten, openingstypes en opties kiezen. Maar soms heeft een gebouw specifieke vereisten waarvoor een unieke oplossing nodig is. Met de hulp van de Projectcel kunnen we onze glasgevelsystemen voor jou upgraden en (op locatie) ondersteuning bieden op maat van jouw project. Op pagina 110 vind je meer informatie over onze projectservices op maat.
Dé universele oplossing voor onbeperkte creatieve vrijheid
ConceptWall 50 is een geavanceerd glasgevel- en daksysteem, speciaal ontworpen om te voldoen aan de hoge eisen van moderne architectuur.
Met een aanzichtbreedte van slechts 50 mm biedt dit systeem onbeperkte ontwerpvrijheid en superieure energieprestaties voor glasgevels. Hierdoor is het een ideale keuze voor zowel renovatieprojecten als passiefbouw.
Verkrijgbaar in twee isolatieniveaus (standaard en hoge isolatie) maakt
ConceptWall 50 gebruik van innovatieve isolatiematerialen voor optimale thermische prestaties.


PRESTATIES






Thermische isolatie (Uf)
Akoestische prestaties (Rw (C; Ctr))
Luchtdichtheid
Weerstand tegen windbelasting
Waterdichtheid
Inbraakwerendheid
Tot min. 0.56 W/m²K
60 (-2; -6) dB
Tot 1950 Pa (klasse AE1950)
Tot 2400 Pa (klasse E2400)
Tot 1950 Pa (klasse RE1950)
RC 3
De prestaties en eigenschappen variëren naargelang de afmetingen, profielsamenstellingen, materialen en invulling.
EIGENSCHAPPEN
Aanzichtbreedte binnen
Aanzichtbreedte buiten



mm
mm
mm
mm
Glasdikte 6 - 60 mm 32 - 78 mm

EIGENSCHAPPEN
STRUCTUREEL GEKLEMD
Aanzichtbreedte binnen 50 mm
Aanzichtbreedte buiten verbinding: 20 mm

STRUCTUREEL BEGLAASD
50 / 88 mm
EPDM-dichting (breedte 27 mm)
Glasdikte 27 - 63 mm 24 - 36 mm EIGENSCHAPPEN
Aanzichtbreedte binnen

mm
Aanzichtbreedte buiten 50 mm
Glasdikte
8 - 64 mm

/ 50 mm
mm
6 - 60 mm
EIGENSCHAPPEN
Aanzichtbreedte binnen
Aanzichtbreedte buiten

mm
verticaal: verbinding van 30 mm horizontaal: 50 mm

mm
verticaal: 50 mm horizontaal: verbinding van 20 mm
Glasdikte 22 - 48 mm 27 - 40 mm


EIGENSCHAPPEN
Aanzichtbreedte binnen
Aanzichtbreedte buiten
EIGENSCHAPPEN
Aanzichtbreedte binnen
Aanzichtbreedte buiten
mm
- 60 mm

UITZETRAAM & PARALLEL OPENGAAND RAAM (NAAR BUITEN DRAAIEND)
15 / 108 mm (Fu & SG)

0 (SG) / 102 mm
0 mm (SG) / 105 mm 107 mm (FU & SG)
Glasdikte 24 - 62 mm
PRESTATIES


Thermische isolatie
Luchtdichtheid

Weerstand tegen windbelasting

Waterdichtheid
Uf tot min. 1.5 W/m²K
Tot 600 Pa (klasse 4)
Tot 2000 Pa (klasse C5)
Tot 1500 Pa (klasse E1500)
- 62 mm
Uf tot min. 1.3 W/m²K
Tot 600 Pa (klasse 4)
Tot 2150 Pa (klasse E2150)
Tot 1200 Pa (klasse E1200)
De prestaties en eigenschappen variëren naargelang de afmetingen, profielsamenstellingen, materialen en invulling.

Dé oplossing voor grote glaspanelen en zware overspanningen
ConceptWall 60 is een geavanceerd glasgevel- en daksysteem, ontworpen voor robuuste constructies van grote glazen oppervlakken.
ConceptWall 60 maakt brede en zware glaspanelen mogelijk dankzij de versterkte aluminium profielen met een aanzichtbreedte van 60 mm. Deze vliesgevel biedt sterke energieprestaties en is de ideale oplossing voor gebieden met een hogere windbelasting, wat het een uitstekende keuze maakt voor renovatieprojecten tot passiefbouw. ConceptWall 60 is verkrijgbaar in twee isolatieniveaus: standaard en hoge isolatie. Deze niveaus worden bereikt door de integratie van slimme isolatiematerialen, waardoor de glasgevel zowel energie-efficiënt als duurzaam is

PRESTATIES






Thermische isolatie (Uf) Tot min. 0.6 W/m²K
Akoestische prestaties (Rw (C; Ctr)) 56 (-1; -5) dB
Luchtdichtheid 1950 Pa (klasse AE1950)
Weerstand tegen windbelasting Tot 2400 Pa (E2400)
Waterdichtheid Tot 1950 Pa (klasse RE1950)
Inbraakwerendheid
RC 3
De prestaties en eigenschappen variëren naargelang de afmetingen, profielsamenstellingen, materialen en invulling.

De variant met verborgen vleugel van onze beproefde geveloplossing ConceptWall 60 creëert nieuwe mogelijkheden om opengaande elementen op een elegante manier in de gebouwschil te integreren. De naar binnen opendraaiende ramen passen volledig bij het design van de ConceptWall-reeks en bieden een duurzame oplossing met minimale profielbreedtes voor plafondhoge ramen. Bovendien zijn de opengaande vleugels van buitenaf niet te onderscheiden van de vaste elementen, wat de gevel een strakke, doorlopend aazicht geeft. In combinatie met een glazen balustrade brengt de verborgen vleugel de buitenwereld naar binnen in gebouwen met meerdere verdiepingen. De vleugel kan ook kantelen, waardoor je makkelijk frisse lucht binnenlaat.

EIGENSCHAPPEN
Aanzichtbreedte binnen
Aanzichtbreedte buiten
mm
Glasdikte 6 - 60 mm



Siliconenvoeg of EPDM-dichting van 20 mm breed
- 78 mm 27 - 63 mm



EIGENSCHAPPEN
Aanzichtbreedte binnen 60 / 88 mm
Aanzichtbreedte buiten
EPDM-dichting van 27 mm breed combinatie van verbinding van 20 / 30 mm en klemprofiel van 60 mm 60 mm
Glasdikte 24 - 36 mm 22 - 48 mm 6 - 60 mm

EIGENSCHAPPEN HIDDEN VENT (NAAR BINNEN OPENDRAAIEND)
Aanzichtbreedte binnen 65 mm
Aanzichtbreedte buiten 60 mm
Glasdikte Kader: 6 - 64 mm
Vleugel: 24 - 57 mm
SlimWall 35 is een ultraslank glasgevelsysteem dat bouwprofessionals de flexibiliteit biedt om esthetisch aantrekkelijke en praktische glasgevels te creëren die voldoen aan de hoogste normen op het gebied van energie-efficiëntie, circulariteit en duurzaamheid.
Met een aanzichtbreedte van de profielen van slechts 35 mm, combineert SlimWall 35 een elegante look met Passive House-gecertificeerde prestaties tot twee verdiepingen hoog. Het unieke meccano-assemblagesysteem van SlimWall 35 onderscheidt zich door een mechanische verbinding, wat de montage op de werf aanzienlijk vereenvoudigt en ervoor zorgt dat het systeem kan worden gedemonteerd om te voldoen aan circulaire bouwprincipes.



EIGENSCHAPPEN STANDAARD
Aanzichtbreedte binnen 35 mm
Aanzichtbreedte buiten 35 mm
Glasdikte 24 - 57 mm
Gewicht glas 450 kg
PRESTATIES






Thermische isolatie (Ucw) Tot min. 0.8 W/m²K
Akoestische prestaties (Rw (C; Ctr)) 47 (-1; -4) dB
Luchtdichtheid 1200 Pa (AE1200)
Weerstand tegen windbelasting 2000 Pa (klasse A5)
Waterdichtheid 1200 Pa (RE1200)
Inbraakwerendheid
RC 2
(1) Ug 0,7 W/m²K, thermisch onderbroken spacer op 1,2 x 2,5 m en 52 mm glas.
De prestaties en eigenschappen variëren naargelang de afmetingen, profielsamenstellingen, materialen en invulling.

ElementFaçade 7 biedt een esthetische, snel te produceren en eenvoudig te installeren elementgeveloplossing. Met geprefabriceerde elementen wordt een snelle en economische installatie mogelijk, ideaal voor hoogbouwprojecten.
Het systeem biedt bijna onbeperkte ontwerpvrijheid en kan worden aangepast aan specifieke bouwvereisten. ElementFaçade 7 staat garant voor uitstekende thermische, akoestische en structurele prestaties, en is geschikt voor zware glaspanelen en grote afmetingen. Dankzij een aanzichtbreedte van 75 mm kunnen grotere afmetingen worden gerealiseerd en voldoet het systeem aan de strengste isolatienormen.







EIGENSCHAPPEN
Max. afmetingen B x H 2700 x 3700 mm
Aanzichtbreedte binnen
Aanzichtbreedte buiten
Glasdikte
Types vleugels
mm
mm
- 63 mm
Alle systemen van Reynaers Aluminium, uitzetraam, parallel opengaand raam
PRESTATIES GLASLIJST / STANDAARD





x 3700 mm
mm rubber tussen glas
- 60 mm
Alle systemen van Reynaers Aluminium, uitzetraam, parallel opengaand raam
x 2500 mm
mm (Fu) 20 mm rubber (SG)
- 62 mm
GB of SG
Thermische isolatie Uf tot min. 1.3 W/m²K Utj tot min. 3.3 W/m²K Uf tot min. 1.5 W/m²K (GB) Utj tot min. 2.1 W/m²K (SG)
Akoestische prestaties (Rw (C; Ctr)
43 (-2; -4) dB 42 (-2; -4) dB 41 (-2; -4) dB
Luchtdichtheid 1200 Pa (klasse AE1200) 1200 Pa (klasse AE1200) 600 Pa
Weerstand tegen windbelasting 2400 Pa 2400 Pa 2000 Pa
Waterdichtheid 1200 Pa (klasse RE1200) 1200 Pa (klasse RE1200) 1500 Pa (klasse RE1500)
De prestaties en eigenschappen variëren naargelang de afmetingen, profielsamenstellingen, materialen en invulling.

Administratief Centrum, Beveren, België
Architect: ORG Permanent Modernity
Foto: Filip Dujardin


ConceptSystem 77 FireProof

ConceptSystem 77 BurglarProof



Reynaers Aluminium biedt een breed scala aan doelgerichte veiligheidsoplossingen om de veiligheid in werk- en leefomgevingen te garanderen. Inbraakwerendheid is essentieel in vrijwel elk gebouw, maar daarnaast bieden we ook brand-, kogel- en explosiewerende systemen voor omgevingen met extra strenge veiligheidsvereisten.
Onze oplossingen zijn hoogwaardig, betrouwbaar en precies daar inzetbaar waar ze het meest nodig zijn. De innovatieve veiligheidssystemen van Reynaers Aluminium zijn ontworpen
voor uiteenlopende toepassingen en voldoen niet alleen aan de standaardvereisten voor gebouwen, zoals weerbestendigheid en thermische isolatie, maar zijn ook beschikbaar met tal van bijkomende veiligheidsfuncties.
Deze kenmerken worden vaak in één totaaloplossing gebundeld. Of het nu gaat om brandwerende, inbraakwerende of kogelwerende systemen, of om voorzieningen voor nooduitgangen – onze veiligheidsvarianten garanderen een veilige, performante afwerking van elk project.
Lees meer over onze veiligheidssystemen
Wil je ons volledige assortiment veiligheidsoplossingen tot in de puntjes leren kennen? Je vindt de actuele informatie over al onze veiligheidskenmerken en -systemen op onze website: www.reynaers.be/veiligheidsoplossingen




Inbraakwerende oplossingen
Reynaers Aluminium biedt inbraakwerende oplossingen met verschillende veiligheidsniveaus afhankelijk van de gekozen afmetingen, configuratie, het glastype en de lokale regelgeving. Dit veiligheidskenmerk is niet voor niets het populairste in ons volledige productgamma: het biedt gemoedsrust in alle soorten gebouwen.
Brandwerende oplossingen
Brandwerende ramen, deuren en gevels spelen een sleutelrol in de veiligheid van mensen en gebouwen. Ze zorgen ervoor dat het vuur zich gedurende een bepaalde tijd niet kan verspreiden, zodat het gebouw veilig kan worden geëvacueerd en de brandweer tijd krijgt om in te grijpen.
Kogelwerende oplossingen
Onze kogelwerende producten voldoen aan verschillende veiligheidsniveaus afhankelijk van de gekozen materialen, het glastype en de configuratie. Deze systemen worden vaak geplaatst in gebouwen en/of gebieden met een hoog risico, zoals politiebureaus, banken en luchthavens.
Andere veiligheidsoplossingen
Wat je veiligheidsbehoeften ook zijn, wij hebben het antwoord. Onze schrijnwerksystemen kunnen worden uitgebreid met voorzieningen voor nooduitgangen, explosiewerende technologie, rook- en hitteafvoersystemen ... Alles is getest en gecertificeerd met de hulp van ons internationale netwerk van testpartners.
ConceptWall 50
VEILIGHEIDSVARIANTEN



Inbraakwerend
Brandwerend
Kogelwerend




Isolatie kleinste kader-/ vleugelgedeelte (Uf-waarde ≥ …)
Luchtdichtheidsklasse (waarde in Pa)
Klasse weerstand tegen windbelasting (waarde in Pa)
Waterdichtheidsklasse (waarde in Pa)
(2400 Pa)
(1500 Pa)
(FP)
ConceptSystem 77
(1600 Pa)
(900 Pa)
(300 Pa)
De prestaties en eigenschappen variëren naargelang de afmetingen, profielsamenstellingen, materialen en invulling. Raadpleeg altijd de beschikbare classificatierapporten voor brandwerendheid of de nationale goedkeuringen die in je land van toepassing zijn.
ConceptSystem 77
VEILIGHEIDSVARIANTEN



Inbraakwerend
Brandwerend
Kogelwerend




Isolatie kleinste kader-/ vleugelgedeelte (Uf-waarde ≥ …)
Luchtdichtheidsklasse (waarde in Pa)
Klasse weerstand tegen windbelasting (waarde in Pa)
Waterdichtheidsklasse (waarde in Pa)
(600 Pa)
(800 Pa)
(300 Pa)
(600 Pa)
(2000 Pa)
(600 Pa)
(600 Pa)
(1600 Pa)
(900 Pa)
ConceptSystem 77 is beschikbaar in een brandwerende variant voor extra beveiliging van gebouwen. In deze variant worden extra brandwerende materialen geïntegreerd (zoals koelmateriaal en zwelbanden) die de weerstand tegen brand verhogen en verspreiding van vuur en rook tussen compartimenten of verdiepingen van een gebouw te beperken.
ConceptSystem 77 FP voldoet aan brandweerstandsklassen EI30 en EI60. Een raam of deur met een weerstand EI30 zal 30 minuten zijn functie behouden zowel naar stabiliteit, thermische isolatie als naar vlamdichtheid toe.


EIGENSCHAPPEN
Beglazingsmethode droge beglazing met EPDM
PRESTATIES
Europese testnormen
Classificatienorm


Brandwerendheidsclassificatie
Inbraakwerendheid
1364-1
1634-1
13501-2
De prestaties en eigenschappen variëren naargelang de afmetingen, profielsamenstellingen, materialen en invulling. Raadpleeg altijd de beschikbare classificatierapporten voor brandwerendheid of de nationale goedkeuringen die in je land van toepassing zijn.
1364-1
1634-1
13501-2
Voor projecten met verhoogde veiligheidsvereisten is ConceptSystem 77 beschikbaar in een inbraakwerende uitvoering.
In deze variant wordt een speciale gesloten glaslat, aangepast beslag en afhankelijk van het inbraakwerendheidsniveau (RC2 of RC3) ook glasbescherming toegevoegd, zodat inbrekers moeilijker kunnen binnendringen.

EIGENSCHAPPEN KOGELWEREND
Min. aanzichtbreedte naar binnen opendraaiend raam
Min. aanzichtbreedte naar binnen opendraaiende naadloos aansluitende deur
Totale systeemdiepte raam
Sponninghoogte
Glasdikte







Thermische isolatie (Uf)
Akoestische prestaties (Rw (C; Ctr))
Luchtdichtheid
Weerstand tegen windbelasting
Waterdichtheid
Kogelwerendheid
Inbraakwerendheid
Kader 128 mm
Vleugel -
Kader 77 mm
Vleugel 77 mm
Kader
Vleugel
mm
mm
Tot min. 2.4 W/m²K
41 (-1; -4) dB
Tot 600 Pa (klasse 4)
Tot 2000 Pa (klasse 5)
Tot 900 Pa (klasse E900)
FB 4, FSG (EN 1522) & Kalashnikov
RC 3

FlameLine is een brandwerende deuroplossing die bijdraagt aan verhoogde veiligheid en comfort in gebouwen. Dankzij de integratie van gespecialiseerde brandwerende materialen biedt dit systeem een brandweerstand van EI60. Dat betekent dat de deur gedurende 60 minuten haar stabiliteit, thermische isolatie en vlamdichtheid behoudt.
Dit helpt de verspreiding van vuur en rook tussen compartimenten of verdiepingen te voorkomen. De deuren zijn Europees gecertificeerd en kunnen worden geïntegreerd in ConceptWall-FP vliesgevels of FlameLine 60 scheidingswanden om een complete geveloplossing te creëren. Bovendien bieden ze uitstekende thermische prestaties en een hoge weerstand tegen lucht-, wind- en waterbelasting. Dankzij de maximale vrijheid in glaskeuze is zelfs driedubbele beglazing mogelijk.

EIGENSCHAPPEN
Sponninghoogte
Glasdikte
mm
Beglazingsmethode droge beglazing met EPDM
PRESTATIES
Europese testnormen
Classificatienorm



Brandwerendheidsclassificatie
Thermische isolatie
Inbraakwerendheid
mm
1634-1
13501-2
= 2.0 W/m²K (Ud tot min. 1.3 W/m²K)
1634-1
13501-2

De glasgeveloplossing ConceptWall 50 is ook beschikbaar in een brandwerende uitvoering die bescherming biedt bij brand en rookontwikkeling.
Dankzij de integratie van specifieke brandwerende elementen – waaronder stalen verstevigingen en zwelbanden – verhoogt dit systeem de brandweerstand aanzienlijk. Zo wordt de verspreiding van vuur en rook tussen verdiepingen of compartimenten effectief beperkt, en wordt de veiligheid in het gebouw sterk verbeterd.

EIGENSCHAPPEN
Sponninghoogte
Glasdikte
FIREPROOF 30
- 78 mm
60
- 78 mm
Beglazingsmethode bevestiging met drukplaten bevestiging met drukplaten
PRESTATIES
Europese testnormen
Classificatienorm


Thermische isolatie (Uf)
Brandwerendheidsclassificatie
FIREPROOF 30
EN 1364-1
EN 1364-3
EN 13501-2
0.8 W/m²K
FIREPROOF 60
EN 1364-1
EN 1364-3
EN 13501-2
0.8 W/m²K
EW 30, EI 30 EI 60
De prestaties en eigenschappen variëren naargelang de afmetingen, profielsamenstellingen, materialen en invulling. Raadpleeg altijd de beschikbare classificatierapporten voor brandwerendheid of de nationale goedkeuringen die in je land van toepassing zijn.


120


Laat buiten en binnen samenvloeien in een unieke tuinkamer
Met het ConceptRoof 120-verandadaksysteem ontstaat een lichte, open ruimte waarin binnen en buiten moeiteloos in elkaar overlopen.
Dit systeem is compatibel met alle raam-, deur- en schuifraamsystemen van Reynaers Aluminium, zodat je een harmonieus totaalontwerp kunt realiseren dat perfect aansluit bij jouw architecturale visie.


EIGENSCHAPPEN
FUNCTIONAL
Min. aanzichtbreedte draagprofiel 60 mm
Systeemdiepte draagprofiel 70 / 100 / 120 / 150 mm
Helling 5° - 25°
Dak 120° - 180°
Glasdikte 6 - 40 mm
Glasmethode
Thermische isolatie



Thermische isolatie
Weerstand tegen windbelasting
Waterdichtheid

ORANGERIE
Droge beglazing met EPDM- of neutrale siliconen
Omegavormige glasvezelversterkte polyamidestrips + synthetisch profiel
Specifieke berekeningen per profielcombinatie nodig?
Neem contact op met je Reynaers Aluminium vakman.
Tot 800 Pa (klasse 2)
Tot 1050 Pa (klasse E1050)
De prestaties en eigenschappen variëren naargelang de afmetingen, profielsamenstellingen, materialen en invulling.

Meer natuurlijk daglicht en beschikbare binnenruimte
Het lichtstraatsysteem MasterLight biedt tijdloze oplossingen voor eigentijdse en uitdagende projecten. Zo vormt het systeem een duurzaam verlengstuk van de beschikbare ruimte en biedt het meer natuurlijk daglicht.
MasterLight creërt ontwerpvrijheid in elk project, dankzij de uitgebreide ontwerpmogelijkheden van de aluminium profielen en tussenliggers. De lichtstraat is verkrijgbaar met dubbele of driedubbele beglazing en bereikt zo makkelijk de hoogste isolatienormen.



EIGENSCHAPPEN
ENKELE / MEERVOUDIGE PANELEN
Min. aanizchthoogte kader 145 mm
Min. aanzichtdiepte kader 96.3 mm
Min. aanzichtbreedte drager 50 / 60 mm
Min. aanzichthoogte drager 24 - 88 mm
Helling 2° - 30°
Sponninghoogte 30 mm
Glasdikte 28 - 53 mm
Max. glasafmetingen en -gewicht Vraag dit na bij de glasleverancier




Thermische isolatie Utj-waarde tot min. 2.8 W/m2K
Luchtdichtheid
Weerstand tegen windbelasting
Waterdichtheid
Tot klasse 4
Tot 1600 Pa (klasse 4)
Tot 750 Pa (E750)
De prestaties en eigenschappen variëren naargelang de afmetingen, profielsamenstellingen, materialen en invulling.




Met Paralline gevelbekleding heeft je gevel een streepje voor
Paralline gevelbekleding combineert duurzame elegantie en talloze mogelijkheden voor jouw renovatie of nieuwbouwproject.
Achter de gevelbekleding kan een isolatielaag geplaatst worden voor optimale energieprestaties, waardoor Paralline zowel binnens- als buitenshuis je project naar een hoger niveau tilt. Aan de buitenkant voegt dit systeem onder meer een esthetische toets toe als bedekking van voordeuren, poorten, ramen die naar binnen inspringen of gelijk liggen met de gevel en muren.








BAO-Architecten






Verfijnd en strak, voor een unieke toets
Wie van strakke lijnen houdt, kiest best voor Touch-krukken. Deze verfijnde designkrukken sluiten prima aan bij moderne architectuur, een minimalistisch design en slanke ramen met grote glaspartijen.
Maar ook binnen meer traditionele bouwstijlen geven ze klassieke ramen een unieke toets. Touch combineert moeiteloos duurzame schoonheid met uitgekiende ergonomie.

PRODUCTGROEPEN





KENMERKEN
Oppervlaktebehandeling geanodiseerd of gepoedercoat
Kleuren verkrijgbaar in alle RAL-kleuren en texturen (zelfde als de profielen)
Opties rozetloos, kortschild, langschild, met slot, trekbeveiliging, met/zonder cilinder, gereduceerde diepte ...
Gebruik deuren, ramen, schuifdeuren + hefschuifdeuren, vouwdeuren

Meer informatie over onze krukken en deurtrekkers
Raadpleeg de brochure 'Krukken en Deurtrekkers' voor een volledig overzicht met alle mogelijkheden op: www.reynaers.be/krukkenbrochure
Inox kruk met een stijlvolle en moderne uitstraling
Contour-krukken vormen de inox lijn binnen het aanbod van Reynaers Aluminium. Deze slanke krukken van inox zorgen voor een moderne uitstraling bij nieuwbouw en voor een stijlvol contrast in gerenoveerde woningen.
Omdat ze geveerd zijn, kunnen ze zowel links- als rechtsdraaiend gemonteerd worden. Zo komen stijl, kwaliteit en gebruiksgemak samen.

PRODUCTGROEPEN RAMEN DEUREN





KENMERKEN
Oppervlaktebehandeling roestvrij staal
Kleuren roestvrij staal
Opties kortschild, langschild, met slot, trekbeveiliging, met/zonder cilinder ...
Gebruik deuren, ramen, schuifdeuren + hefschuifdeuren, vouwdeuren

Meer informatie over onze krukken en deurtrekkers
Raadpleeg de brochure 'Krukken en Deurtrekkers' voor een volledig overzicht met alle mogelijkheden op: www.reynaers.be/krukkenbrochure
Tijdloos en subtiel, onzichtbaar aanwezig
Horizon-krukken zijn eigentijds én tijdloos, oogstrelend én discreet. Ze gaan als het ware onzichtbaar op met elk raam-, deur- of schuifraamsysteem van Reynaers Aluminium.
Zo sluiten ze perfect aan bij alle bouwstijlen.
Horizon vormt de ideale kruk voor wie nieuwe horizonten opzoekt en toekomstgerichte oplossingen wenst voor zijn bouw- of verbouwproject.

PRODUCTGROEPEN





KENMERKEN
Oppervlaktebehandeling geanodiseerd of gepoedercoat
Kleuren verkrijgbaar in alle RAL-kleuren en texturen (zelfde als de profielen)
Opties rozetloos, kortschild, langschild, met slot, met/zonder cilinder, gereduceerde diepte, paniekkrukken
Gebruik deuren, ramen, schuifdeuren + hefschuifdeuren, vouwdeuren

Meer informatie over onze krukken en deurtrekkers
Raadpleeg de brochure 'Krukken en Deurtrekkers' voor een volledig overzicht met alle mogelijkheden op: www.reynaers.be/krukkenbrochure

De deurtrekker die mooi opgaat in elk design
Deurtrekkers zijn handig en moeiteloos, maar ook heel stijlvol. Met deurtrekkers draai je niet aan een kruk, maar open je de deur met een trekbeweging.
De deurtrekkers van Reynaers Aluminium trekken de lijn van je project mooi door.
De deurtrekkers zijn verkrijgbaar in talloze designvarianten (Square, Fin, Round, Hook en HiFinity) en verschillende lengtes, zo is er steeds een passend ontwerp voor jouw project.
PRODUCTGROEPEN
KENMERKEN








Oppervlaktebehandeling geanodiseerd of gepoedercoat (behalve DoorPull Round: roestvrij staal)
Kleuren verkrijgbaar in alle RAL-kleuren (behalve DoorPull Round: roestvrij staal)


Opties korte deurtrekker, trekstang op volledige hoogte, geïntegreerde toegangscontrole

Meer informatie over onze krukken en deurtrekkers
Raadpleeg de brochure 'Krukken en Deurtrekkers' voor een volledig overzicht met alle mogelijkheden op: www.reynaers.be/krukkenbrochure






Natuurlijke ventilatie
Het leven is comfortabeler dan ooit
Met de naadloze integratie van smart building oplossingen in onze producten verrijken we de Reynaers Aluminium-mix met slimme toptechnologie die je leven comfortabeler dan ooit maakt.
Onze gebruiksvriendelijke, uiterst veilige oplossingen voor smart buildings zijn ideaal voor al je toekomstbestendige projecten. Kies uit ons assortiment gebruiksklare materiaal- en softwareoplossingen. Alles is perfect compatibel met onze ramen, deuren en schuifsystemen. Waardeer je project vandaag nog op met onze oplossingen voor toegangscontrole, motorisatie en natuurlijke ventilatie.




Toegangscontrole
Bepalen wie je gebouw binnen mag was nog nooit zo makkelijk. Kies zelf wie het gebouw in kan en wanneer, of ontgrendel de deuren zelfs op afstand.
• Toetsenborden (ekey of keypad lite) en vingerafdrukscanners (dLine)
• Elektrische sloten, e-openers en magnetische contactpunten
Comfortmotorisatie
Ervaar snelle en makkelijke toegang tot je tuin of terras met verborgen motorisatie. Met één druk op de knop gaan zelfs de grootste en zwaarste schuifdeuren moeiteloos open.
• Gemotoriseerde schuifsystemen (HiFinity, MasterPatio)
• Gebruiksklare, makkelijk te plaatsen oplossing
• Ingebouwd batterijpack en drukgevoelige nooddetectie garanderen de veiligheid van gebruikers
Natuurlijke ventilatie
Net als al onze andere smart home oplossingen zijn de gemotoriseerde ramen voor natuurlijke ventilatie van Reynaers Aluminium altijd subtiel geïntegreerd, verbonden en veilig in gebruik.
• E-Invisitop en ventilatievleugels
• Voorkom te hoge binnentemperaturen dankzij nachtelijke koeling
• Verkrijgbaar als eenheden die op zichzelf werken of gekoppeld zijn aan je smarthomenetwerk of HVAC-systeem (verwarming, ventilatie en koeling)
Meer informatie over onze smart home oplossingen
Work smarter, not harder. Waardeer je woning op met een van onze veilige en gebruiksvriendelijke toegangs-, motorisatie- of ventilatieoplossingen. Meer informatie en downloads vind je op onze website: www.reynaers.be/smart-buildings





Totaaloplossingen in zonwering
De inval van daglicht regelen geeft niet alleen meer comfort, maar maakt je gebouw ook energiezuiniger.
Van flexibele oprolbare schermen tot vaste of verplaatsbare structuurprofielen, de zonweringsoplossingen van Reynaers Aluminium zijn er in alle vormen, kleuren en afwerkingen, voor de beste beleving op maat.
EIGENSCHAPPEN

BRISESOLEIL 100 VOORGEMONTEERD KADER

BRISESOLEIL 100 VASTE LAMELLEN

BRISESOLEIL 100 BEWEEGBARE LAMELLEN
Vorm lamellen ellips ellips ellips
Grootte lamellen
140 / 180 mm
(Vaste) hoek 45°
120 - 400 mm
120 - 400 mm
0° / 15° / 30° / 45°/ 60° / 75° / 90° variabel
Looproostertoepassing ja ja ja

EIGENSCHAPPEN

BRISESOLEIL 100 LAMELHOUDER GLAZEN LAMELLEN
Vorm lamellen ellips gehard glas
Grootte lamellen
(Vaste) hoek
200 / 250 / 300 mm
0° / 15° / 30° / 45°
366 x 10 / 12 / 14 / 17 mm
0° / 15° / 30° / 45° / 60° / 75° / 90° en variabel
Looproostertoepassing nee ja
De prestaties en eigenschappen variëren naargelang de afmetingen, profielsamenstellingen, materialen en invulling.
Het Mosquito-vliegenraamsysteem van Reynaers Aluminium biedt een elegante en efficiënte oplossing om insecten buiten te houden, zonder het zicht op de buitenwereld te belemmeren. Dankzij de slimme integratie kun je ramen, deuren of schuifdeuren openen en sluiten zonder de hor te verwijderen.
Mosquito is compatibel met alle raam-, deur- en schuifsystemen van Reynaers Aluminium, én met systemen van andere materialen zoals hout of pvc. De hor kan worden gemonteerd op het raam of volledig geïntegreerd in het kader, afhankelijk van het type opening en het gewenste comfort.

EIGENSCHAPPEN
Systeemdiepte 15 / 22 mm
Type
Hoeken
Vaste elementgrootte, vaste positionering
voorgevormde synthetische steunhoekstukken of aluminium pershoek
28 mm
Vaste elementgrootte, scharnier aan de zijkant
pneumatisch geplooide aluminium hoek of aluminium pershoek

28 mm in kader ingebouwd
Vaste elementgrootte, glijdend op speciale rail
Plissé / Gevouwen mesh
pneumatisch geplooide aluminium hoek of aluminium pershoek -

De glasbalustrade van Reynaers Aluminium biedt extra veiligheid bij onze systemen. De glasbalustrade is onder toezicht van een onafhankelijke erkende instelling en/of in een bekend testcentrum volgens de strengste Europese normen getest.
De RB glasbalustrade is een opbouwsysteem dat volledig doorzichtig is en daardoor het zicht niet belemmert. Het systeem stelt je in staat om een raam of deur op een veilige manier te openen, zelfs als er geen balkon aanwezig is.

TECHNISCHE
EIGENSCHAPPEN GLAS
Max. glasdikte 21 mm
Geschikt voor Alle systemen zijn breed genoeg om de verticale profielen volledig te ondersteunen
Normen EN 13049 NEN-EN-1991-1-1
De prestaties en eigenschappen variëren naargelang de afmetingen, profielsamenstellingen, materialen en invulling.






Bij Reynaers Aluminium willen we je inspireren en je het leven zo eenvoudig mogelijk maken. Daarom bieden we naast ons assortiment hoogwaardige producten een reeks handige professionele services waarmee we je helpen om je bedrijf te laten groeien en je visie te verwezenlijken.
Wij geloven in sterke, langdurige relaties die gebaseerd zijn op vertrouwen en wederzijds begrip. Ons wereldwijde partnernetwerk van architecten, fabrikanten en andere bouwprofessionals kan elke dag van het jaar rekenen op onze persoonlijke ondersteuning, intuïtieve tools en volledige toewijding.
Om onze partners bij elke stap van hun professionele reis te begeleiden, bieden we een 360°-ecosysteem met services en tools op hun maat. Het kader waarin we onze services onderverdelen, bestaat uit vier pijlers:
Hoogwaardige producten
We volgen de nieuwste technologische ontwikkelingen op de voet en verbeteren ons productassortiment om aan al je wensen te voldoen. Bovendien helpt het testen en certificeren van onze producten om onze creatieve grenzen te verleggen en écht te innoveren.
Samenwerken aan projecten
Wat is een bouwprofessional zonder zijn vertrouwde gereedschap? Van 3D-visualisatie tot de nieuwste verwerkingstools: we ondersteunen zowel architecten als fabrikanten bij elke stap.
Grenzeloze inspiratie
De systemen van Reynaers Aluminium zijn te vinden in talloze gebouwen over de hele wereld, van bescheiden privéwoningen tot duizelingwekkende wolkenkrabbers. Laat je inspireren door enkele van onze meest gedurfde creaties.
Onze duurzame weg vooruit
We integreren duurzaamheid in alles wat we doen om samen met onze partners te bouwen aan een betere toekomst. Onze toekomstgerichte initiatieven zijn gebundeld in de officiële duurzaamheidsstrategie van Reynaers Group.
Al 60 jaar vertrouwen professionals op onze performante raam-, deur-, schuifen glasgevelsystemen om de leef- en werkomgeving van mensen te verbeteren. We werken samen met onze partners om de energie-efficiëntie, het design, het comfort en de veiligheid naar een hoger niveau te tillen met de nieuwste beproefde technologie.
Ervoor zorgen dat onze producten van hoge kwaliteit zijn, is echter een doorlopend proces. Om ook in de toekomst systemen en services van de hoogste kwaliteit te kunnen bieden, investeren we fors in toekomstgerichte onderzoeks- en ontwikkelingsprojecten.
Bovendien certificeren we onze systemen volgens internationale kwaliteitsnormen en zijn we steeds op zoek naar verbeteringsmogelijkheden in elk aspect van ons én jouw bedrijf.
Samen voor innovatie
Reynaers Aluminium werkt nauw samen met architecten en bouwaannemers over de hele wereld, vanaf de designfase tot de productie en installatie.
Wat ons allemaal verbindt, is onze zin voor duurzame innovatie..
We combineren design, technologie en digitalisatie in innovatieve oplossingen die waarde toevoegen en anderen inspireren om duurzame gebouwen te ontwikkelen. We leggen de lat hoog en dagen onszelf elke dag uit.
We leren van best practices en fouten uit het verleden en luisteren naar de behoeften van onze klanten. Zo maken wij het verschil in een steeds veranderende sector.

Jouw digitale productpaspoort
Via onze innovatieve oplossing DigiTrace vinden woningeigenaren en bouwprofessionals eenvoudig informatie en productdetails over onze aluminium systemen.
DigiTrace maakt gebruik van een unieke elementidentificator (een QR-code op onze oplossing) om moeiteloos toegang te bieden tot een schat aan informatie over een specifiek element. Je hoeft dus geen tijd en moeite meer te besteden aan locatiebezoeken of handmatig op zoek gaan naar informatie. Vanaf nu vinden fabrikanten en eindgebruikers met één gebruiksvriendelijke stap het antwoord op hun vragen.
DigiTrace is de volgende stap in je digitale reis, en deze gebruiksvriendelijke tool wordt voortdurend nog beter. In de toekomst zal hij ook rechtstreeks toegang bieden tot de circulariteitsgegevens van een product, aanbevolen productmaterialen en andere informatie over duurzaamheid.
Vertrouw op DigiTrace, het digitale productpaspoort dat je altijd op zak hebt.
Geniet van volledige transparantie met DigiTrace
Met DigiTrace beschik je over een handig digitaal productpaspoort dat gedetailleerde informatie bevat over de aluminium elementen in je project.
• Krijg rechtstreeks toegang tot systeem-, glas- en prestatiegegevens, waaronder alle technische details die je nodig hebt.
• Lees belangrijke documentatie, zoals certificaten of onderhoudsgidsen.
• Vind makkelijk de contactgegevens van de fabrikant of plaatser van het project.
• Meld problemen en upload afbeeldingen rechtstreeks via DigiTrace.
Vereenvoudig je dagelijkse taken met DigiTrace
Onze nieuwste digitale innovatie DigiTrace maakt alle productgegevens en documentatie van een bepaald element in een oogwenk beschikbaar.
Scan gewoon de QR-code en je vindt meteen de gegevens die je nodig hebt!
• Bekijk en deel onmiddellijk systeem-, glasen prestatiegegevens (bijv. thermische waarden) en belangrijke documenten, zoals installatieplannen of de onderdelenlijst.
• Installateurs kunnen problemen of mogelijke schade in een oogwenk aan hun team melden.
• Upload en deel documentatie voor publiek of privégebruik (bijv. onderhoudsgidsen, foto’s van de installatie ...).
• Voeg beschikbare kwaliteitscertificaten (bijv. CE-labels) toe en deel ze.
• Bekijk en beheer eenvoudig feedback van klanten. Als je feedback krijgt, is alle nodige informatie meteen beschikbaar. Zo bespaar je heel wat kostbare tijd.


Video: ontdek DigiTrace in slechts 2 minuten
DigiTrace maakt productgegevens en -documentatie in een paar klikken beschikbaar. Benieuwd hoe het werkt? Bekijk de korte video op onze website: www.reynaers.be/digitrace
Het Technology Centre van Reynaers Aluminium is een van de grootste private innovatie- en testcentra in Europa. Alle systemen van Reynaers Aluminium, van standaard- tot projectspecifieke oplossingen, worden hier tot in de puntjes getest om te verzekeren dat ze voldoen aan de strengste internationale normen op het vlak van kwaliteit, comfort, veiligheid en duurzaamheid
Een van de blikvangers in het Technology Centre is onze hypermoderne, 15 meter hoge testmuur. Hier stellen we onze geveloplossingen uitgebreid op de proef om hun grenzen op het vlak van lucht-, wind- en waterdichtheid te onderzoeken. We kunnen zelfs testen op realistisch nagemaakte bouwelementen met meerdere verdiepingen.
In onze zoektocht naar continue verbetering spelen ook andere parameters een belangrijke rol. We onderzoeken bijvoorbeeld de luchtdoorlatendheid, windbelasting en waterdichtheid van ramen en deuren op een andere, 20 meter brede muur. Daarnaast testen we de akoestische, cyclische en inbraakwerende prestaties en voeren we zelfs seismische en aardbevingssimulaties uit. We laten niets aan het toeval over.


We vertrouwen onze gecertificeerde testpartners
Het Technology Centre is ons gewoonlijke testcentrum op de Reynaers Campus, maar soms schakelen we de hulp van partners in. Voor zware taken, zoals tests over de impact van brand, kogels of bomexplosies, vertrouwen we bijvoorbeeld op de expertise van onze vele internationale veiligheidspartners.
Met hun steun verbeteren we onze aluminium producten en zorgen we ervoor dat onze eindgebruikers altijd kunnen vertrouwen op getest en goedgekeurd schrijnwerk.
Bij het kiezen van materialen wil iedereen de juiste balans tussen topkwaliteit en een uitstekende prijs. Door kwaliteitscertificaten te vergelijken, kun je als consument of bouwplanner weloverwogen beslissingen nemen over het schrijnwerk van je project. Bij Reynaers Aluminium doen we ons best om steeds de hoogste kwaliteit te leveren. Het bewijs daarvan? Dat zijn de vele labels en certificeringen die we hebben behaald:
• Kwaliteitslabels: Qualicoat en Qualanod coatinglabels, ISO-normen ...
• Duurzaamheidslabels: Cradle to Cradle, Minergie, Passivhaus, LEED, BREEAM ...
• Designlabels: Reddot, Archiproduct Design Awards, Henry Van De Velde Awards ...
• CE-keurmerk: betekent dat onze systemen volledig beantwoorden aan de Bouwproductenverordening van de EU en de bijbehorende productnormen.

Voor de oppervlaktebehandeling van profielen werkt Reynaers Aluminium samen met zorgvuldig geselecteerde spuitbedrijven die onze normen en voorschriften strikt naleven. Alural is bijvoorbeeld onze interne coatingspecialist die ons niet alleen helpt om een uitstekende service te leveren, maar ook de kwaliteit van onze gelakte producten nauwlettend in de gaten houdt.
Om die kwaliteit te garanderen, gebruiken we standaard Qualicoat Klasse 2-poeders in ons coatingsaanbod. Dat betekent voor jou: superieure UV-bestendigheid, langdurig levendige kleuren, beter glansbehoud en een duurzame afwerking met poeders van topkwaliteit.
Afhankelijk van je persoonlijke smaak en de behoeften voor je project kunnen we verschillende behandelingen en afwerkingen aanbieden:
• Poedercoating:
Geschikt voor alle omgevingen. Voor agressieve omgevingen is een speciale voorbehandeling nodig (pre-anodisatie). Beschikbaar in een ruime waaier aan kleuren en met verschillende glansen afwerkingsopties.
• Pre-anodisatie:
Voor agressieve omgevingen zoals kustgebieden (< 1 km), zwembaden, spoorwegen, luchthavens ... Beschikbaar in een ruime waaier aan kleuren en met verschillende glans- en afwerkingsopties.
• Anodisatie:
Geschikt voor alle omgevingen. De laagdikte wordt aangepast voor gebruik in agressieve omgevingen. Beschikbaar in verschillende kleuren, van naturel tot champagne, brons of zwart. Behoudt de natuurlijke look van aluminium.

In dit hoofdstuk krijg je de belangrijkste informatie over onze tools & services voor architecten en stakeholders. Dit beknopte overzicht helpt je om snel te ontdekken welke services we bieden en hoe ze aansluiten bij jouw behoeften. Of je nu op zoek bent naar tools voor je dagelijkse taken, technische inzichten, visualisatieoplossingen of ondersteuning op maat, bij Reynaers Aluminium helpen we je professioneel op weg.
Met onze oplossingen hebben we één doel: jullie werk vergemakkelijken.
Voor architecten en stakeholders
We brengen je visie tot leven met deskundig advies en geavanceerde tools. 3D-visualisatie en projectoplossingen op maat zijn slechts een paar van de services waarmee we je helpen om elke architecturale uitdaging te overwinnen.
Voor fabrikanten
Wij begeleiden je van a tot z, zorgen dat je je dagelijkse taken efficiënter kunt uitvoeren en helpen je om te groeien aan een tempo dat voor jou comfortabel aanvoelt. Voor ons staat jouw bedrijf centraal. We stellen dan ook alles in het werk om je op het juiste moment de tools en ondersteuning te bieden die je nodig hebt.


Tools & services voor architecten en stakeholders
Building Information Modelling (BIM) is niet meer weg te denken uit de bouwsector van vandaag. Bij Reynaers Aluminium helpen we architecten bij het bouwen van architecturale 3D-modellen door hen BIM-objecten van onze standaardproducten te verstrekken en toegang te geven tot gebruiksvriendelijke configuratiesoftware.
Ons aanbod telt drie opties waarmee architecten hun projecten op de meest doeltreffende manier kunnen aanpakken.
1. BIM-bibliotheek
Tijdens de vroegste conceptfase kunnen architecten gebruikmaken van onze BIMbibliotheek. Daar vinden ze een collectie gratis basismodellen van specifieke configuraties van onze standaardproducten. Deze parametrische BIM-modellen bevatten generieke gegevens en kunnen rechtstreeks in de ontwerpprogramma’s Revit en Archicad worden aangepast. Download deze gratis softwaretool en laat je ontwerpinspiratie de vrije loop!
2. BIM Studio
Wanneer je later in de ontwerpfase complexere configuraties nodig hebt, is er BIM Studio. Deze gratis downloadbare ontwerpsoftware biedt het volgende niveau aan flexibiliteit: hier kun je elk type raam, deur of schuifsysteem configureren. Start gewoon met een Reynaers Aluminium-systeem, kies een rooster, voeg openingen toe, probeer verschillende kleuropties uit en pas alles naar wens aan. Daarnaast kun je in BIM Studio makkelijk Uw-waarden raadplegen en doorsneden van je configuraties maken.

Klaar? De geconfigureerde modellen zet je makkelijk rechtstreeks over naar je complete BIM-project.
3. BIM Unlimited
Bij zeer complexe projecten vereisen gerelateerde BIM-modellen een hoge aanpasbaarheid van onze producten. Die boodschap hebben we bij Reynaers Aluminium goed begrepen. Ons antwoord daarop is onze service BIM Unlimited, die specifiek gericht is op projecten op maat. Hoe complex je project ook is, ons deskundige modelleerteam maakt op aanvraag de BIM-modellen die je nodig hebt.
Bekijk de BIM-downloads en andere technische downloads in ons portaal voor professionelen
In het portaal voor professionelen op www.reynaers.be/architecten vind je op één plek alle tools en informatie die je nodig hebt om jouw visie te realiseren. Van BIM-modellen tot oplossingen op maat of ondersteuning op locatie: wij zijn jouw partner in het leven.
Tools & services voor architecten en stakeholders

Quatuor, Brussel, België
Jaspers Eyers Architects
Foto: Philippe Piraux
De Projectcel biedt oplossingen op maat, ultieme keuzevrijheid en nauwere betrokkenheid bij alle stakeholders. Hier worden de meest geavanceerde oplossingen ontworpen, vervaardigd en getest om concepten en ideeën te verwezenlijken. Met de ervaring, simulatietools en ontwerpskills van onze experts is alles mogelijk.
Maatwerk
Passen de standaardsystemen niet bij de vereisten voor je gebouw? De Projectcel gaat de uitdaging aan en werkt samen met de stakeholders van het project om oplossingen op maat te realiseren. We berekenen, ontwerpen en simuleren concepten tot in de kleinste details en maken 3D-visualisaties van deze oplossingen in tools zoals BIM of Avalon, onze virtualrealityruimte. Ook bij deze systemen op maat kun je vertrouwen op onze beproefde kwaliteit, want we testen al onze oplossingen volgens de vereiste normen in ons eigen Technology Centre.
Na de ontwerpfase volgen we je naar de bouwplaats om te bekijken op welke manieren we je kunnen helpen om de beste resultaten te bereiken. Daarbij houden we rekening met de complexiteit van het project en het ervaringsniveau van onze partners. We kunnen bijvoorbeeld trainingen over het productie- of installatieproces organiseren, of zelfs ons team van schrijnwerkexperts op pad sturen om begeleiding op locatie te bieden.

Projectbegeleiding op maat
Met de expertise van de Projectcel en de kracht van Avalon kun je elke uitdaging aan. Ontdek meer over onze service op maat die voldoet aan jouw gebouwspecifieke aluminiumbehoeften op onze website: www.reynaers.be/projectbegeleiding


Ideeën en concepten uitwisselen is cruciaal in elk groot modern bouwproject. Architecten, investeerders en aannemers gebruiken allemaal verschillende tools om zich mentaal en fysiek een beeld te vormen van hoe het eindresultaat eruit zal zien. We hebben gemerkt dat het risico op misverstanden veel kleiner wordt als we medewerkers uit verschillende disciplines samenbrengen in Avalon.
Onze virtualrealityruimte Avalon helpt stakeholders om projecten te visualiseren en te evalueren voordat de eerste steen is gelegd. Hier kun je door virtuele versies van projecten ‘wandelen’ om verschillende oplossingen te ontdekken, te vergelijken en te bespreken.

Hoe werkt het?
Onze 3D-experts maken een digitaal model van je gebouw op basis van je technische toegangsgegevens. Daarna projecteren we dat model in hoge resolutie op de vijf muren van de virtualrealityruimte op Reynaers Campus, ons hoofdkantoor in België. Zet de responsieve 3D-bril op, pak de controller en stap met tot zes andere stakeholders je toekomstige project binnen in deze samenwerkingstool.


Tools & services voor fabrikanten
Een echte vakman weet hoe waardevol nauwkeurige gegevens en gebruiksvriendelijke tools zijn. Of je nu in je werkplaats bent, op de werf aan de slag bent of gewoon op zoek bent naar nieuwe manieren om efficiënter te werken: Reynaers Aluminium helpt je bij het optimaliseren van je dagelijkse taken. Als transparante professionele partner staan we voor je klaar met gedegen vakkennis en een ruim aanbod digitale services.
Portaal voor vakmannen: toegang tot je dagelijkse toolkit
Als bouwprofessional moet je alle actuele technische informatie en tools die je nodig hebt op het juiste moment op één locatie kunnen vinden. Daarom krijgen onze Reynaers Aluminium Partners en Installers exclusieve toegang tot ons online platform voor professionals: het Reynaers Aluminium portaal voor vakmannen.
Op ons portaal voor vakmannen vind je alle informatie en services die tijdens je project van pas komen, van productinformatie tot voorraadupdates, opvolging van bestellingen en praktische informatie over onze softwarepakketten. Bovendien kun je hier onze volledige digitale productcatalogus ontdekken, inclusief alle montagedetails en technische specificaties voor onze oplossingen.
Ben je op zoek naar trainingsvideo’s? Heb je informatie nodig over onze marketingondersteuning? Eén adres: het portaal voor vakmannen. Wat je ook wenst, hier vind je het.
Docu Portal
Docu Portal is de digitale hub waar je al onze actuele technische informatie vindt. Met dit portaal willen we onze technische community nog beter ondersteunen, informatie makkelijk toegankelijk maken en ervoor zorgen dat onze partners mee zijn met de nieuwste updates.
Het is niet zomaar een documentbeheersysteem: Docu Portal is een echte oplossing op maat.
Stroomlijn je workflow met intuïtieve navigatie en realtime-updates. Maak virtuele metingen in 2D en visualiseer oplossingen in 3D.
Geen tijd om door de 20.000 pagina’s van onze fysieke catalogus te bladeren?
Stel gewoon je eigen offline catalogus samen volgens jouw behoeften.
Daarbovenop heeft het portaal een geïntegreerde materiaalconfigurator die je wegwijs maakt in ons uitgebreide aanbod materialen en accessoires. Zo kun je makkelijk verschillende opties vergelijken en maak je steeds de beste keuze voor je project.
Kortom: Docu Portal is er om je het leven makkelijk te maken.

Intuïtieve digitale tools
Een efficiënte manier nodig om kleurcodes, U-waarden, akoestische prestaties of andere productkenmerken te berekenen? Wij ontzorgen je met deze gebruiksvriendelijke Reynaers Aluminium-tools. Je vindt ze gratis terug in ons klantenportaal.
• U tool - Bereken nauwkeurige U-waarden in enkele seconden.
• Kleurcodecalculator - Vind de precieze RAL-kleur en afwerking die je zoekt.
• Akoestische calculator - Bereken de akoestische prestaties van al je configuraties.
• Toegangscontroleconfigurator – Configureer de beste opstelling en het bijbehorende bedradingsschema voor je project.
• Materiaalconfigurator – Vergelijk de materiaalopties tot in detail.
• Word Reynaers Aluminium vakman
Van projectvisualisatie tot productieondersteuning, kostenraming en meer: bij Reynaers Aluminium staan we voor je klaar. Bekijk ons ruime aanbod van professionele services voor vakmannen op www.reynaers.be/portaal-vakmannen
Tools & services voor fabrikanten
Om de klus op tijd én binnen het budget te klaren, zijn efficiëntie en nauwkeurigheid essentieel. Daarom hebben we aanpasbare softwaretools ontwikkeld die je helpen bij elk aspect van je bedrijf.
ReynaPro
Optimaliseer je berekeningen en bestellingen met ReynaPro. Deze veelzijdige tool genereert nauwkeurige prijsopgaven op basis van de technische specificaties van je project. Daarnaast berekent ReynaPro welke materialen je nodig hebt, krijg je gedetailleerde montageinstructies en kun je je bestelling rechtstreeks plaatsen via je gekoppelde ERP-systeem. De tool kan zelfs worden gekoppeld aan onze slimme CNC-machines. Klinkt dat interessant? Onze experts geven je graag meer uitleg over wat ReynaPro voor jou kan betekenen.


ReynaFlow
ReynaFlow is ons eigen MES (Manufacturing Execution System). Door streepjescodes te traceren, verzamelt deze tool informatie die je inzicht geeft in je dagelijkse productieworkflow. We evalueren je operationele werking en begeleiden je met professionele ondersteuning voor elke productiestap, van opstart tot afwerking. Het resultaat: minder fouten, minder papierwerk, optimaal resource management en een gestroomlijnd productieproces.
ReynaQuote
ReynaQuote is een gebruiksvriendelijke productconfigurator die je op je desktop, tablet of smartphone kunt gebruiken. Met deze webtool kunnen je salesmedewerkers of installateurs overal configuraties bouwen, nauwkeurige offertes opstellen en snel en eenvoudig bestellingen van fabrikanten plaatsen.
Tools & services voor fabrikanten
Onze hoogwaardige systemen en efficiënte softwareoplossingen ken je al. Maar wist je ook dat Reynaers Aluminium je kan helpen bij het kiezen van machines en gereedschap?
Ons Industrie 4.0-team bekijkt samen met jou hoe je je productieproces en machinepark nog efficiënter kunt maken, rekening houdend met jouw professionele behoeften. Van volledig uitgeruste CNC-machines tot eenvoudige geleide matrijzen: met Reynaers Aluminium als productiepartner beschik je over alles wat je nodig hebt.
Digitale integratie
Om de efficiëntie van je machines te maximaliseren, raden we je aan om ze te koppelen met onze productconfiguratiesoftware ReynaPro.
Via die slimme koppeling stuur je de officiële productinformatie van elk profiel rechtstreeks naar je CNC-machines, zonder dat je manueel iets hoeft te doen.
Bovendien krijg je toegang tot een nauwkeurige, actuele database met profielen, klemmen, walsen, mallen en nog veel meer, zodat je onze aluminium systemen altijd optimaal kunt verwerken.
Persoonlijke ondersteuning van a tot z
Je werkplaats een upgrade geven, dat is vaak een hele investering. Gelukkig kun je als vertrouwde partner elke dag op onze ondersteuning rekenen. Van de indeling van je fabriek over de instelling van je machines tot training en onderhoud: in elke fase werken we ‘together for better’. Of je nu een kleinschalige fabrikant bent of een grote professionele partner, met de juiste machines op de juiste plaats en het juiste moment bereikt ook jouw bedrijf zijn volledige potentieel.
Weet je niet zeker waar je moet beginnen? Onze consultants geven je graag professioneel advies, afgestemd op jouw behoeften. Neem contact op met je Reynaers Aluminium account manager voor meer informatie.

Tools & services voor fabrikanten
De partners van Reynaers Aluminium zijn het rechtstreekse aanspreekpunt voor de meeste van onze eindgebruikers. Daarom is het belangrijk dat professionals niet alleen onze producten, maar ook ons merk goed kennen.
Met speciale communicatietools en gebruiksvriendelijke marketingrichtlijnen zorgen we ervoor dat je als het gezicht van ons bedrijf een duurzame relatie met je klanten kunt opbouwen. Daarnaast investeren we in sterke campagnes, bouwen we actief aan onze naamsbekendheid, genereren we kwalitatieve leads via gerichte acties en zorgen we voor een zichtbare aanwezigheid op vakbeurzen en evenementen.
Zo ondersteunen we je bij elke stap in het verkoopproces en versterken we samen de positie van Reynaers Aluminium in de markt.
Onze hands-on technische en marketingtools helpen je om onze oplossingen als een betrouwbare, goed geïnformeerde partner te presenteren.
We stellen je de volgende hulpmiddelen en services ter beschikking:
• Showroommateriaal zoals hoeksamples, dozen met kleurenplaatjes, gadgets ...;
• digitale productbrochures en folders;
• merkpresentaties, afbeeldingen, documenten en sjablonen;
• online bibliotheek met trainingsvideo’s;


We willen van Reynaers Aluminium een merk maken dat wereldwijd wordt herkend. Dat begint bij de manier waarop onze partners onze oplossingen presenteren in hun faciliteiten. Daarom hebben we duidelijke richtlijnen opgesteld over hoe je je bedrijf in overeenstemming met onze visuele identiteit kunt promoten. Leer hoe je je showroom goed structureert en inricht, verbeter je marketingvaardigheden en til de klantervaring van je bedrijf naar een hoger niveau. Wij staan voor je klaar met professioneel advies en marketingbegeleiding op maat van jouw bedrijf.
• Ontdek meer marketingmateriaal op het portaal voor vakmannen
Het portaal voor vakmannen is dé plek waar fabrikanten alle informatie en tools van Reynaers Aluminium vinden die ze nodig hebben, zoals marketingmateriaal. Lees er meer over op pagina 112.
Tools & services voor fabrikanten
Om de prestaties van onze aluminium systemen op lange termijn te garanderen, is het cruciaal dat ze optimaal worden geproduceerd en geïnstalleerd. Daarom delen we onze expertise en vakkennis met onze partners, zodat ook zij hun klanten dezelfde topservice kunnen bieden.
Reynaers Aluminium biedt tal van online en face-to-face trainingsmogelijkheden, van introducties tot gespecialiseerde sessies op aanvraag. Ons aanbod praktijkopleidingen omvat zowel standaardtrainingen als ‘gecertificeerde’ specialisatiecursussen over producten. Daarnaast organiseren we toegankelijke softwarecursussen. In het klantenportaal vind je een lijst met de geplande opleidingen en een bibliotheek vol trainingsvideo’s.
Op onze Reynaers Campus organiseert ons enthousiaste trainingsteam zo’n 2000 opleidingsdagen per jaar, zowel voor onze partners als voor onze eigen medewerkers. Deelnemers van over de hele wereld komen er hun kennis bijschaven.
Jouw bedrijf is belangrijk. Daarom streven we ernaar om je bij elke stap de best mogelijke ondersteuning te bieden. Wij helpen je om je projecten af te werken, je personeel te trainen en nieuwe klanten aan te trekken. We bieden persoonlijke ondersteuning, wanneer je ons ook nodig hebt. Je bent een lid van onze wereldwijde familie, dus staan we altijd voor je klaar. Wat je ook nodig hebt, wij werken ‘Together for better’.



We zijn trots op ons netwerk van professionele partners die hoogwaardige, duurzame gebouwen realiseren. Elk project dat ze opleveren, is het resultaat van een nauwe samenwerking tussen alle stakeholders. Dankzij hen zijn onze aluminium systemen te vinden in talloze gebouwen over de hele wereld, in elke vorm en stijl die je kunt bedenken. Van bescheiden privéwoningen tot scholen ziekenhuizen, kantoren of duizelingwekkende wolkenkrabbers: Reynaers Aluminium gaat elke uitdaging aan.
Bekijk onze realisatieboeken voor nog meer inspiratie
Onze oplossingen zijn te bewonderen in adembenemende bouwprojecten van elk formaat. We hebben een aantal van de bijzonderste creaties gebundeld in een inspirerende brochure. Download één van onze inspiratieboeken op www.reynaers.be/gratis-inspiratieboeken





Keerbergen,
INZICHT Architecten
Foto:

In
de bouwsector is duurzaamheid een grote uitdaging. Een uitdaging die voortdurend verandert en vraagt om een totaalaanpak op de lange termijn.
Wij bij Reynaers Aluminium zijn ervan overtuigd dat duurzaam werken méér is dan alleen naar één aspect kijken of de zaken vanuit slechts één perspectief benaderen. Je moet het hele plaatje bekijken. Daarom kiezen wij voor een allesomvattende aanpak en houden we rekening met elk facet van duurzaamheid.
Dat past perfect bij onze missie om de leef- en werkomgeving te verbeteren voor toekomstige generaties. Dat doen we door gebouwen te helpen creëren die niet alleen vandaag efficiënt zijn, maar ook duurzaam en waardevol tot ver in de toekomst.
Wanneer je de ecologische impact van een gebouw in kaart wilt brengen, is het zo belangrijk om op de lange termijn te denken en de hele levensduur van dat gebouw in overweging te nemen.
Echte duurzaamheid vraagt namelijk om een breder perspectief waarin ruimte is voor tal van aspecten, zoals bouw, gebruik, renovatie, demontage, recyclage en meer.
Cruciaal is om alles van alle kanten te bekijken en je niet te beperken tot de oorspronkelijke bouwfase.
• We ontwerpen, testen en certificeren onze oplossingen met het oog op energie-efficiëntie en klimaatbestendigheid. Dat doen we in ons eigen testcentrum.
• We ontwerpen onze producten met een ecologische insteek en bieden klanten met plezier oplossingen op maat via onze projectcel.
• We zorgen dat onze oplossingen traceerbaar zijn tijdens hun hele levenscyclus, onder meer met ons digitale productpaspoort Digitrace, EPD's van onze producten en onze EPD-generator.
• We werken met koolstofarme materialen, in overeenstemming met de Green Deal van de EU.
• We bezorgen je alle informatie die je nodig hebt om groene bouwcertificaten te behalen, zoals LEED en BREEAM.
• We beschikken over productoplossingen met het label Cradle-to-Cradle.


Hoe we werken
Wat duurzaamheid inhoudt, dat evolueert voortdurend. Elke dag leren we bij op dat vlak. Bovendien is niet op alle vragen al een pasklaar antwoord beschikbaar.
Samenwerking vormt de kern van onze aanpak als bedrijf. ‘Together for better’ is niet voor niets ons motto. Als partners geraken we verder en bereiken we duurzamere resultaten.
Duurzaamheid is stevig verankerd binnen ons bedrijf. Het zit in ons DNA. Een positieve invloed hebben op de bebouwde omgeving die we helpen vorm te geven, dat is ons doel.
Van een familiebedrijf met al meer dan 60 jaar op de teller mag je niets minder verwachten dan dat. Wij denken vandaag aan hoe we onze planeet leefbaar kunnen houden voor de generaties van morgen.

We geloven in open gesprekken waarin we kennis delen, aannames in vraag durven stellen en ruimte maken voor nieuwe inzichten. Door samen het bekende én het onbekende te verkennen, kunnen we de wereld rondom ons nog beter begrijpen. Samen creëren we de beste duurzame oplossing voor elk project.
Scan de QR-code voor meer informatie over onze duurzaamheidsstrategie.
“Samen werken we aan een betere woon- en werkomgeving, voor mensen van vandaag én voor toekomstige generaties.”
Reynaers Aluminium maakt deel uit van de Reynaers Group en is een toonaangevende specialist in de ontwikkeling en commercialisering van innovatieve, duurzame aluminium oplossingen voor ramen, deuren en gevels. Samen met onze partners streven we naar energie-efficiënte, verantwoord vervaardigde producten die een verschil maken voor huizen, gebouwen en de mensen voor wie ze dienen.
Reynaers Aluminium werd in 1965 opgericht en telt momenteel ruim 2.650 werknemers in meer dan 40 landen. Het bedrijf exporteert zijn producten naar meer dan 70 landen, verspreid over 5 continenten. In 2023 boekte de Reynaers Group een jaaromzet van 704 miljoen euro.
De onderneming dankt haar succes ook aan de nauwe samenwerking met 5000 fabrikanten, architecten en projectontwikkelaars over de hele wereld. Die unieke samenwerking vatten we ook in ons motto: Together for better.
Op de Reynaers Campus, ons hoofdkantoor in België, delen we onze kennis en ervaring volop met architecten, fabrikanten, aannemers en andere partners uit de bouwsector en inspireren we hen met nieuwe technologieën. Naast het Technology, Training & Automation Centre is er op de Reynaers Campus ook een Experience Centre gevestigd, waar je toekomstige gebouwen kunt verkennen in onze virtualrealityruimte Avalon.
Meer informatie vind je op www.reynaers.be