OLD Alumecum FR

Page 1

Alumecum

Fenêtres. Portes. Murs-rideaux.

Axis Tower, Tbilissi, Géorgie Architecte : Nino MosulishviliNikoloz KilasoniaAlexander MezhevidzeGega Astakhishvili Photographie : Tamar Digmelashvili Together for better www.reynaers.be The Giving Tree, Californie, États-Unis Architecte : Faulkner Architects
2
Photographie : Joe Fletcher Photography

Table des matières

Introduction 4-5

Fenêtres et portes 6-7 Possibilités 8 Performances 10 Types d’ouverture 12 MasterLine 8 14 MasterLine 10 18 SlimLine 38 20 ConceptSystem 77-Fireproof 22 ConceptSystem 77-Bulletproof 23

Systèmes coulissants 24-37 Design et performances 26 Types d’ouverture 27 Hi-Finity 28 MasterPatio 30 ConceptPatio 130 32 ConceptPatio 155 34 ConceptFolding 77 36 Murs-rideaux 38-51

ConceptWall 50 40 ConceptWall 50-Fireproof 43 ConceptWall 60 44 ConceptWall 65-EF 46 ElementFaçade 7 48 ConceptWall 86(-EF) 50 Vérandas 52-55 ConceptRoof 120 54 Accessoires 57-63 Paralline 58 BriseSoleil 60 Mosquito 61 Balustrades 62 Solar 63

Poignées 64-69 Contour 66 Touch 67 Horizon 69 Activités et services 70-83 Produits innovants et de haute qualité 72 Garantie système de 10 ans 73 Couleurs et finitions infinies 74 Solutions sur mesure 75 Testé et validé de manière approfondie 76 Marquage CE 77 Digitale dienstverlening langs de ‘value chain’ 78 De solides outils de marketing 80 Formation et assistance pratiques 81 Durabilité 82 Campus Reynaers 83

3

Bienvenue dans l’univers Reynaers Aluminium

Reynaers Aluminium conçoit des systèmes de menuiserie aluminium innovants et durables pour certains des bâtiments les plus emblématiques du monde depuis plus de 50 ans. Notre gamme de fenêtres, portes et murs-rideaux en aluminium ne cède à aucun compromis, ce que peuvent attester les plus grands architectes et entreprises de construction du monde.

Reynaers Aluminium est apprécié dans le monde entier pour la qualité supérieure de ses produits. Nous avons investi dans un centre de conception et d’essais dernier cri pour faire honneur à cette réputation. En choisissant un produit Reynaers Aluminium, vous avez la certitude d’opter pour un produit non seulement à l’aspect exceptionnel, mais également aux performances et à la fiabilité irréprochables.

Together for better

Telle est notre devise. Nous entendons nous profiler comme un véritable partenaire et partager notre connaissance à l’échelle mondiale avec les fabricants, les architectes et les autres acteurs du marché. Notre approche collaborative transparente et proactive nous permet de prétendre aux normes les plus élevées et de réaliser ensemble les meilleurs résultats, quelle que soit la taille du projet.

Prêt pour l’avenir Leader du marché en Belgique, Reynaers Aluminium ne cesse de renforcer sa position dans plus de 40 pays, chacun disposant de ses propres bureaux.

4

Quartier général de Reynaers, le Campus Reynaers est situé à Duffel (Belgique). Le Campus Reynaers constitue à la fois un cadre de travail dynamique et une source d’inspiration pour tous les employés de Reynaers Aluminium, ainsi qu’un lieu où les partenaires découvriront les derniers produits et innovations en toute interactivité.

Le Campus Reynaers renferme le centre d’expériences, un lieu de rassemblement et d’inspiration où nos dernières solutions et technologies de pointe sont au service de l’architecture et de la construction.

La Salle d’expériences, grâce à des applications numériques truffées d’inspiration, vous permet de découvrir notre offre unique. Pour une expérience immersive complète, il est possible de réserver une visite à AVALON où vous pourrez plonger dans les bâtiments du futur grâce à la réalité virtuelle partagée.

Outre ces installations, le Campus Reynaers comprend également le Centre technologique, le plus grand centre

d’innovation et d’essais privés, pour la validation des concepts architecturaux et de haute technologie des fenêtres, portes et façades. L’une des vitrines du Centre technologique est son mur d’essais avantgardistes d’une hauteur de 15 mètres permettant de soumettre des façades de plusieurs étages à des essais d’étanchéité à l’air, au vent et à l’eau. Cette partie du Campus Reynaers abrite également le ‘R-Lab’, notre laboratoire spécialisé dans le prototypage et l’impression 3D, qui assure un suivi plus rapide et plus précis des R & D.

Une croissance impressionnante Reynaers Aluminium fait partie du groupe Reynaers. Ce groupe international a connu une croissance remarquable au cours des 30 dernières années. Fort d’une croissance de plus de 200 % au cours des 10 dernières années, Reynaers Aluminium est perçu par tous les acteurs de l’industrie comme l’un des leaders dans son secteur. Reynaers a réalisé un chiffre d’affaires de 555 millions d’euros en 2020 et compte plus de 2 400 employés dans le monde entier.

5 BIENVENUE DANS L’UNIVERS REYNAERS ALUMINIUM
MasterLine 8 SlimLine 38 MasterLine 10
6
Varso 1 & 2, Varsovie, Pologne Architecte : Hermanowicz Rewski Architekci (HRA)

Fenêtres

et portes ConceptSystem 77 Fireproof ConceptSystem 77 Bulletproof 7
FENÊTRES ET PORTES
FENÊTRES MasterLine SlimLine ConceptSystem 8 10 38 77-FP 77-BP FONCTIONNEL OUVRANT CACHÉ RENAISSANCE DÉCO CUBIC FERRO CLASSIC
Fenêtres et portes 8
Options de design
Architecte : Prographic Architecture Studio Photographie :
PORTES MasterLine SlimLine ConceptSytem 8 10 38 77-FP 77-BP CHARNIÈRES CACHÉES CHARNIÈRES À ROULEAUX CHARNIÈRES EN APPLIQUE
Cosmin Dragomir
2021 disponible 9
ET PORTES
prévu pour
FENÊTRES

Caractéristiques et performances

Fenêtres et portes

VARIANTES DE SÉCURITÉ

Anti-effraction Anti-feu Pare-balles DURABILITÉ High Insulation Composant certifié par le Passive House Institute Label Minergie LARGEUR MINIMALE VISIBLE DORMANT/OUVRANT 97 mm 97 mm 97 mm 104 mm 67 mm 67 mm 150 mm 128 mm

PERFORMANCES

Isolation section dormant/ouvrant (valeur Uf ≥…) 1,9 W/m2K 1,5 W/m2K 1,2 W/m2K 0,9 W/ m²K 2.2 W/m2K 1.8 W/m²K 2,2 W/m²K 1,8 W/m²K Classe d’étanchéité à l’air (valeur en Pa) 4 (600 Pa) 4 (600 Pa) 4 (600 Pa) 4 (600 Pa) 4 (600 Pa) 4 (600 Pa) 4 (600 Pa) 4 (600 Pa)

Classe de résistance à la charge du vent (valeur en Pa) C4 (1600 Pa) C4 (1600 Pa) C4 (1600 Pa) C4 (1600 Pa) C4 (1600 Pa) C4 (1600 Pa) C2 (800 Pa) C5 (2000 Pa)

Classe d’étanchéité à l’eau (valeur en Pa) E900 (900 Pa) E900 (900 Pa) E900 (900 Pa) E900 (900 Pa) 9A (600 Pa) 9A (600 Pa) 7A (300 Pa) 9A (600 Pa) (1) Porte à panneau uniquement (2) Porte-fenêtre Vérifiez les données les plus récentes dans le passeport CE

ConceptSystem
FENÊTRES MasterLine SlimLine
8 8 HI 8 HI+ 10 38 38 HI 77-FP 77-BP
10

PERFORMANCES

PORTES MasterLine SlimLine ConceptSystem 8 8 HI 8HI+ 10 38 37 HI 77-FP 77-BP VARIANTES
SÉCURITÉ Anti-effraction Anti-feu Pare-balles DURABILITÉ High Insulation Composant certifié par le Passive House Institute Label Minergie LARGEUR MINIMALE VISIBLE DORMANT/OUVRANT 162 mm 162 mm 162 mm 134 mm 102 mm 102 mm 150 mm 128 mm
DE
Isolation
2.0 W/m²K 2.0 W/m²K 1.4 W/m²K 0,9 W/m2K 2.2 W/m2K 1.8 W/m²K 2,2 W/m²K 1,8 W/m²K
4
Pa) 4 (600 Pa) 4
Pa) 4
Pa) 4
Pa) 4 (600 Pa) 4 (600 Pa) 4 (600 Pa)
C3 (1200 Pa) C3 (1200 Pa) C3 (1200 Pa) C4 (1600 Pa) C4 (1600 Pa) C4 (1600 Pa) C2 (800 Pa) C5
Pa)
7A (300 Pa) 7A (300 Pa) 7A (300 Pa) E900
Pa) 9A (600 Pa) 9A (600 Pa) 7A (300 Pa) 9A (600 Pa) Basé sur les portes planes pour MasterLine et sur les fenêtres portes pour SlimLine 38
AG
Schulthess (4) (2) (1) 11 FENÊTRES ET PORTES
section minimale dormant/ouvrant (valeur Uf ≥…)
Classe d’étanchéité à l’air (valeur en Pa)
(600
(600
(600
(600
Classe de résistance à la charge du vent (valeur en Pa)
(2000
Classe d’étanchéité à l’eau (valeur en Pa)
(900
Architecte : Enzmann & Fischer
Photographie : Bruno Rubatscher / Danny

Types d’ouverture

et

FENÊTRES MasterLine SlimLine ConceptSystem 8 10 38 77-FP 77-BP
12
Fenêtres
portes * * Solution CS 86-HI
Architecte : Mark Van Acker
PORTES MasterLine SlimLine ConceptSystem 8 10 38 77-FP 77-BP 13
Photographie : Debbie De Brauwer FENÊTRES ET PORTES

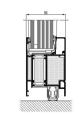
MasterLine 8

Fenêtres

Du sur-mesure

MasterLine 8 combine plusieurs types d’ouverture, de variantes de design et de niveaux d’isolation en une seule plate-forme avec une profondeur d’encastrement de 77/87 mm. Tous les types d’ouverture sont disponibles en trois niveaux d’isolation (standard, HI et HI+). Des fenêtres plus grandes sont possibles avec des profilés plus résistants et des lignes de vue plus étroites. La variante de design fonctionnel offre la plus large gamme de profilés s’harmonisant à des profilés tels que des éléments coulissants, le profilage de mursrideaux, etc.

Face à la prise de conscience de notre impact écologique sur l’avenir, il est nécessaire d’améliorer les performances d’isolation et l’étanchéité à l’air et à l’eau.

MasterLine 8 permet d’associer d’office une étanchéité à l’eau élevée et une perte d’air limitée sous une pression de 600 Pa, avec d’excellentes valeurs thermiques et un poids du vitrage allant jusqu’à 200 kg pour une fenêtre oscillo-battante.

Pour MasterLine 8, le processus de fabrication, de la planche à dessin à l’installation des fenêtres, a été simplifié, ce qui améliore la productivité lors de la création de fenêtres en aluminium. Une sensibilité moindre aux tolérances lors de la pose des fenêtres, des joints et des mousses moins nombreux et plus faciles à appliquer sont autant d’éléments qui facilitent la production de fenêtres de haute qualité.

CARACTÉRISTIQUES TECHNIQUES

Largeur visible min. de fenêtre ouvrant vers l’intérieur

Dormant 53 mm 53 mm 53 mm 80 mm Ouvrant 37 mm 37 mm 37 mm

Dormant 77 mm 87 mm 87 mm 77 mm Ouvrant 87 mm 87 mm 87 mm 80 mm Hauteur d’ouvrant max. 2800 mm 2800 mm 2800 mm 2800 mm Poids max. de l’ouvrant 200 kg 200 kg 200 kg 150 kg Hauteur de feuillure 27 mm 27 mm 27 mm Épaisseur de vitrage

Profondeur

Dormant jusqu’à 62 mm jusqu’à 62 mm jusqu’à 62 mm jusqu’à 62 mm Ouvrant jusqu’à 72 mm jusqu’à 62 mm jusqu’à 62 mm jusqu’à 57 mm

PERFORMANCES

Isolation thermique*

Standard: valeur Uf jusqu’à min. 1,9 W/m²K HI: valeur Uf jusqu’à min. 1.5 W/m²K HI+: valeur Uf jusqu’ à min. 1.2 W/m²K

Performances acoustiques Rw(C;Ctr) = 45 (-1; -4) dB, jusqu’à 49 (-1;-5) (Ouvrant caché) en fonction du type de vitrage

Étanchéité à l’air Jusqu’à 600 Pa (classe 4)

Résistance au vent Jusqu’à C5 (2000 Pa)

Étanchéité à l’eau Jusqu’à 1200 Pa (E1200)

Résistance à l’effraction Jusqu’à RC 3 (EN 1627)

*en fonction de la combinaison dormant/ouvrant et de l’épaisseur du vitrage

FONCTIONNEL RENAISSANCE DECO OUVRANT CACHÉ
14

CARACTÉRISTIQUES TECHNIQUES OUVRANT VERS L’EXTÉRIEUR SOFTTONE (POW) OUVRANT DE VENTILATION FENÊTRE PIVOTANTE

Largeur visible min. de fenêtre

Profondeur

Dormant 27 mm 27 mm 53 mm 64 mm Ouvrant 118 mm 124 mm 105 mm 89 mm

Dormant 77 mm 237 mm 77 mm 77 mm Ouvrant 87 mm 161 mm 87 mm 86 mm

Hauteur d’ouvrant max. 2400 mm 2600 mm 2800 mm 2500 mm Poids max. de l’ouvrant 130 kg 200 kg 200 kg Hauteur de feuillure 27 mm 27 mm s.o. 25 mm Épaisseur de vitrage

Dormant jusqu’à 62 mm s.o. s.o. s.o. Ouvrant jusqu’à 72 mm jusqu’à 54 mm s.o. jusqu’à 61 mm

Varso 1 & 2, Varsovie, Pologne
15
Architecte : Hermanowicz Rewski Architekci (HRA) FENÊTRES ET PORTES

MasterLine 8

Portes

Du sur-mesure

Les portes MasterLine 8 offrent une large gamme de portes affleurantes très isolées et robustes qui répondent aux exigences modernes de sécurité, d’isolation thermique et de stabilité tout en autorisant des portes d’entrée de grandes dimensions. Les portes MasterLine se déclinent en portes vitrées ou à panneaux ouvrant vers l’intérieur ou l’extérieur, ainsi que comme portes pivotantes. Toutes les portes peuvent être équipées d’une large gamme de serrures et de charnières.

Les portes MasterLine sont conçues pour répondre aux exigences du confort moderne. L’excellente étanchéité à l’air et les performances thermiques remarquables sont attestées par la certification délivrée par le Passive House Institute à la porte MasterLine 8.

Quant à la sécurité et aux performances, les robustes portes MasterLine sont conformes à la classe de résistance à l’effraction 3, compatibles avec de grandes dimensions et un poids allant jusqu’à 250 kg, et s’avèrent extrêmement durables (classe 8).

CARACTÉRISTIQUES TECHNIQUES

Largeur visible min. de porte ouvrant vers l’intérieur

Profondeur

Dormant 68.5 mm 68,5 mm 68,5 mm (-) Ouvrant 78,5 mm 104,5 mm (40 mm)

Dormant 77 mm 77 mm 77 mm Ouvrant 77 mm 77 mm 77 mm

Hauteur d’ouvrant max. 3000 mm 3000 mm 3000 mm (4000 mm) Poids max. de l’ouvrant 250 kg 250 kg 200 kg (500 kg) Hauteur de feuillure 27 mm 27 mm 27 mm Épaisseur de vitrage Ouvrant jusqu’à 62 mm jusqu’à 62 mm

PERFORMANCES

planes *pas valable pour variante XL **pour la variante ouvrant vers l’intérieur

Isolation thermique en fonction des profilés et de la composition du verre

A PANNEAUX

PORTE

PORTE AFFLEURANTE PORTE PIVOTANTE*

Uf allant jusqu’à 1.3 W/m²K Uf allant jusqu’à 1,3 W/m²K Uf allant jusqu’à 1,5 W/m²K Performances acoustiques (Rw=(C;Ctr)) Jusqu’à Rw(C;Ctr) = 46 (-1; -4) dB, en fonction du type de vitrage

Étanchéité à l’air 4 4 4

Résistance au vent 1600 Pa (Classe 4) 1200 Pa (Classe 3) 1200 Pa (Classe 3)

Étanchéité à l’eau 300 Pa (Classe 7A) 300 Pa (Classe 7A)** 150 Pa (Classe 4A)

Résistance à l’effraction RC2 RC3 RC2

PORTE AFFLEURANTE PORTE PIVOTANTE (XL)
CERTIFIED COMPONENT Passive House Institute cool, temperate climate
16

Portes-fenêtres

CARACTÉRISTIQUES TECHNIQUES

Largeur visible min. de porte ouvrant vers l’intérieur

Profondeur

PORTE-FENÊTRE PORTE BAVETTE

Dormant 60 mm 60 mm Ouvrant 67 mm 67 mm

Dormant 77 mm 77 mm Ouvrant 87 mm 87 mm

Hauteur d’ouvrant max. 2800 mm 2800 mm Poids max. de l’ouvrant 180 kg 180 kg Hauteur de feuillure 27 mm 27 mm Épaisseur de vitrage

Ouvrant jusqu’à 68 mm jusqu’à 68 mm

PERFORMANCES

Isolation thermique en fonction des profilés et de la composition du verre

Performances acoustiques (Rw=(C;Ctr))

PORTE-FENÊTRE PORTE BAVETTE

Uf allant jusqu’à 1.1 W/m²K Uf allant jusqu’à 1,3 W/m²K

Jusqu’à Rw(C;Ctr) = 46 (-1; -4) dB, en fonction du type de vitrage

Étanchéité à l’air 4 4

Résistance au vent 1600 Pa (Classe 4) 1200 Pa (Classe 3)

Étanchéité à l’eau 600 Pa (Classe 9A)

Résistance à l’effraction RC2 RC2

8
MasterLine
*pas valable pour variante XL 17
PORTES
FENÊTRES ET

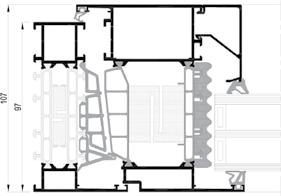
MasterLine 10

Fenêtres

Pas de compromis

Pas besoin de compromis : avec MasterLine 10, tout est possible. Ce nouveau système réunit le meilleur des mondes : une liberté de design illimitée combinée à un confort ultime et à des performances d’isolation optimales.

Les fenêtres MasterLine 10 sont conçues pour les tendances de construction d’aujourd’hui et de demain : bâtiment à faible consommation d’énergie, accès maximal à la lumière du jour, performances remarquables et maisons sûres (classe de résistance à l’effraction 3). L’offre de fenêtres MasterLine 10 est vraiment unique en son genre : des fenêtres ouvrant vers l’intérieur, une gamme complète d’impostes et de dormants, des profilés raccords avec les systèmes coulissants et murs-rideaux, mais aussi la liberté de design offerte par la gamme de profilés Renaissance et Déco.

Les fenêtres sont assorties d’un certificat de maison passive !

La combinaison de toutes ces caractéristiques fait du MasterLine 10 la solution idéale pour les projets résidentiels et publics.

CARACTÉRISTIQUES TECHNIQUES

Largeur visible min. de fenêtre ouvrant vers l’intérieur

Largeur visible min. de porte-fenêtre ouvrant vers l’intérieur

FONCTIONNEL RENAISSANCE DECO OUVRANT CACHÉ

Dormant 60 mm 60 mm 60 mm 80 mm Ouvrant 37 mm 37 mm 37 mm

Dormant 60 mm 60 mm 60 mm s.o. Ouvrant 67 mm 67 mm 67 mm s.o.

Dormant 97 mm 107 mm 107 mm 97 mm Ouvrant 107 mm 107 mm 107 mm 100 mm Hauteur de feuillure 27 mm 27 mm 27 mm Épaisseur de vitrage

Profondeur

Dormant jusqu’à 78 mm jusqu’à 78 mm jusqu’à 78 mm jusqu’à 78 mm Ouvrant jusqu’à 88 mm jusqu’à 88 mm jusqu’à 88 mm jusqu’à 77 mm

PERFORMANCES

Isolation thermique

Valeur Uf ramenée à 0,76 W/m²K en fonction de la combinaison dormant/ouvrant et de l’épaisseur du vitrage

Performances acoustiques Rw(C;Ctr) = 46 (-1; -4) dB, en fonction du type de vitrage

Étanchéité à l’air Jusqu’à 600 Pa (classe 4)

Résistance au vent Jusqu’à 2000 Pa (classe 5)

Étanchéité à l’eau Jusqu’à 900 Pa (classe E900)

Résistance à l’effraction Jusqu’à RC 3 (EN 1627)

Passive House
cool, temperate climate
CERTIFIED COMPONENT
Institute
18

MasterLine 10 Portes-fenêtres

Du sur-mesure

Les portes MasterLine 10 sont conçues pour les bâtiments basse énergie et les bâtiments passifs, sans sacrifier la liberté de conception, l’accès à la lumière du jour ou la sécurité.

Les portes-fenêtres MasterLine 10 sont disponibles en portes simples ou doubles ouvrant vers l’intérieur et l’extérieur. Elles peuvent être munies de quincaillerie de portes ou de fenêtres, de sorte qu’on puisse les ouvrir et les verrouiller de l’intérieur ou de l’extérieur. Ces portesfenêtres sont conçues pour les maisons basse énergie et les maisons passives.

La série 10 étant construite sur la plateforme MasterLine, elle partage de nombreux éléments avec les portes-fenêtres MasterLine 8 : équerres, joints de vitrage ainsi que le joint central, lui conférant le même niveau de performance, d’efficacité de production et de robustesse. Les trois variantes de design – Les designs Fonctionnel, Renaissance et Déco permettent d’adapter les portes-fenêtres MasterLine 10 à tous les styles architecturaux.

CARACTÉRISTIQUES TECHNIQUES

Largeur visible min. de porte ouvrant vers l’intérieur

PORTE-FENÊTRE

Dormant 60 mm Ouvrant 67 mm

Profondeur Dormant 77 mm Ouvrant 87 mm Hauteur de feuillure 27 mm Épaisseur de vitrage

Dormant jusqu’à 78 mm Ouvrant jusqu’à 88 mm

PERFORMANCES

Isolation thermique

Valeur Uf ramenée à 0.85 W/m²K en fonction de la combinaison dormant/ouvrant et de l’épaisseur du vitrage

Performances acoustiques apd

Étanchéité à l’air

Jusqu’à 600 Pa (classe 4)

Résistance au vent Jusqu’à 1200 Pa (classe 3)

Étanchéité à l’eau Jusqu’à 450 Pa (classe 8A)

Résistance à l’effraction Jusqu’à RC 2 (EN 1627)

19 FENÊTRES ET PORTES

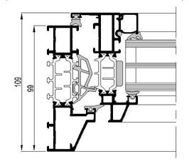
SlimLine 38

Fenêtres

Légèreté, élégance et confort

SlimLine 38 est un système hyper isolant qui associe élégance et confort à un design unique. Ce profilé spécial ultramince en steel conviendra parfaitement à l’architecture moderne et à la rénovation de fenêtres à dormant en acier, car il respecte le design originel tout en offrant une solution thermique améliorée.

Le système SlimLine 38 se décline en trois variantes de design minimaliste, Classic, Ferro et Cubic, pour s’adapter parfaitement à l’aspect architectural du bâtiment. Les fenêtres et les portes peuvent être équipées de double et triple vitrage sans compromettre leur aspect ultramince.

Combiné à ses capacités d’isolation élevées, ce système marie parfaitement matériaux durables, design épuré et défis architecturaux exigeants.

CARACTÉRISTIQUES TECHNIQUES

Largeur visible min. de fenêtre ouvrant vers l’intérieur

Dormant Ouvrant

Profondeur Dormant Ouvrant

Hauteur de feuillure Épaisseur de vitrage

PERFORMANCES

Isolation thermique*

Performances acoustiques

33 mm 38 mm 38 mm 33 mm 33 mm 33 mm 99 mm 76 mm 76 mm 86 mm 75 mm 86 mm 13,5 mm 13,5 mm 13,5 mm jusqu’à 55 mm jusqu’à 55 mm jusqu’à 55 mm

Standard: valeur Uf jusqu’à 3.2 W/m²K HI: valeur Uf ramenée à 1.8 W/m²K

Rw(C;Ctr) = 38 (-1; -4) dB / 45 (-1; -5) dB, en fonction du type de vitrage

Étanchéité à l’air Jusqu’à 600 Pa (classe 4)

Résistance au vent Jusqu’à 1600 Pa (Classe C4)

Étanchéité à l’eau Jusqu’à 600 Pa (classe 9A)

Résistance à l’effraction Jusqu’à RC 2 (EN 1627 et NEN 5096) + PAS 24

*en fonction de la combinaison dormant/ouvrant et de l’épaisseur du vitrage

CLASSIC CUBIC FERRO
20

CARACTÉRISTIQUES TECHNIQUES

Largeur visible min. de fenêtre ouvrant vers l’intérieur Dormant Ouvrant

Largeur visible min. de porte-fenêtre ouvrant vers l’intérieur Dormant Ouvrant

Profondeur Dormant Ouvrant

Hauteur de feuillure Épaisseur de vitrage

PERFORMANCES

Isolation thermique

Performances acoustiques

Standard: valeur Uf ramenée à 2.2 W/m²K HI: valeur Uf ramenée à 1.8 W/m²K

Rw(C;Ctr) = 38 (-1; -4) dB / 45 (-1; -5) dB, en fonction du type de vitrage

Étanchéité à l’air Jusqu’à 600 Pa (classe 4)

Résistance au vent Jusqu’à 1600 Pa (Classe C4)

Étanchéité à l’eau

Résistance à l’effraction

Jusqu’à RC 2 (EN 1627 et NEN 5096) + PAS 24 * il n’y a pas de porte dans la version cubic

Fenix I, Rotterdam, Pays-Bas Architecte : Mei architects and planners Photographie : Arthur Bagen
SlimLine 38 Portes-fenêtres CLASSIC CUBIC* FERRO 38 mm 38 mm 38 mm 33 mm 33 mm 33 mm 38 mm s.o.* 38 mm 63 mm s.o. 63 mm 99 mm 76 mm 76 mm 86 mm 75 mm 86 mm 13,5 mm 13,5 mm 13,5 mm jusqu’à 55 mm jusqu’à 55 mm jusqu’à 55 mm
21
FENÊTRES ET PORTES

ConceptSystem 77-Fire Proof Fenêtres et portes

Les ConceptSystem 77-FP EI30 et EI60 ont été conçus sur base des profilés et des accessoires existants du système ConceptSystem 77 pour fenêtres et portes et ont été largement testés dans le cadre d’un programme européen de test et d’agrément optimisé. Le laps de temps ignifuge est obtenu par du matériel de réfrigération spécial dans les chambres des profilés et par l’utilisation de joints gonflants autocollants et résistants à l’eau. Ces joints ne doivent pas être siliconés, ce qui diminue le temps de production des profilés tout en limitant les coûts.

La gamme ignifuge ConceptSystem 77 est disponible pour des portes simples et doubles s’ouvrant vers l’extérieur, des portes panique, des éléments de fenêtres fixes combinés, de même que des cloisons vitrées. Cette large gamme de configurations offre aux architectes un grand nombre d’options et de combinaisons. En outre, elle s’accompagne d’un grand choix d’accessoires et d’éléments de fermeture.

CARACTÉRISTIQUES TECHNIQUES

FIREPROOF EI30

Porte ConceptSystem 77-FireProof60

FIREPROOF EI60

Hauteur de feuillure 25 mm 25 mm Épaisseur de vitrage de 15 mm à 52 mm de 15 mm à 52 mm

Méthode de vitrage vitrage sec avec EPDM ou silicones neutres vitrage sec avec EPDM ou silicones neutres

PERFORMANCES

ANTI-FEU EI 30

ANTI-FEU EI 60

Normes d’essai européennes EN 1364-1 EN 1634-1 EN 1364-1 EN 1634-1

Norme de classification EN 13501-2 EN 13501-2

Classification de résistance au feu EW30, E30, EI130, EI230 EI45, EW60, E60, Ei160

Résistance à l’effraction Jusqu’à RC 2 (EN 1627)

22

ConceptSystem 77-Bullet Proof

Fenêtres et portes

ConceptSystem 77-Bullet Proof est une extension de ConceptSystem 77, qui permet la réalisation de fenêtres et portes pare-balles conformément aux normes européennes les plus strictes.

Nous offrons une gamme de solutions de portes et fenêtres pour les classifications FB3 à FB6, FSG et Kalachnikov.

En option, les fenêtres peuvent être proposées avec une résistance à l’effraction allant jusqu’à RC 3.

CARACTÉRISTIQUES TECHNIQUES PARE-BALLES

Largeur visible min. de fenêtre ouvrant vers l’intérieur

Dormant 128 mm Ouvrant

Largeur visible min. de porte affleurante ouvrant vers l’intérieur Dormant 77 mm Ouvrant 77 mm

Profondeur Dormant 97 mm Ouvrant 77 mm

Hauteur de feuillure 25 mm Épaisseur de vitrage de 25 à 63 mm

PERFORMANCES

Isolation thermique

Valeur Uf ramenée à 1,94 W/m²K en fonction de la combinaison dormant/ ouvrant

Performances acoustiques Rw (C; Ctr) ≤ 42 (-2; -4) dB, en fonction du type de vitrage

Étanchéité à l’air

Jusqu’à 600 Pa (classe 4)

Résistance au vent Jusqu’à 2000 Pa (classe 5)

Étanchéité à l’eau

Résistance aux balles

Résistance à l’effraction

Jusqu’à 900 Pa (classe E900)

Jusqu’à FB 6, FSG et Kalachnikov (EN 1522)

Fenêtres : jusqu’à RC 3 (EN 1627)

23 FENÊTRES ET PORTES
ConceptPatio 155 ConceptPatio 130 Hi-Finity Appartements Beaurivage, Bienne, Suisse Architecte : Bauzeit Architekten GmbH & Strässler Architektur Photographie : © yves-andre.ch MasterPatio 24

Systèmes coulissants

25
COULISSANTS
ConceptFolding 77
SYSTÈMES

Design et performances Systèmes coulissants et pliants

DURABILITÉ

PERFORMANCES ÉNERGÉTIQUE

VARIANTES DE DESIGN Hi-Finity MasterPatio ConceptPatio ConceptFolding 155 130 77 Fonctionnel Slim Line Monorail Multirail Motorisé Sol plan Seuil bas Pocket Angle ouvert Angle vitré VARIANTES
Résistance à l’effraction
Dormant 148/180
180
mm
DE SÉCURITÉ
PROFONDEUR TOTALE DU SYSTÈME (STANDARD)
mm
mm 155 mm 130 mm 77
Ouvrant 44/60 mm 77 mm 68 mm 59 mm 77 mm
High Insulation Niveau maison passive Rupture de pont thermique recyclé
2 W/m2K 1.4 W/m²K 1,6
2,35
Isolation (valeur Uf >=…)*
W/m²K
W/m²K 2,3 W/m²K Classe d’étanchéité à l’air (valeur en Pa) 4 (600 Pa) 4 (600 Pa) 4 (600 Pa) 4 (600 Pa) 4 (600 Pa) Classe d’étanchéité à l’eau (valeur en Pa) E750 (750 Pa) E1200 (1200 Pa) E1050 (1050 Pa) 9A (600 Pa) 9A (600 Pa) Classe de résistance à la charge du vent (valeur en Pa) 5 (2000 Pa) 3 (1200 Pa) 4 (1600 Pa) 5 (2000 Pa) 3 (1200 Pa) * En fonction de la combinaison dormant/ouvrant - variante HI - valeur Ug = 1,0 et pSi = 0,11 (Les valeurs Uf données sont celles d’une section du système et peuvent varier considérablement dans un système, la valeur est seulement indicative). ** L’étanchéité au vent et à l’eau peut varier dans un système et dépend de la configuration choisie. Pour des informations correctes, consultez le document CE.
26

Types d’ouverture

Systèmes coulissants et pliants

prévu pour 2021 disponible

TYPES D’OUVERTURE Hi-Finity MasterPatio ConceptPatio ConceptFolding 155 130 77
27 SYSTÈMES COULISSANTS

Hi-Finity Systèmes coulissants

Une vue infinie

Profitez d’une vue infinie avec des performances remarquables ! Le design ultramince de la porte coulissante Hi-Finity crée de grandes surfaces transparentes fortes d’un aspect léger, élancé et élégant.

Cette porte coulissante prolonge discrètement l’intérieur de la maison vers l’extérieur grâce à des options de seuils multiples, dont une finition de sol continue. Malgré les profils visuellement très discrets, la résistance élevée du système permet à Hi-Finity de supporter le poids d’une grande vitre coulissante jusqu’à 750 kilos. Panneaux fixes jusqu’à 1200 kg.

De surcroît, l’association de performances énergétiques élevées et d’une esthétique minimaliste fait de ce produit la meilleure solution pour une architecture contemporaine sobre en énergie.

Pour un niveau de confort encore plus élevé, un moteur dissimulé vous permet d’ouvrir les bouches d’aération en appuyant sur un bouton, ou en connectant le moteur à votre système domotique. Ce moteur hautes performances garantit un confort d’utilisation optimal et constitue une solution sûre et fiable.

Hi-Finity est un système exclusif, produit uniquement par des constructeurs certifiés.

CARACTÉRISTIQUES TECHNIQUES

Double vitrage Triple vitrage Finition de sol/profilé

Hauteur Dormant encastré 68 mm / 100 mm 68 mm / 100 mm identique Largeur / hauteur visible Ouvrant 8 mm 10 mm 40 mm (bas) Section centrale 35 mm (réglable) 35 mm (réglable) identique Section centrale 4 vantaux 67 mm (réglable) 69 mm (réglable) identique

Profondeur totale du système Dormant

Duo Rail : 148 mm 3-Rail : 234 mm

Duo Rail : 180 mm 3-Rail : 282 mm

FF : 10 mm (bas) PF : identique Ouvrant 44 mm 60 mm identique Hauteur maximale de l’élément 4000 mm

Poids maximal de l’ouvrant Manuel 300 kg / motorisé 750 kg / fixe 1200 kg Épaisseur de vitrage 36-38 mm 52-54 mm identique

PERFORMANCES

Isolation thermique

Valeur Uw ramenée à Uw 1,0 W/m²K (Minergie) en fonction du choix de profilé et de vitrage

Valeur Uf ramenée à 1,4 W/m²K

Performances acoustiques Rw(C;Ctr) = 46 (-1;-3) dB s.o.

Étanchéité à l’air

Jusqu’à 600 Pa (classe 4) Jusqu’à 600 Pa (classe 4)

Résistance au vent Jusqu’à 2000 Pa (classe 5)

Étanchéité à l’eau Jusqu’à 750 Pa (classe E750)

FF : Jusqu’à 1200 Pa (3)

PF : Jusqu’à 2000 Pa (5)

FF : Jusqu’à 300 Pa (7A)

PF : Jusqu’à 600 Pa (9A)

Résistance à l’effraction Jusqu’à RC 2 (EN 1627) Jusqu’à RC 2 (EN 1627)

28
26 Carré Or, Principauté de Monaco
29
Architecte : Alexandre Giraldi Photographie : Array

MasterPatio

Systèmes coulissants

Conçu par des maîtres

En dévoilant MasterPatio, nous démontrons que nous poursuivons nos efforts pour rester le système plébiscité par les constructeurs et installateurs. Ce système a été mis au point en tenant compte de facteurs clés de conception tels que des performances thermiques et hydrauliques supérieures, une esthétique épurée, une conception durable et la compatibilité avec le système MasterLine 8.

Ses performances thermiques équivalentes à celles d’une maison passive et ses performances inégalées en termes d’étanchéité à l’eau (jusqu’à 1500 Pa pour les projets) se combinent à des lignes élégantes et des détails soignés. La plupart des composants et accessoires sont masqués dans les profilés ou affleurent avec ces derniers, et les lignes visibles restent uniformes dans tous les éléments coulissants, renforts et autres profilés de traverse, tandis que le dormant peut être masqué. Ce système réduit les déchets en nécessitant moins de profilés dans toutes les configurations, alors que l’optimisation des longueurs de profilés disponibles se traduit par une réduction des rebuts.

La compatibilité intégrée avec MasterLine 8 métamorphose le système coulissant MasterPatio en un système de façade du sol au plafond complet, ce qui vous offre une latitude de conception totale en toutes circonstances, y compris dans les immeubles d’appartements.

CARACTÉRISTIQUES TECH NIQUES

Largeur / hauteur visible

Profondeur totale du système

MONORAIL VITRÉ DE L’EXTÉRIEUR MONORAIL VITRÉ DE L’INTÉRIEUR

Dormant 14 / 60 mm 0 / 60  mm 14 / 60 mm Ouvrant 50 / 87 mm Section centrale 50 / 87 mm Profilé T 50 / 87 mm

Dormant 180 mm Ouvrant 77 mm

Poids max. de l’ouvrant 400 kg Hauteur max. de l’ouvrant 3700 mm Hauteur de feuillure 27 mm Épaisseur de vitrage jusqu’à 63 mm

PERFORMANCES

Isolation thermique

Performances acoustiques

Étanchéité à l’air

Résistance au vent

Valeur Uw ramenée à 0,8 W/m²K en fonction de la combinaison dormant/ouvrant et de l’épaisseur du vitrage

Jusqu’à Rw (C; Ctr) = 44 (-1; -4) dB en fonction du type de vitrage

Jusqu’à 600 Pa (classe 4)

Jusqu’à 2000 Pa (classe 5)

Étanchéité à l’eau Jusqu’à 1200 Pa (classe E1200)

Résistance à l’effraction Jusqu’à RC 2* (ENV 1627)

DUO RAIL
30
31

ConceptPatio 130 Systèmes coulissants

Fonctionnalité et esthétique

Concept Patio® 130 est un système coulissant et levantcoulissant hautement isolant, qui répond aux exigences les plus élevées en matière d’isolation, de stabilité et de sécurité. Le système s’intègre parfaitement à la série ConceptSystem 68.

ConceptPatio 130 est disponible avec différentes possibilités d’ouverture, tandis que l’option seuil bas et sol plan offre une solution permettant d’améliorer l’accessibilité des bâtiments. La solution d’angle ouvert et de pocket solution permet d’ouvrir les volumes sans le moindre élément d’angle fixe, ce qui crée une continuité parfaite et claire entre les espaces intérieurs et extérieurs. ConceptPatio 130 est donc idéal pour les chambres avec vue.

Ce système robuste permet la construction de portes et fenêtres coulissantes de grande taille et stables d’un poids d’ouvrant allant jusqu’à 300 kg. Il offre également une section centrale mince élégante. En outre, ConceptPatio 130 peut être conforme à la classe de résistance à l’effraction 2, offrant ainsi une solution sûre et sécurisée.

CARACTÉRISTIQUES TECHNIQUES

Largeur / hauteur visible

COULISSANT LEVANT-COULISSANT 750 PA

Dormant 50 mm 28 / 35 / 40 mm 22/51 mm

Ouvrant 98 mm 98 mm 98 mm Section centrale 50/69/98 mm 50/69/98 mm 98 mm Profilé T De 76 mm à 115 mm De 76 mm à 115 mm 76 mm à 115 mm

Dormant 110-139 mm 139 mm 210 mm 139 mm Ouvrant 59 mm 59 mm 59 mm Hauteur de feuillure 25 mm 25 mm 25 mm Épaisseur de vitrage jusqu’à 43 mm jusqu’à 43 mm jusqu’à 43 mm Poids max. de l’ouvrant 300 kg Hauteur max. de l’ouvrant 2700 mm

Profondeur totale du système

PERFORMANCES

Isolation thermique

Étanchéité à l’air

Valeur Uw entre 1.3 et 1.5 W/m²K en fonction de la combinaison dormant/ouvrant et de l’épaisseur du vitrage

Jusqu’à 600 Pa (classe 4)

Résistance au vent Jusqu’à 1600 Pa (classe 4)

Étanchéité à l’eau Jusqu’à 600 Pa (classe 9A)

Résistance à l’effraction Jusqu’à RC 2 (ENV 1627)

32
Baelskaai 12, Ostende, Belgique Architecte : Conix Architects
33
Photographie : Philippe Van Gelooven

ConceptPatio 155 Systèmes coulissants

Performances de qualité et d’isolation

Concept Patio® 155 est un système coulissant et levant-coulissant hautement isolant conçu pour créer des éléments ouvrants généreux associés à un confort accru. Le système s’intègre parfaitement à la série ConceptSystem 77.

ConceptPatio 155(-LS) Slim Chicane est une fenêtre coulissante possédant un montant central de seulement 50 mm de largeur, qui transforme notre ConceptPatio 155(-LS) en un design moderne et en fait un système élégant face aux tendances actuelles.

ConceptPatio 155 peut être optimisé afin d’obtenir des valeurs d’isolation encore meilleures (version High Insulation (HI)), ce qui en fait un système adapté aux habitations basse énergie. Une variante spécifique du monorail ConceptPatio 155 a même obtenu le label suisse Minergie® pour les composants.

ConceptPatio 155 est disponible avec différentes possibilités d’ouverture, notamment un angle ouvert / vitré, une pocket solution tandis que l’option seuil bas et sol plat offre une solution permettant d’améliorer l’accessibilité des bâtiments. Les solutions d’ouverture automatique en option garantissent un maximum de confort.

Le système levant-coulissant permet de créer des portes vitrées de dimensions extrêmes et d’un poids allant jusqu’à 400 kg. Le monorail permet d’atteindre un poids de 1500 kg pour les panneaux fixes. En outre, ConceptPatio 155 peut être conforme à la classe de résistance à l’effraction 2, offrant ainsi une solution sûre et sécurisée.

CARACTÉRISTIQUES TECHNIQUES

Largeur / hauteur visible

Profondeur totale du système

COULISSANT LEVANT-COULISSANT

Dormant 20/60 mm 50 - 60 mm Ouvrant 102 mm 102 mm Section centrale 50/115 mm 50/115 mm

Dormant 155 mm 155 mm Ouvrant 68 mm 68 mm

Hauteur de feuillure 25 mm 25 mm Épaisseur de vitrage jusqu’à 52 mm jusqu’à 52 mm

PERFORMANCES

Isolation thermique

Valeur Uw entre 0.85 et 1.50 W/m²K en fonction de la combinaison dormant/ouvrant et de l’épaisseur du vitrage

Performances acoustiques Rw (C;Ctr) = 35 (-2;-5) dB / 42 (-1;-3) dB, en fonction du type de vitrage

Étanchéité à l’air Jusqu’à 600 Pa (classe 4)

Résistance au vent Jusqu’à 1600 Pa (classe 4)

Étanchéité à l’eau Jusqu’à 900 Pa (classe E900)

Résistance à l’effraction Jusqu’à RC2 (ENV 1627)

34
Résidence privée, Uznach, Suisse Architecte : Daluz / González Architekten
35
Photographie : Peter Baracchi

ConceptFolding 77 Systèmes pliants

Invitez la nature dans votre bâtiment

Concept Folding 77 associe une isolation et un confort élevés à une transparence et une esthétique maximales. ConceptFolding 77 permet d’utiliser de grandes vitres massives pour vraiment ouvrir l’espace, tout en assurant une isolation optimale.

Ce système très performant comprend différents types d’ouverture, tant vers l’intérieur que vers l’extérieur, pour répondre à toutes les exigences imaginables. Outre les éléments repliables standard, ConceptFolding 77 propose un principe de porte principale dans lequel le premier vantail est utilisé comme porte d’entrée sans affecter les autres vantaux repliables.

ConceptFolding 77 est disponible en 4 solutions de seuil différentes, allant des hautes performances aux seuils bas et même plans, afin de répondre parfaitement à toutes les exigences de confort et d’esthétique. En outre, le concept ConceptFolding 77 peut parfaitement être combiné avec les systèmes ConceptSystem pour fenêtres, portes et murs-rideaux.

De plus, ConceptFolding 77 est disponible dans le style Fonctionnel et Slim Line. Cette variante ConceptFolding 77-SL se caractérise par une largeur de profilé visible plus élancée.

CARACTÉRISTIQUES TECHNIQUES

CF 77 CF 77-SL

Dormant visible / seuil 0/18/42/57/82 mm 0/25 mm Largeur de dormant visible 66 mm 55 mm Ouvrant visible - largeur d’ouvrant 144 mm 122 mm Profondeur du système 77 mm 77 mm Taille max. d’ouvrant 1200x3000 mm 1200x3000 mm Poids max. de l’ouvrant 120 kg 120 kg Hauteur de feuillure 25 mm 25 mm Épaisseur de vitrage 63 mm 44 mm

PERFORMANCES

Isolation thermique Valeur Uf ramenée à 2,25 W/m²K

Performances acoustiques Rw (C; Ctr) = 45 (-1;-5) dB

Étanchéité à l’air Jusqu’à 600 Pa (classe 4)

Résistance au vent Jusqu’à 1200 Pa (classe 3)

Étanchéité à l’eau Jusqu’à 600 Pa (classe 9A)

Résistance à l’effraction Jusqu’à RC 2 (EN 1627) + PAS 24

36
37
ConceptWall 50-FireProof ConceptWall 60 ConceptWall 50 Campus Reynaers, Duffel, Belgique Architecte : Jaspers Eyers Architects Photographie : Philippe Van Gelooven ElementFaçade 7 38

Murs-rideaux

ConceptWall 65-EF ConceptWall 86(-EF)
39
MURS-RIDEAUX

ConceptWall 50 Murs-rideaux

Liberté de création illimitée et luminosité maximale

ConceptWall 50 est un système pour façade et toiture qui offre une totale liberté de design tout en maximisant la transparence. Les solutions innovantes répondent à la tendance des grandes baies vitrées massives et très isolantes. ConceptWall 50 supporte des baies vitrées allant jusqu’à 700 kg dans différentes configurations de verre. Il est même possible d’envisager des vitrages de poids supérieur avec des solutions sur mesure.

Le système est disponible en plusieurs variantes de design et de vitrage, mais comprend également différentes variantes techniques pour respecter les niveaux spécifiés de résistance au feu et d’isolation thermique jusqu’à Uf = 0,56 W/m²K.

Les variantes design offrent des solutions tant pour l’extérieur que pour l’intérieur du bâtiment. Les variantes de vitrage vont de l’utilisation de profilés de serrage standard à des solutions de vitrage structurel et de vitrage structurel pincé.

PERFORMANCES

Isolation thermique Valeur Uf ramenée à 0,56 W/m²K en fonction de la combinaison de profilés Performances acoustiques Rw (C;Ctr) = 33 (-1;-3) dB / 60 (-2;-6) dB, en fonction du type de vitrage ou de baie

Étanchéité à l’air

Jusqu’à 1950 Pa (classe AE 1950)

Résistance au vent Jusqu’à 2400 Pa

Étanchéité à l’eau Jusqu’à 1950 Pa (classe RE 1950)

Résistance à l’effraction Jusqu’à RC 3 (NEN 5096 / ENV 1627)

40

CARACTÉRISTIQUES

TECHNIQUES FONCTIONNEL HIGH INSULATION

Largeur visible intérieure 50 mm 50 mm

Largeur visible extérieure 50 mm 50 mm Épaisseur de vitrage de 6 à 61 mm de 22 à 61 mm

CARACTÉRISTIQUES

TECHNIQUES

VITRAGE STRUCTUREL PINCÉ VITRAGE STRUCTUREL

Largeur visible intérieure 50 mm 50/88 mm

Largeur visible extérieure joint : 20 mm Joint EPDM (largeur 27 mm) Épaisseur de vitrage de 27 mm à 63 mm de 24 mm à 36 mm

CARACTÉRISTIQUES TECHNIQUES TRAVERSE-TRAVERSE

SLIM LINE

Largeur visible intérieure 50 mm 15/50 mm

Largeur visible extérieure 50 mm 50 mm Épaisseur de vitrage de 6 à 64 mm de 6 à 61 mm

41 MURS-RIDEAUX

CARACTÉRISTIQUES TECHNIQUES TRAME HORIZONTALE TRAME VERTICALE

Largeur visible intérieure 50 mm 50 mm

Largeur visible extérieure verticalement : joint 30 mm horizontalement : 50 mm verticalement : 50 mm horizontalement : joint 20 mm Épaisseur de vitrage de 22 à 48 mm de 27 à 40 mm

CARACTÉRISTIQUES TECHNIQUES APPLICATION EN TOITURE ALU SUR ACIER

Largeur visible intérieure 50 mm 50 mm

Largeur visible extérieure 50 mm 50 mm Épaisseur de vitrage de 6 à 60 mm de 6 à 61 mm

CARACTÉRISTIQUES TECHNIQUES

OUVRANT CACHÉ (OUVERTURE INTÉRIEURE) À L’ITALIENNE ET À OUVRANTS PARALLÈLES (OUVERTURE EXTÉRIEURE)

Largeur visible intérieure 23/80 mm 15/108 mm (FONCTIONNEL et SG)

Largeur visible extérieure 50 mm 0 mm (SG) /105 mm Épaisseur de vitrage fenêtre ouvrante 22-28 mm (fenêtre ouvrante SC 29-32 mm) de 24 à 62 mm

42

ConceptWall 50-FireProof Murs-rideaux

Le mur-rideau coupe-feu ConceptWall 50-FireProof est conçu pour offrir une résistance au feu EW30, EI 30 ou EI 60, tout en conservant les mêmes avantages que le système de façade ConceptWall 50 standard.

Le système peut être appliqué aussi bien à l’extérieur qu’à l’intérieur du bâtiment, et peut également offrir une résistance à l’effraction comme option supplémentaire. ConceptWall 50-FireProof s’inscrit dans la tendance des grandes baies vitrées massives tout en autorisant des designs transparents.

Ce système de façade est compatible avec notre système de porte coupe-feu ConceptSystem 77-FP.

CARACTÉRISTIQUES TECHNIQUES

ANTI-FEU EI 30

ANTI-FEU EI60

Hauteur de feuillure 20 mm 20 mm Épaisseur de vitrage de 34 à 78 mm de 34 à 78 mm Méthode de vitrage maintien par profilés de serrage maintien par profilés de serrage

PERFORMANCES

ANTI-FEU EI 30

ANTI-FEU EI60

Normes d’essai européennes EN 1364-3 EN 1364-3 Norme de classification EN 13501-2 EN 13501-2

Classification de résistance au feu E15, EI15, EW20, E30, EW30, EI30 EW60, E60, EI60

43 MURS-RIDEAUX

ConceptWall 60 Murs-rideaux

Solutions pour grandes surfaces vitrées

ConceptWall 60 est un excellent système de mur-rideau à rupture de pont thermique pour les constructions robustes présentant de grandes surfaces vitrées, qui répond même aux besoins spécifiques des constructions inclinées ou courbes. Ce système modulaire est conçu avec des profilés intelligemment renforcés, ce qui permet d’envisager des façades avec de grandes baies vitrées.

ConceptWall 60 répond aux exigences les plus élevées en matière d’étanchéité à l’eau et à l’air, de résistance à la charge du vent et d’isolation thermique. Il offre également la possibilité d’intégrer un triple vitrage.

Ce système de mur-rideau est disponible dans 4 aspects esthétiques extérieurs différents. Ces différentes options de design, ainsi que l’application pour toit affleurant, font du ConceptWall 60 le système parfait pour une liberté de design ultime. En outre, ConceptWall 60 comprend une vaste gamme de profilés qui facilite l’intégration de tous les types de fenêtres.

PERFORMANCES

Isolation thermique

Performances acoustiques

Valeur Uf ramenée à 0,76 W/m²K en fonction de la combinaison de profilés

Rw (C;Ctr) = 33 (-1;-4) dB / 56 (-1;-5) dB, en fonction du type de vitrage

Étanchéité à l’air 600 Pa (Classe A4)

Résistance au vent Jusqu’à 2400 Pa

Étanchéité à l’eau Jusqu’à 1200 Pa (classe RE 1200)

Résistance à l’effraction Jusqu’à RC 3 (ENV 1627)

CW 60
Murs-rideaux
44

CARACTÉRISTIQUES

Largeur visible intérieure 60 mm 60 mm 60 mm

CARACTÉRISTIQUES

Largeur visible intérieure 60/88 mm 60 mm 60 mm

Largeur visible extérieure Joint EPDM de 27 mm de largeur mix de joint de 20/30 mm et de profilé de serrage de 60 mm 60 mm Épaisseur de vitrage 24 mm à 36 mm 22 mm à 48 mm 6 mm à 48 mm

TECHNIQUES FONCTIONNEL HIGH INSULATION VITRAGE STRUCTUREL PINCÉ
Largeur visible extérieure 60 mm 60 mm Joint silicone ou joint EPDM de 20 mm de largeur Épaisseur de vitrage 6 mm à 62 mm 22 mm à 62 mm 27 mm à 63 mm
TECHNIQUES VITRAGE STRUCTUREL TRAME HORIZONTALE/ VERTICALE APPLICATION EN TOITURE
Hotel Altapura, Val Thorens, France Architecte : Studio Arch
45 MURS-RIDEAUX
Photographie : Laurent Brandajs

ConceptWall 65-EF Murs-rideaux

Système de façade unique offrant un maximum de transparence

ConceptWall 65-EF est un système de mur-rideau économique destiné aux façades modulaires à l’esthétique élancée unique, sans compromettre la résistance et la stabilité extrêmes requises dans les constructions de grande hauteur.

Une autre caractéristique importante de cette façade unique est son délai de mise en œuvre rapide sur chantier, car ses éléments sont entièrement préassemblés en atelier. Cette productivité élevée n’empêche pas l’esthétique architecturale, car ce système recourt à des profilés minces de seulement 65 mm.

Il répond aux exigences de performances les plus élevées en matière d’étanchéité à l’eau et à l’air et de résistance à la charge du vent. Le système de mur-rideau est disponible en différents niveaux d’isolation afin de répondre aux besoins d’isolation appropriés du bâtiment. Il offre également la possibilité d’intégrer un triple vitrage.

ConceptWall 65-EF est disponible en deux variantes de vitrage, avec des caractéristiques esthétiques uniques : une variante maintient le verre à l’aide de joints, tandis que le verre de la variante SG est structurellement collé, ce qui présente une surface vitrée uniforme à l’extérieur du bâtiment. Pour répondre pleinement à tous les besoins du bâtiment, le système peut intégrer des éléments d’ouverture, tels que des fenêtres à l’italienne et à ouvrants parallèles.

CW 60 Murs-rideaux
46

CARACTÉRISTIQUES

TECHNIQUES

FONCTIONNEL

HIGH INSULATION VITRAGE STRUCTUREL

Dimensions max. L x H 1600 mm x 3700 mm 1550 mm x 3500 mm 1600 mm x 3700 mm

Largeur visible intérieure 65 mm 65 mm 65 mm

Largeur visible extérieure 65 mm 65 mm Joint de 16 mm entre les vitres Épaisseur de vitrage De 4 à 36 mm De 10 à 60 mm De 4 à 40 mm

Poids du vitrage 300 kg 300 kg 250 kg Poids de l’élément 700 kg 700 kg 700 kg

Types d’ouvrant Tous les systèmes Reynaers Aluminium, fenêtre à l’italienne, fenêtre à ouvrants parallèles

PERFORMANCES

Isolation thermique

FONCTIONNEL

Valeur Uf ramenée à 2,5 W/m²K en fonction de la combinaison de profilés

HIGH INSULATION

Uf ramené à 1,5 W/m²K en fonction de la combinaison de profilés

VITRAGE STRUCTUREL

Utj ramené à 7,6 W/m²K en fonction de la combinaison de profilés et de la composition du verre

Étanchéité à l’air 600 Pa (Classe A4) 600 Pa (Classe A4) 700 Pa (Classe AE 700)

Résistance au vent 1800 Pa 1800 Pa 1400 Pa

Étanchéité à l’eau 1200 Pa (Classe RE 1200) 1200 Pa (Classe RE 1200) 1200 Pa (Classe RE 1200)

Photographie : Neil Warner

Architecte : Taylor Architects / RMJM Architects
47 MURS-RIDEAUX

Murs-rideaux

ElementFaçade 7 Murs-rideaux

La façade qui façonne l’avenir

Qu’il s’agisse d’un gratte-ciel dans une capitale, d’un immeuble de bureaux au look architectural exceptionnel ou de la rénovation d’une tour résidentielle : chaque projet d’aménagement urbain affectionne les produits qui lui permettent de se démarquer.

Parallèlement, ces projets doivent aller vite et rester dans les limites du budget lié aux produits standard. Pour résoudre ce dilemme, nous nous sommes creusé la tête et sommes parvenus à un résultat remar quable.

Avec ElementFaçade 7, nous vous proposons un produit clé en main. Cet élément de façade constitue une solution testée et certifiée qui trahit un haut niveau d’imagination architecturale.

Si votre projet nécessite une solution personnalisée, notre expertise peut vous aider à l’adapter exactement à vos besoins. Ses valeurs de performance évolutives permettent également d’augmenter encore la hauteur des façades tout en répondant aux exigences les plus strictes en matière d’isolation thermique et acoustique, et de durabilité.

ElementFaçade 7 peut également être combiné avec notre gamme d’éléments d’ouverture. Il est très facile d’intégrer les fenêtres à l’italienne ou à ouvrants parallèles, ou encore les ouvrants cachés à ouverture vers l’intérieur.

CW
60
Exemple d’une ligne de production industrielle. Tous droits réservés à Staticus UAB 48

CARACTÉRISTIQUES

TECHNIQUES

FONCTIONNEL VITRAGE STRUCTUREL ÉLÉMENTS OUVRANTS

Dimensions max. L x H 2700 mm x 3700 mm

2700 mm x 3700 mm 2000 mm / 2500 mm

Largeur visible intérieure 75 mm 75 mm 58 mm

Largeur visible extérieure 75 mm Joint de 11 mm entre les vitres 58 mm (Fu) Joint de 20 mm (SG)

Épaisseur de vitrage De 26 à 63 mm

De 36 à 60 mm De 23 à 62 mm

Poids du vitrage 300 kg 300 kg

Poids de l’élément 700 kg 700 kg 180 kg

Types d’ouvrant

PERFORMANCES

Isolation thermique

Performances acoustiques

Tous les systèmes Reynaers Aluminium, fenêtre à l’italienne, fenêtre à ouvrants parallèles

Tous les systèmes Reynaers Aluminium, fenêtre à l’italienne, fenêtre à ouvrants parallèles

FONCTIONNEL VITRAGE STRUCTUREL ÉLÉMENTS OUVRANTS

Valeur Uf ramenée à 1,3 W/m² en fonction de la combinaison de profilés

Rw (C;Ctr) = 43 (-2;-4) dB en fonction du type de vitrage

Valeur Utj ramenée à 3,3 W/ m²K en fonction de la combi naison de profilés

Rw (C;Ctr) = 42 (-2;-4) dB en fonction du type de vitrage

Valeur Uf ramenée à 1,5 W/m²K (Fu)

Valeur Utj ramenée à 2,1 W/m²K (SG)

Rw (C;Ctr) = 41 (-2;-4) dB en fonction du type de vitrage

Étanchéité à l’air 1200 Pa (Classe AE1200) 1200 Pa (Classe AE1200) 600 Pa

Résistance au vent 2400 Pa 2400 Pa 2000 Pa

Étanchéité à l’eau 1200 Pa (Classe RE1200) 1200 Pa (Classe RE1200) 1500 Pa (Classe RE1500)

49 MURS-RIDEAUX

Murs-rideaux

ConceptWall 86(-EF) Murs-rideaux

Rapidité de mise en œuvre

ConceptWall 86 est un système de murs-rideaux isolant et esthétique qui répond aux exigences des projets de construction de grande envergure. Pour ce type de projets, la vitesse d’exécution sur le chantier est essentielle. Dès lors, ConceptWall 86 offre une solution spéciale, où des cassettes ou des éléments peuvent être préassemblés en atelier. Sur le chantier, les cassettes peuvent être accrochées à une ossature de cadre traditionnelle (ConceptWall 86) ou la façade peut être construite élément par élément selon le principe du mur-rideau modulaire (ConceptWall 86-EF).

ConceptWall 86-EF est disponible en deux variantes de vitrage, avec des caractéristiques esthétiques uniques : une variante maintient le verre à l’aide de joints, tandis que le verre de la variante SG est structurellement collé, ce qui présente une surface vitrée uniforme à l’extérieur du bâtiment.

Les performances énergétiques du système se déclinent en différents niveaux, avec des profilés isolants également pour le vitrage structurel collé. Des méthodes de drainage spécifiques, comme le drainage en cascade, hissent cette façade au plus haut niveau des exigences d’étanchéité à l’eau et à l’air. Ce système est donc applicable dans des conditions extrêmes telles que les zones côtières et en haute altitude.

Outre l’intégration parfaite de différents types de fenêtres, de portes et de systèmes de protection solaire, ConceptWall 86 propose des solutions motorisées pour ses éléments d’ouverture, telles que les fenêtres à l’italienne et à ouvrants parallèles, offrant ainsi une solution totale pour votre façade.

PERFORMANCES

Isolation thermique

Performances acoustiques

Étanchéité à l’air

Résistance au vent

Étanchéité à l’eau

Résistance à l’effraction

Valeur Uf ramenée à 1,5 W/m2K en fonction de la combinaison de profilés

Rw (C;Ctr) = 41 (-2;-6) dB en fonction de la combinaison de profilés

Jusqu’à 900 Pa (classe AE900)

Jusqu’à 2000 Pa

Jusqu’à 1200 Pa (classe RE1200)

Jusqu’à RC 2 (EN 1627) sur demande

CW 60
50

CARACTÉRISTIQUES

CARACTÉRISTIQUES

TECHNIQUES FONCTIONNEL FIXE (JUNIOR) HIGH INSULATION VITRAGE STRUCTUREL
visible
86 mm (38,5 – 9 – 38,5) 86 mm (38,5 – 9 – 38,5) 86 mm
– 9 – 38,5) 86 mm
9
38,5)
68 mm (26 – 16 – 26) ou 86 mm (35 – 16 – 35) 86 mm (35 – 16 – 35) 86 mm (38,5 – 9 – 38,5) Joint
22 mm
les vitres
de vitrage de 4 mm à 38 mm de 6 mm à 38 mm de 30 mm à 50 mm de 4 mm à 36 mm
Largeur
intérieure
(38,5
(38,5 –
Largeur visible extérieure
de
entre
Épaisseur
TECHNIQUES SEMI-FONCTIONNEL VITRAGE SEMI-STRUC TUREL
86
86 mm
Largeur visible intérieure
mm
68
16
86
joint
22
de
36
51 MURS-RIDEAUX
Largeur visible extérieure
mm (26 –
– 26) ou
mm (35 – 16 – 35)
de 22 mm Joint de
mm entre les vitres Épaisseur de vitrage
4 mm à 38 mm de 4 mm à
mm Oruzheyniy, Moscou, Russie Architecte : Mosproject 2 Photographie : Zlobin Nikolai
52
Résidence, Ciney, Belgique Architecte : Quattro Concept

Vérandas

ConceptRoof
120
53 VÉRANDAS

ConceptRoof 120 Vérandas

Concept Roof 120 est un système de toiture de véranda à rupture de pont thermique. Les profilés tubulaires en aluminium peuvent intégrer le câblage et l’éclairage à l’intérieur, tandis que la face extérieure est maintenue plane par les capots plats.

Ce système est compatible avec tous les systèmes de portes et fenêtres Reynaers Aluminium ainsi qu’avec les systèmes coulissants et offre la possibilité de créer une large gamme de constructions de verrières ou lanterneaux.

Le système augmente la sécurité et le confort du fait même qu’il peut être utilisé avec les volets motorisés.

CARACTÉRISTIQUES TECHNIQUES

FONCTIONNEL RENAISSANCE ORANGERIE

Largeur min. visible du profilé porteur 60 mm Hauteur du profilé porteur

70 mm / 100 mm / 120 mm / 150 mm

Pente 5° - 45° Faîte 120°-180° Épaisseur de vitrage De 6 mm à 40 mm Méthode de vitrage

Isolation thermique

PERFORMANCES

Isolation thermique

Résistance au vent

Étanchéité à l’eau

Vitrage sec avec EPDM ou silicones neutres

En forme oméga, avec bandes de polyamide renforcées de fibres de verre + profilé synthétique

Calcul spécifique par combinaison de profilé prenez contact avec votre constructeur Reynaers

Jusqu’à 800 Pa (classe 2)

Jusqu’à 1050 Pa (classe E1050)

CW
60 Murs-rideaux
54
55
Architecte : B01 Arquitectes 56

Systèmes complémentaires

Mosquito Balustrade en verre BriseSoleil
57
Solar Paralline
SYSTÈMES COMPLÉMENTAIRES

Paralline Bardage en aluminium

Paralline associe sans peine l’esthétique au design contemporain et à la durabilité

Le bardage de façade en aluminium Paralline est reconnaissable à ses lignes parallèles en aluminium, et s’intègre parfaitement à tous les systèmes de portes et fenêtres Reynaers Aluminium. Vous pourrez dès lors toujours créer un « single design look » original. Paralline permet de rehausser l’esthétique de la

façade en ajoutant un revêtement original en aluminium. Dans le cas d’une rénovation, cela se traduit par un contraste intéressant entre l’ancien et le nouveau, et dans le cas d’une nouvelle construction ou de la construction de projets, Paralline apporte une touche d’esthétique unique.

Une infinité d’options de conception

Votre

Les différentes dimensions de la durabilité

La durabilité est également au coeur de la conception de Paralline. Afin d’obtenir un rendement énergétique optimal, une couche d’isolation peut être placée derrière le revêtement. Le système est en outre facile à (dé) monter et répond ainsi à la demande croissante de solutions de façade circulaires. À l’instar des autres applications en aluminium, Paralline ne nécessite enfin que très peu d’entretien et dure toute une vie.

Paralline se connecte ou se combine harmonieusement avec n’importe quel élément de la façade d’un bâtiment, y compris les fenêtres et les portes. Vous pouvez utiliser les profilés à l’horizontale ou à la verticale, avec des variations de profondeur subtiles ou plus prononcées ou en combinant plusieurs styles afin d’obtenir un look unique. Les possibilités de conception sont pour ainsi dire infinies. Enfin, tous les profilés sont disponibles dans un certain nombre de finitions thermolaquées ou anodisées de haute qualité permettant de créer une touche personnalisée.

Reynaers Aluminium est votre point de vente professionnel unique pour toutes les solutions de façade et de menuiserie en aluminium. Des fenêtres aux portes en passant par les éléments décoratifs comme Paralline : quels que soient vos besoins, un conseiller enthousiaste est à votre disposition tout au long de votre projet pour vous offrir des conseils et un soutien professionnel pour l’ensemble de notre gamme de produits.

point de vente unique pour solutions de menuiserie en aluminium
3 2 1 6 4 7 8 5 Possibilités infinies 1 Rendu 2 Plinthe 3 Bordure de toit 4 Angle extérieur 5 Angle intérieur 6 Cadre préassemblé 7 Porte cachée 8 Fenêtre cachée 58

CARACTÉRISTIQUES

TECHNIQUES

FIN LOW MID

a 70,5 mm 70,5 mm 70,5 mm b 34,5 mm 19,5 mm 30,5 mm c 35 mm 35 mm 35 mm

CARACTÉRISTIQUES TECHNIQUES

Profilé Profilé

HIGH HORIZONTAL

a 70,5 mm 70,5 mm b 68,9 mm 19,5 mm c 35 mm 48,3 mm

en U vertical 30 mm
bloc vertical 20
Profilé bloc
30
c b a c b a c b a c b a c b a
Profilé Profilé
Profilé
mm
vertical
mm
bloc vertical 70 mm Profilé bloc
RANDSYSTEMEN 59 SYSTÈMES COMPLÉMENTAIRES
horizontal 20 mm

60 Murs-rideaux

BriseSoleil Systèmes complémentaires

Solution d’ombrage complète

Les systèmes BriseSoleil (BS) de Reynaers Aluminium sont conçus pour apporter une solution d’ombrage esthétique et efficace à presque tous les bâtiments neufs et existants.

Ils sont proposés en exécutions standard ou sur mesure. BriseSoleil est le terme générique désignant un système de lames qui, lorsqu’il est installé sur la façade extérieure d’un bâtiment, offre une protection contre la chaleur solaire et l’éblouissement. Il permet aux architectes et investisseurs d’atteindre leurs objectifs de durabilité et d’obtenir des certificats tels que BREAM et LEED pour leur bâtiment.

CARACTÉRISTIQUES

Forme des lames

des lames

TECHNIQUES BS 100 DORMANT PRÉASSEMBLÉ BS 100 LAME FIXE BS 100 LAME MOBILE
ellipse ellipse ellipse Taille
140 mm / 180 mm de 120 à 400 mm de 120 à 400 mm Angle (fixe) 45° 0°/ 15°/ 30°/ 45°/ 60°/ 75°/ 90° variable Passerelle oui oui oui BS 40 BS 100 PATTE DE FIXATION BS 100 LAMES EN VERRE BS 30 SYSTÈME DE CADRE
Forme de z ou incurvées ellipse verre trempé forme de Z / 200 / 250 / 300 mm 366 x 10 / 12 / 14 / 17 mm 90 mm de largeur x 60 mm de hauteur / 0°/ 15° / 30°/ 45° 0°/ 15° / 30°/ 45° / 60° / 75° / 90° et variable oui non non oui oui
CW
60

Mosquito Systèmes complémentaires

Non aux insectes !

Mosquito est un système de moustiquaire à monter sur une fenêtre, une porte ou une porte coulissante. Il empêche les insectes de rentrer en gênant le moins possible la vue. Le concept de moustiquaire permet d’ouvrir ou de fermer les fenêtres, les portes ou les portes coulissantes sans avoir à ôter le système. Pour la moustiquaire coulissante, le rail est situé en haut ou au bas du coulissant, ce qui assure un confort optimal.

Le système Mosquito est un système complémentaire compatible avec tous les systèmes de fenêtres, portes et portes coulissantes Reynaers Aluminium ainsi qu’avec les systèmes d’autres fournisseurs, même avec les châssis en bois et en PVC.

CARACTÉRISTIQUES

TECHNIQUES FENÊTRES PORTES SYSTÈMES COULISSANTS
Profondeur du système 15 mm/22 mm 28 mm 28 mm Coins
Préformage synthétique ou coin en aluminium Coin en aluminium à sertis sage pneumatique ou coin en aluminium sertissable.
Coin en aluminium à sertis sage pneumatique ou coin en aluminium sertissable.
61 SYSTÈMES COMPLÉMENTAIRES

Balustrades Systèmes complémentaires

Sécurité assurée

Les garde-corps Reynaers sont disponibles pour apporter une sécurité supplémentaire à ses systèmes. Tous sont testés sous la supervision d’organismes notifiés indépendants et/ou dans des centres d’essai renommés selon les normes européennes les plus strictes.

Les garde-corps sont disponibles en plusieurs styles pour s’adapter parfaitement à votre goût. Outre sa configuration traditionnelle (garde-corps autonome) avec des profilés en aluminium, ReynaersBalustrade 10 peut également être combiné avec des panneaux tels que du verre multicouche, du plexiglas ou des feuilles acryliques.

Le verre ReynaersBalustrade est un système complémentaire totalement transparent qui n’obstrue pas la vue, et le garde-corps en verre intégré constitue la solution minimaliste ultime, parfaitement intégrée dans le système de fenêtre. Ces deux systèmes vous permettent d’ouvrir les fenêtres et les portes en toute sécurité, même en l’absence de balcon.

CW
60 Murs-rideaux
CARACTÉRISTIQUES TECHNIQUES STANDARD VERRE VERRE INTÉGRÉ
de vitrage max. 15 mm/22 mm 21 mm
avec Autonome
Épaisseur
Asservi au profilé Compatible
Tous les systèmes sont suffi samment larges pour suppor ter les profilés verticaux.
54
6702 NF P01-013
62
MasterLine 8 MasterLine 10 Normes STS
NEN
EN 13049 NEN-EN-1991-1-1 EN 13049 NEN-EN-1991-1-1

CARACTÉRIS

TIQUES TECHNIQUES

Solar Systèmes complémentaires

En route pour un futur vert

En général, Reynaers Aluminium fournit des solutions durables, mais ces produits complémentaires vont un cran plus loin. En permettant l’intégration de panneaux de verre photovoltaïque, la façade se mue en source d’énergie. Il existe des solutions pour les écrans solaires, les garde-corps et les systèmes de façade.

ConceptWall 60 Solar est la solution écologique de haute technologie par excellence, esthétiquement agréable de surcroît, pour les murs et les toits. Le système, qui est entièrement isolé, a été conçu pour éviter toute ombre sur les cellules.

Les systèmes BriseSoleil combinent 2 concepts d’efficience énergétique : la récupération de l’énergie solaire et la protection intérieure contre la surchauffe.

Toutes les variantes sont compatibles avec les trois types de panneaux photovoltaïques : cellules mono- et polycristallines, et amorphes.

Type de remplissage

BRISESOLEIL 100 BRISESOLEIL 30 CONCEPTWALL 60 REYNAERSBALUSTRADE 10

Modules photovol taïques à bords en verre, semi-transparents ou normaux, cristallins ou amorphes, simple vitrage, boîtier de pan neau PV latéral ou boîtier de panneau PV arrière

Modules photovoltaïques standard ou à bords en verre, semi-transparents ou normaux, cristallins ou amorphes, simple vitrage, panneau PV arrière

Modules photovoltaïques à bords en verre, semi-trans parents ou normaux, cris tallins ou amorphes, simple ou double vitrage, boîtier de panneau PV latéral ou boî tier de panneau PV arrière

Balcons accessibles Balcons non accessibles

Modules photovoltaïques standard ou à bords en verre, semi-transparents ou normaux, cristallins ou amorphes, simple vitrage, panneau PV arrière

Inclinaison 0° à 45° 15° à 45° 5° à 90° 90° 60° à 90°

63 SYSTÈMES COMPLÉMENTAIRES
64

Poignées

Horizon Contour Touch
65 POIGNÉES

Contour Poignées

Une sécurité moderne

Contour est la nouvelle gamme de poignées robustes en inox de Reynaers qui adopte un design frais et moderne pour répondre aux exigences les plus strictes en matière de longévité et de sécurité.

CARACTÉRISTIQUES TECHNIQUES

POIGNÉES DE FENÊTRES

Fenêtres

CARACTÉRISTIQUES TECHNIQUES POIGNÉES DE PORTES

Portes

CARACTÉRISTIQUES TECHNIQUES POIGNÉES DE PORTES COULISSANTES

Portes coulissantes

Portes levantes-coulissantes

CARACTÉRISTIQUES

Traitement de surface acier inoxydable

Couleurs acier inoxydable

Contour est compatible avec la plupart des systèmes et types d’ouverture tels que SlimLine 38, MasterLine 8 et 10, ConceptPatio 130 et 155 et MasterPatio.

Emplois portes, fenêtres à ouverture vers l’intérieur et portes coulissantes + levantes-coulissantes

66

Contemporaines et polyvalentes

Touch - la nouvelle gamme innovante de quincaillerie design de Reynaers Aluminium - allie style et qualité. Touch est une quincaillerie raffinée, élégante et élancée qui est adaptée aux fenêtres, portes, portes coulissantes et pliantes. Elle est même compatible avec les portes intérieures en bois.

CARACTÉRISTIQUES TECHNIQUES

POIGNÉES DE FENÊTRES

Fenêtres

CARACTÉRISTIQUES TECHNIQUES

POIGNÉES DE PORTES

Portes

Touch Poignées

CARACTÉRISTIQUES TECHNIQUES POIGNÉES DE PORTES COULISSANTES

Portes coulissantes

Le design épuré cadre parfaitement avec les maisons modernes, mais offre un contraste élégant en rénovation. Touch est disponible dans toutes les couleurs RAL, texturées et anodisées. Une béquille de la même couleur que le dormant de la fenêtre ou de la porte est également possible.

Portes levantes-coulissantes

CARACTÉRISTIQUES

Traitement de surface anodisé (généralement possible) ou thermolaqué Couleurs toutes les couleurs RAL sont disponibles Emplois portes, fenêtres à ouverture vers l’intérieur et portes coulissantes + levantes-coulissantes

67 POIGNÉES
68

Horizon Poignées

En quête de nouveaux horizons

Le but ultime de presque tout le monde lorsqu’il s’agit de construire ou de rénover. Les poignées Horizon se fondent dans la fenêtre de manière quasi invisible. Par conséquent, elles s’intègrent parfaitement à tous les styles architecturaux.

Les poignées Horizon peuvent être soit anodisées, soit thermolaquées dans toutes les couleurs RAL.

CARACTÉRISTIQUES TECHNIQUES

POIGNÉES DE FENÊTRES

Fenêtres

Poignée avec embase courte et béquille longue

POIGNÉES DE PORTES

Portes

Poignée avec embase longue ou embase réduite avec rosace et béquille longue. Idéale pour les volets déroulants.

CARACTÉRISTIQUES TECHNIQUES POIGNÉES DE COULISSANTES

Portes coulissantes

Poignée avec embase courte et béquille longue Une rosace est également disponible.

Poignée avec embase longue et béquille longue.

CARACTÉRISTIQUES

Traitement de surface anodisé (généralement possible) ou thermolaqué Couleurs disponible dans toutes les teintes RAL

Emplois portes, portes coulissantes, fenêtres ouvrant vers l’intérieur (ouvrant à la française, tombante, oscillo-battant, battante-ouvrante)

69 POIGNÉES
70
AVALON @ Reynaers HQ, Duffel, Belgique Salle de réalité virtuelle pour la visualisation de projet.

Activités et services

71 ACTIVITÉS ET SERVICES

Produits innovants et de haute qualité

Recherche et développement

Reynaers Aluminium investit énormément dans la recherche et le développement pour maintenir sa position dominante dans le secteur. Nous travaillons en étroite collaboration avec des architectes et des entrepreneurs en bâtiment du monde entier, en développant des systèmes et des solutions pour la construction de façades complètes – de la conceptualisation à la fabrication et à l’installation.

Durabilité efficience énergétique : isolation thermique, protection solaire, énergie solaire cradle-to-cradle, labels verts

Les systèmes de fenêtres, portes et murs-rideaux hautes performances de Reynaers Aluminium sont développés dans le but d’améliorer l’efficience énergétique, le design, le confort et la sécurité des bâtiments.

Tous nos développements sont motivés par ces 4 facteurs d’innovation clés :

Sécurité anti-effraction, anti-feu, pare-balles, évacuation des fumées, antisismique

Confort climat intérieur, isolation phonique, intégration des systèmes dans les sols, lumière du jour, domotique, étanchéité à l’eau

Gestion de la qualité

Design transparence : grandes baies vitrées, profilés minces, panneaux vitrés pleins

Reynaers Aluminium a pour objectif d’être toujours valorisé par ses partenaires durant dix ans. La satisfaction des clients et l’assurance de la qualité sont étroitement liées ; c’est pourquoi elles figurent toutes deux en tête de notre liste de priorités. En collaboration avec nos fournisseurs, nous nous efforçons de garantir en permanence une qualité élevée.

Certification ISO 9001:2008 : la preuve d’un contrôle de qualité permanent

La recherche de la qualité n’est pas un vain mot chez Reynaers Aluminium. Nous actualisons en permanence et systématiquement notre contrôle de qualité, comme le prouve notre certification ISO 9001 : 2008. Afin d’acquérir et de maintenir cette certification, nos départements responsables du design, de la production et de la livraison de tous nos produits et services, sont régulièrement inspectés.

Qualicoat garantit un travail de laquage de haute qualité

Tous nos partenaires de peinture portent le label de qualité européen Qualicoat, ce qui signifie qu’ils répondent à des exigences spécifiques en matière d’étanchéité, de durée de vie, de résistance aux UV, de décoloration, etc. Il s’agit de la meilleure garantie possible couvrant la qualité du travail de laquage.

Qualanod garantit une anodisation optimale

Tous nos fournisseurs d’anodisation portent le label de qualité européen Qualanod, ce qui signifie qu’ils répondent à des exigences spécifiques en matière d’étanchéité, de durée de vie, de résistance aux UV, de décoloration, etc. Il s’agit de la meilleure garantie possible couvrant la qualité du travail d’anodisation.

72

10 ans de garantie

ANS DE GARANTIE

Reynaers Aluminium garantit que les systèmes Reynaers Aluminium répondent aux spécifications techniques et aux normes du pays et du produit en question.

Les règles actuelles de traitement et d’entretien mentionnées dans les catalogues de Reynaers Aluminium déterminent la portée de cette garantie de 10 ans (une garantie de 5 ans pour les pièces d’usure).

Objet de la garantie

Les produits livrés par Reynaers Aluminium ont les propriétés et/ou garanties suivantes, à l’exception explicite des articles détaillés sous les rubriques « validité » et « exclusions ».

Aluminium

Normes relatives à l’aluminium extrudé : ¡ Composition selon la norme EN 573, parties 3 et 4 ; ¡ Propriétés mécaniques selon la norme EN 755 partie 2 ; ¡ Tolérances selon la norme DIN 17 615 et EN 12020 partie 2 ;

10 year system guarantee

Normes relatives à l’aluminium laminé : ¡ Composition de l’aluminium peint EN AW 1050 A H24 selon la norme EN 573 partie 3 ; ¡ Composition de l’aluminium anodisé EN AW 5005 H14 AQ selon la norme EN 573 partie 3 ; ¡ Propriétés mécaniques selon la norme EN 485 partie 2 ; ¡ Tolérances selon la norme EN 485 partie 4.

Peinture et anodisation

Une garantie de 10 ans sur : ¡ Détachement, écaillage et cloquage des pièces en aluminium traitées. ¡ Corrosion, y compris la corrosion filiforme du matériau AlMgSi0.5F22 (AW 6060 et AW 6063) avec des exigences supplémentaires Zn ≤ 0,15% ; Cu ≤ 0,02 % ; Pb ≤ 0,022 % ; Si : 0,30 -0,55 % ; Fe : 0,10—0,30 % ; Mg : 0,35 %- 0,60 % ; Mn ≤ 0,10 % ; Cr ≤ 0,05 % ; Ti ≤ 0,10 % ; autres éléments individuellement ≤ 0,05 % ensemble ≤ 0,15 % ; après traitement T66 ; ¡ Résistance aux UV, décoloration et perte de brillance dépassant les tolérances définies, selon les réglementations Qualicoat et Qualanod (dernières éditions).

¡

La garantie sur la peinture peut être prolongée sous certaines conditions. Ces conditions peuvent être obtenues auprès de Reynaers Aluminium.

Isolation

Une garantie de 10 ans sur : ¡ Adhérence entre les bandes de polyamide et l’aluminium ; ¡ Maintien des propriétés thermiques et mécaniques de l’isolant, dans les limites définies par les spécifications techniques.

Accessoires

Accessoires, joints et profilés synthétiques : ¡

Une garantie de 10 ans sur les propriétés, la fonctionnalité et l’aspect, dans les limites définies par les spécifications techniques ; ¡ Peinture et anodisation : voir ci-dessus ; ¡

Une garantie de 5 ans sur les pièces d’usure, ne s’applique qu’à une utilisation normale et prévisible de façon réaliste. ¡

Une garantie de 2 ans sur les composants électriques et en bois

Tous les détails sont précisés dans la Garantie système.

10
73 ACTIVITÉS ET SERVICES

Couleurs et finitions infinies

Couleurs et finition

Pour le traitement de surface des profilés, nous collaborons avec des entreprises de peinture triées sur le volet qui adhèrent strictement à nos normes et règles.

Reynaers Aluminium peut vous fournir différents traitements et finitions, en fonction de vos goûts personnels et de l’environnement de construction :

• Thermolaquage en poudre : Convient à tous les environnements, sauf les environnements (légèrement) agressifs. Disponible dans de grandes variations de couleurs, et existant en différentes possibilités de brillance et de finition.

• Pré-anodisation et thermolaquage : La préanodisation pour les environnements agressifs (zone côtière < 1 km, piscine…) ou le traitement en bord de mer pour les environnements légèrement agressifs (zone côtière 1-10 km, chemins de fer…) donne à la finition une résistance accrue à la corrosion. Disponible dans de grandes variations de couleurs, et existant en différentes possibilités de brillance et de finition.

• Anodisation : Convient à tous les environnements, l’épaisseur de couche est ajustée pour les environnements agressifs. Disponible en différentes couleurs : naturel, champagne, bronze et noir. Préserve l’aspect naturel de l’aluminium.

Reynaers Colour Wall

Le Reynaers Colour Wall facilite la sélection de la bonne couleur et du bon traitement de surface. Le « Colour Wall » présente une variété de couleurs et de finitions disponibles, depuis les couleurs RAL métallisées ou anodisées, ano-look, mates ou brillantes jusqu’au revêtement structuré Tiger, en passant par la finition spéciale Coatex qui nécessite peu d’entretien et résiste aux rayures.

Nous vous accueillons sur le Campus Reynaers pour vous faire découvrir de façon interactive les couleurs ainsi que nos derniers produits et innovations. Prenez contact avec votre représentant Reynaers Aluminium pour obtenir un rendez-vous.

74

Solutions sur mesure

Équipe de consultance et de projet Reynaers Aluminium

“I have a dream…” Presque tout commence par un rêve, une vision. Avec de l’imagination, de l’enthousiasme et un peu d’aide de Reynaers Aluminium, votre rêve se transformera en un projet qui deviendra bientôt réalité.

Alors que Reynaers Aluminium ouvre la fenêtre sur le monde, nous prévoyons d’être là pour vous non seulement cette année, mais aussi les suivantes.

Nous, les consultants, ingénieurs et techniciens de Reynaers Aluminium, sommes vos partenaires professionnels et sommes en mesure de créer un design spécial. Nous vous accompagnerons à chaque étape et nous vous aiderons à concrétiser vos projets !

Des solutions sur mesure testées et approuvées

De nouveaux projets ont besoin de solutions adaptées. C’est pourquoi nous allons même développer de nouveaux produits pour vous. Vous avez besoin d’un nouveau profilé, d’un design particulier et de spécifications différentes dans l’un de vos projets récents ? Le projet des aéro ports d’Heathrow et de Gatwick, où des équipes de produits spéciaux ont été chargées de concré tiser les concepts, en est une belle illustration.

Toutes les mesures standard de nos produits sont testées et certifiées. Mais il arrive parfois qu’on planifie un module qui ne relève pas de mesures standard ou qui doit répondre à des exigences particulières. Après accord, Reynaers Aluminium sera en mesure d’en assumer la conception et de la tester en termes de résistance au vent, d’étan chéité à l’eau et de stabilité. Les installations d’essai du campus de Reynaers sont entièrement conformes aux normes officielles.

Ferrari World, Abu Dhabi, UAE Architect : Benoy Architects
75 ACTIVITÉS ET SERVICES

Testé et validé de manière approfondie

Le centre technologique de Reynaers Aluminium est le plus grand centre privé d’innovation et d’essai en Europe. Tous les systèmes de Reynaers Aluminium y sont rigoureusement testés pour qu’ils répondent aux normes internationales. Les différents tests s’articulent autour de ces 3 TENDANCES MAJEURES de l’industrie de l’aluminium

Confort Durabilité Sécurité

L’une des vitrines de ce centre est son mur d’essai avant-gardiste d’une hauteur de 15 mètres. Spécialement développé à cet effet, il permet de soumettre des façades - notamment vitrées - à des essais d’étanchéité à l’air, au vent et à l’eau. Sa hauteur de 15 m permet de tester des éléments de plusieurs étages, les raccords jouant un rôle important.

Pour les fenêtres et les portes, nous disposons d’un mur de 20 m de large pour effectuer des tests de perméabilité à l’air, de résistance à la charge du vent et d’étanchéité à l’eau. Il y a 5 murs de test calibrés avec une capacité totale de 10 positions de test différentes.

Pour garantir que tous les systèmes Reynaers Aluminium restent stables et de haute qualité même après une utilisation intensive ou après une catastrophe naturelle, nous effectuons des tests cycliques et des tests sismiques. Le laboratoire de test acoustique met à l’épreuve l’isolation phonique des éléments de façade en aluminium. Différents éléments de test peuvent être intégrés grâce à une cloison de séparation flexible entre la salle d’émission et de réception. Le centre technologique accueille également le centre de

recherche, avec le R-cube et le R-Lab. Le R-cube est une installation rotative de recherche et d’essai conçue pour l’analyse des performances thermiques. Le R-lab est le laboratoire dédié aux tests de solutions à un stade précoce grâce à l’utilisation du prototypage rapide et de l’impression 3D.

1. ÉTANCHÉITÉ À L’AIR, AU VENT ET À L’EAU 2. ISOLATION PHONIQUE 3. ISOLATION THERMIQUE 1. PERFORMANCES MÉCANIQUES 2. RAYONNEMENT SOLAIRE 3. AUTRES INSTALLATIONS DE TEST 4. PERFORMANCES ÉNERGÉTIQUES 1. RÉSISTANCE AUX IMPACTS 2. RÉSISTANCE À L’EFFRACTION 3. PARE-BALLES 4. RÉSISTANCE AU FEU 5. RÉSISTANCE À LA FUMÉE 6. ÉVACUATION DE LA FUMÉE ET DE LA CHALEUR
:
76

Le marquage CE est désormais exigé également dans l’industrie européenne du bâtiment. Les produits doivent démontrer leur conformité avec la réglementation européenne appropriée. Le règlement sur les produits de construction (RPC) vise à promouvoir la libre circulation des produits au sein de l’Union européenne en supprimant les barrières techniques entre les normes qui s’appliquaient auparavant aux différents pays. Le RPC fixe désormais les exigences de base auxquelles les produits doivent répondre en termes de :

• Résistance mécanique et stabilité,

• Sécurité et accessibilité à l’usage,

• Sécurité en cas d’incendie,

• Protection contre le bruit,

• Hygiène, santé et environnement,

• Économie d’énergie et rétention de chaleur,

• Utilisation durable des ressources naturelles.

Pour le marquage CE des façades, la norme de produit harmonisée 14351-1 s’applique aux fenêtres et aux portes et 13830 aux murs-rideaux.

Marquage CE

Cette obligation n’est pas seulement valable pour les entreprises qui exportent vers d’autres pays de l’Union européenne, mais aussi pour celles qui sont exclusivement actives dans leur pays d’origine.

Les systèmes Reynaers Aluminium peuvent recevoir le marquage CE conformément aux normes de produits applicables. Cela implique qu’ils sont pleinement conformes au règlement de l’UE sur les produits de construction (RPC).

La procédure de marquage CE des produits implique un processus qui commence par un essai type où tous les éléments pertinents des produits sont testés pour déterminer dans quelle mesure un produit répondra aux normes qui lui sont applicables, et des classes de conformité sont attribuées. Un deuxième point important du marquage CE est le contrôle de la production en usine (FPC). Cela garantit que les produits sont fabriqués dans des conditions contrôlées afin que chaque produit satisfasse aux performances déterminées lors de l’essai type.

77 ACTIVITÉS ET SERVICES

Services numériques tout au long de la chaîne de valeur

AVALON

En Belgique, Avalon (la chambre de réalité virtuelle du Campus Reynaers) vous permet de visiter de futurs bâtiments grâce à une expérience de réalité virtuelle partagée. Vous pouvez ainsi entrer dans un bâtiment pendant sa phase de conception. Avec les partenaires de votre projet, vous pouvez naviguer dans différents espaces et changer chaque aspect de la conception, en modifiant les dimensions des pièces, des éléments de construction ou encore les couleurs et les matériaux. Ce puissant outil change radicalement la façon dont la conception d’un bâtiment est évaluée et perçue.

Pour qui ?

La chambre de réalité virtuelle Avalon crée l’environnement parfait pour une expérience commune et une collaboration entre architectes, investisseurs, entrepreneurs et spécialistes de

Reynaers Aluminium. Vous pouvez réunir les différents acteurs de votre projet pour une visite virtuelle et une évaluation en 3D des bâtiments et des solutions.

Qu’est-ce qu’Avalon peut faire pour vous et votre projet ?

Avalon transforme votre modèle architectural 3D (Revit, Archicad, Sketchup, Navisworks...) en un modèle virtuel dans lequel vous pouvez entrer, ce qui vous permet d’évaluer toutes sortes d’aspects techniques et de conception de l’intérieur ou de l’extérieur du bâtiment. Un modèle dédié d’un immeuble de bureaux et d’une habitation privée est créé pour pouvoir échanger, configurer et tester les produits Reynaers Aluminium. Les modifications apportées au modèle peuvent se faire en temps réel, ce qui vous permet d’évaluer avec votre client les différentes options de la manière la plus réaliste possible et d’améliorer le processus décisionnel.

78

BIM

La modélisation des données du bâtiment (Building Information Modelling, BIM) est utilisée pour concevoir et documenter la conception des bâtiments et des infrastructures à travers les différentes phases d’un projet, depuis sa conception jusqu’à sa démolition, voire sa réutilisation. Chaque phase impliquera une combinaison différente de détenteurs d’enjeux dont chacun possède ses propres souhaits et attentes.

Pourquoi le BIM ?

Chez Reynaers Aluminium, le BIM a déjà apporté la preuve de sa valeur ajoutée dans de nombreux projets. Parmi les principaux avantages de l’utilisation du BIM, citons :

¡ Traduction compréhensible de notre gamme de produits

¡ Implication à un stade précoce

¡

Détection des problèmes potentiels : pour gagner du temps et de l’argent ¡

Fourniture d’informations utiles lors de l’exploitation et de la maintenance ¡ Méthode de documentation centralisée de tous les éléments ¡

Outil de collaboration

Centre d’automatisation

Reynaers Aluminium propose une gamme complète de solutions d’automatisation au client par le biais de partenariats dédiés. Chaque étape du processus de production peut être optimisée en combinant avec précision l’expérience et le savoir-faire adéquats, des machines de pointe, les technologies les plus récentes et un lien optimisé avec le logiciel ReynaPro et ReynaFlow.

Reynaers Aluminium propose une variété de modèles BIM offrant différents niveaux de détails graphiques et de profondeur de données afin de permettre à un architecte, un fabricant ou tout autre professionnel du bâtiment de calculer et de simuler si nécessaire pratiquement tous les aspects du bâtiment :

¡

Nous proposons des modèles BIM standard, utiles pour une visualisation correcte des contours de nos produits.

¡

Pour les architectes, nous offrons plus de détails, afin qu’ils puissent choisir le bon type d’ouverture, de divisions et de vitrage, et inclure les métadonnées correctes pour la configuration concernée.

¡

Nous disposons également d’un module BIM lié au logiciel de calcul ReynaPro, ce qui permet de générer des modèles directement à partir de cet outil.

¡

Enfin, si vous souhaitez obtenir le plus haut niveau de détail dans vos modèles BIM, nous vous proposons également un service sur mesure fournissant les configurations exactes adaptées à votre projet, même pour des solutions non standard.

De cette manière, le constructeur a la possibilité de produire de la manière la plus efficace possible, de réduire les coûts et d’augmenter la rentabilité.

Pour ce faire, Reynaers Aluminium sélectionne la solution la plus performante et la mieux adaptée à chaque type d’opération sur nos profilés.

79 ACTIVITÉS ET SERVICES

De solides outils de marketing

Communication

Reynaers Aluminium développe des outils techniques et marketing sur mesure afin de fournir des solutions à nos partenaires avec tous les moyens de travailler aussi bien et efficacement que possible.

Une large gamme d’outils et de services est à la disposition de nos clients : ¡

Site de l’entreprise : www.reynaers.com ¡

Formations commerciales ¡ Matériel pour points de vente

Brochures de produits

Brochures d’entreprise

Livre de référence ¡

Films de démonstration d’assemblage sur une chaîne de formation dédiée ¡ Présence à des salons

Portail client

Sur le nouveau portail client, les constructeurs et installateurs de Reynaers Aluminium peuvent accéder à une documentation technique et à des informations commerciales actualisées. Toutes les informations sont regroupées en catégories et facilement accessibles grâce à un tableau de bord sur la page d’accueil. Le nouveau portail client de Reynaers Aluminium est la plaque tournante de tous les services numériques de Reynaers Aluminium.

ƒ

Informations produit : Accès facile aux catalogues, aux informations sur les articles et aux dessins de matériel. Grâce à la fonction de notification intégrée, les utilisateurs seront instantanément informés dès qu’une nouvelle version d’un document sera disponible.

ƒ Outils : Tout nouveau calculateur de codes couleur, en plus des sites web existants U-tool, Ventalis, Statica et Profical.

ƒ

Formation : Aperçu de toutes les formations et bibliothèque de vidéos de formation pour expliquer l’assemblage des systèmes Reynaers Aluminium. Un calendrier de formation indique toutes les formations prévues au centre de formation du campus Reynaers Aluminium, ou les formations qui sont organisées dans le centre de formation local de Reynaers.

ƒ

Machines : Toutes les machines peuvent être commandées auprès de Reynaers Aluminium.

ƒ

Logiciel : Toutes les solutions logicielles pour nos clients : Electronic Ordering System (EOS), ReynaPro, ReynaFlow, etc.

ƒ

Site de commande : Accès au site web de commande, où les clients peuvent trouver un aperçu de toutes les commandes et factures en cours.

¡
¡
¡
80

Formation et assistance pratiques

Centre de formation

Chez Reynaers Aluminium, nous reconnaissons l’importance d’une production et d’une installation de qualité pour des performances à long terme de nos systèmes en aluminium. C’est pourquoi nous entretenons des contacts quotidiens avec un solide réseau international de fabricants et de designers professionnels, et pourquoi nous conseillons et formons nos clients.

Nous organisons de nombreuses sessions de formation afin d’enseigner à nos clients les compétences et le savoir-faire nécessaires pour leur permettre de fournir un service de qualité à leurs propres clients. Notre formation pratique se compose de cours standard et spécialisés (montage et installation) ainsi que de classes logicielles.

Reynaers Aluminium organise en moyenne 2 000 jours de formation chaque année (formation pratique et formation logicielle) pour ses clients et ses propres employés. Les élèves viennent du monde entier.

Assistance dédiée

Reynaers Aluminium accorde une importance toute particulière aux relations avec ses partenaires. Du soutien aux projets en passant par l’assistance technique et l’assistance à la clientèle, nous sommes à vos côtés à chaque étape pour garantir des projets parfaitement réussis pour toutes les parties prenantes.

81 ACTIVITÉS ET SERVICES

Durabilité

Reynaers Aluminium est conscient que les entreprises jouent un rôle important dans la protection de l’environnement. C’est la raison pour laquelle nous sommes constamment à la recherche de nouveaux moyens de devenir « plus écologiques » et nous sommes à la pointe du développement de produits durables et sobres en énergie.

Tout commence par le matériau que nous utilisons pour nos profilés : l’aluminium. La grande durabilité et la recyclabilité à 100 % sans perte de qualité ont solidement établi la réputation de l’aluminium en tant que métal écologique. Sa remarquable résistance, ses caractéristiques anticorrosion et son faible entretien en font le matériau de construction ultime pour une industrie qui recherche constamment des alternatives plus légères, plus solides, plus durables et plus respectueuses de l’environnement.

L’aspect développement durable a été reconnu par l’obtention du certificat C2C (cradle-tocradle) pour un certain nombre de solutions avancées de fenêtres, portes et façades. En résumé, le certificat « cradle-to-cradle » garantit que : ¡ aucun matériau nocif n’est utilisé ; ¡ nos systèmes sont fabriqués dans le respect des matières premières, de l’énergie et de l’utilisation de l’eau ; ¡ ces systèmes peuvent être recyclés facilement.

TM

Par conséquent, les systèmes certifiés C2C offrent la garantie d’une construction circulaire et respectueuse de l’environnement.

Cependant, la durabilité ne se limite pas à l’utilisation des matériaux : l’efficience

énergétique est également un point prioritaire pour Reynaers Aluminium. Ses investissements continus dans la recherche et le développement ont abouti à l’obtention du certificat Maison passive et du label suisse Minergie pour plusieurs de ses systèmes. Ces solutions efficientes en énergie peuvent être utilisées dans des maisons à faible consommation d’énergie ou neutres au plan énergétique et contribuent ainsi à un environnement durable. Pour les architectes et les constructeurs, il est payant de construire avec des systèmes certifiés C2C, Maison passive ou Minergie. Les principes de ces certificats sont étroitement liés à BREEAM (méthode d’évaluation environnementale BRE) et LEED (Leadership in Energy and Environmental Design), autant de labels internationalement reconnus qui déterminent les niveaux de durabilité des bâtiments. Ces certifications montrent que les bâtiments sont construits en tenant compte de questions environnementales telles que la demande énergétique du bâtiment, le recyclage des matériaux, l’utilisation de l’eau, le confort des occupants, l’utilisation de sources d’énergie renouvelables, la localisation du bâtiment…

L’intérêt croissant pour ces certificats prouve l’importance de la durabilité. Fort de produits innovants, d’une recherche continue et de la priorité à l’échange de connaissances, Reynaers Aluminium apporte une véritable contribution à ce mode de construction.

Cependant, notre objectif n’est pas seulement de rendre nos produits plus écologiques, mais aussi de garantir la durabilité au niveau de notre entreprise. Autour du campus Reynaers, une grande zone verte assure une gestion optimale et durable de l’eau. Par ailleurs, la société concentre ses efforts depuis de nombreuses années sur des solutions de transport alternatives et créatives pour son personnel, depuis le vélo électrique et le covoiturage jusqu’au choix de voitures de société à faibles émissions de CO2. Grâce à cette politique, Reynaers Aluminium a vu son empreinte carbone chuter considérablement en peu de temps. L’entreprise a également été parmi les premières à s’engager résolument dans l’utilisation de panneaux solaires à grande échelle.

82

Campus Reynaers

Le Campus Reynaers

Le campus Reynaers est le quartier général de Reynaers Aluminium. Ce site unique d’une superficie totale de 283 000 m² a pour but de partager le savoir-faire et l’expérience avec les architectes, les constructeurs, les entrepreneurs et d’autres partenaires du bâtiment.

Le campus Reynaers comprend le Centre d’expériences, Centre technologique, Centre de formation et le Centre d’automatisation.

Le campus Reynaers est bien plus qu’un simple bâtiment… C’est un état d’esprit et une incitation permanente à mettre en œuvre des valeurs telles que le partenariat et l’innovation. C’est un forum de communication international et une source d’inspiration pour tous ceux qui participent au processus de construction.

Centre d’expériences

Le centre d’expériences est un lieu de rassemblement et d’inspiration où nos dernières solutions et technologies de pointe sont au service de l’architecture et de la construction. La Salle d’expériences, grâce à des applications numériques truffées d’inspiration, vous permet de découvrir notre offre unique.

Avec un auditorium et de multiples salles de réunion, ce centre d’expériences est le lieu par excellence pour partager le savoir-faire et renforcer les partenariats.

83 ACTIVITÉS ET SERVICES

À PROPOS DE REYNAERS ALUMINIUM

« Notre objectif est d’augmenter la valeur des bâtiments et d’améliorer le cadre de vie et de travail des gens dans le monde entier. »

Reynaers Aluminium appartient au groupe Reynaers et est un spécialiste de premier plan du développement, de la distribution et de la commercialisation de solutions architecturales innovantes et durables en aluminium. Il propose notamment un large éventail de systèmes de portes et de fenêtres, de murs-rideaux, de systèmes coulissants et de vérandas. Outre la gamme complète de solutions standard, l’entreprise développe également des solutions sur mesure pour chaque client ou projet.

Fondée en 1965, Reynaers Aluminium emploie actuellement quelque 2.400 travailleurs dans plus de 40 pays à travers le monde et exporte vers plus de 70 pays sur les cinq continents.

Le groupe Reynaers a réalisé un chiffre d’affaires annuel de 555 millions d’euros en 2020. Le succès de l’entreprise est renforcé par un étroit partenariat avec 5.000 constructeurs partenaires, architectes et promoteurs immobiliers dans le monde entier. Cette coopération unique se reflète dans notre devise : Together for better

Sur le Campus Reynaers, notre but est de partager notre savoir-faire et notre expérience avec les architectes, les constructeurs, les entrepreneurs et d’autres partenaires du bâtiment. Au-delà du Centre de Technologie, de Formation et d’Automatisation, le Campus Reynaers possède également son propre Centre d’Expérience, où les futurs bâtiments peuvent être étudiés dans notre chambre de réalité virtuelle Avalon.

Pour tout complément d’information : www.reynaers.be

Oude Liersebaan 266

B-2570 Duffel

T +32 (0)15 30 88 10

F +32 (0)15 30 88 80

info@reynaers.be www.reynaers.be

– Éditeur responsable devant la loi : E. Fonteyne,
Duffel
10/2018 – 0H0.96D2.00
Oude Liersebaan 266, B-2570

Turn static files into dynamic content formats.

Create a flipbook
Issuu converts static files into: digital portfolios, online yearbooks, online catalogs, digital photo albums and more. Sign up and create your flipbook.