2022 2023 UB-FA YEARBOOK - DESIGN STUDIO S01b: URBAN DESIGN OF RESIDENTIAL AREAS (3-5)

Page 1

0 1 Volume 3_No_4 Studio Design 01b (2nd Year - BA/IA) 2022-2023 UB-FA STUDENTS` YEARBOOK Volume

IMPRESUM

TITLE:

STUDENT YEARBOOK UB-FA

EDITOR: Ivana Rakonjac

EDITORIAL BOARD:

EDITORIAL OFFICE:

PUBLISHER:

PLACE AND YEAR OF ISSUE

All material prepared in the Yearbook is published in the original form submitted by the authors of the projects. Descriptions of courses are published in accordance with

2022-2023 UB-FA YEARBOOK Studio Design 01b (2nd Year - BA/IA) STUDENTS` Volume 3_No_5
/ UB-FA position
2 I II 8 3 3 2 2 3 3 2 2 8 3 3 2 4 3 3 2 2 3 3 3 2 3 4 2 4 2 3 2 3 4 2 4 2 3 3 3 9 4 2 3 3 3 3 2 3 9 2 2 III
I II 8 3 3 2 2 3 3 2 2 2 8 3 3 2 4 3 3 2 2 III 3 3 3 2 3 4 2 4 2 3 2 3 4 2 4 2 3 3 3 9 4 2 3 3 3 3 2 9 4 3 IV V 2 2 3 3 3 2 2 2 3 3 3 2 2 2 3 3 3 5 3 5 2
PLANNING AND MANAGEMENT OF URBAN DEVELOPMENT 2 ECTS YEAR YEAR
ARCHITECTURAL DESIGN HISTORY OF ARCHITECTURE AND THE CITY 8 ECTS 3 ECTS 3 ECTS 2 ECTS MATHEMATICS IN ARCHITECTURE 2 ECTS MATERIALS AND BUILDINGS PHYSICS 3 ECTS 3 ECTS BASIC ELEMENTS OF FINE ARTS GRAPHICAL FORM TRANSFORMATION 2 ECTS VISUAL RESEARCH 2 ECTS SPACE AND SHAPE 8 ECTS HISTORY OF MODERN ARCHITECTURE AND URBANISM 3 ECTS URBAN MORPHOLOGY 3 ECTS 2 ECTS MASONRY BUILDING DESIGN 4 ECTS MECHANICS AND STRENGTH OF MATERIALS 3 ECTS 3 ECTS FINE ART REPRESENTATION OF FORM 2 ECTS ARCHITECTURAL GRAPHICS 2 ECTS HOUSING 3 ECTS HISTORY OF ART 3ECTS SHAPING OF OPEN URBAN SPACES 3 ECTS 2 ECTS THEORY OF STRUCTURES 3 ECTS ECTS RESIDENTIAL AREAS 4 ECTS FINE ART REPRESENTATION IN ARCHITECTURE 2 ECTS 4 ECTS ARCHITECTURAL HERITAGE IN SERBIA 2 ECTS 3 ECTS 2 ECTS BASICS OF WOODEN AND METAL STRUCTURES 3 ECTS SUSTAINABLE URBAN COMMUNITIES ECTS ARCHITECTURAL CONSTRUCTION 4 ECTS FINE ARTS MEDIA IN ARCHITECTURE 2 ECTS 4 ECTS CONTEMPORARY ARCHITECTURE AND ART 2 ECTS 3 ECTS BUILDING SERVICES 3 ECTS BASICS OF REINFORCED CONCRETE STRUCTURES 3 ECTS 9 ECTS COMPLEMENTARY CONTENTS 4 ECTS ELECTIVE COURSE SUSTAINABILITY 2 ECTS DESIGN PROCESS 3 ECTS URBAN RENEWAL 3 ECTS BUILDING TECHNOLOGY AND MANAGEMENT 3 ECTS STRUCTURAL SYSTEMS 3 ECTS LEGISLATION 2 ECTS VOCATIONAL PRACTICE 3 ECTS 9 ECTS 2 ECTS 2 ECTS YEAR III - Art.
I II
URBAN DEVELOPMENT AND RENEWAL 2 ECTS YEAR YEAR ARCHITECTURAL DESIGN HISTORY OF ARCHITECTURE AND THE CITY 8 ECTS 3 ECTS 3 ECTS 2 ECTS MATHEMATICS IN ARCHITECTURE 2 ECTS MATERIALS AND BUILDINGS PHYSICS 3 ECTS 3 ECTS BASIC ELEMENTS OF FINE ARTS GRAPHICAL FORM TRANSFORMATION 2 ECTS VISUAL RESEARCH 2 ECTS SPACE AND SHAPE 8 ECTS HISTORY OF MODERN ARCHITECTURE AND URBANISM 3 ECTS URBAN MORPHOLOGY 3 ECTS 2 ECTS MASONRY BUILDING DESIGN 4 ECTS MECHANICS AND STRENGTH OF MATERIALS 3 ECTS 3 ECTS FINE ART REPRESENTATION OF FORM 2 ECTS ARCHITECTURAL GRAPHICS 2 ECTS HOUSING 3 ECTS HISTORY OF ART 3ECTS SHAPING OF OPEN URBAN SPACES 3 ECTS 2 ECTS THEORY OF STRUCTURES 3 ECTS ECTS RESIDENTIAL AREAS 4 ECTS FINE ART REPRESENTATION IN ARCHITECTURE 2 ECTS 4 ECTS ARCHITECTURAL HERITAGE IN SERBIA 2 ECTS 3 ECTS 2 ECTS BASICS OF WOODEN AND METAL STRUCTURES 3 ECTS SUSTAINABLE URBAN COMMUNITIES ECTS ARCHITECTURAL CONSTRUCTION 4 ECTS FINE ARTS MEDIA IN ARCHITECTURE 2 ECTS 4 ECTS CONTEMPORARY ARCHITECTURE AND ART 2 ECTS PLANNING AND MANAGEMENT OF URBAN DEVELOPMENT 3 ECTS BUILDING SERVICES 3 ECTS BASICS OF REINFORCED CONCRETE STRUCTURES 3 ECTS 9 ECTS COMPLEMENTARY CONTENTS 4 ECTS ELECTIVE COURSE SUSTAINABILITY 2 ECTS DESIGN PROCESS 3 ECTS URBAN RENEWAL 3 ECTS BUILDING TECHNOLOGY AND MANAGEMENT 3 ECTS STRUCTURAL SYSTEMS 3 ECTS LEGISLATION 2 ECTS VOCATIONAL PRACTICE 3 ECTS SYNTHESIS OF BACHELOR LEVEL 9 ECTS 4 ECTS YEAR YEAR ECONOMISC IN ARCHITECTURE AND URBANISM THEMATIC RESEARCH VOCATIONAL PRACTICE MASTER THESIS YEAR ARCHITECTURAL PHILOSOPHY 2 ECTS 2 ECTS 2 ECTS 3 ECTS ECTS ECTS 2 ECTS ECTS 2 ECTS 3 ECTS 3 ECTS 3 ECTS ECTS ECTS 3 ECTS 3 ECTS 3 ECTS 2 ECTS ECTS 2 ECTS 2 ECTS 3 ECTS 3 ECTS 3 ECTS ECTS 2 ECTS ARCHITECTURE AND SOCIETY
- Art.
I II III IV V

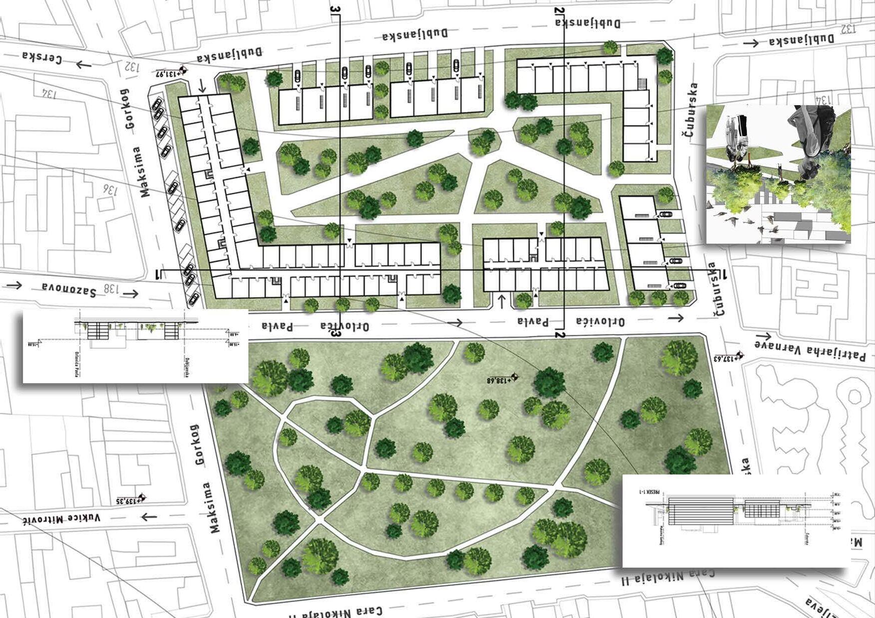
elements of urban technology.

elements of urban technology.

elements of urban technology.

elements of urban technology.

Associate Professor Teaching Assistant teacher: teaching associate: elements of urban technology.

elements of urban technology.

Assistant Professor teacher: teaching associate: elements of urban technology.

Assistant Professor teacher: teaching par ticipants: elements of urban technology.

Assistant Professor Teaching Assistant teacher: teaching par ticipants: elements of urban technology.

Assistant Professor Teaching Assistant teacher: teaching par ticipants: elements of urban technology.

teacher: teaching associate: teaching par ticipants: elements of urban technology.

teacher: teaching associate: elements of urban technology.

Assistant Professor teacher: teaching associate: elements of urban technology.

72
arhbgd Volume 3_No_4 Studio Design 01b (2nd Year - BA/IA) 2022-2023 UB-FA STUDENTS` YEARBOOK Volume

Turn static files into dynamic content formats.

Create a flipbook
Issuu converts static files into: digital portfolios, online yearbooks, online catalogs, digital photo albums and more. Sign up and create your flipbook.