32 to 34 Mahuhu Crescent, Auckland Information Memorandum

Page 1


WE’RE INVESTED.

Established in Tauranga in 1992, PMG has been managing commercial properties and helping tenants to thrive in them, for over 30 years.

We now have over $850M* in commercial properties entrusted in our care. Our diversified property portfolio includes large-scale industrial parks, NABERSNZrated office buildings and large-format retail properties nationwide.

Our experienced asset and facilities managers have over 150 years of combined, specialist commercial property experience, bringing strong business acumen and a tenant-orientated approach to property management.

With a focus on enhancing asset value, the secret to our success is building long-term, trusted relationships with our tenants. We work hard to understand your business(es) and what our tenants need from the physical spaces they operate in, both now and in the future.

We have a strong passion, and track record, in delivering environmental sustainability solutions for our tenants.

It’s our primary aim to be your property partner of choice.

05 10 14 18 08 11

PROPERTY OVERVIEW LOCATION

PROPERTY HIGHLIGHTS MAP

CURRENT VACANCIES

TESTIMONIALS & CONTACT

Property overview

32 – 34 Mahuhu Crescent is an A–grade office building in the Quay Park precinct in Auckland’s bustling Central Business District. Built in 2002, the property consists of two twin office buildings, comprising seven levels and linked by a common service core.

The floor plates are generally regular and benefit from balconies in each corner. There is an ample car park with a high car parking ratio of 1 to 94sqms. The building overlooks Mahuhu Park to the south and out to Waitemata Harbour to the north.

Key information

100% NBS by DSA from November 2023

High stud height

Located in the Quay Park precinct

• Professionally managed

• Affordable CBD rental rates

Building specifications

Sustainability & waste management

We are currently collecting data required to obtain a NABERS rating.

The building has a recycling programme that measures and manages seven different waste streams. There is a designated waste area with waste bins for each stream.

Building services

With PMG taking over the management of the building, we are proactively reviewing the existing contracts and revising scopes to ensure the building is looked after to a high standard. Alongside this process we are changing over services to national providers who we have strong relationships with and can guarantee our high service expectations.

Lighting

We are currently working though a staged programme to complete LED Lighting replacements in all common areas.

Facilities management

PMG provides a 24/7 facilities management service through our online portal and 0800 number. Tenants can log maintenance and other requests at any time. PMG’s proactive building management ensures effective management of health and safety issues and the compliance of our properties with the relevant standards and legislation.

The Facilities team won the Sustainability and Environmental Impact, as well as the Facilities Management Team of the Year awards at FMANZ 2023.

HVAC

The HVAC central plant is an air-cooled chiller located on the roof. There are interior fan coil units throughout the premises providing conditioned air through supply air vents controlled by a central Building Management System (BMS). The chiller was upgraded in June 2023, and the BMS in October 2023.

Seismic rating

The building has an NBS rating of 100%, as determined by Detailed Seismic Assessment (DSA) dated November 2023.

It is this level of commitment and your very direct and positive approach which makes working for PMG a pleasure. They aim to achieve the best result for their tenants rather than looking at the cheapest cost option. This is a rare commodity in today’s market, but we are positive that this approach leads to significant benefits for all concerned.

Location

32-34 Mahuhu Crescent overlooks Auckland’s ports and Waitemata Harbour and is adjacent to Spark Arena. This location blends prestige with convenience. With a Countdown supermarket nearby and easy access to Britomart train station and motorways connection north and south, your business will thrive in this dynamic location.

The location benefits from ample streeting park for your guests and visitors. The building has predominant street frontage on Quay Street.

Key amenities

Map Key Locations

1. 32-34 Mahuhu Cresent (subject property)

2. Spark arena

3. Woolworths

4. Motorway access north/south and west

5. Britmomart train station

6. Ferry Terminal

7. Albert park

Convenient location, with easy access to:

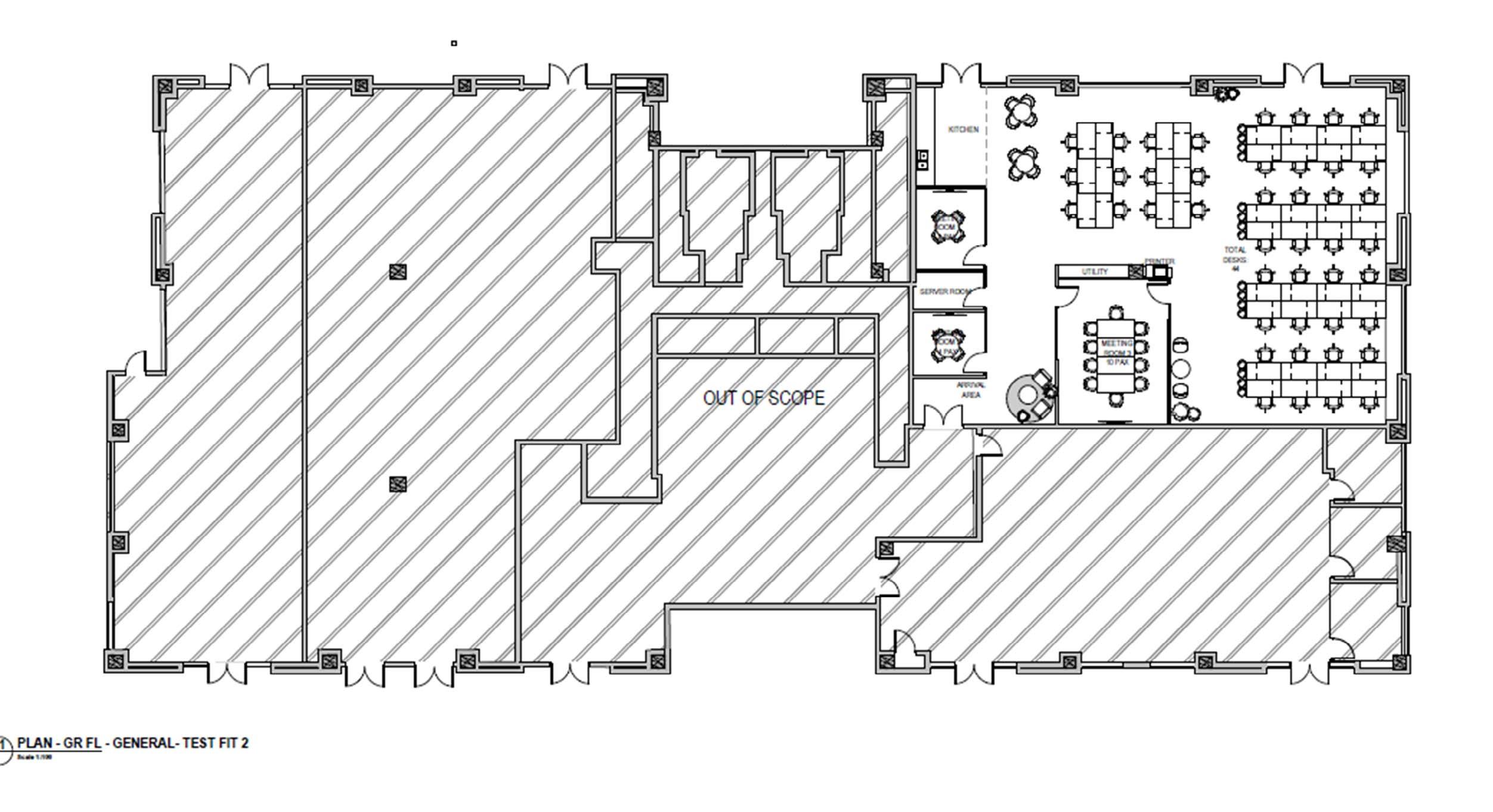
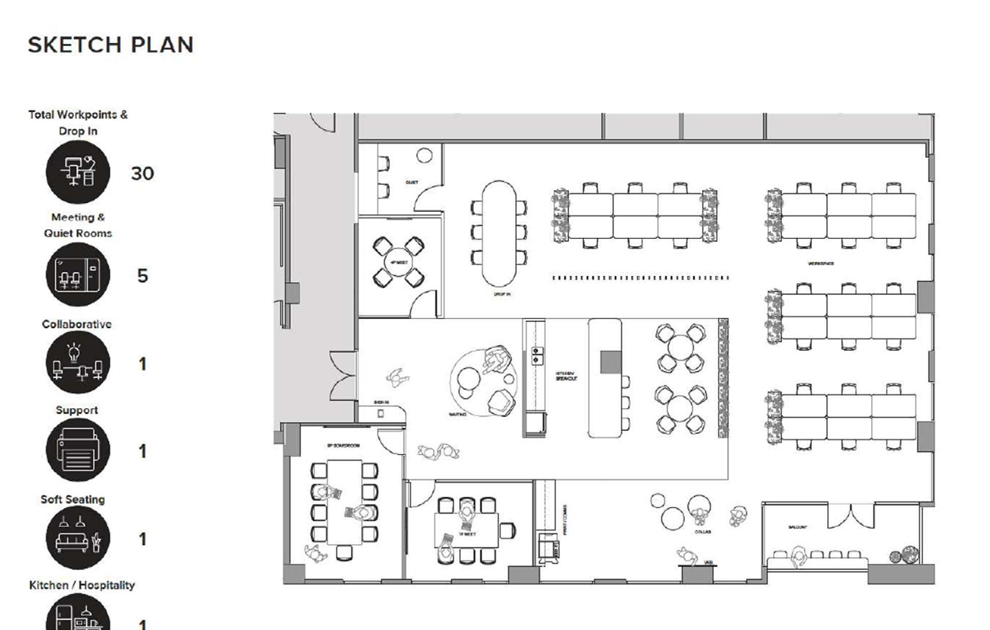
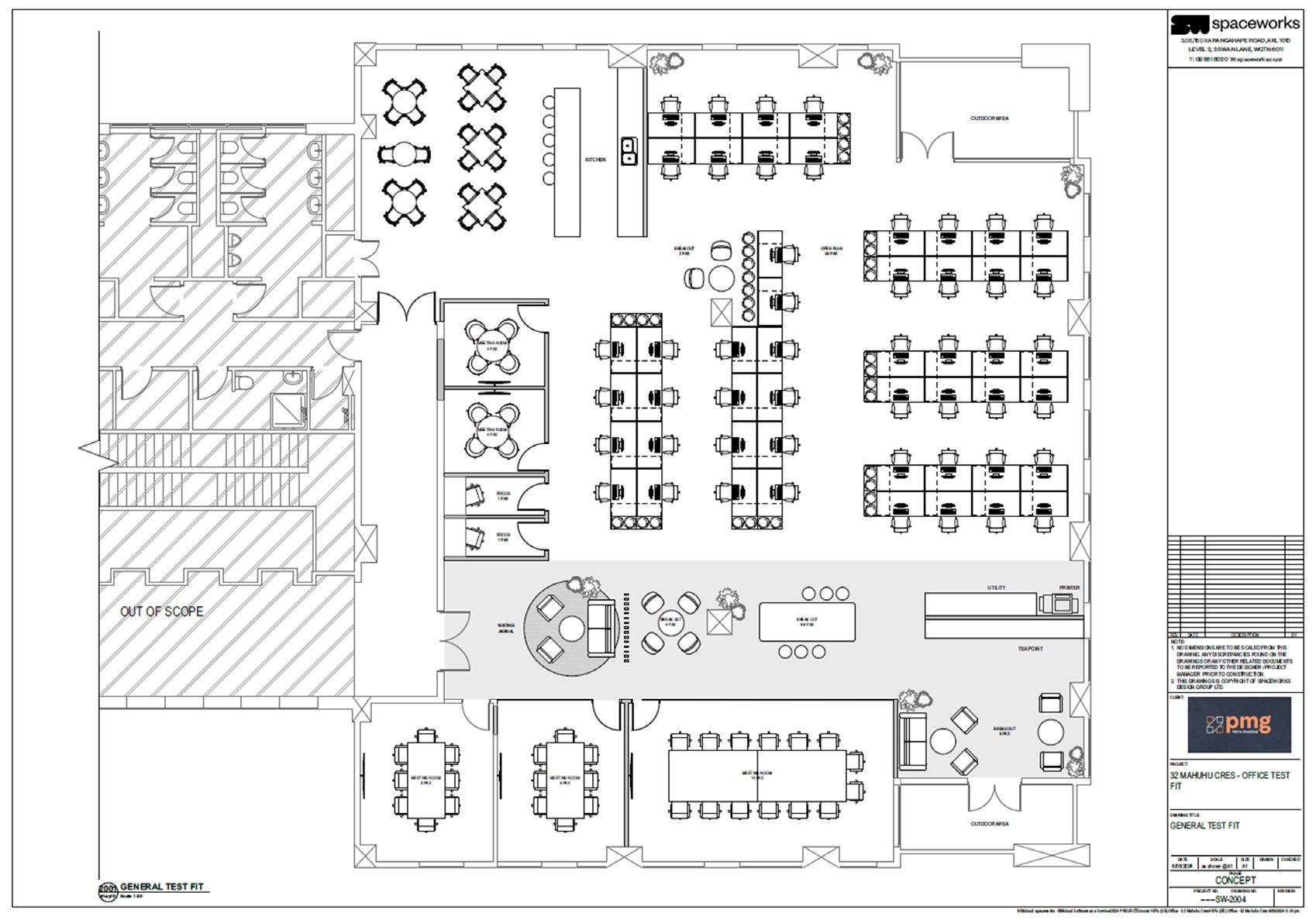
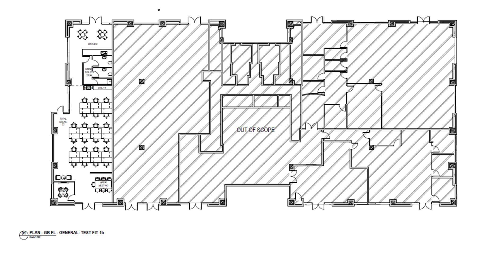
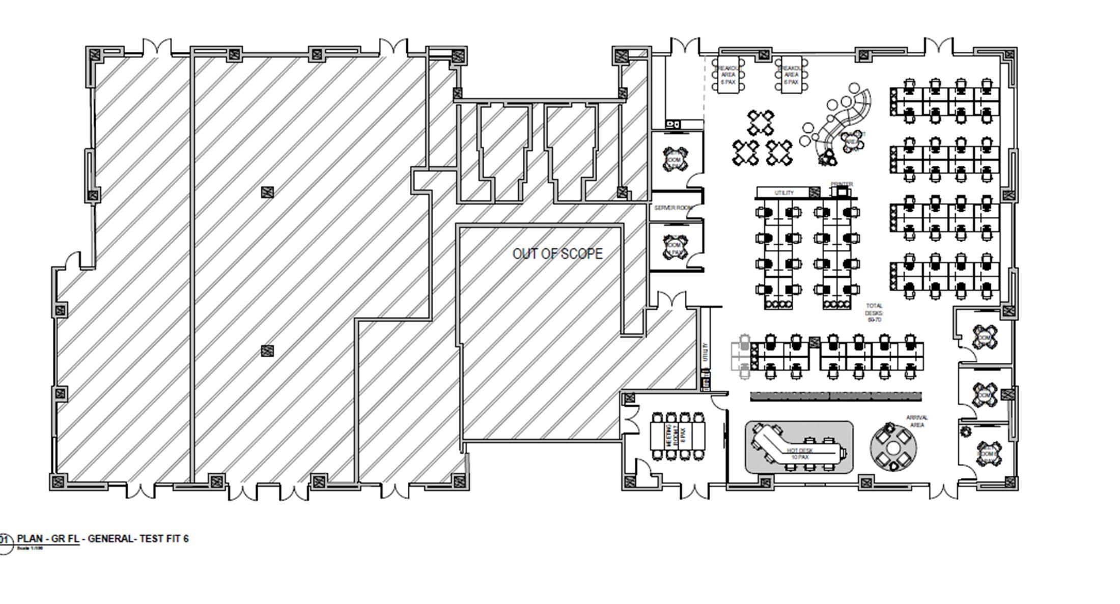
Indicative tests fit outs

Vacant 1F (option 1)

Vacant 1B

Vacant 1F (option 2)

Unit 1D and unit 1C

Indicative tests fit outs

Unit 1b, 1c and unit 1d

Level 4b

Unit 2c
Level 4b and C

Lloyd Clark

Asset Manager

027 700 9097

lloyd.clark@pmgfunds.co.nz

Helena van den Berg

Facilities Manager

027 700 5040

helena.vandenberg@pmgfunds.co.nz

ISO 14064-1:2018

The improved end of trip facilities PMG put into our building have promoted a healthier, more sustainable and more accessible workplace. A pleasing win-win for us and the environment

Turn static files into dynamic content formats.

Create a flipbook
Issuu converts static files into: digital portfolios, online yearbooks, online catalogs, digital photo albums and more. Sign up and create your flipbook.